PORTFOLIO

Page 1


PORTFOLIO

SELECTED WORKS BY VICTORIA CAVERO

Fifth Year Architecture Cal Poly Pomona

Second

“LITTLE

FARMS”

Group project.

At Griffith STEAM Magnet Middle School, the Department of Food Science and Agriculture applies AIA Design for Excellence to educate students on the significance of nutrition and sustainable living. Our program features innovative composting solutions and organic gardening practices that confront the challenges of today’s food systems, while also celebrating the enduring agricultural legacy of East Los Angeles, thus preparing students to become informed and responsible environmental advocates.

SUS T A I N A B L E STRATEGIES

REGENERATIVE BUILDING WASTECOLLECTION COMPOSTING/FERTILIZING

INTERACTIVE EDUCATION

AGRICULTURAL

HOMES

FLOOR PLANS

GROUND FLOOR PLAN

SECOND FLOOR PLAN

Scale: 1” = 40’

SUSTAINABILITY DIAGRAM

BIPV PANELS

WEST FACING GREEN WALLS

CHICKEN AND RABBIT HUTCH

NATIVE PLANTS THROUGHOUT SITE

COMPOSTING TOILETS

BIOSOLIDS OFFSITE

COMPOSTING

EXPERIENTIAL PATHS ON SECOND FLOOR TO PROVIDE SHADING, WHILE GUIDING DAYLIGHT ONTO COURTYARDS

SLANTED ROOFS TO MAXIMIZE ENERGY SOLAR GAIN AND WATER CAPTURE

AUTOMATIC SOLAR WINDOWS FRIT PATTERN TO MINIMIZE GLARE SOUTHERN FACADE HORIZONTAL LOUVERS

AGRICULTURAL GARDEN

San Donnino Incinerator - Adaptive Reuse Project Group project.

By utilizing the existing model within the incinerator this project takes a building that was meant for destruction and repurposes it towards growth both in community engagement and sustainability in various forms. The plants on site work together as a unity towards growth and regeneration of the soul. Similarly, the building is our GARDEN, fostering the same sprouting up of people in the community oriented towards those same goals. Through various programs, the new San Donnino Market and Community Center encourages people to follow a sustainable lifestyle and aids create a positive BLOOMING COMMUNITY.

PROPOSAL: SITE CIRCULATION AND PROGRAM DIAGRAM

GRAVEL ROAD: PEDESTRIAN AND BIKE

DIRT ROAD: PEDESTRIAN

PAVED ROAD: VEHICLE AND BIKE

HIGHWAY

TRACKS: TRAIN AND TRAM

PROPOSAL: MICRO SITE PLAN

EXISTING BUILDING

3 4 5

ARRIVIAL

Garbge trucks arrive on the ramp to dump the waste in the landfill.

SORT

The waste is sorted out by picking out any high value recyclable items or resale.

COLLECT

The claw machine will collect the shredded waste in equal batches to the three rooms where the drying process begins.

DRY

The drying process involves reducing the moisture content of waste load as low as possible.

HEAT

The temperature of the incinerator much reach to 850°C before the waste is loaded.

COOL

The incinerator is left to cool down the ash and the smoke from the waste exits from the two cylinder towers which enters to the atomsphere.

1 2

PROPOSED BUILDING

Community members arrive to the building’s market.

ARRIVIAL SORT

People sort through and buy the fresh produce that is being sold.

DINE

Guests can move onto the Dinning hall to enjoy delicious food from the market or from the cafe and vegetarian restaurant adjacent to the space.

LEARN

Cooking classroms are available for people to learn healthy recipes.

ASCEND VIEW

The ascension to the rest of the building begins, leading you to a variety of classrooms and event spaces that provide insight on sustainability and homestead living.

The final destination of the building is a 360 view point to the landscape and community of San Donnino.

EXISTING BUILDING MASSING

PROPOSED BUILDING MASSING

PROPOSAL: GROUND LEVEL FLOOR PLAN

PROPOSAL: LEVEL 4 FLOOR PLAN

PROPOSAL: SECTION B

Mt. Wilson Scientist’s Retreat

This cabin-inspired building is designed to have a clear separation in levels between public and private spaces. The scientists who will be residing on this retreat will have their private commons on the top floor, while the laboratory and offices, as well as a partially covered viewing platform, are all on the first level. In the spirit of preserving the landscape, the new retreat’s footprint on the site was minimized, which required the connection of program pieces with bridgelike structures and cantilevers. The public lookout platform is accessible from the public parking (ADA compliant). These ADA ramps also allow the creation of another clear separation of spaces that serve different purposes. The material used for the façade of the building is mainly black standing seam steel and the material for the structure is steel as well to maximize the protection of the building from possible fires on site.

FLOOR PLANS

GROUND FLOOR PLAN

SECOND FLOOR PLAN

04

School of Architecture

The New School of architecture is a representation of not only architecture students but the entire school as well. The concept of this design is the equal importance of interior and exterior space. This inspired both the plinth and the tower to have a clear path to the exterior.

The figure-ground created at the initial stages of the design created a form of barcode that was taken advantage of to create an interior-exterior experience. The design was also guided by the play of vertical lines contrasting with curves, which created waves going up and down, in elevation, or in and out on floor plan.

The facade material is window glazing allow a view of the exterior all around, but to protect from sun exposure on the southeast and southwest facades, there was a vertical frit pattern set on the window glazing.

PHYSICAL MODEL

05

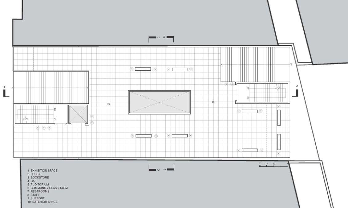
Museum of Japanese Contemporary Art

The design consists of a main shell volume that is held by two towers that act as pillars. Within those pillars there are egress stairs as well as an elevator that allow access to all floors of the museum. The ground floor has been designated as a courtyard that has been given back to the community, mainly used as an exterior gallery, While the open courtyard is being shaded, the shell is open to the sky to allow sunlight to pass through the intersecting volumes, creating different light pockets that reach the bottom floor.

This shell nests a variety of spaces, such as a series of exhibition spaces of different heights, a cafe and bookstore area, an auditorium, and a community classroom.

The main entrance to the museum is accessed from the ground floor through a set of stairs leading you down to the bottom level. The circulation of the museum is designed to lead you up along the volumes that are gradually stepping up towards the highest level, which is all exhibition space, mostly indoor but also partially open to the exterior. There is an additional stairway that follows the exterior facade, and it is a way of providing another connection from the third-level gallery to the fourth and last level.

PROGRAM AND CIRCULATION DIAGRAM

GROUND FLOOR PLAN

FIFTH FLOOR PLAN

ELEVATION AND SECTION

SECTION C NORTH ELEVATION

PHYSICAL MODEL

PHYSICAL MODEL

THANK YOU.

Turn static files into dynamic content formats.

Create a flipbook
Issuu converts static files into: digital portfolios, online yearbooks, online catalogs, digital photo albums and more. Sign up and create your flipbook.
PORTFOLIO by vick_1501 - Issuu