Self Healing Center-part one-BACKGROUND

Page 1

01

Position

Matter of care

Matter of Interior

Place

History of Champagne Court

02

Site & Surrounding

Site & Neighbourhoods

Site Analysis-Champagne Court

Purpose

Client & Target Group

03

Mission & Aims

Diagram

Case Study

CONTENT

Matter of care

Matter of Interior

01
POSITION

Matter of Care

Expressive Suppression

In Asian society, we are always taught to suppress our emotions in order to conform to the value of "peace is the most important". However, growing up in such an environment will cause people to have many physical and mental problems in adulthood, such as extreme low self-esteem, constant compromise, or being easily manipulated by others; what's more, it will lead to depression, anxiety and other symptoms. These diseases are very common in Hong Kong.

In such an environment, people need a therapeutic approach. Release your emotions and rebuild your physical and mental health.

Matter of Interior

Immersive Therapeutic Space

The environment affects people's feelings and emotions. In Hong Kong, due to the land issue, the design of the space is compact and always makes the best use of everything, lacking the aesthetics of blank space. Tight spaces make people feel breathless, and over time, it affects people's mental state.

People need a healing space to cut off the pressure and noise of the outside world, and reconnect with their inner emotions.In the busy city, a space for an immersive experience of nature can create strong and fast information; by stimulating the senses, people are completely immersed in the environment; calm down, relax, and feel own internal needs.

Figure 1: The collage of Expressive Suppression Figure 2:The collage of Immersive Therapeutic Atmosphere

History of Champagne Court

Site & Surrounding

Site & Neighbourhoods

Site Analysis-Champagne Court

02
PLACE

HISTORY OF

CHAMPAGNE COURT

The current Champagne Court is facing acquisition problems.

At the same time, the old shops in the Champagne Court have chosen to close or relocate, making this building sparsely populated and no one cares about it. However, Champagne Court, located in the center of Tsim Sha Tsui, has great potential for development and can serve as a center for more functions.

Champagne Court is an old-style commercial and residential building in Hong Kong. It is located at No. 16-20 Kimberley Road and No. 40-46 Carnarvon Road, Tsim Sha Tsui, Kowloon. The building was completed in 1957.

Since the 1960s, Champagne Court has become a sales center for cameras and photographic equipment. In the 1970s, there were many stars and doctors in and out of the building. However, since the 1980s, with more and newer buildings being completed in the area, the Champagne Court has gradually declined.

SITE& SURROUNDING

Tsim Sha Tsui has traditionally been an important commercial and tourist center for Kowloon. Most of the commercial buildings and hotels are built in the south and east of Tsim Sha Tsui. With the construction of the Hong Kong Cultural Center, the Hong Kong Science Museum, the Hong Kong Polytechnic University and the reconstruction of Kowloon Park, Tsim Sha Tsui has also become an important cultural, educational and recreational center in Hong Kong.

TSIM SHA TSUI

:Hotel in the building

TSIM SHA TSUI AUSTIN ROAD Firguer2 : Garden & Playgrounds Firguer3 : Shopping Mall Firguer5 : Old BuildingFirguer4 : Hotel Firguer6 : Vehicle RouteFirguer7 :Bus station Firguer1 :Tsim Sha Tsui's Site

New Territories

Kowloon

Hong Kong Island

Hong Kong Map

Champagne Court

Location Map

Firguer8 : Narrative Map

There are many Heritage in Tsim Sha Tsui, and many new landmark shopping malls have been added in recent years

MIRAPLACE1

Shopping Mall Hotel

Entertainment

THE ONE

Shopping Mall

Shopping Mall

Firguer9: Surrounding Building Type

Firguer9: Surrounding Building Type

The surrounding environment has areas for various uses, therefore, this place will gather many different groups of people.

Commercial/ Residential

Park
KOWLOON PARK MIRAPLACE2 THE MIRA NO.26 KIMBERLEY ROAD KNUTSFORD TERRACE CHAMPAGNE COURT
Shopping Mall Hotel Shopping Park Commercial/ Residential Entertainment Firguer10: Flow of People Firguer10: Flow of People Fast Medium Slow

Firguer12: population of Tsim Sha Tsui (2021 population census)

Gender Age

Firguer11: sunlight

In the Tsim Sha Tsui area, the population distribution is more even, and there are more young people aged 20-39. At the same time, Tsim Sha Tsui is a commercial area with a relatively high floating population, and people from all districts will gather here for recreational activities.

There is a high demand for spaces for entertainment and relaxation. People need a space to release stress.

Tsim Sha Tsui gathers people from various areas because of its commercial value and convenient transportation. In such a busy Create a relaxing space in a diverse and diverse place, allowing people to heal the wounded body and mind. The space design will be in contrast to the busy city, slow and comfortable. After confirming all the problems and opportunities in the project, we can Accurately determine and execute design direction.

female 55.3% male 44.7% 30-39 28.7% 20-29 21.4% 40-49 18.1% over50 16.3% 10-19 15.6%
SITE & NEIGHBOURHOODS
12:00 nn 12:00 nn 2:00 pm 4:00 pm 6:00 pm

Firguer12: Elevation of Champagne Court

SITE ANALYSIS

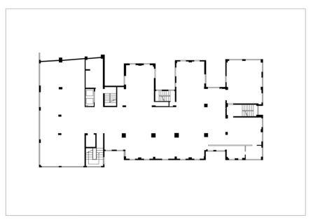
Selected Area Floor Plan (1/F,2F,3F)

Selected Area

Entrance

Carnarvon Road

Sunlight

Total Area: 1140 meter CarnarvonRoad

Ceiling height: 3000mm/floor

1/F GF LG 2/F 3/F 4/F 5/F 6/F 7/F 8/F Roof

PURPOSE

Client & Target Group

Mission & Aims

Diagram

Case Study

03

CLIENT

THE MENTAL HEALTH ASSOCIATION OF HONG KONG

Founded in 1954, the Mental Health Association of Hong Kong is a non-profit social service organization with the purpose of promoting mental health.

PURPOSE

Promote basic understanding of mental health and its application in Hong Kong.

Promote mental health services in the fields of medicine, education, social interaction, entertainment and recreation to meet the needs of the mentally ill and mentally handicapped.

Set up halfway houses, sheltered workshops, recreation clubs and other related services on a non-profit basis.

Strengthen promotion and establish better interpersonal relationship within the feasible scope.

VISION

Mental health shared to everyone

MISSION

Provide quality rehabilitation services to service users

Positive workplace with team building

Promote mental health to the public

INVESTOR

THE HONG KONG JOCKEY CLUB CHARITIES TRUST

Charities Trust is also one of the world’s top ten charitable donors.

Working with the Government, non-governmental organisations and community partners, the Club’s Charities Trust proactively seeks out the root causes of social issues, bringing multiple and cross-sectoral parties together to address them through innovative approaches. While continuing to fund a wide range of projects, the Trust is placing special emphasis on four areas of strategic focus:

Youth – Empowering youth for a hopeful future

Elderly – Building an age-friendly Hong Kong

Sports – Promoting active participation and sportsmanship, making sports

fun and accessible to all

Arts, Culture & Heritage – Building a culturally vibrant Hong Kong, enriching lives and promoting social inclusion

People who are traumatized in life and don't know how to deal with it. Trauma is not limited by age, occupation, or identity, everyone may have encountered this situation.

Persona

TARGET GROUP

June,20

June grew up in a family with many brothers and sisters. During the process of growing up, she always had to be well-behaved and humble. As a result, she always suppressed herself and didn't know how to express her emotions.

She feels that if she doesn't meet the needs of others, she doesn't deserve to be loved.

Jack,35

After Jack got married, because of the children and various life problems, he felt that the love with his wife was gradually obliterated. At the same time, he felt that he had sacrificed a lot for the family and was under great pressure.

He doesn't know how to let go of the pressure with his wife and feel the feeling of love again.

CONCEPT DIAGRAM

Emotional Healing Process

trapped, stressed struggle

admit own feeling relaxed

Feeling like everything is pressure, heavy, can't breathe, can't find a way out

Under the Under the ground ground

Looking for a way out under pressure, chaotic, with no direction

Growing Growing roots roots

SEED GROWTH

Accept help from others, won‘t blaming yourself for having negative emotions

Water, air, Water, air, breathing breathing space space

Understand own trauma and start healing

Break through Break through barriers barriers Be heal Be heal

CONCEPT

Seed Growth

The germination and growth of seeds need to go through many obstacles, and finally they can break through the soil and see a wider sky

The process of seed growth is used as a metaphor for participants to learn to love themselves, understand their own feelings, and break through the longtroubled emotional depression after participating in the experience center

AIM

Let people recognize their emotional problems and find ways to heal trauma.

Make people feel the flow of emotions (the experience of highs and lows)

Let people feel safe and face their emotions

Ease people's emotional problems and help people deal with trauma

OBJECT

TOTAL AREA: 650 square meter

3F
Entrance Reception Loungue Staff Room Struggle Room Clam down Tunnel Relax Space Common Area Library Reception Counselling Room Corridor Staff Room METIME Room
1F Under the Soil 2F Seed Growth
Healing
BLOCK DIAGRAM

CONTRASTING SPACES

A shift in the audience's emotions/thoughts ( trauma from not loving yourself ➝ feel safe after learning to love yourself)

Mood: Lonely and helpless ➝ safe and relaxed

Sensual expression:

temperature (cold ➝ warm)

Viewing Angle (Low ➝ High)

Tactile (hard ➝ soft) (material expression)

smell sound ⋯⋯

MINDMAP

1F:Under the Ground

Element: Cave-feeling,Stone

Mood: Depressed

2F

Element: Root Mood: Struggle

:Seed Growth

Element: Water & soil Mood: Calm down

Element: Grass, sky, flowers&leaves Mood: Relax

Element: sky, flowers Mood: Relax

Turn static files into dynamic content formats.

Create a flipbook
Issuu converts static files into: digital portfolios, online yearbooks, online catalogs, digital photo albums and more. Sign up and create your flipbook.