Architectural Portfolio

Page 1

selected works 2020-2023

portfolio

003 Erick Ventura

table of

IN THE TWIST 1

ARK OF CITY 3

RENDERS 5

2

INTERSECTION

BLACK ARTS & CULTURE MUSEUM

/
6
DRAWING SAMPLES
4 contents

IN THE TWIST

THIRD YEAR FINAL, WE WERE TASKED WITH DEVELOPING A 30 MICROUNIT HOUSING COMPLEX AND A RETAIL SPACE ON THE FIRST FLOOR. SITUATED IN NORTH PARK AT THE INTERSECTION OF EL CAJON AND TEXAS.

BY MAKING A TRANSFORMATION TO A WOOD BLOCK WHICH REPRESENT A UNIT WE CREATE THE FORM OF THE BUILDING.

THE SECOND MODEL WAS A STRUCTURAL STUDY MODEL. FINDING THE BEST STRUCTURAL SYSTEM TO FIT OUR BUILDING DESIGN WAS THE GOAL. WE THEN MODELED THE STRUCTURAL ELEMENTS.

THE LAST MODEL IS THE SECTIONAL MODEL AND IT THE FINAL STRUCTURAL ANALYSIS FINALIZED WITH INTERIOR PARTITIONS.

Twist
Columns 4 Rows 36 Micro Units Ceiling 2nd Floor 4th Floor 3rd Floor Ground Floor
9
        

INTERSECTION

AXONOMETRIC

WE ARE TASKED WITH MAKING THREE SINGLE FAMILY AFFORDABLE HOUSING UNITS. IN RESPONSE TO A PHENOMENON KNOW AS HIGH RISE ISOLATION, THIS PROJECT STRIVES TO MAKE TENANTS INTERACT AND CIRCULATE THROUGH THE HOUSING COMPLEX. USING FORM MANIPULATION, TWO UNITS ARE TO RUN PARALLEL TO EACH OTHER WITH A CORE WHICH ENCOURAGES INTERACTIONS. EACH UNIT HAS VERTICAL CIRCULATION WITH APERTURES TO THE CORE. EACH UNIT HAS ACCESS TO THE ROOFTOP, WHERE TENANTS CAN MAKE THEIR OWN BY IMPLEMENTING THEIR HOBBIES INTO THE FORM OF THE BUILDING. THE THREE UNITS ARE ARRANGED ALONG A TRANSVERSE AXIS WHICH FOLLOWS UNIT 2. THIS ALLOWS UNIT 1 & 3 TO MIRROR EACH OTHER. WITH ACCESS TO THE GREEN SPACE AT THE BASE OF THE CORE, CHANCE ENCOUNTERS ON THE SECOND FLOOR AND A OPEN ROOFTOP INTERACTIONS ARE ENCOURAGED ON ALL FLOORS.

A C D 2ND FLOOR
SITE PLAN
B

ARK OF CITY

IN THIS SECOND YEAR GROUP PROJECT THE GOAL WAS TO CREATE A SKYSCRAPER THAT RESPONDS TO THE SITED CULTURAL AND ENVIRONMENTAL NEEDS.

AT RANDOM TEAMS AND SITES WERE ASSIGNED. TOGETHER WE RESPONDED TO THE PROGRAM BY DEVELOPING A FORM FOR THE TOWER THAT RELATES TO THE JAPANESE PEOPLE AND THE CITY OF OSAKA.

BEING IN OSAKA, A MODERN CITY NEAR THE WATER, WE WANTED OUR BUILDING TO REFLECT THOSE QUALITIES AS WELL AS BECOMING A HAVEN FOR THE NEIGHBORING AREA.

THE TOWER CONSIST OF A MIX USE LAYOUT WITH RETAIL BEING AT THE BASE WITH COMMERCIAL DIRECTLY ABOVE IT. INTERMITTENTLY THERE WOULD BE FLOORS DEDICATED TO BE USED AS MULTIPURPOSE USE AND AT OTHER LEVELS LET AIR PASS THOROUGH WHERE INDOOR AND OUTDOOR GARDENS WOULD BE. RESTAURANTS AND RESIDENTIAL WOULD BE ON THE UPPER LEVELS TO MAXIMIZE THE VISTAS PROVIDED BY THE SITE.

BLACK ARTS & CULTURE MUSEUM

IN PROGRESS WORK*

REVITALIZING ENCANTO IS OUR YEAR LONG PROJECT FOR 4TH YEAR. IN A TEAM OF TWO WE ARE TASKED WITH ANALYZING, MASTER PLAN, MODEL MASS, AND PRESENT OUR FINDINGS TO THE COMMUNITY OF ENCANTO AND ITS LEADERS. AS WELL PRESENT OUR PROPOSED PROJECT TO REINVIGORATE THE “VILLAGE” FOR THE CITY OF SAN DIEGO.

THROUGH VARIOUS SITE VISITS WE DISCOVERED THE COMPLEXITY OF OUR SITE. BY MEETING WITH THE COMMUNITY LEADERS WE DEFINED WHAT THE COMMUNITY NEEDS. WE ARE DEVELOPING OUR SOLUTION TO BUILD THE ASSIGNED BLACK ARTS & CULTURE MUSEUM WITH THE NEEDS FOR THE COMMUNITY. WHILE CONSIDERING SOCIO ECONOMICAL FACTORS AND CULTURAL FACTORS WE BELIEVE THAT SITE INTEGRATION AND SITE ACCESSIBILITY IS VITAL FOR OUR PROJECT TO SUCCEED.

= 1’ - 0”
ANALYSIS
3/32”
SITE
MUSEUM
MASTER PLAN 1/32” = 1’ - 0” CIRCULATION
JENNIFER COLMERO MASSING PROGRAM AR401 FALL 23’ ERICK VENTURA
DIAGRAM
PROPOSED
MASTER PLAN BAC MUSEUM
SITE

KAIZEN COFFEE SHOP

COUNTER

EXTERIOR

INTERIOR

EXTERIOR

SEATING AREA

INTERIOR
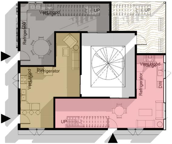
RESIDENTIAL REMODEL

REMODEL

PROFESSIONAL SUMMARY

Part time working at Starbucks I have developed strong team and communications skills. Multiple summers I spent as a labor working or my relative and have been on sit. I am currently studying while working and am able to balance a successful work/school/social life. Hobbies include photography and riding motorcycles. I am very dedicated to my academics having been the architecture club president at my junior college and even now learning various softwares to be ahead of the curve.

thank you.

Turn static files into dynamic content formats.

Create a flipbook
Issuu converts static files into: digital portfolios, online yearbooks, online catalogs, digital photo albums and more. Sign up and create your flipbook.