Skip to main content

Acker Brown - FF&A Package - 25.11.30

Page 1


ACKER BROWN RESIDENCE FF&A

FLOOR PLAN

CONCEPT ( PER SPACE )

FURNITURE LAYOUT

CONCEPT BOARD SELECTIONS

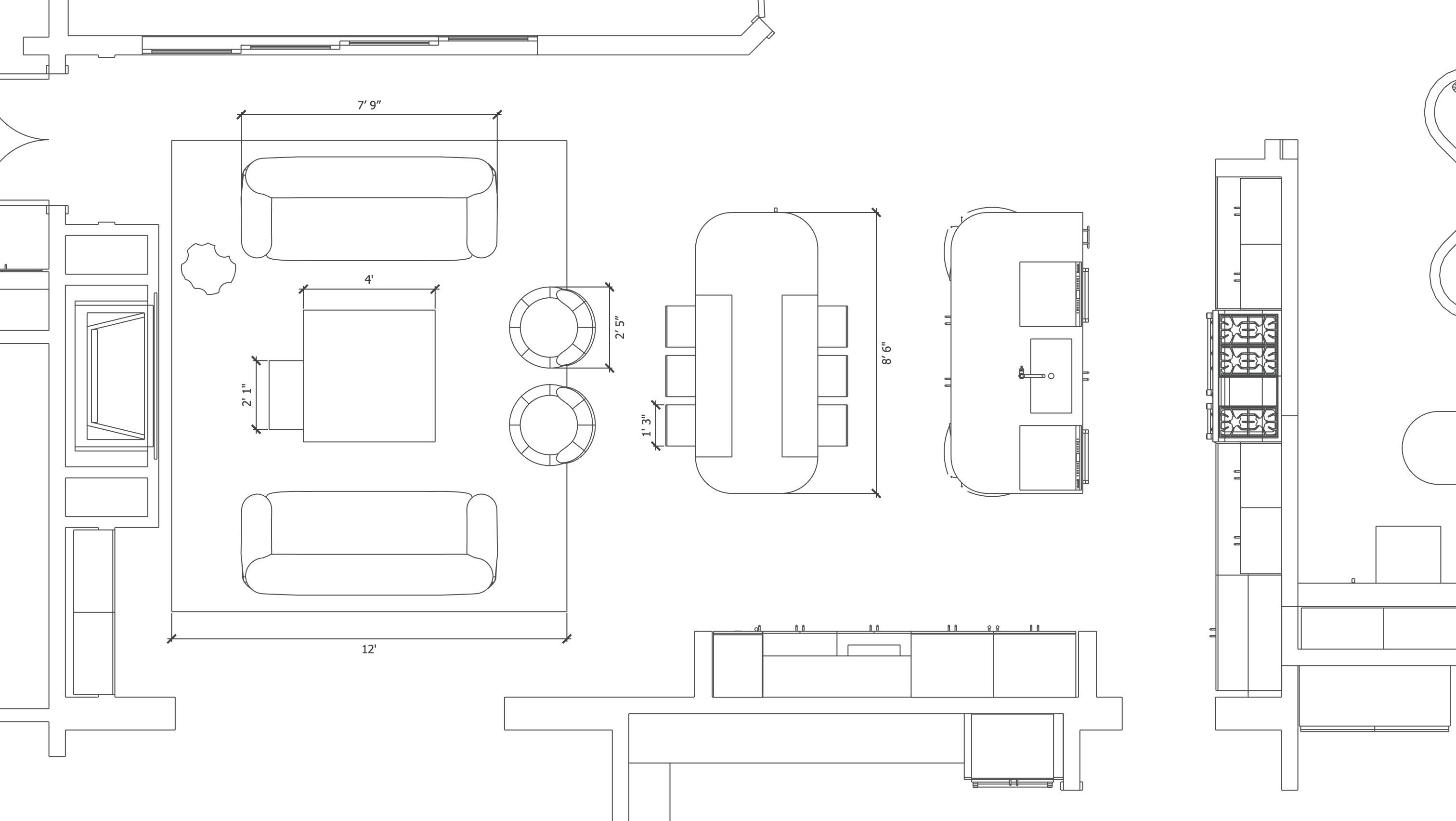
First Floor

CONCEPT

A Family-Driven Selection Built For Gatherings.

FURNITURE

INTERIOR INSPIRATION

AGAPE CASA – M1 ROUND TABLE
HESSENTIA – VOYAGE POUF

ACKER BROWN RESIDENCE

AGAPE CASA – M1

ROUND TABLE

– VOYAGE

HESSENTIA

Lounge

FLOORING INSPIRATION

DITRE – ST. GERMAIN 3-SEATER SOFA

DITRE – MARABU LOUNGE CHAIR ( QTY 2)
HESSENTIA – LAGUNA SIDE TABLE
AIRNOVA – LIBRO SIDE TABLE
DITRE – LOTO HIGH BACK CHAIR
RIMADESIO – RIALTO COFFEE TABLE

Lounge

DITRE – LOTO HIGH BACK CHAIR
AIRNOVA – LIBRO SIDE TABLE
DITRE – MARABU LOUNGE CHAIR (QTY 2)
HESSENTIA - LAGUNA SIDE TABLE

Study

BOOKCASE INSPIRATION

ACKER BROWN RESIDENCE

Study

TOULEMONDE – EDEN

BONALDO – NEWTON TASK CHAIR
BONALDO – BELT & CROSS POUF (QTY 2)
BONALDO – FLAT IRON WRITING DESK

– NEWTON

BONALDO – FLAT IRON WRITING DESK

– BELT & CROSS POUF (QTY 2)

ACKER BROWN RESIDENCE

TOULEMONDE – EDEN AREA RUG

BONALDO
BONALDO

Great

Great Room

KITCHEN INSPIRATION

TACCHINI – SESANN 3-SEATER SOFA (QTY 2)

DITRE – HERTZ CUSTOM SIZE AREA RUG

SABA – BABY GEO LOUNGE CHAIR (QTY 2)

Great Room SELECTIONS

TACCHINI – ALTAR SIDE TABLE

TACCHINI – SESANN 3-SEATER SOFA. (QTY 2)

– TRAY

ACKER BROWN RESIDENCE

TOULEMONDE – ELENA BLUE GREEN CUSTOM AREA RUG

– WIND COUNTER STOOL (QTY 6)

AIRNOVA
SABA – BABY GEO LOUNGE CHAIR (QTY 2)
RIMADESIO

Dining

Dining

SOVET – FLUTE

ROUND DINING TABLE

AIRNOVA – LUKAS DINING CHAIR (QTY 6)

Dining

SOVET – FLUTE ROUND DINING TABLE

AIRNOVA – LUKAS DINING CHAIR (QTY 6)

Bar & Media Room

RIMADESIO – SELF MEDIA UNIT
TACCHINI – AFRICA DINING CHAIR (QTY 4)
TACCHINI DINING TABLE
BONALDO LOUNGE CHAIR (QTY 4)
SOVET – TOTEM ROUND COFFEE TABLE
AIRNOVA – HANDY POUF (QTY 2)

Bar & Media Room SELECTIONS

TACCHINI – BUTTER SECTIONAL SOFA
AIRNOVA – HANDY POUF (QTY 2)
SOVET – TOTEM ROUND COFFEE TABLE
TACCHINI – AFRICA DINING CHAIR (QTY 4)
TACCHINI – TORII LOVE DINING TABLE
AIRNOVA – BELLA COUNTER STOOL (QTY 3)

Bar & Media Room

– SELF

RIMADESIO
LINIE DESIGN – NYOKO AREA RUG

Primary Bedroom

TOULEMONDE – MISTRAL CUSTOM SIZE AREA RUG

ACKER BROWN RESIDENCE

Primary Bedroom

BONALDO – YOUNIVERSE KING SIZE BED
TURRI – ZERO NIGHTSTAND (QTY 2)
JAMIE YOUNG – NAPA LAMP CLEAR TABLE LAMP (QTY 2)
DITRE – NELL SIDE TABLE
BONALDO – KITAI LOUNGE CHAIR (QTY 2)
TURRI – BLUES CHEST OF DRAWERS

JAMIE YOUNG – NAPA LAMP CLEAR TABLE LAMP (QTY 2)

Primary Bedroom SELECTIONS

TOULEMONDE – MISTRAL CUSTOM SIZE AREA RUG

ACKER BROWN RESIDENCE

BONALDO – YOUNIVERSE KING SIZE BED

TURRI – BLUES CHEST OF DRAWERS

Turn static files into dynamic content formats.

CreateΒ aΒ flipbook