Ar. Vasundara Graduate Portfolio

Page 1

AR. VASUNDARA AALMELKAR

GRADUATE PORTFOLIO

In this portfolio i have chosen work from academic, internship , competition, workshops and others.

INDEX

MVG BAKERY DESIGN

PLANNING, DESIGNING, MODEL MAKING, RENDERING

A commercial project worked on its interior and exterior design in classical style.

SKYLIGHT VISTA VILLA

MODEL MAKING, AXOMETRIC VIEW, WORKING DRAWING & SITE VISIT

A residential project skylight vesta villa in sarjapur, an authentic American villa township in sarjapur road, Bengaluru.

BAGMANE COSMOS TECH PARK

PHOTOSHOP

Urban level photoshop by recognising the landmark and accessibility in macro and micro level, placement of individual trees and pathway according to new updates of planning.

URBAN DESIGN

ANALYSING, PLANNING & MODEL MAKING

An academic work live project in Vijayapura, planned for different sizes of plots, commercial and public zone for a colony.

VOLUME ZERO WOMEN’S PAVILLION 2021 COMPETITION, DESIGNING & CONCEPT

A women's pavilion in the name of 'hope & strength‘.

CULTURAL CENTER

ANALYSING, PLANNING & CONCEPT

a hypothetical project cultural center at Vijayapura , a museum with the concept of living buliding with the insipiration of historical monument Golgumbaz

ORGANIC AND PARAMETRIC ARCHITECTURE

RHINO AND GRASSHOPPERS CODING , WORKSHOP Form exploration, product & furniture design.

LOGO DESIGN

LOGO, MOCKUPS & SOCIAL MEDIA POST. A coustomized logo design for dietitian ‘nutrition therapy’.

OTHERS

SKETCHING, PAINTING, MANUAL MODEL MAKING & PHOTOGRAPH.

MVG BAKERY DESIGN

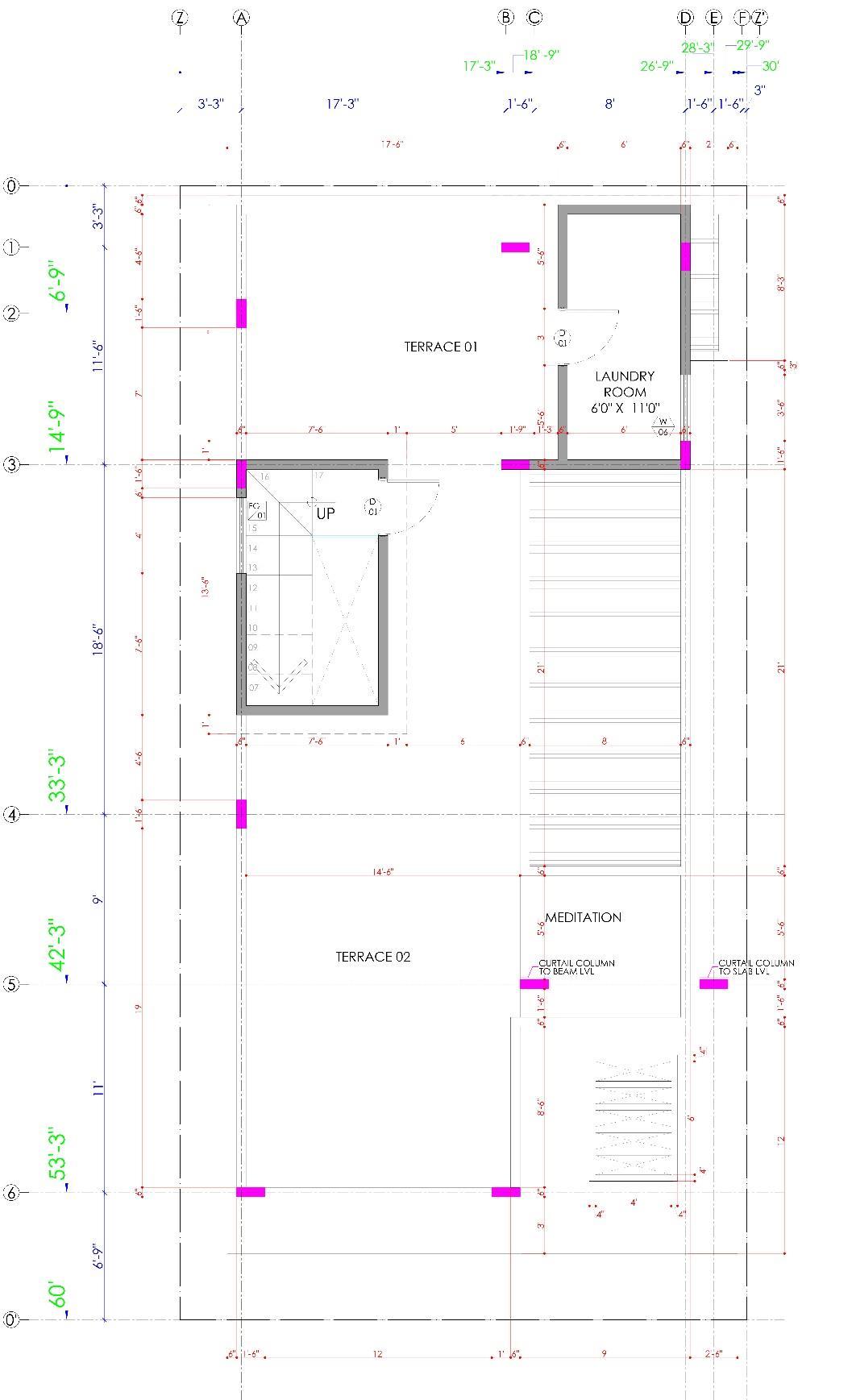
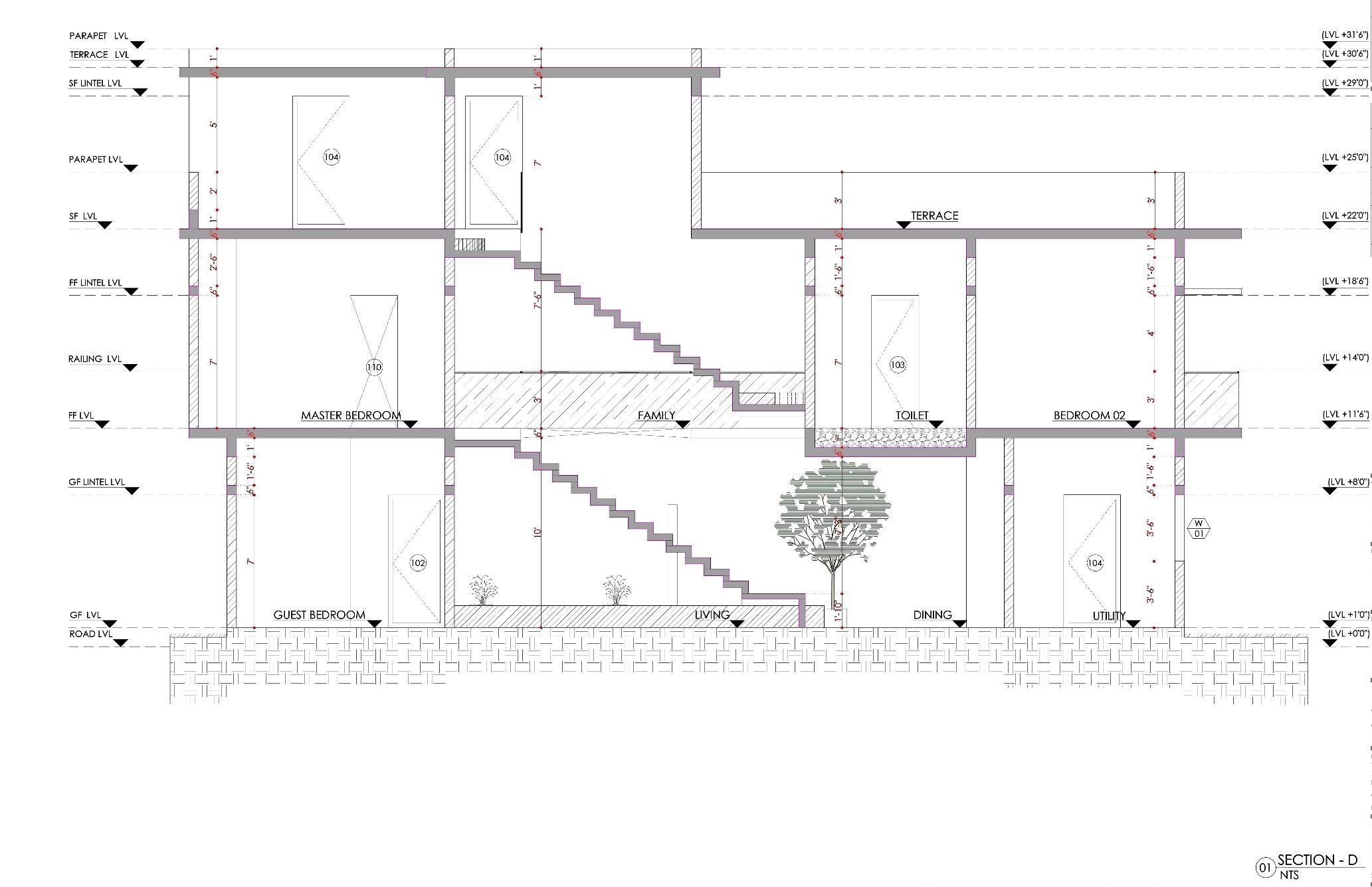
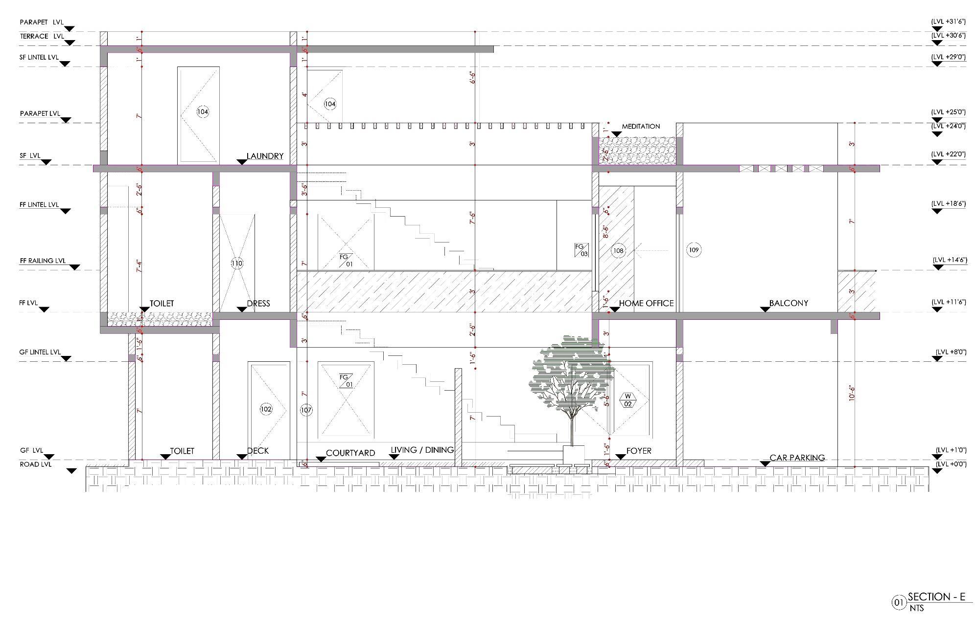
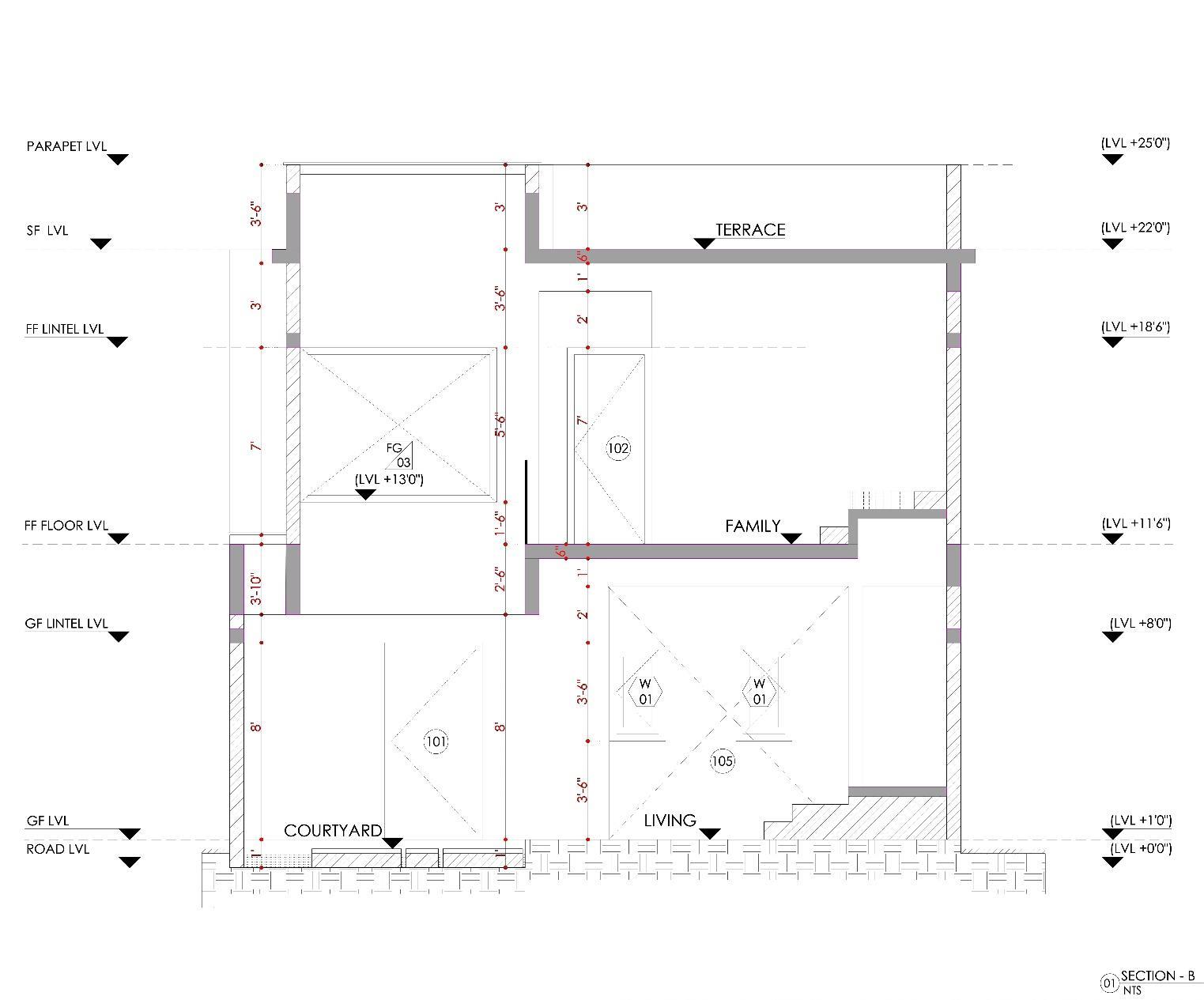
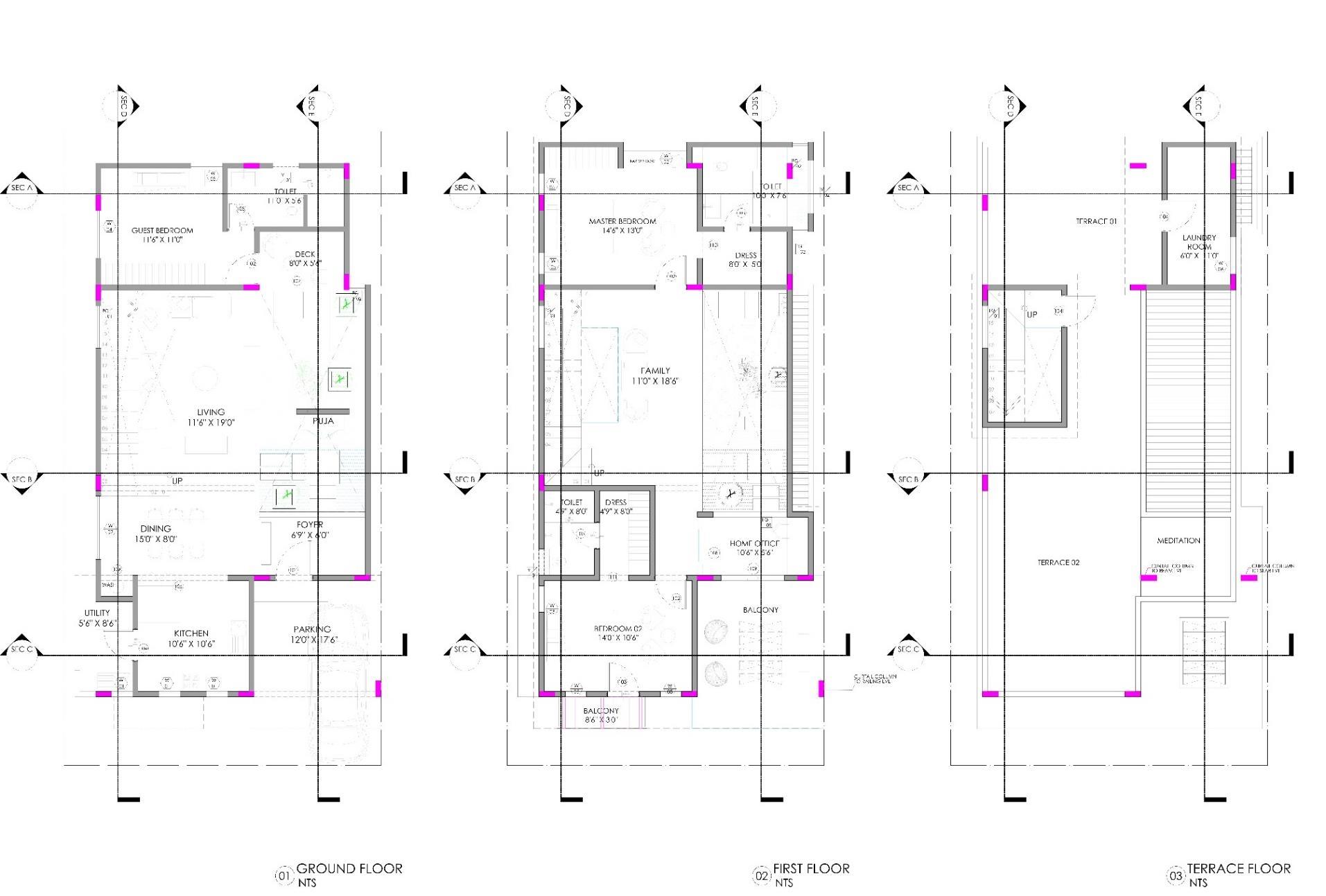
SKYLIGHT VESTA VILLA

SKYLIGHT VESTA VILLA IN SARJAPUR, AN AUTHENTIC AMERICAN VILLA TOWNSHIP IN SARJAPUR ROAD, BENGALURU

AXO - VIEW PLAN
ELECTRICAL LAYOUT
ELECTRICAL LAYOUT
WORKING DRAWING

URBAN DESIGN

THE URBAN HOUSING PROJECT OF SITE MEASURING 15 ACRE, THE OBJECTIVE WAS TO STUDY OF URBAN CONTEXT AND TO EXPLORE VARIOUS ASPECTS/ ISSUES OF THE URBAN ENVIRONMENT AND UNDERSTAND THE ROLE OF ARCHITECTURE IN SHAPING THE URBAN FABRIC.

VIJAYAPURA

A LUXURY SPACE FOR COLNY WITH CENTRAL SHOPPING COMPLEX WITH KIDS PLAY AREA (WHICH CREATES DEMAND FOR ECONOMY) , WITH ACTIVE FRONTAGES WHICH MAKES THE SOCIETY FEEL SAFE ,THE SCHOOL AND THE SHOPPING COMPLEX PLACED OPPOSITE TO EACH OTHER SHARING SAME ROAD HELPS FOR EASY TRANSPORTATION MAIN MOTTO OF DESIGN IS TO MAKE ALL KIND OF PEOPLE TO FEEL SAFE AND CONNECTED BY PROVIDING DIFFERENT SIZES OF PLOTS IN ONE PARAMETRIC BLOCK AND PROVIDING COMMON PUBLIC TRANSPORTATION , AND EXCITING GREEN LANDSPACE DESIGNED FOR THE SOCIETY WITH LESS ENERGY CONSUMING BUILDING BLOCKS CONSIDERING PASSIVE DESIGN TECHNIQUE WHICH SAVES THEIR ANNUAL EXPENSES AND PROMOTES PASSIVE ENERGY.

VOLUME ZERO – WOMEN’S PAVILION 2021
ARCHITECTURE COMPETITION

Architecture Competition

THE CALL OF UNIVERSE

HOPE AND STRENGTH IS CREATED BY ‘SUN’ BECAUSE WHOLE UNIVERSE IS CREATED BY SUN AND EACH CREATURE IS CREATED IN ITS UNIQUE WAY AND GIVEN IMPORTANCE EQUALLY ,SO NO ONE HAS THE RIGHT TO DISCRIMINATE OR HARM, HENCE NO ONE HAS THE RIGHT TO RAISE VOILENCE AGAINST WOMEN ,THIS STRUCTURE WILL INSPIRE WOMEN OF THE WHOLE WORLD.

THE SUN AS AN SYMBOL OF HOPE AND RAYS AS STRENGTH

ARTIFICIAL LIGHT FOR SUN

SITE

THE SITE IS IN INDIA, KARNATAKA STATE , BIJAPUR DISTRICT NAVARASPUR VILLAGE , THE SITE IS CHOOSE IN NAVARASPUR VILLAGE RURAL AREA WHICH LIES BETWEEN TWO CITIES , BIJAPUR AT EAST AND ATHANI AT WEST, CONNECTING TO NATIONAL HIGHWAY , SITE IS EXACTLY FRONT OF WOMEN’S UNIVERSITY.

MAGNET ELEMENT IS CENTER OF THE SUN STRUCTURE SO THAT OUR STRUCTURE WILL NOT TOUNF THE GROUND AND FLOAT IN THE AIR AND THIS IS POSSIBLE BY LEVITATING TECHONOLOGY

THE AMPHITHEATER STRUCTURE IS CONSTUCTED WITH CONCRETE WITH WHITE FINISHING AND SITING OF AMPHITHEATER IS OF WHITE MARBLE BECAUSE WHITE IS PEACEFUL, THE AMPHITHEATER LEVELS ARE DOWNWARD TILL WATER END AND 5 METERS HEIGHT CORRIDORE BY SURROUNDING WHICH HELPS TO COOL THE STRUCTURE BY THE SHADE OF WALLS FALLING ON AMPHITHEATER AND WATER, WHERE WATER PRESERVE COOLNESS FROM SHADE OF WALLS WHICH HELPS TO COOL THE STRUCTURE , HENCE THE STRUCTURE IS COOL BY PASSIVE TECHNIQUE

THE SRUCTURE IS CONSTRUCTED MAINLY FOCUSING ON DARK ZONE AND LIGHT ZONE , THE DARK ZONE IS CREATED IN TERMS OF CORRIDORE THAT DEPICTS THE LIFE OF WOMEN WHICH HELPS TO FEEL CONNECTIVITY FROM HER CHILDHOOD TO ELDERWOMEN BECAUSE EVERY WOMEN IS DIFFERENT AND UNIQUE AND HAS DIFFERENT LIFE STAGES , WHERE SHE ALSO FEELS THE RAY OF LIGHT WHILE PASSING THROUGH CORRIDORE FROM UP SHE CAN FEEL THE LIGHT OF HOPE DESIGNED FOR HER. FACING ISSUES OF WOMEN IN TODAY’S SOCIETY HAS NO AGE , SHE CAN FEEL THE RAYS OF HOPE FOR THE ISSUES SHE FACED AT ANY AGE , THOSE ARE THE RAY OF HOPE WHICH IS GIVEN BY THE SUN AND THE WHOLE UNIVERSE IS CREATED BY SUN AND EACH AND EVERY CREATURE IS CREATED IN ITS UNIQUE WAY AND GIVEN IMPORTNACE EQUALLY, SO ONE HAS THE RIGHT TO DISCRIMINATE OR HARM, EVERY WOMEN SHOULD REMEMBER THIS AND SHOULD FEEL HER RAY TO HOPE AT ANY CORNER OF THE WORLD AND STRENGHTNED HERSELF AND LEAD THE LIFE THE WAY SHE WANTS SUCCESSFULLY.

THE SITE IS CHOOSE INFRONT OF WOMEN’S UNIVERSITY IN RURAL PLACE BECAUSE MORE NUMBER OF WOMEN WHO ARE EDUCATED AS WELL AS UNEDUCATED ARE IN NEED OF SUCH INSPIRATION, AND THIS PAVILLION NOT ONLY INSPIRE WOMEN’S OF LOCALS BUT HOLDS STRONG POSITION TO MOTIVATE WOMEN’S OF WHOLE WORLD.

THE MIRROR OF CONNECTIVITY , WHERE WE SEE OURSELF AND MAKE DECISIONS THAT MAKE US TO CONNECT AND RECONNECT WITH OURSELF

THE RAY OF HOPE HELPS IN MAKING DECISION IN TOUGH TIME WHICH STRENGTHNED OURSELF AND SUCESSFULLY CHOOSE WHAT WE WANT IN LIFE

VOLUME ZERO – WOMEN’S PAVILION 2021
MAGNET THE RAY OF HOPE BEGINS WITH THE START OF THE LIFE AND CHILDHOOD THE SUN WHICH GIVES STRENGTH FOR LIFE

CULTURAL CENTER

CULTURE AND LEISURE CENTER AT VIJAYAPURA, A 7TH SEM DESIGN.

VISION : HIGH QUALITY AND AFFORDABLE WHICH PROMOTES HEALTHY LIFE STYLE WHERE PEOPLE ENJOY, WORK AND ALSO GROW ECONOMICALLY.

WHERE THE STRUCTURE INCLUDES MOTION ( LIVING BUILDING) , THE STRUCTURE SHOULD BE ENERGY EFFICIENT, WHICH INCLUDES RENEWABLES RESOURCES.

GIVEN SITE IS EXACTLY FRONT OF FAMOUS HISTORICAL MONUEMENT ‘SANGEETH MAHAL, BY THIS PEOPLES TO VISIT SANGEETH MAHAL MAY TAKE INTREST TO VISIT OUR CULTURAL CENTER TOO OR VICE VERSA.

I GOT A OPPORTUNITY TO DESIGN SYSTEMATIC PLANNING FOR GREEN AND BLUE CORRIDORE , BY CONSIDERING HOT & DRY CLIMATE INTODUCED RENEWABLE ENERGY INTO DESIGN BY CREATING KINETIC STRUCTURE.

ECONOMIC GROWTH AND NEW BUSINESS FOR STREET VENDORES, LOCAL CRAFTS MAN, ART, FOOD ETC BY PLANNING SYSTEMATIC MARKETING ZONES AND RESTAURANT WAS DONE.

THE MUSEUM PLACED LINER TO MAIN ENTRANCE AT EAST AS WIND DIRECTION IS TOWARDS SOUTH-WEST TO NORTH-EAST IT PASSES THOUGH ENTRANCE WHERE THE LINERITY ZONING BOOTS AIR TO FLOW SPEEDER WHICH IS PLUS POINT IN HOT AND SRY CLIMATE, HUGE WATER BODY FRONT OF MEASUM WHICH GIVES AESTHETIC BY REFLECTION WHOLE MUSEUM STRUCTURE ALSO HELPS TO KEEP THE SRUCTURE COOL WHERE THE SHADOW OF MEASUM FALLS ON WATER BODY SO IT LEADS TO STORE COOL WATER WHERE THE WIND BLOWS FROM WEST TO EAST DUE TO TUNNEL EFFECT WHICH IS CREATED BY ZONING PLACEMENTS OF BUILDING WHICH LEADS TO FLOW ONLY COOL AIR INSIDE THE WHOLE CULTURAL CENTER, HENCE IMPROVED MICRO CLIMATE BY REDUCING TEMPERATURE.

LEGENDS

1) BUS PARKING 2) BUS STOP 3) PARKING 4) TEMPRORY TENSILE SHOP 5) ROAD CROSSING 6 )FOOD COURT 7) OPEN AIR THEATRE 8) ADMIN 9) AUDITORIUM FOR DRAMA 10) TRAINING CENTER 11) CHILDREN’S PLAY AREA 12) RESTAURANT 13) LODGED 14) LAUNDRY 15) EXHIBITION

1 2 4 5 11 3 7 14 6 8 12 9 10 13 15
R

MUSEUM DESIGN AT CULTURAL CENTER : THE TASK WAS TO DESIGN MUSEUM BY CONSIDERING META ARCHITECTURE , THE ARCHITECTURAL STYLE IN VIJAYAPURA IS INDO ISLAMIC ARCHITECTURE WHERE DOME IS A PART OF ISLAMIC ARCHITECTURE AND LOTOUS IS BELIEVED SCARED IN THE HINDU ARCHITECTURE, TOGETHER IT BECOMES INDO-ISLAMIC ARCHITECTURE, WHERE MY AIM WAS “MOTION” SO I THOUGHT TO DESIGN A DOME WHICH BLOOMS LIKE A LOTUS “ A BLOOMIMG DOME” WHICH IS SUPPORTED BY CASE STUDY OF MILWAUKEE MUSEUM BY SANTIAGO CALATRAVA, WITH THE MECHANISM OF BRISE SOLEIL.

ORGANIC & PARAMETRIC ARCHITECTURE

PARAMETRIC ARCHITECTURE

LOGO DESIGN FOR DIETITIAN

‘N’ STANDS FOR “NUTRITION” AS A WHOLE, THE DESIGN IS MORE MINIMAL LOOK. THE USE OF LEAF AT THE TOP INDICATES THE TRANSFORMATION OF THE HEALTH – LIFE. TAKING THIS APPROACHOF REBRANDING TO BRING MORE IN LINE WITH THE AESTHETIC AND PORTRAY FLEXIBILITY. THE USE OF THERAPY INDICATES THE CURE, THE FONT STYLE USED IS ANCIENT INDIAN FONT WHICH INDICATES THE FOOD CULTURE AND HERITAGE OF THE FOODS AND INDIAN MEDICINES.

GRAPHIC DESIGN

MOCKUP

I
I MODELMAKING
SKETCHING
PAINTING

IN THIS PORTFOLIO I HAVE CHOSEN WORK FROM ACADEMIC, INTERNSHIP , COMPETETION, WORKSHOPS AND OTHERS.

I AM A HARD WORKING PERSON WITH A GREAT PASSION FOR ARCHITECTURE, PROBLEM SOLVING AND SOFTWARE SKILLS. BECAUSE I AM CONCEREND ABOUT BUILDING A CAREER FOR ME.

I AM HOPING THAT THIS PORTFOLIO REFLECTS MY CAPABILITY AND ATTITUDE TOWARDS ARCHITECTURE AND MY WORK ETHIC.

THANK YOU

Turn static files into dynamic content formats.

Create a flipbook
Issuu converts static files into: digital portfolios, online yearbooks, online catalogs, digital photo albums and more. Sign up and create your flipbook.
Ar. Vasundara Graduate Portfolio by Vasundara Aalmelkar - Issuu