vasavi alla architecture portfolio

Page 1

01 02 03 URBAN ART CENTER AUDITORIUM APARTMENT COMPLEX
CONTENTS
04 05
WORKING DRAWINGS MISCELLANEOUS
01
02
0.8 0.4 03
4.0 3.6 3.2 2.8 2.4 2.0 1.6 1.2 0.8 0.4 0.0 0.0 0.4 0.8 1.2 1.6 2.0 2.8 2.4 3.2 3.6 04
06
07
09
12
17
18
19
21
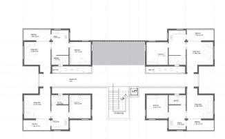
0 LEVEL-GROUND +.90m LEVEL-PLINTH +3.65m LEVEL- STILT +6.75m LEVEL-FIRST +9.85m LEVEL-SECOND +12.95m LEVEL-THIRD +16.05m LEVEL-FOURTH +19.15m LEVEL-FIFTH LIFT PIT 1.60 LIFT CAR MACHINE ROOM 2.60 STAIRS HEAD ROOM STAIRCASE 25

Don't scale drawings written dimensions and otherwise 2. Each drawing conjunction with drawings and details in case discrepancies knowledge of Engineer to be resolved of work. 3. Dimensions shown drawings are structural dimensions

1. Don't scale drawings written dimensions (mm) and otherwise mentioned. 2. Each drawing shall be conjunction with all other drawings and general details in case of any discrepancies bring to knowledge of Engineer to be resolved prior to of work.

3. Dimensions shown on drawings are structural dimensions U.N.O. all indicated on these drawings levels as per Dubai Datum, should be verified at execution of work.

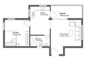
SUZUKI GSX750F SUZUKI GSX750F 0 LEVEL-GROUND +.90m LEVEL-PLINTH +3.65m LEVEL- STILT +6.75m LEVEL-FIRST +9.85m LEVEL-SECOND +12.95m LEVEL-THIRD +16.05m LEVEL-FOURTH +19.15m LEVEL-FIFTH 0.90 2.75 3.10 3.10 3.10 3.10 3.10 1.05 LIVING ROOM BALCONY CORRIDOR
KEY PLAN GENERAL
SECTION AA
NOTES:
PROJECT TITLE: CLIENT: LEAD CONSULTANT
ARCHITECT: DISCIPLINE: DRAWING TITLE: SCALE: PROJECT DATE: DRAWING 06-03-2022 GH AR 110 ELEVATIONS ARCHITECTURAL NAME: VASAVI GITAM UNIVERSITY, APARTMENT DESIGN KEY PLAN GENERAL NOTES:
U.N.O.
PROJECT TITLE: CLIENT: LEAD CONSULTANT DISCIPLINE: DRAWING TITLE: SCALE: PROJECT DATE: DRAWING 06-03-2022 GH ELEVATIONS ARCHITECTURAL NAME: VASAVI GITAM UNIVERSITY, APARTMENT 26
&
1.
indicated on these levels as per Dubai should be verified execution of work.
27
30
SHEET NO 07 GITAM SCHOOL OF ARCHITECTURE,HYDERABAD SUBJECT: ARCHITECTURAL DESIGN DATE: 04.05.2022 NAME: VASAVI ALLA 221915501002 SEM 6 SHEET CONTENT: GROUND FLOOR PLAN AUDITORIUM DESIGN SIGN: AREA STATEMENTS: SCALE 1:125 NO.OF SEATS: 716 SEATS 716 60sqm.STORAGEEQUIPMENTROOM 100sqm.WORKSHOPSPACE VIP 36sqm.LOBBY VIP 36sqm.ROOM STAIRCASE LIFT ROOM MALE WASHROOMS 26sqm. FEMALE WASHROOMS 26sqm. TICKET COUNTER 15sqm. 13sqm.PANTRY 25sqm. CONTROL ROOM- 10sqm STAGE 16M CROSSOVER2M WIDE ENTRY ENTRYSERVICE VIP ENTRY LIGHT CONTROL 0sqm CORRIDOR- 3.5M CORRIDOR- 3M WIDE DESK JANITOR CLOSET- 17sqm REHARSALROOM 60sqm. REHARSALROOM 60sqm. STAIRCASE LIFT MALE WASHROOMS 26sqm. FEMALE WASHROOMS 26sqm. WASHROOM CHANGING ROOM(F) 21sqm. CHANGINGROOM(M) 21sqm. MAKEUPROOM(M) 21sqm. MAKEUPROOM(F) 21sqm. ROLLING SHUTTER CURT WITH CRAV CORINTH COLUMNS TAINWALLAVINGS 3.7MCORRIDOR WIDE CORRIDOR 3.7MWIDE CENTRAL AISLE 2M WIDE AISLE 1.5M WIDE AISLE 1.5M WIDE AISLE 1.5M WIDE AISLE 1.5M WIDE 1.5MGANGWAY WIDE GANGWAY 1.5MWIDE RAMP SLOPE 1:10 RATIO UP UP RAMP SLOPE 1:8 RATIO PROMOTIONAL/DISPLAY DOUBLE STAIRCASE +0.9Mlevel +0.9Mlevel +0.9Mlevel SHEET NO 08 GITAM SCHOOL OF ARCHITECTURE,HYDERABAD SUBJECT ARCHITECTURAL DESIGN DATE: 04.05.2022 NAME: VASAVI ALLA 221915501002 SEM 6 SHEET CONTENT: FIRST FLOOR PLAN AUDITORIUM DESIGN SIGN: 716 STAIRCASE LIFT MALE WASHROOM 26sqm. FEMALE WASHROOM 26sqm. (F) TICKET 15sqm. 13sqm.PANTRY SEATING SOUND CONTROL ROOM- 10sqm STAGE 16M X13.6M ORCHESTRA LIGHT CONTROL ROOM- 10sqm CORRIDORWIDE SEATING REHARSALROOM 60sqm. REHARSALROOM 60sqm. STAIRCASE LIFT ENTRY MALE WASHROOM FEMALE WASHROOM CENTRAL AISLE 2M WIDE AISLE 1.5M WIDE AISLE 1.5M WIDE AISLE 1.5M WIDE AISLE 1.5M WIDE 1.5MGANGWAY WIDE GANGWAY 1.5MWIDE DOUBLE KIDS WASHROOM DOUBLEHEIGHT CONFERENCE 258 sqm. PREVIEW THEATRE 109sqm. DIGITAL ART 205 sqm. 13sqm. CORRIDOR2.6M WIDE AREA STATEMENTS: SCALE 1:125 SHEET NO 09 GITAM SCHOOL OF ARCHITECTURE,HYDERABAD SUBJECT: ARCHITECTURAL DESIGN DATE 04.05.2022 NAME: VASAVI ALLA 221915501002 SEM 6 AUDITORIUM DESIGN SIGN: ROOMSTAGE PIT SHEET CONTENT: SECOND FLOOR PLAN AREA STATEMENTS SCALE 1:125 NO.OF SEATS (BALCONY) : 284 SEATS 31
32
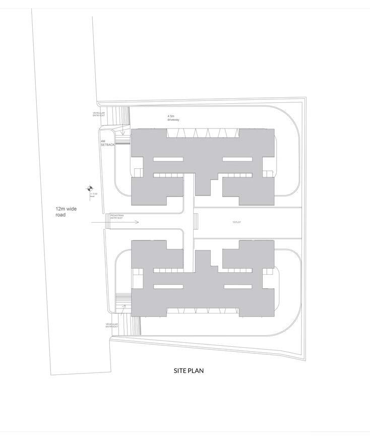
35 12m wide road +/- 0.00 level ENTRY/EXIT 3m driveway 3m driveway 3m driveway 4M SETBACK 3m pathway curb0.17m SECURITY CABIN 2.5 X 2.5 M TRANSFORMER 3 X 3M 1 2 3 11 12 13 10 28 29 30 31 41 40 39 38 +/- 0.00 level A B VEHICULAR GATE- 4.5 M WIDE VEHICULAR GATE- 4.5 M WIDE PEDESTRIAN ENTRY GATE - 3M WIDE B C
36 1 mt dia. rain water harvesting pit 4.5m driveway +0.45 level +0.45 level +0.45 level +0.45 level +0.45 level TOTLOT 3m driveway 4.5m driveway 2 3 4 5 6 7 8 9 11 12 15 13 14 16 5M SETBACK 5M SETBACK +0.6 level STAIRCASE 2m pathway UP STAIRCASE LIFT LIFT MANHOLE 0.6 X 0.6 M SUMP 4 × 3 × 2.5 SEPTIC TANK 10 X 3.3 M 1 10 3m driveway 4 5 6 7 8 9 15 14 16 17 18 19 20 21 22 23 24 25 26 27 32 33 34 37 36 35 42 43 44 45 46 47 48 55 54 53 52 51 50 49 5M SETBACK COMPOUND WALL TOW: 2.1M KERB TOW: 0.6 M SEATING +0.6 M LVL +/- 0.00 level +/- 0.00 level C D E F G H I 1 2 3 4 5 7 8 9 10 11 12 6 13 14 UP B C GENERAL 1. Don't 2.Each 3.Dimensions LEGEND CLIENT CONSULTANT DRAWING DRAWING ARCHITECT SCALE DATE APPROVED DRAWN CHECKED PROJECT
PORCELAIN TILES 450mm X 300mm TOWEL HOLDER GEYSER SHOWER TAP TOP HUNG VENTILATOR WC SECTION AA SCALE 1:20 800 2100 900 3000 2200 800 2100 900 150 3000 2200 SECTION BB SCALE 1:20 WASH BASIN DOOR 2100 900 150 1870 320 150 910 SECTION CC SCALE 1:20 PORCELAIN TILES 450mm X 300mm TOWEL HOLDER GEYSER TILE DROP 2100 900 150 910 1090 600 400 150 SECTION DD SCALE 1:20 SHOWER SOAP NICHE TAP HEALTH FAUCET WASH BASIN MIRROR WATER CLOSET PLAN GENERAL NOTES: PROJECT TITLE: DRAWING TITLE: SCALE: DATE: 06-11-2022 WASHROOM VASAVI 221915501002 WASHROOM LEGEND: N CLIENT: GITAM UNIVERSITY, 1:20 1. Don't scale written dimensions and otherwise 2. Each drawing conjunction drawings details in discrepancies knowledge to be resolved of work. D1 DOORCOLD HOT HEALTH HF SOIL WASTE EXHAUST ceiling 16A 1 way 6A 840 790 505 335 750 2060 2850 670 100 1520 2010 610 1450 300 300 300 300 300 300 ELECTRICAL LAYOUT SCALE 1:20 300 840 790 505 335 750 2060 2850 670 100 1520 2010 610 1450 300 300 300 300 600 300 CEILING LAYOUT SCALE 1:20 +340mm 840 790 505 335 750 2060 2850 670 100 1520 2010 610 1450 300 300 300 300 600 300 PLUMBING LAYOUT SCALE 1:20 840 790 505 335 750 2060 2850 670 100 1520 2010 610 1450 300 300 300 300 300 300 300 TILE LAYOUT SCALE 1:20 300MM X300MM PORCELAIN TILES START TILE START TILE PLAN GENERAL NOTES: PROJECT TITLE: DRAWING TITLE: SCALE: DATE: 06-11-2022 WASHROOM VASAVI 221915501002 WASHROOM LEGEND: N CLIENT: GITAM UNIVERSITY, WASHROOM WASHROOM WASHROOM 1:20 1. Don't scale written dimensions and otherwise 2. Each drawing conjunction drawings details in discrepancies knowledge to be resolved of work. D1 DOORCOLD HOT HEALTH HF SOIL WASTE EXHAUST ceiling 16A 1 way 6A

1. Don't scale drawings follow written dimensions (mm) unless and otherwise mentioned.

2. Each drawing shall be read in conjunction with all other drawings and general standard details in case of any discrepancies bring to the knowledge of Engineer and same to be resolved prior to execution of work.

PLUMBING(WATER SUPPLY) SCALE 1:20 PLUMBING DETAIL (WASH BASIN) PLAN GENERAL NOTES: PROJECT TITLE: DRAWING TITLE: SCALE: PROJECT NO.: DATE: DRAWING NO.: 06-11-2022 PLUMBING DRAWINGS WATER SUPPLY FOR TYPICAL TOILET AND KITCHEN VASAVI ALLA 221915501002 APARTMENT DESIGN LEGEND: N AR- 07 CLIENT: GITAM UNIVERSITY, HYD. 1. Don't
2.
discrepancies
the knowledge of Engineer and same to be resolved prior to execution of work. RWP Ø160 MM RAIN WATER PIPE -VERTICAL RISER Ø75 MM WASTE PIPE -VERTICAL RISER S P Ø110 MM SOIL PIPE -VERTICAL RISER VP Ø75 MM VENT PIPE -VERTICAL RISER GEYSER HWS DWS DOMESTIC WATER SUPPLY HOT WATER SUPPLY LVL. +/- 0 LVL. +/- 0 PROVISION FOR FAN CIRCULAR PANEL LIGHT STRIP LIGHT AS COVE LIGHT LVL. +/- 0 LVL. +/- 0 LVL. +/- 0 LVL. +4 LVL. +4 LVL. +4 STRIP LIGHT AS COVE LIGHT WARM WHITE LED STRIP LIGHT AS COVE LIGHT A' LVL. +/- 0 LVL. +4 LVL. +4 LVL. +/- 0 PROVISION FOR FAN WARM WHITE LED STRIP LIGHT AS GYPSUM LEVEL 4" DOWN FROM BEAM BOTTOM LEVEL LVL. +/- 0 LVL. +/- 0 LVL. +/- 0 LVL. +4 LVL. +4 LVL. +4 WARM WHITE LED STRIP LIGHT AS WARM WHITE LED COVE LIGHT PLAN GENERAL NOTES: PROJECT TITLE: DRAWING TITLE: SCALE: PROJECT NO.: DATE: DRAWING NO.: 06-11-2022 VASAVI ALLA 221915501002 ELECTRICAL LAYOUT LEGEND: N AR-09 CLIENT: GITAM UNIVERSITY, HYD. 1:50
scale drawings follow written dimensions (mm) unless and otherwise mentioned.
Each drawing shall be read in conjunction with all other drawings and general standard details in case of any
bring to
TELE/LAN CONNECTION 6A SWITCH SOCKET OUTLET 16A SOCKET OUTLET 2 WAY SWITCH BOARD 1 WAY SWITCH BOARD T.V POINT CEILING LIGHT EXHAUST FAN CEILING FAN ELECTRICAL LAYOUT WITH FURNITURE SCALE 1:50 ELECTRICAL LAYOUT WITHOUT FURNITURE SCALE 1:50 FALSE CEILING LAYOUT WITH FURNITURE SCALE 1:50 FALSE CEILING LAYOUT WITHOUT FURNITURE SCALE 1:50 CEILING LAYOUT WITHOUT FURNITURE CEILING LAYOUT WITH FURNITURE ELECTRICAL LAYOUT WITHOUT FURNITURE ELECTRICAL LAYOUT WITH FURNITURE

Turn static files into dynamic content formats.

Create a flipbook
Issuu converts static files into: digital portfolios, online yearbooks, online catalogs, digital photo albums and more. Sign up and create your flipbook.
vasavi alla architecture portfolio by Alla Vasavi - Issuu