Varsha Vickson_Architecture Portfolio_2023

Page 1

ARCHITECTURE

PORTFOLIO

VARSHA VICKSON

Selected works 2021 - 23

SOFTWARE SKILLS

ABOUT

The way spaces can move and influence people has always been a driving force that motivates me to shape spaces that evoke a sense of belonging.

I aspire to create spaces that seamlessly weave itself into the site to influence movement and use of the space.

00971509520354

varshavickson01@gmail.com Al-Nadha, Dubai, UAE

SOFT SKILLS

Communication Skills Team Work Leadership Qualities Creativity

EDUCATION

Amity University | Dubai Bachelor of Architecture

2019 - 2024

Our Own English High School | Dubai

CBSE - 2019 Batch

ACADEMIC MERIT

Academic Merit

Scored above 9 CGPA in all Semesters

COMPETITION

Roca | One Day Design Challenge

2022

Challenged to Re- Imagine the Shower Coloumn with Materials and Sustainability in mind.

OTHER WORK

BaityKool - Site Work

2021

We recieved a great oppurtunity to learn and work as a team to be part of the construction process and rellocation phase ofthe project.

Project Report - Parasitic Architecture 2022

Data Collection and Analysis , Literature Study and an online survey was done to explore Host - Parasite relationships in Architecture and it’s scope.

VARSHA VICKSON Architecture Student
Ai Id Ps
01 02 03 04 X-CHANGE Housing MICROCOSM Hotel PARASITE Cultural Insert MISCELLANEUOS Playscape Models Photography
01 X-CHANGE Housing Location : Al Karama, Dubai, UAE Semester : 07

SITE ANNALYSIS AND MAPPING

X - CHANGE

Housing Project that aims to bring back the essence of COMMUNITY to Karama!

ORIENTATION

Orienting mass to the North to ensure proper Shading and to Optimize Building Performance!

Establishing a relation between Karama Park and the Project! Movement Pattern!

KARAMA PARK KARAMA PARK

FUNCTION DIAGRAM AND WING CONFIGURATION

Space planning and arrangemnet of units to effectively combine units With the consideration of Light Wells and Social Spaces in mind

Redirecting Pedestrian Movement by Introducing an Introverted Souq as Retail Area

truding STUDIO
LIGHT WELL CORE
1 BHK 2 BHK 3 BHK

BLOCK MODEL

Block Model on Site

Formulated with the careful integration of Modules and Wing Configurations

The Wings are placed in such a way that the VIEWS are maximised and in a way that the units don’t directly face the rooms of the neighbhouring residential complexes, As the context is rather dense, using this Form allows for Buffer Spaces to be created that not only provides a view for the occupants to look at but also allows for Connection between the residents ofthe neighbhouring residential complexes which brings back the essence of Karama that is COMMUNITY AND MEMORIES

STUDIO 1 BHK

STUDIO :30% LEGEND 1 .Living Room 2.Dining Room 3.Kitchen 4.Bedroom 1BHK :35% LEGEND 1.Living Room 2.Dining Room 3.Kitchen 4.Bedroom 5.Wash Room
1 2 3 4 5 3 2 1 4 5 6
6.Storage

2 BHK 3 BHK

2BHK :25% 3BHK :15% LEGEND 1.Living Room 2.Dining Room 3.Kitchen 4.Bedroom 5.Wash Room
3 2 6 3 2 6 5 5 5 5 1 1 4 4 4 4 4
6.Storage

EXTRUSIONS

Extruding Balconies and the use of Jalis in Open Corridors are observed !

PERGOLAS

Pargolas are seen in newer developments in the area !

ARCHS

Archs and Motifs are commonly observed !

EFFECTIVE SHADING

Such Extrusions effectively shade spaces without using up a lot of material !

FACADE EXPLORATION AND ITERATIONS

Observing Existing Facades of Karama Creating 3D Models of Existing Facades and Exploring new possibilities

SLIDING STEEL FRAME

Steel Frame Polycarbonat Sheet

N, NW

Maximize Natural Light Acts as Privacy Screens

FOLDING STEEL MESH

Steel Mesh Planters

N, NE

Maximize Natural Light Acts as Privacy Screens

FOLDING WOOD FRAME

Wood Frame Fabric Membrane

S, NW

Maximize Natural Light Acts as Privacy Screens

PERFORATED

ALUMINIUN

Perforated Aluminium Planters

S, E, SW

Maximize Privacy

Reduce Direct Sunlight

PERFORATED ALUMINIUN SLIDES ALONG GROOVES

PARKING
INTERACTION
LAYOUT FULL CAPACITY FLOOR Floors 2,3,4
FLOOR Floor 1

LEGEND

GROUND FLOOR

1.Swimming Pool 2.Playscape 3.Buffer Space 4.Exhibition
1 5 2 4 3 3
5.Social Hub

Re-Directing Pedestrian Movement and bringing the essence of Karama into the Housing Complex

Visual Cone Bringing residents of neighbhouring complexes

X - Form allows for creation of Buffer Spaces and better privacy

02 MICROCOSM Hotel Location : Al Baniyas Square, Dubai, UAE Semester : 06

CONCEPT - MICROCOSM

MICROCOSM

Encapsulating the essence of Baniyas Square

A Community, Siuation, or Place regarded as encapsulating in miniature the characteristics of something much larger

Icorperating the essence of BANIYAS SQUARE and the CONTEXT became a primary focus during the Design Stage

Bring the Baniyas Square into the Hotel

SITE ANNALYSIS

Systematic Annalysis of Site and Context Baniyas, Dubai, UAE, 25.2693° N, 55.3076° E

Site, 25.2693° N, 55.3076° E Baniyas Square Sun Path Predominant Wind Direction Main Road S N E W Al Rigga Graveyard Main View Baniyas Metro Station Baniyas Metro Station Hotel Evin Oyo 184 Central Paris Hotel

MASSING AND FORM DEVELOPMENT

Form Study and Development with response to the Site and Context

Baniyas, Dubai, UAE, 25.2693° N, 55.3076° E

Green Spaces

Suite Rooms

Open Network

Multifuntion

Typical Rooms

TYPICAL ZONING MOVEMENT VIEW
Program Distribution Translation
Opening up to Baniyas Square Additional Void facing North VOID that shapes the corridor and allows for North Light to enter the HOTEL

TYPICAL ROOM FLOOR

SUITE ROOM FLOOR

Floors 10-11

MULTIFUNCTION FLOOR

GYM AND SPA FLOOR

6-8
Floors 2-4,
Floor 1
Floor 9 LEGEND 1.Single Bedroom 2.Master Bedroom 3.Services 4.House Keeping 5.Meeting Room LEGEND 1.Single Bedroom 2.Master Bedroom 3.Services 4.House Keeping 5.Meeting Room 6.Suite Room LEGEND 3.Services 7.Multi-Function Hall 8.Prayer Room 9.Meeting Room 10.Courtyard LEGEND 3.Services 8.Prayer Room 9.Meeting Room 10.Courtyard 11.Gym 12.Spa 13.Library 1 1 1 1 1 1 1 2 2 1 1 1 2 2 3 4 3 4 6 6 8 8 8 8 10 3 7 12 11 13

INTERACTION ZONE

ROOF RESTRO BAR

5
Floors
12
LEGEND 3.Services 14.Kitchen 9.Meeting Room 15.Exhibition Space LEGEND 3.Services 14.Kitchen 16.Changing Room 18.Swimming Pool PRODUCED BY AN AUTODESK STUDENT VERSION PRODUCED BY AN AUTODESK STUDENT VERSION
Floors
GROUND FLOOR
LEGEND 3.Services 1.Cafe 2.Lobby 4.Back of House 8.Prayer Room 16 16 3 14 18 3 14 15 9 8 8 3 4
PRODUCED BY AN AUTODESK STUDENT VERSION

Achieving connectivity between floors through the Introduction of NORTH FACING VOID and Graden Spaces

ELEVATION

MICROCOSM

The essence of prominent facades of UAE

WEST ELEVATION

SOUTH ELEVATION

MICROCOSM Al Serkal Avenue , Al Quoz, Dubai, UAE, 25.1417° N, 55.2261° E GLI
SECTION

Void that houses Green Spaces

North Light effectivley lighting up the Corridor

Extention of the Existing Retail Belt

Bringing the Square into the Hotel

03 PARASITE Cultural Insert Location : Al Quoz, Dubai, UAE Semester : 05

CONCEPT PARASITE

Introduction of a Cultural Hub through Parasitic Interventions

HOST

Alserkal Avenue is a space that utilizes warehouses in the industrial zone of Al Quoz, in Dubai

This collection of warehouses has now become an arts and culture district for Dubai with lineup of galleries, facilities and spaces that create a collaborative environment and platform for artists and creatives around the world.

CASE STUDY

PARASITE OFFICE ZA BOR ARCHITECTS

Prominent feature of many Moscow areas is the presence of multi-story buildings with blind end walls and wide passage between them.

This project provides for usage of free spaces between buildings for creation of original and economic offices which do not block the courtyard access.

The work area is suspended off the ground held up by a lightweight steel structure clamped to the blind walls, leaving the walkway below accessible to the public

PARASITE

Introduction of parasitic unit into the host to create a carefully woven space for creatives.

Residential Unit

Public Unit

Private Unit

SKYWALK RENNWEG 44 – 46 SOLID ARCHITECTURE

It’s a bridge that is enclosed on all sides to connect the two buildings Rennweg 44 and 46 at the fifth upper floor, 17 meters above the Kleistgasse in the third district of Vienna

The main supporting structure of the bridge is formed by means of two supporter trusses.

• Braced

Roof and floor level are a horizontal latticed framework and transmit the horizontal load into the already existing building structures

First Floor Parasite Office Second Floor Parasite Office Third Floor Parasite Office
Skywalk Rennweg 44 – 46 Section

SITE ANNALYSIS

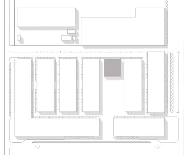
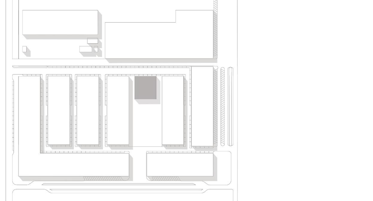
Systematic Annalysis of Site and Context Al Serkal Avenue , Al Quoz, Dubai, UAE, 25.1417° N, 55.2261° E Al Serkal Avenue 25.1417° N, 55.2261° E Concrete - OMA Main Entry Secondary Entry Sun Path Predominant Wind Direction Main Road Internal Road N E S W Al Serkal Avenue 25.1417° N, 55.2261° E Concrete - OMA Internal Road Concrete - OMA Main Entry Secondary Entry Al Serkal Avenue 25.1417° N, 55.2261° E Concrete - OMA Main Entry Secondary Entry

Unit removed for insertion of project

Opening the narrow entrance

Units removed for the Insertion of the Project Opening up the narrow entrance

Unit removed for insertion of project

Opening the narrow entrance

Concrete - OMA

Concrete - OMA

Concrete - OMA

Units removed for the Insertion of the Project Opening up the narrow entrance Concrete - OMA

Unit removed for insertion of project

Opening the narrow entrance

Units removed for the Insertion of the Project Opening up the narrow entrance

Unit removed for insertion of project

Concrete - OMA

Units removed for the Insertion of the Project Concrete - OMA

Concrete - OMA

Concrete - OMA

Public Inviting Spaces

Public Interaction Zones

Nested Studios / Workspaces

Nested Studios / Workspaces

Residential Unit / Research Unit

Residential Unit / Research Unit

1 2
3 4

Parasitic Unit that attaches to ONE WAREHOUSE

Parasitic Unit that attaches to BOTH WAREHOUSES

Parasitic Unit that attaches to FORM A SINGULAR UNIT

PARASITIC NATURE

PARASITIC NATURE

Exploring different ways in which the Cultural Hub can establish a parasitic relation

Exploring different ways in which the Cultural Hub can establish a parasitic relation

CONTRAST

Experimenting with Curves and Dynamic Facades to help create a contrast

MATERIAL

Using Light and Translucent materials like Polycarbonate Sheet to make the project a lantern that lights the space up at night

The option to work on the site adjacent to the Al Serkal Avenue (SITE B) was also given but working with the Blocks on Site to Improve CIRCULATION and CONNECTIVITY between the existing Warehouses of Al Sekal Avenue became my prime focus .

Blocks were carefully removed to make way for ADDED FUNCTION and to create a more LIGHT AND AIRY ZONE without affecting the EXISTING CENTRE (Concrete -OMA), The Parasitic Nature of the inroduced project aloows for EASE OF MOVEMENT.

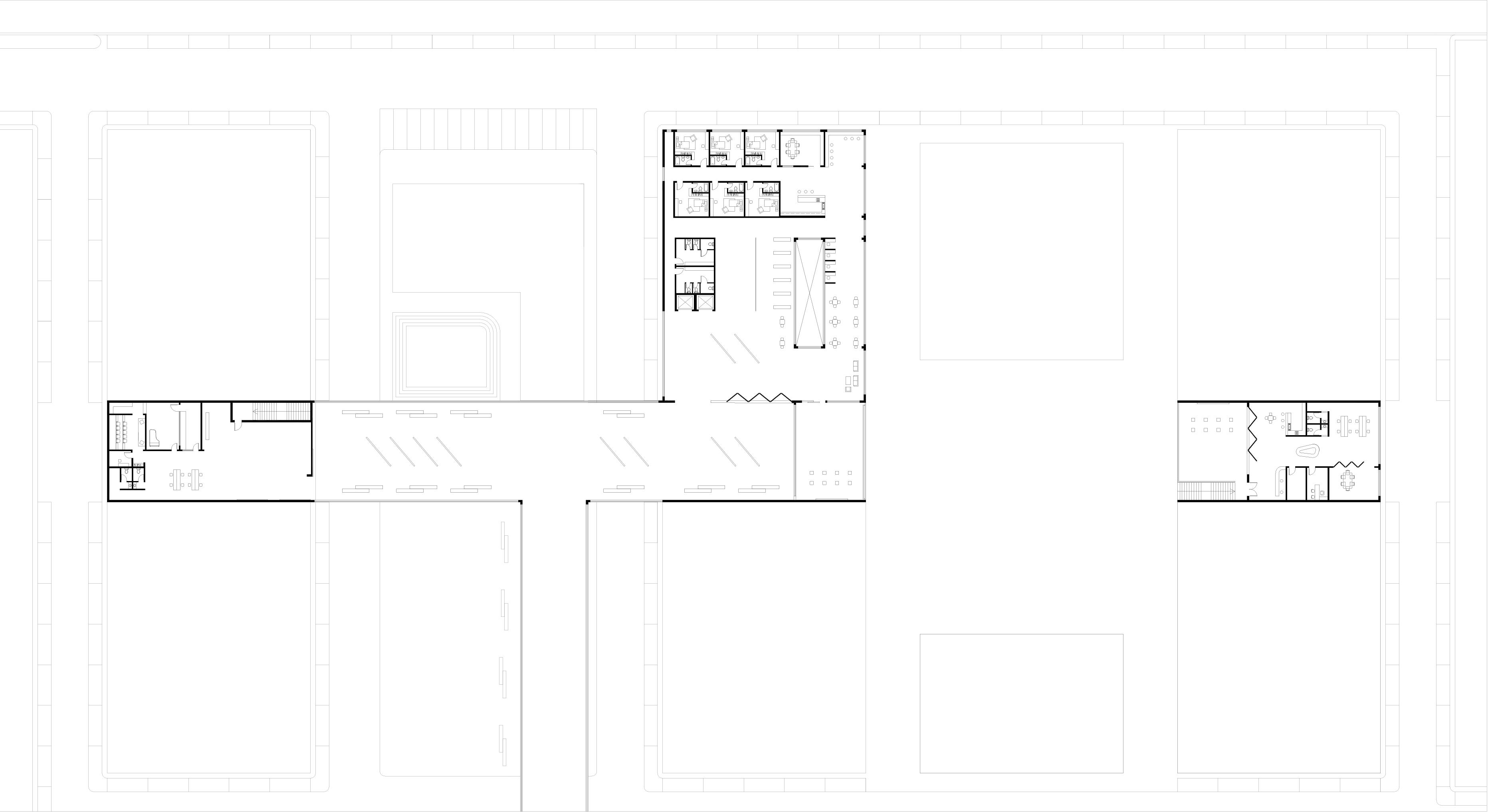
GROUND FLOOR PLAN

PARASITE

Introduction of a Cultural Hub through Parasitic Interventions

Cafe (Residential Zone)

Performing Arts Unit

Unit of Growth

MULTI PURPOSE HALL/ GALLERY SPACE • Exhibitions • Screenings 1 2 3 4 7 5 6 8 9
1. Gallery 2. Meeting Space 3. Loading Unloading / Storage 4. Meeting Room 5. Open Discussion Space 6. Washroom 7. Kitchen 8. Washroom 9. Restaurant

Perforated panels that slides on rollers for shading and privacy

MEETING SPACE

• Leads to Workstation above

RESTAURANT

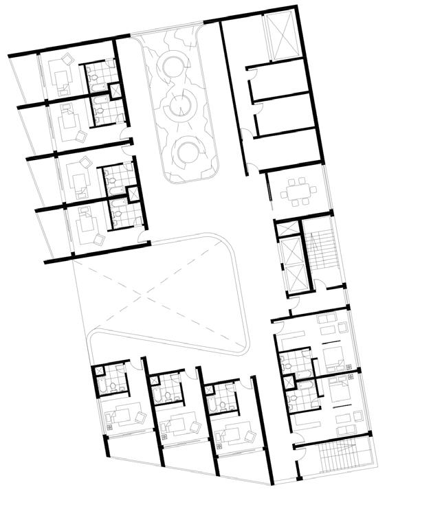
FIRST FLOOR PLAN

Introduction of a Cultural Hub through Parasitic Interventions

PARASITE
Residential Unit Private Office Media Lab Design Workstation

SKY WALK

MEDIA LAB
Recording studio
Screening space
Bridge that connects spaces
Exhibition Bridge
Residential Unit
Library
Recording / Live room 19. Control room
Screening Room 21. Office Space 18 19 20
16.
17.
18.
20.
RESIDENTIAL UNIT • BED SPACES • CO – STUDY SPACE/ LIBRARY PRIVATE OFFICE SPACE • Nested Between the existing units BALCONY SPACE • For Movies and Presentations • Overlooks the courtyard 16 17 21
23.
24.
21 22 23
21. Open Workshop / Exhibition Area 22. Exhibition Space
Co Working Space
Closed Workstation

PUBLIC ART AND CO WORKING SPACE

• Workstation

• Storage / Printing

23 24

MISCELLANEOUS Playscape

04

PLAYSCAPE PARCEL

A PLAYSCAPE for all ages that Imitates and eaves into the Contours of the Site. Shamal Al Julphar, Ras Al Khaimah, UAE

Playing around with different forms and materials to Imitate the terrain of Shamal Al Julphar to provide an experience that weaves itself into the site

Focused on the Historic Core of Shamal al Julphar It gradually takes one around the Remains of Sheba Palace and Husan al Shimal Fort.

PRIMARY FOCUS

1.HISTORIC CORE Focuses on Visitors and Explorers

2 . RESIDENTIAL CORE Focuses on bringing resdidents together

MODULUES USED

Rest
Main Trail
START POINT
Stops

04

MISCELLANEOUS Models

SEMESTER 1 and 2 Installation

and Exhibition

Playing around with different forms and materials to create interactive experiences.

SEMESTER 3 Contour Models

Exploring the oppurtunities of a contoured site and working with different prototypes.

SEMESTER 4 Concept Models

Imitating Pneumatophores and studying the effects of facades and materials used.

04
MISCELLANEOUS Photography
DOCUMENTAION Photography Egypt Study Tour 2023
works 2021 -
varshavickson01@gmail.com Al-Nadha, Dubai, UAE Driving Licence : VARSHA VICKSON UAE
Selected
23 00971509520342

Turn static files into dynamic content formats.

Create a flipbook
Issuu converts static files into: digital portfolios, online yearbooks, online catalogs, digital photo albums and more. Sign up and create your flipbook.