Lugarde Select Modern en Blokhut

Page 1


Lugarde Select Modern

Bij Lugarde brengen we het comfort van binnen naar buiten. Als familiebedrijf gaat klanttevredenheid verder bij ons dan service. We streven naar de beste kwaliteit en zetten dromen om in werkelijkheid door functie en beleving te combineren. Met decennialange expertise weten we dat goed design meer is dan hout en constructie. Het draait om hoe een ruimte aanvoelt en voor u werkt.

Daarom creëren we met precisie, duurzaamheid en een passie voor perfectie. Wij brengen innerlijke rust met prachtig ontworpen buitenruimtes en staan voor kwaliteit zonder compromis.

Simply the Best Life.

Voor blijvende buitenmomenten

Eigenschappen

5 jaar garantie

1e-klas gedroogd vurenhout

Uw keuze

Behandeling

Onbehandeld

Dubbel glas in deuren en ramen

Afmetingen

18 mm T&G dakplanken

Inclusief bevestigingsmateriaal

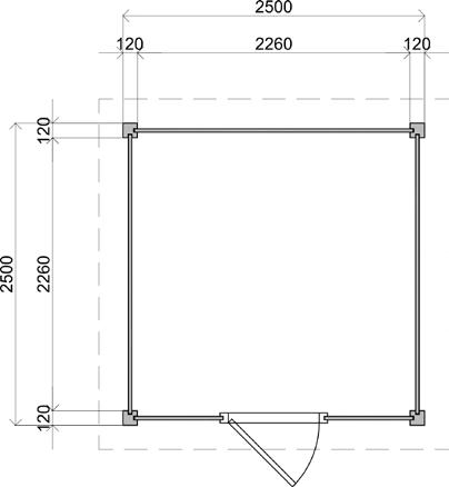
Breedte en diepte in stappen van 50 cm: van 200 cm tot 800 cm, inclusief overkapping. Alle genoemde afmetingen zijn exclusief dakoverstek. Per zijde komt er 23 cm bij.

Wanddikte

28 mm

44 mm

De overkapping kan zowel links als rechts geplaatst worden om perfect aan te laten sluiten op uw tuin.

Opties

12x12 cm gelamineerde palen

EPDM-pakket

Bestand tegen veroudering en weersinvloeden. Inclusief dakdoorvoeren en EPDM-lijm.

Funderingsbalken

Keuze uit hout of composiet. Voorgezaagd voor een perfecte pasvorm.

Binnenvloer

18 mm tand-en-groef vurenhouten planken. Inclusief plinten voor een nette afwerking.

Regenpijp

Keuze uit zink of PVC. Compleet met alle bevestigingsmaterialen.

Bruine houtolie Zwarte houtolie
Hoogwaardige ramen en deuren, altijd bij de prijs inbegrepen.

Dubbel glas

Alle ramen en deuren zijn standaard voorzien van dubbel glas voor betere isolatie, energieefficiëntie en geluidsdemping, zodat uw ruimte het hele jaar door comfortabel blijft.

Uitzetramen

Gemakkelijk te openen met een slanke zwarte handgreep. Ideaal om frisse lucht binnen te laten zonder in te leveren op privacy of bescherming tegen regen.

Deurkrukken

Verende chromen handgrepen voor een soepele, luxe uitstraling. Stijlvol en praktisch in dagelijks gebruik.

Cilindersloten

Hoogwaardige sloten op alle deuren, inclusief drie sleutels. Direct veilige afsluiting.

Tocht- en vochtwering

Alle ramen en deuren zijn voorzien van tochtstrips om tocht en vocht buiten te houden. Met verwijderbare folie voor een nette afwerking na het schilderen.

Afgekitte ramen

Elk raam wordt professioneel door ons afgekit, voor directe plaatsing en perfecte pasvorm.

Covers voor mooie afwerking

Alle scharnieren worden netjes afgewerkt met afdekkappen voor een strakke uitstraling.

Aluminium slijtstrip

Deuren zijn voorzien van een beschermende aluminium strip met voorgeboorde gaten om de dorpel te beschermen tegen dagelijks gebruik.

Verstelbare scharnieren

Volledig verstelbaar in alle richtingen, zodat de deur eenvoudig perfect af te stellen is en soepel blijft functioneren.

Volledig behandeld met houtolie

Kiest u voor een tuinhuis dat met houtolie wordt behandeld? Dan kunt u erop rekenen dat het complete bouwwerk, van binnen én van buiten, volledig is behandeld. Dat betekent: de binnenen buitenzijde van de wanden, alle hoekverbindingen, het dak én alle plekken waar u na montage niet meer bij kunt. Zo is uw buitenverblijf optimaal beschermd, tot in de kleinste details.

Deze volledige behandeling zorgt ervoor dat het hout goed verzadigd is en direct klaar is voor gebruik. Een zorgeloze start dus, met een mooie natuurlijke uitstraling en een duurzame bescherming van het hout.

Soms weet u precies wat u nodig heeft: een tuinhuis dat naadloos aansluit op uw buitenruimte. De Lugarde Select Modern collectie geeft uw tuin een tijdloze uitstraling. Deze tuinhuizen zijn perfect voor het opbergen van gereedschap en meubels of als extra leefruimte. Dankzij de ruime keuze aan standaardmaten, met of zonder overkapping, combineert u eenvoudig opslag met ontspanning.

De robuuste hoekpalen geven een stevige uitstraling. Dankzij het moderne ontwerp passen deze tuinverblijven perfect in iedere hedendaagse tuinomgeving.

Eenvoudig kiezen, opbouwen en genieten.

Den Haag

Aalsmeer

Garderen

Hoogte: 250 cm Hoogte: 250 cm Hoogte: 250 cm

Onbehandeld, 28 mm

Onbehandeld, 44 mm

Houtolie, 28 mm

Houtolie, 44 mm

Onbehandeld, 28 mm

Onbehandeld, 44 mm

Houtolie, 28 mm

Houtolie, 44 mm

Onbehandeld, 28 mm

Onbehandeld, 44 mm

Houtolie, 28 mm

Houtolie, 44 mm

Hoeven Amsterdam

Groningen

Hoogte: 250 cm

Hoogte: 250 cm

Hoogte: 250 cm

Onbehandeld, 28 mm

Onbehandeld, 44 mm

Houtolie, 28 mm

Onbehandeld, 28 mm

Onbehandeld, 44 mm

Houtolie, 28 mm

Houtolie, 44 mm Houtolie, 44 mm

Onbehandeld, 28 mm

Onbehandeld, 44 mm

Houtolie, 28 mm

Houtolie, 44 mm

Gorssel

Breda

Bodegraven

Hoogte: 250

Onbehandeld, 28 mm

Onbehandeld, 44 mm

Houtolie, 28 mm

Houtolie, 44 mm

Onbehandeld, 28 mm

Onbehandeld, 44 mm

Houtolie, 28 mm

Houtolie, 44 mm

Onbehandeld, 28 mm

Onbehandeld, 44 mm

Houtolie, 28 mm

Houtolie, 44 mm

Rotterdam

B 388 cm x D 388 cm

Hoogte: 250 cm

Prijs

Onbehandeld, 28 mm

Onbehandeld, 44 mm

Houtolie, 28 mm

Houtolie, 44 mm

3.607,-

4.049,-

4.278,-

4.859,-

Al meer dan 40 jaar staat Lugarde bekend om het vervaardigen van hoogwaardige houten tuinhuizen, blokhutten, veranda’s en meer, altijd perfect afgestemd op uw wensen.

Met Lugarde Select ontdekt u een zorgvuldig samengestelde collectie van meer dan 300 standaardmodellen, allemaal ontworpen met eenvoud, kwaliteit en stijl als uitgangspunt. Aangeboden tegen een zeer scherpe prijs. Hoewel u nu kijkt naar de robuuste Modern collectie, omvat het Lugarde Select assortiment ook de traditionele Blokhut collectie, het innovatieve Primasysteem en elegante veranda’s, elk met hun eigen kenmerken, afwerkingen en charme.

Of u nu extra opbergruimte, een hobbyruimte of een knus buitenverblijf zoekt, Lugarde Select biedt de ideale oplossing. Dankzij het slimme modulaire systeem zijn alle modellen snel en eenvoudig te monteren.

Elk Lugarde Select-product is vervaardigd uit duurzaam geproduceerd en zorgvuldig geselecteerd eersteklas gedroogd hout. Krimp van het hout en uitzetting en vervorming wordt tot een minimum beperkt dankzij gelamineerde onderdelen. In combinatie met hoogwaardige ramen en deuren met dubbel glas bent u verzekerd van langdurige duurzaamheid en een prachtige uitstraling.

Ontdek Lugarde Select en neem contact op met uw officiële Lugarde-dealer om het perfecte tuinhuis voor uw tuin te vinden.

Vught

Dordrecht

Onbehandeld, 28 mm

Onbehandeld, 44 mm

Houtolie, 28 mm

Houtolie, 44 mm

Onbehandeld, 44 mm

Houtolie, 28 mm

Houtolie, 44 mm

Onbehandeld, 28 mm

Onbehandeld, 44 mm

Houtolie, 28 mm

Houtolie, 44 mm

Tilburg

Apeldoorn

Onbehandeld, 28 mm Onbehandeld, 28 mm

Onbehandeld, 44 mm

Houtolie, 28 mm

Houtolie, 44 mm

Onbehandeld, 44 mm

Houtolie, 28 mm

Onbehandeld, 28 mm

Onbehandeld, 44 mm

Houtolie, 28 mm

Houtolie, 44 mm Houtolie, 44 mm

Neerkant

Dronten

Emmen

Onbehandeld, 28 mm

Onbehandeld, 44 mm

Houtolie, 28 mm

Houtolie, 44 mm

Onbehandeld, 28

Onbehandeld, 44 mm

Houtolie, 28 mm

Houtolie, 44 mm

Onbehandeld, 28 mm

Onbehandeld, 44 mm

Houtolie, 28 mm

Houtolie, 44 mm

Onbehandeld, 28 mm

Onbehandeld, 44 mm

Houtolie, 28 mm

Onbehandeld, 44 mm

Houtolie, 28 mm

Houtolie, 44 mm Houtolie, 44 mm

Onbehandeld, 28 mm

Onbehandeld, 44 mm

Houtolie, 28 mm

Houtolie, 44 mm

Amstelveen

Lugarde Select Modern opties en prijslijst

Stel uw ideale tuinhuis samen, tot in de puntjes afgestemd op uw wensen

Bij Lugarde geloven we dat een tuinhuis pas echt van u is, als het helemaal past bij uw stijl en behoeften. Daarom denken we graag met u mee – samen met onze geselecteerde dealers – om uw perfecte buitenverblijf samen te stellen. Met Lugarde Select breidt u uw tuinhuis eenvoudig uit. U kunt bijvoorbeeld kiezen voor een extra zijwand, een praktische regenpijpset of een andere indeling van ramen en deuren. Wilt u iets aanpassen? Uw dealer helpt u graag bij het maken van de juiste keuzes. Voor een mooi en duurzaam resultaat adviseren wij om altijd het EPDM-dakpakket, funderingsbalken en een binnenvloer toe te voegen. Zo geniet u nog langer van uw tuinhuis – elke dag opnieuw.

Versie 2025.1

Alle vermelde prijzen zijn inclusief btw. Dit zijn adviesprijzen; neem contact op met uw lokale dealer voor de meest actuele prijsinformatie. Levering met kooiaap is € 150,- per levering, ongeacht het type tuinhuis. Prijzen gelden vanaf april 2025 tot een nieuwe versie van deze brochure verschijnt. Prijzen onder voorbehoud van wijzigingen en eventuele druk- of zetfouten. De maatvoering in de plattegrond is altijd leidend. Kleine verschillen met de in de tekst genoemde afmetingen zijn mogelijk.

WP44_ST_X_NC_N_XXX01 W44 uitzetraam 770x1140 mm onbehandeld*

WP44_ST_X_NC_N_XXX02 W44 uitzetraam 770x1140 mm bruine olie*

WP44_ST_X_NC_Y_XXX03 W44 uitzetraam 770x1140 mm zwarte olie*

272,- € 272,-

326,- € 326,-

WP50_HI_X_NC_N_XXX01 W50H dubbele deur 151x193,5 cm onbehandeld - vervanging van enkele deur W61H € 199,- € 199,-

WP50_HI_X_NC_N_XXX02 W50H dubbele deur 151x193,5 cm bruine olie - vervanging van enkele deur W61H € 239,- € 229,-

WP50_HI_X_NC_N_XXX03 W50H dubbele deur 151x193,5 cm zwarte olie - vervanging van enkele deur W61H € 239,- € 229,-

WP50_HI_X_NC_N_XXX01 W50H dubbele deur 151x193,5 cm onbehandeld - vervanging van dubbele deur W60H € 83,- € 83,-

WP50_HI_X_NC_N_XXX02 W50H dubbele deur 151x193,5 cm bruine olie - vervanging van dubbele deur W60H € 100,- € 96,-

WP50_HI_X_NC_N_XXX03 W50H dubbele deur 151x193,5 cm zwarte olie - vervanging van dubbele deur W60H € 100,- € 96,-

WI01_HI_L_XX_X_XXX01

WI01_HI_L_XX_X_XXX02

WI01_HI_L_XX_X_XXX03

WI01_HI_R_XX_X_XXX01

WI01_HI_R_XX_X_XXX02

WI01_HI_R_XX_X_XXX03

ID01H volhouten naar binnen draaiende deur (linksdr.) onbehandeld* € 400,- € 400,-

ID01H volhouten naar binnen draaiende deur (linksdr.) bruine olie* € 480,- € 480,-

ID01H volhouten naar binnen draaiende deur (linksdr.) zwarte olie*

€ 480,- € 480,-

ID01H volhouten naar binnen draaiende deur (rechtsdr.) onbehandeld* € 400,- € 400,-

ID01H volhouten naar binnen draaiende deur (rechtsdr.) bruine olie*

ID01H volhouten naar binnen draaiende deur (rechtsdr.) zwarte olie*

*Zelf inzagen: u kiest zelf de ideale plek voor uw raam en/of deur.

€ 480,- € 480,-

€ 480,- € 480,-

Artikelcode Omschrijving

AIRBL

Ventilatierooster (1 set, voor 1 zijde) € 22,- € 22,-

LSM28-SW-250UN Zijwand 250 cm tbv overkapping onbehandeld € 173,- € 280,-

LSM28-SW-250BR Zijwand 250 cm tbv overkapping bruine olie € 207,- € 336,-

LSM28-SW-250BL Zijwand 250 cm tbv overkapping zwarte olie € 207,- € 336,-

LSM28-SW-300UN Zijwand 300 cm tbv overkapping onbehandeld € 206,- € 336,-

LSM28-SW-300BR Zijwand 300 cm tbv overkapping bruine olie € 248,- € 403,-

LSM28-SW-300BL Zijwand 300 cm tbv overkapping zwarte olie € 248,- € 403,-

LSM28-SW-388UN Zijwand 388 cm tbv overkapping onbehandeld

€ 275,- € 448,-

LSM28-SW-388BR Zijwand 388 cm tbv overkapping bruine olie € 330,- € 538,-

Artikelcode Omschrijving

LSM28-FW-SIDE-250 Funderingsbalk hout tbv 250 cm zijwand

LSM28-FP-SIDE-250 Funderingsbalk kunststof tbv 250 cm zijwand

€ 16,- € 16,-

€ 43,- € 43,-

LSM28-FW-SIDE-300 Funderingsbalk hout tbv 300 cm zijwand € 20,- € 20,-

LSM28-FP-SIDE-300 Funderingsbalk kunststof tbv 300 cm zijwand

LSM28-FW-SIDE-388 Funderingsbalk hout tbv 388 cm zijwand

LSM28-FP-SIDE-388 Funderingsbalk kunststof tbv 388 cm zijwand

Artikelcode

RP1L Zinken regenpijp 1 set (voor daken met 1 doorvoer tot 18 m²)

RP2L Zinken regenpijp set van 2 (voor daken met 2 doorvoeren vanaf 18 m²)

RP1W PVC regenpijp 1 set (voor daken met 1 doorvoer tot 18 m²)

RP2W

PVC regenpijp set van 2 (voor daken met 2 doorvoeren vanaf 18 m²)

€ 53,- € 53,-

€ 25,- € 25,-

€ 67,- € 67,-

116,- € 116,-

€ 176,- € 176,-

€ 69,- € 69,-

135,- € 135,-

SM443838R40103

Ontdek de hele Lugarde Select collectie

Blokhut Prima Veranda

Met de Blokhut collectie haalt u een tijdloze klassieker in huis. De karakteristieke molenwiekverbindingen zorgen voor stevigheid en een authentiek uiterlijk. Deze blokhutten zijn beschikbaar in diverse standaardformaten, dakvormen en wanddiktes van 28 of 44 mm. Ook zijn modellen met overkapping mogelijk. De Blokhut collectie is een betrouwbare keuze voor wie houdt van ambacht en traditie.

De Prima collectie combineert verfijnd design met slimme techniek. Dankzij het gepatenteerde 3-in-1 hoekverbindingssysteem zijn er geen zichtbare schroeven of koppelstukken, wat zorgt voor een strak en afgewerkt uiterlijk. Beschikbaar in zowel rechthoekige als achthoekige modellen met een plat dak, zadeldak of piramidedak. Ideaal voor wie een uniek tuinhuis zoekt dat geschikt is als opslagruimte, hobbyruimte of werkplek.

De Veranda collectie biedt comfortabele en stijlvolle overkappingen voor het hele jaar door. Met de wanden zit u beschut tegen wind en regen. Verkrijgbaar in verschillende standaardmaten, zodat er altijd een model is dat bij uw tuin past. Het strakke ontwerp en de hoogwaardige afwerking geven uw buitenruimte een luxe uitstraling.

Neem contact op met uw officiële Lugarde-dealer voor details over afwerking, prijzen en levering.

Vind uw officiële Lugarde-dealer.

Lugarde.com

Alle leveranciers van ons hout zijn PEFC-gecertificeerd. Het is ook onze missie om onze producten volledig recyclebaar te leveren en het afvalhout en zaagsel te beperken. Daarnaast worden restmaterialen hergebruikt voor andere doeleinden.

Bij Lugarde brengen we het comfort van binnen naar buiten. Als familiebedrijf gaat klanttevredenheid verder bij ons dan service. We streven naar de beste kwaliteit en zetten dromen om in werkelijkheid door functie en beleving te combineren. Met decennialange expertise weten we dat goed design meer is dan hout en constructie. Het draait om hoe een ruimte aanvoelt en voor u werkt.

Daarom creëren we met precisie, duurzaamheid en een passie voor perfectie. Wij brengen innerlijke rust met prachtig ontworpen buitenruimtes en staan voor kwaliteit zonder compromis.

Simply the Best Life.

Voor blijvende buitenmomenten

Eigenschappen

5 jaar garantie

1e-klas gedroogd vurenhout

Uw keuze

Behandeling

Dubbel glas in deuren en ramen

Afmetingen

18 mm T&G dakplanken

Inclusief bevestigingsmateriaal

Breedte en diepte in stappen van 50 cm: van 200 cm tot 800 cm, inclusief overkapping. Alle genoemde afmetingen zijn exclusief dakoverstek. Per zijde komt er 30 cm bij.

De overkapping kan zowel links als rechts geplaatst worden om perfect aan te laten sluiten op uw tuin. Elke overkapping wordt geleverd met een stelvoet voor een stabiele plaatsing.

Opties

Wanddikte 28 mm of 44 mm

EPDM-pakket of shingles

Bestand tegen veroudering en weersinvloeden. Inclusief bevestigingsmaterialen.

Funderingsbalken

Keuze uit hout of composiet. Voorgezaagd voor een perfecte pasvorm.

Binnenvloer

18 mm tand-en-groef vurenhouten planken. Inclusief plinten voor een nette afwerking.

Regenpijp

Keuze uit zink of PVC. Compleet met alle bevestigingsmaterialen.

Onbehandeld Keteldruk geïmpregneerd bruin
Keteldruk geïmpregneerd grijs
Hoogwaardige ramen en deuren, altijd bij de prijs inbegrepen.

Dubbel glas

Alle ramen en deuren zijn standaard voorzien van dubbel glas voor betere isolatie, energieefficiëntie en geluidsdemping, zodat uw ruimte het hele jaar door comfortabel blijft.

Vleugelramen

Sterke, veilige dubbele ramen met gebruiksvriendelijke handgrepen en een pen-engat-systeem. Vergrendelbaar in elke stand en volledig af te sluiten voor optimale ventilatie en gemoedsrust.

Deurkrukken

Verende chromen handgrepen voor een soepele, luxe uitstraling. Stijlvol en praktisch in dagelijks gebruik.

Cylindersloten

Hoogwaardige sloten op alle deuren, inclusief drie sleutels. Direct veilige afsluiting.

Tocht- en vochtwering

Alle ramen en deuren zijn voorzien van tochtstrips om tocht en vocht buiten te houden. Met verwijderbare folie voor een nette afwerking na het schilderen.

Afgekitte ramen

Elk raam wordt professioneel door ons afgekit, voor directe plaatsing en perfecte pasvorm.

Covers voor mooie afwerking

Alle scharnieren worden netjes afgewerkt met afdekkappen voor een strakke uitstraling.

Aluminium slijtstrip

Deuren zijn voorzien van een beschermende aluminium strip met voorgeboorde gaten om de dorpel te beschermen tegen dagelijks gebruik.

Verstelbare scharnieren

Volledig verstelbaar in alle richtingen, zodat de deur eenvoudig perfect af te stellen is en soepel blijft functioneren.

Volledig behandeld met keteldrukimpregnatie

Kiest u voor een tuinhuis dat keteldruk geïmpregneerd is? Dan kunt u erop rekenen dat het complete bouwwerk, van binnen én van buiten, volledig is behandeld. Dat betekent: de binnenen buitenzijde van de wanden, alle hoekverbindingen, het dak én alle plekken waar u na montage niet meer bij kunt. Zo is uw buitenverblijf optimaal beschermd, tot in de kleinste details.

Deze volledige behandeling zorgt ervoor dat het hout goed verzadigd is en direct klaar is voor gebruik. Een zorgeloze start dus, met een mooie natuurlijke uitstraling en een duurzame bescherming van het hout.

Soms weet u gewoon wat u nodig heeft: een tuingebouw dat naadloos aansluit op uw buitenruimte. De Lugarde Select Blokhut collectie brengt een klassieke, authentieke sfeer in uw tuin. Met dakvormen variërend van plat tot traditioneel zadeldak is er altijd een blokhut die bij uw tuin en stijl past.

Dankzij de kenmerkende gekruiste hoekverbindingen zijn deze blokhutten niet alleen extra stevig, maar ook vol karakter. Ze zijn perfect voor iedereen die een tuingebouw zoekt voor opslag, hobby’s of gewoon om te ontspannen.

Eenvoudig kiezen, opbouwen en genieten.

Nokhoogte: 245

Nokhoogte: 245

Onbehandeld, 28 mm

Keteldruk, 28 mm

Onbehandeld, 28 mm

Keteldruk, 28 mm

Nokhoogte: 245 cm

Onbehandeld, 28 mm

Keteldruk, 28 mm

Arnhem
Zwolle
Nijmegen

Nokhoogte: 245

Nokhoogte: 245

Onbehandeld, 28 mm

Keteldruk, 28 mm

Onbehandeld, 28 mm

Keteldruk, 28 mm

Onbehandeld, 28 mm

Keteldruk, 28 mm

Wassenaar
Amersfoort
Barneveld

Nokhoogte: 245

Nokhoogte: 245

Nokhoogte:

Onbehandeld, 28 mm

Keteldruk, 28 mm

Onbehandeld, 28 mm

Keteldruk, 28 mm

Onbehandeld, 28 mm

Keteldruk, 28 mm

Winterswijk

Nokhoogte: 245

Nokhoogte: 245

Nokhoogte:

Onbehandeld, 44 mm

Keteldruk, 44 mm

Onbehandeld, 44 mm

Keteldruk, 44 mm

Onbehandeld, 44 mm

Keteldruk, 44 mm

Nokhoogte: 245

Onbehandeld, 44 mm

Keteldruk, 44 mm

Onbehandeld, 44 mm

Keteldruk, 44 mm

Nokhoogte: 245 cm

Onbehandeld, 44 mm

Keteldruk, 44 mm

Eibergen Groenlo
Lochem

Onbehandeld, 28 mm

Keteldruk, 28 mm

Onbehandeld, 28 mm

Keteldruk, 28 mm

Onbehandeld, 28 mm

Keteldruk, 28 mm

Ruurlo
Hengelo
Aalten
Nokhoogte: 270
Nokhoogte:
Nokhoogte:

Nokhoogte: 280

Onbehandeld, 28 mm

Keteldruk, 28 mm

Onbehandeld, 28 mm

Keteldruk, 28 mm

Onbehandeld, 28 mm

Keteldruk, 28 mm

Borculo
Twello
Olst
Nokhoogte:
Select Blokhut

Rhenen

Wijhe

Brummen

Nokhoogte: 297

Nokhoogte: 297

Nokhoogte:

Onbehandeld, 28 mm

Keteldruk, 28 mm

Onbehandeld, 28 mm

Keteldruk, 28 mm

Onbehandeld, 28 mm

Keteldruk, 28 mm

Wolfheze

Nokhoogte: 297

Nokhoogte: 320

Nokhoogte:

Onbehandeld, 44 mm

Keteldruk, 44 mm

Onbehandeld, 44 mm

Keteldruk, 44 mm

Onbehandeld, 44 mm

Keteldruk, 44 mm

Loenen
Eerbeek

Nokhoogte: 297

Onbehandeld, 44 mm

Keteldruk, 44 mm

Onbehandeld, 44 mm

Keteldruk, 44 mm

Nokhoogte:

Onbehandeld, 44 mm

Keteldruk, 44 mm

Opheusden

Deventer

Ede

Nokhoogte: 245

Nokhoogte:

Wageningen

Onbehandeld, 28 mm

Keteldruk, 28 mm

Onbehandeld, 28 mm

Keteldruk, 28 mm

Onbehandeld, 28 mm

Keteldruk, 28 mm

Select Blokhut

Zandvoort

Hilversum

Harderwijk

Nokhoogte: 245

Nokhoogte:

Onbehandeld, 28 mm

Keteldruk, 28 mm

Onbehandeld, 28 mm

Keteldruk, 28 mm

Nokhoogte: 245 cm

Onbehandeld, 28 mm

Keteldruk, 28 mm

Tiel

Culemborg

Elst

Nokhoogte: 245

Nokhoogte: 245

Nokhoogte: 245

Onbehandeld, 28 mm

Keteldruk, 28 mm

Onbehandeld, 28 mm

Keteldruk, 28 mm

Onbehandeld, 28 mm

Keteldruk, 28 mm

Select Blokhut

Onbehandeld, 28 mm

Keteldruk, 28 mm

Onbehandeld, 44 mm

Keteldruk, 44 mm

Onbehandeld, 44 mm

Keteldruk, 44 mm

Huissen
Wehl
Didam
Nokhoogte: 245
Nokhoogte:
Nokhoogte:

Oldenzaal

Varsseveld

Nokhoogte: 270

Onbehandeld, 28 mm

Keteldruk, 28 mm

Onbehandeld, 28 mm

Keteldruk, 28 mm

Onbehandeld, 28 mm

Keteldruk, 28 mm

Markelo

Onbehandeld, 28 mm

Keteldruk, 28 mm

Onbehandeld, 28 mm

Keteldruk, 28 mm

Onbehandeld, 28 mm

Keteldruk, 28 mm

Borne
Raalte Epe
Nokhoogte:
Nokhoogte:
Nokhoogte:

Haaksbergen

Holten

Nokhoogte: 280

Nokhoogte:

Nokhoogte: 297

Onbehandeld, 28 mm

Keteldruk, 28 mm

Onbehandeld, 28 mm

Keteldruk, 28 mm

Onbehandeld, 28 mm

Keteldruk, 28 mm

Hattem
Select Blokhut

Nokhoogte: 297

Nokhoogte:

Onbehandeld, 28 mm

Keteldruk, 28 mm

Onbehandeld, 44 mm

Keteldruk, 44 mm

Onbehandeld, 44 mm

Keteldruk, 44 mm

Katwijk

Nokhoogte: 297

Nokhoogte: 297

Nokhoogte: 320

Onbehandeld, 44 mm

Keteldruk, 44 mm

Onbehandeld, 44 mm

Keteldruk, 44 mm

Onbehandeld, 44 mm

Keteldruk, 44 mm

Elburg Heerde
Select Blokhut

Bennekom

Al meer dan 40 jaar staat Lugarde bekend om het maken van hoogwaardige houten tuinhuizen, blokhutten, veranda’s en meer. Altijd perfect afgestemd op uw wensen.

Met Lugarde Select ontdekt u een zorgvuldig samengestelde collectie van meer dan 300 standaardmodellen. Elk ontwerp is ontwikkeld met eenvoud, kwaliteit en stijl als uitgangspunt en wordt aangeboden tegen een aantrekkelijke prijs. Naast de traditionele blokhutten vindt u binnen het Select-assortiment ook de robuuste Modern collectie, het innovatieve Prima systeem en elegante veranda’s, elk met een eigen karakter, afwerking en uitstraling.

B 500 cm x D 600 cm

Nokhoogte: 320 cm

Prijs

Onbehandeld, 44 mm

Keteldruk, 44 mm

€ 4.672,-

€ 5.606,-

Of u nu extra opbergruimte, een hobbyruimte of een knus buitenverblijf zoekt, Lugarde Select biedt de ideale oplossing. Dankzij het slimme modulaire systeem zijn alle modellen snel en eenvoudig te monteren.

Elk Lugarde Select-product is vervaardigd uit duurzaam geproduceerd en zorgvuldig geselecteerd eersteklas gedroogd hout. Krimp van het hout en uitzetting en vervorming wordt tot een minimum beperkt dankzij gelamineerde onderdelen. In combinatie met hoogwaardige ramen en deuren met dubbel glas bent u verzekerd van langdurige duurzaamheid en een prachtige uitstraling.

Ontdek Lugarde Select en neem contact op met uw officiële Lugarde-dealer om het perfecte tuinhuis voor uw tuin te vinden.

Lugarde Select Blokhut opties en prijslijst

Stel uw ideale tuinhuis samen, tot in de puntjes afgestemd op uw wensen

Bij Lugarde geloven we dat een tuinhuis pas echt van u is, als het helemaal past bij uw stijl en behoeften. Daarom denken we graag met u mee – samen met onze geselecteerde dealers – om uw perfecte buitenverblijf samen te stellen. Met Lugarde Select biedt u uw tuinhuis extra mogelijkheden. Denk aan een extra zijwand, een handige regenpijpset of een wijziging in ramen en deuren. Wilt u iets aanpassen? Uw dealer helpt u graag bij het maken van de beste keuzes. Voor een mooi en duurzaam resultaat adviseren wij altijd te kiezen voor het EPDM-dakpakket (bij een plat dak) of shingles (bij een zadeldak), onze funderingsbalken en een binnenvloer. Zo geniet u nóg langer van uw tuinhuis – elke dag weer.

Versie 2025.2

Alle vermelde prijzen zijn inclusief btw. Dit zijn adviesprijzen; neem contact op met uw lokale dealer voor de meest actuele prijsinformatie. Levering met kooiaap is € 150,- per levering, ongeacht het type tuinhuis. Prijzen gelden vanaf april 2025 tot een nieuwe versie van deze brochure verschijnt. Prijzen onder voorbehoud van wijzigingen en eventuele druk- of zetfouten. De maatvoering in de plattegrond is altijd leidend. Kleine verschillen met de in de tekst genoemde afmetingen zijn mogelijk.

WP44_ST_X_NC_N_XXX01 W44 uitzetraam 770x1140 mm onbehandeld*

WP44_ST_X_NC_N_XXX51 W44 uitzetraam 770x1140 mm behandeld bruin* € 314,- € 314,-

WP44_ST_X_NC_N_XXX52 W44 uitzetraam 770x1140 mm behandeld grafietgrijs* € 314,- € 314,-

WP50_HI_X_NC_N_XXX01 W50H dubbele deur 151x193,5 cm onbehandeld - vervanging van enkele deur W61H

€ 198,- € 198,-

WP50_HI_X_NC_N_XXX51 W50H dubbele deur 151x193,5 cm behandeld bruin - vervanging van enkele deur W61H € 229,- € 229,-

WP50_HI_X_NC_N_XXX52 W50H dubbele deur 151x193,5 cm behandeld grafietgrijs - vervanging van enkele deur W61H € 229,- € 229,-

WP50_HI_X_NC_N_XXX01 W50H dubbele deur 151x193,5 cm onbehandeld - vervanging van dubbele deur W60H € 83,- € 83,-

WP50_HI_X_NC_N_XXX51 W50H dubbele deur 151x193,5 cm behandeld bruin - vervanging van dubbele deur W60H € 96,- € 96,-

WP50_HI_X_NC_N_XXX52 W50H dubbele deur 151x193,5 cm behandeld grafietgrijs - vervanging van dubbele deur W60H € 96,- € 96,-

WI01_HI_L_XX_X_XXX01

WI01_HI_L_XX_X_XXX51

ID01H volhouten naar binnen draaiende deur (linksdr.) onbehandeld*

ID01H volhouten naar binnen draaiende deur (linksdr.) behandeld bruin*

WI01_HI_L_XX_X_XXX52 ID01H volhouten naar binnen draaiende deur (linksdr.) behandeld grafietgrijs*

WI01_HI_R_XX_X_XXX01 ID01H volhouten naar binnen draaiende deur (rechtsdr.) onbehandeld*

WI01_HI_R_XX_X_XXX51

ID01H volhouten naar binnen draaiende deur (rechtsdr.) behandeld bruin*

WI01_HI_R_XX_X_XXX52 ID01H volhouten naar binnen draaiende deur (rechtsdr.) behandeld grafietgrijs*

*Zelf inzagen: u kiest zelf de ideale plek voor uw raam en/of deur.

€ 400,- € 400,-

€ 461,- € 461,-

€ 461,- € 461,-

€ 400,- € 400,-

€ 461,- € 461,-

€ 461,- € 461,-

Artikelcode Omschrijving

AIRBL Ventilatierooster (1 set van 2, voor 1 zijde)

LSL28-SW-250UN Zijwand 250 cm tbv overkapping onbehandeld

LSL28-SW-250PB Zijwand 250 cm tbv overkapping keteldruk bruin

€ 22,- € 22,-

€ 220,-

€ 264,-

LSL28-SW-250PG Zijwand 250 cm tbv overkapping keteldruk grijs € 264,-

LSL28-SW-300UN Zijwand 300 cm tbv overkapping onbehandeld

€ 264,-

LSL28-SW-300PB Zijwand 300 cm tbv overkapping keteldruk bruin € 317,-

LSL28-SW-300PG Zijwand 300 cm tbv overkapping keteldruk grijs

LSL28-SW-400UN Zijwand 400 cm tbv overkapping onbehandeld

€ 317,-

€ 352,-

LSL28-SW-400PB Zijwand 400 cm tbv overkapping keteldruk bruin € 422,-

LSL28-SW-400PG Zijwand 400 cm tbv overkapping keteldruk grijs € 422,-

LSL44-SW-300UN Zijwand 300 cm tbv overkapping onbehandeld

€ 384,-

LSL44-SW-300PB Zijwand 300 cm tbv overkapping keteldruk bruin € 461,-

LSL44-SW-300PG Zijwand 300 cm tbv overkapping keteldruk grijs € 461,-

LSL44-SW-400UN Zijwand 400 cm tbv overkapping onbehandeld

LSL44-SW-400PB Zijwand 400 cm tbv overkapping keteldruk bruin

€ 512,-

€ 614,-

LSL44-SW-400PG Zijwand 400 cm tbv overkapping keteldruk grijs € 614,-

Artikelcode

Omschrijving

LSL28-FW-SIDE-250 Funderingsbalk hout KDI tbv 250 cm zijwand

LSL28-FP-SIDE-250 Funderingsbalk kunststof tbv 250 cm zijwand

€ 16,-

€ 43,-

LSL28-FW-SIDE-300 Funderingsbalk hout KDI tbv 300 cm zijwand € 20,-

LSL28-FP-SIDE-300 Funderingsbalk kunststof tbv 300 cm zijwand € 53,-

LSL28-FW-SIDE-400 Funderingsbalk hout KDI tbv 400 cm zijwand € 25,-

LSL28-FP-SIDE-400 Funderingsbalk kunststof tbv 400 cm zijwand € 67,-

LSL44-FW-SIDE-300 Funderingsbalk hout KDI tbv 300 cm zijwand € 20,-

LSL44-FP-SIDE-300 Funderingsbalk kunststof tbv 300 cm zijwand € 53,-

LSL44-FW-SIDE-400 Funderingsbalk hout KDI tbv 400 cm zijwand € 25,-

LSL44-FP-SIDE-400 Funderingsbalk kunststof tbv 400 cm zijwand

€ 67,-

Groenlo
Lochem
Raalte
Hattem

Ontdek de hele Lugarde Select collectie

Modern Prima Veranda

De Modern collectie van Lugarde Select staat voor strak design en slimme constructie. Deze tuinhuizen hebben een robuuste en eigentijdse uitstraling en zijn eenvoudig te monteren dankzij het modulaire systeem. De stevige 12x12 cm hoekpalen en het gebruik van teruggedroogd en gelamineerd hout zorgen voor een stabiele en duurzame constructie. Een moderne oplossing met oog voor detail.

De Prima collectie combineert verfijnd design met slimme techniek. Dankzij het gepatenteerde 3-in-1 hoekverbindingssysteem zijn er geen zichtbare schroeven of koppelstukken, wat zorgt voor een strak en afgewerkt uiterlijk. Beschikbaar in zowel rechthoekige als achthoekige modellen met een plat dak, zadeldak of piramidedak. Ideaal voor wie een uniek tuinhuis zoekt dat geschikt is als opslagruimte, hobbyruimte of werkplek.

De Veranda collectie biedt comfortabele en stijlvolle overkappingen voor het hele jaar door. Met de wanden zit u beschut tegen wind en regen. Verkrijgbaar in verschillende standaardmaten, zodat er altijd een model is dat bij uw tuin past. Het strakke ontwerp en de hoogwaardige afwerking geven uw buitenruimte een luxe uitstraling.

Neem contact op met uw officiële Lugarde-dealer voor details over afwerking, prijzen en levering.

Vind uw officiële Lugarde-dealer.

Lugarde.com

Alle leveranciers van ons hout zijn PEFC-gecertificeerd. Het is ook onze missie om onze producten volledig recyclebaar te leveren en het afvalhout en zaagsel te beperken. Daarnaast worden restmaterialen hergebruikt voor andere doeleinden.

Turn static files into dynamic content formats.

Create a flipbook
Issuu converts static files into: digital portfolios, online yearbooks, online catalogs, digital photo albums and more. Sign up and create your flipbook.