Arq.Int. Dulce Vanessa Ortega-Portafolio

Page 1


PORTAFOLIO PERSONAL ARQUITECTURA DE INTERIORES Y AMBIENTACIÓN

Dulce Vanessa Ortega García Egresada en arquitectura de interiores y ambientación

Perfil

Tengo capacidad analítica y deductiva, además de comprensión y visualización espacial.

Dentro de mis intereses profesionales están la representación grafica digital de los proyectos, diseño de proyectos y realización de presupuestos y maquetas, así mismo, me llama la atención el paisajismo, aparte de el cálculo y diseño de instalaciones.

Entre mis intereses personales se encuentran la fotografía y los idiomas.

Educación

∆ Egresada de la licenciatura en “Arquitectura de interiores y ambientación” por la Universidad Latinoamericana (ULA). Generación: 2019-2023

∆ Egresada de preparatoria por la preparatoria Justo Sierra. Generación: 2016-2019

Logros

∆ Ganadora de Expo empresa

Justo Sierra 2018 (Plantel Aragón)

*Evento que realizó en preparatoria Justo Sierra Aragón para fomentar el emprendimiento, trabajo en equipo, la responsabilidad social y la sustentabilidad

∆ Diplomas de aprovechamiento académico

Experiencia

∆ Prácticas profesionales

Universidad YMCA, bajo la supervisión de la Arq. Irma Elvira Romero González.

Las actividades que desempeñé fueron:

• Levantamiento arquitectónico y fotográfico del sitio

• Dibujo de los planos en sistema CAD

• Propuestas de diseño en sistema CAD

• Modelado 3D y renders

• Cotización y presupuesto

∆ Servicio social y pasantía en Nuev3 Arquitectura, bajo la supervisión de la Arq. Paula Citlali Cruz Cruz

Dentro de las actividades que desempeñe están:

• Diseño de Moodboards

• Diseño de mobiliario

• Diseño interior y exterior

• Dibujo de planos arquitectónicos y de detalle en sistema CAD

• Realización de planos y modelo en REVIT

• Realización de catálogos y presupuestos

• Modelado 3D y renders

Idiomas

∆ Español Nativo

∆ Inglés

Nivel avanzado, certificación de inglés SEP

Cursos

∆ Autoliderazgo y coaching

∆ ASUME, Superación por mi país

∆ Lengua de señas mexicanas(LSM) (Nivel Básico)

∆ Renders +Realistas con Ps + Lumion (Nivel avanzado)

∆ Renders + Realistas con Sketchup+Vray

∆ Revit (Nivel básico – intermedio)

Softwares

∆ Word

Power point

Excel

Photoshop

Ilustrator

Corel Draw

Sketchup

AutoCAD

Revit

Filmora X

Canva

Lumion

Cualidades

∆ Manejo de inteligencia emocional ∆ Buen desempeño en el trabajo en equipo ∆ Dedicación y determinación

Facilidad de aprendizaje

Respeto y empatía

Creatividad

Resolución de problemas Contacto

Correo: arq.int.vanessaortega@ outlook.com

WhatsApp o teléfono: (+52) 55-13-62-41-97

PROYECTOS

02 Villa Poniamore Diseño de espacios habitacionales

Renders

generados con SketchUp, planos hechos a mano, lámina hecha en PowerPoint

Ubicación del proyecto:

03 Estudio de arquitectura JG

Sistemas estructurales y presupuestos

Proyecto de uso mixto

(Despacho - Apartamento)

* Volver al menú *

Renders generados con SketchUp + Enscape, planos trabajados en LayOut, presupuesto elaborado en Excel

04 Oficinas Lego Group CDMX

Diseño de espacios habitacionales

Proyecto trabajado en AutoCAD

05 Nueva tienda Samsung DMX

Diseño de espacios comerciales

* Volver al menú *

*Recorrido exterior* *Recorrido interior*

Renders y recorridos generados con SketchUp + Enscape, planos trabajados en AutoCAD, Lámina hecha en CorelDRAW

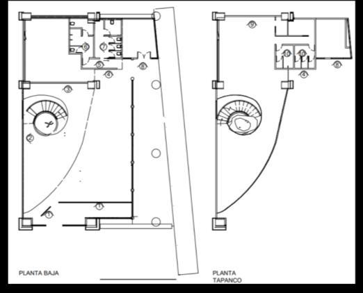
06 Casa OgOo Diseño de espacios habitacionales

MEMORIA DESCRIPTIVA

Proyecto: construcción de vivienda unifamiliar

Ubicación: Halcones # 142 Col. Lomas de Guadalupe, CDMX

Descripción:

El predio del presente corresponde a un inmueble con un área techada total de 90m2 distribuidos entre la planta baja y un primer piso, con la siguiente repartición:

• Planta baja: Vestíbulo, sala, comedor, cocina, sanitario, área de lavandería y las escaleras que llevan al primer piso. Tiene la entrada principal y una entrada lateral en la cocina. (45m2)

• Primer piso: Tiene un corredor que da accesos a las 2 habitaciones y al único baño completo en la propiedad. (45m2)

MATERIALES

En colaboración con la Arq. Ana Leticia Ortega Ordoñez

Renders generados con SketchUp + Enscape + PS, planos trabajados en AutoCAD * Volver al menú

07 Nuevo P.F. Changs

Diseño de restaurantes y bares

Proyecto de uso comercial (Restaurante - Bar)

En colaboración con la Arq. Ana Leticia Ortega Ordoñez

* Volver al menú *

Renders generados con SketchUp + Enscape, planos trabajados en AutoCAD, Presentación en Canva

Propuesta de muebles diseñados para zona infantil

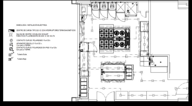
08 Remodelación Universidad YMCA

Entrada renovada

Remodelación por áreas de la Universidad YMCA

Ubicación: Lago Alberto 337, Anáhuac I Secc, Miguel Hidalgo, 11320 Ciudad de México, CDMX

Zonas a remodelar en la fase 1:

• Entrada

• Sala de espera y vigilancia

• Relaciones públicas

• Atención al cliente

Planos
Zona de atención al cliente
Zona de atención al cliente
Render de la entrada
Sala de esperavigilancia
Vista exteriorzona de
Pasillo(muro de carreras)
Zona de atención al cliente

atención al cliente

Proyecto

Bajo la supervisión de la Arq. Irma Romero

* Volver al menú *

de espera - vigilancia

exterior – zona de relaciones públicas

Zona de relaciones públicas

exterior - zona de relaciones públicas

Vista exterior – zona de relaciones públicas

Zona de relaciones públicas

Zona de relaciones públicas

Renders generados con SketchUp + Enscape + PS, planos trabajados en AutoCAD

Sala
Vista
Vista

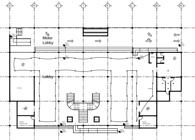
09 Hotel 5 estrellas, Ku’tu Ka’ta Maruata

Diseño hotelero

En colaboración con la Arq. Ana Leticia Ortega Ordoñez

* Volver al menú * Proyecto de uso comercial (Hotel)

Renders generados con SketchUp + Enscape + PS, planos y modelo generados en Revit. Planos de acabados e instalaciones trabajados en AutoCAD. Investigación, catálogos, diagramas generados en Canva. Láminas de presentación generadas en Corel Draw

10 Centro comercial y de edificios de apartamentos

Proyecto ejecutivo

comercial

comercial

comercial

Centro
Vivienda
Centro
Vivienda
Centro
Vivienda

En colaboración con la Arq. Ana Leticia Ortega Ordoñez

* Volver al menú * Proyecto de uso mixto (Centro comercial - Departamentos)

Vivienda Departamento 82.50 m2

Vivienda Departamento 82.50 m2

Vivienda Departamento 82.50 m2

Renders generados con SketchUp + Enscape, planos y modelo generados en Revit. Planos de acabados trabajados en AutoCAD. Investigación, catálogos, moodboard, cardboard y diagramas generados en PowerPoint. Láminas de presentación generadas en Corel Draw (Éste proyecto fue trabajado como tesina en la materia de proyecto ejecutivo)

Planos de la primera etapa Vivienda

Súper mercado)

Proyecto de uso comercial (Tienda -

Bajo la supervisión de la Arq. Paula Cruz

* Volver al menú *

Planos trabajados en AutoCAD, modelo hecho en SketchUp, moodboards realizados en Canva

Bajo la supervisión de la Arq. Paula Cruz

Planos trabajados en SketchUp+AutoCAD, moodboards en Canva, catálogo en PowerPoint y presupuesto en Excel

13

Cabaña Villa del Carbón

Bajo la supervisión de la Arq. Paula Cruz

Planos y modelo 3D trabajados en Revit , moodboards en Canva, catálogo con PowerPoint

MAQUETAS & REPRESENTACIÓN GRÁFICA

16 Casa 227 Maquetas

Maquetas

Fachada posterior
Fachada Frontal
Sala
Cocina
Área de servicio
Modelo

18 Pabellón

Geometría descriptiva

Planos hechos a mano, maqueta hecha con papel batería

*Recorrido exterior generado con Lumion *

Lumion + Photoshop

Entrada, fachada principal
Zona de convivencia exterior, Asador
Fachada posterior, jardín
Balcón, Rec. Principal
Asador
Asador Asador
Rec. Principal

Turn static files into dynamic content formats.

Create a flipbook
Issuu converts static files into: digital portfolios, online yearbooks, online catalogs, digital photo albums and more. Sign up and create your flipbook.