V A N E S S A
M I L L I A N

As an interior design student, I focus on examining the impact of spaces on individuals’ well-being My aim is to design spaces that are both functional and attractive, leading to a better quality of life for those who use them I take a dedicated approach to problem-solving and clientcentered focus, while still paying attention to detail
2021- Current
Georgian College | Barrie, ON
Honour Student
Relevant Courses Include: Design Communication, Building Technologies, and Interior Design Studio C
Goderich, ON 519-441-2302
200485139@student georgianc on ca
AutoCAD
Sketch-Up
Enscape
Revit
Hand Drafting E
Professional Attitude
Organized and Dependable
Detail Oriented
Ability to Work Well in a Team
DEAN’S LIST
2021- Current
Georgian College | Barrie, ON
Received a GPA of 80% or higher throughout the academic semester
EXCELLENT IN DESIGN SCHOLARSHIP
RECIPIENT
2023
Georgian College | Barrie, ON 2nd Place Award
NAPOLEON DESIGN COMPETITION
2023
Georgian College | Barrie, ON 1st Place Award
2022- Current INTERIOR DESIGN STUDENT ASSISTANT
Georgian College | Barrie, ON
Managed and organized a diverse library collection of materials, samples, and resources, to revamp accessibility and streamline resource retrieval for the interior design department
Collaborated with colleagues to produce research, and plan events for interior design department initiatives
2022-2023
GARDEN CENTER ASSOCIATE
Canadian Tire | Goderich, ON
Provided advice and assistance to customers on plant selection, care, and maintenance, resulting in increased satisfaction and repeat business
Performed set-up and teardown of displays and products on the floor
Provided exceptional customer service by engaging with customers, addressing inquiries, and assisting with product selection
Goderich Skating Club | Goderich, ON
Taught fundamental ice-skating skills and techniques to skaters of various age groups and skill levels in accordance with Skate Canada CanSkate program guidelines
Organized and facilitated on-ice activities, games, and exercises to engage and motivate young skaters
Collaborated with colleagues to plan and execute CanSkate events, and performances, ensuring their success and a positive experience for participants
Interiors by Sarah Langtry | Goderich, ON
Sourced products and materials from online vendors to secure a wide range of high-quality products and materials essential for projects
Developed colour palettes, and mood boards for client projects to serve as visual representations to communicate the client's vision and preferences
Collaborated and consulted with a diverse team, including interior designers, carpenters, retailers, and suppliers, on various projects
M y n a m e i s V a n e s s a M i l l i a n a n d I a m c u r r e n t l y a t h i r d - y e a r s t u d e n t i n t h e H o n o u r s B a c h e l o r o f I n t e r i o r D e s i g n p r o g r a m a t G e o r g i a n C o l l e g e M y f o c u s a s a n i n t e r i o r d e s i g n s t u d e n t i s t o e x a m i n e t h e i m p a c t o f s p a c e s o n i n d i v i d u a l s ’ w e l lb e i n g I a i m t o d e s i g n b o t h f u n c t i o n a l a n d a t t r a c t i v e s p a c e s , l e a d i n g t o a b e t t e r q u a l i t y o f l i f e f o r t h o s e w h o u s e t h e m I t a k e a d e d i c a t e d a p p r o a c h t o p r o b l e ms o l v i n g a n d c l i e n t - c e n t e r e d f o c u s w h i l e s t i l l p a y i n g a t t e n t i o n t o d e t a i l .
M y d e s i g n e x p e r i e n c e i n c l u d e s r e t a i l d e s i g n , r e s i d e n t i a l d e s i g n , h o s p i t a l i t y d e s i g n , c o r p o r a t e o f f i c e d e s i g n , a n d w e l l a s o b j e c t d e s i g n , a n d m o d e l m a k i n g
M y t i m e a t G e o r g i a n C o l l e g e h a s b e e n t r a n s f o r m a t i v e , b r o a d e n i n g m y p e r s p e c t i v e , n u r t u r i n g m y c u r i o s i t y , a n d g u i d i n g m e t o w a r d d i s c o v e r i n g m y t r u e p u r p o s e
I a m l o o k i n g f o r w a r d t o f u r t h e r i n g m y k n o w l e d g e a n d s k i l l s a s I c o n t i n u e t o g r o w a n d t h r i v e i n i n t e r i o r d e s i g n
C O N C E P T
“ A r e p r e s e n t a t i v e o f t h e M e d i t e r r a n e a n c u l t u r e , w h e r e g a t h e r i n g , s o c i a l i z i n g , a n d c o m i n g t o g e t h e r h a p p e n s b e s t ”
M e s o i s d e s i g n e d t o b e a p l a c e w h e r e f r i e n d s a n d f a m i l y c a n g a t h e r , s o c i a l i z e , a n d c o m e t o g e t h e r T h e p r i m a r y f u n c t i o n o f t h e d e s i g n i s t o p r o v i d e r e l a x a t i o n a n d c o m f o r t . E a c h s p a c e w i t h i n t h e r e s t a u r a n t i s t o b e p l a n n e d o u t w i t h c o n v e n i e n c e t o t h e g u e s t s a n d t h e s t a f f t o e n s u r e e a s e M e s o r e s t a u r a n t w i l l b e a p l a c e t o g e t t o g e t h e r a n d e n j o y l a u g h s o v e r g r e a t d r i n k s a n d d i n i n g
I N T E R I O R E L E V A T I O N S
R E N D E R E D F L O O R P L A N
I N T E R I O R E L E V A T I O N : N O R T H
I N T E R I O R E L E V A T I O
I
F U R N I T U R E S E L E C T I O N
B y b r i n g i n g i n a d d i t i o n a l d e s i g n e l e m e n t s a n d u t i l i z i n g a M e d i t e r r a n e a n c o a s t a l t h e m e , a c o m f o r t a b l e y e t e n g a g i n g a m b i a n c e i s c r e a t e d . T h e d e s i g n i n t e n t i s n o t t o c o p y t h e M e d i t e r r a n e a n l i f e s t y l e b u t t o d r a w r e f e r e n c e t o t h e c u l t u r e a n d h i s t o r y .
C O N C E P T
E m p y r e a n i s a d u a l - s i d e d d e s i g n f e a t u r i n g i n t e g r a t e d s t o r a g e a n d m e d i a t o m e e t t h e c u r r e n t d e m a n d s o f o p e n - c o n c e p t l i v i n g . T h e d e s i g n a c t s a s a s p a c e d i v i d e r t h a t d e f i n e s m o m e n t s w i t h i n t h e o p e n - f l o w p l a n s w h i l e m a i n t a i n i n g s i g h t l i n e s . T h e u n i t i t s e l f o f f e r s a m p l e s t o r a g e t h r o u g h t h e u s e o f t w o d e e p d r a w e r s l o c a t e d a t t h e b a s e o f t h e m o d e l H i d d e n r e c e s s e d h a n d l e s w i t h i n t h e w o o d s l a t c l a d d i n g m a i n t a i n t h e s i m p l e , c l e a n , s l e e k d e s i g n E m p y r e a n e m b o d i e s T h e b l a c k p o r c e l a i n s l a b w i t h d e l i c a t e w h i t e v e i n i n g a d d s a n e l e m e n t o f d r a m a t o t h e u n i t , d r a w i n g t h e e y e t o w a r d s i t . T h e m a t t e a l u m i n u m f i r e b o x h a s b e e n c r e a t e d t o b l e n d i n w i t h t h e s u r r o u n d i n g e l e m e n t s o f t h e u n i t f o r c o n s i s t e n c y , a l l o w i n g t h e w o o d b o t t o m t o s t a n d o u t o n i t s o w n
S U S T A I N A B I L I T Y F E A T U R E S
L o w e r B T U o u t p u t w i t h L E D i n t e g r a t i o n i n f i r e b o x b l a c k s t o n e m e d i a
M D F b a s e m a t e r i a l ( r e c y c l a b l e / r e c y c l e d w o o d f i b e r s )
P o r c e l a i n i s d u r a b l e a n d h e a t r e s i s t a n t
A l u m i n u m i s r e c y c l a b l e
C O N C E P T
T h e 1 9 7 2 V o l k s w a g e n v a n c o n v e r s i o n p r o j e c t s e a m l e s s l y b l e n d s t h e i c o n i c a e s t h e t i c s o f t h e 7 0 s w i t h c u t t i n g - e d g e e l e c t r i c v e h i c l e t e c h n o l o g y . T h e d e s i g n ' s g o a l i s t o s h o w c a s e t h e A u t o m o t i v e S c h o o l o f B u s i n e s s ( A B S C ) a n d G e o r g i a n C o l l e g e b y t r a n s f o r m i n g t h e v a n i n t o a m o b i l e p h o t o b o o t h , p r o v i d i n g a v i b r a n t a n d i n t e r a c t i v e e x p e r i e n c e w h i l e h i g h l i g h t i n g t h e i n s t i t u t i o n ’ s c o m m i t m e n t t o i n n o v a t i o n a n d s u s t a i n a b i l i t y .
DEMIN BENCH MILLWORK CABIENT
R E N D E R E D F L O O R P L A N
UPHOLSTERY FRONT SEATS
C O N C E P T
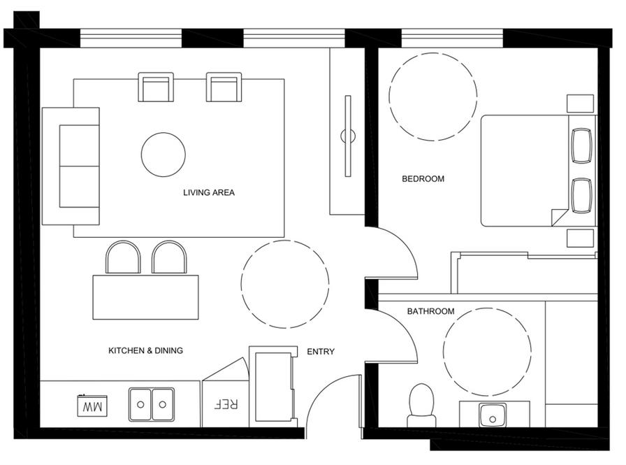
A t A l o f t S u i t e s , o u r c o r e m i s s i o n i s t o f o s t e r c o n n e c t i o n s a m o n g t r a v e l e r s t h r o u g h i n n o v a t i v e a n d h e a r t f e l t e x p e r i e n c e s L o c a t e d i n D o w n t o w n T o r o n t o , a m i d s t b u s t l i n g m a r k e t s a n d c a p t i v a t i n g v i e w s , w e o f f e r a r e l i a b l e h a v e n f o r g u e s t s s e e k i n g c o n v e n i e n c e a f t e r e x p l o r i n g t h e c i t y ' s a t t r a c t i o n s . W e a r e c o m m i t t e d t o d e l i v e r i n g r e f i n e d l u x u r y w r a p p e d i n c o m f o r t a n d a t t e n t i v e s e r v i c e W e c r e a t e a n i n c l u s i v e , w e l c o m i n g e n v i r o n m e n t t h a t i n v i t e s g u e s t s t o s a v o r t h e i r s t a y .
F L O O R P L A N
P R O G R A M R E Q U I R E M E N T S
1 A c c e s s i b l e g u e s t r o o m , w a s h r o o m , a n d k i t c h e n e t t e
2 S l e e p i n g f o r f o u r , a t l e a s t o n e s e p a r a t e s l e e p i n g r o o m a n d 1 c o n v e r t i b l e s i t t i n g r o o m .
3 M a x i m i z e v i e w s o f t h e e x t e r i o r c o u r t y a r d .
4 S o l u t i o n f o r s t o r i n g l u g g a g e , f o l d e d
c l o t h i n g , a n d h a n g i n g c l o t h i n g .
5 D e s k a r e a f o r w o r k i n g t r a v e l e r s
A S
C O N C E P T
“ U n l e a s h i n g t h e p o w e r o f c r e a t i v i t y t h r o u g h i n n o v a t i v e m e d i a p r o d u c t i o n ”
W e a r e d e d i c a t e d t o p r o v i d i n g o u r c l i e n t s w i t h a n i m m e r s i v e e x p e r i e n c e F o c u s i n g o n c r e a t i n g c o m p e l l i n g s t o r i e s a n d c a p t i v a t i n g v i s u a l s , t o e n t e r t a i n , i n s p i r e , i n f o r m , a n d l e a v e a l a s t i n g i m p a c t W i t h a s t r o n g c o m m i t m e n t t o i n n o v a t i o n , q u a l i t y , a n d s t o r y t e l l i n g , w e s t r i v e t o e l e v a t e b r a n d s , a m p l i f y v o i c e s , a n d c r e a t e e n g a g i n g c o n t e n t t h a t r e s o n a t e s w i t h a u d i e n c e s w o r l d w i d e . W e b e l i e v e i n t h e p o w e r o f m e d i a t o c o n v e y i d e a s , e v o k e e m o t i o n s , a n d d r i v e c h a n g e
.
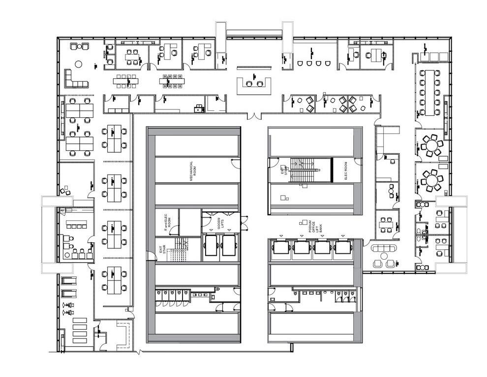
F L O O R P L A N
D E S I G N C O N S I D E R A T I O N S
W e f o c u s e d o n c o n n e c t i n g h u m a n c o m f o r t w i t h t h e b u i l t e n v i r o n m e n t , a i m i n g f o r s p a c e s t h a t p r o m o t e p h y s i c a l a n d e m o t i o n a l w e l l - b e i n g T h i s i s a c h i e v e d t h r o u g h c o n s i d e r a t i o n s l i k e a c o u s t i c s , t h e r m a l c o m f o r t , a n d i n d o o r a i r q u a l i t y i n d e s i g n