

![]()


Vcr interiordesign@gmail com
+52 81 1911- 4527
Monterrey N.L, México.
Universidad de Monterrey - Nuevo León, Mx.
Bachelor's Degree in Interior Design Four-year professional degree program
Jr Interior Designer - PCG Design; Monterrey, N L
FF&E Budgeting and management, High-end residential and hospitality projects Furniture knowledge, Moodboards and creative presentations technical drawings.
I am a Junior Interior Designer specializing in high-end residential hospitality and retai projects with a strong background in FF&E furniture se ection, technical drawings and project management At PCG Design, a firm recognized for its luxury interiors I contribute to the design and execution of bespoke spaces, ensuring a seamless blend of aesthetics and functionality.
From concept to comp etion, I create detailed technical drawings curate moodboards, and oversee FF&E procurement ensuring every element aligns with the project vision. My expertise in luxury residential and hospitality furniture brands al ows me to craft sophisticated, tailored interiors that elevate the client experience.
Spanish English
Native Advanced
Jan 2024 - Present
Interior Design Internship - MF Architecture; Monterrey, N.L
2D and 3D design drawings using AutoCAD and SketchUp Source and select materials, finishes, and furniture
Jan 2023- July 2023
Liv Hospitality Design Awards 2023 - Switzerland
"A Home Away from Home" is an innovative project that has won the prestigious award in the Living Space and Co-Living Space category
Sketchup
Lumion
Autocad Rhino Illustrator Photoshop Twinmotion Blender Canva Office Procreate 3D’s Max
Revit InDesign
Dec 2023
Type: Mixed-used development
Location: Puerto Vallarta, Jalisco Mx
Year: 2024

Kiráh is a thoughtfully designed mixed-use development along the Pacif c coast in Puerto Vallarta, seamlessly integrating luxury iving with the surrounding natural beauty
The primary challenge was to capture Kiráh’s essence through a ref ned selection of furn shings and finishes ensuring that each space embodies sophistication while maintaining a seam ess connection to its coastal surroundings
My role invo ved curat ng high-end furniture from luxury brands selecting premium lighting, materials and finishes and defining technical details such as ceiling designs, wall treatments, and bespoke elements to elevate the overall ambiance














































Yvonne sconce - Palecek
2 Wal Covering Flor m Industr al vory porce a n
General Carpentry
Rattan
5 Sant’Agostino Tetris Blu Matte porcelain ti e



E ba Sconce - Astro L ghting
8.Sant’Agostino
9 Sant’Agostino





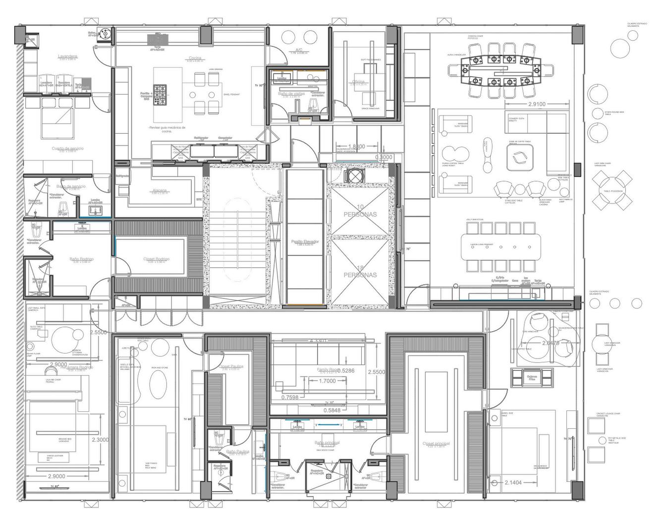
Type High end residential project
Location Monterrey N L Mx
Year 2024
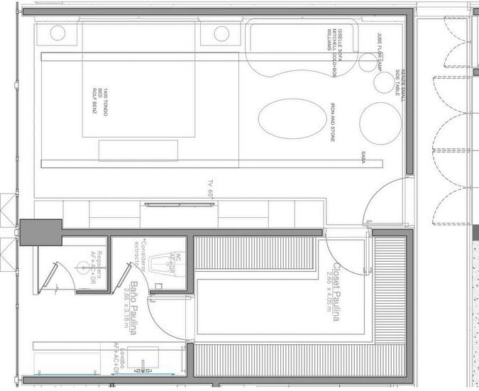
FG Apartment was designed as a refined and artistic living space where high-end furniture, bespoke sculptures, and statement artworks come together to create an elegant and immersive experience The client envisioned a home that fe t like a private gallery, blending exc usivity with sophistication
To achieve this we meticulously curated FF&E, selecting pieces from renowned luxury brands that complemented the client's art co ection Every detail from custom upholstery and scu ptural lighting to handcrafted accessories and statement furn ture was chosen to enhance the visual narrat ve of the space



























































1 Nye ta pendant - Ke ly Wearst er
2 Park s de nightstand - Modloft
3 Jube floor amp - V stosi
4 Gise e sofa - MGBW
5. Iron and stone tab e - Global Views
6. Keta reading amp - Astrolighting
7. Chanse sofa - Saba Ita a
8. Custom made bench - PCG Design
9. Kenz e small s de table - RH

















Type Commercial
Location Monterrey N L Mx
Year 2023
Bolt Studio is a creative marketing agency that sought a comp ete nterior transformation to align their workspace w th their brand ethos: dynamic, insp ring and future-focused The project involved the full refurbishment of their studio, including interior f nishes, custom furn ture design, lighting and spatial planning.
My role encompassed the full interior design scope from conceptual deve opment to the detailed specification of finishes flooring wall treatments, and bespoke joinery The result is a balanced contemporary space that reflects the studio’s creative energy wh le offering long-term design relevance




















