Suarez_Suarez

Page 1


VICTOR SUAREZ

Skills and software

CAD Software

AutoDesk; Revit

Fusion

AutoCad

Rhino Sketchup

(786) 580-1199

vsuar072@fiu.edu

Highly motivated and skilled architecture student eager to enter the field, leveraging a strong foundation in architectural design and project management principles. Passionate about applying acquired knowledge and skills to drive project success, collaborate effectively with diverse teams, andestablish strong stakeholder relationships. Committed to continuous learning, embracing challenges, and contributing to organizational growth and excellence in the built environment.

Design Software

Adobe; Indesign

Photoshop

Illustrator

Microsoft suit

Render Software

Lumion

Twinmotion

Enscape D5

Skilled in team collaboration, leadership, and stakeholder management, with a strong ability to balance schedules through effective time management and prioritization. Bilingual in Spanish and English, with excellent communication, critical thinking, and attention to detail

Education

JULY 2021

ASSOCIATE DEGREE ON ARCHITECTURE,

MIAMI DADE COLLEGE

I graduated with an associate degree with a GPA of 3.63, consistently performing as one of the top students in my class and recognized for my dedication and hard work. My hard work and determination led me to be accepted into the master’s accelerated program at FIU.

AUGUST 2022/2025

ARCHITECTURE (M.ARCH),

FLORIDA INTERNATIONAL UNIVERSITY

I am currently in the second year of my accelerated Master’s program in architecture, maintaining a 3.77 GPA. As a highly motivated individual, I am eager to gain the necessary experience for a successful future in the field.

Experience

JULY 2016 – NOVEMBER 2019

MAINTENANCE TECHNICIAN, CHARTER SCHOOLS USA

In my previous role, I was responsible for stocking and inventory control, monitoring the building’s condition for minor repairs, and ensuring the building was maintained and cleaned to a high standard. Additionally, I was available on call all day to respond to emergencies and staff requests, and I was responsible for opening and closing the facility each day. Overall, my role required a high level of attention to detail, strong communication skills, and the ability to respond quickly and effectively to unexpected situations.

JANUARY

2017 – JULY 2018

NIGHT CREW SUPERVISOR, VAZZA CLEANING

As a manager in my previous role, I was responsible for overseeing the daily tasks and duties of the team. This involved ensuring that everyone had the necessary equipment and followed safety procedures to complete their work. Additionally, I was responsible for training new employees and managing the team’s hours. Overall, my role required strong leadership and communication skills to ensure that the team was able to work effectively and efficiently.

NOVEMBER

2019 – CURRENT

FLOOR TECHNICIAN, NICKLAUS CHILDREN’S HOSPITAL

My primary duties involved maintaining and cleaning various types of flooring. I was responsible for identifying the appropriate cleaning method for each type of flooring, operating cleaning equipment, and applying cleaning solutions and treatments to protect and maintain the floors. Additionally, I inspected floors for damage and reported any issues to maintenance or management, maintained cleaning equipment, and followed safety procedures to ensure a safe work environment.

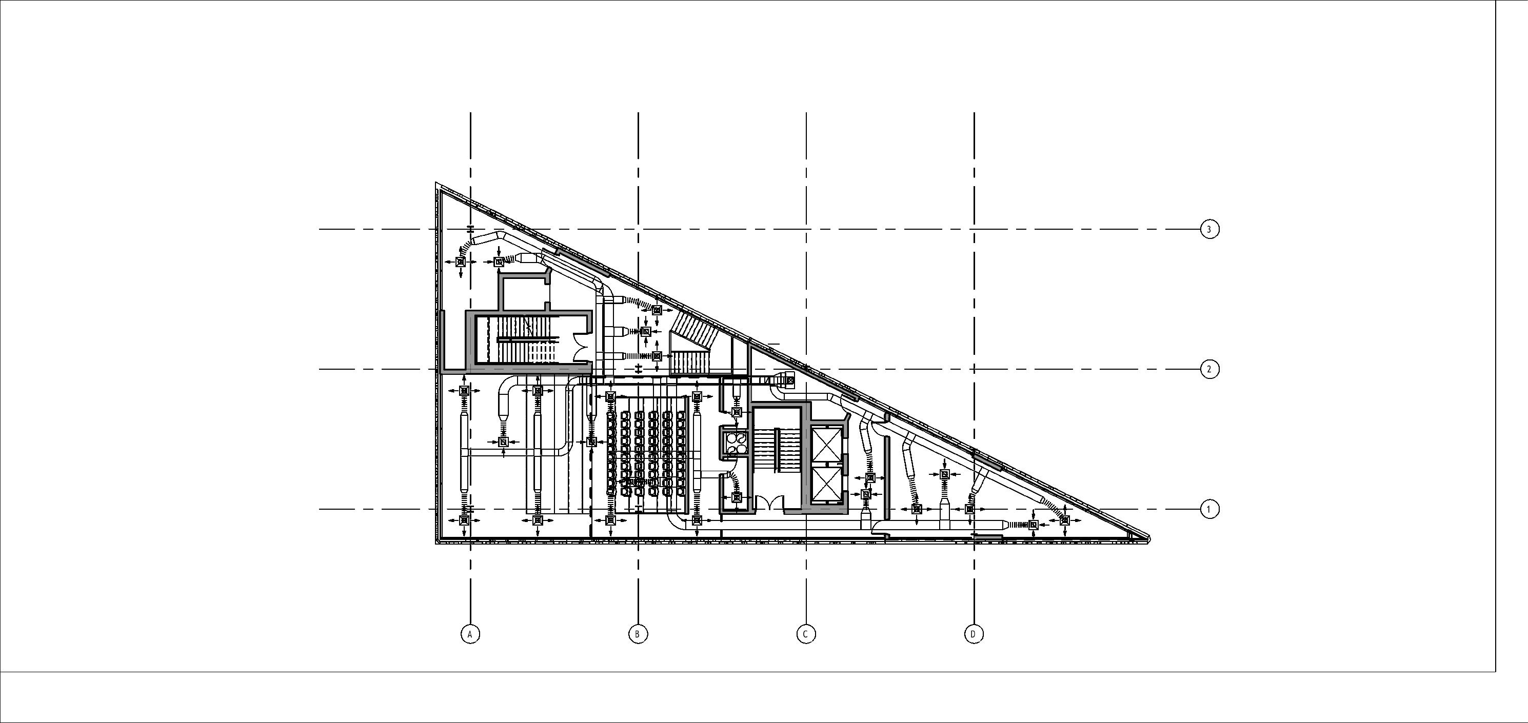
01. INTEGRATED COMPRENHENSIVE

DESIGN

The project, located in New York City’s West Harlem District 9, is a hybrid facility combining advanced HVAC infrastructure with a vibrant university cultural center. It features a main auditorium, performance spaces, a digital archives library, classrooms, exhibition areas, and a retail/coffee shop, alongside essential support spaces like storage, public bathrooms, and circulation areas. The HVAC components include cooling towers, chillers, mechanical and electrical closets, loading zones, and service elevators, seamlessly integrated with fire-rated stairs and elevators for safety. This facility is designed to foster cultural engagement,

Software used on this project;

Revit Rhino 8
-25'-
-10'-
0'0" M-L1
Anchore Bolt

02. M LINE

Located in Miami, Florida, M-Line is a mixed-use development de signed to provide a blend of affordable and market-rate housing while fostering community and connectivity. The ground floor features retail spaces to attract activity, leveraging its proximity to the Underline—a key public connection to adjacent buildings and the city. The project integrates a series of green areas and parks within the building, promoting natural ventilation, enhanced illumination, and offering residents open spaces for recreation. M-Line prioritizes a sense of openness and community, making it a vital addition to the urban fabric.

Sun exposure
Inside illumination
Distribution of space
Making up the space
Dadelan north - 13 min walk South miami - 21 min walk
SouthWest facade

03-A.

Savannah, GA

Located in Savannah, Georgia, “The BookCase House” reimagines traditional design by using the bookcase as the central organizing element. Books transform the architecture, defining rooms and living spaces while blending functionality with aesthetic appeal. This innovative design creates a harmonious relationship between the inhabitants, their environment, and their love for literature.

Ground floor
Second floor

03-B.

The Stacked Books Building is inspired by the simple yet powerful idea of stacking books, with each volume representing a unique space in the building. The design showcases a grid system that emerges from the stacking concept, which helps to organize and connect the different areas within the structure. The building’s exterior highlights the special bond between people and books, similar to how we connect with stories and ideas when we read. This easy-to-understand design concept brings the beauty of books and their connection to people to life in a modern, visually appealing structure. Design 6 -

Savannah, GA

North elevation

Ground floor West elevation

JONES STREET

Second floor

JONES STREET

Third floor

JONES STREET

03-A Details

Savannah, GA

ROOF FLASHING

ROOFING MEMBRANE OVER TAPERED INSULATION

ROOF BEAM 1’6 SPACING

INSIDE ROOF INSULATION

DRAINAGE SYSTEM

WALL INSULATION

BRICK WALL 4” BY 8”

DRYWALL

WINDOW FRAME

WINDOW GLASS 2/3”

WINDOW FRAME + FLASHING

WOOD FLOOR OVER INSULATION COAT

HVAC

LIGHTING

CLOSED CELL HIGH DENS. SPRY FOAM INSUL.

DOOR FRAME CONNECTION

7’ TALL DOOR

WOOD FLOOR OVER INSULATION COAT

CONCRETE SLAB

WATERPROOFING FUNDATION DRAINAGE

REBAR

SOIL

SECTION 3/4”=1’-0”

PARTIAL ELEVATION 3/4”=1’-0”

PARTIAL PLAN

3/4”=1’-0”

Design

04. NEURO NEXUS

My project draws inspiration from the dynamic nature of neural networks, where interconnected neurons communicate through adaptable synaptic connections. This adaptability, known as neuroplasticity, enables learning and evolution in response to new experiences. Reflecting this concept in architecture, I employ a system of interconnected nodes and links, designed through parametric methods to mirror the complexity and fluidity of neural networks. The intention is to create a physical representation of these intricate connections, translating the essence of neural adaptability into architectural form.

Neuron cellbody

Synapctic transmission

Common areas vs alley (site)

Location

Interaction points

Network development

Grasshopper code to simulate and reinforce the neural network concept, applied to the boundaries of the bridge and its connection points.

Turn static files into dynamic content formats.

Create a flipbook
Issuu converts static files into: digital portfolios, online yearbooks, online catalogs, digital photo albums and more. Sign up and create your flipbook.
Suarez_Suarez by Victor Andres Suarez - Issuu