Portafolio Valeria Granados

Page 1

METZLI V. GRANADOS T.

P O R T A F O L I O

5 9 15 23 27

Concurso escuela “Kafountine School of the Young”

Tremain Concurso Interno Residencial Zenit

Conjunto Residencial Biosfera

Remodelación Cocina

Indice
5

Theprincipaldesignapproachfor “KafountineSchoolfortheYoung” wasfor thebuildingstoblendinwiththelandscape. Theprojecttakesintoconsiderationthe solarorientationandventilationinorderto createcomfortablespaces,the layout wrapsaroundalltheexistingvegetation on-site.Thedesignismodestandfun,there isaseparationbetweenclassroomscreating pathswherechildrencanplayandwander.

Concurso Escuela “Kafountine School for the Young”

Kafountine, Senegal

Kafountine es una escuela diseñada pensada principalmente en la manera en la que el proyecto convive con el paisaje existente en Senegal. El proyecto toma en cuenta la orientación solar y la ventilación, con la intención de generar espacios térmicos. El programa y la zonificación respeta la vegetación existente del sitio. El diseño es sencillo y divertido, creando caminos entre salones para que los alumnos puedanjugareinteractuar.

6

Footprint / Planta ambientada

Design phases/ Fases diseño

Section/ Corte

7

Renders

Construction phases/ Fases construcción

Explode model classroom type/ Modelo salón tipo Solar study/ Estudio solar
1st phase 1er fase 2nd phase 2da fase 3rd phase 3er fase 4th phase 4ta fase 5th phase 5ta fase
8
9

Rendersforaninternalcompetitionin Tremain,usingthefurniturelinesthatthe companyhadinexistence.Thislineswere usedinordertoproposeanddesigninterior spaces,mostofitusedinoffices.The companymanagedfromdeskstoarmchairs.

Tremain Concurso Interno

Renders realizados para concurso interno de Tremain, utilizando las líneas de mobiliario que tenía en existencia la empresa. Mobiliario que se utilizaba para proponer y diseñar espacios, en su mayor parte oficinas. Tremain contaba con líneas queibandesdeescritorioshastasillones.

10
Collaborative area renders / Renders Area colaborativa 11
Collaborative area renders / Renders Area colaborativa
12
Renders Cafeteria
Renders Cafeteria 13
Reception Render/ Render Recepción
14
Meeting Room Render / Render Sala de Juntas
15

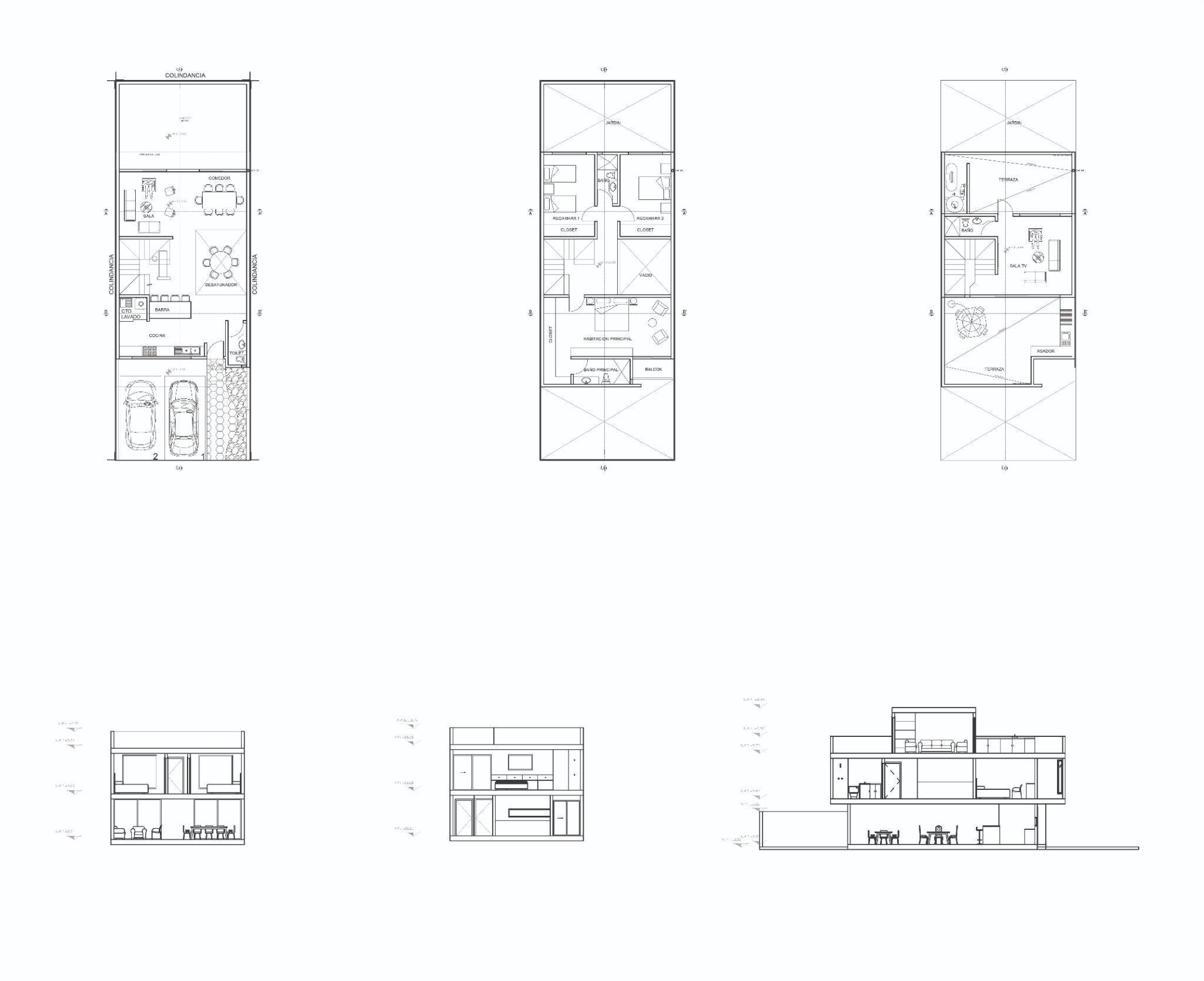
Designof3neighborhouses,eachonewith adifferentinteriordesignbutmaintaining thesamefacadedesigninorderto harmonizewiththeexistinghouses.Each houseisdesignedonaterrainof180m2, them2ofconstructiongoesfrom243.78, 247.79andthelargest251.91.The architecturalprogramhas1principalroom, 2secondaryrooms,thekitchen,laundry room,andthepossibilityofbuildinga terraceonthelastfloorwherethereisalso atvroom.

Residencial Zenit

Zenit, Altos Juriquilla, Queretaro.

Diseño de 3 casas vecinas, los diseños son diferentes en el interior, tratando de mantener el mismo diseño en fachada para armonizar con las casas ya existentes. Cada casa está diseñada en un terreno de 180 m2, los m2 de construcción de las casas son de 243.78 la más chica, 247.79 y 251.91 la más grande. Los proyectos cuentan con 1 habitación principal y 2 secundarias, cocina, cuarto de lavado y con la posibilidad de habilitar una terraza en el último piso en el que se encuentra también un cuarto de televisión.

16
17
18
19
20
21
22
23

Thedesignofaverticalresidentialcomplex onaterrainof9907.39m2,withatotalof 21buildingsandatotalof63apartments with117parkingspaces.Thereareyards betweeneachbuildingandgardensatthe rearofthetowers,thisgiveusatotalof 3319.96m2ofgreenarea.

Conjunto Residencial Biosfera Queretaro.

Se diseñó un conjunto residencial vertical, en un terreno de 9907.39 m2, con un total de 21 edificios, un total de 63 departamentos y 117 lugares de estacionamiento. Existen patios entre cada edificio y jardines en la parte trasera de la torre, dándonos un total de 3119.96 m2 de áreaverde.

24
Polygonal Distribution / Distribución en la Poligonal
25
Key Footprint / Planta tipo
Exterior Render/ Render Exterior 26
27

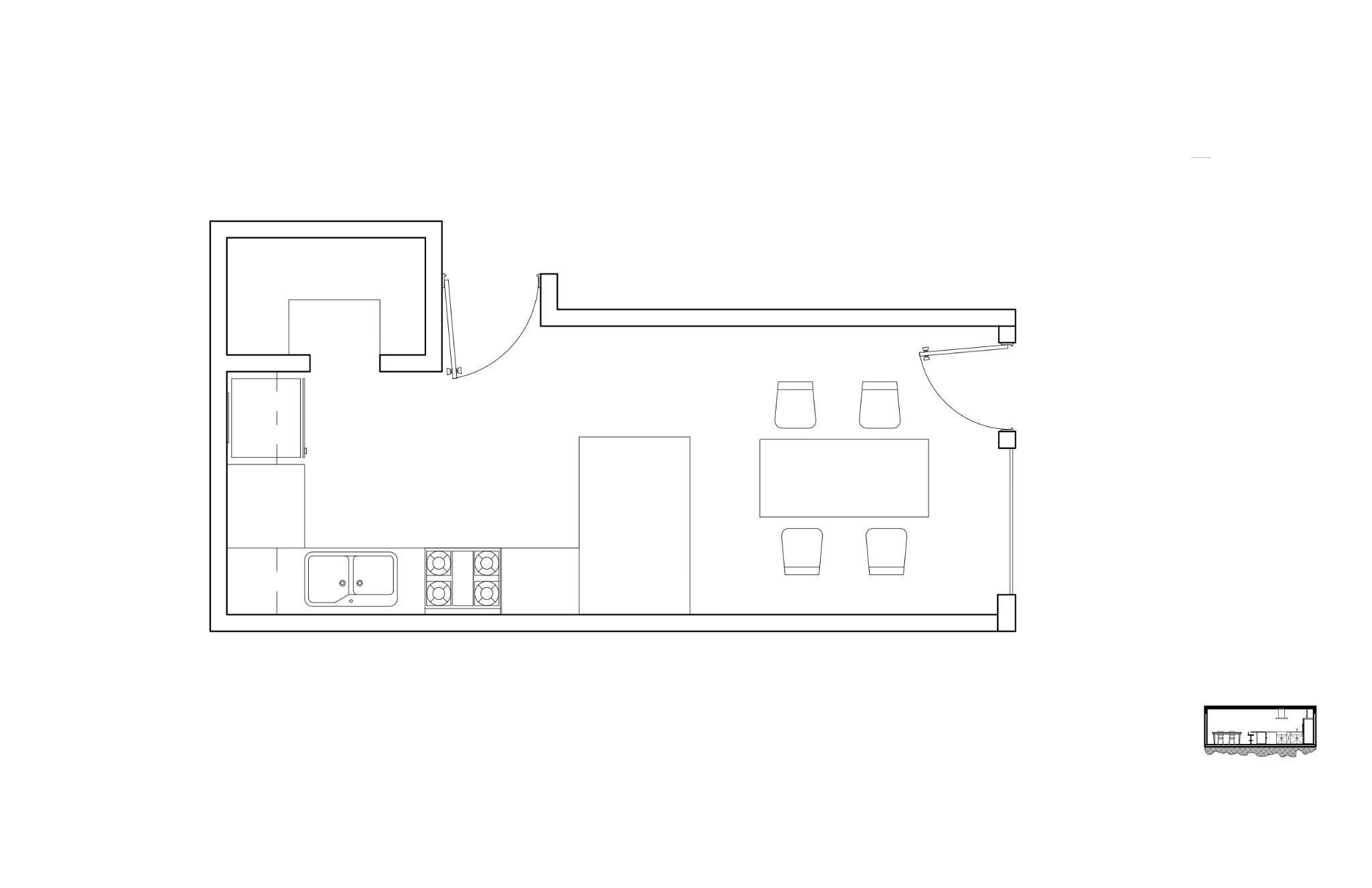
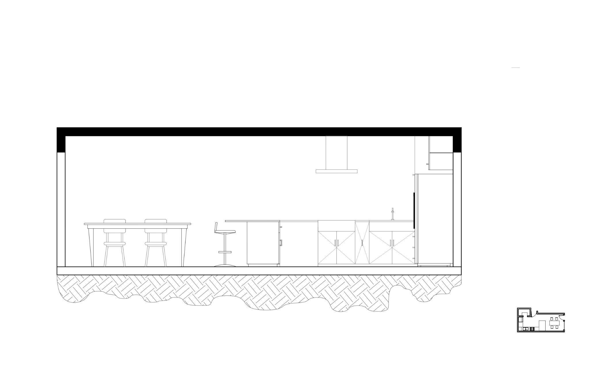
Remodelación Cocina

Halcones 14, Col. Lomas de Guadalupe.

RemodelofakitchenlocatedinLomasde Guadalupe,Theexistingfurniturewasnot usedasitwasinpoorconditionsandwe consideredthattherecoverofitwould increasethefinalcost,sothekitchenwas designfromscratchwiththeintentionof modernizingandmakingthemostofthe existingspace.

Remodelación de una cocina en la colonia Lomas de Guadalupe. Los muebles existentes no fueron utilizados ya que estaban en mala condición y consideramos que recuperarlos aumentaría el costo por lo que se diseñaron los muebles de cocina desdeceroconlaintencióndemodernizary maximizarelespacioexistente.

28

Lengthwise Section / Corte Longitudinal

Final Kitchen footprints / Plano Final de Cocina
29
Cross Section / Corte transversal
30
Cross Section / Corte Transversal

Kitchen before restyling / Cocina antes de la remodelación

Final Kitchen Renders / Renders Finales de Cocina

31
32
CONTACTO Metzli Valeria Granados Tafolla +52 55 32 34 73 69 mvgranadost@gmail.com

Turn static files into dynamic content formats.

Create a flipbook
Issuu converts static files into: digital portfolios, online yearbooks, online catalogs, digital photo albums and more. Sign up and create your flipbook.
Portafolio Valeria Granados by Vale Tafolla - Issuu