

VALERIE BEAUCHAMP
PORTFOLIO
Selected Works

email: valeriebeau@berkeley.edu
phone: (787)-420-4567
location: Bay Area, CA
languages: spanish/english
Valerie Beauchamp
Education
Education
Master of Architecture (M.Arch)
Fine Arts (exchange program)
B.A. in Environmental Design
Biology
Academic Experience
Sur-Urbano: A podcast for Latin American Cities
Graduate Student Researcher (GSR)
Fallingwater College Residency Program
Work Experience
TU Delft Summer School: Planning and Design with Water
Master of Architecture (M.Arch)
XV TSL: Taller Social Latinoamericano
Fine Arts (exchange program)
B.A. in Environmental Design
Teaching Experience
Biology
Academic Experience
Ground UP Journal.
Lecturer
Lecture: Habits (in architecture)
Graduate Student Instructor (GSI)
Sur-Urbano: A podcast for Latin American Cities
Graduate Student Instructor (GSI)
Graduate Student Researcher (GSR)
Teaching Assistant (T.A.)
Fallingwater College Residency Program
TU Delft Summer School: Planning and Design with Water
XV TSL: Taller Social Latinoamericano
Lecturer
NEMESTUDIO
Hubbell
Brushstrokes
Krone Coleman
[AACUPR]:
Honors
Chester
Richard
Premio
Work Experience
Studio Terpeluk March
NEMESTUDIO
Hubbell Daily Architecture + Design
Brushstrokes Studio Inc.
Krone Contract
Coleman Davis Pagan Arquitectos
[AACUPR]: Archivo de Arquitectura y Construcción de la UPRRP
email: valeriebeau@berkeley.edu
phone: (787)-420-4567
location: Bay Area, CA languages: spanish/english e NEMESTUDIO
Honors
Chester Miller Fellowship
Hubbell Daily Architecture + Design
Richard and Laurice Evans Architecture Scholarship
Brushstrokes Studio Inc.
Krone Contract
Premio de Honor AIA Puerto Rico
Coleman Davis Pagan Arquitectos
Joint research led by Dian a Lun a, AIA
Exhibitions
[AACUPR]: Archivo de Arquitectura y Construcción de la UPRRP
90th Anniversary of the Capitol of Puerto Rico
Joint proposal wit h 4t h year Design Studio
Chester Miller Fellowship
Richard and Laurice Evans Architecture Scholarship
Premio de Honor AIA Puerto Rico
KAIRA LOORO PRIMARY SCHOOL
Senegal
UC Berkeley CED
Instructors: Mark Anderson w. Paola Gutierrez
How can architecture have a positive impact in the way children learn?
A big part of the project was nature and its interaction with the architecture to create sensorial experiences that bring a singularity to the school’s classroom spaces. Here the natural and built environment become learning tools and devices.
The cell-like plan allows for each classroom space to be different then the previous, particularly in size. This increases the capacity of each class size as they grow. All classrooms have an outdoor component which provides teachers with the opportunity to diversify the classroom experience.
I believe this is a building of transitions that navigate light, shade and sound. Interstitial spaces are created to shelter the classrooms. And the thicknesses of the wall and materials become a barrier for sound and heat.
The materials played an essencial role in the building. Rules were established: brick and rosewood for the ground, thatch and bamboo for the roof and structure. All materials used in the project (clay brick, rosewood, bamboo and thatch) are to be sourced from the area. And the bricks fabricated directly on site with the soil excavated for the foundation.




Cross Section (Schematic)


Detail Wall Section (left)


Classroom view (top)
Construction Process Drawing (right)

1:1 (ish)
M.ARCH Thesis
UC Berkeley CED 2023
Advisors:
Neyran Turan
Yasmin Vobis


The architecture syntax is as follows; site analysis, schematic design, design development, construction documentation (...) to eventual construction.
This fixed order deprives the construction phase of any influence in the totality of the design. Meaning, that by the time of construction, design is completed. What would happen if this natural order of practice is disrupted?
What are the affordances or incentives that can come with skipping ahead? This is the question that in hindsight drove this thesis.
This project explores this
relationship through the mockup; a full scale (1:1) model built in order to test and verify a finalized design on site and off.
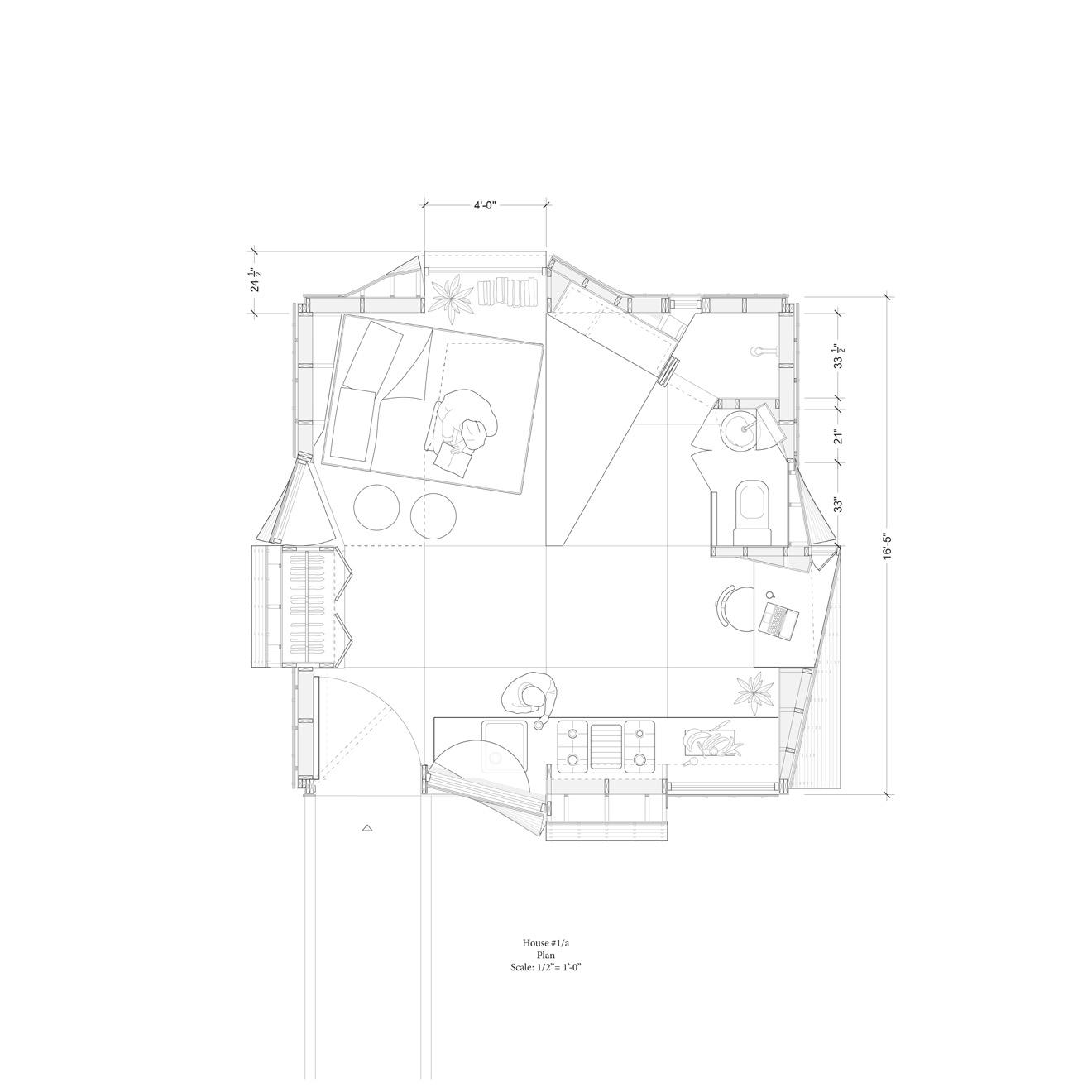
This “1:1(ish)” mock-up builds on an initial house, where a portion of the plan was selected to develop further throughout its construction. Its initial design, a series of detail transformations, led to a fabric-like plan in which contours and seams become spatial themselves, as well as opportunities for both aesthetic sensibilities and building technique explorations.
The mock-up encourages design in its totality. Its high resolution forces to test constructability,
A series of operations (right) result in a concept plan and wall section, later to become to mock-up
quality, scale, visual appearance and structural, technical and material performance. And think of members and tectonic relationships often overlooked during the design phase, such as the connectors, (screws, nails, staples), the inherent nature of surfaces, grains and other components necessary for a structure to stand. Moreover, this almost one-to-one model, provokes the assembly’s capacity to define space.
Building the mockup mid-design development, means drawings can be reassessed and modified. This leaves space for the material and the structure (as well as the builders) to gain autonomy of the
design and its outcome.
What started off as an attempt to reverse the established order of the design process concluded in a synthesis of its stages, to take place simultaneously. A reconciliation between the digital, the drafted, and the physical.
The progression of the building affects the drawing. Building precedes drawing. Therefore, building precedes design.



Working “backwards”. Designing through images. A Digital Mock-Up, seen on the top left, emerges from the previous series.
Materials are specified to start crafting the layers of the assembly Concept Plan and Wall Sections (on the right) are drawn to express the formal intentions of the structure



Beyond the contour (& thicknesses)
A plan defined by envelope. Although still contour, the poché inches in to shift the spatial configuration of the house. The implied arc of an envelope fold is extended in drawing; and consequently interpreted as door and window swings, openings and even cabinetry.






Pre-Construction. (Bottom Image)
A first (or second) draft at the wall section assumes the initial design’s assembly.

Post-construction. There are three wall conditions present in the mock-up: the twist, the bow and the flat panel. These wall sections were used as opportunities to explore different assembly approaches.






First revision.
A first pass at the full resolution plan, assumes and translates the conventional framing logic to fit the poché.
Post-construction. Between building and drawing, site adjustments, occurrences and advancements were made and recorded.

The last model generated. Mock-up is left partially “un-sided” to reveal its construction techniques.


HEMPO LONGHOUSE
with Nemestudio Architecture practice
“Hempo Longhouse is a project on regenerative architectural construction in California built with a specific panelized hempcrete construction system.
By imagining new construction protocols, supply chains, and agroecological stewardship around hempcrete construction, the project restages a practice that is situated within the
infrastructures of just energy transitions, decarbonized climate futures, and non-extractive frameworks.”
-Nemestudio
Working for Nemestudio allowed me to further explore the topics surrounding my thesis. Construction as a necessary step in design. Not left at the end but used as an instrument with which we design and manipulate form. This project allowed me to work with a new material, hemp, and therefore new assembly types. The work consisted of developing the design of a longhouse, all
orthographic drawings, visual representation, a long model and lastly the mock-up.
The work was in collaboration with Elizaveta Bytnaia. That said, all content exhibited here was produced by me, under the guidance of Neyran Turan.







Longhouse digital model Views and Sections






Longhouse Hemp Mock-up
Preparation and Assembly by Valerie Beauchamp Mixing and Packing with Elizaveta Bytnaia and Leo Zhang





HOW TO DISAPPEAR, ALMOST, COMPLETELY. PORTOLA GREENHOUSES
Fall 2021 Integrated Studio
San Francisco, CA UC Berkeley CED
Instructor: Dan Spiegel
The historical Greenhouses of the Portola District have been reimagined as a community center where the production of agricultural goods allows people to purchase, dine, and learn culinary skills in a closed-loop system. The gable roof of the structures resulted from the consideration of re-inhabiting a familiar, vernacular form in novel ways.















Interior Culinary Training Kitchen

AN ARCHITECTURE OF MAKING
PART II
California Indigenous Heritage Center (The Artists Residencies) Sacramento, CA UC Berkeley CED
Instructors:
Paz Gutierrez
Peter Suen



This project is about an architecture of making, for making, where there are no boundaries between craft and art.
These are the art residencies. Here the site becomes the protagonist. And every move made is with the intention of enhancing it.
If the fire studies lead us to rethink and understand the organization and structure of territory, how does that territory come to be?
It was through my not-so-great weaving, I learned there are other essential parts to the act of weaving: the materials, or the weave itself. For example, who and/or what is the agent that is constructing it, the hands that are making that weave. The art of weaving is a set of operations, a series of repetitive steps, therefore, what could that mean at a larger scale? Through architecture, its use by way of inhabitation, practices and rituals. Crafting the site through time and use. The user becomes an agent of architecture.
The plan was divided into three, a building for sleeping (the dormitories), one for making (the studios) and a collective material depository to encourage socializing and creative exchange between the artists.






Concept Wall Section (Top)

Program Distribution (Bottom)













MANGLARES
Social Housing
Fall 2017 Third Year Studio
La Torre, Loiza, PR
Universidad de Puerto Rico-Rio Piedras

Instructors:
JR Coleman Davis
Victor Nieto







Split Plan
Ground Floor (Left)
Upper Floor (Right)
The people of La Torre have a tight relationship with each other, this is partly due to how the houses are spatially organized; the informal urban development has consequentially affected the sociocultural behavior and identity of the place, creating a secure and integrated neighborhood. Wanting to maintain the strong sense of community, this housing complex follows a similar arrangement which provides communal spaces between houses. The development consists of six houses/ apartments, that can be doubled to twelve, if needed. This is possible, since the circulation has been moved to the exterior; the set of stairs, divide and connect the houses without sacrificing their privacy. The result is a housing complex integrated to its context not just formally, but by also incorporating the tropical nature that surrounds it, bringing it to the communal patios and inside.




Longitudinal and Cross Sections
An imaginary party wall is drawn. On a tight budget, the client looks to remodel seven small apartments (ranging from 300-700 sq ft) under one condition: the apartments can’t be consolidated.
In Santurce, next to the iconic “La Placita”, this double story building will now host short stays. The client requested increased privacy, security and capacity. The proposal, uses the existing “louver window” condition as inspiration and language to provide the client with the privacy
SIETE APARTAMENTOS
SEVEN APARTMENTS (IN PROGRESS)
C. 162 Dos Hermanos San Juan, Puerto Rico

(and security) for its guests, yet without rejecting the city. With this in mind, the facade is able to open and close to the street, keeping in tradition with puerto rican culture.
On weekend nights, keeping in mind how loud the street can get, the imaginary party wall l (located in the center of the building) rearranges the degree of public to private in the program and therefore the reconfiguration of its uses. Towards the partywall the more private (the bedrooms) and towards the facade the public,
such as living, dining and cooking. The project looks to keep and revitalize traditional puerto rican elements such as the losa criolla (creole tile), ornamental blocks, the incorporation of natural ventilation and louver windows. The next step will look to incorporate landscape and native tropical plant species to the color and texture palette of the project.



Each apartment had a limited set of moves...
Apartment A: A window is added to bring in more light, and the side patio is now closed for the individual use of apartment A.
Apartment B: The largest apartment. Kitchen was relocated to the front of the building. This move rotates the living spaces to occupy the frontal wall horizontally, in an enfilade condition.and creating a horizontal, enfilade of living space. It also activates the small front patio. When the kitchen double doors open, it extends the space to the exterior. Kitchen and bathroom plumbing is consolidated under one wall.

Apartment C: The studio’s patio door is switched with the side window, this allows the kitchen to occupy the entirety of the wall, and gives privacy to the user, as the exit is out of sight.
Plans (Existing)


Demolition Plans (Right)
Upper Floor Plan (Top)
Ground Floor Plan (Bottom)

Proposed Plans
Ground Floor Plan (above)
Upper Floor Plan (right)

Apartment D: Walls were opened to enlarge the space visually and bring in light.
Apartment E: Windows are added to increase light.
Apartment F: Kitchen is switched to the back, Living space now becomes a room able to fit 2 beds. Two balconies, front and back are added. Front balcony provides a degree of separation between the street and the bedroom.
Apartment G: (Apt. B’s twin), the loggia condition is kept, and kitchen remains in its original location. Since the bedroom is located in the second floor, the height difference allows for some degree of privacy. Windows, although originally operable, are now casement. A nook is created using the original ornamental blocks in the carport, to hide the meter cables and wires.




Proposed East & North Elevation Views (Left)
Proposed Front Elevation (Top)
Existing (Bottom left)




Proposed Interior Views (Upper and Ground Floor)
Proposed Elevation Drawings




Views of proposed spatial changes (in-process)




Apartment D Plan
Process renders and model snapshots (left)






