

![]()




Pocházím z Brna z rodiny architektů. Vystudovala jsem na dvou jazyčném francouzském gymnáziu a následně jsem vystudovala architekturu na Vysokém učení technickém v Brně.
Během šestiletého studia jsem strávila semestr na Erasmu ve slovinské Ljubljani, jedno léto na stáži v architektonickém studiu v Kátmándu v Nepálu a rok povinné praxe v Praze v architekotnické firmě Archicraft.
V návrzích se primárně snažím o fungující celek, se kterým propojuji jeho estetickou stránku. Ráda používám barvy a zajímají mě kvalitní řemeslné zpracování. V návrzích se snažím hledat nadčasová řešení, která nepodléhají pouze současným trendům. S oblibou ve svých projektech používám dřevo a přírodní materiály a technologie. Ráda se soustředím na interiéry.
Pokud bych měla jmenovat jednu svou vlastnost, byla by to schopnost přijít s množstvím různých nápadů a pohledů z mnoha různých úhlů.
V budoucnu bych se chtěla věnovat jak architektuře, tak i umělecké tvorbě. A to především tvorbě šperků, které plánuji dále studovat. Baví mě pracovat rukama a tvořit věci, ze kterých budou mít lidé radost a budou je s oblibou používat.
„Projektování spočívá v neustélé souhře pocitů a rozumu...Myslím si ale, že vlastní jádro hledané architektury vzniká z emocí a náhlých vnuknutí.“ P. Zumthor
1
2

NÁBŘEŽÍ POD LETNOU 2022, projekt z praxe
RESTAURACE INDICA, FINE DINING 2022, projekt z praxe
3 POKHARA RESORT V NEPÁLU 2022, projekt z praxe
4 ZASTŘEŠENÍ NÁDVOŘÍ HRADU ŠPILBERK 2024, soutěž
5
REVITALIZACE BÝVALÉHO ŠTERNEBRKÉHO KLÁŠTERA 2024, diplomová práce
6 OBNOVA STAVENÍ POD OŘEŠÁKY 2023, předdiplom
7 MATEŘSKÁ ŠKOLKA BUDOUCNOSTI 2021, bakalářská práce
8 AMFITEÁTR V BURKINA FASO 2020, Inspirelli competition
9 TVORBA, VIZUALIZACE, MODELY 2018-2024

MOONSHOT, PROEJKT Z PRAXE, ARCHICRAFT JARO 2022
TŘETÍ ÚSEK RUDOLFOVA ŠTOLA
V rámci ideového projektu jsme řešili dnes neefektivně využívaný prostor nábřeží pod Letnou v Praze. Území jsme nakonec rozdělili na tři části: Stará plovárna, lávka s přístavištěm a nábřeží u Rudolfovi štoly. Po společném základním konceptu se dvěma architektkami jsem se já soustředila právě na rozpracování této třetí části. Vizualizace se zadávali externě, ale s veškerými specifikacemi, materiály, rozměry a pohledy na jednotlivé prvky.
Třetí řešenou částí projektu je tedy prostor od vchodu do Rudolfovy štoly až ke Štefánikovu mostu.
Tato část byla sice nedávno rekonstruovaná, nachází se zde malý park právě v okolí štoly a Strážního domku, avšak přístup ani napojení na okolí není dobře řešené, takže park v dnešní době mnoho lidí nenavštěvuje.
Prostor je určen pro příjemné posezení venku v blízkosti vody během dne i večer. Lidé si mohou sednou do venkovních i vnitřních prostorů kaváren a podniků, na houpačku nebo jednoduše na trávník do parku. Můžete zde strávit večer s příteli, před den strávit chvilku mezi stromy nebo i místem projít a pokračovat podél břehu až k Malé straně.
Stejně jako v prvním úseku jsme rozšířili prostor pro pěší snížením jednoho silničního pruhu do úrovně dnešního parku. Vzniká tak otevřený klidný prostor jasně oddělený od komunikace nacházející se o úroveň výše. Prostor je velmi zelený s plochami trávníků a květinových záhonů. Téměř všechny stromy jsou zachovány a doplněny o nové. Před Rudolfovou štolou symbolicky stéká do Vltavy umělý potůček. Prostor tak zní příjemný zvuk tekoucí vody.
Do opěrné stěny jsme včlenily malé buňky, které jsou určeny pro startupy, galerie, kavárny, bary a jiné drobné provozy. Zároveň jsme v prostoru rozšířeného parku doplnily tři malé „domečky“, které opakují tvarosloví historického strážního domku. V nich se mají nacházet drobné kavárny nebo podobné provozy.
Co se týče Rudolfovy štoly, ta by mohla být otevřena prohlídkám s průvodcem a strážní domek či jedna z buněk využity jako její muzeum.
Místem lze projet na kole po cyklostezce v úrovni komunikace nebo po vyznačeném pásu pěší zónou.
Tento poslední úsek tak zakončuje propojení celého nábřeží mezi Čechovým a Štefánikovým mostem






PROJEKT Z PRAXE, ARCHICRAFT JARO 2022
Jde o jeden z prvních projektů v práci, ve kterém jsem měla větší možnost se zapojit a ovlivnit výsledný vzhled návrhu.
Dostala jsem za úkol zpracovat koncept a následně, po jeho schválení, jsme společně s ještě jedním architektem zpracovávali studii a prováděcí projekt dohromady. On se staral o všechny technické prvky a kuchyni, já jsem se zaměřila na celkový vzhled, detailnější dispozice a nábytek restaurace. Později se k tím připojil ještě jeden architekt, který se staral o model a vizualizace, které jsme společně řešili a upravovali podle přání investora a intervencí hlavního architekta.
Nemohu tedy říct, že by toto byl čistě můj návrh, je to výsledek spolupráce několika lidí. Ale troufám si říct, že velká část mojí části práce je a snad i bude vidět.
Zadáním bylo vytvořit prostor indické fine dining restaurace v historickém paláci v centru Prahy v prvním patře.
Zvolili jsme jednoduchou světlou barevnost, kvůli poměrně nízkým stropům. Doplnili jsme ji tmavým dřevem, měděnými akcenty a zeleným potahem křesílek. Měď odkazuje na tradiční indické nádobí, tmavé dřevo je v Indii používáno spíše než světlé evropské tóny. Zelená a oranžová evokují živé prostředí Indie, džungli, oranžovou hlínu, vlhkost, teplo a slunce.
Podstatným prvkem v návrhu jsou poloprůhledné závěsy/zástěny, které člení podlouhlý prostor na menší méně halové prostředí. Stejně tak změny materiálu v podlaze prostor zútulňují a dávají mu rozdílnou hierarchii.
Posledním nepřehlédnutelným motivem je kruh nebo jako část, oblouk. Propisuje se nám v interiéru v zaoblených přechodech podhledů, v nábytku, v grafice. Oblouk je taky tradičním indickým architektonickým prvkem, zároveň je kruh inspirován prezentací a servírováním indických jídel v kulatých miskách, nádobách a vaření v tandoorech.
Oválný absatz s horním oboustranným otvíráním, lamelovou poloprůhlednou stěnou, s do nich skrytými kyvnými dvířky

V místě salonku, který je možno oddělit posuvnými dveřmi, se v denním režimu nachází tři kulaté stoly, ty je možné vzájemně propojit odejmutelnými stolovými deskami.

Závěsy, případně v angličtině „dividers“, jsou tvořeny bambusovými brčky dlouhými přibližně 200 mm navlečenými na ocelová lanka a zavěšenými na kolejnici spuštěnou ze stropu. Levnější alternativou, o které uvažujeme jsou kvalitní nitkové závěsy.





Vybrané světlo od LZF lightning. Zajímavý barevný akcent prostor restaurace oživuje a doplňuje. Materiál je dřevěná probarvená dýha, která si při zapnutí světel prosvítí.

schéma z Autocadu zobrazující situaci včetně dispozic jednotlivých objektů
PROJEKT Z PRAXE, DESIGN STATION, NEPÁL
LÉTO 2022
V rámci stáže v Nepálu jsem ještě společně s jedním stážistou dostala za úkol navrhnout během tří týdnů resort pro odpočinek, cvičení jógy a především pro tradiční očistné techniky Panchakarma a Satkarma. Tedy tradiční očistné a léčivé terapie sloužící společně s cvičením podle ájurvédského systém k očistě těla a mysli. Pomocí mnoho technik se tradičně v indii a Nepálu léčí mnohé nemoci a problémy.
Dostali jsem zadané plochy nutné pro jednotlivé provozy a v rámci návrhu jsme měli následovat vzhled tradiční architektury v Pokhaře v moderním pojetí. Navrhli jsme koncepty veškerých dispozic, základní vzhled jednotlivých objektů a jejich rozložení a fungování. vytvořeno bylo krátké video popisující areál.
Resort se dělí na tři části, centrální část se zázemím a společenskými prostory, ubytovací křídlo a terapeutické a léčebné křídlo.
V centrální části se nachází veškerá administrativa, malá tržnice a obchůdky, jídelna a restaurace, sály a další společné prostory. Na východní straně se nachází ubytování a to jak hromadné, tak luxusnější kategorie včetně samostatných vilek.
V terapeutické části jsou jednotlivé pavilony pro Satkarmu, Panchakarmu, tělocvična i sál pro hromadné události a cvičení. Taktéž se zde nachází ubytování pro terapeuty.
Celý areál je zasazen do terasovitého terénu s velkými výškovými rozdíly. Výrazné členění terénu předurčuje jejich rozmístění v co nejvyšší míře v jedné výškové úrovni. Rozlehlým parkem se rozprostírá až k řece v údolí. Monzunová období nedovolují umístění budov do blízkosti řeky a jediný příjezd se nachází v kopci na jižní straně pozemku.
Kapacity areálu počítají s jeho velkou vytížeností a částečnou soběstačností. Ubytování je spíše dlouhodobějšího charakteru, jelikož procedury zaberou velké množství času. Jedná se o jakýsi ekvivalent evropských lázní.








1. MÍSTO, STUDENTSKÁ IDEOVÁ SOUTĚŽ
JARO 2024
Zadáním studentské ideové soutěže byla architektonická studie vhodného zastřešení velkého nádvoří hradu Špilberk v Brně. Má za úkol uchránit návštěvníky před deštěm, větrem a chladem. Mělo by mít charakter celoročního umístění. Součástí návrhu byl zákres do předem vybraných fotografií. Zadavatelem soutěže bylo Muzeum města Brna.
KONSTRUKČNÍ A MATERIÁLOVÉ ŘEŠENÍ
Jedná se o předepnutou plachtovou konstrukci složenou z nosné lanové konstrukce z ocelových kroucených lan a na ně napnuté plachty z odolné tkaniny. Lana jsou ve dvou směrech, lineárně napnutá napříč, která podporují lana v podélném směru, která jsou jimi vymnuta do křivky zajišťující odtok vody. Konstrukce bude primárně uchycena pomocí ocelových lan ke krovům budovy obklopující nádvoří a bude-li to nutné ke kvalitnímu vypnutí konstrukce, dodatečně bodově přikotvena a zavětrována.
ZDŮVODNĚNÍ ZVOLENÉHO ŘEŠENÍ
Vzhledem k historii a charakteru prostoru nádvoří bylo rozhodnuto jako nevhodné nádvoří uzavřít stálou střechou. Přes zimu se zde odehrává minimum akcí. Prostor by bylo velmi neekonomické a neekologické vytápět a v létě by bylo nutné větrat. Řešily by se požární a další požadavky na vnitřní prostory.
Plachtová konstrukce je v porovnání s jinými možnostmi velmi lehká. Díky možnosti plachtovinu stáhnout a roztáhnout a nenarušení nádvoří sloupy, bude v co nejvyšší míře zachován původní dojem z prostoru.
Kvůli rozdílně velkým událostem, které na nádvoří již probíhají je nutné brát v úvahu zastřešení celého nádvoří, velké akce kapacitně přesahují i 1000 diváků, kteří zaberou téměř celou jeho plochu. Jiné události však mají spíše komorní charakter a diváci se soustředí převážně v jeho středu. Z tohoto důvodu bylo rozhodnuto pro několik samostatně ovladatelných segmentů zastřešení, které umožní přizpůsobení konstrukce.
ŘEŠENÍ ODVODNĚNÍ A CHOVÁNÍ PŘI SNĚŽENÍ
Během deště voda v případě roztažené konstrukce stéká ve spádu k okrajům střech, kde spadá do okapů. V místech částečně roztaženého či staženého zastřešení budou v terénu řešeny odtokové plochy.
Při sněžení či velmi silném větru by byla konstrukce stažená. Stažená konstrukce umožňuje zavlažování stromu.


jedny z možných rozmístění sezení vzhledem k jevišti






důležitost zastřešení nádvoří podle důlěžitosti využití a funkce zastřešení
A1 (jeviště) > A2 (střed hlediště většinou obsazený) > B1(vstup) > B2(stínení proti slunci) > C+B3 (využití pří vyšším obsazení)

uchycení plachet














samostatná konstrukce osvětlení a ozvučení místo pro staženou konstrukci
severní fasáda a příčný řez zastřešením nádvoří 1:500
překryv jednotlivých pásů zastřešení, aby mezi nimi nepronilkala voda
západní fasáda a podélný řez zastřešením nádvoří 1:500
samostatná konstrukce osvětlení a ozvučení
východní fasáda s jevištěm a podélný řez zastřešením nádvoří 1:500





příklad pásu zastřešení plně roztaženého


rastr ocelových lan, příčná lana podporují pomocí táhel podélná, který tvoří křivku, po kterých jezdí plachta, rozpon ¬5m A B c


příklad pásu zastřešení neroztaženého



příklad pásu zastřešení poloroztaženého
1:500 půdorys střech


DIPLOMOVÁ PRÁCE, LS 6. ROČNÍK
JARO 2024
Cílem diplomové práce bylo vytvořit architektonickou studii revitalizace části objektu bývalého augustiniánského kláštera ve Šternberku včetně jeho okolí a zahrady. Zásadní bylo najít nové funkční využití zanedbaných prostor a určit celkový koncept fungování objektu
Objekt bývalého kláštera má nově sloužit jako místo pro odpočinek, kulturní rozvoj a zklidnění v uspěchané době. Funkčně je rozdělen na dvě části, které se prolínají.
První část je určená především pro místní obyvatelstvo na koncerty, divadla, kulturní dny, společenské akce… tedy pro sociální a kulturní vyžití. Druhá část je směřována na lidi hledající změnu prostředí, odpočinek v říjemném prostoru s kvalitním zázemím, klid pro načerpání nové energie. V rámci kláštera je vytvořeno příjemné ubytování s prostory pro odpočinek, sport, relaxaci ale i práci na dálku.
Obě funkce se navzájem doplňují, prostory restaurace, kavárny či pivnice slouží jak místním obyvatelům, tak ubytovaným hostům. Malé wellness centrum je otevřené i pro zájemce ze Šternberka. Stejně tak posilovna a tělocvična umožňující pronájmy, otevřená knihovna nebo krásně upravená zahrada vybízející k relaxaci a odpočinku pro místní i ubytované.
Bývalý klášter má také prostory pro pořádání menších konferencí, schůzí, školení, výstavních a prodejních událostí a podobných akcí s variací různorodých prostor. Pro tyto akce má vytvořené kvalitní zázemí a části hostů lze poskytnout ubytování. Prostory nevyžadují stálé využití a mohou být obsazeny nárazově a variabilně.
Pro lokální spolky jsou vytvořeny prostory dvou kluboven. Ve druhém patře je několik pronajímatelných prostorů určených pro začínající firmy a drobné podniky. V přízemí je otevřená tvořivá dílna.
V areálu kláštera je provedeno několik zásadnějších změn. Je umožněn průchod z východu na západ přes zpřístupněnou klášterní zahradu, ve které se prolínají části anglického parku s barokní zahradou. V jihozápadní části vzniká hromadná garáž, částečně pochozí a zasazená pod terén. Je nutná z důvodu nově vznikajících funkcí kláštera i nedostatku parkovacích míst v okolí. Pomocí nových prvků a úprav jsou zdůrazněny existující i nové vstupy do kláštera.
Největším přínosem návrhu do architektury kláštera je úprava vnitřního dvora. Je navrženo zastřešení dnes otevřeného nádvoří, které umožní probíhaní akcí i během nepřízně počasí. Prostor bude během zimy přinejmenším temperován a tím se zvýší komfort a zároveň sníží náročnost vytápění přilehlých prostor.
Současně je v místech zaniklého barokního schodiště doplněno schodiště nové včetně výtahu. Tyto prvky zjednodušují orientaci a pohyb v prostoru, ozvláštňují jej, ale zároveň ho harmonicky doplňují a dělají ho dobře zapamatovatelným.
Práce by měla sloužit jako inspirace pro současnou správu kláštera. Bude prezentována v rámci výstavy místním obyvatelům a případným návštěvníkům expozice. Přinese společně s ostatními návrhy nové pohledy na využití objektu a jeho okolí.


výstavní prostory, dočasné expozice


cowoorking, výstavy
šatna
pohybový sál
posilovna
ubytování
divadelní sál, konference
hudební sál
relax místnost, bar
ubytování
rajský dvůr
salonek
resturace
kavárna

výstavní prostory parkování
ubytování gastronomie


vedlejší a odpočinkové provozy hygienické zázemí společenské místnosti ostatní wellness pronájem
vertikální komunikace, spojení vstup
kancelář a sklad
byt správce
minipivovar, degustace
kuchyně

velký taneční a konferenční
předsálí, šatny wc a šatny
výstavní prostory, stála expozice startups, pronájem
klubovny
probošťský sál herna, multifunkční wellness


malý sál komunikace, otevřená knihovna
šatny denní místnost, zázemí, wc pers. otevřená dílna výtvarná a řemesel
toalety
podzemní garáže
nové schody od hradu
posezení pro wellness a venkovní lehátka
membránové zastřešení
barokní zahrada
lávka do 3np
nový vstup a vjezd podium
zahradní jezírko, požární
ovocné stromy, bobuloviny
zvýrazněné vstupy
nová rampa a zábradlí
sochy osazené v obloucích
nová cesta k hlavnímu vstupu
umělecké dílo zdůrazňující osu vstupu
anglický park
vjezd do garáže


klidová část

lehátka v zahradě
salonek
restaurace
multifunkční místnost
wellness
sál komunikace
denní místnost
kavárna


ATELIÉR ZS 2023, 6. ROČNÍK, PŘEDDIPLOM, OBNOVA PAMÁTEK
Zadáním ateliéru byl návrh obnovy památkově chráněného objektu dle vlastního výběru. Polovinu semestru byly zpracovávány rozsáhlé analýzy, zaměření celého stavení a jeho rozkreslení, průzkum historických dokumentů a zpracování historie objektu i jeho původních obyvatel. Dále byla provedena studie možného využití s ohledem na jeho hodnotu. Kladla jsem důraz na reálnost možného budoucího provedení mého návrhu.
Vesnická usedlost s hospodářstvím pochází z počátku 19. století a je památkově chráněná. Dnes se nachází v havarijním stavu. Novým účelem, který by do ní mohl znovu vnést život, je jednak rekreační rodinné bydlení s úctou k tradičnímu životu a vzhledu stavení, ale s citlivým využitím soudobých možností a technologií. Druhak je to varianta jednoduché změny rodinného bydlení na využití na krátkodobé pronájmy.
Usedlost se dělí na objekty původní chalupy, výminku, kolny a chléva kolem dvora a samostatně stojící stodoly.
Objekty chalupy a výminku by měl dále sloužit k bydlení, vaření a relaxaci. Kolna je myšlena jako venkovní prostor pro posezení či práci. Na otevřené půdě má místo pro materiál a uložení věcí. Původní chlév by měl dnes fungovat jako řemeslná dílna či pracovna. V případě pronájmů by sloužil jako prostor pro přespání většího množství lidí a variabilní zázemí. Stodola je určeno pro uložení vybavení a strojů. Během pronájmu by bylo možné prostor upravit pro posezení a stal by se z něj velká zastřešená plocha rozšiřitelná na louku díky velkým vratům a mobilnímu stanovému zastřešení.
V případě pronájmu by bylo možné na místě přespat, prožít víkend s rodinou či přáteli, pořádat semináře, školení, teambuildingy či menší svatby.
Do objektů nebude hmotově výrazně zasaženo a zachovají si dnešní proporce a objem. Dispozice je v objektech chalupy, výminku a chléva doplněna o nová schodiště. Objekty jsou zatepleny. V několika místech se zvětšují nebo posouvají otvory.
V chalupě je černá kuchyně změněna na prostor koupelny a přístup do dvora je nově ve starém zazděném průchodu ze světnice. Podkroví je nově obytné. Deštění štítů je naklopené pro umožnění průniku světla. Ve výminku je černá kuchyně využita jako spíž, přístup do sklepa je skryt pod poklop. Podkroví je určeno k přespání. Na výminek je napojen nový objekt hygienického zázemí přístupný taktéž ze dvora. V chlévě se rozšiřují okna a pod novým schodištěm vznikají úložné prostory a umyvadlo. Je možné prostor posuvnými dveřmi oddělit na části dílny a schodiště s podkrovím. Kolna a stodola není dispozičně téměř změněna.









BIOTOP
KŮLNA
nízká výsadba pocitově oddělující pozemek
pomocný vjezd na pozemek na straré cestě
SUCHÝ ZÁCHOD
hlavní kompost na vegetaci z pozemku
nádrž na dešťovou a šedou vodu, pro sekundární použití
okrasný záhon s bylinkami
možné parkování až 9 aut, blízké větší parkoviště 10 minut pěšky, možná pronájem sousední louky od obce?

prostor pro stání dvou aut a uložení části dřeva na topení
jedenze 4 vzrostlých ořešáků královských (vlašké ořechy)
STAVEBNÍ PROGRAM
chalupa > kolna > chlév > stodola > výminek
VÝMINEK předsíň, spíž světnice + kuchyně přespání v podkroví
hygienická buňka sklep
CHLÉV
dílna wc + umyvadlo
úložné prostory pracovna/ přespání/ archiv
DVŮR koupací sud manipulační prostor prostor pro posezení skalka retenční nádrž
KOLNA venkovní pracovní prostor místo pro posezení venkovní kuchyně úložné prostory

zpevněná cesta vydlážděná volně z místních kamenů ke kolně a na pozemek s volným přechodem do trávy
CHALUPA předsíň koupelna světnice
obytné podkroví sklep
dřevník tepelné čerpadlo
místo pro venkovní posezení v případě konání větších akcí např. svateb, je možné zastřešit stanem
ubytovnání až pro 20 osob (2+8+10) přímo v obci dva penziony pro 18 a 10 lidí možnost stanování venku další ubytování v Letovicích a okolí
STODOLA prostor pro nářadí prostor pro skladování věcí manipulační prostor/prostor pro posezení sekundární prostor pro skladování/posezení podkorví pro ukládání vybavení a materiálu sklep
POZEMEK louka a sad zeleninová zahrada biotop
vjezd a stání pro 2 auta
starý kurník suchý záchod sauna brána
obnovená studna louka pro postavení společenského stanu v návaznosti na stodolu
místo por přespání ve stanech místo pro obřad u jezírka + branka oplocení skladování dřeva
svah s okrasnou skalkou

nový průchod na dvůr
vyvýšená terasa, koupací vyřívaná káď/sud
koupelna v prostoru bývalé černé kuchyně prostor pod komínem, kde byly dříve dvířka do pece, využit jako úložný prostor od chodby odděluje nová příčka s posuvnými dveřmi do pouzdra pod schody umístěna menší pračka a boiler
prostor pro tepelné čerpadlo, dřevník na dřevo na topení
plbně vybavená kuchyně, spotřebiče a nábytek členěny, ne vestavěné > autentyčtější dojemnejsou dotaženy ke stropu
sezení až pro 8 lidí kachlová kamna umožňující topení i vaření, za kamny vykachlovaný ohřívaný prostor pro lehnutí /ohřátí pokud bude technologicky možno, vevnitř pec pro pečení či minimálně sušení potravin

CHALUPA PŮDORYS 2NP
Jednoduché volně stojící dvoulůžko
volně stojící členěné úložné prostory podél nízkého protoru u střechy
možné oddělení prostorů díky závěsům
fasád přízemí dnes již neexistuje

CHALUPA JIŽNÍI POHLED
schodiště možné zakrýt poklopem při otevření uchyceným u zábradlí
postele možné roztáhnout na dvoulůžka
1:75

CHALUPA ZÁPADNÍ POHLED
ATELIÉR LS 2021 3. ROČNÍK > BAKALÁŘSKÁ PRÁCE
ČERVENÝ DIPLOM
A OCENĚNÍ DĚKANA ZA BAKALÁŘSKOU PRÁCI
Bakalářská práce zahrnovala dopracování vybraného dřívějšího školního ateliéru zaměřeného na interiér a vyprojektování prováděcí dokumentace v upraveném rozsahu. Projekt byl konzultován s odborníky na technologie, požární bezpečnost, ... Zahrnoval i výrobní dokumentaci vybraného architektonického detailu.
Zpracována je architektonická studie tzv. dynamické mateřské školky s důrazem na účelové proměny možností využívání interiérů. Mateřská škola je dvoutřídní s odpovídajícím zázemím a provozním vybavením.
Návrh je koncipován tak, aby byl prostor dětem přirozený, zároveň zajímavý a vytvářející podměty pro rozvoj psychických a fyzických schopností dítěte. Neměl by v nežádoucích případech odvádět pozornost, ale měl by dát možnost zvolit si a vytvořit si vlastní způsob hry a učení.
MOTIV SKLÁDÁNÍ
Jde o členění ploch a prostorů do menších uchopitelnějších dílů.
Stejně jako proces učení, kdy se informace postupně skládají do celkového obrazu, tak aby byly ze začátku uchopitelnější.
BAREVNOST A HRA
Prostředí není úplně neutrální, jsou zde barevné motivy, které by ovšem neměly narušovat soustředění.
Cílem je vytvořit PŘÁTELSKÉ, HRAVÉ PROSTŘEDÍ.
Zjednodušit orientaci a motivovat pro hru. Architektura objektu a elementy v interiéru by měly odkazovat na udržitelnost a budoucnost, motivovat děti a podporovat je, aby tvořily samy, nezasahovat do jejich mentality a nepředkládat jim.
Nechat je, AŤ SI SAMY SKLÁDAJÍ, TVOŘÍ, VYVÍJÍ.



OPAKUJÍCÍ SE MOTIV SKLÁDÁNÍ NA DĚTSKÉ ŽIDLI Židle bude fungovat jako klasická dětská žídlička. Zároveň je však možné oddělat horní lištu a umožnit dětem seskládat si vlastní opěradlo.
Skládačkou je z dílků z průsvitného barevného plastu. Barvy je možné měnit a dílky obměňovat. Vypadnutí je zabráněno pomocí zasunutí do drážky ve šprušlích a zasunutí horní lišty z boku židle.







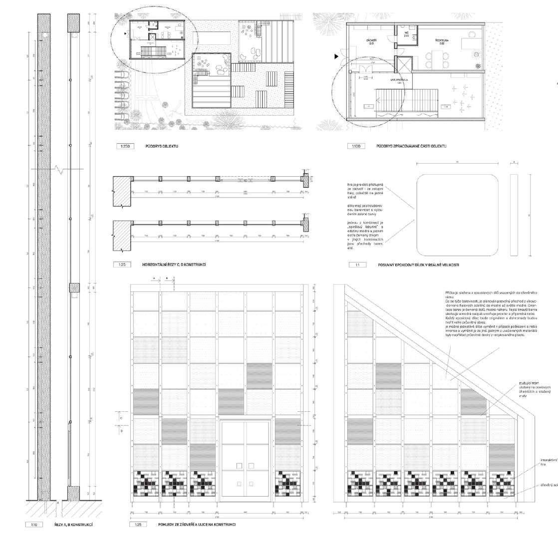
ředitelna
vstupní hala
odpočinková galerie

odpočinková galerie
personál
Výrazným prvkem, jenž proniká i do exteriéru, je hra se světlem, která je ve vstupní hale a ve štítech docílena díky příčce z poloprůhledných barevných čtverců, „wall colour-puzzle“. 2NP
zahrada třída

Hlavní vstup je z terénu do prvního patra, ale většina funkcí je v přízemí. Objekt má i technický suterén.

třída
společná herna
















Zajímavým detailem jsou interaktivní prvky, ve kterých děti budou moci pohybovat barevnými dílky.



DĚLÍCÍ BAREVNÁ POLOPRŮHLEDNÁ PŘÍČKA S INTERAKTIVNÍMI HRACÍMI PRVKY
2021, 4. ROČNÍK
Vypracováno jeko příloha k bakalářské práci. Detail je rozpracován do zadávací dokumnetace pro výrobu řemeslníkovi. Jeho část je fyzicky vyrobena.
Hlavní idea byla vytvořit poloprůhlednou barevnou příčku skloženou z motivu skládání čtverců.
Ve vstupní části budovy mateřské školy se nachází interiérová příčka, který dělí prostor na zádveří a hlavní vstupní halu. Zároveň je i v polovině proskleného štítu otevřeného do ulice.
Vytváří pocit soukromí a pohledově odděluje tyto dva prostory. Zároveň ozvláštňuje a zatraktivňuje prostor svým designem a interaktivními herními prvky pro děti.
Při prosvětlení vzniká v prostoru hra se světlem, když světlo proniká přes epoxidové průhledné či průsvitné probarvené desky. Barevnost hlavních dílců příčky je od modré přes fialovou a růžovou k chladnější červené.
V příčce se také nachází otočné dvoukřídlé dveře v podobném systému jako příčka.
V dolním pásu od 160mm do 860mm se nachází herní zóna pro děti, které se mohou hýbat s posuvnými dílky na epoxidových deskách. Systém funguje gravitačně, čtverečky se posouvají v rámu s různými zábranami na kterých můžou ležet, skládat se a mezi nimi se posouvat. Jsou vymyšleny čtyři vzory, ve kterých je možné barevné dílky obměňovat, díky uzaviratelné štěrbině v horní části.

hlediště


Ve středu celé kompozice stojí nový menší Lesní amfiteátr patřící do zóńy SHOW. Tvoří centrum a spojuje všechny ostatní části. Nachází se tu také malá kavárna, výstavní a přednáškové prostory.
ATELIÉR LS 2020, 2. ROČNÍK
FINALISTA SOUTĚŽE
INSPIRELLI COMPETITION 2020
zadání Ateliéru druhého ročníku zabývající se veřejnými stavbami bylo současně zadáním soutěže ispirelli competition. vybracovaná studia byla oceněna.
Cílem celého projektu je oživit a navrhnout zázemí kolem starého čás tečně opuštěného amfiteátru z roku 1984, který se nalézá v středozá padní Africe. Cílem zadavatele je vytvořit z něj kulturní centrum, místo pro setkávání a prostor pro divadelní hudební a taneční představení.
ARCHITEKTONICKÝ KONCEPT
Celý areál je rozdělen do tří částí: SHOW-pro veřejnost, LABO-pro výuku a WORK-pro zaměstnance.
Ve středu celé kompozice stojí nový menší Lesní amfiteátr. Tvoří centrum a spojuje všechny ostatní části. Patří do zóny SHOW, ale je ho možné využít všemi, například i jako učebnu pro zónu LABO nebo jako malé náměstí v době festivalů.
Část WORK náleží k amfiteátru. Zóna WORK tvoří technické a administrativní křídla k jevišti se scénickým boxem.
Přestože každá budova je tvarově rozdílná, všechny mají společné prvky. Každá část má své centrum. LABO má své atrium. WORK hlediště a jeviště. SHOW lesní amfiteátr. Materiálově korespondují.
KONSTRUKČNÍ A MATERIÁLOVÉ ŘEŠENÍ
Hlavními materiály jsou hlína, nepálená cihla, bambus a na dostavbu jeviště a scénického boxu trocha oceli a železobetonu.
Jedním ze záměrů celého projektu je využití místních zdrojů. Tradičním materiálem pro výstavbu byla v této oblasti vždy hlína, může být zpracována do nepálených cihel nebo může být vytvořena monolitická zeď. Většina nových objektů má proto navrhnutou hliněnou zeď, zpracování se liší dle tvaru a požadavků na konstrukce.
Klasické střechy domorodých obydlí se dělí na dva typy, lehké a těžké. Lehké jsou poskládány z došků, těžké vyžadují skeletovou konstrukci a jsou hliněné. Oba typy byly také použity s využitím bambusu jako nosné konstrukce v návrhu. Bambus byl zvolen, protože je to přírodní materiál s dobrými vlastnostmi. Dřevo je v oblasti drahé a bambus je rychle rostoucí travina, kterou je možné pěstovat v jižních oblastech země a dle dostupných zdrojů je v sousedních jižních státech ke stavbě využívána.



budova studia Grand a dostevěny čtyři výukové pavilony pro tanec, divadlo, cirkus a hudbu.
Část WORK náleží k amfiteátru. Není určena veřejnosti ale pracovníků a návštěvám. Je oddělena dělícími zdmi. Jinak je areál otevřený a pouze nejdůležitější cesty jsou zpevněny.










Ráda během svého volného času tvořím a to mnoha různými způsoby a technikami. Zde bych chtěla zobrazit malý průřez mou tvorbou. Ani zdaleka to však nezychycuje vše. Především protože většinu věcí jsem stále ještě nenašla čas vyfotit.
PEROKRESBA VLKA
A3, TUŽ
ŠPERKY
mnou první vytvořený stříbrný šperk
GRAFIKA PROPISKOU
moje srdcová práce, které si velmi cením, drobná ukázka z většího objemu prací.
PIVNÍ ETIKETA
etiketa, která bude použita na řemeslné pivo pocházející z Litoměřic
PRŮHLEDNÉ PODTÁCKY podtácky z plexiskla, při vzájemném překrývání tvoří působivé struktury, navrhnutý vzor strojově vygravírován
MALBA NA TEXTIL
malba oka sovy na bavlněnou halenku, ukázka z většího objemu prace
ILUSTRACE KNIHY BEZ MOBILU
Práce byla vytvořena těsně dokončení maturitní zkoušky před nástupem na vysokou školu.
Vnitřní ilustrace knihy jsou tvořeny pomocí klasické propisky, která je dále v počítači převedena do černobílé barvy. Ilustrace všechny vycházeli z autobiografického textu autora a měly zanechat prostor čtenáři pro představivost.
Kadá kapitola má svou titulní stranu. Ilustrace jsou převážně doplňkem textu, nekolik z nich je celostránkových.
Obálka knihy byla vytvořena jako perokresba a následně graficky doplněna o nadpis a patřičné náležitosti grafičkou.
O KNIZE
Titul: Bez mobilu
autor: Jean Rubik
Nakladatel: Legraf s.r.o. 2018
Většina vytvořena pomocí Lumionu s minimálními drobnými úpravami v Photoshopu. Část vizualizací zobrazuje vlastní návrhy prostoru, část jsou pouze vytvořené vizualizace na již existující návrh.

Modely zobrazují mé návrhy během studia. Většina je vytvořena z lepenky. Část je řezána ručně, část pomocí laseru. Některé modely jsou doplněny o epoxid, vrstvu barvy či stafáž zeleně a osob.

















