My first document

Page 1

PORT FÓLIO ARQUITETURA

UNIVERSIDADE CATÓLICA DE PERNAMBUCO - UNICAP

Acadêmica de Arquitetura

V A L E R I A L A Z C A N O
01

informações pessoais

idade 23 anos email valerialazcanodigital@gmail.com

whatsapp (91) 98572-7184

endereço Olinda - PE

acesso ao currículo online

formação acadêmica

2022 - cursando graduação em arquitetura e urbanismo

Universidade Católica de PernambucoUNICAP

2016 - 2018

ensino médio sistema de ensino equipe

sobre mim

Olá! Me chamo Valeria Lazcano, sou estudante de arquitetura e urbanismo e anseio por ampliar e adquirir novas experiências e conhecimentos no área.

Ao longo do curso, desenvolvi grande interesse no processo de concepção de projeto. Desde a abordagem adotada até a elaboração do partido que responda às necessidades do cliente com soluções criativas e inovadoras, além de pesquisas sobre a arquitetura social, comercial, e empreendimentos de médio e grande porte.

Vejo como ponto fundamental dentro da arquitetura e do urbanismo a aplicação dos princípios da sustentabilidade e bioarquitetura, além do desenvolvimento da pesquisa de materiais e soluções dinâmicas para os problemas apresentados no contexto atual.

Acredito que um escritório deve constantemente estar atualizado e responder de maneira criativa, responsável e inovadora aos problemas de seu contexto, além de ter a capacidade de ser flexível e versátil diante dos diversos cenários nos quais esteja exposto, são necessários profissionais empáticos e compromissados com o desenvolvimento positivo da sociedade.

Creio que o futuro é renovação, é reinventar o espaço urbano reconhecendo a realidade soberana e a criatividade como um agente transformador.

Um arquiteto compromissado tem em suas mãos o poder de construir, restabelecer e remanejar espaços que impactem positivamente na vida das pessoas.

softwares

intermediário avançado intermediário canva avançado pacote office intermediário

autocad revit enscape VALERIA LAZCANO LÓPEZ 02

PROJETOTABOCA

Informações

Ano 2022, 1º período

Local Belém, PA

Softwares utilizados AutoCAD,Revit e Lumion

Sobreoprojeto

A proposta trata de um abrigo temporário de caráter emergencial, local que servirá para atender às populações desabrigadas em decorrência de desastres naturais.

Graças à observação do cenário na qual o projeto é inserido foi possível formar um diálogo que entrelaça ricamente as características regionais com as condicionantes fundamentais.

O projeto deve ser trabalhado em módulos que possibilitem a versatilidade do espaço, além de uma fácil e rápida montagem, o que incita o uso de materiais de fácil acesso.

Dentro do programa também percebia-se a necessidade um projeto de fácil entendimento para a mão de obra, além da preocupação em abranger não somente as necessidades físicas, mas imateriais dos indivíduos afetados, por isso, buscamos proporcionar sensações de familiaridade e pertencimento ao utilizar elementos regionais da cultura.

1

PRANCHASTÉCNICAS

Dentre as soluções apresentadas, estão, o uso de materiais comumente encontrados na região, facilmente manuseados pelo povo local e de grande resistência às condições climáticas, além do uso da ventilação cruzada com portas de correr e ausência de divisórias fixas no interior dos módulos.

O material principal foi a madeira pinus, bambu ou "taboca" como é conhecido na região, e esquadrias de fibra de bambu trançado, além da fundação simples de bloquetes de concreto.

Informações

CONJUNTO CAMILOPORTODE OLIVEIRA

Ano 2022, 3º período

Local Belém, PA

Softwares utilizados AutoCAD, Revit e Twinmotion

Sobreoprojeto

A proposta de Habitação de Interesse Social Multifamiliar atenderá ao reassentamento de famílias afetadas pelas obras na Bacia de Macrodrenagem da Estrada Nova.

Dentro dessa perspectiva, percebe-se que a maioria das H.I.S apresentam problemas recorrentes, como a má inserção urbana e a falta de representatividade, sustentabilidade e conectividade. Propostas que não representam as reais necessidades de seus usuários entregam um plano de baixa qualidade habitacional.

Portanto, as etapas iniciais do projeto foram norteadas pela pesquisa e equilíbrio as legislações específicas das H.I.S e condicionantes locais de cunho social e climático, a fim de que o empreendimento se adeque da melhor forma a seus usuários e ao entorno.

O objetivo do projeto foi uma H.I.S em consonância com a configuração do espaço urbano, evitando a segregação física e social, e promovendo qualidade de vida e vitalidade urbana.

2

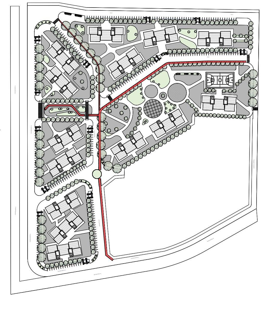
Composiçãodosblocos

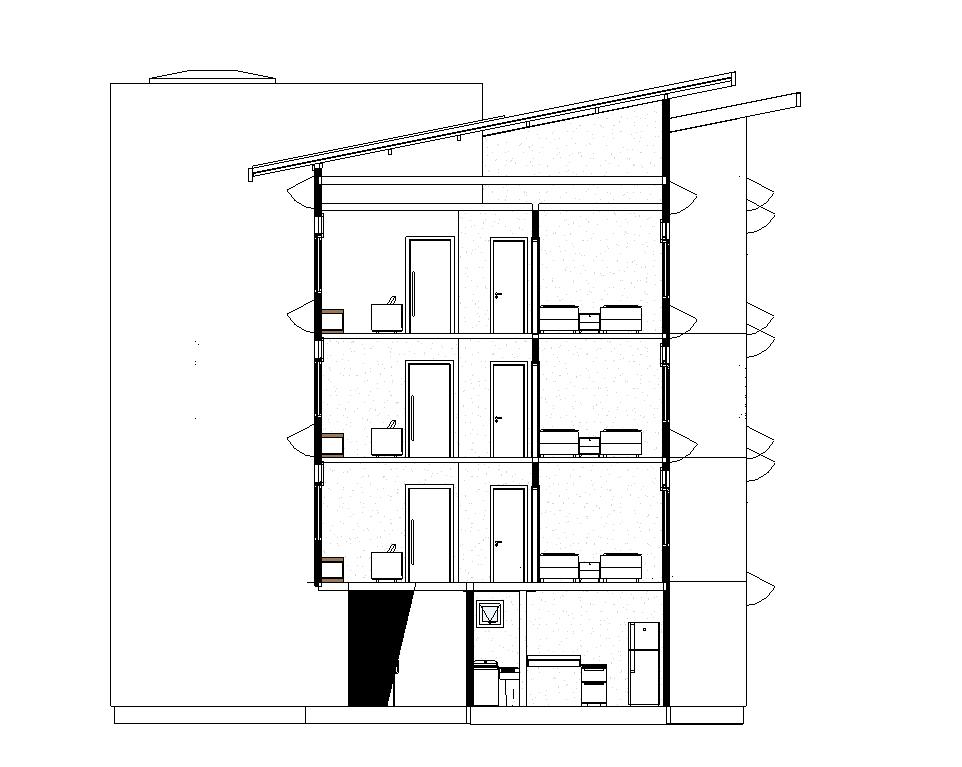
Foram projetados edifícios lineares agrupados em blocos, que, ao todo, se apresentam em 294 unidades divididas em 14 blocos com até 3 pavimentos, além do térreo. Sendo eles 10% acessíveis e 20% com tipologias para 1/4

Partido

A volumetria inicial foi pensada com uma tipologia linear ou em lâmina. Posteriormente, foram adicionados volumes em algumas partes e subtraídos de outras. Esta escolha se deu pelo fato de priorizarmos a ventilação dos apartamentos, voltadas para a rua em todas as fachadas, como forma de proporcionar segurança para os pedestres.

Foram seguidas as normativas estabelecidas pelo Plano Diretor de Belém para a Zona 5. Segundo o Art. 92, a Zona de Ambiente Urbano 5 (ZAU 5), caracteriza-se pelo uso predominantemente residencial, com alta densidade populacional, ocupação de comércio e serviço nos principais eixos viários, edificações térreas ou de dois pavimentos, carência de infraestrutura e equipamentos públicos, alta incidência de ocupação precária, núcleos habitacionais de baixa renda e risco de alagamento.

A escolha dos materiais foi condicionada à praticidade e teto orçamentário, eficiência construtiva envolvimento social e cultural. Toda fachada do prédio será revestida em tinta acrílica própria para área externa, a fim de evitar infiltrações, além da estética raio-que-o-parta escolhida como parte do revestimento da fachada norte, ela é composta de resíduos reutilizados de cacos de ladrilhos quebrados, o que pr economia, durabilidade do estética regional do movimento perdurou entre as décadas 40 Pará.

ZAU5

A tipologia escolhida permitiu o melhor aproveitamento do espaço, no qual todos os apartamentos chegam próximo ao tamanho máximo permitido de 50m²;

Implantação

A escolha do telhado borboleta foi baseada no clima local de chuvas constantes e reaproveitamento das águas pluviais, além de não formar grandes cortinas de água ao redor do prédio e nas entradas graças a direção de sua inclinação.

Com quatro acessos ao condomínio através das duas avenidas principais que o circundam, é estabelecida e conectividade com o entorno. Os acessos se interseccionam entre duas ruas de tráfego de carros, bicicletas e pedestres, além de acessos menores entre os blocos, exclusivos para pedestres. ciclofaixa

São 14 edifícios distribuídos no terreno, os quais possuem suas faces principais para os sentidos norte-sul com exceção de dois blocos que devem estar fixados nos sentidos nordeste-sudoeste.

Possui um centro de lazer, comunitário com equipamentos urbanos planejados para atender não somente a população do conjunto, mas o entorno além de incentivar o comércio e a cultura.

São feitas também, 1 vaga de garagem para cada unidade habitacional, além de acostamentos para visitantes.

PRANCHASTÉCNICAS

PAVIMENTOTIPO

TIPO1PCD TIPO2PCD TIPO1-1/4 CIRC VERTICAL CIRC VERTICAL TIPO1-2/4 TIPO5-2/4 TIPO3-2/4 TIPO4-2/4 TIPO2-2/4 TIPO2-1/4 CIRC VERTICAL CRC VERTCAL
TÉRREO
(91 985727184 WHATSAPP valerialazcanodigita@gmal com EMAIL Obrigada.

Turn static files into dynamic content formats.

Create a flipbook
Issuu converts static files into: digital portfolios, online yearbooks, online catalogs, digital photo albums and more. Sign up and create your flipbook.
My first document by Valéria Lazcano - Issuu