PROPUESTA DE DISEÑO_VALERIA VARGAS Y MARIA FERNANDA VILLANUEVA

Page 1

PROPUESTA DE DISEÑO

2021

PROPUESTA

El diseño se basó en la actividad de e ercitarse ya que se tomó en cuenta que es mportante cuidar de la salud f s ca de las personas Se crearon estrateg as de d seño para obtener un espacio adecuado y funcional en el que él usuario podrá ejerc tarse de manera cómoda

El espac o no es un gimnas o convenc onal, se dec dió div d r el amb ente en dos niveles para crear fluidez y dinamismo invitando al usuario a proponerse retos con los diversos obstáculos interact vos

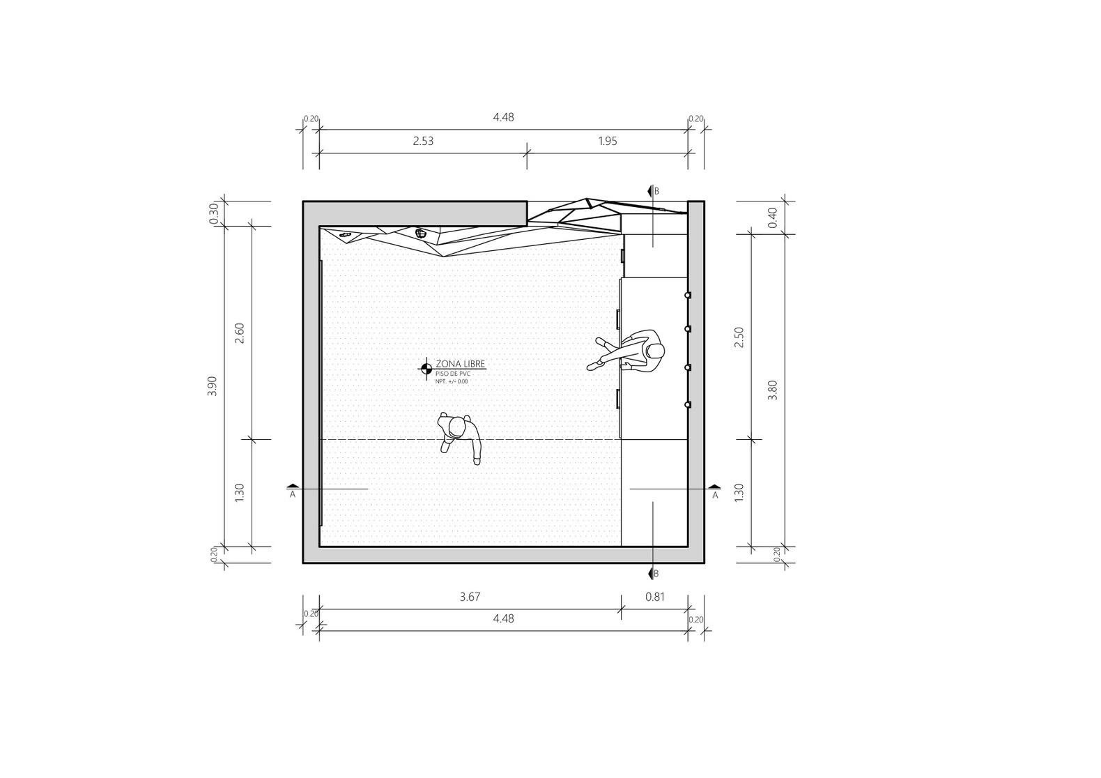
PLANTA 1ER PISO

PLANTA

PLANTAS 0 15 Pa es ra nc nada con revest m ento de madera de roble Oak e=0 02 cm Ventanal geométr co de v dr o temp ado e= 0 01 cm Piso de colchoneta PVC e=0 01 cm Espe o de pared con ma co de metal co or negro 3 20 x 1 54 m e=0 01 cm Proyecc ón de puente Cooler de ace o nox dab e 0 36x0 63x0 30 m e=5mm con tapa de madera de rob e Oak Mueb e de almacenam en o/descanso de made a de rob e Oak 1 90x0 80x0 68 m e=0 02 cm con radores de acero nox dable co or negro Barras de luz LED b anca con perfi de alum n o color negro Ø=0 5cm Base de puente de madera de rob e Oak 1 40x0 81x0 15 m e=0 02 cm
Pa es a nc nada con reves m ento de made a de rob e Oak e=0 02 cm Ventana geométr co de v dr o templado e= 0 01 cm Ventana geométr co de v dr o temp ado e= 0 01 cm P so de co chone a PVC e=0 01 cm Barras de uz LED blanca con perf l de a um n o co o negro Ø=0 S5cm aco de boxeo tap zado de cuero co or gr s h=1 40 m Ø=0 37cm w=40kg Cuerdas esca onadas de Ny on de 3 h os co or negro Ø=0 4cm An l as de ca sten a de madera co o ama as Ø=0 12cm Puente curvo de madera de rob e Oak 4 48x1 30 m
2DO PISO ESC 1/25

CORTE

Ventana geomé r co de v dr o emplado e= 0 01 cm An l as de ca s en a de madera co o amar l as Ø=0 12cm Puen e curvo de madera de roble Oak 4 48x1 30 m Cuerdas escalonadas de Ny on de 3 h los co or neg o Ø=0 4cm Mueble de a macenam ento/descanso de made a de rob e Oak 1 90x0 80x0 68 m e=0 02 cm con t adores de ace o nox dable co or negro Barra para dom nadas de a umin o color negro 0 70x0 55x0 47 m Barras de acero nox dab e co o negro 0 65x0 16 m Ø=0 05 cm Mueb e de descanso de madera de rob e Oak 1 90x0 80x0 68 m e=0 02 cm con radores de ace o nox dable co or negro Ca ones de a macenam ento madera de rob e Oak 0 92x0 70x0 30 m e=0 02 con radores de ace o nox dable co or negro CORTES Ba as de luz LED b anca con pe f de a um n o color negro Ø=0 5cm Pa estra nc nada con evestim en o de madera de roble Oak e=0 02 cm Ventana geomé co de v dr o temp ado e= 0 01 cm Saco de boxeo tap zado de cuero colo gr s h=1 40 m Ø=0 37cm w=40kg Espe o de pared con marco de me a co o negro 3 20 x 1 54 m e=0 01 cm CORTE A A ESC 1/25 Pa estra nc inada con reves m ento de madera de rob e Oak e=0 02 cm Ventanal geométr co de v drio temp ado e= 0 01 cm Cuerdas esca onadas de Ny on de 3 h los co or negro Ø=0 4cm Coo e de ace o nox dable 0 36x0 63x0 30 m e=5mm con tapa de madera de roble Oak Ventana geomé co de v dr o temp ado e= 0 01 cm Saco de boxeo tap zado de cuero co or gr s h=1 40 m Ø=0 37cm w=40kg An l as de cal sten a de made a color amar as Ø=0 12cm Puente cu vo de madera de ob e Oak 4 48x1 30 m Espe o de pared con marco de meta co or neg o 3 20 x 1 54 m e=0 01 cm Base de puente de madera de rob e Oak 1 40x0 81x0 15 m e=0 02 cm Barra pa a dom nadas de a umin o colo negro 0 70x0 55x0 47 m
B B ESC 1/25 NTT +5 10 NPT +2 50 NPT +0 15 NTT +5 10 NPT +2 50 NPT +0 15 D 1 D 2 D 3

La maqueta del d seño fue nuestra primera aproximación a nuestro diseño, hacerla ayudó a fam liarizarnos con la volumetr a de los espacios Asimismo, s rvió

bar r n e par d y e me

Después

Los escalones de la palestra no estaban correctamente proporcionados

Bastante iluminación grac as a los grandes ventanales

Se traba ó en la transición de la palestra y el ventanal, para que esta sea suave y gradual

Se puede apreciar a pa estra que en un princ p o era llana, también se realizó mod ficac ones para que sea volumétrica

MAQUETA

Pared con revest miento de madera de rob e Oak Se encuentra en todo e espac o y le da un aspec o homogéneo

Saco de boxeo de cuero gr s Ub cado en el segundo n vel cuenta con un espac o amp io pa a poder p act car e deporte con comod dad

Ventanal geométr co Perm te e ngreso de abundan e uz y a re a amb ente

Palestra vo umétr ca Una forma de sub a segundo n ve Su fo ma aumenta a d f cu tad de esca ar para e usuar o

Puente curvo Es lo que sos ene as barras en z gzag del

me

sten a

y les da un mayor grado de d ficultad y tamb én s rve como p so para la zona de

La mater alidad y los ob etos empleados en el nter or del ambiente son considerablemente min malistas ya que la forma triangular de los muros y las mamparas hacen que el amb ente se vea muy mponente al ojo del usuario, es por ello que se generó un contraste entre ambas cual dades para generar la ntegración del espacio

Espejo de pared comp eta con ma co de metal Ayuda a que el usuar o pueda observar sus mov m entos al momento de e erc tarse o est a

Mueble de descanso/a macenam ento E usua o se puede sen ar a descansar en cua qu e momento de a ru na este mueble tamb én cuenta con compart mientos para a macenar os utens os de depo e y con un compa m ento cooler

Zona ibre con piso de PVC color gr s Espac o amp o donde se puede eal zar cualqu er rut na de e erc cio o est ram en o cómodamente

PERSPECTIVA
pr
n vel
cal
Barras en z gzag de acero nox dab e Bastan e es s entes a peso de usuar o y a contacto con a p el Ventana geométr co de pr mer n vel Perm te e ngreso de abundante luz y a re a amb ente An l as de madera S rve para pract car ca sten a, se encuentran en d eren es n ve es escalonados pa a amp ar a var edad de e e c c os que se pueden real za y pa a aumen ar e grado de d f cu tad Barras de uz LED Aportan bas ante uz a amb ente sobre odo cuando no se puede contar con luz natura

DETALLES

El mobiliario y los elementos indispensables se desarrollaron de manera que el espacio sea un espac o homogéneo a pesar de tener formas orgánicas

La materialidad, la geometría y la paleta de colores ayuda a que este se vea como un espacio dinámico

PUENTE DE PASAMANOS Y DESNIVEL DE BARRA PARA DOMINADASD-1

UNIÓN DE PALESTRA Y VENTANAL VOLUMÉTRICOD-2

MUEBLE PRINCIPAL DE ALMACENAMIENTO Y REFRIGERACIÓND-3

Desglose y func onalidad de las cajoneras y el baúl de refr gerado

Ca ones de almacenamiento madera de rob e Oak 0 92x0 70x0 30 m e=0 02 con T radores de acero noxidable color negro Ø=0 5cm Coo er de acero inox dab e 0 36x0 63x0 30 m e=5mm con tapa de madera de rob e Oak con b sagra hidráu ca Barra para dom nadas de a um nio co or negro 0 70x0 55x0 47 m Base de p so curvo de madera de rob e Oak 1 40 x 0 81 x 0 15 m P so curvo de madera de rob e Oak 4 48x1 30 m (sirve como soporte de barras en e pr mer nive Palestra vo umétr ca con revest m ento de madera de rob e Oak e=0 02 cm Ventanal geométr co de vidrio temp ado e=0 01cm ISOMETRÍA EXPLOTADA
Barras de acero nox dab e co or negro 0 65x0 16 m Ø=0 05 cm
S stema de corredera telescópica S stema h dráu co de bisagra para baú S stema de refr gerac ón con temperatura a med da Presas de esca ada de plást co res stente color gris 10 x 10 cm Transición gradua entre a palestra y el ventanal siguiendo a geometr a planteada de espac o Ventanal geométr co que perm te e ngreso de abundante luz y a re al amb ente Marco de meta color negro e=0 03 cm y b sagras de acero noxidab e color p ata 7 x 7 x 3 cm

El pr mer n vel cuenta con un amplio espacio bre y un gran espejo que cubre la pared, por lo tanto, el sujeto podrá realizar cualqu er actividad de estiram ento y/o rut na de e erc cio en un espacio apropiado También, podrá hacer uso del pasamanos con diferentes alturas y las sogas escalonadas, las cuales son otra alternativa para poder sub r al segundo n vel

Después de haber real zado los circu tos del espac o, la persona podrá tomar un descanso mientras disfruta la gran cantidad de luz y vent ac ón que ngresa en el ambiente Además, podrá h dratarse y disfrutar de una refrescante bebida grac as al compartim ento del cooler de acero inox dable ncorporado en el mueble de descanso

EXPERIENCIA DEL USUARIO

Con la palestra el nd v duo demuestra que es capaz de superar los retos establecidos por su volumetr a, los p cos tr angu ares hacen que la sub da al segundo piso sea d f cu tosa Una vez la persona en el segundo nivel podrá desarrol ar sus habil dades deport vas e la zona de boxeo

Desde el segundo n ve se t ene una vista completa de todo e espacio, se encuentra la zona de boxeo y la zona de ca sten a, la cual consta de an llas de madera escalonadas para mayor d ficultad

EXPERIENCIA DEL USUARIO

Turn static files into dynamic content formats.

Create a flipbook
Issuu converts static files into: digital portfolios, online yearbooks, online catalogs, digital photo albums and more. Sign up and create your flipbook.