

Flourish ! Concept

Composting

Waste is killing us and is aggressively deteriorating the environment; if we don’t limit the amount of waste we throw away now, the world will tear apart sooner than expected. Nowadays, not many people know about the benefits of living an environmentally friendly lifestyle because these would require people to adopt a new way of living. Most of us live inside a commodity bubble of not wanting to learn about where our waste goes too and about the damage it creates; because of this, one is killing themselves and all living things in the environment. My project will teach about the harmful effects of our waste, what materials we should reduce, and explain how one can live an eco-friendly life by composting, reusing, and recycling. The Sunset Park Material Recovery Facility will become a center where one would go visit and stay for 1 or 2 weeks and learn about the benefits of limiting our waste.
Thesis statement: It is extremely important to reduce a big majority of the waste we consume through recycling, composting, and reusing.
Fl Plan

Sustainable Materials














Fl Plans





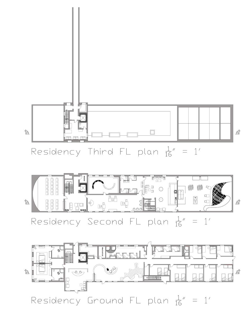
Dorm Thrid Fl plan
Dorm Second Fl plan
Dorm Ground Fl plan
Dorm Section A
Community Center Fl Plan
Restaurant Fl Plan
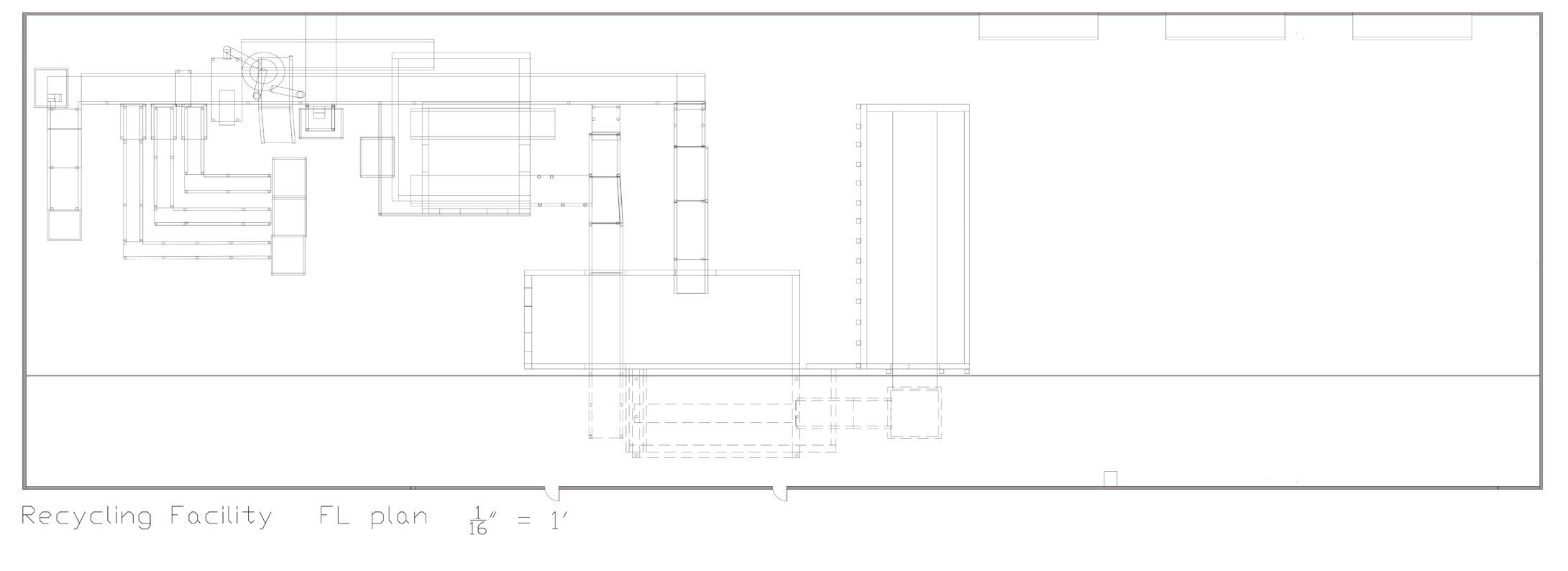
Recycling Facility Fl Plan
Renderings





