Portafolio académico Arq. Valentina Gómez Girón

Page 1

ARQUITECTA VALENTINA GÓMEZ GIRÓN

PONTIFICIA UNIVERSIDAD JAVERIANA CALI

1
PORTFOLIO
2022   

TALLER INTERSEMESTRAL MURS/ 2019

“CREO QUE LA ARQUITECTURA ES UN DEBER CÍVICO QUE SE RELACIONA CON LA HUMANIDAD, UN DEBER SOCIAL QUE AFECTA A LA SOCIEDAD Y UN DEBER ÉTICO, YA QUE REPRESENTA LOS VALORES RELACIONADOS CON LA FORMA EN QUE VIVIMOS”

MARIO BOTTA

INFORMACIÓN PERSONALINFORMACIÓN ACADÉMICA

VALENTINA GÓMEZ GIRÓN

CELULAR: 322 6132902

TELEFONO FIJO: 380 3608

CORREO ELECTRÓNICO: valengogi@gmail.com

RESIDENCIA: CALI, COLOMBIA

FECHA DE NACIMIENTO: 14 FEBRERO 2000

2005-2012 2012-2017 2017-2022

COLEGIO SANTA MARIANA DE JESÚS/ PRIMARIA

LICEO BENALCAZAR/ BACHILLERATO

PONTIFICIA UNIVERSIDAD JAVERIANA DE CALI/ PREGRADO ARQUITECTURA

PROGRAMAS

AUTOCAD

REVIT

SKETCH UP

LOGROS

TERCER PUESTO EN ENTREGA FINAL PROYECTOS I / 2017-2

TERCER PUESTO EN ENTREGA FINAL PROYECTOS VI / 2020-1

ADOBE PHOTOSHOP

ADOBE ILLUSTRATOR

ADOBE INDESIGN

LENGUAJES

ESPAÑOL ALTO/ NATIVO INTERMEDIO INGLÉS

PRIMER PUESTO EN ENTREGA FINAL PROYECTOS VII / 2020-2

PRIMER PUESTO-EQUIPO GANADOR EN CONCURSO ACADÉMICO 5TO. TALLER VERTICAL BIO VIA, REALIZADO EN EL JARDÍN BOTÁNICO DE CALI / 2019-2

CALIFICACIÓN SOBRESALIENTE EN PROYECTO DE GRADO Y RECONOCIMIENTO POR MEJOR SABER PRO/ 2022-1

LUMION ENSCAPE TWINMOTION

MICROSOFT OFFICE

TRABAJO MANUAL : DIBUJOS, GRAFICOS, MAQUETAS

ÍNDICE

SEMESTRE I SEMESTRE II SEMESTRE III SEMESTRE IV INTERSEMESTRAL SEMESTRE V

SALA DE EXPOSICIONES CASA PARA MÚSICO CENTRO COMUNITARIO CENTRO CULTURAL EDUCATIVO TALLER MÁS URBANO, RURAL Y SOCIAL TRATAMIENTO DE RENOVACIÓN Y CONSOLIDACIÓN URBANA

PAG. 6 PAG. 12 PAG. 16 PAG. 20 PAG. 26 PAG. 30

INTERSEMESTRAL SEMESTRE VI SEMESTRE VII

CASA LUMIÉRE DÁIR CINEMATECA DE CALI CENTRO DE ATENCIÓN PARA DISCAPACITADOS

INTERSEMESTRAL

CASA KAY VAN YO

SEMESTRE VIII

TREFILADORA DE ALAMBRE: DEPOSITO EL RECURSO

PROYECTO DE GRADO

DIGNIFICACIÓN DE LA VIVIENDA DE INTERÉS SOCIAL

PAG. 38 PAG. 42 PAG. 50 PAG. 64

PAG. 58 PAG. 76

SEMESTRE I

SALA DE EXPOSICIONES: MÁLAGA

6 PR
6

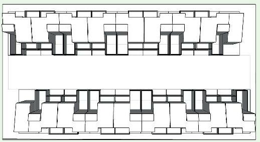
SE PLANTEA UNA FUSIÓN DE 5 VOLUMENES, ORGANIZADOS EN 2 CONJUNTOS QUE POSEEN DOS NIVELES CADA UNO. ESTOS A SU VEZ ESTAN UNIDOS POR UN PASO PEATONALELEVADOYANIVELDELPEATON(RECORRIDO PRINCIPAL) CONTIGUOS A LA FUENTE DE ABASTECIMIENTO HIDRICA DE LA UNIVERSIDAD: UN BRAZO/ DERIVACIÓN 4 DEL RIO PANCE Y DE UNA ZONA DE GUADUALES PARA GENERAR UNA RELACIÓN DIRECTA TANTO VISUAL COMO AUDITIVA Y FISICAMENTE CON LA NATURALEZA EXISTENTE.

SEMESTRE ACADÉMICO 2017-2

LOCALIZACIÓN

UBICADA AL SUR DE CALI, COMUNA 22

PONTIFICIA UNIVERSIDAD JAVERIANA CALI

PLANTA PISO 2
PLANTA PÚBLICA PISO 1 FACHADA NORTE RECONOCIMIENTO TERCER PUESTO EN EL SEMESTRE FACHADA OESTE CORTE TRANSVERSAL C2

SE BASA EN UN CONCEPTO ABIERTO, CON EL FIN QUE EL USUARIO PUEDA DISFRUTAR SIMULTANEAMENTE EL CONTEXTO NATURAL EXISTENTE Y LAS ACTIVIDADES DEL EDIFICIO. ADEMÁS, SE BUSCA REDUCIR EL IMPACTO AMBIENTAL QUE SE PUEDA GENERAR, A TRAVES DE ESTRATEGIAS PASIVAS AMBIENTALES COMO EL APROVECHAMIENTO DE LA LUZ NATURAL, REDUCIR LA TEMPERATURA AL INTERIOR MEDIANTE EL MATERIAL DE SUS MUROS Y LOGRAR GENERAR UNA VENTILACIÓN NATURAL Y CRUZADA EN EL PROYECTO.

CORTE LONGITUDINAL C1

SEMESTRE II

CASA PARA UN MÚSICO:ACANDI

12
12

SE PROPONEN ESPACIOS CONFIGURADOS A TRAVÉS DE UN EJE CENTRAL, AXIALIDAD, DEFINIDOS TAMBIÉN PORJARDINESINTERIORESPARAPODERDIFERENCIAR FACILMENTE LOS ESPACIOS Y SUS DIFERENTES USOS. LA CASA FUE PLANTEADA PRINCIPALMENTE PARA UN USUARIO DE PROFESION MÚSICO, POR ELLO LA CASA POSEE DOS SALAS DE MÚSICA, LA PRINCIPAL CON DOBLE ALTURA PARA DEMARCAR SU JERARQUÍA Y MEJORAR SU ACÚSTICA.

UBICADA AL OESTE DE CALI, COMUNA 2

BARRIO GRANADA

Nivel 1 0 Nivel 2 3 A B C D E F Nivel 3 7 CORTE TRANSVERSAL 1 LOCALIZACIÓN SEMESTRE ACADÉMICO 2018-1 FACHADA ESTE

CADA ESPACIO ESTA CONTIGUO A UNA ENTRADA DE LUZ Y VENTILACIÓN NATURAL PARA APROVECHAR LOS COMPONENTES AMBIENTALES EXISTENTES QUE BRINDA EL SECTOR Y ASI TENER UN CONSTANTE AHORRAMIENTO ENERGÉTICO.

PARA COMPLEMENTAR ESTA IDEA SE HACE USO DE CALADOS, RETRANQUEOS, TERRAZAS Y DOBLES ALTURAS.

SE HACE USO DE UNA ESTRUCTURA A BASE DE COLUMNAS CUADRADAS DE ACERO CON EL FIN DE GENERAR UN CONCEPTO DE ESPACIO ABIERTO A LO LARGO DE LA CASA. CON ESTO SE PUEDE APRECIAR LA RIQUEZA ESPACIAL VISUALMENTE DESDE CUALQUIER PUNTO.

PLANTA PISO 1 PLANTA PISO 2

SEMESTRE III

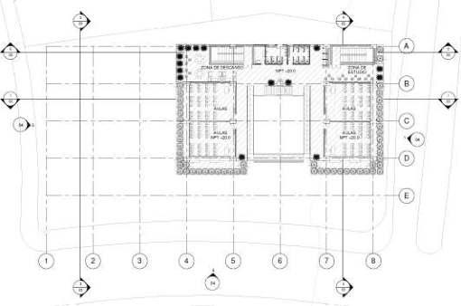
CENTRO COMUNITARIO: TIMBIQUÍ

16
16

SE BUSCA GENERAR UN ESPACIO DONDE A TRAVES DE LA LECTURA Y DE AMPLIAS ZONAS PÚBLICAS PERMITAN DAR CONTINUIDAD AL ESPACIO PÚBLICO Y SEAN ELEMENTOS DE TRANSICIÓN PARA EL INTERIOR DEL EDIFICIO. ADEMAS QUE SE LOGRE INCENTIVAR LA BUENA RELACIÓN ENTRE LOS HABITANTES DEL BARRIO Y CON ELEMENTOS VEGETALES IMPORTANTES CERCANOS.

SEMESTRE ACADÉMICO 2018-2

FACHADA NORTE

PLANTA PISO 1

PLANTA PISO 2

PLANTA PISO 3

LOCALIZACIÓN

UBICADA AL SUR DE CALI, COMUNA 18

BARRIO MELENDEZ

PLANTA CUBIERTA

CONEXIÓN PEATONAL AL REDEDOR Y A TRAVES DEL PROYECTO CON EL BATALLON.

PROLONGACIÓN DEL ESPACIO PÚBLICO ENMARCADO POR UN ALERO DE DOBLE ALTURA.

AHORRO ENERGÉTICO POR MEDIO DE LAS CUBIERTAS QUE PERMITEN LA ENTRADA DE LUZ Y VENTILACIÓN NATURAL.

CONSTANTE RELACIÓN CON VEGETACIÓN CERCANA Y ENTRE USUARIOS ADENTRO Y AFUERA DEL EDIFICIO MEDIANTE DOBLES ALTURAS, TERRAZAS,GRANDES VENTANALES Y DIRECCIONAMIENTO DE VISUALES.

ESTRATEGIAS VOLUMETRICAS.

EL VOLUMEN SE ORIGINA MEDIANTE LA ROTACIÓN DE UNA FIGURA BASE: UN RECTANGULO; A TRAVES DE LA ADICIÓN DE LOS PISOS LA FIGURA BASE VA ROTANDO, GENERANDO TERRAZAS Y RETRANQUEOS QUE INCENTIVAN LA RELACIÓN INTERIOR-EXTERIOR Y PERMITE LA CONEXIÓN CON ELEMENTOS NATURALES.

CORTE TRANSVERSAL 2

PLANTA PÚBLICA

SEMESTRE IV

CENTRO CUNTURAL EDUCATIVO

20
20

EL EDIFICIO BUSCA PROPONER UNA SUCESION DE ESPACIOS DE DIFERENTES ALTURAS Y CAMBIOS DE NIVEL CON EL FIN DE GENERAR ESPACIOS QUE AL RELACIONARSE ENTRE SI PERMITEN INTRODUCIR Y PREPARAR SENSORIAL Y PERCEPTICAMENTE A LOS DIFERENTES TIPOS DE USUARIOS AL RESPECTIVO AMBIENTEDE CADA ESPACIO DEL PROGRAMA.

SEMESTRE ACADÉMICO 2019-1

PRIVADO

LOCALIZACIÓN

UBICADA AL NORTE DE CALI, COMUNA 2

BARRIO SANTA MONICA

SEMI PÚBLICO

PÚBLICO
PISO 2
PLANTA PÚBLICA
CORTE LONGITUDINAL C2 FACHADA ESTE
PLANTA TIPO PLANTA PISO 1

MURS

TALLER PRÁCTICO INTERSEMESTRAL MÁS URBANO, RURAL Y SOCIAL

26
26

EL OBJETIVO DE ESTA ASIGNATURA ES PODER TRABAJAR CON LOS ESTUDIANTES EN UNA ESCUELA QUE SE ENCUENTRA EN CONDICIONES PRECARIAS, PARA QUE SEAMOS NOSOTROS MISMOS QUIENES PUEDAMOS FORMULAR LAS POSIBLES SOLUCIONES A LOS PROBLEMAS Y NECESIDADES QUE ÉSTA PRESENTA. PARA ESTO SE REALIZA UN TALLER CON LA COMUNIDAD CON EL FIN DE DEFINIR CUÁLES SON LAS NECESIDADES REALES DE ESTAS PERSONAS. ESTE PROYECTO DE INTERVENCIÓN SOCIAL SE HACE CON LA ASESORIA DE PROFESORES DE MULTIPLES DISCIPLINAS.

LOCALIZACIÓN

UBICADA AL NORORIENTE DE CALI, COMUNA 4

BARRIO LAS DELICIAS INSTITUCIÓN EDUCATIVA LA MERCED - CEDE CENDOE

ESTA HA SIDO UNA MUY GRATA Y EDIFICANTE EXPERIENCIA PUES NO SOLO NOS PERMITIÓ DISEÑAR PENSANDO EN LA COMUNIDAD Y LAS NECESIDADES QUE ELLOS POSEÍAN SINO QUE TAMBIÉN NOS PERMITIÓ COMPARTIR Y TRABAJAR DE LA MANO CON ELLOS, ENTENDIENDO QUE EL TRABAJO EN EQUIPO ES FUNDAMENTAL PARA SACAR UN PROYECTO ADELANTE EN LAS MEJORES CONDICIONES. ADEMÁS QUE FUE MUY POSITIVO VER PLASMADAS LAS IDEAS Y PROYECTOS PLANTEADOS Y HECHOS POR LAS MANOS DE CADA ESTUDIANTE GENERANDO TANTO EN NOSOTROS COMO EN LA COMUNIDAD ESE SENTIDO DE PERTENENCIA Y APROPIACIÓN POR LOS CAMBIOS REALIZADOS. FINALMENTE LA MEJOR RECOMPENSA DE TODO ESTO FUE LA CONSTANTE COMPAÑÍA, AYUDA DESINTERESADA Y SONRISA SINCERA DE LOS NIÑOS DE LA ESCUELA, QUE A PESAR DE CONOCERNOS HACE POCO TIEMPO NOS BRINDARON SU CARIÑO Y NOS HACÍAN SENTIR PARTE DE ELLOS.

SEMESTRE

V TRATAMIENTO DE RENOVACIÓN R3 Y CONSOLIDACIÓN C3 URBANA

30
30

ESTRATEGIAS

SEMESTRE ACADÉMICO 2019-2

ADECUACIÓN Y PROPUESTA DE CALLEJONES ACOMPAÑADOS DE ADOQUIN Y ZONAS VERDES QUE CONDUCEN AL PEATON A VARIAS PLAZAS Y ANHITOS IMPORTANTES DEL BARRIO COMO EL CENTRO DE DANZAS, EL RIO, LA 1, LA 34 Y LOS PARQUES.

GENERAR CIRCUITOS PEATONALES BRINDANDOLE MÁS IMPORTANCIA AL PEATON MIENTRAS DISFRUTA DE LAS ACTIVIDADES

QUE REACTIVAN EL SECTOR Y CON LOS HABITANTES.

LOCALIZACIÓN

UBICADA AL NORORIENTE DE CALI, COMUNA 4

BARRIO FÁTIMA Y BERLÍN

RESULTADOS DE PROTOCOLOS DE MOVILIDAD

PRE EXISTENCIAS

PLAN PARCIAL

APERTURA DEL BARRIO Y SUS HABITANTES DE UNA FORMA MAS AMIGABLE A TRAVES DE PASADIZOS QUE SE CONVIERTEN EN CALLES VIVAS Y QUE CONDUCEN A PLAZAS UBICADAS AL INTERIOR DE LAS MANZANAS POR MEDIO DE PORTICOS Y COMERCIO QUE RECOMPONEN EL PARAMENTO.

PERFIL PLAN PARCIAL

R3

ESTRATEGIAS
FACHADA
CORTE LONGITUDINAL R3 VIS
PROYECTUALES PLANTA PÚBLICA PISO 1 R3

TIPOS DE UNIDAD DE VIVIENDA R3

PLANTA CUBIERTA R3
PLANTA TIPO C3
ESTRATEGIAS PROYECTUALES
PLANTA PÚBLICA PISO 1 C3
TIPOS DE UNIDAD DE VIVIENDA C3
CORTE LONGITUDINAL 2

LUMIÉRE D’AIR-GREEN CORE

CONCURSO CASAS INHAUS: DISEÑO ARQUITECTÓNICO TIPOLOGIA DE VIVIENDA MODULAR.

38
38

PROCESO VOLÚMETRICO.

PLANTA PISO 1

CON EL FIN DE HOMOGENEIZAR EL INTERIOR Y EL EXTERIOR, SURGE LA CASA LUMIÉRE DÁIR MEDIANTE UNA REJILLA DE 1.22 X 1.22 QUE RESULTAN DE LAS DIMENSIONES DEL PANEL SIP (EMPLEADOENMUROSYLOSAS),SECOMIENZANA CONFIGURAR ESPACIOS DINÁMICOS MODULADOS TANTO EN AREA COMO EN ALTURA (4.88X6.1M)

A MODO DE BANDAS AL REDEDOR DE UN PATIO CENTRALCUADRADOQUEFACILITALAVENTILACIÓN CRUZADA Y ENTRADA DE LUZ NATURAL. LA CIRCULACIÓN QUE DELIMITA ESTE NÚCLE CENTRAL, PROPORCIONA UNA TRANSICIÓN DE LO COMÚN HACIA LO PRIVADO. LA INTERSECCIÓN DE BANDAS GENERA 1/5 DE MÓDULO (1.22X4.88M) ADAPTABLE A LAS INTENCIONES ESPACIALES DEL USUARIO, DISPUESTAS INICIALMENTE COMO UNA EXTENSIÓN DEL ESPACIO O BALCÓN, APORTANDO VERSATILIDAD AL DISEÑO.

EQUIPO DE TRABAJO: ESTUDIANTE DE ARQ. XIMENA URICOECHEA, ESTUDIANTE DE ARQ. ISABELLA MONTERO.

COLABORACIÓN EN IDEAS, DISEÑO Y REPRESENTACIÓN.

PLANTA PISO 2

SIGUIENDO LA INTENCIÓN PRINCIPAL Y BUSCANDO LA SOSTENIBILIDAD, EL DISEÑO DE LA CASA CUENTA CON UN SISTEMA PARA LA RECOLECCIÓN DE AGUAS LLUVIAS, INSTALACIÓN DE PANELES SOLARES FOTOVOLTAICOS, CUERPOS DE AGUA, JARDINES VERTICALES A MANERA DE CELOSIAS Y GRANDES VENTANALES.

COLABORACIÓN: DISEÑO, MODELADO EN REVIT, MEMORIA ARQUITECTÓNICA, ELABORACIÓN DE GRÁFICOS, RENDERS Y POST PRODUCCIÓN DE PLANIMETRIA

FACHADA NORTE

FACHADA OESTE

CORTE LONGITUDINAL CORTE TRANSVERSAL

SEMESTRE VI

CINEMATECA DE CALI: EL HUMEDAL

42
42

LA CINEMATECA SE CONCIBE COMO 3 VOLÚMENES ORGÁNICOS QUE ACOGEN LOS CUERPOS DE AGUA CERCANOS,ESTOSSEDISPONENHACIALAEXPANSIÓN

DE CALI QUE SURGEN DESDE UN TERRENO CON UN GRAN VALOR HISTÓRICO, PRETENDIENDO ASÍ REVIVIR LA MEMORIA COLECTIVA DE LA CIUDAD. EL PROYECTO SE PERMEA SEGÚN LAS LÓGICAS Y NECESIDADES DE LOS FACTORES QUE LO ENFRASCAN: UN NODO DE EQUIPAMIENTOS EDUCATIVOS, UN EJE DE VEGETACIÓN QUE DEBE SER CONTINUADO PARA CONECTAR Y PROPORCIONAR ESPACIOS PÚBLICOS QUE AL MISMO TIEMPO RECUPEREN ESPECIES DE FAUNA Y FLORA. EL PROGRAMA DE LA CINEMATECA SE REPARTEENLAS3GOTASARMÓNICASQUEENMARCAN VISUALES Y CONEXIONES URBANAS.

SEMESTRE ACADÉMICO 2020-1

LOCALIZACIÓN

UBICADA AL SUR DE CALI, COMUNA 22

BARRIO VILLA

ESTRATEGIAS PROYECTUALES
PLANTA PÚBLICA PISO 1 CORTE LONGITUDINAL
CORTE LONGITUDINAL
ESPACIOS PÚBLICOS
PLANTA CUBIERTA
FACHADA OESTE

ESTRATEGIAS BIOCLIMÁTICAS

RECONOCIMIENTO TERCER PUESTO EN EL SEMESTRE

COLABORACIÓN:DISEÑO,MODELADOENREVIT,MEMORIA ARQUITECTÓNICA, ELABORACIÓN DE GRÁFICOS, RENDERS Y POST PRODUCCIÓN DE PLANIMETRIA

SEMESTRE VII

CAD: CENTRO DE ATENCIÓN PARA DISCAPACITADOS

50
50

SE PROPONEN TRES VOLUMENES DE DOS PISOS Y DIFERENTES ESPACIOS PÚBLICOS DIRIGIDOS PRINCIPALMENTEALASPERSONASPMRYJOVENES (MAYOR POBLACIÓN DEL SECTOR) ENFOCADOS HACIA LA PARTE ARTISTICA, COMUNITARIA Y REFLEXIVA. EN EL CAD SE DESARROLLAN TRES EJES PRINCIPALES: REHABILITACIÓN FÍSICA, REHABILITACIÓN EMOCIONAL Y TERÁPIA EDUCACIONAL, Y CADA EJE SE CONFIGURA EN UN VOLUMÉN DIFERENTE, UNIDOS ENTRE SI POR UN PASO ELEVADO EN EL SEGUNDO PISO, PERMITIENDO GENERAR CONEXIONES VISUALES Y PEATONALES CON LA VEGETACIÓN EXISTENTE, LA CUENCA DEL RIO, Y LOS ESPACIOS PÚBLICOS PROPUESTOS.

SEMESTRE ACADÉMICO 2020-2

LOCALIZACIÓN

UBICADA AL SUR DE CALI, COMUNA 18

BARRIO MELENDEZ

RECONOCIMIENTO PRIMER PUESTO EN EL SEMESTRE

PLANTA PÚBLICA PISO 1
2
PLANTA PISO
CORTE TRANSVERSAL CORTE LONGITUDINAL
FACHADA SUR CORTE TRANSVERSAL
CORTE LONGITUDINAL FACHADA NORTE

ESTRATEGIAS BIOCLIMATICAS

CORTE TRANSVERSAL

KAY VAN YO: CASA DE LOS VIENTOS

CONCURSO SCA: DISEÑO TIPOLOGÍAS DE VIVIENDA PARA HABITANTES AFECTADOS POR EL HURACÁN IOTA

58
58

ISLAS CARIBEÑAS DE PROVIDENCIA Y SANTA CATALINA

KAY VAN YO ES UNA CASA CONSTRUIDA PRINCIPALMENTE EN MADERA PLASTICA, FORMADAPORPEQUEÑOSMODULOSYSOSTENIDA POR MARCOS ESTRUCTURALES EN ACERO, LO QUE PROPORCIONA LA ESTABILIDAD NECESARIA. LOS PANELES DE PARED NO POSEEN FUNCIÓN ESTRUCTURAL, POR ENDE SE CONVIERTEN EN UN ELEMENTO IDEAL PARA FACILITAR LA PROGRESIVIDAD DE LA CASA. LOS CIMIENTOS ESTAN DISEÑADOS CON POILOTES DE CONCRETO CON EL FIN DE AISLAR LA VIVIENDA DEL SUELO Y PROTEGERLA EN POSIBLES INUNDACIONES O ENTRADA DE ANIMALES.

ASOLEAMIENTO-VIENTOS

PLANIMETRIA

PLANTA PISO 1

SE PIENSA EN LA CONSTRUCCIÓN DE UN REFUGIO ANTE LA DESTRUCCIÓN DE LOS HURACANES, MEDIANTE UN MODULO (BAÑO-COCINA) CON LAMINAS DE CONTENEDORES EN SUS FACHADAS, LOS CUALES RESISTEN LOS FUERTES VIENTOS GRACIAS A LAS VIGAS QUE LOS CONFORMAN. LA CONFIGURACIÓN ESTANDAR DE LA CASA ESTA COMPUESTA POR 4 MODULOS Y UN ESPACIO CONSTRUIDO DE 77M2.

PLANTA PISO 2

DESPIECE ESTRUCTURAL PROGRESIVIDAD

BASAMENTOARMAZON ESTRUCTURALREFUGIO Y CUBIERTAREVESTIMIENTO
ORNAMENTO
PROCESO CONSTRUCTIVO

SISTEMA DE RECOLECIÓN DE AGUAS LLUVIAS

EQUIPODETRABAJO:ARQ.DANIELANDRESRUIZ,ARQ. DANIELA PENAGOS, ARQ. NASLY DANIELA REBOLLEDO, ARQ. BRANDON ALEXIS TARAPUEZ, ARQ. CAMILO JOSÉ ALZATE, ESTUDIANTE DE ARQ. XIMENA URICOECHEA, ESTUDIANTE DE ARQ. JUAN CAMILO OBANDO.

COLABORACIÓN: MODELADO EN REVIT, ELABORACIÓN DE GRÁFICOS EXPLICATIVOS Y POST PRODUCCIÓN DE PLANIMETRIA

FACHADAS
CORTE TRANSVERSALCORTE LONGITUDINAL FACHADA NORTE FACHADA SUR CORTES ARQUITECTÓNICOS
ARQUITECTÓNICAS

SEMESTRE VIII

TREFILADORA DE ALAMBRE: DEPOSITO EL RECURSO

64
64

ESTE PROYECTO BUSCA A DAR A CONOCER LA FÁBRICACIÓN DEL ALAMBRE Y VARIOS DE SUS USOS, A TRAVÉS DE UNA EXPERIENCIA DIRECTA DEL USUARIO CON EL DISEÑO DE LA FACHADA Y ELEMENTOS RESULTANTES DEL TRABAJO CON ALAMBRE UBICADOS EN EL ESPACIO PÚBLICO, CON EL FIN DE INVOLUCRAR A LA COMUNIDAD Y CONSOLIDAR LA INTERSECCIÓN VIAL EN QUE SE ENCUENTRA Y LAS FÁBRICAS ALEDAÑAS, TENIENDO EN CUENTA EL RESPETO POR LA VEGETACIÓN EXISTENTE E IMPLEMENTACIÓN DE NUEVA VEGETACIÓN AL INTERIOR Y EXTERIOR DEL EDIFICIO.

SEMESTRE ACADÉMICO 2021-1

LOCALIZACIÓN

UBICADA AL NORTE DE CALI, COMUNA 6

BARRIO VILLA DEL PRADO - EL GUABITO

01 02 12 13 14 15

Despacho camiones

Proceso de la trefilación del alambre: Layaout

Entrada camiones

15
PLANTA PÚBLICA PISO 1

PLANTA PISO 2

Control a toda la zona de planta/ producción (cuenta con doble altura) desde el piso 2: zona de administración

Acompañadas por plantas en un eje verde o elementos interiores.

Circulaciones lineales que no interfieran el proceso productivo del material ni las otras actividades relacionadas a este 16
A B C E F H G I D
A B C E F H G I D

Cubierta: teja metecno

Cubierta verde

Correas en acero para cubierta teja metecno

Vigas principales en acero: estructura cubierta teja metecno

Vigas canales en concreto

Viga canal en concreto

Vigas principales en acero: estructura cubierta verde Viguetas en acero: estructura cubierta verde

Losa piso 2 con acabado en concreto pulido

Losa piso 2 terraza con deck en madera plástica

Vigas principales en acero: estructura piso 2 Viguetas en acero: estructura piso 2

Columnas cuadradas huecas en acero

Cerramiento exterior de muros cortina

Cerramiento exterior de muros en steal framing

Losa piso 1 con acabado en concreto pulido

Zonas verdes piso 1 para ubicación de vegetación en la fachada

Vigas principales en acero: estructura piso 1 Viguetas en acero: estructura piso 1

Cimentación parqueadero: muros de contención de concreto fundido

Losa parqueadero en concreto fundido

Vigas de cimentación en concreto

AXONOMETRÍA ESTRUCTURAL
                                                                                                                            Cubiertas Piso 1

Ubicación de paneles solares fotovoltaicos en la cubierta

Grafico estrategias de iluminación y ventilación natural (-)

Enfriamiento del aire por medio del agua y la vegetación en fachada

Descolgado y muro verde para las instalaciones de la bateria sanitaria del piso 2

Corrientes predomiennates del viento desde el sureste

Parqueadero Oficina comercial y contableSala de juntas Zona de empleadosZona de trefliación del alambre Baño PMR Baños mujeres Baños hombres Punto fijo Parqueadero Espacio público (+)
5 1 2 3 4 8 9 12 10 6 13 7 5 21 20 25 26 27 28 NPT
NPT +-
1 11 7 24 23 22 2 1 19 18 17 16 15 14 29 30 4 3 2 1 6 9 8 10 5 7 CONVENCIONES DETALLES 12 ” ” 13 20 21 27 25 26 28 11 14 15 16 17 18 19 22 23 24 29 30
+4.5 CUBIERTA VERDE PISO 2
0.00 PISO

SEMESTRE IX: PROYECTO DE GRADO PROPUESTA ARQUITECTÓNICA DE DISEÑO DIGNIFICADOR EN VIVIENDA DE INTERÉS SOCIAL

76
76

DESARROLLAR UNA PROPUESTA DE DISEÑO DE VIVIVIENDA DE INTERÉS SOCIAL BASADA EN LA MANERA DE HABITAR LOS ESPACIOS, LAS NECESIDADES DE LOS USUARIOS Y LA SOSTENIBILIDAD PARA RECUPERAR LA DIGNIDAD Y LA CALIDAD DE VIDA EN LA VIVIENDA. A TRAVES DE ESTOS PRINCIPIOS: - RELACIONES INTERIORES Y EXTERIORES

- PROGRESIVIDAD/ CAPACIDAD DE AMPLIACIÓN

- FLEXIBILIDAD EN LOS ESPACIOS - OPCIÓN DE PRODUCTIVIDAD

SEMESTRE

2021-2 Y 2022-1

Tiene un perímetro de 8024.50 m y un área de 1081.192.33 m²

LOCALIZACIÓN

Deporte Tuluá, 2021), y es donde se concentran la mayor parte de proyectos de vivienda de interés social del municipio. 4°05'44.2"N 76°13'05.8"O

Pocos equipamientos que suplen a una pequeña población (pequeño radio de influencia).

ortogonales pero en diferentes direcciones. ña población (pequeño radio de influencia).

ña población (pequeño radio de influencia).

Convenciones:

Vía primaria Proyección vía primaria Proyección vía terciaria Vía secundaria Vía terciaria

LOTE LOTE SISTEMAVIAL

ortogonales pero en diferentes direcciones.

Vía Farfán: futuro eje de movilidad

Observaciones del sector:

Vías existentes destinadas para vehiculos y no se encuentran en adecuadas condiciones

Mayoria de vías netamente residenciales, por lo que hay poca presencia vehicular (principalmente residentes del sector.)

Observaciones del sector: uso.

(principalmente residentes del sector.)

Parque del socio

Observaciones del sector:

zado por los habitantes del sector.

LOTE

ESPACIOPÚBLICO

zado por los habitantes del sector.

Carencia de espacio para usuarios como: PeatonesCiclistasPMR uso.

Carencia de zonas verdes y espacio público bien equipado para ser utilizado por los habitantes del sector.

Presencia de zonas verdes desaprovechadas para su uso.

El lote cuenta con gran cantidad de especies arboreas, especialmente en todo su perimetro.

3°25′00″N 76°31′00″O
4°05′05″N 76°11′55″O
- SOSTENIBILIDAD TANTO DE LA VIVIENDA COMO DEL USUARIO - CONFORT TÉRMICO BARRIO FARFÁN ACADÉMICO
UBICADA AL ESTE DE TULUÁ, COMUNA 7 Futura urbanización Terranova Urbanización Villa Liliana Proyección futura vía Farfán Polideportivo Farfán Capilla Niño Jesús de Praga
LOTE LOTE USODELSECTOR
Sector principalmente residencial VIS con una distribución de las manzanas en mallas ortogonales pero en diferentes direcciones.

un perímetro de 8024.50 m y un área de 1081.192.33 m²

Tuluá, 2021), y es donde se concentran la mayor parte de proyectos de vivienda de interés social del municipio.

ortogonales pero en diferentes direcciones.

(principalmente residentes del sector.)

4°05'44.2"N 76°13'05.8"O
PLANTA PÚBLICA PISO 1 AGRUPACIÓN MANZANA

POSIBLES AGRUPACIONES DE LA PROPUESTA DE MANZANA PROPUESTA DE AGRUPACIONES EN LOTE IRREGULAR

DISTRIBUCIÓN CALLE INTERIOR
50% 50%

ESTRATEGIAS VOLUMÉTRICAS

ESPACIOS DE SERVICIOS 3D DISTRIBUCIÓN ÁREAS

PLANTA PISO 1

PLANTA PISO 2



ESPACIOS DE SERVICIOS3D DISTRIBUCIÓN ÁREAS



       

       

  

  





  

       



    

      





   

 


 

    
   
CRECIMIENTO: AMPLIACIÓN DE LAS VIVIENDAS

  



      

  





  

        

 



  

   

 

   FLEXIBILIDAD: ADAPTABILIDAD DE ESPACIOS SEGÚN NECESIDADES DEL USUARIO MATERIALES IMPLEMENTADOS PRODUCTIVIDAD DE LA VIVIENDA CORTE LONGITUDINAL 2

2 8 1 4 6 3 5 7 2' 1' H

 



   

   

Cubierta 5.52

Nivel 2 2.76

 

Nivel 1 0.00

 

A C

D B

 

 

Cubierta 5.52

     

       

      

        





  

         



  

Nivel 2 2.76

      

 

MÓDULOS DIVISORIOS PROPUESTOS GRÁFICO 3D ESTRUCTURAL

        

 




     
Nivel 1 0.00
   
 

    
             
        

        
                    
         
      
     
 
 

         
        

    

                                   ESTRETGIAS ESTRUCTURALES
CORTE TRANSVERSAL 2

      

        



Cubierta 5.52

Nivel 2 2.76

      

      

Nivel 1 0.00

 
  
 
  
         

8 6 5 7 
N 2 A 8 C E D 1 4 6 3 5 B 7 2 1 N N 2 A 8 C E D 1 6 5 B 7 2 1    
Nivel 1 0.00 Nivel 2 2.76 Cubierta 5.52 2 8 1 4 6 3 5 7 2' 1'
ESTRATEGIAS PARA DISMINUIR LA TEMPERATURA INTERNA
MOVIMIENTO DEL VIENTO ESTRATEGIAS BIOCLIMÁTICAS

            
CORTE BIOCLIMÁTICO
2 2 2 2                                                                                                            Nivel 1 0.00 Nivel 2 2.76 Cubierta 5.52 A C E D B          ro 3,873,871314,24                                  4,144,141228,53  ENTRADA DE LUZ SOLAR ESTRATEGIAS PARA MITIGAR EL IMPACTO DIRECTO DE LA LUZ SOLAR LUXES AL INTERIOR DE LA CASA IMPLEMENTACIÓN DE PANELES SOLARES FACHADA FRONTAL
                                    Nivel 1 0.00 Nivel 2 2.76                                                                                                
             IMPLEMENTACIÓN DE AHORRO DE AGUA LLUVIA FACHADA POSTERIOR MAQUETA REALIZADA MANZANAVIVIENDA


VALENTINA GÓMEZ GIRÓN

GRACIAS! :)   

Turn static files into dynamic content formats.

Create a flipbook
Issuu converts static files into: digital portfolios, online yearbooks, online catalogs, digital photo albums and more. Sign up and create your flipbook.