

Portfolio
Valentin Enes Dias

Actuellement étudiant en Master 1 à la Faculté d'Architecture et d'Urbanisme LOCI Tournai en Belgique, je suis à la recherche d'un stage en agence d'architecture d'une durée minimum de 15 jours ouvrables (3 semaines). Cette expérience a pour objectif d'enrichir ma formation tout en développant mes savoir-faire dans un environnement professionnel avant l'obtention de mon diplôme.
Valentin Enes Dias
Formations
Faculté d'architecture UCL LOCI Tournai, Belgique, 2024 - 2026
Master en cours
Faculté d'architecture UCL LOCI Tournai, Belgique, 2021 - 2024
Obtention du Bachelier en architecture - Distinction
Lycée Saint-Rémi, Roubaix, France, 2018 - 2021
Obtention du Baccalauréat option Maths, Physique, Science de l'ingénieur avec mention Bien
Expériences
Drafil, Opérateur
Juillet 2024 - Août 2024, Leers, France
Demathieu Bard Construction Nord, Stage ouvrier Juin 2023 - juin 2023, Roubaix, France
Drafil, Préparateur de commande
Juillet 2022 - Juillet 2022, Leers, France
Contact
Tel : +33 6 52 44 41 08
Mail : valentin.enesdias@gmail.com
Linkedin : valentin-enes-dias
Adresse
Rue du château 15, 7500, Tournai
Logiciels
· Illustrator
· Photoshop
· Indesign
· Autocad
Langues
· Français
· Portugais
· Anglais
· Espagnol
· Sketchup
· Rhino3D
· Twinmotion
· World / Powerpoint
Loisir
· Football
· Cinéma
· Photographie
· Architecture





01 ·Faired’unepierretroiscours·4-11 Stockholm,Suède/Master1
02 ·Wall-LessHouse·12-19 Zurich,Suisse/Master1
03 ·Nouvelleceintureverte·20-27 Tournai,Belgique/Bac3
04 ·Vivreàtraverslesjardins·28-33 Thuin,Belgique/Bac3
05 ·Desracinesàlacime·34-37 Saint-Gilles,Belgique/Bac2

Faired’unepierretroiscours
EcoledanslequartierdeHjorthagenàStockholm,Suède/Master1 Projetréalisédanslecadred’uncoursdonnéparleprofesseurinvitéM.JohanCelcing Projetréalisédansuneéquipedecinqétudiants

Ce projet d’école à Stockholm, dans le quartier de Hjorthagen, s’organise en pavillons autour de trois cours distinctes reliées par une circulation qui valorise les perspectives du site. L’entrée, qui constitue la première cour de l'école, se présente comme un parvis aménagé en retrait de la rue. Ce parvis précède deux autres espaces extérieurs : une cour végétale, aménagée autour d’un rocher préservé et conçue comme un parc naturel, ainsi qu’une cour minérale, située entre l’école existante et la nouvelle construction, proposant des espaces de jeux et de détente adaptés aux élèves.
À l’intérieur, la circulation favorise les perspectives et la lumière naturelle. Les espaces communs, comme la cantine et l’amphithéâtre, sont placés au centre pour faciliter l’accès. L’aile ouest accueille les ateliers artistiques et artisanaux, tandis que les salles de classe, situées à l’étage, bénéficient de larges ouvertures et de puits de lumière, assurant un cadre d’apprentissage lumineux et agréable.

Plandesituation

Coupedubâtimentexistantetdesnouvellesclasses



Coupedubâtimentgymnase,desclassesetdelacantine

R.D.C


R+1

Croquisdel’espacecommunàl’entréedel’école

Desatmosphèrescontrastées1/200





02
Wall-Less House
Analyseethypothèsedetransformationduprojet«HouseWithOneWall»àZurich,Suisse,par l’architecteChristianKerez/Master1 Projetréalisédansuneéquipedequatreétudiants

Le projet étudie et transforme «House With One Wall» de Christian Kerez, une œuvre architecturale caractérisée par son concept audacieux. Cette maison repose sur un unique mur massif en béton, plié de manière à assurer à la fois la stabilité structurelle et la séparation entre deux logements. Ce mur sert de colonne vertébrale à l’ensemble du projet, avec des planchers semblant flotter dans l’espace, créant une impression de légèreté malgré la solidité du béton.
La transformation remplace la structure en béton par un système léger en bois, conservant les intentions architecturales initiales. Le système poteaupoutre et le plancher en CLT assurent stabilité et ouverture des espaces. Des poteaux espacés d’un mètre favorisent une circulation dégagée, tandis que des câbles en acier assurent le contreventement et libèrent les façades. L’escalier, réinterprété en puits central, met en valeur la superposition des éléments structurels.

Coupetransversaleduprojetinitial
Coupelongitudinaleduprojetinitial

Coupetransversaledelatransformation

Coupelongitudinaledelatransformation
-Plancher CLT ép 14cm
-Isolant rigide ép16cm
-Membrane bitumeuse ép 2cm -Câble
-Poteau bois LVL 7*70cm
-Raccord pièce métallique rotulée
-Poutre LVL 7*110cm
-Plancher CLT ép 14cm
Détaildelatransformation:façadeetliaisonpoteau-poutre
-Panneaux OSB ép 2cm
-Poutres bastaing 23cm*7cm
-Isolant souple entre poutres ép 23cm
-Panneaux CLT ép 14cm



Maquettedelatransformation1/50

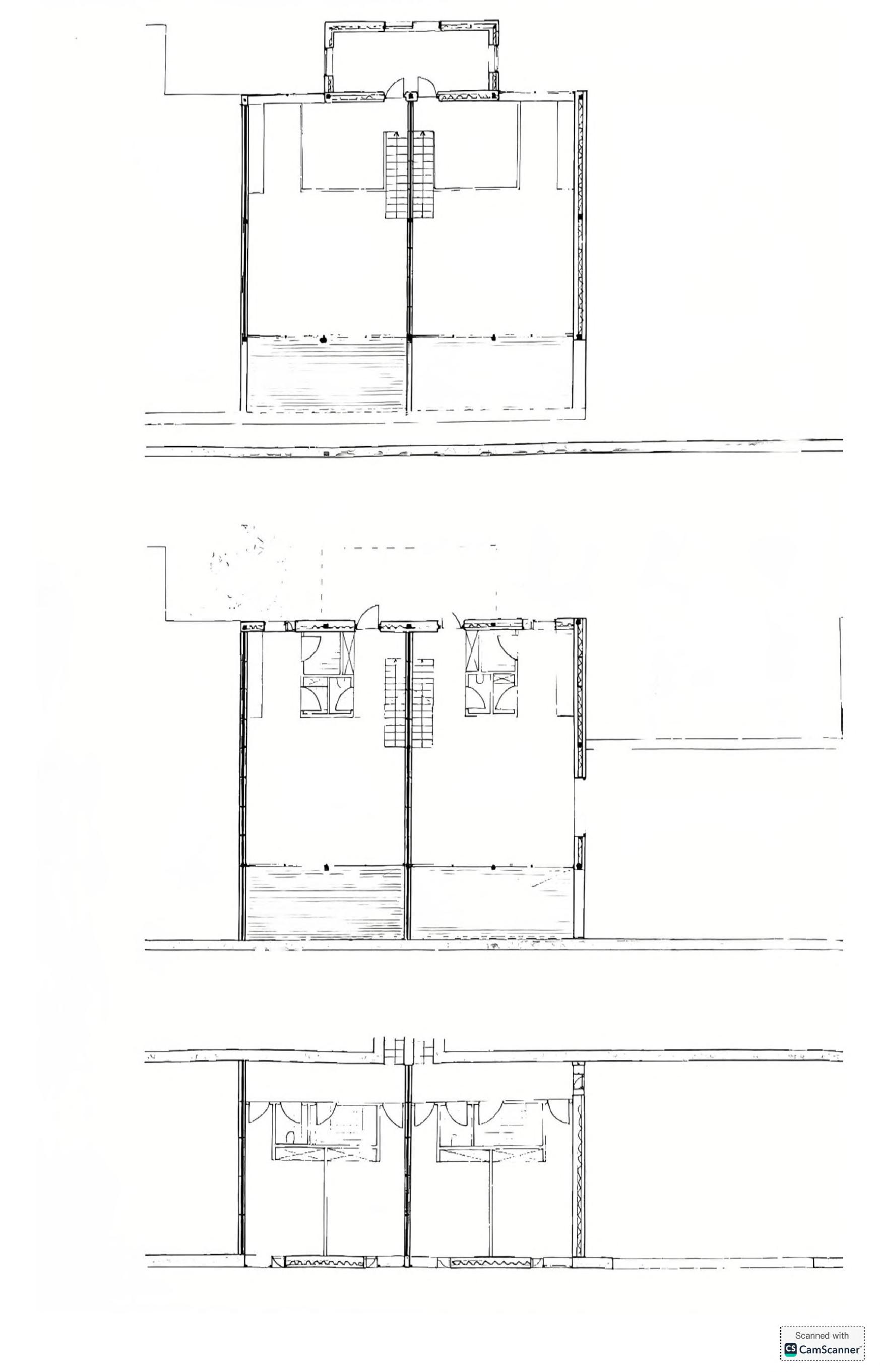
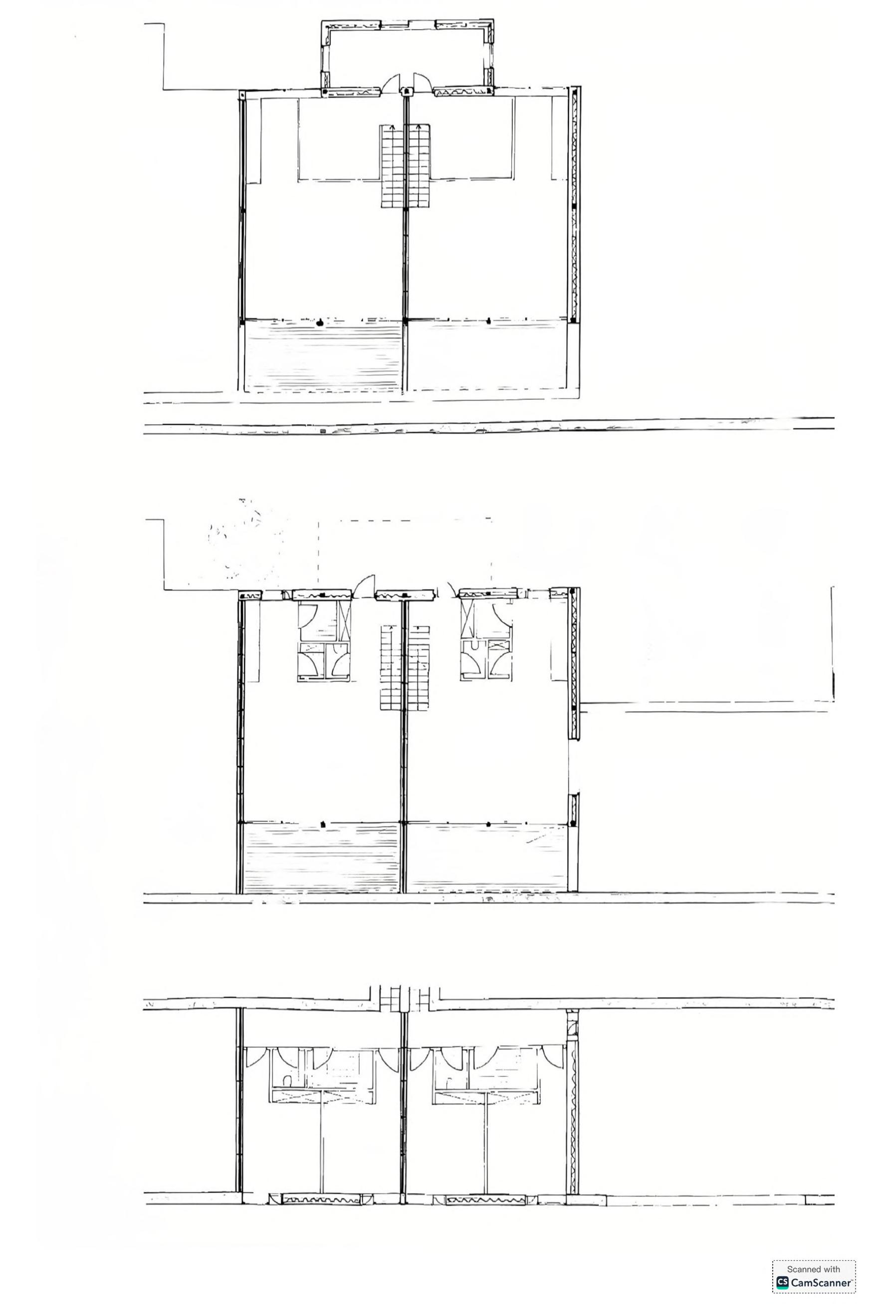
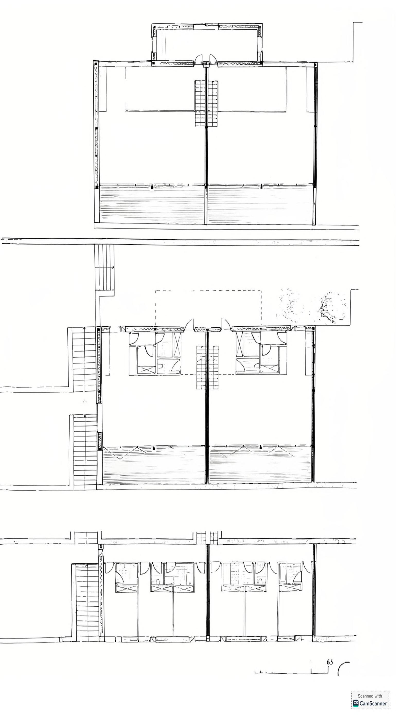
Nouvelleceintureverte
LogementscollectifsàTournai,Belgique/Bac3 Projetpartiellementréalisédansuneéquipedecinqétudiants

Ce projet propose une alternative au modèle pavillonnaire en périphérie des centres-villes en privilégiant le logement collectif tout en conservant les atouts de l’habitat individuel, tels que le calme, la proximité avec la nature et un cadre de vie agréable.
Situé à Tournai, en Belgique, le projet densifie la périphérie urbaine en s’appuyant sur un RAVeL pour limiter l’étalement, tout en respectant l’organisation de la ville, marquée par un centre dense et des espaces verts ceinturant les grands axes.
Les logements, organisés selon une trame régulière, offrent une diversité typologique adaptée à divers profils de résidents. La mixité sociale et intergénérationnelle est encouragée par la répartition des logements, allant des studios aux appartements familiaux. Le rez-de-chaussée, conçu comme un espace collectif ouvert et intégré aux espaces paysagers, favorise les échanges et dynamise la vie du quartier.











Auseind'unespacevert-projetpersonnel

Typologie3
Typologie2
Typologie1
Variationtypologiqueenfonctiondesniveaux

Unextérieurdansl’intérieur

Unextérieurcommunàtous

Vivreàtraverslesjardins
(30)LogementsindividuelsgroupésàThuin,Belgique/Bac3

Le projet, situé sur le versant de la vieille ville de Thuin, propose des logements individuels groupés avec des espaces communs pour encourager l'interaction. En continuité avec les jardins suspendus, il respecte le patrimoine tout en intégrant des solutions contemporaines. La topographie est utilisée pour organiser les logements en terrasses, offrant des vues dégagées, et les murs de soutènement deviennent des espaces de transition, renforçant le lien entre l'habitat et son environnement.
En plus des logements, le projet inclut un réseau de nouveaux chemins reliant la ville haute à la ville basse. Ces parcours, pensés pour les habitants et les passants, visent à revitaliser l’espace en offrant des itinéraires alternatifs, facilitant les déplacements tout en redonnant vie aux murs historiques de la ville. Ces chemins transforment l’environnement urbain en créant des liens vivants entre les quartiers, dynamisant l’espace public et renforçant les liens entre les habitants et leur ville.


Plandesdifférentestypologies



Dialogueduséjouraveclepaysage

Vivreaveclesmursdesjardins

Espacederencontreetdepaysage



Desmurscommeintérieuretextérieur1/100


05 Desracinesàlacime
MuséepourunsculpteuràSaint-Gilles,Belgique/Bac2 SurlabasedesplansdetransformationdelaplaceMarieJansonparlebureauVVV

Le musée dédié au sculpteur portugais Rogério Timóteo est situé sur la place Marie Janson à Saint-Gilles, en Belgique. Lors de sa conception, la place était en cours de réaménagement par le bureau d’architecture belge VVV, qui ambitionnait d’en faire un véritable parc.
S’inscrivant dans cette transformation, le musée a été implanté dans le coin non bâti de la place, en dialogue avec les autres espaces et créant une entrée depuis le haut de la place, à la croisée d’un axe de circulation majeur.
Le musée propose un parcours vertical inspiré de l’ascension d’un arbre. La visite débute dans un niveau souterrain sombre et immersif, évoquant les “racines”, où l’ambiance intimiste favorise la contemplation des oeuvres du sculpteur. En poursuivant l’ascension, le visiteur atteint la “cime”, un espace baigné de lumière naturelle filtrant à travers la végétation environnante, conçu pour accueillir des expositions temporaires. Enfin, au-delà de la cime, une terrasse offre une vue panoramique sur la place et le paysage urbain de Saint-Gilles.
PlanR-1
PlanR.D.C

Uneentréedanslaplace1/200

Au-delàdelacimedesarbres1/100

Pavillondelanature
Pavillond’observationdelanatureauZwinNatuurPark,Belgique/Bac2




Observerlanatureetlepaysage1/100
Citémanifeste-Lacaton&Vassal
Analyseréférentiel,citémanifestedeLacaton&VassalàMulhouse,France/Bac3 Projetréalisédansuneéquipedetroisétudiants




Maquette1/50


Créationd’unsoldurableetrecyclé
CourdeconstructionsimpleàTournai,Belgique/Bac3

Facadeinférieureetélévation

Facadesupérieure

Jonctionentrelespalettes


Photosdelaréalisation
Dessins

DessinsdemodèlesvivantsàTournai,Belgique/Bac2















