ARCHITECTURE PORTFOLIO VALENCIA FANNY 2022

Page 1

VALENCIA FANNY PORTFOLIO

I’m Fanny, 23 years old bachelor of architecture. I’m interested in design and concepting. I really love to learn new things. I’m creative and communicative.

3
| 087855916046
Ai Ps Id CAD SketchUp
VALENCIA FANNY valenciafanny11@gmail.com
WORK EXPERIENCE ORGANIZATION EXPERIENCE SOFTWARE SKILLS EDUCATION 2021 - Present Bright Living by H2 Drafter & 3D Modelling 2020 - 2021 Vshion T-Shirt Collection Graphic Designer 2019 - 2020 HG Architects & Designers Associates Internship for College Program 2018 - 2019 Fitcast Healty House Graphic Designer & Photographer 2020 - 2021 Ikatan Mahasiswa Arsitektur Bali Sekretaris 2019 - 2021 Ikatan Mahasiswa Arsitektur Bali Anggota Media dan Desain 2019 - 2020 KMK St. Albertus Agung Koordinator Desain dan Dokumentasi 2019 GrAnaT (Gelar Apresiasi Anak Teknik) Koordinator Penggalian Dana Instansi 2017 - 2022 Universitas Udayana Architecture Major 2014 - 2017 SMA Negeri 2 Jakarta
Lumion
HELLO! THIS IS MY PORTFOLIO.

CONTENTS

For me architecture is more than just a building, architecture is the art of studying how buildings can function optimally with sustainable functions.

01 Hotel & Convention Center 006 Studio Perancangan Arsitektur 5 - High Rise Building 02 Pointline Library 014 Sayembara ACSENT 03 Warung Made 022 Bright Living by H2 04 Kitchen Interior 030 3D Fun Challenge CS Laminates 05 Burju Aesthetic 032 Bright Living by H2 06 TK Kartika 040 Bright Living by H2 07 Klapa Resort 042 Bright Living by H2 08 Sekolah Noah 044 Bright Living by H2 09 Rumah Umalas 050 Bright Living by H2

5

Mentor :

01 HOTEL AND CONVENTION CENTER

Location

Pendekatan

Job Description :

Mahasiswa diminta untuk merancang bangunan bentang lebar dengan fungsi hotel dan convention center.

Hal yang perlu diperhatikan dalam perancangan adalah struktur bangunan bentang lebar dan pemanfaatan site yang maksimal.

Banyuwangi Convention Hotel mengambil konsep ramah lingkungan. Cahaya dan penghawaan alami sangat dioptimalkan pada bangunan sehingga pada podium tidak diperlukan penggunaan AC. Overhang dibuat selebar 2 meter, kisi-kisi kayu sebagai dinding bangunan dan dinding rongga dengan sudut kemiringan 45 derajat menjadi salah satu ciri khas Banyuwangi Convention Hotel. Namun terdapat pengecualian di area konvensi dan ruang-ruang tertutup pada podium yang menggunakan AC.

Meskipun terdapat overhang sebagai peneduh, arsitek juga memadukan unsur skylight agar cahaya matahari dapat masuk ke dalam bangunan. Skylight tersebut masuk melalui bukaan atap yang tidak ditutup oleh apa pun sehingga air hujan dapat masuk dan menambah suasana alam di dalam ruangan. Air hujan yang jatuh langsung ditangkap oleh kolam yang berada tepat di bawah skylight. Tanaman di dalam bangunan menjadi penghidup ruangan yang diletakan di tengah kolam.

7
Studio Perancangan Arsitektur 5 - High Rise Building I Nyoman Widya Pramadyaksa, S.T., M.T., Ph.D. : Banyuwangi, Jawa Timur : Post Modern, Iklim
9 10 11 12 03 02 02 01 13 14 07 04 06 05 05 04 08 09 03 01 Main entrance 02 Security check 03 Drop off area 04 Guest parking area 05 Basement entrance 06 Basement outrance 07 Bus parking area 08 Staff parking area 09 Loading dock 10 Rooftop 11 Hotel tower 12 Void 13 Main outrance 14 Staff entrance 01 Main entrance 02 Security check 03 Drop off area 04 Guest parking area 05 Basement entrance 06 Basement outrance 07 Bus parking area 08 Staff parking area 09 Loading dock 10 Convention room 11 Emergency stair 12 Pound 13 Main outrance 14 Staff entrance 15 Lobby 16 Lavatory 17 Drugstore 18 ATM center 19 Praying room 20 Elevator 21 Storage 22 Office room SITEPLAN LAYOUT PLAN Program Studi Arsitektur Fakultas Teknik Universitas Udayana Mata Kuliah Studio Perancangan Arsitektur Semester Tahun VI 2020 No Keterangan Paraf Nama Gambar Skala Tanggal 1:750 9/4/20 No. Lbr Jml. Lbr Dosen Koordinator Ir. G N Anom Rajendra, M.Sc., PhD. Dosen Pembimbing N. Widya Paramadhyaksa, ST., MT., PhD. Nama Kelompok 5 Mahasiswa Valencia Fanny 1705521059 LOADING DOCK STORAGE OFFICE ROOM RETAIL SHOP LOBBY CONVENTION CONVENTION ROOM TYPE 800 800 800 800 800 800 800 800 800 800 800 800 A A DENAH PODIUM LT. 1 SKALA 1:500 Program Studi Arsitektur Fakultas Teknik Universitas Udayana Mata Kuliah Studio Perancangan Arsitektur Semester Tahun VI 2020 No Keterangan Paraf Nama Gambar Skala Tanggal 1:750 9/4/20 No. Lbr Jml. Lbr Dosen Koordinator Ir. G N Anom Rajendra, M.Sc., PhD. Dosen Pembimbing N. Widya Paramadhyaksa, ST., MT., PhD. Nama Kelompok Mahasiswa Valencia Fanny 1705521059 DENAH PODIUM LT. 2 SKALA 1:500 BACK STAGE ROOM VOID CONVENTION ROOM CAFETARIA 800 800 800 800 800 800 800 800 800 800 800 800 800 11200 A A B B Program Studi Arsitektur Fakultas Teknik Universitas Udayana Mata Kuliah Studio Perancangan Arsitektur Semester Tahun VI 2020 No Keterangan Paraf Nama Gambar Skala Tanggal 1:750 9/4/20 No. Lbr Jml. Lbr Dosen Koordinator Ir. G N Anom Rajendra, M.Sc., PhD. Dosen Pembimbing N. Widya Paramadhyaksa, ST., MT., PhD. Nama Kelompok Mahasiswa Valencia Fanny 1705521059 VOID POOL 800 800 800 800 800 800 800 800 800 800 800 DENAH PODIUM LT. 3 SKALA 1:500 A A B B DENAH BASEMENT FLOOR (B3) SKALA 1 400 800 800 800 800 800 800 800 800 800 800 800 800 800 800 800 800 800 800 800 800 800 11200 5800 IN UP PENGOLAHAN LIMBAH RUANG M.E. RUANG GROUND TANK RUANG GENZET Program Studi Arsitektur Fakultas Teknik Universitas Udayana Mata Kuliah Studio Perancangan Arsitektur Semester Tahun VI 2020 No Keterangan Paraf Nama Gambar Skala Tanggal 1:750 9/4/20 No. Lbr Jml. Lbr Dosen Koordinator Ir. N Anom Rajendra, M.Sc., PhD. Dosen Pembimbing N. Widya Paramadhyaksa, ST., MT., PhD. Nama Kelompok Mahasiswa Valencia Fanny 1705521059 A A B B T.A T.B T.D T.F 400 400 400 400 400 400 400 400 400 400 400 400 400 400 400 400 T.6 T.7 T.20 400 400 400 400 400 400 400 400 8000 400 400 400 400 400 400 400 400 T.1 T.2 T.3 T.5 T.9 T.4 T.8 T.12 T.13 T.15 T.14 T.11 T.10 T.17 T.18 T.16 T.19 T.A T.B T.D T.F DENAH LANTAI TIPIKAL TOWER HOTEL LT. 4-6 SKALA 1 250 Program Studi Arsitektur Fakultas Teknik Universitas Udayana Mata Kuliah Studio Perancangan Arsitektur Semester Tahun VI 2020 No Keterangan Paraf Nama Gambar Skala Tanggal 1:750 9/4/20 No. Lbr Jml. Lbr Dosen Koordinator Ir. Anom Rajendra, M.Sc., PhD. Dosen Pembimbing N. Widya Paramadhyaksa, ST., MT., PhD. Nama Kelompok Mahasiswa Valencia Fanny 1705521059 A B B A DENAH LANTAI TIPIKAL TOWER HOTEL LT 7-20 SKALA 250 Program Studi Arsitektur Fakultas Teknik Universitas Udayana Mata Kuliah Studio Perancangan Arsitektur Semester Tahun VI 2020 No Keterangan Paraf Nama Gambar Skala Tanggal 1:750 9/4/20 No. Lbr Jml. Lbr Dosen Koordinator Ir. G N Anom Rajendra, M.Sc., PhD. Dosen Pembimbing N. Widya Paramadhyaksa, ST., MT., PhD. Nama Kelompok Mahasiswa Valencia Fanny 1705521059 T.6 T.F 400 400 400 400 400 400 400 T.1 T.3 T.5 T.4 T.8 T.12 T.13 T.14 T.11 T.10 T.17 T.16 T.19 T.6 T.20 400 400 400 400 400 8000 T.20 400 400 400 400 400 T.1 T.5 T.8 T.12 T.13 T.17 T.18 T.B T.G T.A T.B T.D 400 T.G 400 400 400 400 400 400 8000 400 400 T.15 T.2 T.18 T.9 400 400 400 400 400 400 T.16 T.14 T.2 T.15 T.4 T.9 T.3 T.A T.19 T.10 T.11 T.F T.D A B B A Program Studi Arsitektur Fakultas Teknik Universitas Udayana Mata Kuliah Studio Perancangan Arsitektur Semester Tahun VI 2020 No Keterangan Paraf Nama Gambar Skala Tanggal 1:750 9/4/20 No. Lbr Jml. Lbr Dosen Koordinator Ir. G Anom Rajendra, M.Sc., PhD. Dosen Pembimbing N. Widya Paramadhyaksa, ST., MT., PhD. Nama Kelompok Mahasiswa Valencia Fanny 1705521059 POTONGAN A-A SKALA 1:500 800 800 800 800 800 800 800 800 800 800 800 800 800 800 DENAH BASEMENT FLOOR (B1) SKALA 400 800 800 800 800 800 800 800 800 800 800 800 800 800 800 800 800 800 800 800 800 800 800 800 800 DOWN UP OUT RUANG CCTV DOCK HOTEL M.E. DUCTING AC A A B B Program Studi Arsitektur Fakultas Teknik Universitas Udayana Mata Kuliah Studio Perancangan Arsitektur Semester Tahun VI 2020 No Keterangan Paraf Nama Gambar Skala Tanggal 1:750 9/4/20 No. Lbr Jml. Lbr Dosen Koordinator Ir. G N Anom Rajendra, M.Sc., PhD. Dosen Pembimbing N. Widya Paramadhyaksa, ST., MT., PhD. Nama Kelompok Mahasiswa Valencia Fanny 1705521059

Material yang digunakan memadukan kayu, beton dan kaca sehingga memberi kesan modern namun tetap sederhana. Material tersebut dibiarkan dengan warna aslinya dan tidak ada perubahan warna yang terlalu signifikan. Dinding hanya dicat warna putih, kolom dibiarkan dengan warna beton abu-abu, dan kayu tetap berwarna coklat alami.

11

Location : Jalan Gatot Subroto Tengah, Denpasar Utara, Bali

Pendekatan : Arsitektur Tropis

02 POINTLINE LIBRARY

Job Description :

UNESCO pada tahun 2016 mengumumkan hasil riset minat baca dari 61 negara dan Indonesia mendapat peringkat ke-60.

Hal ini dapat disebabkan karena kurangnya akses kepada fasilitas dan perpustakaan yang terkesan membosankan sehingga masyarakat tidak tertarik dan minat membacanya semakin menurun.

Peristiwa ini menjadi tantangan bagi para designer untuk merancang ruang baca atau perpustakaan yang dapat menarik masyarakat dari berbagai kalangan sehingga meningkatkan kembali minat baca.

Perpustakaan identik dengan tempat yang membosankan dan kaku, namun sebenarnya perpustakaan lebih dari sekedar tempat membaca buku yang membosankan, yaitu tempat bagi semua kalangan untuk mempertajam ilmu dan keterampilan yang mereka punya. Konsep perpustakaan didasari oleh hal tersebut. Karena itu, arsitek ingin membuat suatu ruang yang dapat mempertajam fungsi dan arti perpustakaan yang telah hilang di masyarakat Indonesia, khususnya Bali.

15
Sayembara ACSENT
17

interior.

Denah Lantai 1

Denah Lantai 2

Denah Lantai 3 Lantai 2 Lantai 3

19
Lantai 1

Location : Terminal Keberangkatan Internasional, Bandar Udara Internasional, I Gusti Ngurah Rai, Bali

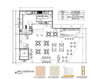
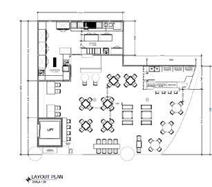
03 WARUNG MADE

Bright Living by H2

Pendekatan : Tradisional Modern Desain

Job Description : Perancangan desain interior gerai Warung Made di Terminal Keberangkatan Internasional Bandara Internasional I Gusti Ngurah Rai, Bali.

Warung Made merupakan restoran yang menyediakan makanan khas Bali. Desain Gerai Warung Made ini mengambil tema tradisional modern agar tetap memberikan kesan yang hangat seperti di rumah dan tetap memberikan kesan mewah pada ruangan.

23
25
LAYOUT PLAN
TAMPAK DEPAN TAMPAK SAMPING
27 DETAIL BAR
DETAIL FURNITURE

3D Fun CS Laminates

31 04 KITCHEN
INTERIOR

05 BURJU AESTHETIC

Bright Living by H2

Location : Sopo Del Tower, Jakarta Pendekatan : Modern

Job Description : Perancangan desain interior Beauty Clinic

Burju Aesthetic merupakan klinik kecantikan yang berlokasi di Jakarta. Desain Burju Aesthetic mengambil tema modern dengan sentuhan emas pada furniturenya agar memberikan kesan luxury dan clean.

33 vv
35 LAYOUT BEAUTY CLINIC S K A 1: 75 FLOORING PLAN S K A 1: 75 POWER OUTLET K A L 1: 75 CEILING PLAN K A L 1: 75
37
CONSOLE TABLE RECEPTION ROOM
FACADE & SINAGE
DETAIL
39

TK KARTIKA

41 06

KLAPA RESORT

07
MOOD BOARD

08 SEKOLAH NOAH

Location : Jakarta Timur

Pendekatan : Modern

Job Description : Renovasi fasad bangunan admin, ruang kelas musik dan seni, koridor, perpustakaan, dan toilet.

Sekolah Noah merupakan sekolah yang menggunakan kurikulum cambidge. Renovasi fasad dilakukan agar tampilan bangunan admin menrik ketika dilihat dari jalan utama. Renovasi ruang kelas, koridor dan toilet bertujuan untuk menghadirkan suasana baru sehingga para civitas lebih nyaman beraktivitas di sekolah

45 vv
Bright Living by H2
47
KORIDOR FACADE GEDUNG ADMIN
49
PERPUSTAKAAN RUANG KELAS SENI TOILET RUANG KELAS MUSIK

RUMAH UMALAS

Bright Living by H2

Location : Umalas, Bali

Pendekatan : Arsitektur Tradisional

Job Description : Merancang beberapa massa bangunan dengan fungsi yang berbeda. Pendekatan yang digunakan adalah pendekatan arsitektur tradisional Indonesia.

Rumah di Umalas memilik beberapa massa bangunan dengan pendekatan Arsitektur Tradisional yang dipadukan dengan Arsitektur Modern.

51 vvvvv
09
53
LAYOUT RUMAH UMALAS RUMAH MOHINI RUMAH MOHINI RUMAH JOGLO RUMAH PADANG GUEST HOUSE SERVICE AREA MUSHOLA
55
RUMAH JOGLO MUSHOLA GUEST HOUSE SERVICE AREA
57
RUMAH PADANG GATE

Turn static files into dynamic content formats.

Create a flipbook
Issuu converts static files into: digital portfolios, online yearbooks, online catalogs, digital photo albums and more. Sign up and create your flipbook.
ARCHITECTURE PORTFOLIO VALENCIA FANNY 2022 by Valencia Fanny - Issuu