Architecture Portfolio 2024 - Vaishnavi

Page 1

Portfolio. 2021-2024 selected works Architecture

HELLO,

I am Vaishnavi.

I am currently in my sixth semester at DC School of Architecture and Design, Trivandrum.

My portfolio encompasses a range of projects and reflects my experience of the last three years in my school of architecture. Each project exhibits my commitment to pushing the boundaries of design while understanding the people and the context involved in it.

I believe designing spaces not only revolve around making functional spaces for the users but also evoke and inspire emotions. Architecture has the power to shape our experiences with the built environment and I am excited to grow and experiment with designs that can create a positive impact to the world.

Contact : vaishnavim2003@gmail.com +91 8086666104

Education

2021 - 2026

2019 - 2021

Bachelors in Architecture

DC School of Architecture and Design, Trivandrum

Senior Secondary Education

Kendriya Vidyalaya Pattom, Trivandrum

2016 - 2019 Secondary Education

Kendriya Vidyalaya Pattom, Trivandrum

Software Skills

Design Autocad Sketchup

Post Production Photoshop Illustrator Indesign

Microsoft Office

Render Enscape

D5 Render Twinmotion

Workshops Attended

1 Bamboo Workshop

Ar Ashams Ravi, Tac Design Lab

2 3D Modeling Workshop

Aswin Kumar, BAMAKA Studio

3 Product Design Workshop

Ajay Kumar

4 Brick Masonry Workshop

Ar Ashams Ravi, Tac Design Lab

Additional Skills

Manual Drafting Physical Model Making

Language

English Malayalam

01 02 03 Kufos Campus Design Manifestations of Historicism Neythalin Paadal Semester 05 Semester 04 Semester 03 05 11 17
04 05 06 Modernist Pavillion Kuthiramalika Working Drawings Semester 04 Semester 05 Semester 04 23 29 33

01 KUFOS CAMPUS DESIGN

Architecture Design Semester 05 | 2023

Location : Kundara, Kollam

The aim was to design a campus for an institute of fisheries and ocean studies. Higher learning is an intensely personal enterprise with young scholars working closely with other scholars, faculty, and students soaring and arguing about ideas, beliefs, unusual facts and feelings. A human scale is imperative, a scale that enhances collegiaty, friendships, collaborations on research and so on.

The campus contributes significantly to the learning, working and social experiences for users and visitors. Creating a positive impact and energy while being a unique and inspiring space to study research and work.

05 Portfolio | 2024 Selected works | Kufos Campus Design
06 Portfolio | 2024 Selected works | Kufos Campus Design 1 2 3 4 5 6 7
1 Academic Block 2 Gallery 3 Administration Block 4 Cafeteria 5 OAT 6 Auditorium 7 Exhibition Space Master Plan

Site Context

Portfolio | 2024 Selected works | Kufos Campus Design 07
The propsed 10 acre site is located at Kundara, Kollam The main access is a two way road leading into technopark which produces noise during peak hours The eastern edge of the site has a water body along it’s side.

Zoning

The site was majorly zoned into three based on the category of users and segregating the spaces based on the level of privacy required. Zoning was done considering proximity of spaces.

The concept was created acknowledging the site’s micro conditions. The building is divided creating a visual access framing the view towards the water body and focusing the existing vegetation.

The building is divided vertically by the pathway which acts as a transition space between the two blocks and a gallery space for the exhibits. The axis created has academic and admin block on either sides.

Portfolio | 2024 Selected works | Kufos Campus Design 08
Portfolio | 2024 Selected works | Kufos Campus Design 09
Floor Plan
Section
Ground
Longitudinal
Portfolio | 2024 Selected works | Kufos Campus Design 10 View towards academic block
Transverse Section

02

MANIFESTATIONS OF HISTORICISM

Location

The term” historicism” refers to the theory that social phenomena such as architecture are interpreted against the background of local beliefs and customs.

In this design the aspects of migration-including its socialpolitical-and economic causes and effects in communities, aspects of self-belonging and reterritorialization have been explored. The design scenario largely enquires the degree of self-belonging a migrated/dislocated community feel after years of inhabitancy in the new land, their inner process of identifying themselves in the new land and their roots to the homeland and the possibilities of intervention through architecture to redefine the self-belonging with a strong sense of historicism through the tool of interpretation.

11 Portfolio | 2024
Architecture Design Semester 04 | 2023 : Kulathupuzha, Kollam
Selected works | Manifestations of Historicism

Master Plan

1 Interpretation Center

2 Cafeteria

3 Vocational Training Center

4 Dormitory

5 Guesthouse

12 Portfolio | 2024 Selected works | Manifestations of Historicism
4 5
1 2 3

HISTORICAL NARRATIVE

Western countries were drawn to Ceylon largely due to it’s strategic location and trade.

Agriculture has been the main source of income and economic activity during pre-colonial period in Sri Lanka.

The culture and civilization was built on rice production It was expanded by extensive and contemporaneously advanced irrigation works.

During colonialisation the main economic activity was shifted from agriculture to plantation.

This brought in problems that were faced by the farmers of Sri Lanka various exploitative legal reforms and were forced to work for low wages.

Development of tea plantation brought in profit hence British enclosed and incultivated land throughout the country.

A livelihood that was implanted on them by (by colonizers)

Continuing the same livelihood since they were accustomed to

SPACIAL NARRATIVE

Before colonialisation the people were following a livelihood they chose for themselves

Space 1 would be well lit at the entrance proceeding to a dim lit space showing their transition period

Space 3 shows the process of migration

Transition from a well lit space to a dim lit space with fewer openings.

The openings bring in light which defines the path through which one travels.

People being forced to work in plantations

Migrated Due to circumstances fled their own country

On approach this space is not readily noticed since it’s placed underground.

Well lit space with high ceiling forming a welcoming feeling at the entrance.

The bridge connecting the space shows the process of migration.

Portfolio | 2024 Selected works | Manifestations of Historicism 13
Redirecting paths using vertical planes. The light acts as a medium helping them to move forward through their journey. The flight of stairs gradually reveals the view. Framed view of the plantation towards the deck.

SITE ANALYSIS

SLOPE ANALYSIS

The contour can be used to build spaces along it as per requirements.

The buildings should be placed along the drainage lines rather than across it.

Steeper slopes can be used for community farming since construction should be avoided.

The structures can be proposed to be on stilts or be provided with cantiliver support.

DRAINAGE ANALYSIS

views from the site

Portfolio | 2024 14 Selected works | Manifestations of Historicism
0 - 10% 10 - 20% 20 - 30% 30 - 40% 40 - 50% 50 > Totally unavailable Slightly Interrupting Above natural drainage Unavailable

Interpretation Center Plan

Portfolio | 2024 15 Selected works | Manifestations of Historicism
Section A-A Section A-A Section C-C Section B-B

1

2

3

Portfolio | 2024 16 Selected works | Manifestations of Historicism Floor Plan 1 2 3
Dormitory
Vocational Training Center
Guesthouse

03

NEYTHALIN PAADAL

INTERPRETING RURAL NARRATIVES FOR EMPOWERMENT

Architecture Design Semester 03 | 2022

Location : Perumathura, Trivandrum

The design enquires the different methods and approaches of the translation/ transformation of the individual/collective narratives of a neighborhood with a strong livelihood and cultural pattern, to a meaningful architectural vocabulary.

The basics of public spaces and the nuances of cultural and behavioral patterns associated with the public settings, validates the learning in an actual rural backdrop of a coastal settlement-Perumathura Muthalappozhi - in Thiruvananthapuram District. From the detailed informal and structured interactions and a primary visual assessment survey the current livelihood and cultural patterns were analyzed and the possible proposals -spatial recommendations/solutions- for the rural empowerment were formulated.

17 Portfolio | 2024 Selected works | Neythalin Paadal
18 Portfolio | 2024 Selected works | Neythalin Paadal

NARRATIVE

A sense of community was brought in by creating spaces for the elders for activities such as kudumbashree meetings were even the children can participate and can conceive a space of synergy.

Children can participate in community led activities and watch the workers conduct their jobs, such as net weaving and net mending which is part of their livelihood.

Having spaces for learning and and multipurpose hall in close proximity creates a bubble for interactive spaces. Creating a play-work environmental where they learn from each other.

The toilet for public spaces is provided near the multi purpose hall and away from the learning spaces

Public accessed spaces provided in such a way that it offers an easier navigation path It is zoned near the entrance to the site

Parking placed at a convenient distance from the main entrance and publicly accessible

The design aim is to bring synergy between the different spaces of the community center by involving every age ground in different activities carried out as part of their livelihood.

Kindergarten spaces near the rear end of the site away from the main road for safety purposes

Dining area positioned near the kitchen can be easily accessed by the children

Kitchen and storage is near the outlet which is easily accessible for the public and in close proximity with the service road

PROXIMITY CHART

Portfolio | 2024 19 Selected works | Neythalin Paadal
CONVENIENT SEMI CONVENIENT NOT CONVENIENT
Portfolio | 2024 20 Selected works | Neythalin Paadal
Master Plan
Portfolio | 2024 21 Selected works | Neythalin Paadal
Section A-A Floor
Portfolio | 2024 22 Selected works | Neythalin Paadal Section B-B Plan

04 MODERNIST PAVILLION

Architecture Design Semester 04 | 2023

Project Type : Residence , Group Project

Location : Powdikonam, Trivandrum

The aim of the design was to reimagine homes for coexistence. This architectural style is characterized by a simple, clean design that emphasizes natural materials and a strong connection with the surrounding landscape. The house typically has a flat or lowpitched roof, large windows to maximize natural light, and an open floor plan that allows for flexible use of space.

Modernist pavilion house has a smaller footprint, as it’s designed to blend in with the natural environment rather than dominate it. The use of natural materials such as wood, stone, and glass also help to create a harmonious relationship with the landscape.

In terms of doors, modernist pavilion houses often have fewer doors on the exterior walls, as the focus is on the views and connection with the surrounding landscape. Instead, the entrance to the house is often located on one side, and the interior is designed to flow seamlessly from one space to the next.

23 Portfolio | 2024 Selected works | Modernist Pavillion
24 Portfolio | 2024 Selected works | Modernist Pavillion
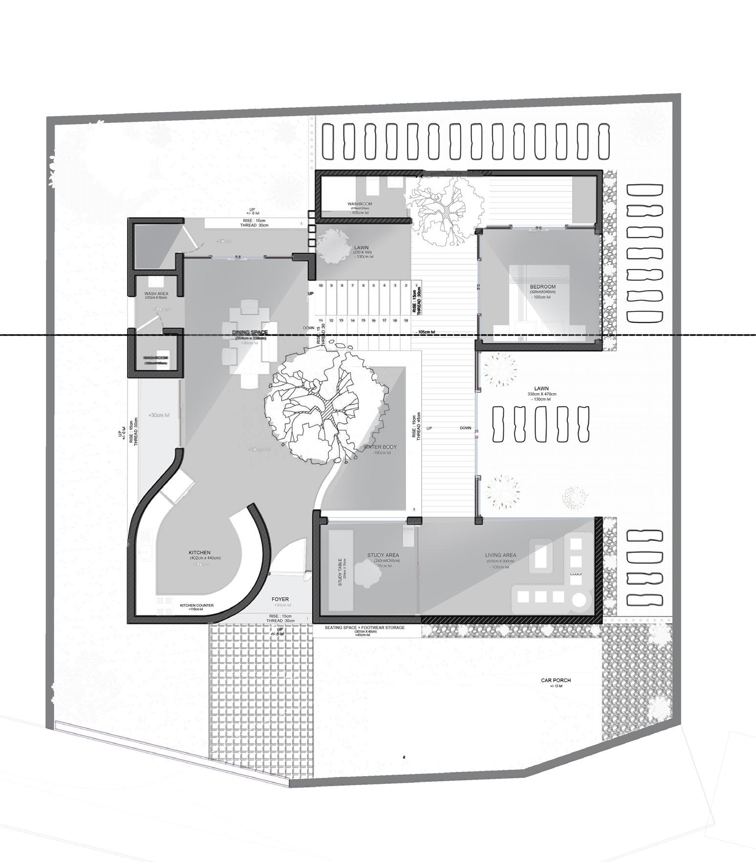
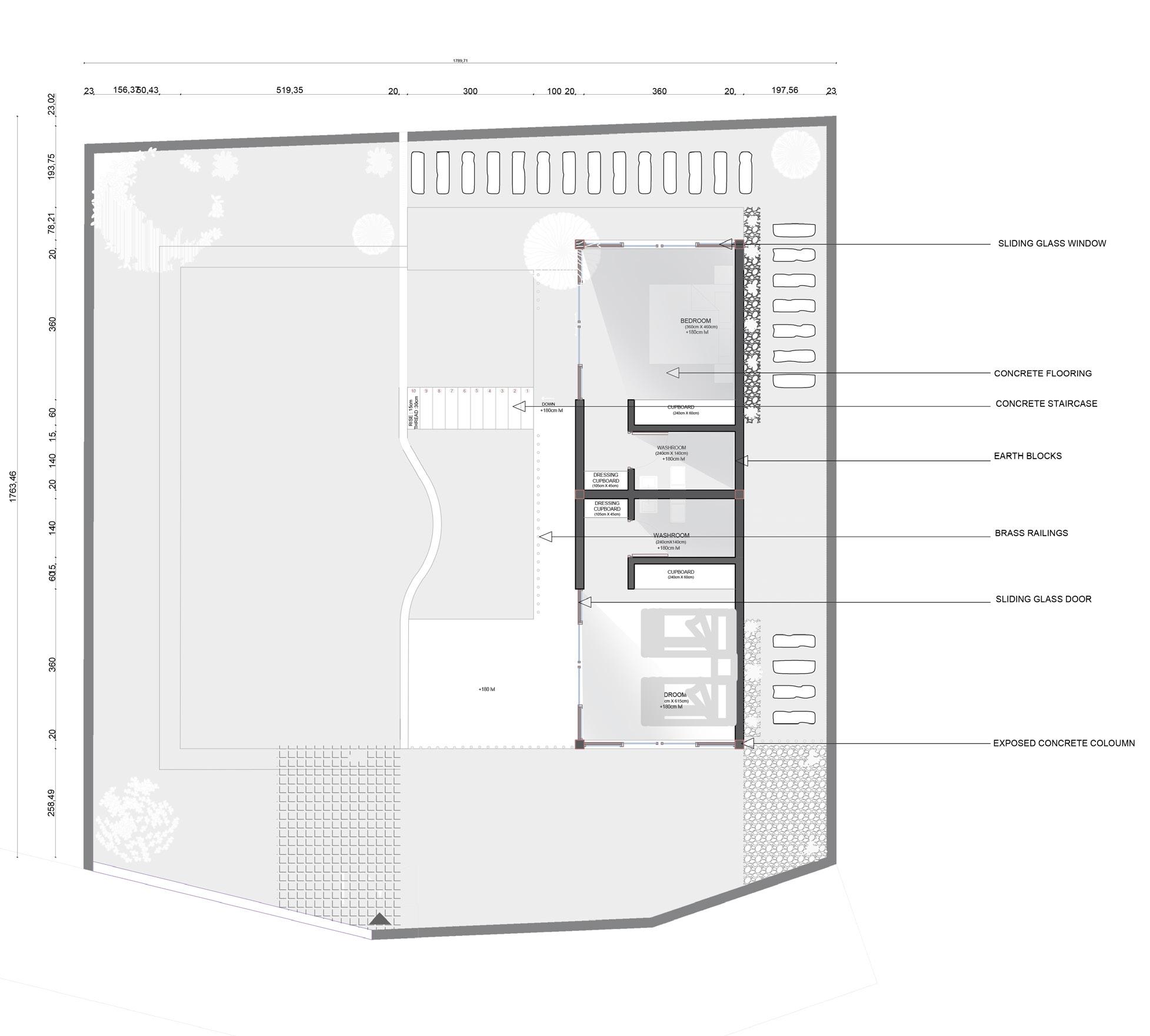
Portfolio | 2024 25 Selected works | Modernist Pavillion Floor Plan
Sketches
Conceptual
Portfolio | 2024 26 Selected works | Modernist Pavillion Floor Plan
Portfolio | 2024 27 Selected works | Modernist Pavillion
Section A-A Front View
Portfolio | 2024 28 Selected works | Modernist Pavillion
Section B-B Interior view

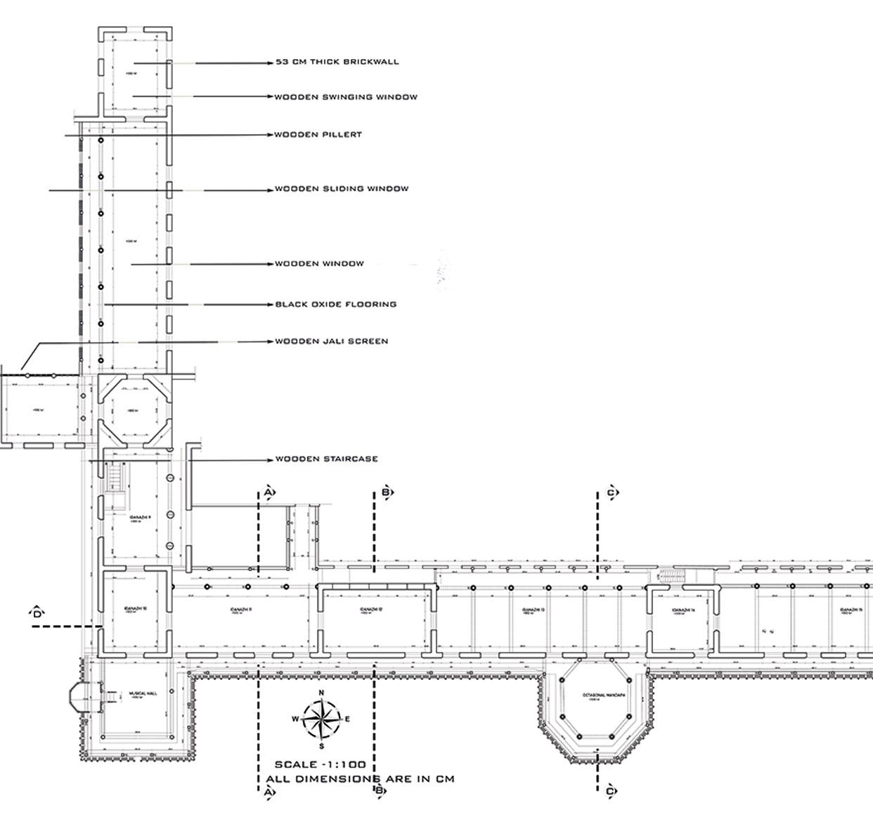
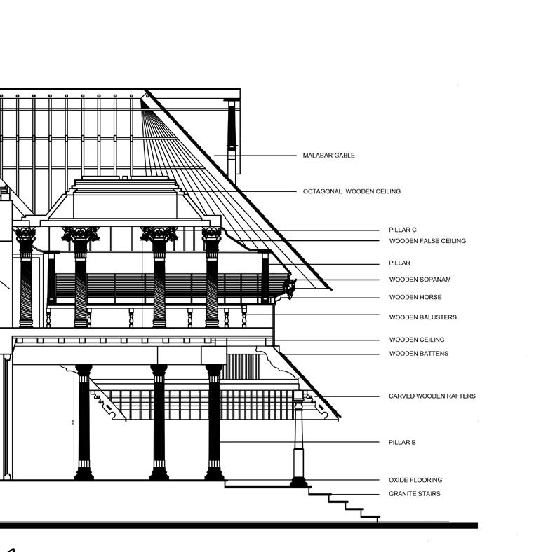
KUTHIRAMALIKA

Architecture Design Semester 05 | 2023

Project type : Documentation, Group Work

The Kuthiramalika palace is a royal residence. It is renowned for its distinctive architectural features, which includes 122 wooden horses that is carved into the roof entablature, hence the name kuthiramalika, which translates to ‘palace of horses’ The palace is illustration of its traditional craftmanship and architecture of Kerala. Today it is a museum that showcases India’s rich past, which includes artifacts , paintings , weapons etc. The palace was documented and restoration drawings were prepared.

29 Portfolio | 2024 Selected works | Kuthiramalika
05
First Floor Plan

Door Details

Door Details

30 Portfolio | 2024
Selected works | Kuthiramalika
JOINERY DETAILS
Portfolio | 2024 31 Elevation
Section Section Selected works | Kuthiramalika
Section A-A
Portfolio | 2024 32
Elevation Section C-C
Section D-D Selected works | Kuthiramalika
Section B -B

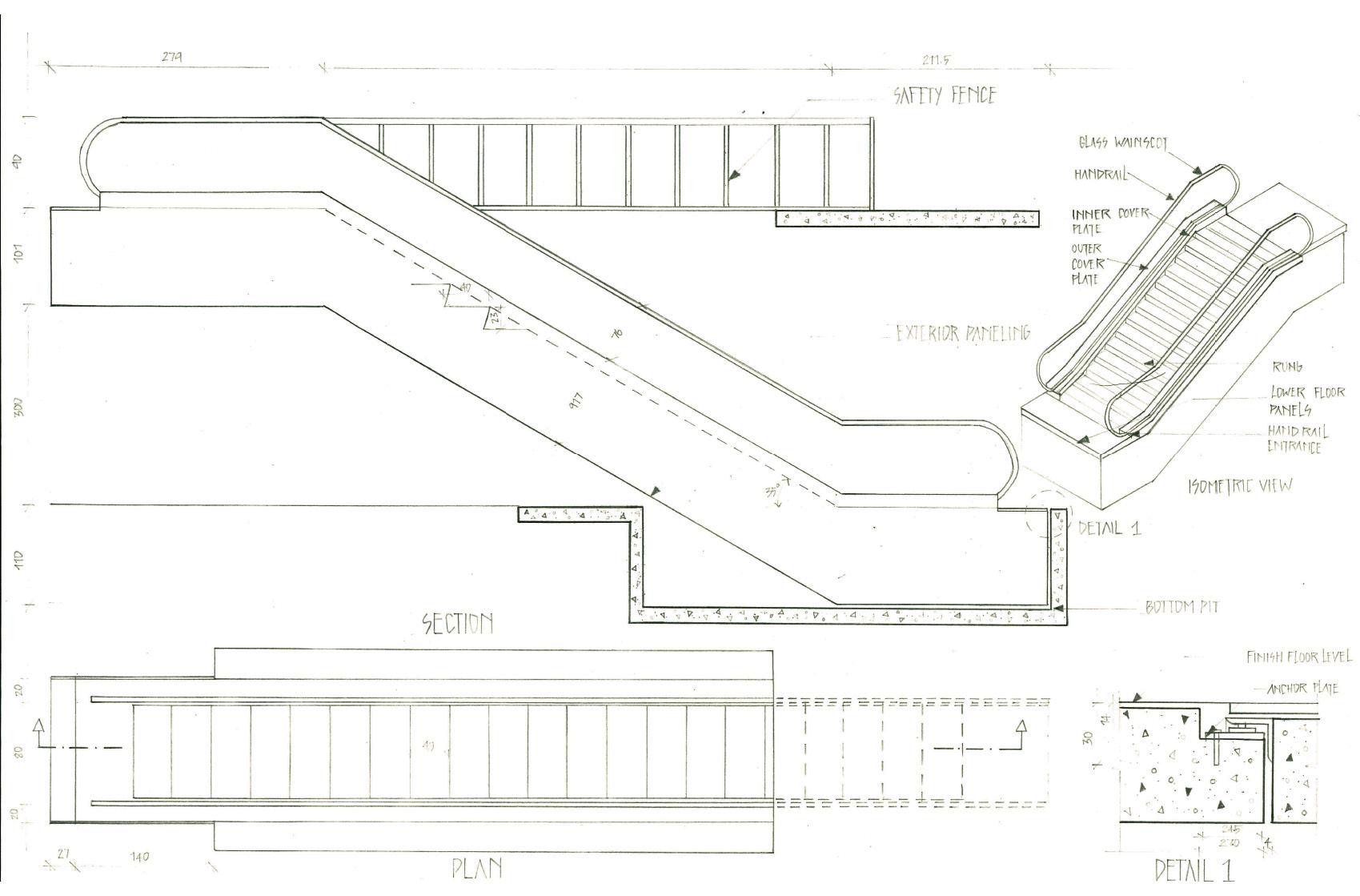
06 WORKING DRAWINGS

WALL SYSTEM

33 Portfolio | 2024 Selected works | Working Drawing
34 Portfolio | 2024 Selected works | Working Drawing
ESCALATOR

THANKYOU!

Turn static files into dynamic content formats.

Create a flipbook
Issuu converts static files into: digital portfolios, online yearbooks, online catalogs, digital photo albums and more. Sign up and create your flipbook.