PORTAFOLIO-2025

Page 1


Currículum

Enzo Vergara v.vaccia@gmail.com linkedin.com/vaccia issuu.com/vaccia enzoverccia.tumblr.com

EXPERIENCIA PROFESIONAL

Proyectos 2015-2025

PROYECTOS DESTACADOS

Magíster Diseño Estratégico. IE University, School of architecture and Design / Helen Hamlyn Center for Design, RCA.

Diplomado en iluminación. Pontificia Universidad Católica de Chile.

FADEU. Escuela de diseño.

Título Arquitecto. Universidad Central de Chile. Escuela de Arquitectura, Urbanismo y Paisaje.

MUSEOHAUS. Tienda de museo de Arte, Arquitectura y Diseño.

Referencia: www.casamuseo.cl / @museohaus

HYDROSIM. Diseño de equipamiento y espacio público.

Referencia: Pamela Parada. pamela.parada@hydrosim.cl

UNSTUDIO. Proyectos y concursos de Arquitectura

Referencia: Sitou Akolly- s.akolly@gmail.com

NO.OFF. Proyectos y concursos de Arquitectura

Referencia: Sebastián Fredes. sebafredes.arq@gmail.com

GAC. Diseño de muestra académica XIX Bienal de Arquitectura

Referencia: Joaquín González. joaquin@arquitecturacaliente.cl

ArchDaily Editor de proyectos y sección en Detalle”

Refrencia: José Tomás Franco. josetomas@archdaily.com

Tercer lugar. Concurso: “Rehabilitación de estaciones ferroviarias Red Trenzando”. Rehabilitación Ex- Estación Ocoa.

Primer lugar. Concurso: “Proyectar a conciencia 1.0”

Rehabilitación edifiicio Reval.Exhibido en XX Bienal Arquitectura.

Primer lugar. Concurso Internacional: “VELUX”. Rehabilitación edificio de estacionamientos Carillón. Exhibido en WAF, Berlín.

Museo Memorial Villa San Luis
Rehabilitación Edificio REVAL
Rehabilitación Escuela Pública
Rehabilitación Edificio Carillón
Rehabilitación Estación Rungue
XIX Bienal Arquitectura

Museo Memorial Villa San Luis

NO.OFF

Año: 2025

Ubicación: Las Condes

Tipo:: Concurso de Arquitectura

El proyecto busca la rehabilitación del antiguo bloque “C” de la ex-Villa San Luis, como museo memorial. Por un lado, Se propone enfatizar el ritmo visual de las ventanas existentes a través de una segunda piel que funcione como “velo”. La ausencia de las ventanas son simbolos de la escala domestica que alguna vez tuvo lugar en el edificio. Por el otro lado se proyecta un volumen que se abre hacia el nuevo desarrollo urbano de la zona.

Se propone dejar la estructura de hormigón a la vista, y los refuerzos estructurales de color rojo. Se busca remarcar lo nuevo. El color remite a un hilo que conecta pasado y presente. El proyecto se realizó desde la etapa de diseño conceptual, esquemático hasta anteproyecto, tanto modelado 3D como planimetría y desarrollo de imágenes. Se utilizó software Rhino 8 para modelo, Illustrator y Photoshop.

Sala de exhibición
1. Tienda
Restorán
Exhibición
Cowork
5. Depósito 6. Oficinas 7. Mirador
Vista norponiente Vista surponiente
Operaciones

Rehabilitación

Estación Rungue

NO.OFF

Año: 2021

Ubicación: Rungue, Tiltil, RM. Tipo: Concurso. “Red Trenzando”

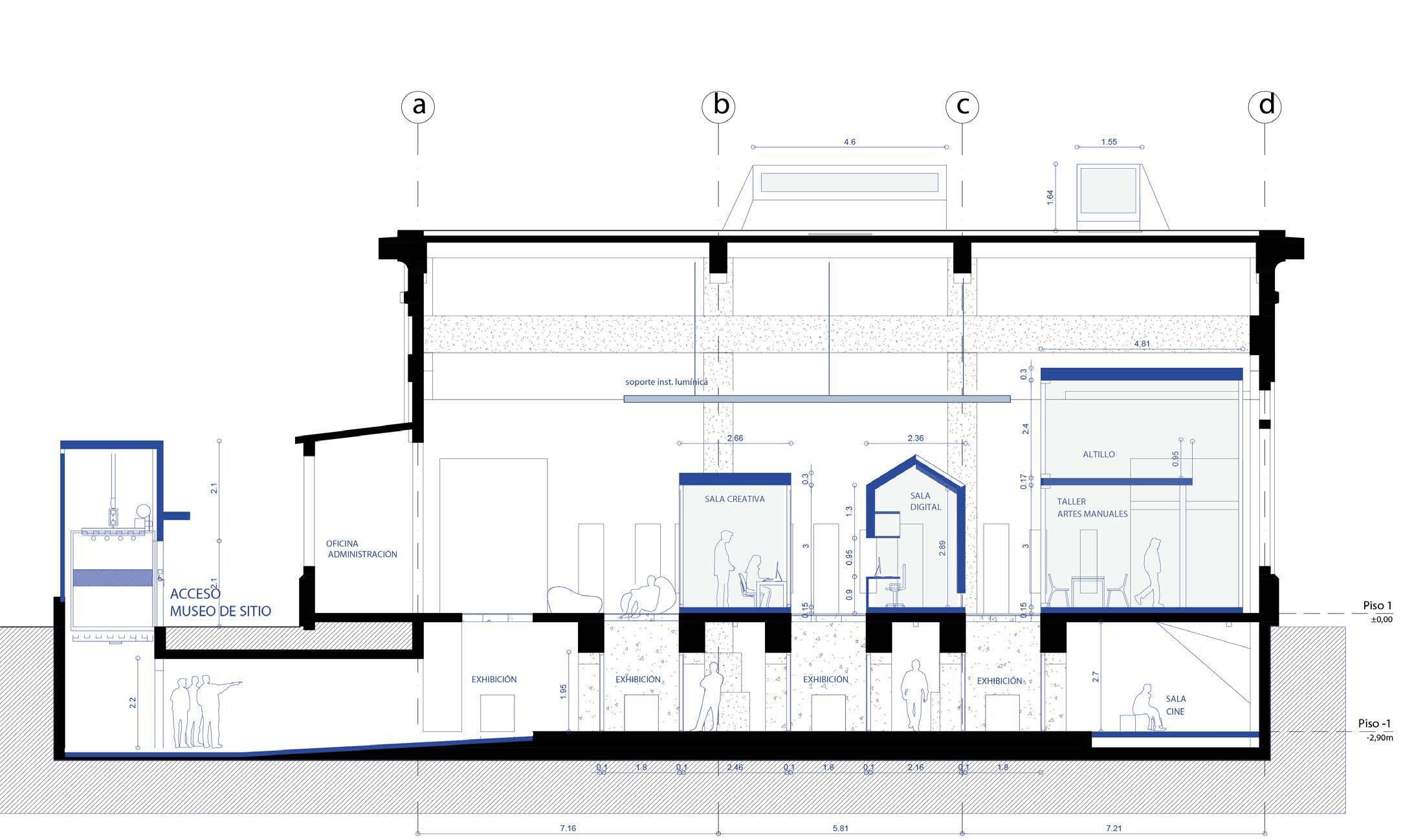
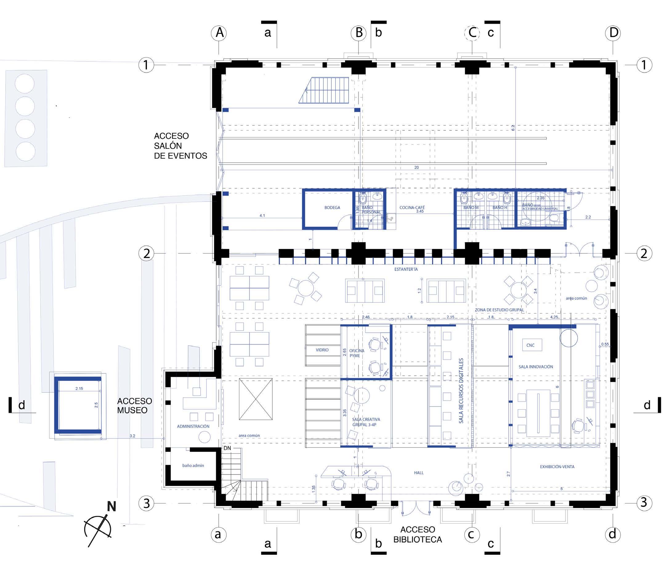
Rungue es una pequeña localidad ubicada al norte de Santiago en la comuna de Tiltil. Tanto la comuna como la localidad de Rungue se encuentran hoy en un estado crítico desde un punto de vista ambiental. La ex sub estación eléctrica ubicada a un costado del estero se encuentra desocupada manteniendo su estructura original en buen estado. Se propone un proyecto de restauración de paisaje del estero dañado por la actividad industrial cercana.

En el edificio, un museo de sitio en la planta del subterráneo que muestra la arquitectura y exhibe los objetos de la antigua sala de máquinas y en el primer piso, una una biblioteca pública tipo cowork. Para esta propuesta se trabajó desde la etapa de análisis hasta el desarrollo de la propuesta. Dibujos y modelo 3D en software Revit. Edición de planos en AutoCad, Adobe Illustrator/Photoshop.

Rungue. Tiltil, Chile
Vista sala de reunión
Corte d-d
Planta primer piso

Renovación de una

Escuela Pública

NO.OFF

Año: 2021

Ubicación: Renca

Tipo: Concurso “Proyectar a conciencia 4.0”

La escuela “Lo Velásquez” es una escuela pública construida por la Sociedad Constructora de Establecimientos Educacionales (SCEE) a fines de los 60. Las aulas y dependencias del colegio están hechas bajo un modelo prefabricado de acero y muros de albañilería en tipología tipo pabellón. Está en buen estado y se conforma a partir de un módulo estructural de 3x6 m. Sin embargo, la calidad ambiental es baja debido a los materiales de la envolvente y poca luz natural.

Se propone rehabilitar la envolvente de murosy techumbre de cada uno de estos módulos con el sistema de aislación exterior (EIFS) y rehabilitar la cubierta a través de lucarnas para aumentar la luz natural al interior de las aulas. Se proyecta sombreaderos y un nuevo piso de caucho para los patios entre las aulas. El trabajo se realizó desde la etapa de análisis, diseño esquemático y desarrollo de proyecto.

Renovación Escuela Lo Velásquez. Santiago, Chile.
Vista aulas
Rehabilitación aula tipo
Aula y patio proyecto
Aula y patio existente

Rehabilitación

Edificio

REVAL

NO.OFF

Año: 2017

Ubicación: Santiago Centro

Tipo: Concurso “Proyectar a conciencia 1.0.

El edificio REVAL, construido en 1960 representa un caso emblemático para la tecnología de la construcción en Chile debido a su estructura y la aplicación del muro cortina en la que fue una de las primeras torres de vivienda en Santiago. Sin embargo, la fachada del edificio se ha desvalorizado durante el tiempo debido a a los cambios de uso y a que el sistema de cerramiento no es apto para el clima de Santiago. A partir de la segmentación de 3,75ºr del edificio, se propone

un nuevo régimen de llenos y vacíos. La composición de la nueva fachada responde tanto a las solicitudes del programa como a la orientación de cada cuarto de circunferencia. Se propone un vidrio doble hermético para el nuevo cerramiento y el uso continuo de aislante térmico de 5 a 30 cm de espesor variando a lo largo del exterior del edificio según el uso y la orientación de la fachada.

Edificio “REVAL”. Santiago, Chile.
Fotomontaje
Corte tipo
Planta tipo: usos mixtos
Axonométrica

Reciclaje

Edificio Carillón

Año: 2015

Ubicación: Santiago Centro.

Tipo: Proyecto de título

El edificio de estacionamientos Carillón es uno más de los edificios de esta tipología que se ubican en un sector del casco histórico de Santiago. Se propone transformar un edificio privado, oscuro y frío a un lugar cálido y de carácter público. La totalidad del primer medio piso es de uso exclusivo para estacionamiento de bicicletas, camarines, guardarropía y un pequeño restorán. En los pisos consecutivos se proyecta un cowork público con salas de estudios y de

reunion. Las rampas del edificio son del 5% por lo que se propone escalonar la pendiente y de este modo habitar medios pisos con diferencia de 1.4 m entre ellos. Además, se propone vaciar el centro y algunas losas del edificio para permitir el ingreso de luz natural, generar dobles alturas y obtener mas espacio libre. En la cubierta del edificio se propone una azotea semi cubierta para eventos, un pequeño invernadero y lugares para recreación.

Reciclaje edificio “Carillón”. Santiago, Chile.
Vista cowork
Corte transversal
Planta primer piso

XIX Bienal de Arquitectura - Chile

GAC y Grupo TALCA

Año: 2015

Ubicación: Valparaíso

Tipo: Montaje muestra académica e investigaciones

La XIX Bienal de arquitectura de Chile toma como tema “El país que queremos”, desde una orientación pública y debate sobre el futuro rol de la profesión en el desarrollo del país. El lugar de exhibición fue en la ex-cárcel de Valparaíso, hoy Parque Cultural de la ciudad. Se desarrolló el diseño de la Muestra académica, los soportes de exhibición y la programación de sus contenidos. Se propuso dividir las distintas zonas del edificio en tres partes: muestra de universidades,

muestra de Investigación y muebles para workshop. Se diseñaron los soportes de exhibición para cada una de las muestras. La responsabilidad en el poyecto se desarrolló desde la etapa de organización de contenidos, diseño, hasta los planos de detalle para montaje. Cada soporte fue diseñado en madera de terciado estructural, pino 2x2”, y algunas estructuras metálicas y elementos colgantes con tensores.

Ex cárcel , Valparaíso, Chile. Planta exhibiciones. 1er y 2do piso.
Foto: Muestra investigación.
Foto. Muestra académica
Corte transversal muestra académica

Enzo Vergara v.vaccia@gmail.com issuu.com/vaccia enzverccia.tumblr.com

Turn static files into dynamic content formats.

Create a flipbook
Issuu converts static files into: digital portfolios, online yearbooks, online catalogs, digital photo albums and more. Sign up and create your flipbook.