

MODELADO TRIDIMENSIONAL
DOCENTE:
ARQ. ERNESTO BERLINGER, CAMPOS
CALIZAYA
ALUMNO: JEFERSON EFRAIN, LLOCCLLA


MENDOZA
PLANTA NIVEL 1

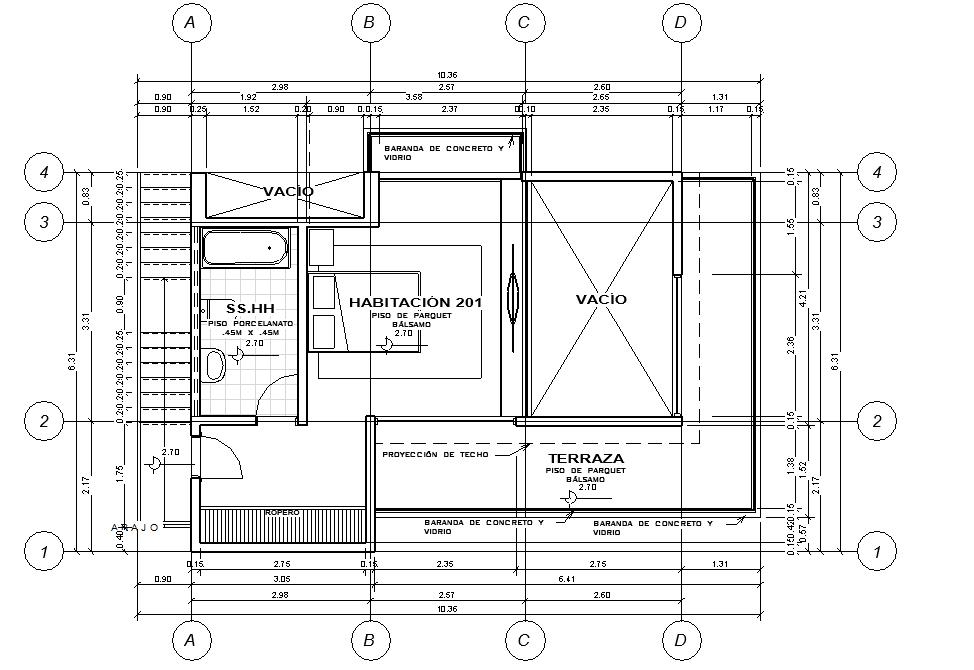
PLANTA NIVEL 2

ELEVACION LATERAL IZQUIERDA

ELEVACIÓN FRONTAL

ELEVACIÓN DERECHA

ELEVACIÓN POSTERIOR

DESARROLLO DEL MODELADO




DESARROLLO DEL MODELADO




DESARROLLO DEL MODELADO




DESARROLLO DEL MODELADO




DESARROLLO DEL MODELADO




DESARROLLO DEL MODELADO




DESARROLLO DEL MODELADO




FOTOGRAFÍAS FINALES


FOTOGRAFÍAS FINALES


CAJA DE SECCIÓN


FOTOGRAFÍAS FINALES

FOTOGRAFÍAS FINALES
