Barcelona Program 2017 - The Independent Moll

Page 1

_ALAR 7010-8010 - RESEARCH STUDIO DAY LIFE OPEN TALKS THE MUXIGANGA SHOW _ARCH 5605 - URBAN MATERIALITY MODERN CITY –MODERN LIFE _ARH 5613-501 - GAUDI’S LEGACY CONSTRUCTION OF THE MOD _PLAN 5611-501 - BARCELONA URBAN HISTORY
THE INDEPENDENT MOLL
4 154 164 168 174 DERN CITY 176

THE INDEPE MOLL

ALAR 7010 - 8010 - Research Studio

Manuel Bailo_Associate Professor

Arnau Reventós_Teacher Assistance

NDENT

THE INDEPE MOLL

NDENT

THE INDEPE MOLL

NDENT

This course will be focused on Barcelona’s coast line. The site of the studio will be in the harbor zone. The main goal of this exercise will be to design a new relationship between the city and the sea. The studio will be developed in the Moll de la Fusta. This area belongs to one of the most important projects done in the eighties, when Barcelona started to recover the city thorough the design of the public space. This project, designed by the professor and urban designer Manuel de Solà Morales, was the new Barcelona´s façade facing the sea. A project that represents a historical moment of Barcelona’s urban transformation.

The studio will focus on four main topics:

1. Reviewing the public space

Although the Moll de la Fusta was a very successful project, today is an empty public area. The delicate cross section between the city and the sea was the goal of the project. A concrete platform covering the highway linked the citizens, from the gothic neighborhood to the ocean. The original project had a strong connection with the sea, due to the bats and restaurants sited on the platform. Unfortunately, these small

public programs disappeared, over the las years, because of the public protest from the existing bars and restaurants of the gothic neighborhood. This is a space which clearly needs a new and urgent review. The connection between the city and the sea has been lost, and the Moll de la Fusta has to be redesigned under a bigger scale view. This is the opportunity to design a new Barcelona Water Front, going from the Park de la Ciutadella till the Montjuic Mountain, including the ending of Las Ramblas street.

2. Tourist and Cruise ships

Barcelona is today one of the most important European cities when it comes to cruise fluidity. The Cruise Terminal sited in front Montjuic Mountain is today disconnected from the city core. The studio proposes to design new ways of public transportation which will aim to link the important facilty with the city, and, at the same time, define a new water front. The increase in tourism in Barcelona has recently been noticed because of some citizens protesting. The city needs to define other ways to manage the increase of tourism. Barcelona has to have new public places where citizens and tourists can mix spontaneously.

3. Climate change

The Mediterranean ocean is also under the effects of the Climate Change. The Third Catalan Report regarding the Climate Change pronounces a new water level rise sited, at the end of this century, 1,8m above actual sea level. This report predicts deep future problems with potable water in the Mediterranean area. The increase of the temperature will define another climate with a new rainfall index with long dry periods. The new Barcelona Waterfront Project will have to keep in mind this new future environment issues.

4. Catalonia Independent Republic

Catalonia is today involved in an important political process. The 50% of Catalan citizens want to have a new political status. During the studio time, while we will be in Barcelona, Catalonia will be living a historical moment. On October the 1st, the Catalan government is planning on having a public voting regarding the independence from Spain. If the voting finally takes place, and the result comes back positive for the independent party, the Catalan government will define a new Catalan Republic. But because of Spanish government is against the voting, we don’t know what lays ahead. This studio will design a new Catalan Parliament. A new public building with a new Public Space in the city waterfront of Barcelona.

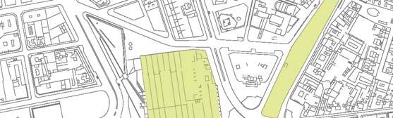
SITE LOCATION

PROGRAM DISTRIBUTION

parlamentarian spacesadministration spaces 5150 sqm 700 sqm hemicycle 200 sqm resting rooms 100 sqm translation chambers 100 sqm press room 200 sqm conference room 50 sqm president's office 30 sqm president of the opposition office 100 sqm permanent members office 200 sqm permanent comissions office 2700 sqm parlamentarians offices (x135) 500 sqm meeting rooms (x10) 50 sqm changing rooms 50 sqm restrooms 30 sqm secretary of presidence 100 sqm secretaries 500 sqm parlament adminsitration 100 sqm technic services 300 sqm press room 20 sqm press chief 50 sqm security office 30 sqm security changing rooms 50 sqm cleaners room / changing room 50 sqm restrooms 2500 sqm parlamentarians securized parking 1000 sqm storage 4830 sqm
common spacespublic spaces circulation and construction surface TOTAL SPACE 1000 sqm bar / restaurant 2000 sqm plaza 500 sqm library 100 sqm citizen attention space 100 sqm visitors space 50 sqm security control access 50 sqm public restrooms 3500 sqm300 sqm3445 sqm 17225 sqm PROGRAM

PROPOSALS

FOLDED BARCELONA 31
CONTENT
VIA PARLIAMENT 53
a
EXTENSION 75
RE-CENTRALIZED GOVERNMENT 93 PUBLIC SUPPORT 113BUILDING CATALONIA 129 21 20

What is the size of a city? Or, where is the boundary of a city? Imagine you are running in a city, trying to get out of the city you are living in, is it possible, or how long will it take? One essential character of the city of Barcelona is its geographical condition between mountaion and sea. As a new Catalan Parliament and public space, this project is to grasp this understanding and experience of the city, fold it and compress this city- scale experience into one building. To create connection with the sea, and thus Moll de la Fusta. At the same time to create connection with the mountain, and thus existing fabric within Gothic Quarter. This is a public space keep reminding people where they are situated and what is surrounding them.

32 University of Virginia
The Independent Moll 33 FOLDED BARCELONA THE NEW CATALAN PARLIAMENT HAORUO ZHU, FANG NAN

HAORUO ZHU, FANG NAN UNFOLDED PLAN

34 University of Virginia
The Independent Moll 35 FOLDED BARCELONA
36 University of Virginia HAORUO ZHU,
NAN
FANG
The Independent Moll 37 FOLDED BARCELONA
38 University of Virginia CONCEPT HAORUO ZHU,
NAN MOLL DE L MOUNTAIN
FANG
The Independent Moll 39 FOLDED BARCELONA
LA FUSTA SEA
40 University of Virginia HAORUO ZHU,
EXPERIE
FANG NAN
The Independent Moll 41
ENCE FROM SEA TO MOUNTAIN: VISUAL VS. PHYSICAL
FOLDED BARCELONA
PATH + PUBLIC SPACES
42 University of Virginia
HAORUO ZHU, FANG NAN 01
04 COURTYARDS 02 CR
DIAGRAMS
THE EXISTING BUILDING FACADE
The Independent Moll 43 FOLDED BARCELONA EATE CONNECTION TO BOTH SIDES 05 FUNCTION ARRANGEMENT 03 PATHWAY & VERTICAL TRANSPORTATION 06 STRUCTURE

HAORUO ZHU, FANG

FLOOR PLANS

44 University of Virginia
NAN 1F PLAN 2F PLAN 2MF PLAN
The Independent Moll 45 FOLDED BARCELONA 3F PLAN 4F PLAN 5F PLAN
46 University of Virginia HAORUO ZHU,
NAN
FANG
The Independent Moll 47 FOLDED BARCELONA
48 University of Virginia
ZHU,
NAN
SECTIONS HAORUO
FANG
The Independent Moll 49 FOLDED BARCELONA
50 University of Virginia HAORUO
ZHU, FANG NAN
The Independent Moll 51 FOLDED BARCELONA
52 University of Virginia
VIEWS HAORUO ZHU, FANG NAN
The Independent Moll 53 FOLDED BARCELONA

Frequently protesting on the street and occupying main plazas seem to be a very common way for public to express their politic opinions in the city of Barcelona which constantly enhance tension between public and government. Starting from observation of protests of Taiwan, this project proposes a parliament providing more possibilities for public and protesters to coming into the building which can make the parliament more open to public and then mediating the intense relationship between protesters and politicians. At a same time, by considering surrounding contexts of the Moll de la Fusta, this project also aims at creating better connection between urban and waterfront on site.

54 University of Virginia
The Independent Moll 55 VIA PARLIAMENT PARLIAMENT AS CONNECTOR MENGDI RAO, YIWEN XING
The Independent Moll 57
58 University of Virginia
AS CONNECTOR BETWEEN PUBLIC AND POLITICIAN MENGDI RAO, YIWEN XING Parliament with 0% Function and 100% Public Hemicycle of Tainwan Occupied by Student Protestors Parliament with 100% Function and 50% Public Tension of Politics Parliament with 100% Function and 0% Public Protestors Surrounded Parliament of Taiwan AccumulationEruptionMediation Accumulation Parliament with 100% Function and 0% Public Protestors Surrounded Parliament of Taiwan Parliament with 0% Function and 100% Public Hemicycle of Tainwan Occupied by Student Protestors Parliament with 100% Function and 50% Public Tension of Politics Politic Obeservation Eruption Mediation
CONCEPT PARLIAMENT
The Independent Moll 59 VIA PARLIAMENT 014070280420700 Plaza Catalunya Plaza San Jaime La Rambla Flow of People in the Site Plaza Arc de Triomf Plaza Urquinaona Passeig de Gracia Plaza Universitat Plaza Espanya Via Laietana
Main Spaces for Protesting of Barcelona

CONCEPT MODEL STUDY

Attached Traffic and Underground ParkingCirculation

The Ronda highway and parking lot under higher level of Moll de la Fusta as key urban constructions of Barcelona should be taking care of. By attaching to the existing traffic lanes in lower level of moll de la fusta, the parking area of parliament can be more easily accessible.

Regarding the highway on the other han front area, a circulation of public is propo over the highway and leading to the wat through the public area of the hemicycle parliament.

Circulation of ProtesterEnveloping Hemicycle w

To receiving large amounts of protesters from the direction of La Rambla and Plaza Catalunya, a space above hemicycle is proposed to taking those people into the political centre where they can more freely express their political opinions to mediate relationships between politician and public as main idea of the project.

Having different kinds of circulation for d the hemicycle gives those people oppor can meet each other, also by placing the water, both views to them are available a

60 University of Virginia
MENGDI RAO, YIWEN XING ODEL

n of Public

d as a cut between urban and waterosed to taking people from the city side erfront, also the circulation goes which bring more visitors to the

Circulation of Politician

A direct pathway from offices leading to the hemicycle for the politicians is proposed to enhance the feeling of entering the political space of parliament, at the same time the pathway goes through meeting and press spaces which allow different groups of users better getting in touch with others.

ith Different CirculationsContinuing the Momentum

different groups of people together in tunities and interesting moments they e the hemicycle between the urban and at the same time.

Continuing the momentum towards the end of La Rambla to provide the way for them to take to get into the hemicycle, at the same time this also can connect different levels of Moll de la Fusta which allows people from city side easily go to the water front on the roof top of the parliament as an extended plaza.

The Independent Moll 61 VIA PARLIAMENT

FLOOR PLANS

62 University of Virginia
MENGDI RAO, YIWEN XING 0402080120200
Urban Site Plan

Parking Floor Plan

The Independent Moll 63 VIA PARLIAMENT 0105203050 1. Office Parking 2. Restaurant Parking 3. Restaurant Stotage 4. Storage Administration 5. Restroom 6. Courtyard 7. Library Administration 8. Office 9. Technic Services 10. Storage 11. Archive 12. Library 13. Library Services 14. Clearner Room 15. Public Lobby 16. Parking Entance 17. Security 18. Public Restaurant 19. Parliament Resting 20. Restaurant Resting 21. Public Restaurant Kitchen 22. Parliament Restaurant 23. Exclusive Restaurant 24. Restaurant Kitchen 25. Changing Room 26. Secretaries 27. Board Members Meeting 28. Conference Room 29. Board Menbers Lounge 30. Parliament Lobby 31. Meeting Lobby 32. Meeting Room 33. Main Press Room 34. Small Press Room 35. Translation Room 36. Press Chief Office 37. Entrance Lobby 38. Visitor Space & Gift Shop 39. Board Members Office 40. President Office 41. President Secretary 42. Opposite President Office 1 2 4 55

Underground Floor Plan

64 University of Virginia
0105203050 6 5555 131313 91011 121517 185 55 5 19 9 109 9 2022 2323 23 1. Office Parking 2. Restaurant Parking 3. Restaurant Stotage 4. Storage Administration 5. Restroom 6. Courtyard 7. Library Administration 8. Office 9. Technic Services 10. Storage 11. Archive 12. Library 13. Library Services 14. Clearner Room 15. Public Lobby 16. Parking Entance 17. Security 18. Public Restaurant 19. Parliament Resting 20. Restaurant Resting 21. Public Restaurant Kitchen 22. Parliament Restaurant 23. Exclusive Restaurant 24. Restaurant Kitchen 25. Changing Room 26. Secretaries 27. Board Members Meeting 28. Conference Room 29. Board Menbers Lounge 30. Parliament Lobby 31. Meeting Lobby 32. Meeting Room 33. Main Press Room 34. Small Press Room 35. Translation Room 36. Press Chief Office 37. Entrance Lobby 38. Visitor Space & Gift Shop 39. Board Members Office 40. President Office 41. President Secretary 42. Opposite President Office
FLOOR PLANS MENGDI RAO, YIWEN XING
The Independent Moll 65 VIA PARLIAMENT 0105203050 1. Office Parking 2. Restaurant Parking 3. Restaurant Stotage 4. Storage Administration 5. Restroom 6. Courtyard 7. Library Administration 8. Office 9. Technic Services 10. Storage 11. Archive 12. Library 13. Library Services 14. Clearner Room 15. Public Lobby 16. Parking Entance 17. Security 18. Public Restaurant 19. Parliament Resting 20. Restaurant Resting 21. Public Restaurant Kitchen 22. Parliament Restaurant 23. Exclusive Restaurant 24. Restaurant Kitchen 25. Changing Room 26. Secretaries 27. Board Members Meeting 28. Conference Room 29. Board Menbers Lounge 30. Parliament Lobby 31. Meeting Lobby 32. Meeting Room 33. Main Press Room 34. Small Press Room 35. Translation Room 36. Press Chief Office 37. Entrance Lobby 38. Visitor Space & Gift Shop 39. Board Members Office 40. President Office 41. President Secretary 42. Opposite President Office 17 26 27 2831 32 36 35 35 34 3232 3232 32 5 533 99 38 10 19 30 37 2525 17 29 55 Lower Ground Floor Plan

Higher Ground Floor Plan

66 University of Virginia
0105203050 a a b b c c 1. Office Parking 2. Restaurant Parking 3. Restaurant Stotage 4. Storage Administration 5. Restroom 6. Courtyard 7. Library Administration 8. Office 9. Technic Services 10. Storage 11. Archive 12. Library 13. Library Services 14. Clearner Room 15. Public Lobby 16. Parking Entance 17. Security 18. Public Restaurant 19. Parliament Resting 20. Restaurant Resting 21. Public Restaurant Kitchen 22. Parliament Restaurant 23. Exclusive Restaurant 24. Restaurant Kitchen 25. Changing Room 26. Secretaries 27. Board Members Meeting 28. Conference Room 29. Board Menbers Lounge 30. Parliament Lobby 31. Meeting Lobby 32. Meeting Room 33. Main Press Room 34. Small Press Room 35. Translation Room 36. Press Chief Office 37. Entrance Lobby 38. Visitor Space & Gift Shop 39. Board Members Office 40. President Office 41. President Secretary 42. Opposite President Office 8 39 32 32 5 9 5
FLOOR PLANS MENGDI RAO, YIWEN XING
The Independent Moll 67 VIA PARLIAMENT 0105203050 1. Office Parking 2. Restaurant Parking 3. Restaurant Stotage 4. Storage Administration 5. Restroom 6. Courtyard 7. Library Administration 8. Office 9. Technic Services 10. Storage 11. Archive 12. Library 13. Library Services 14. Clearner Room 15. Public Lobby 16. Parking Entance 17. Security 18. Public Restaurant 19. Parliament Resting 20. Restaurant Resting 21. Public Restaurant Kitchen 22. Parliament Restaurant 23. Exclusive Restaurant 24. Restaurant Kitchen 25. Changing Room 26. Secretaries 27. Board Members Meeting 28. Conference Room 29. Board Menbers Lounge 30. Parliament Lobby 31. Meeting Lobby 32. Meeting Room 33. Main Press Room 34. Small Press Room 35. Translation Room 36. Press Chief Office 37. Entrance Lobby 38. Visitor Space & Gift Shop 39. Board Members Office 40. President Office 41. President Secretary 42. Opposite President Office 8 42 41 40 First Floor Plan

SECTIONS, FAÇADES

68 University of Virginia
MENGDI RAO, YIWEN XING a i V i rg of si v U 8 y r n 6 Cross Se
The Independent Moll 69 VIA PARLIAMENT 9 M 6 o nt n p n he de e d T ction a-a

SECTIONS, FAÇADES

70 University of Virginia
RAO, YIWEN XING i V o i i rg f y ver U 0 i 7 Cross Se
MENGDI
The Independent Moll 71 VIA PARLIAMENT M n n 7 o e pe n e de T ction b-b

SECTIONS, FAÇADES

72 University of Virginia
RAO, YIWEN XING a g V y n i o t rs v U 7 e n 2 Cross Se
MENGDI
The Independent Moll 73 VIA PARLIAMENT 7 l M den e e I h p d e T ction c-c
74 University of Virginia
MENGDI RAO,
VIEWS
YIWEN XING
View from Carre View from Carrer d'En Boltres
The Independent Moll 75 VIA PARLIAMENT
View from Plaza del Duc de Medinaceli r de Louis Braille

THE END OF LA RAMBLA

The junction between Moll de la Fusta and Las Ramblas is a huge empty space with two buildings on it. Comparing with Gothic Quarter, it has different space qualities. When people come from Las Ramblas, they are always confused by this space. It’s like Las Ramblas suddenly disappear at this junction. It’s like a river being stopped from running into the sea by a dam. We want Las Ramblas to continue, and join with the sea. The intervention is to extend Las Ramblas, to give it a proper space at its end point.

76 University of Virginia
The Independent Moll 77 EXTENSION PARLIAMENT OF CATALUNYA ZIYU WAN / JUNTAO LIANG
78 University of Virginia
The Independent Moll 79
University of Virginia JUNTAO LIANG / ZIYU WAN
STRATEGIES
81 EXTENSION
82 University of Virginia CONCEPT JUNTAO LIANG / ZIYU WAN
The Independent Moll 83 EXTENSION

FACADE DIAGRAMS

84 University of Virginia
JUNTAO LIANG / ZIYU WAN
The Independent Moll 85 EXTENSION

FLOOR PLANS

University of Virginia
JUNTAO LIANG / ZIYU WAN
The Independent Moll 87 EXTENSION

SECTIONS, FAÇADES

88 University of Virginia
JUNTAO LIANG / ZIYU WAN
The Independent Moll 89 EXTENSION
University of Virginia JUNTAO LIANG / ZIYU WAN
91 EXTENSION
92 University of Virginia
JUNTAO LIANG / ZIYU WAN
KEY MOMENTS
The Independent Moll 93 EXTENSION

The project addresses the key intersection that occurs at the end of Las Ramblas and Passeig de Colon.

The major parks in Barcelona, Montjuic and Ciutadella Park, flank the city like ears on either sides of a face. They are the only two large parks that are relatively close to the city center. The existing condition shows isolated parks and public plazas scattered between the two large parks. The proposal is a spine to connect these two green spaces and also act as a catalyst for more vertical connections.

A street study was conducted on the axis of connection between Montjuic and Ciutadella Park. Historically, when the city was walled, the Pla de Palau was bisected by one big street called Passeig del Mar, when the via Laietana did not exist yet. Through the years and prioritization of car-oriented transport, what used to be an uninterrupted axis became segments of different streets, with monuments and intersections that mark their division. The proposal suggests to unify these segmented streets with the same or similar layout, with one common spine or linear park in between the lanes.

Considering the perpendicular access, the project extends Las Ramblas to the ocean as it was historically one of the main tributaries that deposited to the sea. To the northeast of Las Ramblas, many smaller streams deposited into the ocean, but due to urbanization and pollution, these streams picked up contaminated and the runoff became toxic to the sea. The project proposes to solve this issue by creating a barrier along the spine to catch the water before reaching the sea. The retained water can then be used to maintain the green spaces along Moll De La Fusta, a public space for the surrounding neighborhood.

The intersection the project is sited features a radiated fan of governmental buildings. Our proposed building completes the circuit while maintaining the view of the Mediterranean sea, by fitting the program below which offered a public plaza for citizens above.

RE-CEN

94 University of Virginia

NTRALIZED GOVERNMENT

THE END OF LAS RAMBLAS FOR A NEW BEGINNING

CRISTINA

The Independent Moll 95
KYLE FLOWERS,
PRECIADO, ARSHAYA SOOD
96 University of Virginia
The Independent Moll 97

FLOWERS, PRECIADO, SOOD

KEY MOMENTS

98 University of Virginia

HISTORICAL IMAGES

The Independent Moll 99 RE-CENTRALIZED GOVERNMENT
TOP LEFT TO BOTTOM RIGHT: PASSEIG DE COLOM 1888, LOOKING TO MONTJUIC PASSEIG DE COLOM 1888, LOOKING TO CUITUDELL PARK WATERFRONT BUILDINGS MOLL DE LA FUSTA

FLOWERS, PRECIADO, SOOD

DIAGRAMS

SITE DEVELOPMENT

ANGULATE SURFACES TO ALLOW FOR WATER COLLECTION

100 University of Virginia

RAISE SURFACE TO ENABLE HEIGHT FOR SKYLIGHTS

INSERT PROGRAM

CIRCULATION: PARLIAMENTARY ACCESS

TRIANGULAR TESSELLATION

CIRCULATION: PUBLIC ACCESS

PERFORATE SURFACE TO ENABLE PATIOWW SPACES

PERFORATE SURFACE

The Independent Moll 101
GOVERNMENT
RE-CENTRALIZED

FLOWERS, PRECIADO, SOOD

SITE PLAN

102 University of Virginia
The Independent Moll 103 RE-CENTRALIZED GOVERNMENT

FLOWERS, PRECIADO, SOOD

FLOOR PLAN: LEVEL -1

104 University of Virginia
C D E The Independent Moll 105

FLOWERS, PRECIADO, SOOD

SECTIONS

106 University of Virginia
TRANSVERSE SECTION SCALE 1:250 SECTION SCALE E 1:250 SECTION C SCALE 1:250 The Independent Moll 107 RE-CENTRALIZED GOVERNMENT

FLOWERS, PRECIADO, SOOD

URBAN SECTIONS

108 University of Virginia
LONGITUDINAL URBAN SECTION B URBAN SECTION A The Independent Moll 109 RE-CENTRALIZED GOVERNMENT

FLOWERS, PRECIADO, SOOD

SITE AXON

110 University of Virginia
A
The Independent Moll 111 RE-CENTRALIZED GOVERNMENT TRALIZED GOV RE-CENTRA T C B D E F

FLOWERS, PRECIADO, SOOD

KEY MOMENTS

A B

112 University of Virginia
F E
The Independent Moll 113 RE-CENTRALIZED GOVERNMENT
C
D

Public Support was realized through a diversity of inspirations. To begin, we studied the public space of Moll de la Fusta, understanding what was lacking within this wide open space for the inhabitants who lived nearby and for those temporarily visiting the city. From this study, we realized the disconnection between Moll de la Fusta and the current facade of the city as one major issue. Public Support attempts to reconcile this disconnection by reactivating the public space near the parliament building. By lifting the building from the ground, there is an opportunity to create a park and maintain the views out to the sea. This leads to the second realization. Water is a large component of everyone’s day to day life. Whether it is in either a leisure format or in terms of collection and distribution. Public Support identifies water as a key component in the forming of architecture. Understanding how to collect and redistribute on our own site of Moll de la Fusta came from the study of courtyards around Barcelona, and considering how we could use them on our own site. As a common architectural feature that is successful in this warm climate, we introduced natural light through courtyards, spaces for planting native plant species and a system of collecting and filtering water. Once we had a better understanding of the needs of the city, we asked ourselves what it meant to be a government building. We wanted this project to be a symbol of support for the community, a pilar of strength.

114 University of Virginia
The Independent Moll 115 PUBLIC SUPPORT A PARLIAMENT FOR THE CITIZENS OF CATALONIA DARCY ENGLE + FANGLI LYNN ZHANG
116 University of Virginia
The Independent Moll 117

GEOLOGICAL CONTEXT_

ARTIFICIAL COAST OF BARCELONA WHICH IS AN ECOLOGICALLY VULNERABLE EDGE OF THE LAND

118 University of Virginia DARCY ENGLE / LYNN ZHANG
STRATEGIES
The Independent Moll 119 PUBLIC SUPPORT URBAN DEVELOPMENT_ REVOLUTION OF THE CITY'S GATE AND FACADE

DARCY ENGLE / LYNN ZHANG

CONCEPT

CONCEPTS, IDEAS, KEY WORDS

FIRST FACADE

STEP ONE_EXISTING

STEP 1_existing

FIRST FACADE

SECOND FACADE

second facade

STEP 2_existing

STEP TWO_EXISTING

FIRST FACADE

SECOND FACADE

second facade third facade

THIRD FACADE

STEP THREE_PROPOSED NEW FACADE

120 University of Virginia

STEP 4_supporting

STEP FOUR_SUPPORTING

STEP 4_extending the city fabric

STEP FIVE_EXTENDING THE CITY FABRIC

STEP 4_insert public space

STEP SIX_INSERT PUBLIC SPACE

The Independent Moll 121 PUBLIC SUPPORT

DIAGRAMS

COURTYARD DIAGRAM_ OPENINGS ON EACH LEVEL OF THE BUILDING OVERLAPS IN A DIFFERENT PATTERN, THUS CREATING A MORE ATTRACTIVE SPACE FOR THE PARLIAMENT AS WELL AS A THE PUBLIC

122 University of Virginia
DARCY ENGLE / LYNN ZHANG

ROOF

HANGING GARDENS

RETENTION POOLS

rainwater management_ roof
gardens
pools The Independent Moll 123 PUBLIC SUPPORT
hanging
retention
+ IRRIGATION + DISPERTION
RAINWATER MANAGEMENT_ COLLECTION
1
OFFICE COURTYARD
2
OFFICE COURTYARD

DIAGRAMS

STRUCTURE DIAGRAM_ STRUCTURE COMPRISED OF MAIN VERTICAL SUPPORTS, ON TOP OF WHICH RESTS LARGE BEAMS BY WHICH THE REMAINDER OF THE STRUCTURE IS HUNG

124 University of Virginia
DARCY ENGLE / LYNN ZHANG
The Independent Moll 125 PUBLIC SUPPORT
CIRCULATION DIAGRAM_ CIRCULATION OCCURS WITHIN THE FOUR MAIN CORES IN THE CENTER OF THE BUILDING, TWO EMERGENCY EXIT STAIRS ON THE SIDES AND TWO ADDITIONAL EXITS THROUGH THE GARDENS

DARCY ENGLE / LYNN ZHANG

FLOOR PLANS

SECOND/HEMICYCLE FLOORPLAN_

THIRD/LOBBY FLOORPLAN_

FIRST/PUBLIC SPACE FLOORPLAN_

126 University of Virginia
21 20 19 18 17 _ scale 1:200 13 15 16 14 _ scale 1:200

FOURTH/OFFICE

1 TYPICAL OFFICE

2 COURTYARD GARDENS

3 ELEVATOR LOBBY/RECEPTION

4 OPEN CONFERENCE

5 TYPICAL MEETING ROOM

6 PERMANENT MEMBERS OFFICE 7 PRESIDENTS OFFICE 8 PRESIDENTS BOARD ROOM 9 BOARD MEMBERS OFFICE 10 PRESIDENT OF THE OPPOSITION

12 LIBRARY (LEARNING SPACES)

13 SECURITY CHECKPOINT

14 CAFE

15 RESTAURANT

16 LIBRARY (STACKS)

17 HANGING GARDENS

18 PRESS ROOM

19 HEMICYCLE

20 STEPPED GARDENS/POOLS

21 GROUND FLOOR LOBBY

The Independent Moll 127 PUBLIC SUPPORT 1 3 4 5 _ scale 1:200 6 7 8 9 10 11 12 _ scale 1:200
FLOORPLAN_
FIFTH/OFFICE FLOORPLAN_
OFFICE 11 PARLIAMENT ADMINISTRATION
perspective _ adjacent plaza perspective _ courtyard perspective _ hanging gardens perspective 128 University of Virginia VIEWS DARCY ENGLE / LYNN ZHANG PERSPECTIVE_COURTYARD_ PERSPECTIVE_HANGING GARDENS_ PERSPECTIVE_ADJACENT PLAZA_ PERSPECTIVE_OFFICE STREETS_
perspective _ hemicycle perspective _ down the mol de la fuesta The Independent Moll 129 PUBLIC SUPPORT PERSPECTIVE_HEMICYCLE_ PERSPECTIVE_DOWN MOLL DE LA FUSTA_

What does it mean to be Catalan? What are the identifying factors that makes a democratic country? For a Catalan Parliament building, it is quite important to incorporate Catalonia’s values into the building that represents the new nation. In Catalan architecture, the theme of gateways and openings are quite apparent to bring in and welcome people to the city. From the Sagrada Familia to the current Catalonia parliament, these arches or gateways occur over and over again to demonstrate a sign of openness similar to how democratic nations should be. Very transparent, always listening and opening the doors to the people of the nation. Since the beginning, Catalonia is constantly in a state of transition, always adapting to changes and current events. In the past, Montserrat is constantly under-construction due to Napoleon’s troops and wars and Sagrada familia is still underconstruction after over a hundred years since the start of construction. Building Catalonia seeks to capture this special moment in time when the current independence movement in Catalonia is attempting to build itself up and sail away from Spain. The construction of a ship demonstrates all Catalonia’s values of being very open and constantly improving to get better.

The location of the site is located at the end of Moll de la Fusta in order to create a destination and activate the public space once again. Maremagnum, a shopping mall located south of Las Ramblas, currently attracts 75% of the traffic towards the shopping mall, which over the years has affected the significance of Moll de la Fusta by diverting the people away from this historical port. Similar to the downtown mall in DC, by placing two monuments at the end of the mall, the placement of the new monument can activate and direct traffic towards the mall. The new parliament building aims to connect people from the sea, Las Ramblas, Via Laietana and Barceloneta. From these four locations, a creation of a central hub unifies these four locations which is a representation of the four provinces in Catalonia and creates an open, democratic public space in the interior. Office spaces surround the public spaces below and are also located at the semi-completed ships to the west and south to bring the politicians closer to the people that they are working for. Every part of the process utilizes the most efficient manner by reducing material usage and maximizing structural strength capacity by creating funicular and catenary forms similar to Gaudi’s methodology.

The building from the outside looks like it’s a bubble that is about the burst. Which may be true about the current crisis, but the spirit of Catalonia isn’t about the skin or the façade. Being Catalan is about what is inside, a certain feeling, passion, patriotism and pride which is highlighted in the interior renderings. The future completed building rendering may look like what could have been, but the incomplete form is what it is. Most of the parts are taken away by the Spanish government or incomplete during the construction process. In both these processes, there is something missing that yet need to be complete. The Spanish Government can take whatever they want or slow the process of construction but the parliament will still function because it’s not what you want to have but what you do with limited resources. After looking at Igualada Cementery by Enric Miralles and Crypta Guell by Antoni Gaudi, a building doesn’t have to be complete to be functional. People will make it work in whatever stage it is. In the renderings, the emphasis is on the structure and the foundation. By designing a structure that uses the right form, least material and strength to come together and make the best out of their resources. In the end, they can take everything away but again it’s using what you have to make it work. Still be able to function without all the pieces. If space is all that is left, people will still make it work. The Catalan history and spirit doesn’t go away, it’s buried deep inside. That is uniquely Catalan.

130 University of Virginia ATTEMP
The Independent Moll 131 BUILDING CATALONIA PTING TO CONSTRUCT A PARLIAMENTARY BUILDING FOR THE NEW CATALAN NATION JOSHUA CRUZ
132 University of Virginia
The Independent Moll 133

DESTINATION | Utilizing the Moll de la Fusta + Moving People Closer to the Parliamentary building + Connection to the DC Downtown Mall

134 University of Virginia
JOSHUA CRUZ STRATEGIES
The Independent Moll 135 BUILDING CATALONIA

PAST AND PRESENT CATALONIA Constantly Under-construction

136 University of Virginia CONCEPT JOSHUA CRUZ

FUTURE CATALONIA

Under-construction to sail away from Spain

The Independent Moll 137 BUILDING CATALONIA

DIAGRAMS JOSHUA CRUZ

Massing Process

Site Origins |Views + Desitination

Coming Together |The 4 boats/provinces coming together to create a new nation.

Structure | Framework link + Extraction of edges

Link |Connecting the boats/provinces to the hub

138 University of Virginia

Connection Hub/Web in Tension |Using Kangaroo and grasshopper to give form using the site boundaries by using gravity. Height based on heights of surrounding buildings and program size.

Inverse |Creation of roof/ spaces for gathering and conversation. Considered the best form for loads. Uses relatively lesser material and yields the highest strength due to the funicular form.

Structural Densification | Funicular forms for maximum strength based on loads. Similar methods to constructing catenary vaults.

Completed Framework

The Independent Moll 139 The Independent Course BUILDING CATALONIA

JOSHUA CRUZ

DIAGRAMS

Structural Progression + Essential Geometry

Framework – Primary Structure

Non-Essential Tertiary Structural Members

140 University of Virginia

Secondary Structural membersEssential Tertiary Structural Members

Completed Structure with Tertiary Members

Framework + Essential Structure

The Independent Moll 141 BUILDING CATALONIA
CO 10 142 University of Virginia
CRUZ Ground Floor | NTS 1. Parking 2. Drop-off 3. Public Space 4. Restaurant 5. Citizen Attention Space 6. Press Room + Press Chief 7. Public Restrooms 8. Cleaners Room 9. Security Office + Changing Rooms 10. Outdoor Plaza
FLOOR PLANS JOSHUA
1 2 3 The Independent Moll 143 BUILDING CATALONIA

FLOOR PLANS

1 3 144 University of Virginia
JOSHUA CRUZ
First Floor | NTS
1. Library 2. Open to Below 3. Open Offices 4. Meeting Rooms 5. Outdoor Balcony 6. Restroom 7. Security Clearance 8. Private Offices
8
9. Lounge Area
2 4 5 The Independent Moll 145 BUILDING CATALONIA 6 7 8 8 8 9 9 9 6 6
Sixth Floor Plan | NTS 1. Hemicycle 2. Resting Spaces 3. Outdoor Balcony 4. Restrooms
1 146 University of Virginia
5. Open to Below
FLOOR PLANS
JOSHUA CRUZ
2 The Independent Moll 147 BUILDING CATALONIA 5 4 4 3
48 4 Univ U versi ers e ty o t of Vi fVi V rgin rg nia ia
JO J SHUA CRUUZ
Perspective | View From Moll d’Espanya
VIEWS
Exterior
The Independent ent Mol Moll 149 9 BUILDING CATALONIA

Interior Perspective | Unfinished/Missing

1550 Uni U University of Virginia
JOSHHUA A CRU R Z
VIEWS JO
The Independent t Mol Moll ol 151 1 BU L IL I D DING N CAT A AL A ONNIA A

FOLDED BARCELONA EXTENSION

VIA PARLIAMENT

Fang Nan Haoruo Zhu Mengdi Rao Yiwen Xing Juntao Liang Ziyu Wan

RE-CENTRALIZED GOVERNMENT

PUBLIC SUPPORT

BUILDING CATALONIA

21 20
Kyle Flowers Cristina Preciado Arshaya Sood Darcy Engle Fangli Lynn Zhang Joshua Cruz

DAYLIFE

154 University of Virginia
Visit and conference of Benedetta Tagliabue at EMBT studio Daylife 155
156 University of Virginia

Venice & Vincenza trip. Visiting Palladio’s Villa Almerico (La Rotonda). With the explanations of Howard Burns

Daylife 157
158 University of Virginia

La Pedrera. Antoni Gaudí

Daylife 159
Visit to La Ricarda. Antonio Bonet Castellana 160 University of Virginia
Daylife 161
Visit to Media-TIC. Enric Ruiz Geli 162 University of Virginia
Daylife 163

OPEN TALKS

EMBT

LAPEÑA & TORRES ARCHITECTS

CLOUD 9

MIAS ARCHITECTS

ARQUITECTURA AGRONOMIA

COLL LECLERC ARQUITECTOS

FLORES PRATS ARCHITECTS

BAILORULL +ADD ARQUITECTURA LEVE

EDITORIAL ACTAR

EDITORIAL POLÍGRAFA

VICE-DEAN UPC-ETSAB

164 University of Virginia
www.barcelona-uva.com uvabarcelona The Independent Moll 165
COLL LECLERC ARQUITECTOS
MIAS ARCHITECTS www.barcelona-uva.com uvabarcelona 166 University of Virginia
LEVE

LAPEÑA & TORRES ARCHITECTS

FLORES PRATS ARCHITECTS www.barcelona-uva.com

uvabarcelona EMBT
uvabarcelona
www.barcelona-uva.com
www.barcelona-uva.com
uvabarcelona The Independent Moll 167

THE MUXIGANGA SH

ARCH 5605 - Urban Materiality

Barcelona is internationally known as a city whose urban design is always under urban review, a place where architecture defines the citizen’s way of life. In other words, it is a city in which the voice of the architect has historically dictated how the town should be improved. The Cerdà grid, designed during the Nineteenth Century, and the restoration of the city through the Olympic Games, created a city where architecture is naturally part of our culture. Barcelona is an ancient and modern city where urban design and architecture are one unique entity.

This course will be focused on the public realm. The students will learn how the city has evolved through the design of public spaces. This course will help us to determine how public space has been the catalyst for the transformation of the city.

168 University of Virginia

HOW

The Independent Moll 169
Darcy Engle + Josh Cruz
170 University of Virginia
The
Moll 171
Cristina Preciado + Fangli Lynn Zhang
Independent
Ziyu Wan+ Juntao Liang 172 University of Virginia

MODERN CITY - MO

ARH 5613 - 501 - Gaudi’s Legacy

Since the urban transformation of Barcelona during the fourth quarter of the 19th century the shape of the city was stablished for the times to come, but the rationalistic lines of the city planning that have defined the organization and structure of the streets were not going to define the image of its architecture and its people. The turn of the century was a period comprised between two major historical events, the disaster of 1898 and the Great War. Old money versus new money competing for the control of the city while workers and the lumpen proletariat discovered the call of anarchism and social revolution. The course is organized in a series of lectures and visits to the main works of modernism architecture designed by Gaudi.

174 University of Virginia

DERN LIFE

The Independent Moll 175

CONSTRUCTION OF PLAN

5611 - 501 - Barcelona Urban History

The students will understand the urban history of Barcelona from the very first modern transformations in 19th Century to its present configuration: the theoretical and practical development of the Cerdà Eixample and its evolution, the urban renewal that resulted from the 92’ Olympic Games and a critical approach to the ongoing urban transformations will be studied in this class.

The course is organized in five blocks. Each of them consists of two theoretical lectures at school and a field trip around some key places of Barcelona. Seminar discussions will be also part of each session. The students are asked to produce a graphic interpretation of the different urban subjects that will be discussed in the course.

176 University of Virginia

THE MODERN CITY

F
The Independent Moll 177

Turn static files into dynamic content formats.

Create a flipbook
Issuu converts static files into: digital portfolios, online yearbooks, online catalogs, digital photo albums and more. Sign up and create your flipbook.