Skip to main content

Utah Style & Design Spring 2026

Page 1


Fresh ideas to transform your home and garden

Custom Stainless Steel & Copper Aquatic Products

Residential Commercial Hospitality

Spas Swimming Pools Acrylic-Walled Pools & Spas

Energy-Efficient Portable Spas Swim Spas Cold Therapy Plunge Pools

Tile-ready Pools & Spas Water Features Luxury Custom Indoor & Outdoor Bath Fixtures

Specializing in Elevated / Rooftop Pool & Spa Installations

Lightweight & Durable

ON THE COVER COVER IMAGE BY TIM BOONE PHOTOGRAPHY

50 COLOR WAYS

BY MEGAN BARTHOLOMEW

Top designers reveal smart, surprising ways to deliver color to your favorite spaces

56

K. Rocke Design creates a glittering family home in the heart of Salt Lake City. 98

78

OPEN AND INVITING

BY MEGAN BARTHOLOMEW

PHOTOS BY MEAGAN LARSEN

A dated Sandy home gets a modern refresh—both indoors and out

68 LUX IN LAYERS

MEGAN BARTHOLOMEW

PHOTOS BY TIM BOONE

In Salt Lake City, K. Rocke Design uses artful finishes, playful color and bold architectural details create a home that feels both timeless and unmistakably modern

MODERN TREEHOUSE

BY BRAD MEE

PHOTOS BY LINDSAY SALAZAR

A 1970s hillside home gets a refresh, reemerging as a layered, magical retreat thanks to thoughtful design by Domichel Hickman Design Studio

88 SCULPTED FOR LIVING

BY BRAD MEE

PHOTOS BY AMANDA PETERSON

Sweeping architecture, panoramic views and richly layered interiors redefine mountain living in a striking Tuhaye retreat

98 LIVING IN HARMONY

BY BRAD MEE

PHOTOS BY TAYLOR SPENCER

In Park City, a Glenwild residence blends luxury, landscape and feng shui to create a home as beautiful as it is balanced

From Tuscan terraces to the Ligurian seaside, lesser-known Italian gardens offer ideas and inspiration to take home

A resourceful guide to materials, places and products 110

Who created it and where to find it

Today’s floral wallpapers become a playground of high-impact hues and fearless contrast

PUBLISHER

Justin Dunkley

EDITOR-IN-CHIEF

Megan Bartholomew

EXECUTIVE EDITOR

Brad Mee

ART DIRECTOR

Chelsea Rushton

ASSISTANT EDITORS

Avrey Evans

Jeremy Pugh

WRITING CONTRIBUTORS

Natalie Taylor

GRAPHIC DESIGNER

Kimberly Hammons

PRODUCTION MANAGER

Ren Delgado

PHOTOGRAPHY CONTRIBUTORS

Tim Boone

Meagan Larsen

Heather Nan

Amanda Peterson

Lindsay Salazar

Taylor Spencer

Scot Zimmerman

WEB EDITOR/SOCIAL MANAGER

Michaelis Lyons

OFFICE MANAGER

Jodi Nelson

MEDIA ADVISORS

Janette Erickson

Justin Dunkley

Mat Thompson

Phillip Redd

515 S. 700 EAST, SUITE 3-I, SALT LAKE CITY, UT 84102, PHONE: 801-485-5100 | FAX / 801-485-5133 | EMAIL: MAGAZINE@UTAHSTYLEANDDESIGN.COM | WEBSITE: UTAHSTYLEANDDESIGN.COM

POSTMASTER: SEND ADDRESS CORRECTIONS TO SALT LAKE SUBSCRIPTION DEPARTMENT, 1965 EAST AVIS DR, MADISON HEIGHTS, MI 48071.

Freshen Up

SPRING IS HERE, along with that unmistakable air of renewal. With fresh beginnings in mind, we are pleased to announce our new ownership—Hour Media Group. On behalf of the Utah Style & Design team, I extend our warmest thanks to John and Margaret Mary Shuff, who devoted more than 35 years to building our publications into what they are today. We look forward to a new horizon with Hour Media and the creative heights we can reach together through their expertise.

Now back to these pages: This edition of Utah Style & Design is a breath of fresh air. Up first, gallery-worthy home accessories stand ready to spark new life into any design (pp. 21–22). See the local hot spots in “Spaces to Savor” (p. 26) and “Dressed to Impress” (p. 24), where talented designers reimagine restaurants and retail in Utah’s most vibrant neighborhoods.

Spring planting inspiration abounds, whether you’re after water-wise blooms, “Low Water, High Impact” (p. 28), or hoping to channel the lush romance of an Italian garden— see “Terraces, Trellises, Triumphs”(p. 34).

In Sandy, a dated home gets a full indoor and outdoor refresh in “Open and Inviting” (p. 56), while in Millcreek, a 1970s gem takes a stylish step into the modern age in “Modern Treehouse” (p. 78). A glittering Deco-inspired home dazzles in Salt Lake City (p. 68), architecture sweeps the mountain landscape in Tuhaye

(p. 88) and feng shui delivers peace in a striking Glenwild residence (p. 98). Finally, in “Color Ways” (p. 50), eight Utah pros share fresh takes on using time-honored color in bold, unexpected ways.

Read on for your fill of updated décor, fresh faces and the best of Utah design.

Follow us on Instagram @utahstyledesign

MEGAN BARTHOLOMEW, EDITOR

style file

CERAMIC ALOFT

White ceramic meets luminous glass in Hammerton Studio’s new Torno Mandrel Round Pendant Chandelier, where handshaped elements spin in a rhythmic circle like a sculptural mobile. The mandrel-inspired design celebrates the craft of making, turning each piece into a study of texture, light and form. Suspended as a glowing centerpiece, it’s both art and illumination— modern, refined and truly mesmerizing.

Torno Mandrel Round Pendant 5-Light Chandelier, $6,595, studio.hammerton.com

1. Gem Coffee Table by Gloster, to the trade, Curate to the Trade, SLC, curatetothetrade.com 2. Devin Wilde Table No. IV, $5,150, DWR, SLC, dwr.com 3. Bolla Wall Lights and Barnacle Table Lamps by Porta Romana, to the trade, John Brooks Inc., SLC, johnbrooksinc.com 4. Rina Menardi Platters, $370 and $650, and bowl, $140, O.C. Tanner Jewelers, SLC, octannerjewelers.com 5. Posy Porcelain Bloom Sconce, $1,558, Urban Electric Co., urbanelectric.com 6. Happy 80’s Porcelain Vases, $146 and $166, The Garden Store, SLC, @thegardenstoresaltlake 7. Nyla Lamp by Arteriors, $1,068, The Garden Store, SLC 8. Parsons Ceramic Side Table, $299, West Elm, SLC, westelm.com

SALT LAKE CITY LOCAL COURTNEY ZWICK

has long worn dresses she designed, favoring modest tailoring over passing trends. After years of requests for custom gowns, she set her sights on opening a brick-and-mortar boutique to showcase her love of elegant, European-inspired detail. With help from longtime friend Hillary Taylor of Hillary Taylor

Interiors and Zwick’s husband, owner of Zwick Construction, The Courtney Shop opened last spring.

“If anything, Courtney is rigorous,” says Taylor. “Even though her designs are soft, fresh and feminine, they are very exacting.”

The moment you step inside, that precision becomes evident. Sharp millwork with contemporary angles, custom light fixtures and high-gloss finishes bring a modern edge to a soft periwinkle palette and delicate textiles. A whimsical floral print designed by Zwick appears on upholstered pieces and carries through to pillows, lampshades and small accessories Taylor has created for customers to bring the look home.

“I believe in the power of a small print—it can function almost like a calming solid,” Taylor says. Zwick plans to introduce new custom prints annually to keep the look evolving.

Located on 2100 South in SLC, the boutique offers Zwick’s signature dresses alongside home accessories, hair pieces and seasonal paper goods. courtneyshop.com

DRESSED TO IMPRESS

Two

local creatives—fashion designer Courtney Zwick and interior designer Hillary Taylor—team up on a beckoning boutique design

PHOTOS
Fashion designer and boutique owner Courtney Zwick (left) with interior designer Hillary Taylor (right).

style file

SPACES TO SAVOR

At these three Utah restaurants, fresh design delivers just as much flavor as what’s on the plate

CENTRAL BY SAFFRON VALLEY

Each of Lavanya Mahate’s Indian dining locations is a love letter to the culture of India. Central by Saffron Valley is no different, with a fresh theme celebrating India’s golden age of railway travel.

HIRSCH

An enchanting, Austrianinspired atmosphere defines The Hirsch at Goldener Hirsch by Auberge in Deer Valley. Designed by Liubasha Rose, the dining room is wrapped in hand-painted Salzburginspired wallcovering, anchored by alpine-blue banquettes. Rustic tradition meets playful irreverence in this pattern-forward chalet, where every element nods to Rose’s European childhood: from forests and foraging to whimsical woodland characters. auberge.com/goldener-hirsch/dine/

Designed by Mahate herself, the unique dining concept—complete with a train schedule menu board, replica Chennai station clock and banquette seating constructed around a cobalt-blue train car—went from vision to reality in just 45 days.

Drenched in the iconic blues and golds of the Indian railway, the space also includes nods to art deco and midcentury modalities. “I always love bold geometry in design,” says Mahate. “And as someone born in the 70s, that midcentury love affair is something you just can’t take away.” centralbysaffronvalley.com

THE TREE ROOM

The Tree Room restaurant at Sundance Mountain Resort is embarking on the new year with enlivened furnishings and a newly open-to-the-public Library Lounge. Built in 1970 as Robert Redford’s first addition to the resort, the restaurant is constructed around a living tree, reflecting the resort’s enduring commitment to harmony with nature. A new collection of live-edge tables crafted by the resort’s talented in-house woodworkers, updated banquette seating and refreshed flatware help this fine dining staple feel energized without losing its familiar charm. sundanceresort.com/dining/tree-room/

style file IN THE GARDEN

LOW WATER, HIGH IMPACT

Six drought-tolerant bloomers, picked by plant pro Adrian Feener, prove Utah waterwise gardens can flourish, attract pollinators and burst with color

YARROW ( ACHILLEA) is a natural fit for Utah gardens. Once established, it flowers steadily from spring through summer and asks very little in return— minimal water and no soil fussing. Its long bloom and hardiness make it a standout for low-water landscapes.

TOP PICK: New Vintage Red steals the

PENSTEMON is a versatile perennial, with some Utah-native varieties that are especially hardy in our dry climate. Native bees are drawn to their blooms, which appear from summer through fall, adding seasonal interest to pollinatorfriendly gardens.

TOP PICK: Red Rocks and Husker Red are favorites, while the native Penstemon utahensis is rare but worth seeking out.

HUMMINGBIRD MINT (AGASTACHE) is an aromatic perennial that earns its keep in Utah gardens. This plant is a magnet for pollinators and is wonderfully waterwise. Once established, it’s fast-growing and drought-tolerant, with deadheading optional but helpful for prolonged bloom.

TOP PICK: Poquito Orange shines with vibrant orange blooms, a compact profile and nonstop flower power.

CONEFLOWERS ( ECHINACEA) are garden staples with more than 100 varieties—truly something for every garden. Blooming late summer through fall, they’re heat- and drought-tolerant, delivering bold color when many perennials fade.

TOP PICK: Sweet Sandia, with yellowgreen edges and a deep purple center.

PURSLANE (PORTULACA) is a bright, succulent-esque annual that balances color with lower water use. Available in nearly every hue, it’s ideal for containers or hanging baskets, where its trailing habit shines. Heat-tolerant but sensitive to cold, it should be planted outdoors after the last frost.

PLANTING TIP : Start after frost for best results.

CALIFORNIA POPPY (ESCHSCHOLZIA CALIFORNICA) is a cheerful, easy-care annual perfect for beginners. Thriving in full sun, it attracts pollinators and grows quickly, bringing bold color from spring through summer. Low water needs and carefree growth make it ideal for beds, borders or naturalized garden areas.

PLANTING TIP: Scatter seeds directly in the garden for effortless color.

Adrian Feener, buyer at Cactus & Tropicals.

TRELLISES, TERRACES ,

MANY GARDEN-LOVING TRAVELERS

like me naturally build Italian itineraries around the icons: the sculpted drama of Florence’s Boboli Gardens, the theatrical fountains of Tivoli, the lakeside elegance of Villa d’Este. These are landmarks of landscape design—Italy’s greatest hits— and they deserve every accolade.

Yet Italy also harbors smaller, undersung gardens that feel like invitations for those willing to wander off the beaten path. Historic and esteemed, yet often overlooked by the crowds, they reward curiosity with unexpected delights. In these quiet corners, the landscape sets its own gentle rhythm, giving you time to explore, notice details and savor its subtle choreography—as if the garden itself leans in to whisper, “look, linger and learn.”

I recently visited three such gardens that left me spellbound—two in Tuscany and a third overlooking the Italian Riviera in Liguria. Smaller in scale than the famous estates, each felt distinct, designed to be explored rather than simply admired. Terraces tumble down sun-dappled hillsides, walls frame intimate corners and every path invites an observer’s pace.

The pleasure was in the details. I traced a stair worn smooth by centuries of footsteps, paused beneath a pergola casting patterned shade and marveled at citrus trees trained against sun-warmed walls. Views revealed themselves gradually, and outdoor spaces unfolded like rooms crafted for discovery.

And the best part? Their lessons travel beautifully. Back home in Utah, a wall can become both boundary and backdrop. A terrace can capture light and breeze. A small courtyard can feel expansive if it’s carefully composed. I carried these ideas home with me—proof that the most memorable gardens aren’t always the most famous. They’re the ones that truly inspire.

From Tuscan terraces to the Ligurian seaside, lesser-known Italian gardens offer ideas and inspiration to take home

Villa della Pergola

The walk or drive from Alassio’s small train station is a steady climb up winding roads, anticipation building with each turn. Beyond the gates of Villa della Pergola, the world shifts: a late19th-century estate suspended between sky and sea, where terraces tumble toward the sparkling Ligurian coastline.

Set on more than five acres of landscaped parkland, the villa’s gardens feature terraces, sculptural palms and rare botanical collections, all framing sweeping views over the coast. The estate traces back to Scottish engineer Sir Thomas Hanbury, whose vision shaped this refined stretch of the Riviera.

In spring, wisteria drapes across pergolas like lavender clouds; in autumn, golden light softens terracotta rooftops and the sea beyond. Everywhere you look, the gardens invite lingering glances and slow exploration.

A day at Villa della Pergola unfolds in leisurely rhythms. Mornings begin with espresso and pastries on a terrace scented with citrus and rosemary, followed by wandering the property and gardens. By midday, the infinity pool beckons, sparkling under the Ligurian sun. Later, one might stroll into Alassio for a seaside dinner or return to the villa for an elegant evening at Michelinstarred Restaurant Nove, where menus celebrate local produce from the estate’s Orto Rampante.

Paths wind past layered foliage, shaded pools and sudden flashes of blue sea. The gardens are intoxicating, and even non-guests of this Relais & Châteaux property can experience their rare botanical treasures through guided visits that preserve the villa’s serene, exploratory atmosphere.

villadellapergola.com

giardinidivilladellapergola.com

Lessons Learned:

• Celebrate seasonal stars: Spectacular displays of wisteria and agapanthus are planted throughout to herald the seasons and draw visitors to the garden.

• Follow the light: Sun, slopes and microclimates shape the garden’s natural rhythm and highlight its best features.

• Frame and linger: Paths, pergolas and garden structures guide movement, frame captivating views and create inviting spots to sit and savor the scenery.

Villa Reale di Marlia

A short drive north from Lucca—or a leisurely bicycle ride along a scenic river path—leads to the park-like gardens of Villa Reale di Marlia, a 40-acre estate that feels like a secret world waiting to be discovered. Ancient cypress and chestnut trees shade meandering paths, guiding you past classical statues, reflective ponds and hidden nooks where camellias bloom in spring.

The villa’s palazzo, once home to Napoleon’s sister Elisa Bonaparte Baciocchi, exudes grandeur, but it’s the gardens that steal the show. Terraces rise and fall, sometimes geometrically precise, sometimes delightfully romantic. Natural elements are punctuated by statuary, fountains, grottoes, belvederes and

the villa’s own chapel. A charming café, set in a restored neoclassical pavilion, offers shade, light meals and a spot from which to relish the sweeping gardens.

Every turn invites discovery: a sundappled walkway, a quiet nymphaeum or a reflective pond mirroring the villa. The interplay of architecture and landscape gives the gardens depth and personality, so that wandering feels like uncovering a centuries-old secret. Unlike more visited Tuscan estates, Marlia encourages slow exploration. Each path, terrace and fountain seems designed to surprise—and to leave you with the sense that you’ve discovered something truly regal. villarealedimarlia.it/en/explore/

Lessons Learned:

• Anchor with architecture: Follies and garden buildings serve as focal points, pulling visitors through the landscape from one unfolding moment to the next.

• Celebrate water: Fountains, reflecting pools and canals provide movement, sound and focal points throughout the gardens.

• Pair symmetry with surprise: Formal axes and mirrored layouts establish elegance and order, softened by natural forms that invite exploration.

Lessons Learned:

• Lean into vistas: Terraces, sloped gardens and sweeping staircases guide movement while showcasing city views.

• Create a canopy: A dramatically long pergola comes alive in spring with cascading wisteria, offering dappled shade and connecting hillside pathways.

• Add rhythm and repetition: Stone planters and statuary along pathways and staircases provide visual continuity and order.

Villa e Giardino Bardini

Everyone goes to the Boboli Gardens when visiting Florence, but just beyond them—literally over the wall to the east—another, more intimate world unfolds. Villa e Giardino Bardini climbs the Oltrarno hillside, its terraced gardens stepping gently upward toward some of the city’s most memorable views.

Reaching the villa is a short pilgrimage out of Florence’s tourist center: a gentle walk up narrow, cobbled streets, past Renaissance residences whose quiet façades occasionally reveal glimpses of private gardens. Inside Bardini, footpaths wind past pergolas, stone staircases and shaded groves. Then suddenly, the city appears below—the Duomo floating above rooftops, the Arno unspooling westward and the

Tuscan hills dissolving into the hazy distance. A quaint café on a shaded terrace invites a pause for espresso or a light meal with a view.

Unlike the formal grandeur of Boboli, Bardini feels improvisational, almost conversational. Renaissance geometry yields to Romantic looseness. In spring, wisteria steals the scene; in summer, the gardens offer shade and seclusion. Even in winter, the terraces and walls carry contemplative beauty.

Part villa, part garden, part belvedere, Bardini rewards curiosity over checklist tourism. It’s the garden Florence keeps for itself—and the one you’ll carry in memory long after the crowds below blur into abstraction. villabardini.it/en/an-enchanted-garden

PHOTOS

Stylemakers

INTENTIONAL, AUTHENTIC & UNFORGETTABLE

As the desire to create a home that truly nurtures grows stronger, so does the caliber of those shaping it. The best don’t rely on shortcuts or smoke and mirrors. They listen. They collaborate. They bring time-tested skills and a shared vision to every project. In this special section, some of Utah’s most talented designers, landscape architects, craftsmen and furnishing pros share their stories, expertise and insight on how to create an environment that feels like a sanctuary.

Featured Advertisers

• Allison Campbell Design

• Design N Mind Interiors

• Helm

• Inside Out Architecturals

• K. Rocke Design

• Landform Design Group

• Sunline Landscapes

• Bartile

This Millcreek home and garden received an artful renovation thanks to Landform Design Group’s Jayson King, who executed a flowing transitional design with a touch of modern flair.

Allison Campbell Design

801-372-3413 | ALLISONCAMPBELLDESIGN.COM

INSTAGRAM @ALLISONCAMPBELLDESIGN

DESIGNING A NEW HOME OR

UPDATING existing spaces can be an exciting process—but it’s not necessarily straightforward. Hiring the professionals at Allison Campbell Design, a full-service interior design firm, can make that process smoother, more organized and ultimately, more affordable.

“I create solutions, I’m a problem solver,” says owner and principal designer Allison Campbell. “I’m involved in the whole process from plan to design to completion. I work with the subcontractors onsite and builders call me directly, so my clients don’t have to figure things out.”

This meticulous, detail-oriented firm started in 1999 and its members quickly earned a reputation as experts in construction design. “Our approach blends knowledge, experience, talent and a touch of humor to make your building journey as enjoyable as possible,” says Campbell. With experience in new construction as well as remodels, this firm offers incredible attention to detail. “Trust the process. The build will be a multifaceted process, and often, things won’t make sense—it isn’t always logical,” says Campbell. “Sometimes, what looks good on paper doesn’t really always fit in reality. Don’t get frustrated if you take a step backward, and don’t be afraid to ask questions.”

“Every successful project starts with building relationships. We advocate for our clients so that when they come home, they feel like they are home. I work directly for the homeowners without stepping on builders’ or subcontractors’ toes. I see everyone’s part in this process and try to advocate for all parties. To get the finished product right, we work as a team.”

ASK THE EXPERT

WHAT ARE YOU KNOWN FOR?

We’re known for creating a “feeling” in a home, rather than focusing on a specific style. That comes from making sure our clients’ thoughts, concerns, worries and needs are in the forefront, and everything else follows that.

WHAT SETS YOUR WORK APART?

Our stellar team. I wholeheartedly stand behind my knowledge and my work. I believe that you can have a fabulous build experience when you have crafted the right team.

THREE WORDS THAT BEST DESCRIBE YOUR SERVICE

Complete. Hands-on. Transparent.

Design N Mind Interiors

9665 S. 500 WEST, SANDY 385-252-7662 | DESIGNNMINDINTERIORS.COM INSTAGRAM @DESIGNNMINDINTERIORS

WHEN JON MCGILL, OWNER OF DESIGN N MIND INTERIORS, moved his business into a 4,800-square-foot commercial space, he saw more than the expanse. He saw a better way to serve his clients. The new showroom redefines the remodeling experience by inviting people into a hands-on, collaborative process. “We can take the plans from start to finish,” says McGill. “In this showroom, we invite clients to come and play with us and actually enjoy the process.”

As a full-service design and remodeling firm, Design N Mind’s pros know that every

project begins with listening. “People know their budgets and usually bring in their inspiration photos,” McGill explains. “We work with your vision. From flooring to cabinets and countertops, we do it all. We’ll create something you absolutely love.”

With more than 25 years of experience, trusted long-term subcontractors and accolades including multiple Houzz Service Awards, Design N Mind Interiors delivers seamless results. The showroom itself is proof: “This is a drop-dead gorgeous, mustsee space,” says McGill. “There’s something magical about turning a non-functioning room into a space that brings joy.”

“I am a licensed general contractor, so we can do everything. We’ll handle all aspects of your remodel from first design drafts to completed projects. I have vetted my subcontractors, so you don’t have to worry who is doing the work: flooring installers, plumbers, electricians, painters, etc. they’re my favorite people in the world.”

ASK THE EXPERT

WHAT’S NEW AND NOTEWORTHY?

Design N Mind Interiors just finished a one-of-a-kind 4,800-square-foot showroom. Browse the vignettes to get your kitchen or bathroom remodel kick-started with creative ideas. Forget a Pinterest board, this must-see showroom is your first stop. Come touch, explore and wander.

WHAT SETS YOUR PRODUCTS APART?

We are the exclusive David Bradley Cabinetry dealer in Utah. These American-made, fully customizable cabinets shine in kitchens, bathrooms, offices, closets, bars, pantries and more. With thoughtful craftsmanship and enduring finishes, they deliver a timeless look that remains beautiful and relevant for years to come.

WHAT IS A FREQUENT CLIENT REQUEST OR NEED RIGHT NOW?

Whole-house renovations. Because so many people want to stay in their homes, they want big changes. Not just the kitchen, they want the whole main floor or the whole house updated. We can do it all for you.

HELM

5253 SOUTH STATE STREET, MURRAY 801-263-1292 | HELMHOME.COM

INSTAGRAM @HELMHOME

HELM HAS BEEN FURNISHING

UTAH’S FINEST HOMES since 1976—but they don’t do it alone.

Helm partners with professional designers and decorators across the state to help them source luxury furniture for their most important projects. Professionals love working with Helm because of its industry-best partnership program.

“By allowing Helm to manage all of the logistics of ordering, shipping, receiving and warehousing, designers can focus on taking care of their clients and designing homes,” says owner Chris Ross. Helm also offers access to volume discounts from a worldwide network of furniture manufacturers, including luxury brands like Baker, Century, Bernhardt, Hickory Chair, Lexington, Massoud and

more. Designers can use the local 30,000 square-foot showroom as if it were their own and bring their clients to browse, see and touch the furniture, fabrics and other materials. “We also offer instant off-theshowroom-floor sourcing of furniture for urgent needs, short- or long-term storage with no warehousing fees and white-glove, blanket-wrapped delivery,” says Ross.

With so many cost-free benefits for trade professionals, it’s no wonder Helm has become a trusted source for designers, decorators and high-end homeowners across the state. Helm gives them everything they need to achieve their vision and maximize the true potential of their projects, wherever those homes are located.

“When you’re designing a home, you need to order products correctly, get them delivered on time and in one piece, worry about installation, prices and fees. Designers, rather than trying to wear all the hats, partner with Helm. We’ll take care of all the logistics, so you can focus on design. We make design fun again.”

ASK THE EXPERT

WHAT IS A FREQUENT CLIENT REQUEST OR NEED RIGHT NOW?

Our industry-best, to-the-trade program. We partner with designers to help them fulfill their clients’ requests. We’ll not only store products in the warehouse for free, we’ll take care of all the shipping expenses to get them to our warehouse. We’re your best resource when it comes to large, up-scale projects.

THREE WORDS THAT BEST DESCRIBE YOU

Experienced. Luxury. Detail-driven.

WHAT SETS YOUR PRODUCT APART?

We have a huge inventory of high-end manufacturers. If you’re trying to source from one company for this and another company for that, you can spend a fortune on shipping. When designers partner with us, they get access to a vast network of quality furnishings without having to worry about minimums, freight rates and more.

Inside Out Architecturals

3410 S. 300 WEST, SALT LAKE CITY

801-487-3274 | INSIDEOUTARCHITECTURALS.COM INSTAGRAM @INSIDEOUTARCHITECTURALS

NE

ED A TILE OR CUSTOM

INSTALLATION you’ve never seen before? Inside Out Architecturals specializes in specialty and bespoke orders, which is good news for designers and architects looking for that inimitable detail that sets a space apart. “We carry trims, moldings, baseboards, all the finish details,” says Leah Wynn, owner of Inside Out Architecturals. “All those made-to-order, difficult to make custom pieces. We can help.” When it comes to selecting tile for your home, consider talking to a historical expert. “We’ve helped with several significant historical projects across the state,” says Wynn.

“We provide materials, advise designers on which tiles to use and how to install them, consult on the proper colors for different eras and even what kinds of tiles were used.”

Representing more than 50 unique decorative tile lines, Inside Out Architecturals boasts an intriguing collection of tile options from one-ofa-kind stones and large-format glass to enduring traditional flooring and historical ornamentals. “We carry the handiwork of today’s artisans in metal and ceramic tile, glass, leather and dimensional tile that are best described as art.”

“We specialize in special orders. If you want specialty tiles or custom designs, order early. Our specialty tile may take 2–3 months to get in. Budget your time and money appropriately. On average, it’s $18 and up per square foot, plus installation.”

ASK THE EXPERT

WHAT ARE CLIENTS ASKING FOR RIGHT NOW?

Square tiles are making a big comeback. Everything from 4x4, 12x12, to 18x18. We’re seeing a lot of requests for square tiles installed with offset grout lines, which is an older, more historical look.

PEOPLE COME TO US FOR

Highly customized installation. For us, it’s not just tile, it’s art. We’re doing mosaics with New Ravenna tiles in stone or glass. We’re installing tiles to look like aspen trees filled with birds. And, we just finished an accent microwave cubby to match chinoiserie wallpaper. We make your dreams come true with tile.

WHAT’S NEW AND NOTEWORTHY?

Tumbled, antique or chiseled stone tiles. For example, hand-hewn limestone tiles with rolled edges. Installations with octagon and dot (or cabochon) tiles. In historic French, cabochons were defined as jewels. Now they’re installed in the same color. It’s all about a refreshed Old World look.

Chinoiserie is part of the Sea Glass™ collection by New Ravenna.

K. Rocke Design

3910 E HIGHLAND DRIVE, MILLCREEK

801-274-2720 | KROCKEDESIGN.COM

INSTAGRAM @KROCKEDESIGN

WE DON’T DO COOKIE CUTTER,” says acclaimed designer Kristin Rocke, owner of K. Rocke Design. “Each project has its own unique identity tailored to our vision for the client.”

This Utah-based interior design firm has completed influential interiors across the globe. With an extensive and awardwinning list of projects, Rocke has been listed as one of the “Top 10” Interior Designers by Traditional Home. Her work has been featured in various distinguished publications including Luxe Interiors + Design, Florida Design: Home, Boca Design, California Home + Design and more. “I’ve been doing this craft for a long time,” says Rocke. “I’m really excited about how we’re building on the broad foundation we’ve built over the years.

We’re growing and taking on new challenges in architecture, hard finishes, space planning, locations and material requirements.”

From resorts and restaurants to retail shops and residences, the firm has completed projects coast-to-coast. “A dream team is made up of different players: the homeowners, the architect, the builder and the interior designer,” she says. “Each has different perspectives and objectives and all contribute valuable insight.”

Rocke is known for her talent, artistry and mastery. “We just completed a modern Gatsby abode that came together in such a holistic, unique way,” she says. “It’s a compilation of a lot of creative ideas stitched beautifully together and a narrative thread that represents the client and embodies creativity and abundance.”

KRISTIN ROCKE

Principal and Owner

“We’re seasoned experts. Go with someone who has experience and is authentic. With AI-assisted everything and online personas, it’s hard to get the real nature of a person or the real work being done. There’s no substitute for the real thing. Being authentic and creative is paramount to creating spectacular outcomes. Rendered interiors are impressive, but substance, quality and experience are vital.”

ASK THE EXPERT

WHAT NEW INNOVATIONS EXCITE YOU?

Discreet, quiet kitchens that function like European kitchen wardrobes. Butler’s pantries hide the mess of a used kitchen. Instead of a range being the feature element, the emphasis is on architecture. Stainless steel appliances are being replaced with color and shades of white or smoky gray glass, or completely concealed in integrated cabinetry.

WHAT’S SOMETHING PEOPLE DON’T KNOW ABOUT YOU?

I love being in a flow state. Whether I’m working with my team on designs, or jamming out to music and picking out fabrics, it all starts to come together. It’s electric. I lose track of time and am totally present in the moment. I feel like I’m exactly where I need to be, doing exactly what I need to be doing.

WHAT MAKES YOU STAND OUT?

Our unique designs and bold use of color set us apart from the crowd. We have an incredible style range, so we can adapt to each project with creativity, efficiency and deep customization. The result is spaces that sing with each client’s unique personality.

Landform Design Group

511 W. 200 SOUTH SUITE 125, SALT LAKE CITY

801-521-2370 | LANDFORMDESIGNGROUP.COM

INSTAGRAM @LFDG_DESIGN

WHAT COMES TO MIND

WHEN YOU ENVISION a truly luxurious property? A stunning entry, beautiful pool or spacious master bedroom? True luxury is not about doing more—it’s about doing the right things with intention, restraint and clarity from the very beginning. The goal is to create one cohesive design that caters to the vision of the end user.

Landform Design Group (LFDG), an award-winning and passionate group based in Salt Lake City, offers a full-design studio that has been bringing spaces to life for more than 22 years.

“We interweave the architecture and site together, speaking one consistent language throughout,” says Jayson King, founding principal. “Through close collaboration, we refine ideas into spaces that foster connection and create lasting memories— environments that evolve naturally with the people who inhabit them.”

LFDG prides themselves on tailoring their design packages and overall services to each specific client, depending on desired experience and what the project needs. “Luxury reveals itself in thoughtful planning, not excess materials or unnecessary features,” says King.

“True luxury and timeless environments are achieved when vision aligns with process-focused design documentation, intentional decisions and integrated execution. These service components work together to prevent excess and protect the long-term vision.”

ASK THE EXPERT

PEOPLE COME TO US FOR:

Timeless spaces that feel deeply personal, quietly refined and seamlessly connected. We are known for crafting spaces shaped around how each person lives, gathers, moves and experiences each day. Beyond form and function, we integrate design into life, considering how a space supports moments of connection, reflection and memories.

WHAT INFLUENCES AND INSPIRES YOUR WORK?

Our inspiration begins with listening— understanding the rhythms of our clients’ lives and the character of the space itself. We draw from timeless principles of proportion, materiality and restraint, pairing them with modern tools that allow us to study light, movement and interaction long before construction begins.

WHAT SETS YOUR WORK APART?

We merge emotional intelligence with technical mastery. Our construction documents are exceptionally thorough, translating nuanced design intent into clear, executable direction— protecting the vision while streamlining the build process. We advocate for our clients throughout construction, ensuring that every decision, detail and refinement remains aligned with the original intent.

Sunline Landscapes

14745 S. HERITAGECREST WAY, BLUFFDALE

801-253-6434 | SUNLINELANDSCAPES.COM

INSTAGRAM @SUNLINELANDSCAPES

IF YOU’VE VISITED A RESORT OR SPECIAL PLACE THAT NURTURED YOUR SOUL, you may want to bring a piece of that experience home with you. It starts with mindful design. “It’s never too early to start planning your landscape design,” says Curtis Atkinson, owner of Sunline Landscapes. “If you want to get on a reputable company’s schedule, allow for at least 6 months from the first phone call to when a shovel goes into the ground. So, start now for an autumn installation.”

Sunline Landscapes is a full-service luxury landscape design firm offering expertise for every step of your project from design and installation and/or construction to property care and fine gardening.

The process starts with a conceptual design and feedback to get a clear understanding of what clients want and need.

“Whether it’s a reimagining or a revamp, we need to know how people use the space. Is it for gathering, intimate moments, privacy or family?” says Atkinson. “We do full 3-D renderings, full construction documents, drone imaging, draining, grading plans, all the intricate details. Then we select materials and artscapes and masonry—there are so many details in these custom-created designs. We talk to architects, builders, interior designers—we’re at the table from the start complementing each other.”

CURTIS ATKINSON Owner

“The process begins with getting to know each other, building trust and fostering relationships. We explore what you need from your space. Maybe it’s for large family gatherings, or an open and athletic space with pickleball courts and a pool, or a spa-like retreat with high privacy walls and cold-plunge pools. People want outdoor spaces that help nurture connections and relationships.”

ASK THE EXPERT

PEOPLE COME TO US FOR:

Well-designed landscapes that include manageable maintenance. Our detailed design process includes a maintenance program that caters to your home and lifestyle. You want to spend time outside. We’ll do the work, so you can enjoy the space you have.

WHAT SETS YOUR WORK APART?

People spend a lot of money on landscapes. In order to maintain their investment, they need trusted professionals. Our property care team has horticultural specialists, arborists with degrees, and staff with years of experience caring for amazing properties. We’ll help you care for your estate so it will flourish for years to come.

WHAT IS A FREQUENT CLIENT NEED RIGHT NOW?

Your landscapes are waking up, and your property needs some love. Our full-maintenance program is whiteglove, total-property care, not just mowing. We offer fertilizing, yard care, tree care, seasonal color for pots and containers, and everything in between. Every yard could use a flat of flowers. We’ll plant them, prune and do your spring cleanup for you.

Bartile

D725 N. 1000 WEST, CENTERVILLE 801-295-3443 | BARTILE.COM INSTAGRAM @BARTILEROOFS

ESIGNERS, ARCHITECTS

AND HOMEOWNERS KNOW that many insurance companies and municipalities now require a class-A fire resistance rating on roofs. “Our roofs are not only class-A, they are incombustible,” says Nick Evans, general manager of Bartile. “Whether you have a shake roof or are building a new home, the incombustible nature of our tile makes it the perfect product for any style of home.”

You may have heard the word incombustible. But what does it really mean? Well, the folks at Bartile took a torch to their tile roofs, as well as other asphalt and metal roofs to find out. Their roof tiles can take some extreme heat.

Curious to see what happened? Scan the QR code to watch the test yourself.

If you need a fireproof roof, Bartile roof tiles far surpass a class-A fire rating and have a 75-year warranty. Their Legendary series have a class-4 hail rating, while their other standard-weight tiles have a class-3 hail rating. “Our roofs literally last a lifetime,” says Evans. “So, you get a beautiful roof and peace of mind. We’ve been around for 84 years and many of the roofs we installed that first year are still in place. We have more than 700 vibrant colors and 20 distinct styles to choose from, so we can create almost any roof design and look.”

NICK EVANS

“Have your roof inspected in the spring. Ice and snow can damage roofs, so schedule regular springtime maintenance, especially in harsh winter climates. This will help extend the lifetime of your roof.”

ASK THE EXPERT

THREE WORDS THAT BEST DESCRIBE YOUR PRODUCT: Durable. Customizable. Stunning.

WHAT ARE YOUR CLIENTS ASKING FOR RIGHT NOW?

You don’t typically look at a roof and think ‘wow.’ Unless it’s a Bartile roof. The raked metal option with split timber wood shake profile will give you a true shake look in a Class-A fireproof product. That’s why people are clamoring for it.

WHAT MAKES UTAH A UNIQUE MARKET FOR YOUR PRODUCTS?

Most people think of tile roofs for hot climates because they are energyefficient and keep the house cool in summer. Northern Utah has an extreme climate—scorching summers and freezing winters. We’re the only manufacturer that thrives in making tile that can stand up to anything.

color ways

Eight designers reveal smart, surprising ways to deliver color to your favorite spaces

CCOLOR IS THE LIFE OF THE PARTY, especially in the hands of great designers, who rarely confine it to sofa pillows and vases. We reached out to eight talented pros and asked how they deliver color in savvy and surprising ways. Their answers go beyond the obvious, landing on overlooked surfaces, architectural details and bold applications that feel less like decoration and more like delight.

BOLD BUILT-INS

I can’t think of a better way to add color to a room than through the architectural elements of built-in cabinetry. It’s a mustdo in all of my very favorite spaces.”
—CARA FOX, THE FOX GROUP

PHOTO BY SCOTT DAVIS

UNEXPECTED ACCESSORIES

I’m a big fan of [using] vintage toys or sports equipment as decor and shelfstyling opportunities. A thrifted vintage toy truck in a perfect cobalt blue, multicolor vintage rubber balls or skateboard wheels can be another nod to a color story.”

SHIMMERING STONE

One of my favorite, and extremely underrated, ways to introduce color and drama into a space is by backlighting slabs of natural stone. When illuminated, the stone’s inherent veining and tonal depth comes alive, oftentimes revealing hues that could potentially go unnoticed otherwise.”

WORK SPACES

By embracing unexpected hues, utilitarian spaces— including pantries, laundry rooms and even closets— can shift from purely practical to powerfully memorable. Here, a bold, juicy wash of color and pattern transforms this pantry into an immersive design moment.”

PHOTO BY TIM BOONE

ACCENT LIGHTING

We love using colored light fixtures as bold, jewelrylike accents, especially in a moody, monochromatic space. It’s an easy way to bring energy and make even the smallest room feel intentional and well-designed.”

—MADISON STEWART, SENIOR DESIGNER AT ALICE LANE INTERIOR DESIGN

Color Crush

The paint colors top designers are loving most

BURGUNDY

Benjamin

Andrea

Sherwin-Williams

Julia

CURATED COLLECTIONS

Benjamin

We like to introduce color where it feels integrated rather than applied, using architectural elements, material choices and subtle finishes. Tinted plaster, expressive stone or softly toned drapery allow color to unfold naturally, while smaller details like picture frames and subtle embroidery add a collected, personal layer without overwhelming the space.”

CHRISTENSEN AND NICHOLE SPEARS, HOUSE WEST DESIGN

IN FULL FORCE

We are currently loving the “color drenching” trend. For a recent home office and music room project, we customized the wallpaper that wrapped all the walls in a gorgeous burgundy red. We then painted the ceiling and trim in a slightly darker shade. The resulting space felt intentional and timeless, although completely drenched in color.”

—ANDREA WEST, ANDREA WEST DESIGN

MOUNT ETNA
Sherwin-Williams
Gregg Hodson, Gregg Hodson Interior Design
PARMA GRAY Farrow & Ball
Cara Fox, The Fox Group
GARRISON RED
Moore
West, Andrea West Design
Roberts, Huga Home
TROPICAL ORANGE
Moore
Kristin Rocke, K. Rocke Design
CHARTREUSE
Benjamin Moore
Stephanie Hunt, The Flairhunter

ARCHITECTURAL TRIM

I love introducing color in ways people don’t expect—through trim, molding, door and window casings, baseboards and even ceiling moldings. Painted thoughtfully, these architectural details frame walls and passageways, highlight the home’s design, and tie together a room’s palette. It’s subtle but powerful: a small splash of color in the right place can completely change how a space feels, giving it depth, personality and a sense of cohesion that you might not notice consciously—but you definitely feel.”

HODSON OF GREGG HODSON INTERIOR DESIGN

&

OPEN inviting

Indoors and out, reimagined layouts and fresh finishes modernize a classic family home in Sandy

In the living room, architect Annie Schwemmer added skylights to draw in natural light and replaced the existing gas fireplace with an expanded electric counterpart—a swap that freed up additional space for the new porch, while supporting the homeowners’ goal of a less gas-reliant home.

PHOTOS BY MEAGAN LARSEN

BEFORE

BEFORE

JAKE AND LEIGH CHRISTENSEN WERE READY FOR A REFRESH.

The couple purchased their family home in Sandy largely for the lot: tucked in a secluded cul-de-sac, with proximity to a beautiful creek. While the home sang in location, it lacked functionality. To boost the livability of their interior, the Christensens enlisted architect Annie Schwemmer of Renovation Design Group (RDG), designer Alexis Mecham and the builders at Living Home Construction to transform their 1980’s traditional home into something better suited for their family.

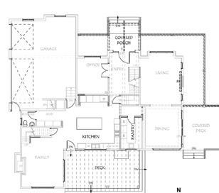
The makeover focused on three main improvements: maximizing outdoor living spaces, improving the primary suite’s layout and consolidating the kitchen and dining areas to create a better flow across the home’s main level.

Honoring the adage that first impressions are everything, the team began by reimagining the front porch. Beyond cosmetic updates for curb appeal,

ABOVE: Warm-toned stone, mixed textures, high-contrast trim and a newly-constructed wraparound porch deliver striking curb appeal to the home’s new exterior. Schwemmer introduced a pitched roofline to emphasize the home’s upper-level asymmetry, and worked with Pella Windows on a custom door designed to maximize light and balance the facade. “We played with the grid of the door to strike the perfect rhythm.”

Schwemmer’s strategy for updating the home’s main facade centered on scale. Where the original towering entryway emphasized verticality, the new design stretches outward—grounded, welcoming and livable. “The super-height entryway is not cozy or inviting,” says Schwemmer. “This feels much more human in scale.”

Towering columns, red brick and sky-high transom windows gave way to sleek, mountain-modern materials and an inviting wraparound porch—a must-have for the homeowners. “The overhaul of the porch really paid off,” says Leigh Christensen, homeowner. “It makes a much grander impression as you walk up to the house, but still feels approachable.”

On the main level, consolidating the kitchen and dining areas became RDG’s primary focus. What had been three cramped spaces—a kitchen, breakfast nook and formal dining room—were reimagined as one streamlined kitchen workspace, now thoughtfully separated from the dining area by a storage-forward butler’s pantry.

Upstairs, the architects confronted challenging ratios. The existing primary suite featured an oversized bedroom, flanked by an outdated bathroom and nearly nonexistent closet space.

Expanded windows and an updated cove ceiling frame the dining room for gatherings, both formal and casual. The Geometric Metallic Wallpaper is by Peri Gold.
The updated kitchen layout follows an efficient triangle between work surfaces, while the new flow between entry points allows for easy foot traffic. In the center, an island in Benjamin Moore’s “Peale Green” delivers a cheerful pop of color, echoing the palette of nearby rooms.

As part of the kitchen reconfiguration, Schwemmer sectioned off a small portion for a butler’s pantry and hidden storage, minimizing visual clutter in the main workspace.

BEFORE

BEFORE AFTER

Renovation Design Group’s updated floorplan of the home’s main level focused on two main goals: expanding outdoor living space, and improving the flow of the kitchen and dining areas.

BEFORE

ABOVE: In the primary bathroom, a cramped layout gives way to an airy, symmetrical design anchored by a large black soaking tub. “The mirrored layout creates balance in the space, and serves as a pathway to the expanded walk-in closet,” Schwemmer explains.

LEFT: Updating the primary bath also included relocating the shower. The new walk-in is clad from floor to ceiling in glossy, high-contrast ceramic tile by Floor & Decor. Mosaic floor tile is from Crossville Studios.

“We reworked the layout to create more proportional spaces for the primary suite, and reconfigured the hallway for added privacy,” says Schwemmer. The quarters now include a scaled-down bedroom, a polished bathroom and a generously expanded walk-in closet, outfitted with additional entries for easy access to the laundry room. “Our gigantic bedroom was so unwieldy, we couldn’t even figure out how to use the space well,” says Christensen. “One of my main goals was simply to make that space functional.”

That focus on function extends outdoors. Each of these revamped spaces now comes with a bonus: easy access to outdoor living areas, where RDG flexed its versatility and eye for definition. Off the primary suite, an open-air deck offers 360-degree views of Utah landscapes while below, a covered patio connects to the wrap-around porch, unifying the home’s outdoor flow. A pergola shelters an additional patio off the kitchen, filtering in light while defining a lounge space that previously sat awkwardly against an exposed wall. “This home went from having one mediocre outdoor entertaining space to three well-defined decks,” says Schwemmer.

By helping the Christensens reimagine their interior and delivering the outdoor living spaces they dreamed of, Schwemmer’s innovative approach allows this family to fully enjoy the location that drew them to this home in the first place.

expanded

Annie Schwemmer, owner and principal architect of Renovation Design Group (RDG).
UPPER RIGHT: The powder bath and
mudroom both received patterned finishes. Starburst tile is by Daltile. Graham & Brown wallcovering is from Peri Gold.
LOWER RIGHT: New decks off of the primary suite and dining room offer luxurious space for outdoor lounging and entertaining.

300 Deer Valley Drive, Residence A presents a rare offering to own one of only four Roundabout homes meticulously designed by Constantino Grandjacquet, one of Utah’s premier contemporary architects. Perfectly situated just outside the incredible energy of historic Main Street Park City and Lower Deer Valley, you are just moments from being slope side at Park City Mountain resort via the Town Lift and Deer Valley Resort - Snowpark Lodge. Every detail has been considered by the homeowners who curated a home in high style, and exquisite taste, offering a thoughtful layout with top-shelf finishes and smart details. This BESPOKE retreat is for the most discerning Buyer who values the unique beauty of the area, ease of access to multiple ski resorts, luxurious comfort, and the opportunity to own a home in one of the most sought-after mountain destinations in the world.

» Four Bedrooms and five Baths, 4881 finished SF over four floors each serviced by an elevator

» Luxurious primary suite with spa-like bath, steam shower, walk-in closet,roof top patio with luxury hot tub, fire feature and views of Old Town

» Chefs Kitchen with Thermador commercial grade appliances including a coffee station, two sinks, two dishwashers, and walk-in pantry

» Stunning dining area with two built-in Thermador climatized wine storage, and dining credenza with inlaid Italian glass

» Spa/Lounge with wet bar, beverage cooler, custom walnut slab wall and 80” television

» High end finishes and fixtures including Cristallo Quartzite, hardwood plank flooring, Phillip Jeffries wall coverings, Lutron lighting control, Finntec-air purification system, radiant heat throughout including decks, patios, and garage

» Space for four cars (two-car private garage and two deeded spaces in common garage)

(435) 901-9330

www.HeidiInghamRealEstate.com

Homes Spring

Glamorous finishes and vivid color in bold, geometric applications make a Salt Lake City home into a Decoinspired work of art, page 68.

layers lux in

In Salt Lake City, artful finishes, playful color and bold architectural details create a home that feels both timeless and unmistakably modern

PHOTOS BY TIM BOONE

Art and architecture welcome guests into the home’s entry, where a masterfully engineered stairwell is punctuated by vibrantly colored canvases that guide the eye upward three full stories. Full-height mullioned steel windows allow natural light to flow unbridled through the towering space, reflecting off a sleek Starfire glass railing and glittering pendant lights from Milia Studio.

OPPOSITE: Set against a tree-filled, sloped lot, this contemporary home blends seamlessly with its surroundings. Tongue-and-groove hemlock slats and Timpanogos Limestone from Delta Stone meet carefully considered elevation changes, while a swimming pool and deck extend the living space into the landscape.

AALONG A LEAFY STREET IN ONE OF SALT LAKE CITY’S MOST CHERISHED NEIGHBORHOODS, architectural eras mingle with easy confidence—Spanish Colonial Revival beside Mid-Century Modern. The newest voice in the mix is a contemporary showpiece created for a personality-forward family of four. Its interiors sparkle with Art Deco–inspired glamour, set within a light-filled, streamlined layout that keeps daily life as effortless as it is elegant.

The perfect visionary for a bold interior, designer Kristin Rocke of K. Rocke Design teamed up with local architect Tony Baros and the builders at Benchmark Modern to breathe life into every meticulous detail of this home.

“The homeowners wanted to go modern, but I wanted to ensure we had some sense of history,” says Rocke. “The details are where that deco influence really came in: curved lines in millwork and tile, mixed metals and touches of Hollywood Regency color that deliver dimensionality throughout the home.”

To infuse personality and enduring style into her design, Rocke relied heavily on art in every form—from the homeowners’ personal collection of vibrant canvases to galleryworthy expressions of key architectural elements.

Case in point, Rocke introduced time-honored statuary marble, sculpting it into an elegant fireplace mantel. Classic and eternal? Absolutely, Rocke says. “Does Michelangelo’s David ever go out of style? If you’re making a dramatic and classical statement, your design is going to outlive any trend cycle.” Around the stone, equally artistic furnishings in rich jewel tones compose a striking sitting room vignette.

A feat of architectural engineering, the lofty three-story stairwell rises off the home’s entry. It’s a sculpture in its own right. To preserve the openness of the space, steel bars concealed in the outer wall give structural support to thick white oak treads, outfitted with LED backlighting that creates the illusion of weightless suspension.

“We thought a lot about the relationship between the tread thickness and construction with the Starphire glass railing,” Rocke says. “The balance we struck creates a feeling of both weight and airiness simultaneously, and I love that dialogue.”

In the kitchen and primary suite, this design’s artistic identity emerges in layers of lux color, lavish detail and high-polish finishes. Glossy cabinetry and appliances reflect the natural

UPPER LEFT: The living room bar is clad in custom green fan tile by Artistic Tile, driving home this interior’s Art Deco roots.

LOWER LEFT: The great room is broken into multiple conversational seating groups for versatility of both views and interior vignettes. Here, two pleated Kimberly Denman swivel chairs and a custom coffee table create an intimate listening lounge next to the home’s grand piano.

OPPOSITE: A custom asymmetrical fireplace in statuary marble creates an artistic moment along the sitting room’s long perimeter wall, adding horizontal layers to the expansive space. Fuschia sofas by Vanguard Furniture and a cast glass coffee table amplify the space’s color saturation. The chandeliers are by Visual Comfort.

... If you’re making a dramatic and classical statement, your design is going to outlive any trend cycle.”
—KRISTIN ROCKE
ABOVE: Glass cabinet fronts, Miele appliances and dazzling Gabriel Scott pendant lights make the kitchen the jewel of this home. Accented by lacquered millwork and an Acto tile backsplash, the space is anchored by a detailed white oak island, echoing Art Deco patterns from the nearby living area. Cabinets are by Teerlink Cabinet.
LEFT: Kristin Rocke, principal of K. Rocke Design.

UPPER RIGHT: A cozy Bernhardt sectional fills the space connecting dining and living spaces. Vibrant pillows and lively accessories tie the great room’s rich color story into this more relaxed space.

LOWER RIGHT: Sherwin-Williams’ “Eye Catching” and Benjamin Moore’s “Blue Lapis” enliven open cabinets with bold blocks of color, creating playful movement in an otherwise strictly functional space. Backsplash tile is by Ann Sacks.

ABOVE: Symmetrical vanities frame a freestanding tub in the primary bathroom, standing as an elegant vignette softened by floor-to-ceiling drapes. Fluted wainscot tile surrounds the room for an elevated, luxurious finish, punctuated by glittering crystal plumbing fixtures by Fantini. The wainscot tile is by Ann Sacks; the sconces are by Schonbek.

RIGHT: “I love the shapeliness and subtle color tones of this fireplace,” Rocke says. “When the sun comes in that window, it transfers through that marble, giving it a glow that makes the heavy material feel weightless.”

OPPOSITE: Wavelength wallpaper from Drop It Modern creates an artistic accent wall in the primary bedroom, where a panoramic view is framed by soft upholstery and drapery for a serene retreat. Furnishings by Vanguard Furniture; lighting by Visual Comfort.

sunlight that pours into the kitchen and the glow from sparkling glass pendants by Gabriel Scott. Nearby, a butler’s pantry offers form and function through ample storage space dressed in bold blocks of color.

The primary suite showcases pastel interpretations of the design’s recurring greens and rich violets, not only in bold applications—like the room’s dramatic Wavelength wallcovering by Drop It Modern— but also in quieter, more unexpected touches. They include veining in the sculpted marble fireplace to subtle violet accents in the bathroom’s fluted wainscot tile.

In every space, the home delivers flair in the perfect dose, whether through bright primary colors in a kid’s bedroom, jewelry-like lighting above the kitchen island or bold, geometric wall treatments. “This house is bejeweled in every sense of the word,” Rocke exclaims.

LEFT: A vibrant blue Vitraform vanity finished in glossy automotive paint accentuates the cool hues of the room’s palette, grounding the space beneath a smoky-framed mirror. Wallcovering is by Back to the Wall; pendant by Tom Dixon.

OPPOSITE (CLOCKWISE FROM TOP LEFT): Mullioned windows team with natural wood and stone finishes to pay homage to this home’s historic SLC neighborhood. Yet where these selections echo history, angled rooflines and sleek, steel-edged facades introduce a modern sensibility, one that balances softness and edge, and blends effortlessly into the surrounding scenery.

“The open tread staircase lit with LED lighting allows each level of the home to feel spacious and connected,” says Rocke. “The homeowners’ vibrant art collection guides you up and down the stairs on a journey of color, uninterrupted by the glass railing.”

On the home’s lower level, a graffiti mural by Trent Call serves as a youthful backdrop to the basement entertaining spaces, all visible from the pool deck outside.

Sweeping blue brushstrokes and a glossy, color-drenched custom desk by Selah Crafts lend high-octane energy to a young boy’s bedroom. To the left, a CB2 bed and a pale Anthropologie table finish the room. Lamp by HK Living; wallcovering by Drop It Modern.

A 1970s hillside home in Millcreek is reimagined as a richly layered retreat designed for entertaining, escape and everyday magic

MODERN Treehouse

PHOTOS BY LINDSAY SALAZAR

Approached by 74 greeneryshrouded steps and the sound of the creek below, the 1975 John Hampshire–designed Millcreek residence feels like a modern-day treehouse. A new shake shingle roof and nature-blending exterior updates, along with a full interior remodel, were completed through a close collaboration between the owners, designer Danielle Domichel Hickman and contractor Solid Renovation Company.

OPPOSITE: Rich stone surrounds, fresh finishes and thoughtfully updated designs transformed fireplaces throughout the home.

FOR INTERIOR DESIGNER DANIELLE DOMICHEL HICKMAN, it felt like discovering a hidden treehouse in the woods. Tucked into a Millcreek hillside and reached by a 74-step descent, her clients’ 1970s home cascades toward the creek below, its levels unfolding like platforms in the trees. “The setting is pure fairytale,” she gushes. But inside, the spell had worn off. Decades of dated finishes and features dulled the home’s charm.

That disconnect between wondrous and worn led to an ambitious renovation. “The owners wanted the house to feel like a true retreat, a place that could instantly transport them away from daily demands and into something calmer, lighter and more restorative,” Domichel Hickman explains.

Working within architect John Hampshire’s 1975 design, Domichel Hickman collaborated with contractor Solid Renovation Company to treat the 16-month remodel as both reset and refinement, preserving the treehouse spirit while elevating its 4,500 square feet with a bold, contemporary sensibility. “This was a full gut remodel,” she explains. Some rooms, like the kitchen, bathrooms and primary suite, were taken down to the studs, while others, including the living and dining areas, were dramatically overhauled, replacing heavy finishes and features with light, expressive design inspired by the owners’ travels and love of color.

The home unfolds across four levels. From the garage and gate at the top, a descent leads to the main entry, where an office and laundry room sit just inside. Below, the primary living spaces— kitchen, dining, den, powder and living room—stretch toward the creek, connecting daily life to the landscape. Bedrooms occupy the level above the entry, offering privacy among the treetops, while an unexpected theater crowns the house with north and south views. True to its 1970s roots, the layout favors defined rooms over an open-concept plan—a quality the homeowners embraced. “The way the spaces are configured is very much of the era, and that’s what makes this house special,” Domichel Hickman says.

On the main living level, Domichel Hickman set out to bring to life the homeowners’ vision of a retreat—a space for quiet escape

UPPER RIGHT: Approachable from both ends, the dining room captivates from every angle, with chairs by Verellen, a table by Baker and a chandelier by Roll & Hill.

LOWER RIGHT: A fresh coat of paint and a custom Calacatta Black marble surround by European Marble & Granite transformed the great room’s original wood-paneled fireplace into a striking centerpiece of timeless elegance.

OPPOSITE: Conceived as a serene refuge, the great room invites quiet connection through music, reading or simply being together, with a white-painted original wood ceiling, a Holly Hunt sofa and plants by Orchid Dynasty.

“The way the spaces are configured is very much of the era, and that’s what makes this house special.”

as well as for entertaining family and friends. She reimagined the great room’s living area as a tranquil, light-filled spot for reading, piano playing and relaxed conversations. She painted the original tongue-and-groove ceiling white, refurnished the space and transformed the wood-paneled fireplace with fresh paint and a dramatic Calacatta Black marble surround. To create “a striking and inviting focal point,” Domichel Hickman outfitted the open dining area with a round, ebony-finished dining table crowned by an ethereal smokedglass chandelier.

Nearby, the reimagined kitchen has its own version of drama. With a moody, material-rich palette, Domichel Hickman layered depth, texture and tonal warmth to make the space feel sophisticated yet inviting. Dark, leathered quartzite slabs pair with darkstained walnut cabinetry that conceals integrated appliances. An unlacquered brass hood, a modern two-armed pendant and a ceramic flower sconce add moments of unexpected delight. The adjacent breakfast nook features a table topped in matching quartzite, along with a built-in storage bench and mossy green caster chairs that easily shift from daily use to casual entertaining.

Elsewhere on the same level, Domichel Hickman transformed the den into a moody, New York–inspired lounge anchored by a red stone fireplace surrounded by black-painted cabinetry.

The dark and dramatic kitchen features walnut cabinetry by Forever Furniture with Rocky Mountain Hardware, a leathered quartzite slab from Venetian Tile & Stone Gallery, a Roll & Hill chandelier, Urban Electric sconce and Waterworks fixtures. The adjacent breakfast nook boasts a matching stone table, green Lee caster chairs and a built-in storage bench.

OPPOSITE: A Patagonia quartzite vanity with stone from European Marble & Granite, Gucci Glade wallcovering and a Roll & Hill pendant turned this compact powder bath into a sculptural, jewel-box moment.

CLOCKWISE FROM TOP:

Exuding hotel-like luxury, the primary bathroom features Calacatta Gold tile by Artistic Tile and a coordinating slab from Venetian Tile & Stone Gallery, fabricated by European Marble & Granite; the cabinetry is by Forever Furniture.

The bathroom’s Maroon Gucci Heron wallcovering visually links to painted cabinetry in the primary closet, where Calacatta stone surfaces and a rich blue carpet shape a chic palette.

Wrapped in textured Omexo wallcovering and anchored by a Century king bed, the primary bedroom exudes tranquility. Visual Comfort wall sconces keep the space serene and the nightstands uncluttered.

Gucci Glade wallpaper, a monolithic stone vanity and a shimmering pendant turn the compact powder room into a jewel-box moment all its own. “I wanted every space to feel fresh, surprising and completely distinct,” she explains.

Upstairs, Domichel Hickman envisioned the primary suite as a sanctuary. Textured wallcovering, brown velvet and an uncluttered decor serve a restorative role. Cloaked in Calacatta Gold, the primary bathroom evokes a luxury hotel. Its maroon Gucci Heron wallcovering animates the space and offers a jumping-off point for the reimagined closet’s crimson cabinetry. Matching Calacatta surfaces and blue antelope-patterned carpet add to the exuberant mix. “We wanted the bathroom to feel sophisticated and intimate and the closet playful, elevated and functional all at once,” the designer explains.

“My clients tell me they now love the house so much they hate to leave it,” Domichel Hickman says. In the end, that was always the goal—not just to update the home, but to create a fairytale-like retreat that restores, inspires and feels pleasantly removed from the rest of the world.

ABOVE: Designed to feel like a moody New York lounge, the den features original cabinetry painted deep black and a custom red stone fireplace surround fabricated by European Marble & Granite. A curved Holly Hunt sofa in emerald alpaca wool is paired with swivel chairs upholstered in whimsical Romo fabric.

OPPOSITE (CLOCKWISE FROM UPPER LEFT):

A petite Calacatta Black marble fireplace creates an intimate, unexpected focal point in the kitchen while echoing the home’s material palette.

Designer Danielle Domichel Hickman, principal of Domichel Hickman Design Studio.

A skylight floods the refreshed central stairwell with light, where Holly Hunt pendants, a Stark Carpet runner and curated art by Lizzy Wenger and William Krastover deliver striking, personalized style.

Top-floor views and light fill this home theater, while an RH sectional, Park City Blind & Design shades and graffiti-inspired Trowbridge art help shape the comfortable, vibrant retreat.

SCULPTEDFOR

Living

Sweeping architecture, panoramic views and richly layered interiors redefine mountain living in a striking Tuhaye retreat

In the great room, tilted floor-to-ceiling windows capture expansive Wasatch views and highlight a sweeping, curved ceiling that appears to float above the room. “It feels as if you might be part of a giant origami sculpture, about to take flight,” says architect Michael Upwall. The fireplace pairs exterior stone with hot-rolled steel, uniting natural texture and modern form.

OPPOSITE: Pella Ashlar natural stone, hemlock siding and limestone panels define the home’s exterior palette, creating a layered, textural facade. The wood-and-steel front doors read like a piece of custom furniture, while a recessed, cushioned bench offers a sheltered moment of welcome.

Creative engineering shaped the kitchen’s focal wall. A freestanding partition stops short of the ceiling, allowing the hood to vent discreetly through a central beam, transforming a constraint into a defining feature. A full-slab Taj Mahal quartzite backsplash and open shelving keep the range wall streamlined, while a hot-rolled steel hood echoes the fireplace, linking the kitchen to the great room.

TTHERE ARE MANY THINGS ABOUT THIS UTAH MOUNTAIN HOME TO OBSESS OVER. There’s the location: nestled into the folds of Tuhaye’s rolling terrain, the house is oriented to capture sweeping views of the Wasatch Range and the Talisker Club golf course. There is the architecture—designed by Michael Upwall of Upwall Design, it is defined by sweeping curves, angled planes and walls of glass that draw the landscape inside. And there are the layers of furnishings and finishes that create the richly textured interiors for which interior designer Allison Campbell is known.

Yet for all its bravura, the home was never meant to be a showpiece alone. The homeowners envisioned a place that could host a full house of grown children and friends one weekend, then feel serene and restorative the next. “The clients were drawn to strong forms and bold architecture, but they were equally focused on how the house would feel when it was full of people—and when it was completely quiet,” Campbell says.

Upwall approached the commission with that dual ambition. The architecture feels dynamic but never overwhelms daily life or the landscape beyond. “For me, every design begins with the site. I believe homes should be ‘of the land’ as if they have always been there, but still fresh and ‘of the moment,”’ Upwall explains.

LEFT: White oak cabinets by Swirl Woodcraft anchor the kitchen space.
Anchoring the far end of the great room, the kitchen is bathed in natural light and framed by sweeping views.

The lower-level family room is designed for adult children to gather, with a large Vanguard sectional, pool table, kitchenette and long shuffleboard table. Dark brick and white oak built-ins define the fireplace wall, anchoring a comfortable, multi-activity hub for conversation, TV and fun.

Campbell carried the fireplace wall’s materials of wood, steel and glass into the open kitchenette, fostering a sense of continuity throughout the family room.

The curved staircase forms the perfect nook at its base for a round game table.

The curved staircase was designed to echo the home’s overall aesthetic, with wide, curved treads resembling piano keys. The open steps attach to the wall rather than a central spine, with simple horizontal metal railing for a clean, streamlined look. Pendant light by Modern Forms.

Volumes expand and contract, ceilings tilt and soften, and light shifts throughout the day. That sculptural fluidity demanded precision. “Upwall’s architecture is always a challenge to build, so being flexible and patient is key,” says builder Jason Groscost, who coordinated steel, stone, wood and glass to ensure every junction felt intentional.

Inside, the interiors settle into warmth and tactility, a balance that finds its fullest expression in the great room. Floor-to-ceiling glazing rises to meet a gently arched hemlock ceiling that echoes the surrounding hills. “The great room radius window wraps around and embraces the view of the golf course, while leaning out in deference to the landscape,” Upwall explains. “Meanwhile, the dynamic rooflines reach up to the sky.” Groscost adds, “The impressive span goes from end to end with a massive beam that is not only curved but also bent. This gave us a ‘potato chip’–shaped roof that is visible from the road.” Grounding elements, including a stone and hot-rolled steel fireplace, anchor the space. “With views this expansive, it was important to give the eye places to land. We wanted the interior to feel composed, not overwhelmed by what’s outside,” Campbell explains.

The open plan flows seamlessly from kitchen to dining to living areas. Furnishings, ceiling shifts and material transitions define spaces subtly. In the kitchen, a freestanding wall beneath clerestory windows required a beam-and-column solution to vent the hood while adding structure. The steel hood echoes the fireplace, reinforcing a sense of continuity.

A sweeping circular staircase of white oak, glass and steel provides a sculptural transition between floors. Campbell designed the treads to extend from the wall rather than mount to a center spine of iron. “They resemble cascading piano keys,” she observes. A multi-pendant light adds drama overhead. Private spaces lean into a quieter design language. The primary suite uses soft neutrals and layered textures so the view remains the focal point. Wood ceilings and a freestanding headboard wall add warmth without enclosure. The bath is centered

UPPER LEFT: Neutral finishes and wood-clad ceilings frame the primary bedroom’s views, while the fireplace’s stone and hot-rolled steel tie the suite to the home’s main spaces, adding warmth and continuity.

LOWER LEFT: A freestanding headboard wall shapes the bedroom, with beams on the hallway side and plaster and metal accents on the room side. The wall stops short of the ceiling, adding a sense of volume.

The primary bathroom centers on the tub, nestled before three floor-to-ceiling windows. The Native Trails concrete tub anchors the room, while soft tones, layered textures and abundant glass let it shine. Multi-light pendant by ET2 Reveal.

“The hills roll and angle softly up to meet the sky and instantly became the inspiration for the geometry of the home,” Upwall says. The back deck, with rounded edges and large slab flooring, features horizontal steel balusters to preserve uninterrupted views. A cozy firepit and surrounding seating make the space effortlessly inviting.

around a sculptural concrete tub set before a wall of glass. “In more intimate rooms, restraint becomes the luxury. These spaces are about calm and clarity, not excess,” Campbell says.

Downstairs, the mood shifts to relaxed family living. A sectional anchors the lounge, while a game table tucks beneath the staircase. Materials maintain continuity with a lighter touch. “We chose a dark brick and white oak for the built-ins and the fireplace surround. We added steel and glass to keep it light and airy in a normally darker space,” she adds. The same steeland-glass details on the nearby kitchenette ensure consistency across the space.

The success of the home lies not just in its dramatic forms but also in its fluency. Sightlines extend and redirect, and public and private zones feel distinct yet connected. “The architecture set the tone for everything,” Campbell explains. “Our role was to translate it into spaces that feel grounded, functional and livable year-round.” That balance was central to Upwall’s approach—design a house inspired by and as dynamic as the terrain that surrounds it—expressive without excess, technically ambitious yet emotionally grounded and entirely attuned to daily life.

OPPOSITE (CLOCKWISE FROM

UPPER LEFT):

In the bunk bath, elongated Stromboli subway tile from Equipe plays with direction and color, shifting from horizontal to soldier course for a subtle sense of motion. A patterned floor tile from Surface Art brings in texture and whimsy, while the clean lines keep it feeling timeless, Campbell explains.

This bunk room sleeps six, with trundle beds for extra flexibility. Dark-stained rift white oak, aspen tree wallpaper and buffalo-check bedding create a cozy, playful vibe. Individual niches give each sleeper a spot for a cup or phone, while a central staircase—also functioning as storage drawers—makes accessing the top bunks safe and easy for kids and adults alike.

The office’s windows frame expansive golf course views. Faux hair-on-hide wallpaper wraps the room’s walls, complemented by a knotty cedar wood ceiling for depth. Dark-painted, full-height built-ins and a dry bar with TV balance function and style. Art by David Beavis.

Allison Campbell, principal of Allison Campbell Design.
A defining feature of the home’s entry, a sculptural porte cochere showcases a circular ceiling that symbolically gathers energy from the heavens, infusing the arrival with a sense of movement, abundance and positive momentum. Expansive windows offer glimpses of the striking foyer and staircase beyond, hinting at the home’s thoughtful layering of space and light.

harmony LIVING IN

In Park City, a Glenwild residence blends luxury, landscape and feng shui to create a home as beautiful as it is balanced

RIGHT: Designed by architect Greg Steffensen and built by contractor Mark Burgess of Falcon Crest Homes, the home overlooks Glenwild’s championship golf course.

ARCHITECTURE SHAPES SPACE, but in this new Park City home, it also shapes energy—exactly as its owners intended. Guided by feng shui, the couple conceived their residence around qi, the vital life force believed to influence well-being, balance and prosperity. In this mountain retreat, that philosophy isn’t an afterthought—it’s the blueprint. “Every spatial decision, from orientation to material selection, has been made to guide energy flow, enhance privacy and cultivate harmony between the home and its natural surroundings,” the owner explains.

To bring that vision to life, the couple assembled a team able to help translate philosophy into form: architect Greg Steffensen, contractor Mark Burgess, interior designer Allison Parkinson and Sunline Landscapes. Working in close collaboration with their clients, they shaped a residence where architecture, interiors and landscape move in quiet alignment. Located in the private Glenwild community, the house is oriented along a north–south axis, placing it in one of the most favorable feng shui positions. “In classical feng shui, a southfacing home benefits from optimal sunlight, warmth and vitality, symbolizing growth, prosperity and longevity,” the

CLOCKWISE FROM TOP LEFT: Inspired by the iconic print “The Great Wave off Kanagawa,” this Zen garden uses raked gravel and constellation-inspired stones to guide energy inward and craft a serene transition from outdoors to in. Composed by Sunline Landscapes.

A lighted slab of Panda White marble enriches the entry, its flowing veining echoing the exterior fountain and supporting the continuous flow of qi. Designer Allison Parkinson layered the space with texture and warmth through a Baker Taper chair, Jaipur Rize rug and Old Biscayne Monique console.

In the great room, a layered mix of wood species and tones deliver a natural, collected feel to the space. Windows on both sides frame views of the golf course and a serene Japanese garden, while carefully curated furnishings—an Old Biscayne Macario dining table, Vanguard Dune II armchairs and Verellen Hudson swivel chairs—allow the architecture and landscape to take center stage.

A Japanese Black Pine bonsai anchors the entrance, while a tiered courtyard fountain draws water and qi inward, subtly symbolizing prosperity. “The sound of running water and the presence of the bonsai create a calm, sculptural moment,” Burgess explains.

owner says. “The orientation allows the house to receive nourishing yang energy throughout the day while remaining sheltered and composed.”

Visitors arrive beneath an artfully designed porte cochere that acts as both architectural focal point and energetic threshold. With a circular ceiling opening, the design references the ancient concept of round heaven and square earth. The portal frames the sky and draws energy gently downward, lending the arrival a sense of light and quiet abundance.

Beyond the porte cochere, a spacious courtyard unfolds as a Ming Tang—an open, bright space where qi gathers before entering the home. A three-tiered fountain directs water inward, symbolically attracting prosperity, while a sculptural bonsai anchors the space with calm. Burgess describes the sequence: “From the drive past the glass garage doors to the sound of water in the courtyard, anticipation builds. Everything culminates at the large pivot front door, where precision engineering and thoughtful design create a truly memorable first impression.”

Inside the front door, a dramatic expanse of Panda White marble greets visitors. Inset into the wood-clad wall, the stone’s flowing veining echoes the movement of water, reinforcing the

OPPOSITE: Beneath the staircase at the entry, a cozy seating vignette unfolds in front of the fireplace. Two Verellen Gaston swivel chairs offer flexibility to face either the fire’s glow or serene views of the Japanese garden. The rug is by Jaipur.

UPPER LEFT: Clean-lined walnut cabinetry and integrated appliances keep the kitchen space quiet and uncluttered, letting the warm wood detailing anchor the decor. Low-profile Verellen Butterfly counter stools maintain the streamlined aesthetic.

LOWER LEFT: A departure from the home’s more serene spaces, the powder room is cloaked in Caselio Labyrinth Doors wallpaper’s bold, graphic pattern. A floating black-and-white marble vanity and black mirror wall add depth and sculptural drama.

continuous circulation of qi. “Such fluid patterns are believed to support the smooth flow of energy and wealth,” the owner notes.

Inside the nearby light-filled great room, views extend outdoors to a serene Japaneseinspired Zen garden, where raked gravel suggests waves, and stones form the Big Dipper constellation—a celestial reference believed to draw cosmic energy while grounding the home within a larger natural order. Thoughtful decorating carries the garden’s calm energy indoors, creating a living space that feels both serene and continuous with its surroundings.

Throughout the home, Parkinson was tasked with making selections of tile and its layouts, wallcoverings and all furnishings. “Our goal was to create interiors that feel warm and grounded while maintaining a clean, modern architectural language,” she says. In the main living areas defined by large windows, warm woods and natural stone, Parkinson introduced soft contemporary furnishings—“nothing harsh or sharp”—warmed with texture-rich fabrics in a tranquil neutral color palette. “We kept them

OPPOSITE: A Hubbardton Forge Sprig pendant glows above the freestanding tub in the primary bathroom, where a floor-to-ceiling window frames tranquil views of the forested garden. A thoughtful mix of materials and a balance of dark and light hues create a space rich with depth and quiet luxury.

UPPER RIGHT: The primary bedroom unfolds beyond a striking stone fireplace and intimate sitting room, a layered approach that creates a peaceful buffer from the rest of the home and enhances the suite’s sense of privacy. A Baker bench and Gaetano bed anchor the luxe, restful retreat.

LOWER RIGHT: A Larkin bench by Vanguard tucks neatly beneath the primary bathroom vanity. Richly grained wood and striking stone surfaces layer in texture, bringing a sense of nature-driven luxury to the space.

quiet and considered, allowing the architecture, interior focal points and surrounding landscape to coexist without competing for attention,” she explains.

The designer added moments of contrast for depth and drama: Graphic wallpaper enlivens the powder room, a bold rug anchors the lower level and black accents along with richly veined stone recur throughout. “The restrained, repeating palette supports a quiet, peaceful energy,” Parkinson explains.

What makes the home especially compelling is that this harmony stems from the homeowners’ steadfast vision. Their understanding of feng shui guided every conversation and decision, leading to solutions that balance beauty, function and flow. The result is a residence where architecture, interiors and landscape feel inseparable.

“This project was shaped by the homeowners’ exceptional involvement and insight,” says Burgess. “Their knowledge of the building process and passion for the details made them some of the most engaged collaborators I’ve worked with. That partnership allowed us to function as a true team, resulting in a beautifully executed mountain modern home.”

CLOCKWISE FROM TOP LEFT: A small upstairs study boasts windows on opposing sides and features a deep built-in bench made for sitting and soaking in the light. Oriented to capture views of a water feature on one side and the surrounding landscape on the other, the space is layered in textiles primarily from Kravet with select accents by Pindler.

Natural light and expansive views brighten the lower-level family room, where a Vanguard sofa and Troy chairs gather around an Axis round cocktail table and MIY ottomans. A richly patterned Jaipur Pathways rug grounds the space with warmth and texture.

Beneath the stairs in the lower level, Parkinson positioned leather chairs in front of the dramatically framed fireplace to shape a spot for intimate conversation.

A massive pivot door, flanked by windows that overlook the entry courtyard, makes a commanding first impression.

DESIGN DIRECTORY

Architects/Builders /Construction

BARTILE

720 N. 1000 West, Centerville 801-295-3443 bartile.com

HIGHLAND GROUP

4471 Highland Drive, SLC 801-227-4433 highland-group.com

JACKSON LEROY

4980 Highland Drive, SLC 801-277-3927 jacksonleroy.com

Furnishings/Appliances

ADIB’S RUG GALLERY

3092 S. Highland Drive, SLC 801-484-6364 adibs.com

THE BLACK GOOSE DESIGN

7652 Holden Street, Midvale 801-562-1933 theblackgoosedesign.com

CURATE TO THE TRADE

360 S. Rio Grande, SLC 801-618-0216 curatetothetrade.com

DESIGN WITHIN REACH

51 S. Main Street, #162, SLC 385-250-1711 dwr.com

DOWN TO EARTH

1100 W 7800 S, West Jordan 801-984-4105

gardnervillage.com/down-to-earth-furniture

FORSEY’S FINE FURNITURE + INTERIOR DESIGN

Traditional & Contemporary 2977 S. Highland Drive, SLC 801-487-0777

Craftsman House 2955 S. Highland Drive, SLC 801-463-0777 forseys.com

FOUR CHAIRS

FURNITURE + DESIGN

150 S. State Street, Lindon 801-796-3400 4-chairs.com

THE GARDEN STORE

678 S. 700 East, SLC 801-595-6622 thegardenstoresaltlake.com

HELM HOME

5253 S. State St., Murray 801-263-1292 helmhome.com

LEISURE LIVING

2208 S. 900 East, SLC 801-487-3289 leisurelivinginc.com

MLD SLC 2345 S. Main Street 801-466-0990

SLC - Will Call 5167 W. 1730 South 801-466-0990

SLC - Closeout 2345 S. Main Street 801-466-0990

Multiple locations: Find one near you at mld.com

OSMOND DESIGNS

Orem 1660 N. State Street 801-225-2555

Lehi 151 E. State Street 801-766-6448 osmonddesigns.com

PARK CITY

BLIND & DESIGN

Park City 1612 W. Ute Blvd., Ste. 109A 435-649-9665

St. George 1333 Auto Mall Drive, Ste. 305 435-649-9665 parkcityblind.com

REJUVENATION

602 E. 500 South, #B101, SLC 801-935-8222 rejuvenation.com

BY

JF Fabrics’ Caselio wallcovering infuses subtle drama in this Glenwild home’s powder bath, page 98. Mirror is by John Richard.
PHOTO
AMANDA PETERSON

SAN FRANCISCO DESIGN

SLC

2970 S. Highland Drive 801-467-2701

Park City 1890 Bonanza Dr. 435-645-7072 sanfrandesign.com

Lighting/Art/Jewelry

HAMMERTON LIGHTING

217 N. Wright Brothers Dr., SLC 801-973-8095 hammerton.com

O.C. TANNER JEWELERS

SLC 15 S. State Street 801-532-3222

Park City 416 Main Street 435-940-9470 octannerjewelers.com

Interior Design

ALLISON CAMPBELL DESIGN 801-372-3413 allisoncampbelldesign.com

AMB DESIGN

4680 S. Kelly Circle, Holladay 801-272-8680 annemariebarton.com

THE BLACK GOOSE DESIGN

7652 Holden Street, Midvale 801-562-1933 theblackgoosedesign.com

CHRISTY DIAS DESIGN christydiasdesign.com

DESIGN N MIND INTERIORS

9665 S. 500 West, Sandy 801-871-5199 designnmindinteriors

DESIGN WITHIN REACH

51 S. Main Street, #162, SLC 385-250-1711 dwr.com

DOWN TO EARTH

1100 W 7800 S, West Jordan 801-984-4105 gardnervillage.com/down-to-earth-furniture

GATEHOUSE NO. 1

672 State Street, Orem 801-263-9505 gatehousestyle.com

HELM HOME

5253 S. State St., Murray 801-263-1292 helmhome.com

HILLARY TAYLOR INTERIORS hillarytaylorinteriors.com

HUGA HOME

2279 Santa Clara Dr., Santa Clara 435-429-0957 design@hugahomedesign.com

K. ROCKE DESIGN

3910 S. Highland Drive, Millcreek 801-274-2720 krockedesign.com

LEISURE LIVING

2208 S. 900 East, SLC 801-487-3289 leisurelivinginc.com

LESLIE SCHOFIELD STUDIO

3939 S. Wasatch Blvd., Ste. 3, SLC 801-901-6633 leslieschofield.com

REJUVENATION

602 E. 500 South, #B101, SLC 801-935-8222 rejuvenation.com

ROBERTS & LAMB

Holladay 801-441-3615 robertsandlamb.com

SAN FRANCISCO DESIGN

SLC

2970 S. Highland Drive 801-467-2701

Park City 1890 Bonanza Drive 435-645-7072 sanfrandesign.com

THE CLOSET BUTLER

1272 Sportsplex Drive, Kaysville 801-823-4537 theclosetbutler.com

Kitchen/Bath

MLD

SLC

2345 S. Main Street

801-466-0990

SLC - Will Call 5167 W. 1730 South 801-466-0990

SLC - Closeout 2345 S. Main Street

801-466-0990

Multiple locations: Find one near you at mld.com

Landscaping/ Pools /Outdoor Living

DIAMOND POOLS & SPAS

4409 Coriolis Way, Frederick, Colo. diamondspas.com

LANDFORM DESIGN GROUP

511 W. 200 South #125, SLC 801-521-2370 landformdesigngroup.com

SUNLINE LANDSCAPES

14745 S. Heritage Crest Way, Bluffdale 801-253-6434 sunlinelandscape.com

Real Estate/Developments

IVORY HOMES

Multiple locations: Find one near you at ivoryhomes.com

SOTHEBY’S INTERNATIONAL REALTY Angie Nelden 801-718-4346 angieneldon.com

BERKSHIRE HATHAWAY HOMESERVICES

Heidi Ingram 435-901-9330 Heidilnghamrealestate.com

Stone/Tile/Flooring

EUROPEAN MARBLE & GRANITE

SLC

2575 S. 600 West 801-974-0333

Park City

6622 N. Landmark Dr., Ste. B160 435-214-7445 europeanmarbleandgranite.com

INSIDE OUT ARCHITECTURALS

3412 S. 300 West, Ste. A, SLC 801-487-3274 insideoutarchitecturals.com

Point of Sale Technology

SPARK SOLUTIONS GROUP

5107 S. 900 East, Ste. #100, SLC 801-486-2151 sparksolutionsgroup.com

SOURCES

COLOR WAYS

PAGES 50-55

Interior Designers: Alice Lane Interior Design, alicelaneinteriordesign.com ; Andrea West Design, andreawestdesign.com ; The Flair Hunter, theflairhunter.com ; The Fox Group, thefoxgroup.com ; Gregg Hodson Interior Design, instagram.com/gregghodsondesign ; House West Design, housewestdesign.com ; Huga Home, hugahomedesign.com ; K. Rocke Design, krockedesign.com

OPEN AND INVITING

PAGES 56-61

Photography: Meagan Larsen, meaganlarsen.com ; Architecture: Annie Schwemmer, Renovation Design Group, renovationdesigngroup.com ; Builder: Living Home Construction, living-home.net ; Interior Design: Alexis Mecham; Exterior Stone: Dutch Quality Stone; Exterior Masonry: Interstate Brick, interstatebrick.com ; Exterior Lighting: Shades of Light, shadesoflight.com ; Decking: Fiberon, fiberondecking.com ; Porch Ceiling: Thermory, thermoryusa.com ; Windows/Doors: Pella Windows, pella.com ; Roof: ABC Roofing, abcsupply.com ; Siding: Lansing, lansingnow.com ; Hardwood Flooring: Signature Floors, signaturefloors.com ; Cabinetry: Forever Furniture, Inc., foreverfurnitureinc.com ; Stair Runner: Prestige Mills, prestigemills.com ; Fireplace: Hearth and Home, hhdu.com ; Millwork: Interior Worx Molding, interiorworxmoulding.com ; Door Hardware: Emtek, emtek.com ; Wallcoverings: Peri Gold, perigold.com; Mudroom Tile: Daltile, daltile.com;

Mudroom Hardware: Atlas Homewares, atlashomewares.com , Richelieu, richelieu.com ; Plumbing Fixtures: Ferguson, ferguson.com ; Primary Bath Flooring: Crossville Studios, crossvillestudios.com ; Vanity Stone: The Stone Collection, thestonecollection.com ; Primary Bath Wall Tile: Floor & Decor, flooranddecor.com ; Primary Bath Hardware: Modern Matter, modernmatter.com ; Kitchen Range: Wolf, subzero-wolf.com ; Kitchen Backsplash: Daltile, daltile.com ; Island Countertop: Lusso Design, lussodesignresource.com ; Kitchen Lighting: Visual Comfort, visualcomfort.com ; Paint: Sherwin Williams, sherwin-williams.com ; Benjamin Moore, benjaminmoore.com

LUX IN LAYERS,

PAGES 68-77

Photography: timboonephoto.com , Scot Zimmerman, scotzimmermanphotography.com ; Interior Design: K. Rocke Design, krockedesign.com ; Builder: Benchmark Modern, benchmarkmodern.com ; Architect: Baros Design, barosdesign.com ; Exterior Wood: Alpine Precoat, alpineprecoat.com ; Exterior Stone: Delta Stone, deltastoneproducts.com ; Exterior Steel: Tekko Steel, tekkometals.com ; Cabinetry: Artisan Woodworks, Stair Railing: Steel/ handrail: Parker Cook Design, parkercook.design, Colton Cannon Glass; Stair Treads: Wize Custom Cabinetry, wisecabinetry.com ; Hardwood Flooring: Signature Floors, signaturefloors.com ; Living Room Lighting: Visual Comfort, visualcomfort.com ; Custom Bar Tile:

Artistic Tile, artistictile.com ; Sectional: Bernhardt, bernhardt.com ; Custom Glass Tables: Bradshaw Design, bradshawfurniture.com , TCG Cast Glass, tcgglass.com ; Sofas and Bedroom Furnishings: Vanguard Furniture, vanguardfurniture.com ; Swivel Chairs: Kimberly Denman, kimberlydenman.com ; Custom Tables/ Kitchen Island Millwork: Bradshaw Design, bradshawfurniture.com; Kitchen Cabinetry: Teerlink, teerlinkcabinet.com ; Kitchen Appliances: Miele, mieleusa.com ; Kitchen Pendants: Gabriel Scott, gabriel-scott.com ; Dining Chandelier: Fisher Weisman Collection, fisherweisman.com ; Backsplash: Crossville Studios, crossvillestudios.com ; Barstools: Mater, materusa.com ; Dining Chairs: Randolph & Hein, randolphhein.com ; Paint: Sherwin Williams, sherwin-williams.com ; Benjamin Moore, benjaminmoore.com ; Bedroom Wallpapers: Drop It Modern, dropitmodern.com ; Primary Bedroom Lighting: Visual Comfort, visualcomfort.com ; Primary Bath Tile: Ann Sacks, annsacks.kohler.com ; Plumbing: Fantini, fantini.it ; Bath Accessories: Decor Walther, decor-walther.com ; Mirrors: Glas Italia, glasitalia.com ; Primary Bath Lighting: Schonbek, schonbek.com ; Custom Kids’ Desk: Selah Crafts & Design, selahcraftsanddesign.com ; Bedroom Nightstand: Anthropologie, anthropologie.com ; Kid’s Bed: CB2, cb2.com ; Kids’ Lamp: HK Lighting, hklighting.com ; Powder Bath Pedestal Sink: Custom Vitraform; Powder Plumbing: Graff in 24k Gold, graff-designs.com ; Powder Wallpaper: Back to the Wall, backtothewall.co.nz ; Powder Lighting: Tom Dixon,

USD (ISSN 1941-2169) Utah Style & Design is published quarterly (Winter, Spring, Summer and Fall) by Utah Media Publishing, a subsidiary of Hour Media. Utah editorial, advertising and administrative offices: 515 S. 700 East, Suite 3i, SLC, UT 84102. Telephone: 801-485-5100; fax 801-485-5133. Periodicals Postage Paid at Salt Lake City and at additional mailing offices. Subscriptions: One year ($19.95); outside the continental U.S. add $20 a year. Toll-free subscription number: 877-553-5363. POSTMASTER: Send address corrections to Salt Lake Subscription Department, 1965 East Avis Dr, Madison Heights, MI 48071. No whole or part of the contents may be reproduced in any manner without prior permission of Utah Style & Design, excepting individually copyrighted articles and photographs. Manuscripts accompanied by SASE are accepted, but no responsibility will be assumed for unsolicited contributions.

tomdixon.net ; Powder Mirror: Glas Italia, glasitalia.com ; Mural: Trent Call, trentcall.com ; Art: A Gallery, agalleryonline.com

MODERN TREEHOUSE

PAGES 78-87

Photography: Lindsay Salazar Photography, lindsaysalazar.com ; Interior Design: Domichel Hickman Design Studio, dhdesignstudio.com ; Builder: Solid Renovation Company, solidrenovationcompany.com ; Stone Fabrication: European Marble & Granite, europeanmarbleandgranite.com ; Cabinetry: Forever Furniture, Inc., foreverfurnitureinc.com ; Exterior Lighting: Visual Comfort, visualcomfort.com ; Exterior Cabinetry: Cabinets by Design, cabinetsbydesignutah.com; Outdoor Furniture: RH, rh.com ; Entry Sconces: Holly Hunt, hollyhunt.com ; Entry Bench: 1st Dibs, 1stdibs.com ; Entry Console: Helm, helmhome.com ; Interior Plantings: Orchid Dynasty, orchiddynasty.com ; Great Room Wallcovering: Phillip Jeffries, phillipjeffries.com; Rugs and Carpet: Regency Royale, regencyroyale.com ; Dining Furnishings: Verellen and Baker via Curate to the Trade, curatetothetrade.com ; Dining Chandelier/Powder Pendant: Roll & Hill, rollandhill.com ; Kitchen Sconce: Urban Electric, urbanelectric.com ; Plumbing Fixtures: Waterworks, waterworks.com ; Appliances: MLD, mld.com ; Breakfast Nook Furnishings: Lee Industries via Helm, helmhome.com ; Kitchen and Primary Bath Slabs: Venetian Tile & Stone Gallery, venetianstonegallery.com ; Hardware: Rocky Mountain Hardware, rockymountainhardware.com; Powder Wallcovering: Gucci, gucci.com ; Art: 15th Street Gallery,

15thstreetgallery.com , A Gallery, agalleryonline.com; Primary Bed: Century Furniture via Helm, helmhome.com ; Primary Sconces: Visual Comfort, visualcomfort.com ; Primary Wallcovering: Omexo, omexo.com ; Primary Ottomans: Verellen via Curate to the Trade, curatetothetrade.com ; Tile: Artistic Tile, artistictile.com ; Den Furnishings: Holly Hunt, hollyhunt.com ; Office Desk: Madegoods, madegoods.com ; Desk Chair: DWR, dwr.com ; Theater Sofa: RH, rh.com; Theater Artwork: Trowbridge Art, trowbridgegallery.com; Theater Window Treatments: Park City Blind & Design, parkcityblind.com

SCULPTED FOR LIVING

PAGES 88-97

Photography: Amanda Peterson Photography, amandapetersonphotography.com ; Interior Design: Allison Campbell Design, allisoncampbelldesign.com ; Builder: Kent Construction, kentconstruction.ne t; Architect: Upwall Design, upwalldesign.com ; Exterior Materials: Pella, pella.com ; Cabinetry: Swirl Woodcraft, swirlwoodcraft.com ; Lower Level Sectional: Vanguard, vanguardfurniture.com ; Primary Bathtub: Native Trails, nativetrailshome.com ; Primary Bath Pendant: ET2 Reveal, et2lighting.com ; Bunk Bath Tile: Stromboli via Equipe, equipeceramicas.com , Surface Art, surfaceartinc.com

LIVING IN HARMONY

PAGES 98-107

Photography: Taylor Spencer Photography, taylorspencerphotography.com ; Interior Design/furnishings: Curate to the Trade, curatetothetrade.com ;

Builder: Falcon Crest Homes, falconcresthomesutah.com ; Architect: Greg Steffensen, gsteff-arch.com ; All Furnishings: Curate to the Trade, curatetothetrade.com —Upper and Lower Living Room Seating: Verellen, verellen.biz ; Living Room Cocktail Table: Alfonso Marina, alfonsomarina.com ; Rugs: Jaipur, jaipurrugs.com ; Console and Dining Tables: Old Biscayne, oldbiscaynedesigns.com ; Dining Chairs: Vanguard Furniture, vanguardfurniture.com ; Kitchen Stools: Verellen, verellen.biz ; Entry Chair: Baker Furniture, bakerfurniture.com ; Powder Wallcovering: JF Fabrics, Mirror: John Richard, johnrichard.com ; Primary Bench: Baker Furniture, Primary Bed and Nightstands: Chaddock, chaddock.com ; Mirror: Arteriors, arteriorshome.com ; Console: Hickory Chair, hickorychair.com ; Primary Wallcovering: JF Fabrics, jffabrics. com ; Primary Ottoman: Kravet, kravet.com ; Primary Bath Lighting: Lightology, lightology.com ; Primary Bath Bench: Vanguard Furniture, vanguardfurniture.com ; Lower Level Side Table: Theodore Alexander, theodorealexander.com ; Drinks Table: Currey & Company, curreyandcompany.com ; Sauna Bath Furnishings: Arteriors, Gloster, gloster.com

Sources are acknowledgements of services and items provided by featured design principals and homeowners. Those not listed are either private, pre-existing or available through the professionals noted.

BLOOM BOOM

Floral wallpaper becomes a playground of highimpact hues and fearless contrast—bold, colorclashing blooms layered for maximum joy, unapologetic energy and statement-making walls.

(Above) Golden Lily in Secret Garden, Morris & Co., wmorrisandco.com

(Upper Right) Amaryllis in Pourpre/Ambre, Casamance, casamance.com

(Left) Haywood Embroidered Panel in Multi, Lee Jofa, kravet.com

(Right) Yuri Print in Multi, Clarence House, clarencehouse.com

(Far Left) Bloom in Amethyst, Clarke & Clarke, kravet.com

(Left) Open Spaces in Aqua and Coral, Thibaut, thibautdesign.com

Turn static files into dynamic content formats.

Create a flipbook
Utah Style & Design Spring 2026 by Utah Style & Design - Issuu