PORTAFOLIO
Mi nombre es Doménica Casañas Arias, tengo 21 años y soy una estudiante de la carrera de Arquitectura. Me describo como una persona organizada, eficiente y proactiva. A lo largo de mi formación académica he adquirido capacidades para ejercer esta profesión, lo cual se ve reflejado en mis proyectos que ciclo tras ciclo he ido desarrollando. Este portafolio resume cada uno de ellos, demostrando mi anhelo de ir mejorando día con día y buscar una oportunidad para poder aportar con mis conocimientos.
SOBRE MÍ
30 de abril de 2003
Ambato, Ecuador
0985197690
domecasanas3004@gmail.com
EDUCACIÓN
2021 - Actual
Quinto Semestre culminado en Facultad de Diseño y Arquitectura de la Univ
Técnica de Ambato
2015 - 2021
SOFTWARES
Bachiller en en la Unidad Educativa Santo
Domingo de Guzmán
2008 - 2015
Educación Básica en la Unidad
Educativa Juan León Mera La Salle
IDIOMAS
Español (nativo)
Inglés C1
Francés A2
CONTENIDO
REHABILITACIÓN
LEÓN BECERRA
PROYECTO CADIC
SOVEREIGN
PROYECTO DE REHABILITACIÓN FDA
El lugar de intervención se encuentra en el barrio Miraflores, entre las calles: Av. Miraflores y Joaquín de Olmedo.
Como punto de referencia tenemos el redondel de la Av. Miraflores, donde antes se encontraba ubicada la Unidad Educativa León Becerra,
La infraestructura principal consta en el registro patrimonial de la ciudad de Ambato, por lo cual está regida por normativa que protege su integridad, mientras que en la parte de atrás se encuentra ubicado el nuevo edificio que funcionará como Edificio de Posgrados de la Universidad Técnica de Ambato.
Lo que se busca para la nueva propuesta es respetar la esencia misma del edificio e integrar la forma inicial que este tuvo en planta que fue de una chakana, esta rige la organización del programa. El concepto de Ciudad Jardín dicta las pautas a seguir en el nuevo bloque integrado a esta casa patrimonial.
El proyecto plantea un santuario en la cima de una colina, que permite apreciar las vistas del lugar, así como mostrar la fortaleza de la naturaleza y lo insignificante que somos en comparación de esta, siendo el protagonista el imponente panorama de la sierra andina del Ecuador.
El pabellón presenta el concepto de un “guardia real de los soberanos andes”, acoplándose más como una corona que reposa en el mirador como muestra de respeto hacia las montañas, bosques y volcanes de vieron el surgir e historia de nuestro país.
La residencia CADIC está destinada a ser habitada por personas con problemas de adicción a sustancias psicotrópicas y alcohol, y que se encuentran en su proceso de rehabilitación. Se encuentra a poca distancia de nodos urbanos como el centro comercial Mall de los Andes., ubicada junto al parque de la Floresta en la ciudad de Ambato, La estructura abraza una amplia área verde a la que únicamente los residentes tienen acceso. Esta vivienda cuenta con espacios para usos múltiples tales como una cafetería abierta al público, ala de salud donde se encuentran talleres de manualidades, sala de lectura, salas de terapia cocina y comedor. En la planta alta se disponen habitaciones y en medio de estas gimnasio, rincón de lectura y sala de juegos,
PLANTA BAJA
ALZADO LATERAL IZQUIERDO
CORTE LONGITUDINAL
En este proyecto se trabajó con la metodología de la “Pieza o Recorte” impulsada por la UBA, la cual se trata de identificar los argumentos proyectuales de una obra referencial.
En este caso el referente a utilizar fue el Finlandia
Hall del arquitecto finlandés Alvar Aalto, identificando los siguientes argumentos:
-Funcionalismo
-Integración con la Naturaleza
-Enfoque en el usuario y su ergonomía
-Luz, sombra y espacio
-Materialidad
-Versatilidad
-Escala Humana
-Regionalismo





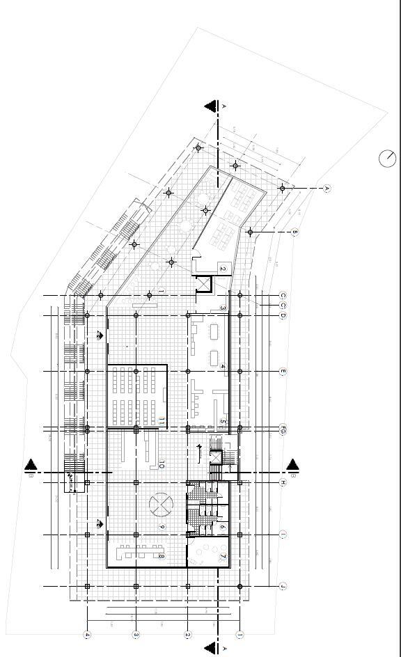
La rehabilitación de la Facultad de Diseño y Arquitectura de la Universidad Técnica de Ambato emerge como un proyecto que fusiona la herencia arquitectónica de Alvar Aalto, con la necesidad de optimizar los espacios educativos. La intervención busca jerarquizar los diversos espacios, logrando que la nueva facultad responda coherentemente al programa arquitectónico. En el proyecto de rehabilitación, la fusión de una arquitectura tectónica se manifiesta de manera notable mediante las gradas externas perimetrales, que no solo funcionan como elementos estéticos, sino que también fomentan la interacción social y la conexión con el entorno Además, la inclusión de espacios subterráneos revela la estereotómica, destacando la exploración de formas y materiales que añaden profundidad, tomando en cuenta las condiciones de cierre, como la malla metálica del frente y las claraboyas estratégicamente ubicadas en los pisos superiores, demuestra una integración con el programa arquitectónico. Estos elementos no solo controlan la entrada de luz según la ubicación y uso de cada espacio, sino que también invitan a los usuarios a habitar plenamente las áreas, creando así un ambiente dinámico y funcional.

Asociación de estudiantes
materiales
magna
Cafetería
Taller de tecnologías
Bodega
Taller de fabricación
Plotter
Baño PB