Skip to main content

Ciudad Pachacútec-Ventanilla

Page 1

CIUDAD PACHACUTEC
II
VENTANILLA TALLER DE INVESTIGACIÓN Y DISEÑO
CICLO 2024-1

UNIVERSIDAD CIENTÍFICA DEL SUR FACULTAD DE ARQUITECTURA ARQUITECTURA Y URBANISMO AMBIENTAL

CURSO

TALLER DE INVESTIGACIÓN Y DISEÑO II SECCIÓN 2248-5625

ALUMNOS

LOPEZ MELGAREJO, CRISTOFHER MATEO 100135824

SOTELO VALVERDE, NILTON UULISES 100131018

DOCENTES

ARQ.GONZALES MACASSI, ROBERTO CARLOS ARQ.ELIAS RAMOS CYNTHIA MELISSA

LIMA, PERU, 2024-1

INDICE GENIUS LOCIUBICACIÓN ANÁLISIS HISTÓRICO EXPANSIÓNYTRAMASISTEMAVIAL ANÁLISIS DE FLUJOCENTRALIZACIÓN DEMOGRAFÍA
ALTURAS ZONASDEINTERESÁREASVERDES ANÁLISISBIOCLIMÁTICO NORMAA.020 NORMAA.120 NORMA A.120REGLAMENTO DE VIVIENDA DE INTERÉS SOCIAL L01 L02 L03 L04 L05 L06 L07 L08 L09 L10 L11 PROYECTO-AMBIENTES L12
USODESUELO-

UBICACIÓN

ELDISTRITODEVENTANILLA,SITUADO EN LA PROVINCIA CONSTITUCIONAL DELCALLAO,PERÚ,SEDESTACACOMO EL MÁS EXTENSO Y EL SEGUNDO MÁS POBLADO DE LA REGIÓN. LIMITA AL NORTECONLOSDISTRITOSDESANTA ROSA Y ANCÓN, DESTACÁNDOSE POR SU UBICACIÓN ESTRATÉGICA EN LA COSTA PERUANA. DENTRO DE SUS LÍMITES SE ENCUENTRA LA CIUDAD PACHACÚTEC, OFICIALMENTE CONOCIDA COMO PROYECTO ESPECIALCIUDADPACHACÚTEC.

COORDENADAS

LATITUD:-11.849491°

LONGITUD:-77.149295°

ALTITUD

ALTITUDMEDIA:126M

ALTITUDMÍNIMA:-3M

ALTITUDMÁXIMA:541M

L1 GENIUS LOCI

MEDIDAS DEL TERRENO SELECCIONADO

PERIMETRO:231.06M

ÁREA:3040M2

COOP. LOS ALAMOS

MEDIDAS

ANCH0:5.5M-11M

LARGO:8.5M-17M

ÁREAPROMEDIOPORLOTE:93.5M2

UBICACIÓN
UBICACIÓN
108M 111M

1998 2000 2002 2007

PRIMEROS ASENTAMIENTOS INFORMALESDEPOBLACIÓNEN LA PAMPA DESÉRTICA DE LO QUE SERÍA CIUDAD PACHACÚTEC.

INICIOSDELAPLANIFICACIÓN POR PARTE DEL GOBIERNO PARA LA CREACIÓN DEL PROYECTO ESPECIAL CIUDAD PACHACÚTEC.

ESTABLECIMIENTOOFICIALDEL PROYECTO ESPECIAL CIUDAD PACHACÚTEC POR EL PRESIDENTE FUJIMORI COMO PARTE DE LA POLÍTICA DE REUBICACIÓNDEINVASORESDE VILLAELSALVADOR.

REUBICACIÓNDEMÁSDESIETE MIL FAMILIAS A CIUDAD PACHACÚTEC A TRAVÉS DE COFOPRI,MARCANDOELINICIO DESUDESARROLLOCOMOUN NUEVOCENTROURBANO.

DESARROLLODELPROCESODE REMODELACIÓNDEVIVIENDAS ENCIUDADPACHACÚTECPARA MEJORAR LAS CONDICIONES HABITACIONALES DE LOS RESIDENTES.

ENTREGADETÍTULOSDELOTES DEVIVIENDAAALREDEDORDE CINCO MIL QUINIENTAS FAMILIAS, CONSOLIDANDO SU ESTATUS LEGAL COMO PROPIETARIOS DE SUS HOGARES.

LAPOBLACIÓNDECIUDAD PACHACÚTEC SIGUIÓ CRECIENDO, LO QUE GENERÓ DEMANDAS ADICIONALESENTÉRMINOS DE INFRAESTRUCTURA Y SERVICIOSPÚBLICOS.

PROGRAMASOPROYECTOS SOCIALESIMPULSADOSPOR ORGANIZACIONES COMUNITARIAS,ONGSOEL GOBIERNO LOCAL PARA MEJORAR LA CALIDAD DE VIDADELOSRESIDENTES,

ANALISIS HISTORICO L2

INICIO DE UN CRECIMIENTO EXPONENCIALENLAACTIVIDAD COMERCIAL EN CIUDAD PACHACÚTEC, CON LA CONSOLIDACIÓNDELAAVENIDA 225 COMO UN IMPORTANTE CENTRO ECONÓMICO Y COMERCIAL.

PRESENCIACADAVEZMAYORDE

ENTIDADES FINANCIERAS Y BANCARIAS EN LA ZONA, BRINDANDO SERVICIOS FINANCIEROSALOSRESIDENTESY

COMERCIANTES LOCALES Y LA MUNICIPALIDADDEVENTANILLA.

REALIZACIÓN DEL CENSO DE POBLACIÓN DEL AÑO 2017, ELABORADO POR EL INSTITUTO NACIONAL DE ESTADÍSTICA E INFORMÁTICA(INEI),QUECONFIRMA ACIUDADPACHACÚTECCOMOEL SEGUNDO CENTRO POBLADO DEL DISTRITODEVENTANILLA.

LA POBLACIÓN DE CIUDAD PACHACÚTECALCANZALOS132,896 HABITANTES, REPRESENTANDO EL 42.11%DELTOTALDELDISTRITO, SEGÚN DATOS DEL INEI Y LA DIRECCIÓN REGIONAL DE SALUD DEL GOBIERNO REGIONAL DEL CALLAO.

DESARROLLO DE PROGRAMAS Y PROYECTOS DE MEJORA DE INFRAESTRUCTURA Y SERVICIOS PÚBLICOS EN CIUDAD PACHACÚTEC,IMPULSADOSPOREL GOBIERNOLOCALYORGANISMOS NOGUBERNAMENTALES. 1.

CONSOLIDACIÓN DE LA ECONOMÍA LOCAL, CON UN CRECIMIENTO CONTINUO DEL COMERCIOYLAPRESENCIADE MÁSEMPRESASYSERVICIOSEN LAZONA.

INICIO DE PROGRAMAS DE DESARROLLOURBANOSOSTENIBLE EN CIUDAD PACHACÚTEC, ENFOCADOSENLAMEJORADELA CALIDAD DE VIDA DE LOS RESIDENTESYLAPRESERVACIÓN DELMEDIOAMBIENTE.

IMPLEMENTACIÓNDEPROYECTOS DE TURISMO COMUNITARIO Y CULTURAL PARA PROMOVER EL POTENCIAL TURÍSTICO DE LA ZONA Y GENERAR OPORTUNIDADES ECONÓMICAS PARALOSHABITANTESLOCALES.

2014 2017 2020 2023

PORMEDIODELASGRAFICASPODEMOSOBSERVAREL CRECIMIENTO URBANO DE LA CIUDAD DE PACHACUTEC DESDE 1990 HASTA EL 2021, EVIDENCIANDO UN CRECIMIENTO URBANISTICO CAÓTICO Y DESORDENADO CARACTERIZADO POR LA RÁPIDAEXPANSIÓNDEASENTAMIENTOSINFORMALES, LA FALTA DE PLANIFICACIÓN ADECUADA DE INFRAESTRUCTURAYSERVICIOSPÚBLICOS,ASÍCOMO LAAUSENCIADEREGULACIÓNENELDESARROLLODE VIVIENDAS Y COMERCIOS. ESTE CRECIMIENTO DESORDENADOHALLEVADOALAPROLIFERACIÓNDE ÁREASURBANASCONGESTIONADAS,DEFICIENCIASEN EL ACCESO A SERVICIOS BÁSICOS COMO AGUA POTABLE Y SANEAMIENTO, Y LA DEGRADACIÓN DEL ENTORNO AMBIENTAL DEBIDO A LA PÉRDIDA DE ÁREASVERDESYLACONTAMINACIÓN.ADEMÁS,SEHA OBSERVADO UN AUMENTO ALARMANTE DE LA DELINCUENCIA Y LA ACTIVIDAD DE TRAFICANTES DE TERRENOS, QUIENES SE POSICIONAN EN LOS DESCAMPADOS DE ARENA, USURPANDO ÁREAS QUE PODRÍANDESTINARSEPARACENTROSDERECREACIÓN O ESPACIOS PÚBLICOS. ESTO HA GENERADO UNA SITUACIÓNDONDELASPERSONASSEESTABLECENEN SECTORES QUE CARECEN INCLUSO DE LOS SERVICIOS BÁSICOS NECESARIOS, EXACERBANDO LOS PROBLEMAS DE MARGINALIDAD Y EXCLUSIÓN SOCIAL

L3

Av.SantaRosa

ACCESO A DISTRITOS

NORESTE:

Av. 225

Av. Los Arquitectos Av. Los Arquitectos

Av.225

TRANSPORTE PUBLICO:

Av. 200

Av. G

SUR:

Av. Pachcacutec Izquierda-Derecha

Av. 150

Av. Camino del Inca Izquierda-Derecha

Av. Santa Rosa

Av.G Av.150

Av.150 Av.Pachacutec

Av.CaminodelInca

Av.200

Av.150

Av.225

Av. Acceso A Av. Inca Garcilaso

Av.Constructores

Av. Inca Garcilaso

Av. Acceso A

Av. Constructores

Av.200

Av. Los Topógrafos

Estación de mototaxis

Estación de Microbus

Av.LosTopógrafos

CIUDAD PACHACÚTEC, UBICADA EN EL DISTRITO DE VENTANILLA, CALLAO, PERÚ, OFRECE A SUS RESIDENTES ACCESO A UNA VARIEDAD DE PLAYAS Y LUGARES DE INTERÉS TANTO AL NORTE COMO AL SUR. HACIA EL NORTE, LA PROXIMIDAD CON EL DISTRITO DE MI PERÚ FACILITA LA CONEXIÓN CON SUSDIVERSASÁREASYSERVICIOS.ADEMÁS,ENESTA DIRECCIÓN SE ENCUENTRAN PUNTOS DE INTERÉS COMO EL PARQUE ECOLÓGICO DE MI PERÚ, UN ESPACIONATURALIDEALPARAELESPARCIMIENTOY LA RECREACIÓN AL AIRE LIBRE. POR OTRO LADO, HACIAELSUR,CIUDADPACHACÚTECBRINDAACCESO DIRECTOALASHERMOSASPLAYASDELLITORALDEL OCÉANO PACÍFICO, COMO LA PLAYA COSTA AZUL Y LAPLAYAPACHACÚTEC.

Fuente: Elaboración del equipo acompañado del plano de la Municipalidad de Ventanilla

MICROBUS
CAMIONETARURAL
BUENESTADO
60%
20% AUTOS 20%
60% MALESTADO 40%
SISTEMA VIAL

ESQUEMA DE FLUJOS

Pistas de doble vía

Pistas de una vía

Puntos de aglomeración vehicular

ANALISIS DE FLUJOS

Puntos de aglomeración peatonal

Puntos de vías rapidas

VÍAS DE MAYOR FLUJOS

Av. 225- Av. Camino del Inca

VÍAS DE FLUJOS INTERMEDIO

Av. 150 - Av. Inca Garcilaso - Av.

Constructores - Av. Acceso A - Av. G- Av.

Los Arquitectos - Av. 200- Av Topógrafos

VÍAS DE FLUJOS BAJOS

Av. Santa Rosa - Av. Pachacutec

Av.SantaRosa

Av.150

Av.G

Av.225

Av.150

Av.CaminodelInca

Av.200

Av.Pachacutec

Av.225

Av. Los Arquitectos

Av. Acceso A

Av.Constructores

Av.150

Av. Inca Garcilaso

Av.200

Av.LosTopógrafos

L4

AV. 225 DOBLE SENTIDO DE PISTA

AV. 150 DOBLE SENTIDO DE PISTA

LINEAS DE TRANSPORTE

CR54, MINKA (CALLAO) - SANTA MARTA (SANTA ANITA)

4911, TIWINZA (CALLAO) - CERES (ATE)

CR02, SURCO - CALLAO

CR31, PLAZA GARIBALDI (CALLAO) - JOCKEY PLAZA (SURCO)

CR37, LAS GAVIOTAS (ATE) - SANTA ROSA (CALLAO)

CR38, JOCKEY PLAZA (SURCO) - PLAZA GARIBALDI (CALLAO)

CR39, SURCO - CALLAO

3507, SANTA MARÍA (SAN JUAN DE LURIGANCHO) - LA PAZ (SAN MIGUEL)

3906, CAMPOY (SAN JUAN DE LURIGANCHO) - COSTANERA (CALLAO)

AV.200 MILLAS DOBLE

SENTIDO DE PISTA

LEYENDA

Puntos de concentración

ZONAS DE AGLOMERACIÓN DE PERSONAS

Fuente: Elaboración del equipo acompañado del plano de la Municipalidad de Ventanilla

CENTRALIZACIÓN

POBLACIÓN

CON UNA POBLACIÓN ACTUAL QUE SUPERA LOS 150 MIL HABITANTES Y 143 ASENTAMIENTOS HUMANOS, PACHACÚTEC EMERGE COMO UN VIBRANTE DISTRITO CARACTERIZADOPORSUDENSIDADPOBLACIONALYSUDIVERSIDADCOMUNITARIA.

FUNDADOEL3DEFEBRERODELAÑO2000PARAACOGERASIETEMILFAMILIASEN SITUACIÓNDEEXTREMA POBREZA, ESTEENCLAVEURBANOHA EXPERIMENTADOUN NOTABLECRECIMIENTODEMOGRÁFICOYUNATRANSFORMACIÓNSOCIOECONÓMICA SIGNIFICATIVAALOLARGODELOSAÑOS.

EN LOS DISTRITOS MI PERÚ, VENTANILLA Y CALLAO MÁS DE LA CUARTA PARTE DE SU POBLACIÓNSONNIÑOSYNIÑASMENORESDE12AÑOS

EMPLEO E INGRESO

VENTANILLA Y CALLAO CONCENTRAN EL 83,7% DE POBLACIÓN OCUPADA, CON RESPECTO A LA PROVINCIA CONSTITUCIONAL DEL CALLAO. DE CADA 100 PERSONAS OCUPADAS 57 SE ENCUENTRAN EN ACTIVIDADES DE SERVICIOS, ESTE ANALISIS ABARCAALOSJOVENESDE14AÑOSENADELANTE.

POBLACION DE 15 A 29 AÑOS QUE NI ESTUDIA NI TRABAJA (NINI). VENTANILLA REPRESENTAEL20,2%DENINISCONRESPECTOALAPROVINCIACONSTITUCIONALDEL CALLAO.ELINGRESOPROMEDIOESDE1206SOLES.

ENLOSÚLTIMOS7AÑOSELPBIHACRECIDOAUNATASAPROMEDIOANUALDE6,4% LLEGANDO A ALCANZAR UN CRECIMIENTO ACUMULADO DE 54,8%. ASÍ MISMO LAS ACTIVIDADESDEMANUFACTURAYTRANSPORTECONCENTRANEL56,5%DELPBI.

L5 DEMOGRAFIA

EDUCACIÓN

ENTRE LOS AÑOS 2015 Y 2015, SE INCREMENTÓ LA ASISTENCIA A EDUCACIÓN PRIMARIA. DE CADA 100 NIÑOS DE 6 A 11 AÑOS DE EDAD 91 ASISTIERON A ESTE NIVEL EDUCATIVO, EN TANTO, EN EL AÑO 2014 FUE 88 DE CADA 100. TAMBIÉN AUMENTÓ LA ASISTENCIA DE LOS ADOLESCENTES DE 12 A 16 AÑOS DE EDAD 87 ASISTIERONAESTENIVEL,ENELAÑO2014FUE86 DECADA100.ELANALFABETISMO AFECTAAL2%DELAPOBLACIÓNDEENTRE15AÑOS.

EDUCACIÓNPRIMARIA

EDUCACIÓNSECUNDARIA

SALUD

DE CADA 100 HABITANTES 32 NO CUENTAN CON SEGURO DE SALUD, VENTANILLA REPRESENTAEL34,1%.

CONRESPECTOALASPERSONASCONALGUNADISCAPACIDADREPRESNTAEL6,2%DE LAPOBLACIÓNSIENDOENSUMAYORIAPERSONASDE60AÑOSAMÁS.

POBREZA

ANIVELDEDISTRITOSYALINTERIORDEELLOS,LAPOBREZAAFECTAENDIFRENTES MAGNITUDES. LOS DISTRITOS DE VENTANILLA Y CALLAO SE ENCUENTRAN EN EL GRUPO3,LAPOBREZAAFECTAAMÁSDEL38%DESUPOBLACIÓN.

SEGURIDAD

ENELAÑO2015,DECADA100PERSONASDE15YMÁSAÑOSDEEDAD,32FUERON VICTIMAS DE UN HECHO DELICTIVO. EL HECHO DELICTIVO MAS FRECUENTE ES EL ROBO O INTENTO DE ROBO DE DINERO, CARTERA O CELULAR. ESTO GENERO UNA SENSACIÓN DE INSEGURIDAD OCASONANDO QUE DE CADA 100 PERSONAS 91 SE SIENTENINSEGUROS.

Fuente: Instituto Nacional de Estadística e Informática (INEI)

ANALISIS DEMOGRAFICO

ANEXO N°1

Se aprecian las fachadas de las viviendas, que en su mayoríaestancompuestasporunsolonivel.

ANEXO N°2

Se aprecian las fachadas de las viviendas, que se componendeunoadosniveles.

ANEXO N°3

Se aprecian las fachadas de las viviendas, que se componendeunoadosniveles.

ANEXO N°4

Se aprecian las fachadas de las viviendas, que en su mayoríaestancompuestasporunsolonivel.

ANEXO N°4

ANEXO N°2 ANEXO N°3 ANEXO N°1
ZONIFICACIÓN
Municipalidad del Callao
Fuente:

I.EFEYALEGRÍA76

COLEGIOS HOSPITALES MERCADOS PARQUES
L7 ZONAS DE INTERES LEYENDA
N°1
C.S.CIUDADPACHACUTEC
ANEXO
MERCADOSANTAISABEL I.E.5150 I.E.5117 MERCADOOASIS

ANEXO N°2

ANEXO N°3

PARQUE BICENTENARIO PARQUE DEL AMOR PARQUE SAN PATRICIO

ANEXO N°1

PARQUE COVIPOL PARQUE SECTOR 1 PARQUE PROA CHALACA

ANEXO N°2

PARQUE LOS NARANJOS PARQUE CALIXTO PARQUE MERCADO

ANEXO N°3

ÁREAS VERDES
Fuente: Elaboracion propia.

Fuente: Andrew Marsh

Presenta una dirección del viento del Suroeste al Noreste, con una velocidaddelvientode19km/h.

Fuente: Meteoblue

12:00 pm. L8 ANÁLISIS BIOCLIMÁTICO SOLSTICIO DE VERANO
8:00 am. 6:00 pm. DICIEMBRE
12:00 pm. SOLSTICIO DE VERANO 8:00 am. 6:00 pm.
ANÁLISIS SOLAR
-MARZO
JUNIO - SEPTIEMBRE
ROSA DE VIENTOS

Durante el verano se puede alcanzar temperaturasdehasta24°C,yeninvierno sepuedenobtenertemperaturasmínimas durantelasnochesdehasta12°C

Durante el año presenta días parcialmente nublados, Con respecto a las precipitaciones, apenas representa un 0.1% de días por mes. Deduciendoasíquepresentaunclimaseco.

ESTRATEGIAS BIOCLIMÁTICAS ESTRATEGIAS

Materiales resistentes a la corrosión: Dado que estarás cerca del mar, se debe utilizar materiales resistentes a la corrosión, como acero inoxidable o aluminio anodizado, para evitar daños por la exposición al ambiente marino.

Ventilación cruzada: Mediante la colocación de ventanas en lados opuestos, esto nos permitirá maximizar la entrada de brisa marinaymantenerelambientefresco,

Protección Solar: Utilizar elementos de sombreado como aleros, pérgolas y vegetación estratégicamente ubicada para proteger las áreas expuestas al sol directo, especialmenteenlasfachadasorientadasal sur y oeste, evitando así el sobrecalentamiento.

Diseño estructural resistente a vientos: Asegúratedequelaestructuradelavivienda estédiseñadapararesistirlosvientosfuertes ylasposiblesráfagascosterasasociadascon laubicacióncercadelmar.

Fuente: Andrew Marsh TEMPERATURA Y PRECIPITACIÓN
CONSTRUCTIVAS

ARTÍCULO1.-DEFINICIÓN

Constituyen edificaciones para fines de vivienda aquellas que tienen como uso principal o exclusivo la residencia de las familias, satisfaciendo sus necesidades habitacionalesyfuncionalesdemaneraadecuada.

ARTÍCULO2.-FUNCIONESMÍNIMAS

Toda vivienda deberá contar cuando menos, con espacios para las funciones de aseo personal, descanso, alimentaciónyrecreación.

ARTÍCULO

3.- TIPOS

- Las viviendas pueden edificarse de los siguientes tipos:

- Unifamiliar, cuando se trate de una vivienda sobre un lote.

- Edificio multifamiliar, cuando se trate de dos o mas viviendas en una sola edificación y donde el terreno es de propiedad común.

- Conjunto Residencial, cuando se trate de dos o mas viviendas en varias edificaciones independientes y donde el terreno es de propiedad común.

CAPITULO II

ARTÍCULO6.-

Las viviendas, deberán cumplir con lo establecido en la Norma A-010 Condiciones Generales de Diseño, en lo que le seaaplicable.

ARTÍCULO7.-FUNCIONESMÍNIMAS

- Quinta, cuando se trate de dos o más viviendas sobre lotes propios que comparten un acceso común.

ARTÍCULO4.-UBICACIÓN

Las viviendas deberán estar ubicadas en las zonas residenciales establecidas en el plano de Zonificación, en zonas urbanas con zonificación compatible o en zonas rurales

ARTÍCULO5.-DENSIDAD

Para el cálculo de la densidad habitacional, el número de habitantes de una vivienda, está en función del número dedormitorios,segúnlosiguiente:

Las dimensiones de los ambientes que constituyen la vivienda serán aquellas que permitan la circulación y el amoblamiento requerido para la función propuesta, acorde conelnúmerodehabitantesdelavivienda.Lasdimensiones de los muebles se sustentan en las características antropométricasdelaspersonasquelahabitarán.

ARTÍCULO8.-AREATECHADAMINIMA

El área techada mínima de una vivienda sin capacidad de ampliación(departamentosenedificiosmultifamiliaresoen conjuntos residenciales sujetos al régimen de propiedad horizontal) será de 40 m2. El área techada mínima de una vivienda unifamiliar en su forma inicial, con posibilidad de expansión será de 25 m2. Estas áreas mínimas no son de aplicación para las viviendas edificadas dentro de los programas de promoción del acceso a la propiedad privada de la vivienda. De acuerdo a lo que establezca el Plan Urbano, en ciertas zonas se podrá proponer un área mínima de hasta 16 m2. para viviendas unipersonales, siempre que sepuedagarantizarquesemantendráesteuso.

CAPITULO I NORMA A.020
L9 NORMA A.020

ARTÍCULO9.-AMBIENTEDEASEO,COCINAYLAVANDERIA

Las viviendas deberán estar ubicadas en las zonas residenciales establecidas en el plano de Zonificación, en zonasurbanasconzonificacióncompatibleoenzonasrurales

ARTÍCULO10.- CORREDORESYESCALERAS

Las escaleras y corredores al interior de las viviendas, que se desarrollen entre muros deberán tener un ancho libre mínimo de 0.90 m. Las escaleras que se desarrollen en un tramo con un lado abierto o en dos tramos sin muro intermedio,podrántenerunancholibremínimode0.80m.

ARTÍCULO11.- NECESIDADDEASCENSOR

En las zonas que el Plan Urbano lo permita, se podrá construirse edificaciones de seis niveles sin ascensores, siempre y cuando el quinto nivel corresponda a un departamento tipo dúplex, y el edificio no cuente con semisótano.

ARTÍCULO12.- ANCHODEACCESO

El acceso a las viviendas unifamiliares deberá tener un ancho mínimo de 0.90 m. Los accesos a las edificaciones multifamiliares y a aquellas que forman parte de conjuntos residenciales, deberán tener un ancho mínimo de 1.00 m y cumplir con lo establecido en la Norma A-120 Accesibilidad ParaPersonasConDiscapacidad.

ARTÍCULO13.-

En el caso de viviendas unifamiliares, podrá plantearse su ejecuciónporetapas,siemprequelaunidadbásicao núcleo básico cumpla con el área establecida en el artículo 8 de la presente norma y se proporcione al adquiriente los planos de la vivienda completa, aprobados por la municipalidadcorrespondiente

ARTÍCULO14.-

Las viviendas pueden edificarse simultáneamente con la habilitación urbana. En caso de viviendas que se puedan ampliar, el diseño arquitectónico y estructural, así como el sistema constructivo por emplear, estarán concebidos de tal manera que sus ampliaciones puedan ser encargadas directamenteporelpropietario.

ARTÍCULO15.-

El número de estacionamientos exigibles será establecido en el Plan Urbano de acuerdo con las condiciones socioeconómicas de cada localidad. En caso de no existir este parámetro, se considerará como mínimo un estacionamiento por cada tres unidadesdeviviendayenlashabilitacionesurbanasTipo5para vivienda unifamiliar no será exigible estacionamiento en el interiordeloslotes

CAPITULO III

ARTÍCULO16.- CONDICIONES

La vivienda debe permitir el desarrollo de las actividades humanas en condiciones de higiene y salud para sus ocupantes, creando espacios seguros para la familia que la habita, proponiendo una solución acorde con el medio ambiente. Los ambientes deberán disponerse de manera tal que garanticen su uso más eficiente, empleando materiales que demanden un bajo grado de mantenimiento. Los constructores de viviendas deberán informar a los propietarios sobre los elementos que conforman su vivienda, sus necesidades de mantenimiento y el funcionamiento de las instalaciones eléctricas, sanitarias, de comunicaciones,degasymecánicassifueraelcaso.

CAPITULO I NORMA A.120

ARTÍCULO1.-CONDICIONESGENERALES

La presente Norma establece las condiciones y especificaciones técnicas de diseño para la elaboración de proyectos y ejecución de obras de edificación, y para la adecuación de las existentes donde sea posible, con el fin dehacerlasaccesiblesalaspersonascondiscapacidady/o adultasmayores.

ARTÍCULO2.-

La norma aplica a todas las edificaciones que ofrecen servicios de atención al público, ya sean públicas o privadas.

a)Seaplicaalasedificacionesdeserviciospúblicos.

b) También se aplica a las áreas comunes de conjuntos residenciales, quintas y vestíbulos de edificios multifamiliaresquerequieranascensor.

ARTÍCULO3.-

Se considera persona con discapacidad: Alguien que, temporal o permanentemente, tiene una o más deficiencias físicas, mentales o sensoriales que afectan su capacidad para realizar actividades dentro de lo que se considera normal.

Persona Adulto Mayor: Según la Ley N° 28803, cualquier individuoquetenga60añosomás.

Accesibilidad: La capacidad de la infraestructura urbana y edificios para permitir que las personas se desplacen de maneraautónomaysegura.

Ruta accesible: Un camino sin barreras arquitectónicas que conectaáreaspúblicasaccesiblesdentrodeunedificio.

Barreras arquitectónicas: Obstáculos físicos que limitan o impidenelmovimientodepersonascondiscapacidad.

Señalización: Sistema de avisos que identifica áreas accesiblesdentrodeunedificioparaorientaralosusuarios.

Señales de acceso: Símbolos convencionales que indican la accesibilidaddeedificiosyambientes.

Servicios de atención al público: Actividades donde se ofrece un servicio que cualquier persona puede solicitar libremente, como servicios de salud, educativos, recreativos, judiciales, gubernamentales,deseguridad,financierosydetransporte.

ARTÍCULO4.-

Se deberán crear ambientes y rutas accesibles que permitan el desplazamiento y la atención de las personas con discapacidad, en las mismas condiciones que el público en general. Las disposiciones de esta Norma se aplican para dichosambientesyrutasaccesibles.

ARTÍCULO5.-

Enlasáreasdeaccesoalasedificacionesdeberácumplirselo siguiente:

a) Los pisos de acceso deben ser fijos, uniformes y antideslizantes. b) Los escalones deben tener dimensiones uniformes. c) El radio de los cantos de los escalones no debe excederlos13mm.d)Loscambiosdeniveldebensertratados según su altura, con pendientes adecuadas y rampas si superan los 13mm. e) Las rejillas de ventilación deben tener espacios que impidan el paso de una esfera de 13mm y orientadas perpendicularmente al flujo de circulación. f) Las alfombras deben estar fijas, confinadas y con bordes asegurados para evitar tropiezos. g) Las manijas de puertas y vidrios deben ser accesibles y la altura de las cerraduras no debeexcederlos1.20mdesdeelsuelo.

ARTÍCULO6.-

En los ingresos y circulaciones de uso público deberá cumplirselosiguiente:

a) El acceso a la edificación debe ser desde la acera correspondiente,yencasodediferenciadenivel,debehaber tantounaescaleracomounarampa.

b) El ingreso principal debe ser accesible para el público en general.Enedificacionesexistentesadaptadasaestanorma, almenosunodesusingresosdebeseraccesible.

c)Lospasadizosconanchomenora1.50mdebencontarcon espaciosdegirode1.50mx1.50mcada25m.Enpasadizos

L10 NORMA A.120

ARTÍCULO 7.-

Todas las edificaciones de uso público o privadas de uso público, deberán ser accesibles en todos sus niveles para personas con discapacidad.

ARTÍCULO 8.-

Las dimensiones y características de puertas y mamparas deberán cumplir lo siguiente:

a) El ancho mínimo de las puertas será de 1.20m para las principales y de 90cm para las interiores. En las puertas de dos hojas, una de ellas tendrá un ancho mínimo de 90cm.

b) De utilizarse puertas giratorias o similares, deberá preverse otra que permita el acceso de las personas en sillas de ruedas.

c) El espacio libre mínimo entre dos puertas batientes consecutivas abiertas será de 1.20m.

ARTÍCULO 9.-

Las condiciones de diseño de rampas son las siguientes: a) El ancho libre mínimo de una rampa será de 90cm. entre los muros que la limitan y deberá mantener los siguientes rangos de pendientes máximas:

Diferencias de nivel de hasta 0.25 m. 12% de pendiente

Diferencias de nivel de 0.26 hasta 0.75 m. 10% de pendiente

Diferencias de nivel de 0.76 hasta 1.20 m. 8% de pendiente

Diferencias de nivel de 1.21 hasta 1.80 m. 6% de pendiente

Diferencias de nivel de 1.81 hasta 2.00 m. 4% de pendiente

Diferencias de nivel mayores 2% de pendiente Las diferencias de nivel podrán sortearse empleando medios mecánicos

b) Los descansos entre tramos de rampa consecutivos, y los espacios horizontales de llegada, tendrán una longitud mínima de 1.20m medida sobre el eje de la rampa.

c) En el caso de tramos paralelos, el descanso abarcará ambos tramos más el ojo o muro intermedio, y su profundidad mínima será de 1.20m.

d) Cuando dos ambientes de uso público adyacentes y funcionalmente relacionados tengan distintos niveles, deberá tener rampas para superar los desniveles y superar el fácil acceso a las personas con discapacidad.

ARTÍCULO 10.-

a) Los pasamanos de las rampas y escaleras deben estar a una altura de 80 cm, medida verticalmente desde la rampa o el borde de los pasos.

b) Los pasamanos deben tener una sección uniforme que permita una sujeción segura, manteniendo una separación mínima de 3.5 cm con las paredes.

c) Los pasamanos deben ser continuos, incluyendo los descansos intermedios, y prolongarse horizontalmente 45 cm sobre los planos horizontales de arranque y entrega, así como sobre los descansos.

d) Los bordes de un piso transitable hacia un plano inferior con una diferencia de nivel mayor de 30 cm deben tener parapetos o barandas de seguridad con una altura mínima de 80 cm. Las barandas deben incluir un elemento horizontal de protección a 15 cm sobre el nivel del piso, o un sardinel de la misma dimensión.

ARTÍCULO 11.- Los ascensores deberán cumplir con los siguientes requisitos

a) En edificios residenciales, la cabina del ascensor debe tener al menos 1.00 m de ancho y 1.20 m de profundidad.

b) En edificaciones de uso público, la cabina debe tener al menos 1.20 m de ancho y 1.40 m de profundidad, y al menos una cabina debe medir 1.50 m de ancho y 1.40 m de profundidad.

c) Los pasamanos deben estar a una altura de 80 cm, tener una sección uniforme y estar separados por al menos 5 cm de la cara interior de la cabina.

d) Las botoneras deben ubicarse entre 0.90 m y 1.35 m de altura y todas las indicaciones deben estar en Braille.

e) Las puertas de la cabina y del piso deben ser automáticas, tener un ancho mínimo de 0.90 m y estar equipadas con sensores de paso. Debe haber espacio delante de las puertas para permitir el giro de una silla de ruedas.

f) Se debe colocar el número de piso en Braille en una de las jambas de la puerta.

g) Señales audibles deben indicar cuándo el ascensor está en el piso de llamada.

ARTÍCULO 12.- - El mobiliario de las zonas de atención deberá cumplir con los siguientes requisitos:

a) Se habilitará por lo menos una de las ventanillas de atención al público, mostradores o cajas registradoras con un ancho de 80 cm. y una altura máxima de 80cm., así mismo deberá tener un espacio libre de obstáculos, con una altura mínima de 75 cm.

b) Los asientos para espera tendrán una altura no mayor de 45cm y una profundidad no menor a 50 cm.

c) Los interruptores y timbres de llamada, deberán estar a una altura no mayor a 1.35 m.

d) Se deberán incorporar señales visuales luminosas al sistema de alarma de la edificación.

e) El 3% del número total de elementos fijos de almacenaje de uso público, tales como casilleros, gabinetes, armarios, etc. o por lo menos, uno de cada tipo, debe ser accesible.

ARTÍCULO 14.-

Los objetos que deba alcanzar frontalmente una persona en silla de ruedas, estarán a una altura no menor de 40 cm. ni mayor de 1.20 m. Los objetos que deba alcanzar lateralmente una persona en silla de ruedas, estarán a una altura no menor de 25 cm. ni mayor de 1.35 cm.

ARTÍCULO 15.-

En las edificaciones cuyo número de ocupantes demande servicios higiénicos por lo menos un inodoro, un lavatorio y un urinario deberán cumplir con los requisitos para personas con discapacidad, el mismo que deberá cumplir con los siguientes requisitos:

a) Lavatorios:

1. Deben soportar una carga vertical de 100 kg y estar instalados adosados a la pared o empotrados en un tablero.

2. Se debe mantener un distanciamiento de 90 cm entre ejes entre los lavatorios.

3. Es necesario un espacio libre de 75 cm x 1.20 m al frente del lavatorio para permitir la aproximación de una persona en silla de ruedas.

4. La altura del borde externo superior del lavatorio o de la superficie superior del tablero empotrado debe ser de 85 cm del suelo, con un espacio inferior libre de obstáculos.

5. La grifería debe ser de comando electrónico o mecánico con mecanismo de cierre automático de al menos 10 segundos, o en su defecto, de aleta.

b) Inodoros:

1. El cubículo para el inodoro debe tener dimensiones mínimas de 1.50 m por 2 m, con una puerta de ancho no menor de 90 cm y barras de apoyo tubulares instaladas correctamente.

2. La tapa del asiento del inodoro debe estar entre 45 y 50 cm sobre el nivel del piso.

3. La papelera debe estar ubicada para facilitar su uso y no deben utilizarse dispensadores que controlen el suministro.

c) Urinarios:

1.Deben ser del tipo pesebre o colgados de la pared con un borde proyectado hacia adelante de máximo 40 cm de altura sobre el piso.

2. Se requiere un espacio libre de 75 cm por 1.20 m al frente del urinario para permitir la aproximación de una persona en silla de ruedas.

3. Se deben instalar barras de apoyo tubulares verticales en ambos lados del urinario, fijadas en la pared posterior.

d) Duchas:

1.Las duchas deben tener dimensiones mínimas de 90 cm x 90 cm y estar encajonadas entre tres paredes.

2. Debe haber un espacio libre adyacente de al menos 1.50 m por 1.50 m para permitir la aproximación de una persona en silla de ruedas.

3. Deben tener un asiento rebatible o removible de al menos 45 cm de profundidad por 50 cm de ancho, ubicado en la pared opuesta a la grifería.

4. Se debe instalar una ducha-teléfono con una manguera de al menos 1.50 m de largo, con altura ajustable entre 1.20 m y 1.80 m.

5. Los pisos de las duchas deben ser antideslizantes.

e) Accesorios:

1.Los toalleros, jaboneras, papeleras y secadores de mano deben colocarse a una altura entre 50 cm y 1 m.

2. Las barras de apoyo deben ser antideslizantes, tener un diámetro exterior entre 3 cm y 4 cm, y estar separadas de la pared por una distancia entre 3.5 cm y 4 cm.

3. Se deben colocar ganchos de 12 cm de longitud para colgar muletas a una altura de 1.60 m en diversos lugares.

4. Los espejos se instalarán en la parte superior de los lavatorios a una altura no mayor de 1 m del piso y con una inclinación de 10º.

L11 NORMA A.120

Reglamento de Vivienda Social

DISPOSICIONES GENERALES

ARTÍCULO1.-CONDICIONESGENERALES

La presente Norma establece las condiciones y especificaciones técnicas de diseño para la elaboración de proyectos y ejecución de obras de edificación, y para la adecuacióndelasexistentesdondeseaposible,conelfinde hacerlas accesibles a las personas con discapacidad y/o adultasmayores.

Artículo 2.- Finalidad El presente Reglamento tiene por finalidad regular la intervención en la generación de Viviendas de Interés Social a través de instrumentos de gestión y planificación urbana que coadyuven al acceso a la viviendasocialparareducireldéficithabitacionalcualitativo ycuantitativo

Artículo 5.- Vivienda de Interés Social - VIS 5.1. La Vivienda de Interés Social es toda vivienda promovida por el Estado, cuya finalidad se encuentra dirigida a reducir la brecha del déficit habitacional cualitativo y cuantitativo, cuyos valores máximos son aprobados de forma anual por Decreto Supremo. 5.2. La Vivienda de Interés Social de Tipo Prioritaria está dirigida a favor de las personas ubicadas en los sectores I, II y III de la población agrupada según quintiles de ingreso y en especial a favor de aquellas que se encuentran asentadas en zonas de riesgo no mitigable o en situacióndevulnerabilidadsocial.

Artículo 18.- Componentes de diseño de la Habilitación Urbana 18.1. Los terrenos edificables comprenden los lotes de libre disposición del propietario y los lotes que deben ser aportados reglamentariamente en terreno habilitado o redimidosendinero,segúncorresponda.18.2.Lasecciónvial mínima es de 7.20 m, con módulos de calzada y siempre que nocumplaconfuncióncolectora.

Artículo21.-CondicionesdeDiseñoyDimensiones:

a) Las dimensiones y áreas de los ambientes de las unidades de vivienda deben ser adecuadas para cumplir con las funciones básicas de estar, comer, dormir, cocinar, asearse y lavar, considerando el diseño, mobiliario y equipamiento propuesto.

b) Se permite la integración de los ambientes de sala, comedorycocinaenlasunidadesdevivienda.

c) Los baños pueden estar conectados a cualquier ambiente delaviviendaparaprestarservicio.

d) En proyectos de densificación donde una escalera común sirva a no más de cuatro viviendas, el ancho mínimo de la escaleradebeserde1.00m.

e) Se permite la construcción de edificaciones de más de 5 pisossinascensores,siempreycuandolaalturanormativalo permita y a partir del quinto piso corresponda a una sola unidadinmobiliariaconingresomáximoenelquintopiso. f)Siunaedificacióncuentaconunacirculacióncomúnamás de 12.00 m de altura sobre el nivel de ingreso, se requiere el uso de ascensores, excluyendo los sótanos y semisótanos de estaconsideración.

g) En las azoteas de edificaciones multifamiliares, se permite techado hasta el 50% del área total restante para uso privado o servicios comunes, con un retranque mínimo de 1.50 m y asignación de al menos el 30% del área libre resultante como área verde. El acceso a la azotea se puede realizar mediante escaleras comunes o ascensores para servicios comunes, y a través de la unidad de vivienda del últimonivelparausoprivado.

REGLAMENTO DE VIVIENDA SOCIAL
SECCIÓN IV
LEY
31313, LEY
DESARROLLO URBANO
REGLAMENTO DEL ARTÍCULO 76 Y DEL CAPÍTULO I DEL TÍTULO III DE LA
DE LA
DE
SOSTENIBLE

SELECCIÓN

Analizaremos un proyecto del Concurso Nacional de Vivienda social Construye para Crecer, específicamente se hizo la selección del catalogo de proyectos del año 2018, esto nos servirá como referencia para realizar nuestro diseño de vivienda en la Ciudad de PachacútecVentanilla.

L12
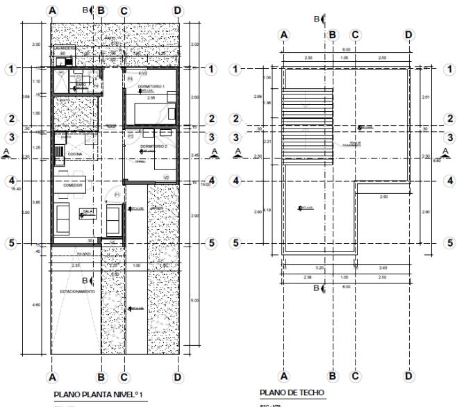
PROYECTO
DE UN PROYECTO
0.65m 0.40m 0.50m 2.55m ANALISIS DE AMBIENTE
1.35m 0.60m 0.65m 2.60m DORMITORIO 1 2.60mx2.55m DORMITORIO 2 2.45mx2.55m 0.65m 0.80m 1.00m 2.55m 2.45m Circulación Circulación Circulación 1.10m 2.35m Circulación SALA-COMEDOR 2.20mx2.99m 2.99m 1.39m 1.60m 2.20m 1.00m 3.20m Circulación 2.0m 2.35 1.0m 1.0m PATIO-LAVANDERIA 2.00mx2.35m Circulación COCINA 2.20mx1.40m 2.20m 1.40m 0.60m 0.80m 0.90m 0.70m 0.60m 0.80m 0.65m 0.90m
DIMENSIONAR AMBIENTES

Turn static files into dynamic content formats.

Create a flipbook