Ulf Michael Frimmer Arkitekt SAR/MSA Dipl-Ing CV & Portfolio

Page 1

ansökningshandlingar

curriculum vitae

Origo Arkitekter 2020-nu

Kv. Hulte Västerås bygglov, systemskede, förfrågningsunderlag Konstpaviljong i Södertälje åt konstnären Afaina de Jong systemskede, bygghandling Vinterträdgård Lännersta high end glasdesign och bygghandling mfl.

A-direkt 2015-2020

åt CF Møller detaljer och bygghandling Kamouflage Equator detaljer och bygghandling Stockholmsverken Marge Programmskede Vikskolan Monki storefronts facade details in Moscow, Antwerpen, Stratford Carlstedts arkitekter Mälarsjukhuset Eskilstuna A-arkitekter Ljusterö Skärgårdsby och etapp 2,3 och 4,Vallastaden Illustrationen Larsson arkitekter äldreboende, stockholmshusen

Reflex Arkitekter 2012-2014

Nationalarenan 8 bygglov, detaljplanprocess, programmskede, systemskede

Farao 14-17 detaljplanprocess, programmskede

Tengbom 2010-2012

Project One bygglov, detaljplanprocess, programmskede, systemskede Pembroke Real Estate / Fidelity kontorsbyggnad med 38.000 m2 BTA bakom NK mitt i Stockholm City

egen arkitektverksamhet

2007-2009

Villa Gunnel , fritidshus på ön Yxlan i Stockholms skärgård 1 - 8 privat beställare tävling arkeologiska museicentrumet i Mainz 1 - 3 förbundsrepubliken Rheinland Pfalz

STP Architekten 2008

Mercedes Benz Bank , 21-vånings höghus i Berlin Mitte 4 - 5

Design och projektering av höghuset med affärslokaler, kontor, läkarhus, restauranger och hotell BauArt planungsgesellschaft mbH

Russia Tower

Moskva - ett 612 m högt höghus, budget på 2 Milljarder US $, BTA 520.000 m2, 1 - 5 fram till 2008 det högsta planerade tornet i Europa, planerad färdigställning 2011. Byggnaden innehåller kontor, hotell, shopping och andra fritidsaktiviteter. Designskede, systemskede, förfrågningsunderlag och projektering. STT-Group.

“Neues Direktionsgebäude der AachenMünchner Versicherungen” tävling 1 - 3 AachenMünchner försäkringar i Aachen. Andra pris 600.000 kr i vinstpengar Abu Dhabi Breakwater Development Competition 1 - 3

National Investment Corporatio - Förenade Arabiska Emiraterna Campus Jungfernsee, forskningsinriktning i Potsdam 1 - 3 Sportdalen Velbert, Nordrhein- Westfalen, konceptstudie 1 - 3 i kooperation med Atelier Ratz GmbH Hasso - Plattner - Institut, Potsdam 1 - 3

egen arkitektverksamhet

2004

Bibliotekstävling Wilhelm und Jacob Grimmzentrum i Berlin 1 - 3 Humbolduniversität Berlin tävling bibliotekscentrum Bozen i Südtirol/ Italien Autonome Provinz Bozen, Südtirol 1 - 3 World Trade Center Site Memorial Competition - NYC 1 - 3 Lower Manhattan Development Corporation tävling Stubengasse Münster byggnad med blandning av kontor, affärer, bostäder och parkeringsgarage 1 - 3 staden Münster

Atelier Heinz Tesar

Bode Museet på Museumsinsel i Berlin - sedan 1999 UNESCO världskulturarv 1 - 5 Ombyggnation, nybyggnad av vissa delar, konstnärlig ledning, design och projektering Nybbyggnation av sarkofagen första rummet av “Archöologische Promeade” och nya utrymningstrapphus.

BBR-Bundesamt für Bauwesen und Raumentwicklung

fotnot: översättning tyska HOAI skeden: 1. grundläggande förber. design 2. förberedande planering 3. designskede 4. bygglov 5. projektering 6. förberedning FU 7. förfrågningsunderlag 8. byggledning 9. relationshandlingar

2002 - 2003

skeden enligt tyska HOAI (1 - 9)

Foster and Partners 2006 - 2007 Mark Braun Architekten Mark Braun ┼ 2008 2005 - 2006
yrkeslivserfarenhet
yrkeslivserfarenhet

HENN Architekten 2001 - 2002

Waiterstation, Ritz Carlton i Wolfsburg 2 - 5 projektledning, design, projeketering och samordning Volkswagen / Ferdinand Piëch

“Hochtechnologiepark Jena” . tävling - tredje pris 1 - 3

LEG, förbundsrepubliken Thüringen, skr 150.000,- i prispengar Showroom Skoda 1 - 3 Skoda

krehl + girke architekten 1999 - 2000

Kapazitätserweiterung NCV 1 i Ludwigsfelde totalplanering 4 - 7 projektering och projektledning åt Hochtief som totalentreprenör Thyssenkrupp

lyxlägenheter i Berlin- Mitte - design och visualisation 1 - 3 Voigt Weber Ingenieure nytt huvudkontor för 3-D Studio - design och visualisation 1 - 3 3-D-Studio

Becker Gewers Kühn & Kühn 1999

Kongresscentrum Dresden - inbjuden tävling 1 - 3 staden Dresden

Hotell Mövenpick , Messedamm / Kaiserdamm i Berlin höghusdesign 1 - 3 Mövenpick Resorts & Facilities

Quartier 115 Friedrichstraße - design och projektering utav ett bostadshus 1 - 4 Lufthansas nya huvudkontor AG Frankfurt am Main.- inbjuden tävling 1 - 3 Deutsche Lufthansa AG

Archimation® - arkitekturvisualisering

1998 - 1999

Gorden Richter arkitekt 1996

Arkitektkontor Stefan Häsing

vitae

it

universitetsutbildning

arkitektur examen med tyska yrkestiteln Diplom-Ingenieur 1998 examensarbete med temat "ett institut för konst och vetenskap" hos Prof. Kirsten Schemel och Prof. Dr. Karl Spies betyg: "sehr gut" motsvarar ett svenskt “A”

arkitekturlinje vid Technische Fachhochschule Berlin 1996 - 1998 “Vordiplom” - examen vid Hochschule für Technik Stuttgart 1994 arkitekturlinje vid Hochschule für Technik Stuttgart 1993 - 1996

skolutbildning

mellan- och högstadiet på Kepler Gymnasium i Tübingen/ Tyskland studentexamen med naturvetenskaplig inriktning

1980 - 1989 lågstadiet Kvinnebyskolan/ Linköping 1975 - 1980 extrakvalifikationer

inskriven i Berlins Architektenkammer sedan 2004 medlem i Sveriges Arkitekter med titeln SAR/MSA 2010 medlem i Stockholms byggnadsförening kallad av Tengboms tidigare VD Åke Bejne 2010

språk

svenska och tyska, båda som modersmål engelska flytande. 4 års arbetserfarenhet med kundkontakt i engelskspråkiga projekt spanska goda och franska grundläggande kunskaper

Autodesk Revit - sedan 2012

Archicad - sedan 2011

Autodesk AutoCAD - sedan 1994 i 3D och 2D

Microstation - sedan 2001, 3D och 2D

VectorWorks - sedan 1998, 2D

3D-modeling sedan 1998 med softimage, med Maxwell Render Adobe Creative Suite

1992 - 1993

Microsoft Office inkusive MS Project och Powerpoint modellbygge

CAD-CAM fräsning, 3D modeling även i sena skeden för att dubbelkolla svåra geometrier. körkort

bil mm., kustskepparexamen

skeden enligt tyska HOAI

fotnot: översättning tyska HOAI skeden: 1. grundläggande förber. design 2. förberedande planering 3. designplanering 4. bygglov 5. projektering 6. förberedning förfrågning 7. förfrågning 8. byggledning 9. relationshandlingar

curriculum
yrkeslivserfarenhet
utbildning
(1 - 9)

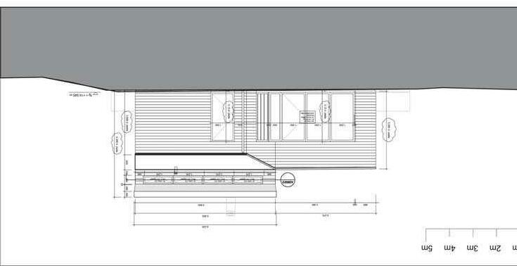
Västerås

Vy från Kopparbergsvägen mot entrén Sitplan Fasad mot söder Vy från luften Entréplan
Kv. Hulte
2020 - 2021

Detalj glasfasad med utv. solskyddsgardin

Detaljsnitt inglasning balkonger

Kv. Hulte är ett bostadsprojekt som inom kort kommer byggas bara något kvarter bort från Västerås stadskärna. I entréplan befinner sig lokaler som både riktar sig mot den offentliga publiken och byggnadens boenden för att leva upp området runtom.. där befinner sig allt från möjligheter till ett café/bistro över gemensamma tvättstugor festlokal till en upcykling verkstad.

Byggnaden är placerad nära Kopparbergsvägen men öppnar upp sig och leder in besökaren till en gemensam entrélobby och genomgång till den bakre gårdsdelen av tomten. Volymerna består av en högre höghusdel som rymmer 60 2´or till 4´or och en mindre volym som innehåller den s.k. Co-Living delen där sex boende per plan delar ett gemensamt kök och vardagsrum.

I materialvalet kontrasterar byggnaden medvetet med sinusplåtar i metall på volymernas kortsidor och thermowood i en varm kulör på långsidorna den omgivna bebyggelsen som är hållen i tegel och puts. På vertikalytorna på av fläktrummen på taket befinner befinner sig solceller. En utmaning i projektet var att trots den begränsade budgeten att dämpa ljudnivån från den förbipasserande trafiken på kopparbergsvägen tillräckligt trots den valda lättkonstruktionen i ytterväggarna. Ett element i detta är de sinusformade plåtarna i fasaden.

Co-living Förvaringsvägg
Kv. Hulte Västerås Origo Arkitekter

Konstpaviljongen i Södertälje in collaboration with AFARAI

LjussimulationSitplan

Elevationer

Mönster betonggolv

Explosionsbild

Illustration
2020

Another Vernacular Origo Arkitekter

Vertikalsnitt genom vägg

Horisontalsnitt genom valv

Horisontalsnitt genom skruvfog

2018 började konstnären Afaina de Jong från Amsterdam jobba med projektet som även heter Another Vernacular som översatt betyder en annan „orten slang“. Konstnären Afaina de Jong arbetar tvärvetenskapligt med konst, forskning och design.

I hennes samarbete med Grafikens hus kunde redan från början kvinnor med migrationsbakgrund bli integrerade i projektet för att bättre kunna förstå staden Södertälje och miljön som männsikan rör sig i på djupet.

Till en del besvarades frågorna i hennes paviljong med ett grafiskt mönster dels i pastellfärger men även med hårda svart-vit kontraster.

När vi tog över uppgiften att ta projketet vidare i en bygghandling var det inte klart ännu om i vilket material paviljongen skulle utföras.

Projketets syfte är att binda in besökaren som en dela av upplevelsen i projkektet och via en blue tooth uppkoppling interaktivt kunna välja sin egen musik och påverka ljuset i paviljongen. Es stor del av projketeringen handlade om samordningen av just ljud och ljusteknik från evenemangsteknik.

Grafikens hus AFARAI

Vinterträdgård Lännersta

Elevation mot söderPlan

Sektion A-A

Elevation mot öster

2021

Vinterträdgården Lännersta är ett inglasat uterum som jag fick möjlighet att rita till en lyxvilla i området Saltsjö-Boo. Villan ligger i ett hisnande läge högt uppe på en klippa med utsikt över Lännersta sundet. Olyckligtvis har huset blivit utsatt för en fuktskada som tvingade ägarna att riva den gamla vinterträdgården och källaren som den stod på. Villan är från 1990´talet men hållen i en mycket spännande och unik arkitektur med många fina trädetaljer. Då familjens önskemål var att kunna vara i vinterträdgården så många dagar om året som möjligt kommer den nya vinterträdgården efter att den gamla bara haft enkelglas utföras i ett högisolerande tvåglas som under vissa tider om året kommer ge huset ett energitillskott. Energitisllskottet kommer med hjälp av en intelligent ventilation kunna tas till vara på för att värma upp de andra delarna av huset.

Det bärande gestaltningskonceptet byggde på ett antal fristående massiva mörklaserade limträramar som skenbart verkar gå rakt igenom glashöljet dock är i glaskonstruktionen brutna köldbryggor tillgodosedda. Ramarnas hörn blir antingen utförda via fingerskarvar eller rostfria stålbleck med bultar beroende på leveranstiderna under covid-19 pandemin. På utsidan av de sluttande takytorna finns en rullgardin med en transparens på ca. 5%.

Takfot/avvattning Nockdetalj
Privat beställare Origo Arkitekter
Bröstningsdetalj Tröskeldetalj Vädringslucka
Monki Store Antwerpen 20 17 Invigning Entréplan Fasad Sektion 650 000 2 650 60 530 60 000 000 60 530 60 100 75 180 75 100 100 75 2 180 75 100 60 100 2 836 100 330 R 633 633 R 633 R 1 060 633 R 633 633 265 R 265 0.00 8.64 11.29 -0.06 14.29 16.63 open window Podium 205957-01 1PCS Detaljsnitt horisontellt Detaljsnitt vertikalt MirrorMirror Mirror Bazaar Table 109 lift Monki Railing Graphic Vinyl to all sides of lift cabin; exchange flooring if neccessary tbc. Mirror Mirror Mirror Mirror pattern, see elevations Mirror pattern, see elevations GARMENTS1200 205357-01 GARMENTS1200 205357-01 AREA 5 Övre plan Kväll

Monki

Sektion

Monki är en modelabel som är en del av H&M gruppen. Monki har egna storeplanners som anlitade mig för att projektera deras storefronts i en serie liknande projekt. Den vänstra sidan visar Antwerpens första Monki shop i stadens mest frekventerade shoppinggata Meir. Projektens förutsättningar i samtliga projekt jobbade vi efter H&M´s och Monkis designmanualer varav den senaste innehöll en del material som man kan tycka är ovanliga i övriga arkitektsam manhang: folier med palljettoptik och mycket “mirrorpolished stanless steel” - spegelpolerad rostfri stål . En annan typisk detalj är deras portalbågar med koncentriskt anordnade glödlampband.

Samtliga projekten befunner sig i mer eller mindre exklusiva omgivningar som deras flagship stores i Metropolis Mall i Moskva, i Monki Store i Antwerp ens stadskärna och i Westfield Shopping Centrei Stratford i Storbritanien. I Metropolis i Moskva som är Monkis flagship store för Ryssland var uppdraget att jobba med spegelpolerade rostfria stålprofiler för att uppnå den glans som man kan se på fotona.

I samtliga projekt arbetade vi med stålprofiler eftersom de ger en mycket filigran siluett som är smäckrare än motsvarande aluprofiler. Projekteringen av glas, glasdörrbeslag samt förregling på natten ingick i projekteringen.

Flagship Store Metropolis i Moskva 2017 Plan 400 300 134 270591 250 4000 1019 81 Secondary steel structure to hold the shop front Curved steel profile Ceiling by tenant Stainless steel finish Air conditioning Shop front Balustrade See drwg. CAP001_DE_(36)003&004 RETAILMALL Stainless steel finish Mall ceiling Lighting fixing specified by others Aluminum louvre, size to be defined Sprinkler Cove lighting Потолок молла Световые крепления специфицированы другими Аллюминиевые жалюзи размер не обговорен Отраженный свет Покрытие из нержавеющей стали Разбрызгиватель Покрытие из нержавеющей стали Потолок указан заказчиком поддержки витрины АРЕНД ПОМЕЩЕНИЕ МОЛЛ Балюстрада См чертеж CAP001_DE_(36)003&004 Вентиляция
Window Frame decorative arch in front (with recessed window frame and light bulb frame) inner arch clad with SIBU MS Hollywood Vägguppställning fasad ПРОТИВОДЫМНЫЙЭКРАН CW-5 CW-6 CW-44 ShopМагазинTENANT'SSCOPETENANT'SSCOPETENANT'SSCOPE NATURAL GRANITE NATURALSTONEGYPSUMBOARD Входнойблокст."Глебово"Entranceunitfrom"Glebovo"side RANITEONE ShopМагазинTENANT'SSCOPETENANT'SSCOPETENANT'SSCOPE 400 150 Secondary steel structure to hold the shop front Curved steel profile Ceiling by tenant Покрытие из нержавеющей стали Потолок указан заказчиком поддержки витрины 400 150 Secondary steel structure to hold the shop front Curved steel profile Ceiling by tenant Покрытие из нержавеющей стали Потолок указан заказчиком поддержки витрины Detaljsnitt genom entré Detaljsnitt genom skyltfönster

Perspektiv områdetOmrådet

Tvillingshusen etapp 2
20 17 Fasad mot syd KM KM KF K F G G G G 15 STG250/180 G G EV.VVS EV.VVS 15250/180STG Entréplan

PerspektivTvärsektion

Plan 1

Ljusterö Skärgårdsby är ett litet samhälle som sedan ett par år håller på att växa fram på det centrala Ljusterö näst intill Ljust erö Torg. Området växer fram i flera etapper - dessa etapp 2 tvillingshus hus har jag designat för att tillmötesgå behoven för kunder som söker ett boende i skärgårdsmiljö och tillmötesgår detaljplanens begränsningar på 130 m2 BYA (footprint) per tomt och byggnad.

Husen ägs av en bostadsrätts förening och en nyttjandegräns skiljer av den minst 1500 m2 stora tomten i två delar vilket möjliggör ett prisvärt boende ute i skärgården nära till allt vad naturen kan erbjuda. Ur ett stadsplaneringsperpektiv är tanken i formgivningen att trots en viss densitet uppnå så varierande uterum som möjligtInget mellanrum ska likna det andra.

Husen erbjuds i olika typer: standardhusen som visas på högra sidan har en större hushälft med upp till 80 - 96 m2 och en mindre med 68 - 84 m2. Erbjudandet riktar sig främst till kunder som vill hitta ett prisvärt boende nära naturen och gillar arkitekturen som har blivit inpirerad av skärgårdens enkla träarkitektur. Husens organisa tionsform i bostadsrättsförening ar gör att man själv inte behöver bekymmra sig om husets yttre underhåll. En gemensamhetsanläggning med gästhus, festlokal och pool kommer finnas på området.

Fasad mot väster Fasad mot norr
Ljusterö Skärgårdsby A - Arkitekter

Övre p la n

Entrép la n

BRA plan 3:

plan 2:

plan 1:

TOTAL: 3990m

BTA plan 3: 290m2 plan 2: 2000m2 plan 1: 1945m2

4235m2

skolan 2017-08-31 PH steg 2: nollhandling + gestaltning sidnr 3 Nya Vikskolan Sporthall S i t pla n 20 17
UPPVÄ0005 Vikskolan 2017-08-31 PH steg 2: nollhandling + gestaltning sidnr 5
260m
1890m
1840m
TOTAL:
UPPVÄ0005 Vikskolan 2017-08-31 PH steg 2: nollhandling + gestaltning sidnr 6

Rendering

Platsanalys

Nya Vikskolan ska bli en åk F-9 skola med förskola och idrottslo kaler. Till grund för den nya skolan ligger en behovsutredning som gjordes av Upplands Väsbys kommun i början av 2017 samtidigt som ett detaljplansar bete pågår i området.

Vindsvåning

Modellstudie av köket

Vi har under programmarbetet paralellt jobbat i rumsorganigram och areabehovet utifrån kommunens behovsutredning och estimerade areor på antalet elever och personal. F - 9 skolan ska rymma 340 - 370 elever och 55 arbetsplatser för skolans personal. Skolköket ska ha ett tillagningskök i skolbyggnaden med en kapacitet på 350 - 450 frukost, mellanmål och lunchpor tioner. Den nya Idrottshallen ska vara något större än den som finns där idag.

Programmarbetet utfördes dels ifrån behovet på de olika hemvis terna motsvarande åkens behov samtidigt som utifrån att skapa ideala förutsättningar för en mot vädret en så skyddad utomhusmiljö som möjligt. Förskolan som vetter mot nordost fick en mot des stora något skyddad något avskild utehörna från de högre klassernas utegård. Å andra sidan skapade vi skolans entré så att den möjliggör en optimalt omfamnande gest som välkomnar besökaren som kommer med buss bil, med cykel eller till fots. I utformandet av landskapet har vi även involverat kontoret Land som vi i ett tidigt skede

Omklädning/ garderob Modellstudie hemvist
Upplandsväsby Marge
UPPVÄ0005 Vikskolan 2017-08-31 PH steg 2: nollhandling gestaltning sidnr 7
V ä st lig f a s a d P er s pek t i P la n Nordlig f a s a d
G o t la nd K a m ou f la g e
vS i t pla n 2 017

Horisontalsnitt genom vägg

Svenska försvaret skall utöka sin kapacitet med 24 500 m² nya lokaler för Försvarsmakten på Gotland.

N y a k onto r, utbildning s lo k ale r, t ränings f aci l i t e t e r, e n mili tä r restaurang och en vaktbyggnad är på god väg för det svenska försvaret D e ny a lo k alern a ä r e t t le d i upprä tt and e t a v e n n y enhe t p å Gotland med fokus på mekanik och stridsvagnar.

Syftet med förslaget är att skapa en enk el och t ydlig st ruk tur s om t ar hänsyn till omgivningen och platsens bef int liga kult urarv. Est et ik en tar ut g å n gsp u nk t i b e g re p p e t k amou f lage , dä r byggnadern a reflekterar och imiterar sin omgivning.

vertikalsnitt

Entrétakdetalj elevation

Entrétakdetalj snitt

Ljuse t f å r e n huvudrol l i byggnaderna. Ljusinsläpp och tät kontakt med naturen ska göra att det blir en upplevelse, för anställda och besökare, att vara där. Det läggs stort f o k u s p å a k u st i k o c h de n god a arbetsmiljön, då mötesplatser och platser för social samvaro har hög priori t e t ino m F örs v arsma kt en Flexibilitet står också i första rummet. Materialvalen gör rummen flexibla och möjliga att ändra med tiden, så att byggnaderna kan anpassa sig till utvecklingen vid Tofta Skjutbana över tid.

To f t a s kju tf äl t C F M ølle r
P Fasaddetalj Fönsterdetalj
B46 B45 B44 B43 B41 B40 B39 B38 B37 B36 B35 B34 B33 B32 B31 B30B42 KONTORSHUSET MoS HUS HUS Fasad Hus ritning A-40-3-200 Fasad Hus se ritning A-40-3-100 ZONE WITH WINDOW HOTELL PYRAMIDEN 3 FARAO 14 FARAO 8 FARAO 20 UARDA 4 STJÄRNTORGET PYRAMIDVÄGEN DALVÄGEN EVENEMANGSGATAN MÅLB RON KONTORSENTRÉ GALLERIAENTRÉ BOSTÄDER MALL OF SCANDINAVIA KONTORSENTRÉ MOT SOLNA STATION GALLERIA ENTRÉ ARENA ENTRÉ FRÅN GARAGE ARENA GATE PYRAMIDEN 2 UARDA 5 UARDA 1 RÅSUNDA PYRAMIDEN 1 Nationalarenan 8 Arenastaden Solna 2012 - 2013 Hus 1-5 Perspektiv från tågsträckan Stockholm -UppsalaSitplan Arenastaden/ Mall of Scandinavia / Office of Scandinavia Elevation mot nordost utsnitt Office of Scandinavia KL +35,0 +35,00 +35,00 LSL LSL 60 60 TR1 1,2 SAMMA HG 30E 30 SAMMAHG SAMMAHG SAMMA E E D4 B46B45B44 B43 B41 B40 E48 E47 E46 E45 E44 E43 E42 E41 E40 E38 E39 Z1 B42 A20 A18 A24 A27 A26 A23 A22 A21 A19 X1 X3 A25 KL KLA-40-2-00-200 A-40-3-00-300 A 0 -00-200 A-40-3-00-400 A-4 -300 100 A-40 00500DELB A403-00500DELA A 300500DELC A-40-3-00-500 DEL 1008 1008 1007 1001 0008 1008 1005 1003 0008 1008 08 1003 0005 1008 1008 1007 1001 0008 1008 1008 100 1003 000 100 000 100 100 10 100 100 100 10 100 8100 100 100 100 8100 10 810 100 10 100 0 100 500 KH2:1 KH2:5 ELTELE HISSHALL HISSHALL TRH HISSHALL VENT LJUSGÅRD LJUSGÅRDLJUSGÅRD RÖR VENTRÖR C3 C2 C1 D5 A24 B46B45B44B43B41B40B38B37B36B35B34B33B32B31B29 A27 A26 A23 A22 E50 E49 E37 A21 D3 B30 B39 X1 Y4 Y2 Y1 Y3 V1 X2 B42 A-40-2-00-100 A-40-2-00-100 A25 KL 100 D4 D5 D7 D8 D3 D6 -40-3-00-400 8100 000 100 100 A-40-2-00-200 E36 E35 E34 U1 D1 D2 INGÅR ASHUS INGÅR BASHUS INGÅR BASHUS 15 20 25M10

Reflex arkitekter

Näst intill Friends Arena i Arenastaden/ Solna byggs för närvarande nordens största inköpscenter „Mall of Scandinavia“ med en BTA på drygt 350 000 m2. På taket av denna vidsträckta byggnad kommer mot Evenemanggatan en bostadsbyggnad bli upprättad och på andra sidan mot stjärntorget en kontorsbyggnad „Nationalarenan 8, Hus 1-5“ uppstå. Sammanlagt kommer kontorsbyggnaderna omfatta ca. 50.000 m2 BTA.

Byggnaderna kommer främst bli synliga från tågsträckan Stockholm -Uppsala som begränsar Arenastadens östra kant.

Den representativa huvudentrén som sträcker sig över tre plan mynnar vid Stjärntorget och bildar slutpunkten på områdets huvudgata Evenemanggatan samtidigt som det via en ny bro är kopplat till Solna Station.

Husen kommer snart att erbjuda 51.000 m2 kontorsyta och kommer främst bli sedda från tågsträckan som följer områdets östra gräns.

En av projektets stora utmaningar var att samordna husets och shoppingmallens stomme under den pågående projekteringen på två olika kontor.

Husens fläktrum befinner sig på översta plan för att hålla kanalerna korta och effektiva.

Fasad mot syd Entré till Scandinavian Office Building från stjärntorget Perspektiv atriegård
15,20 STJÄRNTORGET HUS 2 HUS 1 Skärmtak under utredning annan entreprenad (MOS) Fasad Hus 2 se ritning A-40-3-200 Fasad Hus 1 se ritning A-40-3-300 Entré under utredning
080120 1001 200 +35,00 WC MÖTE SERVERRUM MÖJLIGA HG-GRÄNSER KONTORSLANDSKAP MÖTE 2-3 FÖRRUM KORRIDOR KORRIDOR ENTRÉ KORR PAUSYTA KORR STÄD FÖRRUM G-43-6-55 K-43-6-55 MÖTE STÄD PAUSYTA KH2:3 KORRIDOR RD 10960 10924 10928 10933 10934 10939 10940 10941 10952 10953 10963 10962 10942 00905 00911 10957 L B46B45B44B43B41B40B38 B39 Y3 B42 INGÅR BASHUS Fasad mot syd MÅTT HIT FASADELEMENT MÅTT HIT FASADELEMENT ÖK SARG FASADTYP 11 FASADELEMENT KRÖNPLÅT AV ALUCOBOND ELLER LIKVÄRDIGT TAKKONSTRUKTION ENLIGT TE FE DETALJ 1 FASADKRÖN MÅTT HIT FASADELEMENT MÅTT HIT FASADELEMENT 1 ALT. PLACERING KONSOL FASADTVÄTTKORG KONSOL FÖR FASADTVÄTTKORG DETALJ 4 MÖTE FASADELEMENT OCH TAK BALK ENLIGT K PELARE ENLIGT GLASTAK TAKSTOL ENLIGT K FASADTYP 41 TEFE RÄNNA FÖR TAKAVVATTNING SCHEMATISKT REDOVISAD. DETALJLÖSES AV FE. SEKUNDÄRT BÄRVERK ENLIGT K PLÅT AV ALUCOBOND ELLER LIKVÄRDIGT DETALJ 5 BALKINKLÄDNAD PLÅTINKLÄDNAD AV SEKUNDÄRT BÄRVERK TE FE DETALJ 9 MÖTE TAK OCH VÄGG PELARE ENLIGT TAKSTOL ENLIGT K FASADTYP 41 TEFE SEKUNDÄRT BÄRVERK ENLIGT K PLÅT AV ALUCOBOND ELLER LIKVÄRDIGT NOCKRÄCKE FÖR LIVLINA GLASTAK Fasad-och Glaslanternindetaljer
+47,50 Top of parapet +36,80 +43,28 Top of parapet +38,60 Lvl 08 +34,80 Lvl 07 +31,00 Lvl 06 +27,20 Lvl 05 +23,40 Lvl 04 +19,60 Lvl 03 +15,80 Lvl 02 +12,00 Lvl 01 +47,50 Top of parapet +47,50 T.O.P +43,28 T.O.P +35,60 +3,80 +22,50 +46.08 +43,28 Top of parapet +38,60 Lvl 08 +34,80 Lvl 07 +31,00 Lvl 06 +27,20 Lvl 05 +23,40 Lvl 04 +19,60 Lvl 03 +15,80 Lvl 02 +12,00 Lvl 01 +0,00 F o t ogr a f i M ä s t e r S amu e l s g a t a n m o t Norrla n d s g a t a n 2 010 - 2 012 F a s a d m o t o s t F a s a d m o t v ä s t F o t ogr a f i e n t r é Mästerhuset Fasad mot M äster Samuelsgatan

Standardplan Tvärsektion

Fasadsektion

Mästerhuset kommer bli en kontorsbyggnad i kvarteret Hästen mitt i Stockholm City med en total bruttoarea på ca. 38.000 m2.

Som ett resultat av en sammanläggning av tidigare två kvarter till det nuvarande Kvarteret Hästen har stadsbyggnadsskalan i detta område överskridit ett kritiskt mått som har lett till både avhyrning och vanvård av Mäster Samuelsgatan. För att motverka detta har vi öppnat upp en passage med lokaler i byggnadens bottenplan och formulerat en ny länk som förbinder PK-huset med MOOD-Gallerian. Husets bottenplan kommer att innehålla affärer, ett café och en resturang.

Byggnadens volym är resultatet av en nogrann studie av stadssiluetten i samarbete med SBK.

Mästerhuset förväntas bli Stockholms första LEED platina certifierade byggnad och har i systemskedet fått över 80 LEED poäng.

Klimatskalet består av fyra olika fasadsystem: dubbelglasfasad på toppvåningarna. En hybridfasad med mellanliggande solskydd på alla standardplan. En enkelfasad mot norr och structural glazing i bottenplan. Byggnaden värms och kyls av ett HVAC system som på sommaren får stöd av en dessicant cooling anläggning på taket.

Tengbom

längssektion nordfasad

Villa Gunnel Yxlan - Sweden fasad nord fasad väst sektion längs fasad syd foto nordostsidan
2008 - 2009

sydvästsidan

Villa Gunnel är ett privat sommarhus på ön Yxlan i stockholms skärgård. Huset ligger mellan Köpmanholms prydliga villor från sekelskiftet och bildar en överledning mot skogen. Tomtens utmanande utsikts- och ljussituation där solen vandrar från motsatt håll till den unika utblickens sida har fört till en formgivning som kann beskrivas som ett halverat atriumhus. Samtidigt som husets nedsida öppnar sig med stora fönster mot furusund och med August Strindbergs och Astrid Lindgrens Sommarvillor öppnar sig en helglasad yta mot den stora soluppvärmda terrassen.

Genius loci - ortens unika företeelse har varit en handledande idé i designprocessen av villa Gunnel. Panelen är hållen i enkel gran och korresponderar med vegetationen i området. Den har redan, som förväntat börjat bli silvergrå som förebilden - fågelholkarna på grannarnas tomt. Den bakom glasfasaden befintliga stenmuren har uppgiften att magasinera solenergin och jämna ut värmen i huset. Den är tillverkad av graniten finns på tomten. Murens början ligger i furusundsledens farvatten och följer en imaginär sicksackpromenad längs stenbryggan, vägen upp för kullen och genom hela huset. I stenmuren finns infällda gamla biostolar som en modern tolkning av byns ljugarbänk och dess förutom en kamin.

vägen från fastlandet över öarna till Yxlan entréplan
Königscarrée - Mercedes-Benz Bank 2007 september 2011 syd fasad byggnation 2008

STP Architekten

entréplan

Königscarrée vid Mollstrasse i Berlin är ett höghusprojekt som just nu byggs åt en projektutvecklare som heter Bauart och projekteringen genomfördes av STP-Architekten som var min arbetsgivare. Byggnadskomplexet innehåller en blandning av kontor, hotell, privata läkarmottagningar och restauranger. I entréplan finns det affärslokaler med ingång direkt från den breda trottoiren. Huvudingången för Höghuset ligger i mitten av nordvästfasaden, tillträdet till läkarmottagningarna går genom Atriumdelen och ingången till hotellet ligger på sydöstsidan.

Huset ligger i närheten av Berlins östra centrum kring Alexanderplatz och tomten ligger direkt vid en av de stora öst-väst-stråken Mollstraße/ Torstraße. Det 21 våningar höga höghuset är en början av Hans Kolhoffs masterplan från 1993, där hela Alexanderplatz skall bebyggas med betydligt högre Höghus. Hans Stimann, Berlins före detta stadsbyggnadsmästare var måttgivande i gestaltningen av detta projekt. Det ligger i en del av stadscentrumet där blocken har en skala på ca 400 x 400 m och där gatorummen är upp till 130 m efter Moskvas förebild. Den stora höghusskivan understödjer trafikriktningen längs Otto-Braun-Straße från centrum ut mot Berlins norra utfart mot Hamburg och Rostock. Bygget kommer att vara färdigt 2010.

perspektiv från sydost sitplan Berlin Alexanderplatz/ Mollstraße kvällsstämning september 2011
K 10 11 1212.1 R S A C D 21 22 23 22 24 26 27 28 29 30 Achsen Rohbau Achsen Baugrube 21 14 15 16 17 18 19 20 25 12.2 A A E E B B
Russia Tower at nightPlan Level M1 VIP Drop Off Plinth
2006 - 2007RUSSIA TOWER MOSCOW

Section 1-1

Foster and Partners

Russia Tower - taller than any other building in Europe - is a striking new addition to the dynamic high-rise skyline of Moscow City. With its unique form, this new landmark will be visible from the heart of Moscow. The building continues the practice’s investigation into the nature of the tower, taking structural, functional, environmental and urban logic to a new dimension. The mixed-use project - incorporating apartments, hotel, office and leisure space - will have an ‘energy cycle’ that will pioneer sustainable architecture and reinforce the economic and social vitality of Moscow City.

Based on a highly efficient geometry derived from the triangular plan, the vertical city is a powerful triumvirate of three ‘arms’ that meet at a central green spine running the full height of the tower. Wider at the base and tapering towards the top, the pyramidal form is elegant and slender in profile, and benefits from a highly efficient composition to achieve the maximum stability with the minimum structure, as well as the most effective distribution of space. The tower is aided in resisting wind loads by a series of sloped fan columns extending diagonally upwards to the spine from the broad, triangular base. Overlaid by columns set at a reverse angle, this unusual oblique lattice carries the building’s load while also giving it its’ distinctive geometric façade.

Atrium VoidView from Sky Lobby at Mast Mast of Tower with River Moskva
Entréplan Zon A elevation podium torn A - Asitplan Zone A plan penthouse 2005Abu Dhabi „Breakwater Development“ tävling, Förenade Arabiska Emiraterna plan „le rêve“ plan 2 & 4-bedrooms plan 3-bedrooms plan 1-bedroom

I arkitekttävlingen ”Breakwater Development” i Abu Dhabi har National Investment Corporation för zon A 12 skrivit ut bostadstorn och ett business-hotell såsom i zon B kontorslokaler, ett möblerat Bostadskomplex och ett businesshotell. Vårt förslag för zon A är en variant utav ett höghus som står på en sockel. Genom den runtomlöpande sockeln blir de 12 höghusen med deras 25 våningar anknutna.

Elva torn utav dem är bostadshöghus med lägenhetsplanlösningar med ytor mellan 150 m2 och 550 m2 och ett till fyra sovrum. Det tolfte tornet är ett rent hotelltorn. I den runtomlöpande sockeln befinner sig allmänt tillgängliga gyms, spa-bad, kontorsytor och rikligt med shoppingmöjligheter. Under sockeln befinner sig två parkeringsnivåer som i zon A erbjuder mer än 3000 parkeringsplatser.

I zon B får det eftertraktade rumsprogrammet plats i en form av ett ”tvillingshöghus” med 20 våningar som står på ett två våningar högt podium. Byggnaden står vis à vis till den framför liggande marinan. Den uppskattade kostnaden för zon A och B ligger vid ca. 450 Miljoner US$ och BOA ligger vid 500.000 m2.

entréplan zon B sitplan Zon B perspektiv zon B sektion A - A zon B sektion A - A zon A

andra plan förbindelsebyggnaden, matsal, konferens och ingångshallperspektiv förbindelsebyggnad, matsal och konferens

Tävling „Neues Direktionsgebäude der AachenMünchner Versicherungen“ Aachen/Tyskland“
modellfoto av hela anläggningen

sitplan

Denna tävling avgjordes över kriterierna lyckad stadsplanering, en välformulerad adressbildning för försäkringsbolaget och ekonomi. Vårt förslag syftar på att fylla upp de stadsbyggnadstekniska kraven som ställdes genom att redan i första byggsteget stänga kvartersblocken för att få en avslutad stadsbyggnadssituation. I ett senare skede kan ett andra steg i det inre av kvartersblocket tillfogas. Den nya kontorsdelen har två olika representativa entréer: den ena är utformad som en entrébyggnad som riktar sig mot ”nya torget” vid Borngasse, den andra sitter i Höghusdelen för en snabb tillgänglighet upp i höghusets topp. Kopplingen mellan nya kontorsdelen och det bestående ”dubbelskivhuset” har vi åtgärdat genom den s.k. förbindelsebyggnaden. I övergångszonen mot beståndsbyggnaden var kirurgisk precision nödvändig för att framställa alla nödvändiga funktioner. Förbindelsebyggnaden fungerar som en länk mellan de nya kontorsbyggnaderna och det gamla ”dubbelskivhuset”. Där i befinner sig kommunikationszoner som t e x personalresturangen och konferensdelen. Den under sjuttiotalet igenbyggda fotgängarlänken från centralstationen till ”Kapuziner Karree” har vi öppnat åter igen genom en 13 m bred svagt fallande trappa, som mynnar i torget framför den nya entrébyggnaden.

perspektiv ingångsbyggnaden Borngasse perspektive av hela komplexet perspektiv Franzstraße / Borngasse
andra pris prissumma skr 600.000,- Mark Braun Architekten

Ground floor level

Longitudinal section

Kaiser-Friedrich-Museum ca. 1930 Master plan Museumsinsel
Bodemuseum Berlin 2002

Small Dome Heinz Tesar

Longitudinal section

Ground floor level

As early as 1841 Friedrich Willhelm IV submitted drafts for a large cohesive "Sanctuary for Art and Science" on the Museumsinsel. Over 150 years later, in 1999, the architect's offices which had taken part in Master Plan I agreed that the four museums on the Museumsinsel should be connected underground, creating a large comprehensive complex. Beyond that the newly created underground level should constitute an additional museum, the "Archaeological Promenade", to be used for multidisciplinary exhibitions. In order to realize this ambitious project, architect Heinz Tesar (Vienna), Professor at Harvard, was commissioned with the reconstruction and remodelling of the Bodemuseum, built in 1896 by master-builder Ernst von Ihne.

Perspective view

Basement level

One of the most important new building measures was the first part of the "Archaeological Promenade", which connects the Bodemuseum with the Pergamonmuseum, the Small Dome. This requires subverting the Small Dome and constructing a section of tunnel under the ground water level of the adjacent river Spree. The technical solution for supporting the enormous loads stemming from the over 100-foot high dome and for waterproofing the part of the building below the ground

Bodemuseum Berlin - stair details

Main stairway Small Dome Stairrails
2002
Handrails

Detail planning Heinz Tesar

Interface details

Waterproofing details of building parts in waterproof concrete

water level were genuine challenges. Supporting the loads in the exterior wall of the Bodemuseum along the railway line was effected in approx. 30 steps by means of high pressure injections into the muddy soil and by using a number of supporting lattice girders, up to a height of 14 feet.

Pressing water and the planned possibility of building the partial sections at different times led to extremely difficult waterproofing work at the sections under the water level. On recommendation of the construction physicists, the layers were sealed twice.

During the working planning of the shell, the architects’ work consisted in the perfect integration of engineering works, miscellaneous specialized planner works and requirements concerning construction physics and building design. For this project, the consistent use of precious materials was unusually high, but suitable for a museum edifice. Thus the stairs were built using full block marble steps, the staff railings using stainless steel blasted with glass beads and the balustrade covers were made of pressed stainless steel plates.

Heating wall top Heating wall bottom

Site plan

Ground floor level

Longitudinal section A - A -
Competition Hochtechnologiepark Jena
third place2001

Architects

City planning: The terraced property in the midst of detached buildings forms the framework for the building ensemble. Nine buildings, whose dimensions are oriented to the topography, are grouped around a plateau, which opens onto the park to the east with a view of the Saale Valley. The positioning of the volumes on the edge of the property frees up a maximum of space in the center, allowing visual and communicative crosslinking. For this purpose there is a terrace close to the large water basin in the inner courtyard.

Access: The area is accessed from the south via the central entrance building, in which a public library is situated, and which forms a gateway to the adjacent Piazza. The external forum functions like a compass, navigating the user to the entrance, reception, meeting point, seminar and general information, and services. The inner court forum is surrounded by a glass access corridor, which interconnects all modules.

Exterior installations: The architectural landscape concept underlines the urbanistic configuration. Various open areas of different hierarchy and quality result: Entrance square, forum, park. The sloped site is enhanced by a scissor-like arrangement using gabions. These lines mediate between the surrounding landscape and the directions of the buildings.

West elevation 2nd floor level - Piazza with water basin Model image
HENN

Convention Center - Dresden1999

Longitudinal section C-C Image of the CNC-generated model Cross section Main hall

North-east elevation

Model image

City planning: Together with the Federal State Parliament and the hotel in the Erlweinspeicher, the convention center forms a functional and urbanistic ensemble. The new building closes the area in front of the former warehouse to the north and creates a square which opens onto the Elbe: Dresden’s new terrace. To the north the building blends gently and organically into the floodplain.

Ground floor level

Architecture: The dynamics of the river connect here with the calm, gentle landscape of the Ostragehege and the buzzing city center. Together they form the building shell. The city meets spatial edges, the landscape flows over the building and the river forms the building shell with its dynamics. Gently formed, billowing interiors produce a light-flooded and hospitable conference atmosphere.

Function: The three meeting areas of the plenary assembly hall, convention center and seminar areas are accessed via their respective foyers from the main hall. From the south, the visitor walks from the hotel along the street diagonally through the building to the banks of the Elbe. Large ex hibition areas and foyers connect the different sections and enable a multiplicity of different uses at the same time.

Becker Gewers Kühn & Kühn

plan

of Art and Science, Berlin

Perspective view from the street

Cross section B-B Mark: A+

West elevation

Site
Institute
Spree

Against the background of a consumption-oriented society and Josef Beuys’ idea of the "plastic process", the design of The Institute of Art and Science seeks new, integrated solutions: conceived in a similar way as the "ZKM" (Center of Art and Media Technology), founded by Heinrich Klotz in Karlsruhe, which linked art and media technology to one another, The Institute of Art and Science goes one step further: As radically as the building interlocks the urbanity of the 12-story residential building with the natural element of water from the river Spree, The Institute of Art and Science attempts to merge the two disciplines of art and science and interconnect fareastern and western philosophies.

As an integrated world approach, The Institute of Art and Science therefore offers premises for interdisciplinary co-operation between artists and scientists. Beyond that, The Institute of Art and Science offers museum functions which attempt to include society in this development. In the design of The Institute of Art and Science, the confron tation of man with his natural origin is provoked. It becomes a contemplative place in the urban surroundings.

plan +03 elevation syd 1998

Observation Tower on Potsdamer Platz - Berlin

North-east elevation

South-east elevation 1996

Cross sectionLongitudinal sectionHorizontal section

This contribution for the "Observation Tower on Potsdamer Platz" was a circa 100-foot high, leaning tower, whose primary structure was developed from a space frame structure in the shape of a hyperbolic, revolving body - freely after the model of the towers by Russian engineer Vladimir Shukhov.

For manufacturing reasons the structure of the tower was compiled of 12 nearly identical, repeating steel segments. Spanned half-spiral staircases connect all the stories from segment to segment. At the peak of the tower there is a viewing turret which has two accessible stories. In bad weather the view can be enjoyed from the inside and in good weather from the roof area. As well all primary profiles of the structure were calculated.

A ball joint serves as a link within the amorphous structure and is able to take up the pressure and tension at the junctions and reacts flexibly to the directions of the effecting forces. The design of the tower was generated in 3D on computer. Such a complex spatial geometry would hardly be conceivable without a computer model.

Computer generated image of the turret Base front view Base side view Ball joint front view Ball joint side view

Michael Frimmer

Dannemoragatan 6 SE-11 344 Stockholm

Lotsstigen 3 SE-760 18 Yxlan

+46 (0) 8 412 02 498

+46 (0) 705 285 839

michael@umf-architects.com

adress telefon mobil email

Turn static files into dynamic content formats.

Create a flipbook
Issuu converts static files into: digital portfolios, online yearbooks, online catalogs, digital photo albums and more. Sign up and create your flipbook.
Ulf Michael Frimmer Arkitekt SAR/MSA Dipl-Ing CV & Portfolio by umf-architect - Issuu