Perkenalkan
Nama saya Ulysess Marvels
W.H.
SayamerupakanlulusanArs tekturdar Un vers tasKatol kSoeg japranata
denganlatarbelakangyangkuatdalamb dangars tekturdandesa n nter or.
Sayamem l k ke ng nanuntukbelajardanmampuberadaptas denganba k.

Pend d kan
2019-2024
Jurusan Ars tektur
Un vers tas Katol k Soeg japranata
IPK (2.68), Lulus September 2024
2016 - 2019
Sc ence & Entrepreneursh p
SMA C tra Berkat
Usher Team Internsh p
CGV C nemas EcoPlaza (Apr l 2019-Me 2019)
Bendahara Pramuka
SMA C tra Berkat (September 2017 - Agustus 2018)
Pask bra
Kecamatan Panongan (Jul 2017 - September 2017)
Keahl an
Pengalaman
Pan t a Pertemuan
Publ c Campus M n stry Central Java (2023-2024)
Pan t a Keamanan
Publ c Campus M n stry West Indones a Un on M ss on (2023)
Pelat h Basket
Sekolah Advent Semarang (2019 - 2022)








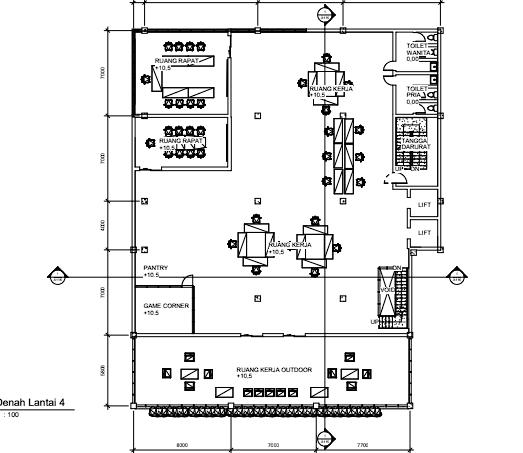
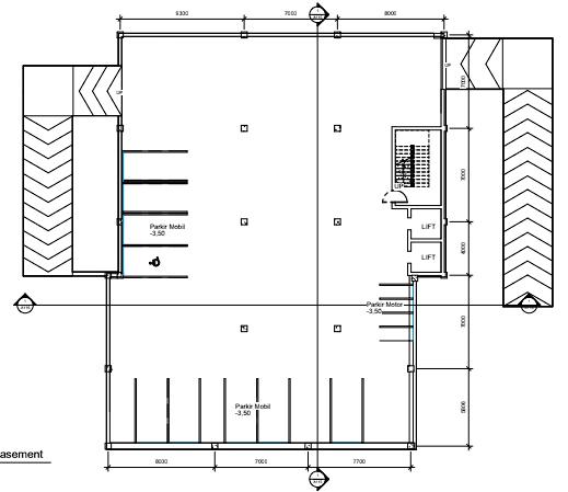
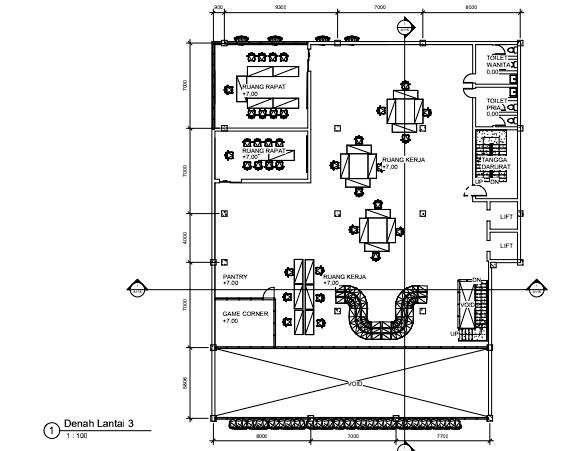
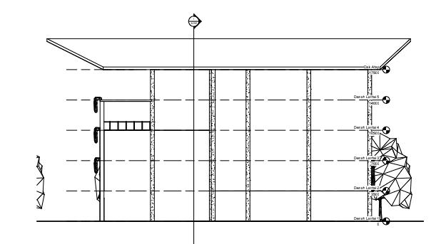
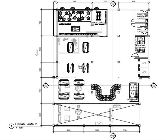
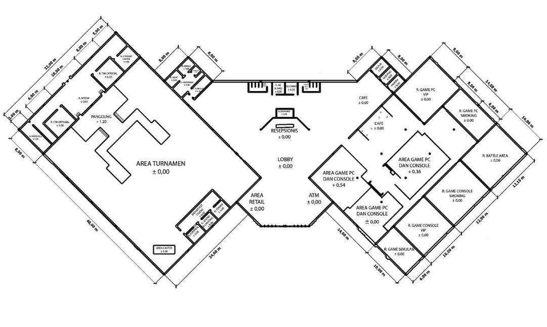
Tugas Kul ah


Teater Internas onal
d Yogyakarta
Gedung pertunjukan kesen an dengan skala