Urszula Kosatka Architectural Portfolio

Page 1

ARCHITECTURAL PORTFOLIO

Urszula Kosatka

Table of Contents 01 02 03 04 05 06 07 Hatch drawings + Sketches The Synergy Library, Savannah, GA Light 12 SE 1st St Food Library, Gainesville, FL Urban Verticality , New York City, NY Discovering the Context . Kayaking Center, Ichetucknee Springs State Park, FL Vertical Datum

Discovering the Context

Gainesville, Florida |

Architectural Design 5: Fall 2021 |

The design studies the essential architectural idea of scale (the scale of a single spatial unit in comparison to the scale of the landscape). The site is Ichetucknee Springs State Park in Florida. The contextual base is a horizontal datum. The ground and the architectural intervention- in the form of a kayaking center- are two elements of an inseparable unit The intervention is inspired by the shape of the Ichetucknee River. Looking at the large scale of the site the design embraces the form that the river takes and scales it down. The form of the kayaking center helps to “hold” the ground, by bridging from one side to another and allowing the visitors of this space to feel as if the center is part of the topography. The visitors might access the roof of the building to appreciate the natural landscape. The center eases the connection with nature for the visitors through the activities they can do, as well as, through its design.

Analyzing the changing nature of the site and all of its components by flipping the sketches of the springs.
Section

Food Library

Gainesville, Florida

Architectural Design 6: Spring 2022

Food Library is a project that is derived from the lack of adequate food sources in Downtown Gainesville. The site presented itself as a food desert in a big student town, where access to food should be easy and universal. Additional elements of the program that had to be included are a restaurant and an office space. Spatial composition and efficiency were crucial drivers in this design, as the site is occupied by administrative buildings and exists in the densest part of the city.

East Elevation

West Elevation

storage jan. parent w/ child room wine cheese international foods grab&go conference room work space women’s bathroom men’s bathroom jan. break o ce o ce o ce o ce men’s bathroom women’s bathroom produce sitting area of cafe kitchen hot bar cashiers oral dairy frozen bakery pharmacy sta sta meat/seafood dining space handicap accessible bathroom kitchen kitchen bathroom#2 bathroom #1

Urban Verticality

New York City, NY |

Architectural Design 7: Fall 2022

The Tower is a final product of an exploration of the morphology (order-pattern-logic) of New York City. Throughout this exploration, the focus was on the inseparable connection between architecture and urbanism by studying how urban patterns are composed of complex smaller-scale assemblies. The proposed building is a convention center where big-scale events could be held.

The convention center required a ground floor to accommodate a hotel lobby, cafes accessible from the outside of the building, and an auditorium. Each space has its designated purpose and is enclosed, playing on the idea of being either outside or inside a specific space.

Park Ave Madison Ave E 42nd St E 41st St Fifth Ave

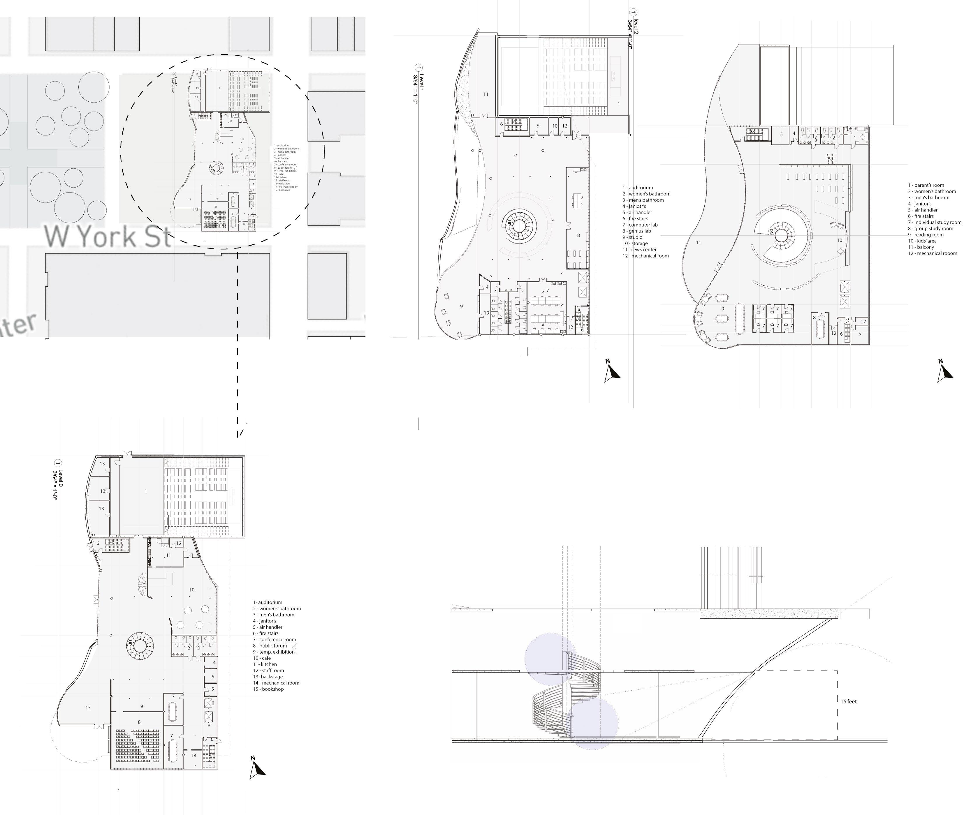
The Synergy Library

Savannah, Georgia |

Architectural Design 6: Spring 2022 Professor Judi Shade Monk

The Synergy Library is a project that responds to Savannah’s diverse demographics and difficult history. The site of the project is the historical heart of Savannah. The Synergy Library is dedicated to bringing the history and community of this place closer. The design focuses on embracing Telfair Square and its organic nature, rather than the geometry of the urban pattern. The main gesture of the structure focuses on the natural path that people take to reach it. The gathering gesture is created through a large volume overhead the main entrance and the volumes that surround it.

3/64" = 1'-0" Level 1 Level -1 -9' - 0" 3/64" = 1'-0" 1 Cross Section North Elevation Coference Conference Bath.#1 Bath.#2 Temp. Exh. Jan. Air Handler Mech. Genius Lab Outdoor Balcony Children Space Reading Space 3/64" = 1'-0" Level 1 UP 3/64" = 1'-0" Level 1 Genius Lab Air Handler Mech. News+Business Center c First Floor Outdoor Balcony Air Handler Jan. Floor -9' - 0" 3/64" = 1'-0" 1 Cross Section North Elevation Auditorium Coference Conference Room Bath.#1 Bath.#2 Bookshop Cafe Kitchen Stage Backstage Public Forum Temp. Exh. Jan. Air Handler Mech. 3/64" = 1'-0" Air Handler Mech. Outdoor Balcony Children Space Reading Space North Elevation 3/64" = 1'-0" Level 1 3/64" = 1'-0" Level 1 Second
3/64" = 1'-0" 1 Cross Section
Savannah, Georgia at the Andrew Bryan Square
Coference Room Conference Room Bath.#1 Bath.#2 Mech. Bookshop Public Forum Temp. Exh. Jan. Air Handler Mech. Genius Lab First Floor Second Floor Balcony Reading Space Ground Floor Bookshop 3/64" = 1'-0" 1 Level 1 First Floor Second Floor Ground Floor EXTERIOR SKIN INTERIOR WALLS STRUCTURE CIRCULATION

Vertical Datum

Unspecified location Architectural Design 4: Spring 2021

Vertical datum project focoused around light - deflecting, transforming and expanding light in a veritcal manner. The tool that this structure became explores a spectrum of scales of light that occupy the spaces created by the construction.

Using section drawing and iterations of a section, the movement of people and arrangement of spaces were explored. Collages sections were applied onto the physical model to reinforce the iterative process that creates each project.

Lithia, Florida | Advanced Topics in Architectural Design Intro to Technical Drawing and BIM Spring 2022 | Professor Malcolm Jones

This project focused on designing and constructing technical drawings for a Nature Pavilion within the Alafia River State Park. Aspects such as humid Florida climates where prorities that drove the design of this project. Nature Pavilion constructs an outer shell that keeps the enviornmental factors such as heat and moisture seperated from the interior environment. Nature Pavilion is a space that brings the comfort to enjoy the nautral environment.

EXTERIOR VISUALIASATION

APPLICANT/DEVELOPER

ARCHITECT

Ryan Ochs developerochs@gmail.com

t: +1372382967

CONSULTANTS

INTERIOR DESIGNER

Urszula Kosatka kosatka@gmail.com

t: +1858746983

Frank LaPuma lapumaf@gmail.com

t: +1957302759

Urszula Kosatka kosatka@gmail.com

t: +1858746983

Frank LaPuma lapumaf@gmail.com

t: +1957302759

STRUCTURAL Lukas Slay slayt@gmail.com

t: +1865780486

MECH/PLUMB/ELEC

Hao Lin lin@gmail.com

www.autodesk.com/revit

CONTRACTOR Davis Drury ddrury@gmail.com

14326 Co 33547 Lithia,

t: +5478369856

t:+1984985567

Level 2 11' - 9" Level 1 -0' - 3" alum. window batt insulation 3 1/2" lap siding 4" wood-stain 1' ceiling joist class 1 concrete finish rubber floor 1/4" Roof 23' - 10" asphalt shing 2" rigid insulation 1" wood-stain 1' ceiling joist red cedar lap siding 4" weathering 3/4" exterior grade plywood sheating 3 1/2" fiberglass batt insulation- R13 5 mil vapor retarder 5/8" GWB- type 'X' 2 x 4 WD studs @ 16" O.C. 1x4 paint grade wd baseboard 3/4" T&G plywood deck 2x10 WD joists @16" O.C. 2x6 PT WD still 3/8" 8" galv anchor bolts @30" O.C. 8" conc foundation wall wall section 3/8" = 1'-0" 2 roof detail wall detail UP 2 3 4 6 5 1 2 5 4 3 10'9 5/8" 16' 2 11/32" 11' 2" 20' 0" drinking fountain 15sf 1 A301 353 SF observation deck Room Legend bath.#1 bath.#2 bike repair station observation deck ranger's office welcome center 106 SF bath.#1 105 SF ranger's office 105 SF bath.#2 105 SF bike repair station 5'7 1/2" 9'8" 10'8 3/8" 10'4 1/4" 339 SF welcome center 6 1 7 13' 9 5/32" 33' 4 7/8" 0' - 0"4' 3" 6'0 23/32"8'6 5/16"0'8" 40'1 15/16" 1 2 4 3 5 3' 5 3/8" F G 6 1/8" = 1'-0" 1 Level 1
Nature Pavilion
Scale Project number Date Drawn by Checked by www.autodesk.com/revit A101 Architectural Site Plan 210518 Nature Pavilion 2/7/2022 Urszula Kosatka Royce Velasco No. Description Date 14326 Co Road 39, 33547 Lithia, Florida DN 10 A201 1 A204 1 A202 A203 1 1 A211 1 A301 114 SF storage Room Legend observation deck storage 125 SF storage 312 SF observation deck vending 30sf 7 8 10 11 8 9 11 15' 11 1/4" 0' 3 19/32"14' 5 5/32" 6' 7 1/8"10' - 1/2" 13' 3 3/8" 29'10 5/32" 11'10 1/16" 0'1 1/2" 21'7 3/32" 1 2 4 3 A B C D E F G 1/8" = 1'-0" 1 Level 2 Project number Date Drawn by Checked by www.autodesk.com/revit Cover Sheet 210518 Nature Pavilion 2/7/2022 Urszula Kosatka Royce Velasco No. Description Date 14326 Co Road 39, 33547 Lithia, Florida
Ryan Ochs developerochs@gmail.com t: +1372382967 CONSULTANTS A202 A203 A204 A211 A221 A301 A411 A412 A501 The objective construct River
APPLICANT/DEVELOPER
State ARCHITECT
INTERIOR DESIGNER
ISSUE DATE 13/26/220
Nature
EXTERIOR VISUALIASATION

Studying the Light

Architectural Design 2: Spring 2020

Sculpting the Light

Environmental Technology 2: Fall 2022

While the previous design attempts to control light in affected space this design focuses on the light source

The linear geometries are arranged to compose a shell that diffueses the warm light source. In this manner, the design tests whether light can be sculpted and present their own geometry. The light source could be designed to alter the architectural space

Designing a “vehicle” that harvests filters, and molds light increased my understanding of this natural phenomenon. Building a lightbox gave me a chance to experiment with the light conditions in space and their impact on the atmosphere within that space.

The material used for the lamp is wood and synthetic fabric Thin wooden strips are organized around the light bulb and held together by two circular strips of wood. A folded fabric is places on top of the wooden strips.

Vertical Circulation

Architectural Design 2 Spring 2020

Hatch drawings and sketches

The exploration of the human figure is the first step in understanding space. Sketches of the figures allow discovering the space occupied by a person and the contextual space. Human interactions help to explore the space intertwining the two bodies. All drawn bodies begin to tell a story that connects them, beyond their author’s conscious.

The exploration of a human figure is the first step derstanding space. Sketches of the figures allow ering the space with a figure, space occupied by a son, the contextual space, and human interaction explore the space intertwining the two bodies.

I believe that in my Universum all of my sketches drawings are connected and together write a story my conscious experience of this world.

The stairs of the Architecture building explore the dynamic aspect of space The scale has progressed and space became larger and more complex. The expansion of the stairs analysis which acted as a nod allows seeing beyond the physical barriers such as walls and barriers. It enables to comprehend the gesture of the stairs which is a visual representation of the dynamism of the stairs. The nod compresses materiality gesture and expanding it is like releasing the suppressed movements of the structure.

Through the expansion of the nod, a line becomes an elongation of the contour of the stairs that represents its infinite elongation and the primary connection to the nod - the common element, the origin of the analysis. It represents the contour, gesture, dynamism, and movement.

Urszula Kosatka | Architecture Portfolio | Selected Works 2020–2022 | University of Florida

Turn static files into dynamic content formats.

Create a flipbook
Issuu converts static files into: digital portfolios, online yearbooks, online catalogs, digital photo albums and more. Sign up and create your flipbook.