PORTFOLIO ARCHITECTURE


udumaifunanya05@gmail.com +2348085729420 Nigeria.
EDUCATION GRADUATE
EXPERIENCE
ARCHITECTURAL DESIGNER 2022-2023
ARCHITECTURAL DESIGNER/INTERIOR DESIGNER 2023-Present
CAD AND MODELLING
SKILLS
RENDERING
ADOBE C C
MICROSOFT OFFICE
University of Nigeria, Enugu Campus. Bachelor of Science in Architecture, From September,2018 to July, 2023. Magna Cum Laude, Second Class Upper division
WEEN AND ASSOCIATES|Enugu state,Nigeria. Architecture designs
KOLA DESIGN STUDIO|Enugu state, Nigeriaa. Architectural design Interior design
Revit, Rayon, Enscape Indesign
Word,Power point etc.
CONTENTS: The projects below are a small sample of my academic work and professional work in the last two years. I hope you enjoy them

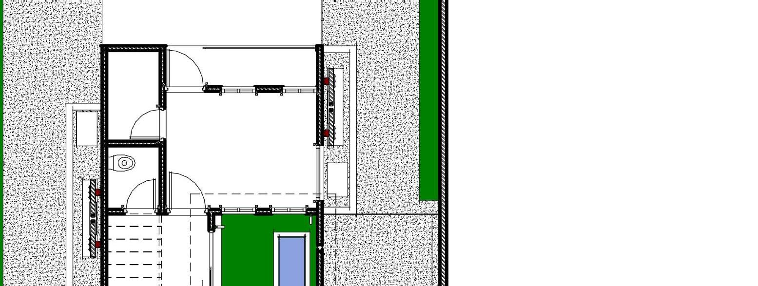
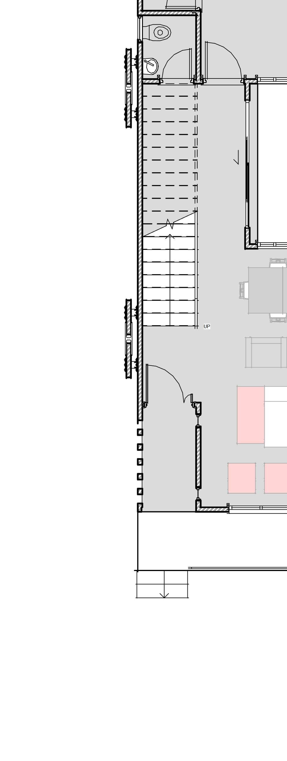
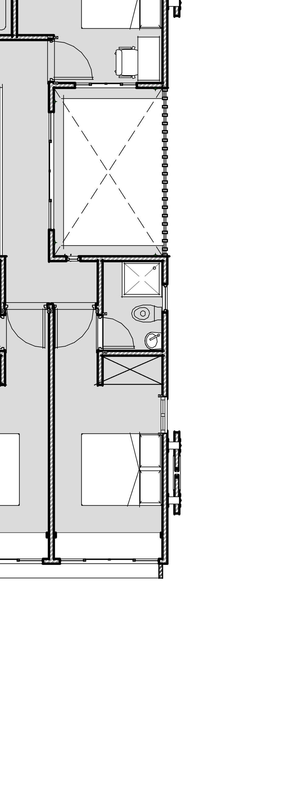
COMMUNITY DEVELOPMENT SERVICE WORK, IN BAYELSA STATE, PROSAL TO BAYELSA STATE MINISTRY OF LANDS AND SURVEY.

FOURTH YEAR, FIRST SEMESTER SUPERVISORS:(ARC)AGU AUGUSTINE OBINNA, (ARC) OKWOSA.


METHODIST CHURCH CATHEDRAL
FOURTH YEAR, SECOND SEMESTER SUPERVISORS: (ARC)AGU AUGUSTINE OBINNA, (ARC)OKWOSA
PROFESSIONAL WORK (WEEN AND ASSOCIATES)

PROFESSIONAL WORK (KOLA DESIGN STUDIO)

PICTURE A HOME THAT LAUGHS IN THE FACE OF FLOODS, RISING LIKE A SHIP WHEN WATERS SURGE AND SETTLING BACK DOWN WHEN THE STORM PASSES. THIS IS THE MAGIC OF AMPHIBIOUS ARCHITECTURE, REVOLUTIONARY APPROACH THAT LETS BUILDINGS FLOAT DURING FLOODS WHILE STAYING GROUNDED IN DRY TIMES. POWERED BY ARCHIMEDES’ PRINCIPLE OF FLOTATION, AMPHIBIOUS HOUSES USE BUOYANT FOUNDATIONS—THINK FOAM BLOCKS OR CONCRETE HULLS—TO LIFT STRUCTURES ABOVE FLOODWATERS, GUIDED BY VERTICAL POSTS FOR STABILITY. IT’S NOT JUST ABOUT DODGING DISASTER; IT’S ABOUT LIVING IN SYNC WITH NATURE’S RHYTHMS, OFFERING A VIBRANT, SUSTAINABLE ANSWER TO CLIMATE-DRIVEN FLOODING. FROM THE BANKS OF THE THAMES TO FLOOD-PRONE COMMUNITIES WORLDWIDE, THIS ARCHITECTURE IS REWRITING THE RULES OF RESILIENCE.
THIS PROJECT WAS DONE AS A PRIVATE COMMUNITY DEVELOPMENT PROJECT UNER THE THE UMBRELLA OF NYSC, PROPOSED TO THE BAYELSA STATE MINISTRY OF LANDS AND SURVEY, YENAGOA.

AMPHIBIOUS ARCHITECTURE IN BAYELSA: A FLOATING RESPONSE TO FLOODING
IN THE HEART OF NIGERIA’S NIGER DELTA, WHERE THE WATERS OF THE RIVER NUN AND RIVER FORCADOS OFTEN RISE IN UNPREDICTABLE FURY, THE PEOPLE OF BAYELSA STATE ENDURE AN INCREASINGLY HOSTILE CLIMATE. THE SEASONAL FLOODS, ONCE TOLERABLE, NOW DISPLACE THOUSANDS, DESTROY HOMES, AND SEVER ACCESS TO SCHOOLS, HEALTHCARE, AND LIVELIHOODS. AGAINST THIS BACKDROP OF CRISIS, AMPHIBIOUS HOUSING HAS EMERGED AS AN INNOVATIVE, LOW-COST, AND ADAPTIVE SOLUTION—FUSING TRADITIONAL MATERIALS WITH ENGINEERING INGENUITY TO FLOAT ABOVE ADVERSITY.
AN AMPHIBIOUS HOUSE IS A STRUCTURE DESIGNED TO REST ON THE GROUND UNDER NORMAL CONDITIONS BUT FLOAT TEMPORARILY DURING FLOODS. UNLIKE PERMANENT FLOATING HOMES, AMPHIBIOUS STRUCTURES USE A FLEXIBLE FOUNDATION SYSTEM THAT ALLOWS THEM TO RISE AND FALL WITH CHANGING WATER LEVELS. AT THE CORE OF THIS RESILIENCE ARE BUOYANCY CHAMBERS, TYPICALLY CONSTRUCTED FROM SEALED STYROFOAM BLOCKS, THAT GIVE THE STRUCTURE LIFT WHEN SUBMERGED. THESE BLOCKS, MADE FROM EXPANDED POLYSTYRENE (EPS), ARE LIGHTWEIGHT, WATERPROOF, AND CHEMICALLY INERT, MAKING THEM IDEAL FOR LONG-TERM SUBMERSION IN TROPICAL FLOODWATERS.
TO CREATE A COMPOSITE SHELL AROUND THE BUOYANT CORE, BUILDERS OFTEN USE CHICKEN MESH AND A THIN COAT OF FERROCEMENT, A TYPE OF LIGHTWEIGHT CONCRETE REINFORCED WITH WIRE MESH. THIS OUTER LAYER PROVIDES STRUCTURAL RIGIDITY WHILE PROTECTING THE STYROFOAM FROM MECHANICAL DAMAGE AND UV DEGRADATION. THE RESULT IS A STABLE PLATFORM THAT CAN LIFT AN ENTIRE DWELLING—INCLUDING WALLS, FURNITURE, AND EVEN SOLAR PANELS—WITHOUT TIPPING OR CRACKING.
IN BAYELSA’S RURAL COMMUNITIES, BAMBOO PLAYS A CRUCIAL ROLE IN THE STRUCTURAL FRAMEWORK OF AMPHIBIOUS HOMES. KNOWN FOR ITS HIGH TENSILE STRENGTH AND RAPID RENEWABILITY, BAMBUSA VULGARIS—LOCALLY ABUNDANT AND WELL UNDERSTOOD BY NATIVE CRAFTSMEN—IS USED FOR REINFORCEMENT. BAMBOO IS LASHED WITH COCONUT ROPE OR JOINED USING BOLTED METAL CONNECTIONS, ALLOWING FOR FLEXIBILITY DURING MOVEMENT AND REDUCING BRITTLENESS UNDER STRESS. TREATED WITH BORIC ACID OR SMOKE-CURING METHODS, THE BAMBOO RESISTS TERMITES AND ROT, EXTENDING THE LIFE OF THE BUILDING IN HUMID, FLOOD-PRONE ENVIRONMENTS.
ONE PILOT PROJECT IN ARIETALLIN, A FLOOD-AFFECTED COMMUNITY IN YENAGOA, SAW THE CONSTRUCTION OF A PROTOTYPE AMPHIBIOUS HOUSE ELEVATED ON A BAMBOO AND FERROCEMENT RAFT, ANCHORED WITH VERTICAL STEEL GUIDEPOSTS THAT ALLOWED IT TO RISE AND FALL WITHOUT DRIFTING. WHEN WATERS SURGE, THE HOUSE LIFTED SEAMLESSLY, KEEPING ITS OCCUPANTS DRY, CONNECTED, AND SECURE.
BEYOND ITS TECHNICAL COMPONENTS, THE BEAUTY OF THE AMPHIBIOUS HOUSE LIES IN ITS CONTEXTUAL SENSITIVITY. IT DRAWS ON LOCAL MATERIALS, TRADITIONAL SKILLS, AND MODERN ENGINEERING TO MEET THE DEMANDS OF AN INCREASINGLY VOLATILE CLIMATE. THE USE OF LOCAL LABOR REDUCES COSTS AND FOSTERS OWNERSHIP, WHILE THE MODULAR DESIGN MAKES THE SYSTEM REPLICABLE ACROSS FLOOD-PRONE REGIONS LIKE MAKURDI, LOKOJA, AND OGBARU.
CRUCIALLY, THE AMPHIBIOUS HOUSE CHALLENGES THE PARADIGM OF EVACUATION AND TEMPORARY SHELTER. INSTEAD OF RETREATING FROM THE WATER, IT EMBRACES IT, ALLOWING COMMUNITIES TO REMAIN ROOTED IN PLACE, PRESERVING SOCIAL NETWORKS AND CULTURAL CONTINUITY. WITH FURTHER INNOVATION—SUCH AS INTEGRATING RAINWATER HARVESTING, SOLAR PANELS, AND COMPOST TOILETS—THESE HOMES CAN BECOME OFF-GRID, CLIMATE-RESILIENT SANCTUARIES.
AS BAYELSA AND SIMILAR REGIONS FACE RISING SEAS AND INTENSIFYING FLOODS, AMPHIBIOUS HOUSING OFFERS NOT ONLY TECHNICAL PROMISE BUT ALSO A SYMBOL OF ECOLOGICAL HARMONY AND HUMAN ADAPTABILITY. IN FLOATING SLABS ON STYROFOAM HOPE, THE FUTURE OF SUSTAINABLE LIVING RISES—QUITE LITERALLY— WITH THE TIDE.

SIGNIFICANCE
AMPHIBIOUS HOUSES ARE IMPORTANT BECAUSE THEY OFFER A SUSTAINABLE WAY TO LIVE IN FLOOD-PRONE AREAS WITHOUT THE CONSTANT FEAR OF LOSING HOMES OR BELONGINGS. THEY COMBINE TRADITIONAL BUILDING WITH MODERN TECHNOLOGY, ALLOWING PEOPLE TO STAY IN THEIR COMMUNITIES SAFELY, EVEN AS CLIMATE CHANGE INCREASES FLOOD RISKS. THIS APPROACH IS COST-EFFECTIVE COMPARED TO MOVING ENTIRE COMMUNITIES OR REBUILDING AFTER FLOODS, AND IT PRESERVES CULTURAL AND SOCIAL TIES TO THE LAND.


IMPACT OF FLOOD IN BAYELSA
LITERATURE REVIEW
STUDIES SHOW AMPHIBIOUS HOUSES ARE EFFECTIVE IN FLOOD MANAGEMENT. FOR EXAMPLE, RESEARCH BY ENGLISH (2016) HIGHLIGHTS HOW THESE HOUSES USE BUOYANT FOUNDATIONS
TO FLOAT DURING FLOODS, TESTED SUCCESSFULLY IN PLACES LIKE THE NETHERLANDS AND LOUISIANA. ANOTHER STUDY BY PIĄTEK ET AL. (2020) COMPARES AMPHIBIOUS BUILDINGS TO ELEVATED OR FLOATING STRUCTURES, NOTING THEIR BALANCE OF ACCESSIBILITY AND FLOOD RESISTANCE. IN DEVELOPING REGIONS, MOHAMAD (2023) FOUND MODERATE ACCEPTANCE OF AMPHIBIOUSHOUSES IN SOUTHEAST ASIA, SUGGESTING THEY NEED COMMUNITY AWARENESS TO GAIN TRUST. THESE STUDIES EMPHASIZE THAT AMPHIBIOUS DESIGNS ARE PRACTICAL BUT REQUIRE LOCAL ADAPTATION FOR BEST RESULTS.
BAYELSA STATE, LOCATED IN NIGERIA’S NIGER DELTA, FACES SEVERE FLOODING ALMOST EVERY YEAR DUE TO ITS LOW-LYING LAND, HEAVY RAINFALL, AND OVERFLOWING RIVERS LIKE THE NIGER. FLOODS DESTROY HOMES, CROPS, AND BUSINESSES, DISPLACING THOUSANDS OF PEOPLE AND CAUSING ECONOMIC HARDSHIP. FOR INSTANCE, THE 2012 AND 2022 FLOODS AFFECTED OVER 80% OF THE STATE DISPLACED 1.4 MILLION PEOPLE, LEADING TO LOSS OF LIVES, DAMAGED INFRASTRUCTURE, AND FOOD SHORTAGES. THESE EVENTS DISRUPT EDUCATION, HEALTH SERVICES, AND LIVELIHOODS, MAKING SOLUTIONS LIKE AMPHIBIOUS HOUSES CRITICAL TO HELP COMMUNITIES STAY RESILIENT AND RECOVER FASTER. AMPHIBIOUS HOUSES COULD TRANSFORM HOW BAYELSA RESIDENTS COPE WITH FLOODS, OFFERING A HOPEFUL, PRACTICAL WAY TO LIVE SAFELY IN A CHALLENGING ENVIRONMENT



LEADING THE CHARGE IS BACA ARCHITECTS, A LONDON-BASED FIRM SPECIALIZING IN FLOOD-RESILIENT “AQUATECTURE.” THEIR FORMOSA HOUSE (2014), THE UK’S FIRST AMPHIBIOUS HOME, SITS ON A THAMES ISLAND IN MARLOW, BUCKINGHAMSHIRE. THIS 225SQM, ZINC-CLAD BEAUTY FLOATS UP TO 2.7M DURING FLOODS, RESTING IN A CONCRETE DOCK WITH FOUR GUIDEPOSTS TO KEEP IT STEADY. REPLACING A FLOOD-VULNERABLE BUNGALOW, IT BLENDS MODERN DESIGN WITH A TERRACED GARDEN THAT ACTS AS A NATURAL FLOOD ALERT SYSTEM, EARNING A 2014 LONDON DESIGN AWARDS GOLD. BACA’S MISTY RIVER HOUSE (2024) IN HENLEY-ON-THAMES, THE WORLD’S LARGEST AMPHIBIOUS HOME AT 385SQM, UPGRADES A SUBSTANDARD DWELLING IN A FLOOD ZONE 3 AREA. ITS OAK TIMBER FRAME AND LIME-RENDERED PANELS FLOAT WITHIN A DOCK, ENHANCING RIVERFRONT AESTHETICS WHILE SLASHING FLOOD RISK. GLOBALLY, BACA’S INFLUENCE EXTENDS TO PROJECTS LIKE A FLOATING HOME ON CHICHESTER CANAL (2017), SHOWCASING SCALABLE SOLUTIONS FOR URBAN WATERWAYS.
OTHER PIONEERS SHINE TOO. THE BUOYANT FOUNDATION PROJECT (BFP), LED BY ELIZABETH ENGLISH, RETROFITS NEW ORLEANS’ SHOTGUN HOUSES WITH BUOYANT SYSTEMS POST-KATRINA, WHILE THEIR BANGLADESH PROTOTYPES USE PLASTIC BOTTLES FOR LOW-COST FLOTATION. IN THE NETHERLANDS, WATERSTUDIO. NL’S MAASBOMMEL AMPHIBIOUS HOUSE (2005) FLOATS ON A CONCRETE PONTOON, MERGING STYLE AND RESILIENCE. THESE PROJECTS—FROM BACA’S THAMES TRIUMPHS TO BFP’S GRASSROOTS DESIGNS —PROVE AMPHIBIOUS ARCHITECTURE ISN’T JUST SURVIVING FLOODS; IT’S THRIVING THROUGH THEM,OFFERING A BOLD, BUOYANT FUTURE FOR FLOOD-PRONE COMMUNITIES.
ADOPTED IJAW CONSTRUCTION TECHNIQUES
IJAW CONSTRUCTION TECHNIQUES, ADAPTED TO THE FLOOD-PRONE NIGER DELTA, EMPHASIZE RESILIENCE AND FUNCTIONALITY USING LOCAL MATERIALS. WATTLE AND DAUB IS A PRIMARY METHOD, WHERE A LATTICE OF WOVEN TIMBER OR MANGROVE STICKS (WATTLE) IS COATED WITH CHIKOKO, A DURABLE MIXTURE OF CLAY SOIL AND DEAD VEGETABLE MATTER RESISTANT TO WATER EROSION. THIS CREATES STURDY, WATER-REPELLENT WALLS FOR DWELLINGS LIKE THE ATOUKO WARE. TIMBER POSTS AND STILTS ARE USED IN STILT HOUSES, ELEVATING STRUCTURES ABOVE FLOODWATERS (UP TO 1.2-2M DEEP) TO PROTECT AGAINST HIGH TIDES AND SEASONAL FLOODING, WITH STILT HEIGHTS DETERMINED BY LOCAL FLOOD KNOWLEDGE. THESE POSTS PROVIDE STRUCTURAL SUPPORT AND ACCESS TO WATERWAYS, AS SEEN IN RIVERSIDE SETTLEMENTS. THE CHIKOKO CLAY MIXTURE ALSO FORMS ELEVATED FOUNDATIONS, SUCH AS IN ATOUKO WARE, SERVING AS FIRE-RESISTANT BASES FOR HEARTHS USED IN FISH DRYING, KITCHENS, AND DINING AREAS, OUTLASTING LESS DURABLE STRUCTURES DUE TO ITS EROSION RESISTANCE.






















































































































































































