KHÔNG GIAN KHÁN PHÒNG - RẠP CHIẾU PHIM

Page 1

GVHD: TRƯƠNG THỊ THANH TRÚC

SVTH: LỮ THỊ NGỌC HIẾU

MSSV: 19510101042

LỚPHỌC PHẦN: 830004203

TRƯỜNG ĐẠI HỌC KIẾN TRÚC TP.HCM

KHÔNG GIAN KHÁN PHÒNG

MÔN
2 0 2 2 —
KHOAKIẾN TRÚC

A

. GIỚI THIỆU CÔNG TRÌNH:

1.Thông tin công trình.

2. Các mặt bằng của công trình.

3. Các mặt đứng của công trình.

4. Các mặt cắt của công trình..

5. Chi tiết thiết kế của công trình.

6. Phối cảnh và tiểu cảnh công trình.

B. PHÂN TÍCH CÁC TÍNH CHẤT

1.Thích dụng.

2. Bền vững.

3.Thẩm mĩ.

4. Kinh tế.

C. KẾT LUẬN:

1. Nhận xét.

2. Đánh giá.

MỤC
LỤC

LỜI MỞ ĐẦU

1. KHÁN PHÒNG:

Khán phòng là không gian biểu diễn tiêu biểu phục vụ cho

nhu cầu giải trí tinh thần cho khán giả thông qua nghe nhìn. Là một

không gian công cộng mang tính giải trí, nghệ thuật.

2. RẠPCHIẾU PHIM:

Rạp chiếu phim cũng là một trong những công trình thuộc

thể loại khán phòng, Rạp chiếu phim là một tòa nhà có khán phòng

để phục vụ mục đích xem phim giải trí. Hầu hết các rạp chiếu phim

đều bán vé vào xem. Tuy nhiên, một số rạp chiếu phim được các

tổ chức hoặc tổ chức phi lợi nhuận điều hành mà chỉ thu phí thành

viên để xem phim.

Các công trình rạp chiếu phim ngày nay được ưa chuộng

nên được xây dựng nên nhiều và quy mô ngày càng chất lượng

hơn. Kiến trúc của rạp chiếu phim cũng ngày càng phát triển độc

đáo tạo nên những dấu ấn cho kiến trúc của thế giới. Kiến trúc kết

hợp công nghệ độc đáo....

LÝ DO CHỌN CÔNGTRÌNH

Không gian khán phòng được chia thành nhiều loại khác nhau, tùy vào mục đích sử dụng của con người. Rạp chiếu phim cũng là 1 thể loại khán phòng đang rất là phát triển phục vụ cho mục đích giải trí của con người.

Trung tâm điện ảnh Busan (Busan Cinema Center)

A. GIỚITHIỆU CÔNGTRÌNH

1. THÔNG TIN CÔNG TRÌNH:

Thông tin chung:

Dự án:Trung tâm điện ảnh Busan (Busan Cinema Center)

Địa điểm: thành phố Busan, Hàn Quốc.

Tư vấn thiết kế: Công ty Coop Himmelb (l)AU

Quy mô:

• Diện tích đất Khoảng 55.000m2; Diện tích sàn: khoảng

32.000m2

• Công trình: Nhà hát 840 chỗ ngồi; 1 rạp chiếu phim 413

chỗ; 2 rạp chiếu phim nhỏ 212 chỗ ngồi

• Sân ngoài trời: 4000 chỗ ngồi

Năm hoàn thành: 2012

Trung tâm điện ảnh Busan là một trung tâm điện ảnh mới của

thành phố Busan, nơi tổ chức các Liên hoan phim quốc tế Busan (BIFF). Công trình do Công ty Áo Coop Himmelb (l)

AU thiết kế sau khi dành chiến thắng trong cuộc thi kiến trúc vào năm 2005. Công trình bắt đầu được xây dựng năm 2008, hoàn thành năm 2012.

Thiết kế của COOP HIMMELB (L) AU cho Trung tâm Điện ảnh Busan và nơi tổ chức Liên hoan phim Quốc tế Pusan (PIFF) mang đến một giao điểm mới giữa không gian công cộng, các chương trình văn hóa, giải trí, công nghệ và kiến trúc, tạo nên những địa danh sôi động trong cảnh quan đô thị.

GIỚITHIỆU CÔNGTRÌNH

1. THÔNG TIN CÔNG TRÌNH:

Ý tưởng thiết kế: Ý tưởng thiết kế kiến trúc của công trình bắt nguồn từ các quan điểm về sự chồng chéo của các không gian mở tại khu vực có chức năng công cộng và không gian đóng tại khu vực có chức năng riêng biệt, tư nhân. Thay vì được phân tách rõ ràng theo cả phương ngang và phương đứng, với sự hỗ trợ của công nghệ kỹ thuật xây dựng, trang thiết bị hiện đại..., chúng có thể hoàn toàn đan xen vào nhau, tạo ra một hệ thống không gian sôi động cả bên trong lẫn bên ngoài công trình, đặc biệt cho các công trình có chức năng văn hóa, giải trí.

Ý tưởng tiếp theo về thiết kế kiến trúc của công trình bắt nguồn từ quan điểm về mái nhà, như một yếu tố tạo lập kiến trúc. Đây là một đề tài mà Công ty Coop Himmelb (l) AU theo đuổi từ lâu.

Nhóm tư vấn lấy cảm hứng từ các mái vòm của thời kỳ Phục hưng và Baroque; mái vỏ mỏng mềm mại trong các công trình kiến trúc của KTS. Oscar Niemeyer tại Rio de Janeiro, Brasil, cũng như khối mái dạng điêu khắc trong các công trình nhà ở của KTS. Le Corbusier

A.

Không gian rạp chiếu phim ngoài trời.

A. GIỚI
THIỆU CÔNGTRÌNH

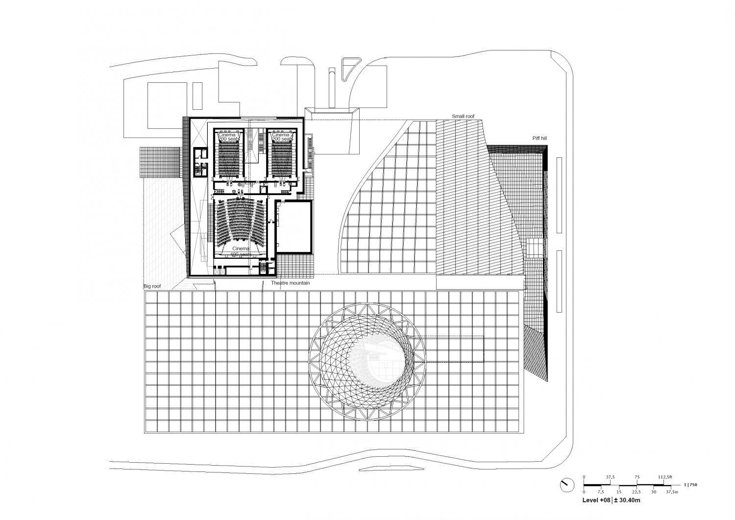
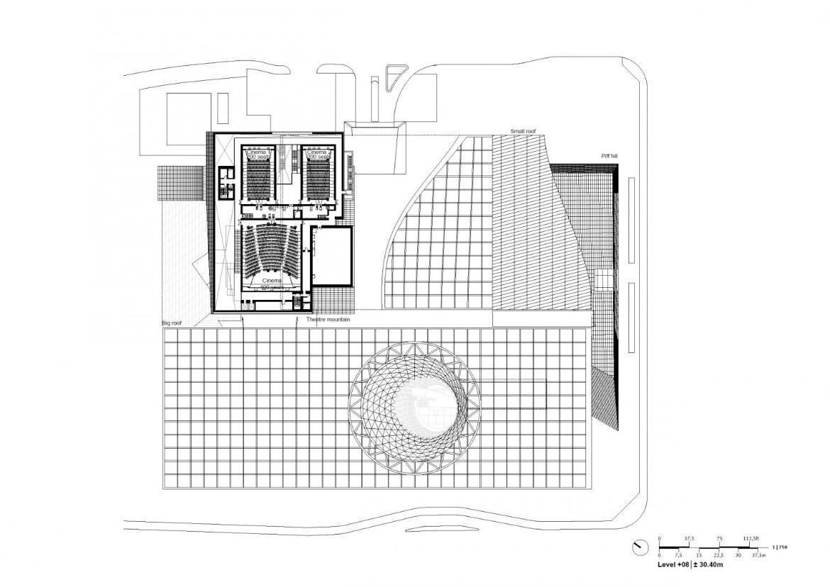
THIỆU CÔNGTRÌNH 2. CÁC MẶT BẰNG CÔNG TRÌNH:

A. GIỚI

2. CÁC MẶT BẰNG CÔNG TRÌNH:

Không gian rạp chiếu phim trong nhà.

3. CÁC MẶT ĐỨNG CÔNG TRÌNH

A. GIỚITHIỆU CÔNGTRÌNH
A. GIỚITHIỆU CÔNG
4. CÁC MẶT CẮT
MẶTCẮTQUARẠPCHIẾU PHIM
TRÌNH
CÔNG TRÌNH:
A. GIỚITHIỆU CÔNGTRÌNH 4. CÁC MẶT
MẶTCẮTQUARẠP
I
CẮT CÔNG TRÌNH:
CHIẾU PHIM NGOÀITRỜ

A. GIỚITHIỆU CÔNGTRÌNH

5. CHI TIẾT THIẾT KẾ CỦACÔNG TRÌNH:

Công trình có chi tiết kết cấu thép đặc trưng ở phần mái

công trình.

A. GIỚITHIỆU CÔNGTRÌNH

6. PHỐI CẢNH VÀ TIỂU CẢNH CÔNG TRÌNH:

1.

B. PHÂNTÍCH

YÊU CẦU THÍCH DỤNG:

1.1. KHÔNG GIAN: CÁC KHU CHỨC NĂNG

RẠPCHIẾU PHIM

CHIẾU PHIM NGOÀITRỜI

SẢNH RẠPPHIM

HÀNH CHÍNH

NHÀ HÁT

SẢNH NHÀ HÁT

TRUNG TÂM NGHỆTHUẬT

KHỐI HỘI HỌP

NHÀ HÀNG, COFFEE

BÃI XE

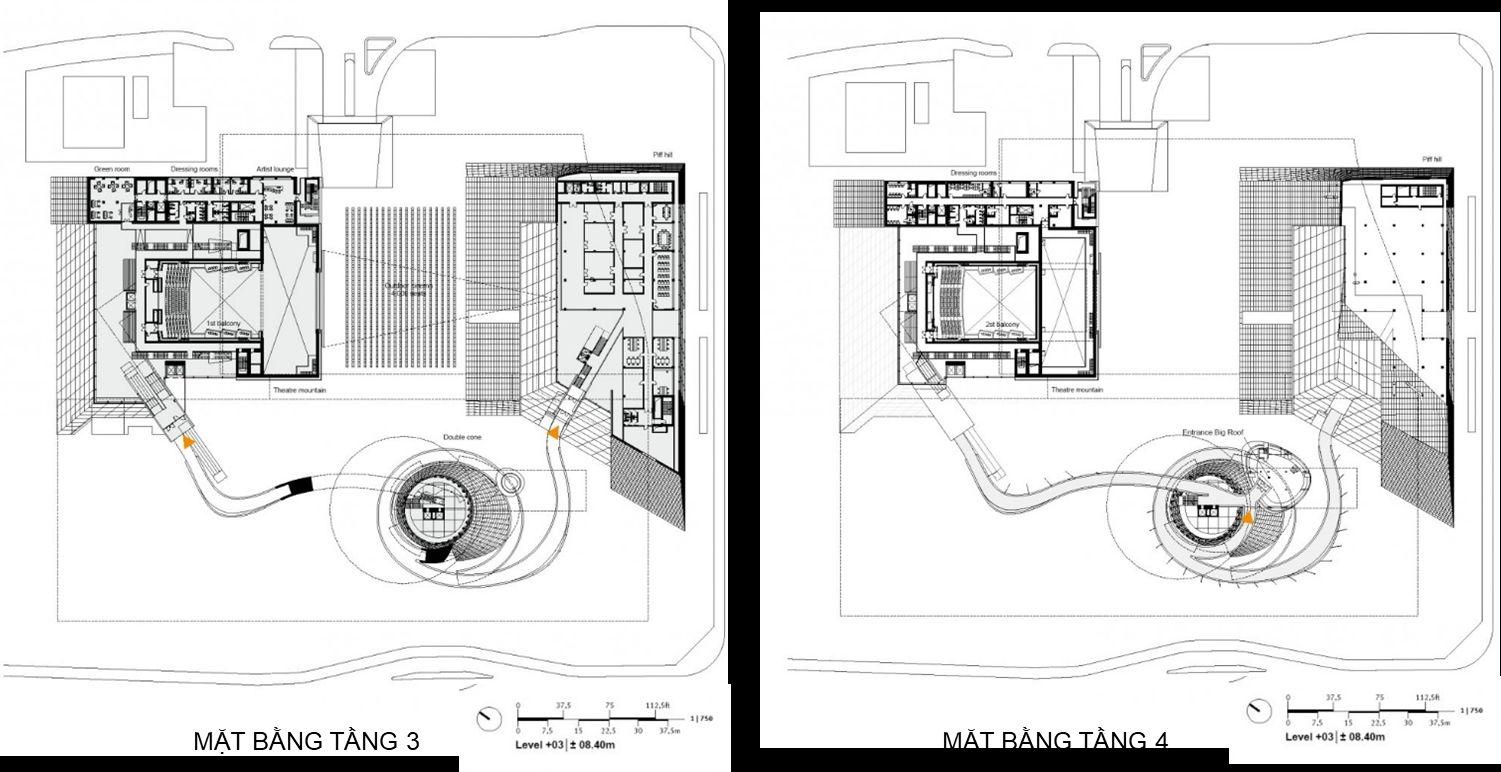
Công trình bao gồm 3 khối chức năng chính:

- Khối điện ảnh (Cinema Mountain) là một khu vực đa chức năng, gồm một nhà hát và 3 rạp chiếu phim;

- Khối hội họp, trưng bày (BIFF Hill) gồm trung tâm hội nghị, trung tâm nghệ thuật thị giác và văn phòng;

nơi tổ chức các sự kiện, lễ hội.Tại đây còn có một rạp chiếu phim ngoài trời.

- Khối hình nón đôi hay hình đồng hồ cát – cột đỡ mái (Double Cone). Bên trong là hệ thống cầu thang

và không gian cho trung tâm báo chí của BIFF. Khu vực này có chức năng chủ yếu như là một không

gian mở ngoài trời liên kết hai khối điện ảnh và hội họp.

BIFF Hill Double Cone Cenima Mountain

1.

B. PHÂNTÍCH

YÊU CẦU THÍCH DỤNG

:

Tòa nhà chính được gọi là “Cinema Mountain”, một trung tâm giải trí đa năng và ba rạp hát và “Đồi BIFF” với Văn phòng Điều hành của BIFF và “Double Cone”. Ở tầng trệt là quán cà phê, trong khi ở các tầng cao hơn có nhà hàng, quầy bar và sảnh khách nhìn ra sông.Trong suốt thời gian diễn ra liên hoan phim, không gian này được sử dụng như một lối vào VIP và cũng có thể được sử dụng làm bối cảnh cho các sự kiện liên quan đến nó.

Rạp chiếu phim trên núi (Cinema Mountain) là một tòa nhà đa chức năng, bao gồm một rạp chiếu phim với sức chứa 1000 người, cũng như ba rạp chiếu phim. Hai trong số đó có thể chứa 200 khán giả mỗi chỗ, trong khi thứ ba có thể chứa 400. Vé xem rạp và rạp chiếu phim là độc lập.

Đồi BIFF (BIFF Hill) được thành lập với nhu cầu chức năng của lễ hội. Bao gồm một trung tâm hội nghị, một trung tâm nghệ thuật thị

giác và các văn phòng cho ban tổ chức, ở một bên dựa vào bục sẽ

phục vụ khán giả đến xem rạp chiếu phim ngoài trời. Nhờ tổ chức linh hoạt có thể thích ứng với các mục đích sử dụng khác nhau để vận hành và hoạt động hiệu quả hàng ngày. Double Cone, đến lượt nó là cột duy nhất hỗ trợ phần mái lớn bao phủ hình vuông, được đặt bên trong trung tâm báo chí của BIFF. Các chức năng ngoài trời được chiếu vào mặt đông của Mountain Cinema. Khoảng không trước mặt, nơi có khán đài với sức chứa 4 000 người, được gọi là Thung lũng Đô thị (Urban Valley). Mọi thứ đều được cung cấp cho những sự kiện này, và thậm chí người ta còn mong đợi có thể sử dụng “hậu trường” của nhà hát, nằm ở đó.

1.1. KHÔNG GIAN: CÁC KHU CHỨC NĂNG CINEMA MOUNTAIN

DOUBLE CONE

HILL
BIFF

1.YÊU CẦU THÍCH DỤNG: 1.1. KHÔNG GIAN:

Công trình có cả rạp chiếu phim trong nhà và ngoài trời. Các không gian có kích thước và số lượng ghế ngồi khác nhau, tạo sự đa dạng trong sử dụng không gian trong công trình.

• 1 rạp chiếu phim 413 chỗ; 2 rạp chiếu phim nhỏ 212 chỗ ngồi

• Rạp chiếu phim ngoài trời 4000 chỗ ngồi

Mặt bằng được bố cục thành 3 khu chức năng như đã nêu ở trên tuy nhiên tận dụng khu Double Cone là khu công cộng dành cho nhà hàng và coffee đồng thời ở vị trí trụ đỡ khung kết cấu của giàn mái, có chức năng kết nối chính cho 3 khu chức năng và có thể xem nó là nút giao thông quan trong trong công trình để kết nối 3 khối chức năng. Các bộ phận chức năng đi kèm các khán phòng sẽ được bố trí vào khu vực của khán phòng đó. Phân khu chức năng nội bộ và khác trên mặt bằng vô cùng hợp lý, thuận tiện di chuyển các lối giao thông.

B. PHÂNTÍCH

1.YÊU CẦU THÍCH DỤNG: 1.1. KHÔNG GIAN: SẮPXẾPKHÔNG GIAN

CÁC KHÔNG GIAN KHÁN PHÒNG ĐƯỢC TÁCH BIỆT HOÀN TOÀN VỚI NHAU

Sự tách biệt hoàn toàn về cấu trúc giữa rạp hát và các rạp chiếu phim đảm bảo cách ly tiếng ồn tối ưu cho không gian rạp, được thiết kế như một hội trường hạng nhất, linh hoạt với chỗ ngồi trên hai tầng, đường ngắm tối ưu và âm học có thể điều chỉnh. Một sân khấu kiểu proscenium linh hoạt với các sân khấu bên cạnh và tháp bay chứa các tháp tiêu âm có thể di chuyển được dùng để giảm âm lượng sân khấu cho các buổi hòa nhạc và nhà hát biểu diễn, nhưng có thể dễ dàng di chuyển cho nhà hát, nhạc kịch và các sự kiện được dàn dựng khác. Sân khấu bao gồm một thang máy phía trước sân khấu có thể cung cấp thêm chỗ ngồi, một hố dàn nhạc hoặc phần mở rộng sân khấu tùy thích. Các rèm theo chiều ngang dọc theo các bức tường của buồng khán giả có thể được ẩn hoặc triển khai để điều chỉnh âm thanh của không gian.

B. PHÂN
TÍCH

1.YÊU CẦU THÍCH DỤNG: 1.1. KHÔNG GIAN: SẮPXẾPKHÔNG GIAN

CÁC KHÔNG GIAN KHÁN PHÒNG ĐƯỢC TÁCH BIỆT HOÀN TOÀN VỚI NHAU

Sự tách biệt hoàn toàn về cấu trúc giữa rạp hát và các rạp chiếu phim đảm bảo cách ly tiếng ồn tối ưu cho không gian rạp, được thiết kế như một hội trường hạng nhất, linh hoạt với chỗ ngồi trên hai tầng, đường ngắm tối ưu và âm học có thể điều chỉnh. Một sân khấu kiểu proscenium linh hoạt với các sân khấu bên cạnh và tháp bay chứa các tháp tiêu âm có thể di chuyển được dùng để giảm âm lượng sân khấu cho các buổi hòa nhạc và nhà hát biểu diễn, nhưng có thể dễ dàng di chuyển cho nhà hát, nhạc kịch và các sự kiện được dàn dựng khác. Sân khấu bao gồm một thang máy phía trước sân khấu có thể cung cấp thêm chỗ ngồi, một hố dàn nhạc hoặc phần mở rộng sân khấu tùy thích. Các rèm theo chiều ngang dọc theo các bức tường của buồng khán giả có thể được ẩn hoặc triển khai để điều chỉnh âm thanh của không gian.

B. PHÂN
TÍCH

1.YÊU CẦU THÍCH DỤNG: 1.1. KHÔNG GIAN: GIAOTHÔNGTRONG CÔNGTRÌNH

TẠO PHẦN SẢNH VỚI KHÔNG GIAN ĐỘC ĐÁO NÚTGIAOTHÔNG CHÍNHTRONG CÔNGTRÌNH

Double Cone là lối vào mang tính bước ngoặt vào Trung tâm Điện ảnh Busan và nối Núi Điện ảnh với Đồi BIFF. Được thiết kế như một lớp vỏ lưới thép nằm trên các tấm bê tông có nhịp, nó hoạt động như một cột đơn, giá

đỡ cấu trúc thẳng đứng duy nhất của mái hẫng vươn xa.

Tầng trệt của Double Cone bao gồm một quán cà phê công cộng với chỗ ngồi ngoài trời, trong khi tầng trên mang

đến một nhà hàng, quầy bar và sảnh tiếp khách trải rộng trên mái nhà, với tầm nhìn ra công viên liền kề và dòng

sông bên kia.

Trong suốt lễ hội, dẫn đến lối vào VIP của Double Cone, đồng thời hoạt động như một con đường biểu tượng hướng

tớiTrung tâm trong thời gian không diễn ra sự kiện.

B. PHÂNTÍCH

B. PHÂNTÍCH

1.YÊU CẦU THÍCH DỤNG: 1.1. KHÔNG GIAN:

TẠO PHẦN SẢNH VỚI KHÔNG GIAN ĐỘC ĐÁO

NÚTGIAOTHÔNG CHÍNHTRONG CÔNGTRÌNH

B. PHÂNTÍCH

1.YÊU CẦU THÍCH DỤNG: 1.1. KHÔNG GIAN: GIAOTHÔNGTRONG CÔNGTRÌNH

KỸTHUẬT: ÁNH SÁNG

mặt đèn LED cho thấy sự nổi bậc trong công

mặt chiếu sáng LED năng động bao phủ trần nhà nhấp nhô của

1.2
Bề
Bề
nghệ
B. PHÂNTÍCH 1.YÊU CẦU THÍCH DỤNG:
kiến trúc của PIFF.
kết hợp với kiến trúc

Hình dạng mái nhà tạo ra hiệu ứng hút

Thông hơi đóng vào mùa đông, mở vào mùa hè

Chiết xuất nhiệt từ rạp chiếu phim làm ấm sàn phía trên

Thông gió trong rạp

Mái nhà cung cấp bóng râm và tạo ra năng lượng thông qua các tế bào quang điện

Vi khí hậu dễ chịu trong rạp chiếu phim ngoài trời.

Chuyển động không khí vào mùa hè để làm mát không gian ngoài trời

Sàn RADIANT

Bộ trao đổi nhiệt mặt đất để sử dụng năng lượng địa nhiệt để làm mát và sưởi ấm bằng bức xạ

B. PHÂNTÍCH

1.YÊU CẦU THÍCH DỤNG: 1.2 KỸTHUẬT: CÔNG NGHỆ KỸTHUẬTSỬ DỤNGTRONG RẠPCHIẾU PHIM

- Chiết xuất nhiệt từ rạp chiếu phim làm ấm sàn phía trên.

- Tạo chi tiết trang trí

cho không gian bên trong rạp chiếu.

B. PHÂNTÍCH

1.YÊU CẦU THÍCH DỤNG:

1.3. HÌNHTHỨC, VẬTLIỆU:

HÌNH KHỐI CÔNGTRÌNH

Lấy hình ảnh ngọn đồi làm cảm hứng cho công trình, đặt tên các khu chức năng cũng: Cenima Mountain, BIFF Hill, Double Cone

1.

B. PHÂNTÍCH

LIỆU
TRÌNH Vật liệu xây dựng công trình là sự kết hợp của bê tông, thép, kính và vật liệu ốp bên ngoài. Cùng với các đường nét của công trình tạo nên những không gian được kết hợp vật liệu hết sức hài hòa. VẬTLIỆU KÍNH BAO CHE VẬTLIỆUTHÉP KHUNGTHÉPKẾTHỢPKÍNH
YÊU CẦU THÍCH DỤNG: 1.3. HÌNHTHỨC, VẬTLIỆU: VẬT
CÔNG

B. PHÂNTÍCH

1.YÊU CẦU THÍCH DỤNG: 1.3. HÌNHTHỨC, VẬTLIỆU: VẬTLIỆU CÔNGTRÌNH

2.YÊU CẦU BỀN VỮNG: KẾTCẤU CÔNGTRÌNH

2 phần mái lớn của công trình được xây dựng hoàn

toàn với kết cấu thép và hoàn thiện bề mặt bằng

những tấm kim loại.

Các mái nhà hẫng lớn được làm bằng thép không có

lớp phủ bê tông, vì điều này sẽ làm tăng trọng lượng

của kết cấu quá mức mà không thể góp phần thực tế

vào ứng suất kéo mà mỗi phần phải chịu.

B. PHÂNTÍCH
Giải pháp kết cấu được hình thành cho dự án này dựa trên sự kết hợp của bê tông cốt thép và kết cấu thép

2.YÊU CẦU BỀN VỮNG:

KẾTCẤU CÔNGTRÌNH – KẾTCẤU MÁI

163m 60m

Là công xôn tự do dài nhất thế giới với nhịp 85 mét cho bề mặt mái 60 x 160 mét, khung không

gian bằng thép ba chiều được kết nối với một cột hình nón lớn duy nhất, cũng là nơi chứa một quán cà phê và lối vào. Bề mặt chiếu sáng LED động bao phủ toàn bộ trần nhấp nhô của mái đúc hẫng

đã được lắp đặt và thử nghiệm.

Kết cấu mái ở Busan là kết cấu hẫng đơn - loại lớn nhất trên thế giới - phục vụ cho ba tầng không

gian nội thất rộng rãi. Là một trung tâm tổ chức sự kiện đa chức năng, cấu trúc mở rộng nằm trên các tấm bê tông kéo dài và hoạt động đẹp mắt

Phần chịu lực lớn nhất trong kết cấu của toàn bộ phần mái công trình. Không chỉ

hoạt động như một cột đỡ bằng kim loại có hình tam giác, nó còn có chức năng như phương thức lưu thông trung tâm

B. PHÂNTÍCH

2.

YÊU CẦU BỀN VỮNG:

KẾTCẤU CÔNGTRÌNH – KẾTCẤU MÁI

Hình nón kép là cấu trúc hỗ trợ thẳng đứng duy nhất của tán lớn, hoạt động như một cột lớn duy nhất. và là một cấu trúc không được che chắn. Vì vậy, việc xác định hướng của từng mặt của khung thép là vô cùng quan trọng.

Cấu trúc Hình nón đôi của nó, với mười một vòng ngang và giàn chéo, trở thành một cử chỉ biểu tượng với chất lượng cấu trúc thực sự như là yếu tố cấu trúc hỗ trợ theo chiều dọc duy nhất cho mái nhà hình chiếu lớn.

Xếp tầng từ lõi trung tâm này, cấu trúc mái nhấp nhô mang ý tưởng về một mái nhà bay hoặc đám mây bay lên. Một phần lớn vỏ lưới thép được đúc sẵn tại chỗ và được gia cố thêm thông qua cấu trúc khung thép hình vương miện, bao gồm hai vòng vì kèo trên cùng và một vương miện cơ sở để kết nối mái và Nón đôi

PHÂN
B.
TÍCH

2.YÊU CẦU BỀN VỮNG: KỸTHUẬTXÂYDỰNG

Kết cấu đặc biệt ở phần mái đã khiến cho quá trình thi công công trình cũng vô cùng độc đáo. Khối lượng lớn cùng với kích thước phần mái

với công sôn lớn nhất thế giới nên công phần mái được thi công bằng phương pháp lắp ghép.

Mặt trước và mặt sau của Big Roof từng nằm trên mặt đất và được nâng lên trên cần trục của tháp. trước khi được gắn vào các cột hình nón đôi hỗ trợ toàn bộ cấu trúc.

Khi một buổi lễ được tổ chức để kỷ niệm việc hoàn thành cấu trúc của Big Roof, cách nó được nâng lên đã thu hút sự chú ý của cộng đồng kiến trúc. Như đã đề cập bởi HanJin Heavy Industries (Nhà thầu của Trung tâm Điện ảnh Busan), phương pháp nâng mái dài nhất là mới lạ và tiên tiến.

B. PHÂN
TÍCH

B. PHÂNTÍCH

Một
Nguồn:Youtube Coop Himmelblau Khởi
Xây dựng các khối bê tông cốt thép cố định trước Hoàn thiện các bề mặt bằng việc kết hợp các vật liệu ốp Lắp ghép phần mái Tiếp tục xây dựng cách khối chức năng
2.YÊU CẦU BỀN VỮNG:
số hình ảnh thì công công trình
công đánh dấu vị trí các

B. PHÂNTÍCH

3.YÊU CẦU THẨM MĨ:

TỔ CHỨC KHÔNG GIANTRONG CÔNGTRÌNH

Không gian chiếu phim ngoài trời trong

công trình được bố trí ở ngày dưới phần

mái lớn với hệ thống đèn LED tiên tiến

→ Không gian tăng tính thẩm mĩ cao,

thu hút mọi người đến trải nghiệm

không gian huyền ảo nhiều cảm xúc.

Hình ảnh không gian rạp chiếu phim 4000 chỗ ngoài trời

B. PHÂNTÍCH

3.YÊU CẦU THẨM MĨ:

HÌNHTHỨC XÂYDỰNG BÊNTRONG CÔNGTRÌNH

Các vật liệu sử dụng trong công trình cùng với thiết kế không gian độc đáo phía trong. Đồng thơi màu sắc lựa chọn

bên trong công trình hài hòa. Các chi tiết kết cấu khung thép trong bộ khung kết cấu lộ ra trong không gian phía trong

nhưng là không thô mà tạo nên những không gian độc đáo, tăng tính thẩm cao trong công trình.

3.YÊU CẦU THẨM MĨ:

THẨM MĨTRONG HÌNH KHỐI BÊN NGOÀI

Hình khối công trình độc đáo với chiếc “máy bay” khổng lồ lơ lửng như 1 đám mây �� tạo nên 1 không gian mở hoàn hảo tăng tính thẩm mĩ trong công trình, thu hút con người tìm đến. Để nhận ra sự hiểu biết của Coop Himmelb (l) au về địa điểm này, cùng với khái niệm 'mái nhà bay', cùng một bóng râm đã được sử dụng để hoàn thiện cả phần gầm và máy bay mặt đất của tòa nhà. Nhìn chung, mái bay tạo nên một sự tương tác thú vị, vì nó trông như thể tòa nhà đã mọc lên về mặt địa chất từTrái đất. Với khoảng 42.000 đèn LED được lắp đặt, do đó cho phép hình ảnh trực quan sống động, cấu trúc được tạo ra một sự cộng hưởng ấn tượng vào ban đêm.

B. PHÂNTÍCH

B. PHÂNTÍCH

4.YÊU CẦU KINH TẾ: Busan Cinema Center là công trình có quy mô lớn về mặt văn hóa. Ở Hàn Quốc, ngành công nghiệp điện ảnh vô cùng phát triển và là nơi diễn ra các cuộc trao giải lớn. Công trình mang tình nghệ thuật cao nên được xây dựng với quy mô lớn. Vì vậy tính kinh tế trong công trình không được chú trọng lắm. Chi phí xây dựng thi công cũng bằng những kỹ thuật cao.Tuy nhiên nhờ đó tính bền vững công trình được nâng cao.

- Giao thông trong công trình chắc chẽ, không bị chồng chèo và các khu chức năng chung thì lỗi giao thông thuận tiện.

- Bố cục mặt bằng công trình hợp lý thể hiện qua việc phân các khối nhà thành các khu chức năng khác nhau.

- Những kỹ thuật công nghệ sử dụng nhiều trong công trình và đem lại hiệu quả cao.

- Kết cấu bao che của công trình đơn giản mà hiệu quả cao

Tính thích dụng trong công trình được

khai thác tốt và hiệu quả

2.

- Kết cấu công trình là sự kết hợp giữa kết cấu bê tông cốt thép và kết cấu thép.

- Kỹ thuật xây dựng tiên tiến, xử lý xây dựng các kết cấu khó chính xác, đạt hiệu quả cao. �� Tăng độ bền vững cho công trình

- Thẩm mĩ trong tổ chức

không gian được áp dụng rất điêu luyện và triệt để.

- Không gian bên trong

công trình có tính thẩm

mĩ cao

- Hình khối công trình

thu hút nổi bậc.

�� Tính thẩm mĩ cao

-Yêu cầu về kinh tế không được áp dụng nhiều trong công tình.

GIÁ: ● Không gian khán phòng trong công trình đa dạng, đặc biệt ở khán phòng rạp chiếu phim trong công trình đa dạng cả về hình thức và không gian kích thước khán phòng. Công trình có 1 rạp chiếu phim ngoài trời với một không gian huyền ảo bên dưới dài đèn LED. Ba khán phòng chiếu phim trong nhà với sức chứa khác nhau.

● Công trình đảm bảo các yêu cầu độc đáo về yếu tố về thích dụng, bền vững, ngoài ra còn có tính thẩm mĩ cao.

→ KẾT LUẬN: Thiết kế của COOP HIMMELB (L) AU cho Trung tâm Điện ảnh Busan và là nơi tổ chức Liên hoan phim Quốc tế

Pusan(PIFF)mangđếnmộtđiểmgiaothoamớigiữakhônggiancôngcộng,cácchươngtrìnhvănhóa,giảitrí,côngnghệvàkiếntrúc, tạo ra những địa danh sôi động trong cảnh quan đô thị. đảm bảo các yêu cầu thiết kế công trình công cộng. Áp dụng các kỹ thuật tiên tiến của công nghệ vào công trình và cả kỹ thuật xây dựng.

C. KẾTLUẬN 1. NHẬN XÉT: YÊU CẦUTHÍCH DỤNG YÊU CẦU BỀN VỮNG YÊU CẦUTHẨM MĨ YÊU CẦU KINHTẾ
��
ĐÁNH

● http://bmktcn.com/index.php?option=com_content&task=view&id=6552&Itemid=184

● https://www.e-architect.com/korea/busan-cinema-center

● https://es.wikiarquitectura.com/edificio/busan-cinema-center/

● https://www.archdaily.com/347512/busan-cinema-center-coop-himmelblau

● https://www.world-architects.com/en/coop-himmelb-l-au-vienna/project/busan-cinema-ce nter

● https://www.architectour.net/opere/opera.php?id_opera=6432&nome_opera=Busan%20 Cinema%20Center%20/%20Busan%20International%20Film%20Festival&architetto=Co op%20Himmelb(l)au

● https://archello.com/project/busan-cinema-center-busan-international-film-festival

● https://coop-himmelblau.at/projects/busan-cinema-center-busan-international-film-festival /

● https://www.australiandesignreview.com/architecture/busan-cinema-centre/

D. TÀI LIỆUTHAM KHẢO
THE END

Turn static files into dynamic content formats.

Create a flipbook
Issuu converts static files into: digital portfolios, online yearbooks, online catalogs, digital photo albums and more. Sign up and create your flipbook.
KHÔNG GIAN KHÁN PHÒNG - RẠP CHIẾU PHIM by Hiếu Lữ Thị Ngọc - Issuu