

ÅRSBERETNING25
Med godt 4.500 boliger i Aalborg, Nørresundby og Østvendsyssel er Sundby-Hvorup Boligselskab et af regionens største almene boligselskaber.
Siden 1943 har vi skabt gode hjem for familier, unge og ældre. Betalbare boliger med gode beliggenheder.
KORT
Vi beskæftiger 67 medarbejdere (pr. 1/12-25).
KLOKKERHOLM FLAUENSKJOLD
HJALLERUP ØRUM
DRONNINGLUND
AGERSTED
VESTBJERG
NØRRESUNDBY:
LØVVANGEN
LINDHOLM
NØRRE UTTRUP
VESTER HASSING
AALBORG

ÅRSBERETNING 2025
Udgivet af Sundby-Hvorup Boligselskab, december 2025
Omdelt til alle beboere og udgivet på: sundby-hvorupboligselskab.dk
Ansv. red: Jens Erik Grøn.
Tilrettelæggelse: tuen
Tryk: Børge Møller Grafisk
Oplag: 4.800
Trykt på FSC-mærket genbrugspapir
Vi flytter os hele tiden fremad. Men ikke hurtigere, end at alle kan være med.
Ikke langt fra vores kontor her i Lindholm Søpark er håndværkerne i fuld gang med at renovere flere af de røde murstensblokke, som gennem årtier har været landmærket for bydelen Lindholm. Boligblokke med lejligheder, som har været hjem for tusindvis af lokale familier, der alle har bidraget til vores lokalsamfund.
Renoveringen af de røde blokke er på mange måder kronen på værket, efter snart 15 år, hvor vi har bragt mere end 2.500 boliger op til nutidig standard, og dermed skabt tidssvarende rammer for nye familiers hverdagsliv.
Når jeg går forbi en af de nyrenoverede facader her i Lindholm, hvor murerne har bragt det gamle murværk til live med nye fuger, og hvor tømrerne har genskabt det originale udtryk med nye, sprodsede vinduer. Så bliver jeg glad.
Som når turen går gennem oplandsbyerne nord for fjorden, hvor vi i kraft af boligselskabets størrelse har haft mulighed for at give mange boliger et tiltrængt løft, og hvor nybyggerier har skabt hjem for nye familier.
Vores opgave er ikke ’bare’ at skabe og bygge nyt. Det er i høj grad også at holde fast i det gode og løbende tilpasse og forny. I et tempo, hvor alle kan være med og føler sig hjemme.

Verden omkring os forandrer sig med stor hast. Og vi skal også bevæge os fremad. Men vigtigst af alt skal vi sørge for, at alle vores beboere har en bolig, hvor de føler sig hjemme.
Derfor er vi også et boligselskab, som står ved vores historie: At vi er etableret for at skabe gode, gedigene boliger til alle typer af familier. Et nonprofit, alment boligselskab, hvor ingen skal tjene på beboernes husleje.
Vi flytter os hele tiden fremad. Men ikke hurtigere, end at alle kan være med.
Det er også den røde tråd i vores årsberetning for 2025. Der er mange aktiviteter i gang, og mange ideer bliver afprøvet. Både i storbyen og i vores mange dejlige afdelinger i oplandsbyerne.
Vores boligselskab er veldrevet, og der er styr på ’forretningen’. Det skaber tryghed og ro – og plads til, at de mange formelle og uformelle fællesskaber blandt vores beboere kan spire og vokse.
Tak til alle – beboere og medarbejdere – samt vores samarbejdspartnere, som har bidraget positivt til 2025.
Jens Erik Grøn
Direktør, Sundby-Hvorup Boligselskab

FU: BEBOERNES ØJNE OG ØRER
De mødes ofte og efter behov. Boligselskabets forretningsudvalg (FU), der består af boligselskabets formand, næstformand samt et menigt medlem af organisationsbestyrelsen og boligselskabets direktør.
På den måde kan der hurtigt og effektivt tages stilling til aktuelle sager. FU er beboernes øjne og ører i boligselskabet, og det er tydeligt at mærke, at de tre beboervalgte medlemmer har deres næsten daglige gang i administrationen. De kender alle ansatte og er opdaterede på de igangværende, større sager, der bliver arbejdet med.
I anledning af årsskiftet bad vi FU-medlemerne om at pege på de opgaver, hvor de i særlig grad har været opmærksomme på beboernes vegne:
MERE BIODIVERSITET
Arbejdet med at forny de grønne områder i afdelingerne er et aktuelt eksempel på et projekt, som FU følger nøje med i.
Der er mange holdninger til, hvordan de grønne arealer omkring vores boliger skal vedligeholdes.
Hans: – vi kommer ikke uden om det, men det er også noget, der udfordrer mange beboere, som nok helst så, at græs og bede bliver plejet, som vo-
Jens Jørgen Jensen, Lisbeth Glud (næstformand) og Hans Bøyen Christensen (formand)
Repræsentantskab
Organisationsbestyrelse
Direktør
Boligselskabets afdelinger og ansatte
res folk altid har gjort. Derfor følger vi processen tæt. Det er vigtigt, at vi kan forandre, uden at skabe konflikter i afdelingerne. Og vi er nødt til at gå langsomt frem med forandringerne.
Jens Jørgen: – Jeg synes omdannelserne af de grønne områder er et af de mest spændende projekter, der blev opstartet i 2025. Men også et emne, der deler vandene, og hvor alle har en holdning. Derfor er det også godt, at vi har udvalgt fire afdelinger, hvor der skal laves pilotprojekter, som vi alle kan blive klogere af.
> Læs mere om de grønne projekter på side 18
RENOVERINGER
Alle tre er enige om, at de omfattende renoveringsprojekter i Lindholm og Rævdalsparken, nok er det, der har fyldt mest i 2025.
Lisbeth: – Det har været en hård start i Lindholm, og der har været flere uforudsete forhindringer. Vi følger arbejdet tæt, og vi tror og håber nu på, at alle har lært af de første etaper. Det er ikke sjovt for de beboere, der lever midt i byggepladsen, og vi skylder alle, at arbejdet bliver udført så skånsomt som muligt.
Hans: – De store renoveringer runder også en epoke af. Inden for de seneste 15 år er mere end 2.500 boliger renoveret. Det betyder også, at afdelingerne står godt rustet, når vi i disse år skal spare mere op til planlagt vedligeholdelse.
> Læs mere om renoveringer på side 8
Forretningsudvalget
VI SKAL UDVIKLE LØVHAVEN
Det store nybyggeri af 82 gårdhavehuse på den gamle skolegrund i Løvvangen har også været et tilbagevendende emne i årets løb:
Lisbeth: – Det er rigtig godt, at vi har fået tildelt kvote fra Aalborgs Kommune, så vi nu kan begynde arbejdet med at udvikle hele området omkring Løvvangen. Den nye bebyggelse, Løvhaven, bliver attraktiv for børnefamilier, og vi glæder os meget til at se det nye kvarter vokse op.
Hans: – Hele bydelen får et løft. Det nye sundhedshus har allerede gjort en forskel, og nu bliver området åbnet endnu mere op for alle. Det bliver godt – både for nuværende og kommende beboere.
> Læs mere om Løvhaven på side 12
BEBOERDEMOKRATIET TRIVES
Sammen med resten af organisationsbestyrelsen er FU meget engageret i at udvikle og støtte beboerdemokratiet ude i afdelingerne.
Jens Jørgen: – Det har været et godt år med mange gode beboermøder. Interessen og tilslutningen er stor. Det var for eksempel dejligt at høre, da en beboer sagde; ’…tidligere gik man ind i bestyrelsesarbejdet af tvang. Nu gør jeg det af lyst!’.
Lisbeth: – Det er godt, at vores beboere engagerer sig, og vi har nu afdelingsbestyrelser i alle afdelinger på nær en enkelt.
> Læs mere om beboerdemokratiet på side 22
50 PLEJEBOLIGER PÅ VEJ I GANDRUP

Islutningen af april inviterede vi sammen med Aalborg Kommune, Senior og Omsorg, til rejsegilde
på Gandrups nye plejehjem, og i løbet af året er arbejdet gået støt fremad, så kommunen i 2026 kan byde 50 beboere indenfor i det topmoderne og velindrettede plejehjem.
Forud for byggeriets start inviterede vi til en række velbesøgte møder for borgere i nærområdet. Helt i tråd med vores målsætning om at være en aktiv medspiller i byudviklingen i og omkring Aalborg samt i oplandsbyerne nord for Limfjorden.
Samarbejdet med de lokale foreninger og med Aalborg Kommune har været præget af en stor fælles interesse for at skabe et nyt og levende plejehjem til glæde ikke kun for de kommende beboere men også resten af byen.
ENDNU ET PLEJEHJEM
PÅ VEJ
Vi har gennem længere tid haft et projekt i støbeskeen, og nu er der også politisk opbakning til at opføre et plejehjem i området ved Vestbjerg.
Vi glæder os til at sætte gang i de indledende arbejder i det nye år.
I afdeling 10, Lindholm, var beboerne inviteret til orienteringsmøder flere gange og fik i alt 17 nyhedsbreve, inden de på et ekstraordinært afdelingsmøde i april i år godkendte den tilpassede helhedsplan. Nu er renoveringen gået i gang.


EKSTRAORDINÆRE RENOVERINGSBEHOV
KRÆVER ET GRUNDIGT FORARBEJDE
Uanset hvor meget en afdeling har sparet op, kan der opstå ekstraordinære renoveringsbehov, som ikke kan dækkes af afdelingen alene.
Gennem de seneste 15 år har vi arbejdet med større helhedsplaner for mere end 2.500 boliger. Her har det været nødvendigt – og muligt – at supplere finansieringen med støtte fra Landsbyggefonden samt via ekstraordinære huslejestigninger, der er blevet godkendt af beboerne.
Vi har i alle afdelinger oplevet en konstruktiv dialog med afdelingsbestyrelser og beboere. Men vi har også lært, at vi som boligselskab skal gøre ekstra
meget ud af forløbet og dermed sikre, at alle kan få svar på de spørgsmål, der uundgåeligt dukker op.
Gennem årene har vi derfor udviklet vores ’egen SHB-proces’, der indebærer en tidlig og tæt involvering af afdelingsbestyrelserne og en løbende information til og med beboerne. Både i form af skriftlige nyhedsbreve og mange uformelle møder.
I sidste ende er der sjældent mange, som synes det er godt, at huslejen skal stige ekstraordinært. Men i kraft af det omhyggelige forløb oplever vi, at et stort flertal af beboerne stemmer ja til det endelige projekt.

FØRSTE SKRIDT ER TAGET I HJALLERUP
Vores afdeling i Hjallerup (afdeling 81) er en af de afdelinger, som står overfor nogle omfattende renoveringsopgaver. Blandt andet udskiftning af tage.
Selv om vi endnu er i en meget tidlig fase, har vi allerede været i dialog med afdelingsbestyrelsen om en kommende renovering, og beboerne har fået det første nyhedsbrev om baggrunden for renoveringsprojektet i sommeren 2025.
En del af de nødvendige arbejder er ekstraordinære og skyldes til dels byggeskader fra boligernes opførelse. Derfor har vi ansøgt Landsbyggefonden om støtte til renoveringen.
Repræsentanter fra Landsbyggefonden kommer på besigtigelse i afdelingen til foråret, og derefter skal vi så høre tilbagemeldingerne om fondens muligheder for at støtte afdelingen.
Beboerne blev på afdelingsmødet i sensommeren orienteret om status, og når vi kender tilbagemeldingen fra Landsbyggefonden, vil vi i samarbejde med afdelingsbestyrelsen genoptage inddragelsen af beboerne via nyhedsbreve og kommende orienteringsmøder.
765 BOLIGER RENOVERES I LINDHOLM
De to store renoveringsprojekter, som i de kommende år sætter et stort præg på Lindholm er i fuld gang.
Beboernes tålmodighed har desværre endnu engang været sat på prøve, da arbejdet med de første blokke blev udfordret af både uforudsete opgaver med håndtering af asbestholdige materialer og en mere kompliceret arbejdsgang end forventet.
At bo i og omkring en byggeplads er til stor gene for alle. Derfor er det også glædeligt, at vi nu endelig kan se frem til, at de første boliger bliver klar til indflytning. 1. februar 2026 flytter de første beboere hjem til deres boliger på Viaduktvej (afdeling 3).
De mange ’lærepenge’ fra de første opgange kommer nu resten af beboerne til gode i takt med, at håndværkerne rykker videre.
I alt renoveres 765 boliger i Lindholm i de kommende to år. Nogle mere end andre. Det samlede budget for de to renoveringsprojekter, der begge er støttet af Landsbyggefonden, er knap 400 mio. kr.
RÆVDALSPARKEN


I DRONNINGLUND

Håndværkerne er i fuld gang. Her er før og efter billeder af tag og skure.
I Dronninglund er renoveringen af 55 boliger i Rævdalsparken i fuld gang. Første spadestik blev taget i maj, og arbejdet er indtil nu forløbet efter planen.
Rækkehusene får blandt andet nye tage og sikres mod fugtskader efter optrængende grundvand. Et renoveringsprojekt til knap 27 mio. kr. som foruden Landsbyggefonden også er støttet af boligselskabets dispositionsfond.
GODT HÅNDVÆRK
Traditionen med rejsegilde er både gammel og god. En god anledning til at samle og hylde alle de håndværkere, der er med til at få et byggeri til at lykkes.
I løbet af november har vi været rundt på vores tre igangværende byggepladser. Og selv om, der ikke er tale om nybyggeri – så har vi holdt fast i den gode tradition med ’rejsegilde’.
I Lindholm, hvor 765 boliger i de gamle rødstensblokke bliver renoveret (i afdeling 3 og 10), og i Dronninglund, hvor det er rækkehusene i Rævdalsparken (afdeling 82), der får et tiltrængt løft.
Arbejde, som både håndværkere, rådgivere og vores egne medarbejdere kan være stolte af, og som vores beboere kan glæde sig over (dog nok mest, når byggegenerne er vel overstået).
Udover forfriskninger og lidt godt at spise, var der også takketaler fra vores direktør Jens Erik Grøn og formand Hans Bøyen Christensen. Og alle fik en lille julegave med hjem.



INGEN SKAL TJENE PÅ HUSLEJEN
I EN ALMEN LEJEBOLIG
Det gælder i alle vores boligafdelinger. At ingen skal tjene på huslejen. De huslejekroner, der betales af beboerne i afdelingen, skal bruges i afdelingen.
Til gengæld betyder det også, at hver enkelt boligafdeling selv skal spare op til den løbende vedligeholdelse af boligerne.
Princippet kaldes ’balanceleje’ – og er en unik dansk model, som gennem årtier har været med til at sikre betalbare boliger til alle typer af familier.
Forudsætningen for, at balanceleje-princippet fungerer er imidlertid, at opsparingen er tilstrækkelig stor, så der er nok i afdelingens ’sparegris’, når der skal foretages større renoveringer. I modsat fald kan nuværende beboere – med rette – mene, at de både skal betale for aktuelle renoveringer og samtidig spare op til kommende beboere.
Uanset hvor meget en afdeling sparer op, kan man ikke undgå, at der er renoveringer, som kræver
mere, end blot en opsparing. Men i udgangspunktet tilstræber vi, at vores vedligeholdelsesplaner rummer alle nødvendige opgaver i fremtiden. Helt i overensstemmelse med lovgivningen.
Som optakt til årets afdelingsmøder, hvor budgetterne og dermed opsparingen bliver godkendt, har vores økonomiafdeling derfor været i dialog med afdelingsbestyrelserne for at hjælpe med at få indblik i afdelingens økonomi. Der er også gjort ekstra meget ud af at formidle sammenhængen i afdelingens budget på selve afdelingsmødet.
Resultatet er en markant forøgelse af vores henlæggelser til vedligeholdelse (en fordobling over de seneste 6 år), og dermed en fremtidssikring af vores boliger.
Alle budgetter i vores afdelinger blev godkendt på sensommerens afdelingsmøder. Men det er også vigtigt at understrege, at en stor del af den forøgede opsparing er hentet ved effektivisering af andre dele af afdelingernes drift for derved at undgå unødigt høje huslejestigninger.
SAMLEDE HENLÆGGELSER (OPSPARING TIL PLANLAGT VEDLIGEHOLDELSE I ALLE AFDELINGER) I TKR.
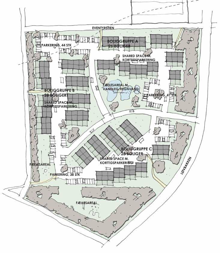
LØVHAVEN – ET NYT KVARTER ER PÅ VEJ
VI SKAL OPFØRE 82 GÅRDHAVEHUS PÅ DEN GAMLE SKOLEGRUND I LINDHOLM.

Aalborg Byråd besluttede i efteråret, at vi skal udvikle og bygge boliger på den tomme grund, hvor Løvvangskolen tidligere lå og som grænser op til vores boligafdeling Løvvangen.
Gennem en længere årrække har vi arbejdet med en vision om at tilføre Løvvangen-bydelen et bykvarter med lave gårdhavehuse.
Ambitionerne er at skabe et attraktivt kvarter, som åbner sig op og bliver en naturlig del af hele Løvvangen. Og som med en indbydende arkitektur og åbne, grønne arealer, appellerer til fællesskaber.
De 110 kvadratmeter store boliger vil tiltrække børnefamilier, som får deres gang og hverdag i hele området.
Løvvangen har gennem de seneste år været igennem en positiv udvikling, og vores ambition er at fastholde den gode retning.
Derfor har vi også indgået et partnerskab med Aalborg Kommune omkring de boligsociale indsatser i området (se næste opslag).
En forenet indsats, som både understøtter de mange gode kræfter i området, blandt beboere og foreninger, og nu også en udbygning af området med nye boligformer i form af lave gårdhavehuse, vil bidrage til, at hele området ændrer dynamik og får endnu et skub i den rigtige retning.
Den gamle skolegrund er nu ryddet. Her opfører vi 82 attraktive gårdhavehuse
(afdeling 12)

LØVHAVEN I TAL:
• Grundareal ca. 31.700 kvm.
• 82 gårdhavehuse
• Byggestart: 2027
• Første indflytning: 2028
• Boligstørrelser: 110 kvm.
• Samlet bebyggelse: 9.020 kvm.
• Budget: 207 mio.
Arkitekternes skitser af den nye bebyggelse ‘Løvhaven’ med 82 gårdhavehuse.
Vangen
PARTNERSKAB LØFTER HELE LØVVANGEN

Siden 2008 har Sundby-Hvorup Boligselskab været involveret i den boligsociale indsats i Løvvangen.
I årene 2012-2015 gennemgik afdelingen desuden en omfattende fysisk forandring, inklusive et omfattende løft af boligernes stand og helt nye udearealer. I alle årene er indsatsen sket i et tæt og godt samarbejde med Landsbyggefonden og Aalborg Kommune.
Beboerne i Løvvangen har hele vejen været aktive og har bidraget med mange frivillige initiativer, som igen har været med til at præge udviklingen i en positiv retning.
Løvvangen er i dag en attraktivt bydel med stærke fællesskaber. Men også en stor bydel – og fortsat placeret på regeringens forebyggelsesliste. Derfor vil vi fortsætte med at understøtte alle de gode aktiviteter, der er i gang, og fortsat arbejde for at åbne området mere op og generelt skabe mere sammenhængskraft med de omkringliggende by- og boligområder.
Med udgangen af 2025 afslutter vi den kendte boligsociale helhedsplan, som Landsbyggefonden i 16 år har været med til at finansiere.
Fra 1. januar 2026 indgår Sundby-Hvorup Boligselskab og Aalborg Kommune en ny partnerskabsaftale, som skal sikre, at vi kan arbejde videre på det gode fundament, der er opbygget via blandt andet helhedsplanernes arbejde.
Vores mål er, at vi skal støtte og sikre, at de bestående aktiviteter og samarbejdsfora samt det finmaskede net af samarbejdsflader fortsat vil bestå. Til gavn for både beboerne i området og for den omkringliggende by.
Vi vil også bidrage til en positiv udvikling, når det gælder tryghed og trivsel hos børn, unge, familier og voksne. Og ligeledes at fastholde, at bydelen fortsat løftes og forbliver en attraktiv bydel i Aalborg Kommune.
SAMMEN OM SOLSIDEN
I2024 bevilgede Social- og Boligstyrelsen knap 5 mio. kr. til et 4-årigt projekt: Sammen om Solsiden – med det formål at etablere tværgående partnerskaber om fællesskaber for alle.
Projektet har særligt fokus på at understøtte og skabe fællesskaber for sårbare voksne. Projektet koordineres via De Frivilliges Hus i Aalborg.
Et vigtigt nyt initiativ er Solside Netværket, hvor lokale foreninger og beboere fra Sundby-Hvorup Boligselskab er gået sammen. Derudover er blandt andet sundhedsformidlere, samråd, Nørresundby Kirke og Biblioteket med.
I Solside Netværket arbejder vi med, hvordan vi får flere med i lokale fællesskaber med et særligt blik for ønsker, behov, barrierer og konkrete forslag.
I februar var mere end 40 lokale aktører til et Kick Off-arrangement i Skansen, og igen her i efteråret, hvor vi lagde lokaler til, var der mange aktive deltagere.


I november lagde vi lokaler til det andet møde i Sammen om Solsiden.
SAMFUNDSANSVAR I PRAKSIS
Det er et par år siden, at vi udgav første udgave af vores hvidbog om samfundsansvar i praksis.
Det ligger i vores dna, at vi skal udvise samfundsansvar: Socialt, økonomisk og i forhold til miljøet. Derfor kan vi også se os selv over skulderen og finde mange gode eksempler på tiltag og bidrag til en mere bæredygtig verden.
Vi anerkender dog også, at der er behov for at dokumentere udbyttet af de mange indsatser. Ikke for dokumentationens skyld. Men for at sikre, at vores indsats står mål med udbyttet.
Via vores medlemsskab af AlmenNet følger vi derfor nøje med i udviklingen af en fælles branchestandard ’AlmenKompas’, som sætter os i stand til at arbejde målbart og databaseret med bæredygtighed. Eller det vi med vores ord kalder samfundsansvar.
BEBOERDEMOKRATI
Opkvalificering af beboerdemokrater
Aktiv deltagelse i alle afdelingsmøder
Det uformelle beboerdemokrati

ORGANISATION
Efteruddannelse og teamudvikling
Arbejdsmiljø og personaleomsorg
Elevpladser
Digitalisering
Hvidbogen sammenfatter de områder, hvor vi hele tiden kan tage et ekstra ansvar. Bogen ligger tilgængelig på www.sundby-hvorupboligselskab.dk
VORES HVIDBOG OM: SAMFUNDSANSVAR







LOKALSAMFUNDET
Understøtte lokalsamfund
Respekt for demokratiske spilleregler
I PRAKSIS
TRIVSEL
Boligsociale indsatser
’Social tid’ til beboere Fællesskaber
BOLIGER
Bæredygtige materialer
Tryghed
Energioptimering
Helhedsplaner / renoveringer
Nybyggeri Forbrug
DRIFTEN
Indkøb
Miljøvenlige materialer/processer
Affaldsprojekter
Ordentlighed i leverandøraftaler
VI PASSER PÅ HINANDEN
På vores ekstraordinære repræsentantskabsmøde i december fik vi besøg af Birthe Sloth Thomsen, der er leder af Kildehuset i Nørresundby.
Birthe præsenterede os for Kildehusets tilbud til mennesker med psykiske udfordringer. Kildehuset er et gratis, uvisiteret dagtilbud/arbejdsfællesskab/klubhus og et fællesskab for mennesker med psykiske udfordringer.

For de fleste af vores beboere er det en naturlig del af hverdagen, at man passer på hinanden – naboer imellem. Og for vores afdelingsbestyrelser er det rart at kende til de tilbud, der er i nærområdet, når man møder en nabo, som har (og måske skaber) problemer og som mangler netværk, struktur og meningsfuldhed i hverdagen samt et sted at høre til.
Du kan læse mere om Kildehuset her: kildehuset-fountainhouse.dk
ELCYKLER REDUCERER CO2-AFTRYKKET I DRIFTEN

I vores indkøb er der hele tiden opmærksomhed på at finde miljøvenlige materialer. Nye el-ladcykler er et eksempel.
I Østvendsyssel fik vores ejendomsfunktionærer tre nye eldrevne ladcykler, som nu bruges i Hals, Dronninglund og Vester Hassing.
Cyklerne erstatter biler og traktorer, som kørte på fossile brændstoffer.
LEVENDE GRØNNE OMRÅDER
Ide kommende år vil der ske konkrete forandringer i de grønne områder. Og det vil ramme alle afdelinger i større eller mindre omfang.
Forandringerne er drevet af mange interesser: Nødvendige klimamål (FN, stat og kommune) og vores egne mål om at udvise samfundsansvar.
Samtidig skal vi værne om huslejen, og vi skal lytte til både beboere og medarbejdere, som lever og arbejder i de grønne områder.
Hovedmålet er at skabe grønne områder, der er
gode at opholde sig i. Men som også er gode for andre arter, end os selv.
Efter en grundig proces (se nedenfor) har vi nu udpeget fire afdelinger, hvor vi gennemfører et pilotprojekt fra 2026. De fire afdelinger repræsenterer forskellige boligtyper, og vi skal bruge erfaringerne herfra, inden vi sætter gang i store forandringer andre steder.
Vi har byplan- og landskabsarkitekt, Randi Knudsen fra By+Land med som ekstern rådgiver, og Randi har i løbet af efteråret lavet og præsenteret
PROCESSEN HAR VÆRET VIGTIG
Arbejdet med at skabe mere biodiversitet og liv i vores grønne områder er et godt eksempel på, hvordan vi hele tiden tilstræber at få alle med, når vi står foran forandringer.
Med respekt for vores beboere og medarbejdere har vi tilrettelagt et grundigt og langt forløb, så alle kommer til orde, og der er tid til at opsamle erfaringer.
Beslutningen om at sætte gang i forandringerne er vokset gennem de senere år, og på organisationsbestyrelsens strategiseminar i november 2024 blev de foreløbige erfaringer vendt, og beslutningen om at sætte gang i en grøn plan i 2025 blev vedtaget.
Herfra har processen set således ud:
Formandsmøde, hvor baggrunden for at tale om mere biodiversitet blev præsenteret.
Interne møder, hvor medarbejderne kom med umiddelbare input og erfaringer fra det grønne arbejde.
MAR APR MAJ
Tilknytning af ekstern rådgiver
Temadag for afdelingsbestyrelserne, som blev præsenteret for de første tanker og her kom med kommentarer.
oplæggene til de fire afdelinger. Målet er at lave en tilpasset grøn plan, som tager hensyn til de særlige forhold i hver enkelt afdeling.
Den grønne omlægning skal i alle afdelinger ske med afsæt i den viden, der er opsamlet, og med respekt for lokale forhold og hensynet til en effektiv (økonomisk bæredygtig drift).
Den grønne plan indarbejdes i afdelingernes vedligeholdelsesplaner og bliver således en del af afdelingens planlagte vedligeholdelsesarbejder.
Engparken i Nr. Uttrup (Afdeling 7) er en af de fire afdelinger, der er udvalgt til et pilotprojekt, hvor de grønne arealer omlægges fra 2026 (her skitse fra By+Land)

Bemærkninger fra driften
Virksomhedsnævnet: Orientering
Udvælgelse af fire afdelinger til pilotprojekter
Afdelingsmøder – orientering og dialog
Organisationsbestyrelsen: Orientering og kommentarer til oplæg og proces.
Forretningsudvalget: Orientering og kommentarer til oplæg og proces.
Formandsmøde – oplæg og dialog
Orientering af repræsentantskabet
Igangsætning af pilotprojekter
Afd. 7 - Engparken Øget biodiversitet - visuelt studie

9 UD AF 10 GIVER
BOLIGSELSKABET TOPKARAKTER
Iforsommeren gennemførte vi en tilfredshedsundersøgelse blandt vores beboere. Og beboerne kvitterede med en stor smiley og høj tilfredshed:
9 ud af 10 svarede enten, at de er tilfredse eller meget tilfredse med deres bolig. Tilfredsheden er generelt lige stor i by og på land.
Undersøgelsen var bygget op med mange af de samme spørgsmål, som blev stillet i en tilsvarende undersøgelse i 2015. I år var undersøgelsen dog 100% digital og knap 800 beboere valgte at deltage.
Den generelle tilfredshed dengang og i dag er stort set uændret. Men når vi dykker ned i tallene, kan vi
også se forskelle. For eksempel stiger tilfredsheden i de afdelinger, hvor vi har foretaget større renoveringer og forbedret udearealer.
Blandt andet falder det i øjnene, at der er en markant øget tilfredshed med handicap- og ældrevenlige forhold i og omkring de boliger, der har været igennem omfattende renoveringer, og hvor der blandt andet er etableret såkaldte tilgængelighedsboliger.
Beboerundersøgelsen er en ‘skattekiste’ af viden, og foruden at svare tilfreds eller mindre tilfreds –kunne beboerne også lave noter til hvert spørgsmål. Og de mange svar er siden blevet delt med driften og administrationen, så vi kan reagere på de gode input.

VI BLIVER VED MED AT SPØRGE
Iforlængelse af den store tilfredshedsundersøgelse begynder vi nu også at spørge de beboere, som lige er flyttet ind i en bolig, og de beboere, som har valgt at flytte væk.
Beboerne får spørgsmålene som en automatisk del af det ind- eller udflytningsflow, som alligevel kører, så vi belaster både beboere og medarbejdere mindst muligt.
Spørgsmålene skal på den ene side være med til at afdække, hvorfor vore nye beboere har tilvalgt Sundby-Hvorup boligselskab, og hvordan de har oplevet velkomsten. Når det gælder fraflyttere, handler spørgsmålene naturligvis om, hvorfor de har valgt at flytte.
Begge undersøgelser skal – sammen med den store tilfredshedsundersøgelse – hjælpe os med at skabe den bedste beboerservice og få øje på de forhold, vi kan justere på til gavn for beboerne.

FOKUS PÅ ROLLER OG ANSVARSOMRÅDER
FOKUS PÅ ROLLER OG ANSVARSOMRÅDER ER MED TIL AT STYRKE VORES BEBOERDEMOKRATI OG SKABE BEDRE RELATIONER MELLEM BEBOERE OG ANSATTE.
Aktive beboerdemokrater er fundamentet i vores organisation. Med vores repræsentantskab som øverste myndighed, hvor alle boligafdelinger er repræsenteret, og organisationsbestyrelsen, som har det overordnede ansvar for boligselskabets drift.
I hver enkelt afdeling er det vores beboervalgte afdelingsbestyrelser, der påtager sig opgaven som beboernes ambassadører og sparringspartner for boligselskabets administration.
De forskellige roller indebærer forskellige ansvarsområder og opgaver, og for at skabe det bedste udgangspunkt for gode og konstruktive samarbejder har vi i 2025 gennemført en række temadage – både for beboervalgte og for medarbejdere – netop om rollerne i et alment boligselskab.
Det var organisationsbestyrelsen, som på et strategisemiar i efteråret 2024 besluttede at vi i år skulle gøre endnu mere for at styrke beboerdemokratiet.
I løbet af foråret blev alle medarbejdere inviteret til heldagsarrangementer. En dag for hver af vores geografiske søjler: Østvendsyssel, Lindholm, Løvvangen og Nr Uttrup.
Alle afdelingsformænd og efterfølgende alle afdelingsbestyrelser blev også inviteret ind til Lindholm Søpark, til aftenmøder om samme emne.
Samlet er møderne en del af vores fokus på at skabe en større forståelse for den helt særlige opbygning af et alment boligselskab, hvor beboere og medarbejdere har forskellige roller – og ansvarsområder.

TEMAAFTENER OM BEBOERDEMOKRATI
I begyndelsen af marts inviterede vi alle afdelingsbestyrelser til temamøder om beboerdemokratiet. Møderne blev faciliteret af konsulent Andres Tue Møller, der selv har mange års erfaring inden for den almene sektor, både som beboer og afdelingsbestyrelsesmedlem/-formand.
På temadagen kom deltagerne blandt andet rundt om emner som bestyrelsernes rolle og ansvar i beboerdemokratiet, budgettets opbygning - mulighed for indflydelse, kommunikation med beboerne og forslag til et bestyrelses-årshjul.
Engagementet var stort – og de mange gode ideer og erfaringer, der blev udvekslet i løbet af aftenen, er nu rejst med ud i afdelingerne.

INTRODUKTION AF
En del af vores årshjul er en introaften for ’nye’ medlemmer af vores afdelingsbestyrelser. En aften, hvor organisationsbestyrelsen er vært, og hvor vi giver alle interesserede bestyrelsesmedlemmer en introduktion til beboerdemokratiet.
Mødet lå i år den 19. november, og der var som altid fint fremmøde og positive tilbagemeldinger fra deltagerne.

BESIGTIGELSELSTUR TIL SJÆLLAND


Det er en god tradition i Sundby-Hvorup Boligselskab, at organisationsbestyrelsen, afdelingsbestyrelserne samt dele af administrationen tager på en besigtigelsestur i juni.
Foruden indsigter i nye og andre boligområder er turen også en kærkommen lejlighed til at knytte bånd på tværs af vores afdelinger.
I år gik turen den 12.-14. juni via Aarhus til Lejre og København og hjemad via Horsens.


Her fik deltagerne inspirerende oplæg, gode samtaler og spændende rundvisninger i både bæredygtige byudviklingsprojekter og moderne boligområder. Blandt andet NYE ved Aarhus, Degnejorden og Skråningen i Lejre, samt Nordhavn, Papirøen og Operahaven i København – og Håndværkskollegiet i Horsens.
I 2026 går turen til Gøteborg.
BEBOERDEMOKRATIETS ÅRSHJUL ‘26
I løbet af året mødes organisationsbestyrelsen seks gange, derudover ligger der to repræsentantskabsmøder, to formandsmøder og en besigtigelsestur i kalenderen for 2026.
Organisationsbestyrelsen inviterer desuden til kurser og temadage efter behov.
I august-september afholder alle afdelinger deres afdelingsmøde.
• Bestyrelsesmøde 10. august
• Afdelingsmøder august - september
• Bestyrelsesmøde 9. februar
• Formandsmøde 11. marts
• Formandsmøde 30. september
• Bestyrelsesmøde 5. oktober
• Bestyrelsesmøde 16. april
• Ord. repræsentantskabsmøde 12. maj
• Bestyrelsesmøde 8. juni
• Besigtigelsestur 12-14. juni
• Introaften ”nye” medlemmer af afdelingsbestyrelser 18. nov.
• Ekstraord. repræsentantskabsmøde 2. dec.
• Bestyrelsesmøde 7. dec.
Øjeblikke fra 2025
MEDARBEJDERE LØB MED
TIL DHL-STAFETTEN
Tilbage i august deltog vi med tre hold i DHL-stafetten – to løbehold og et gåhold.
En hyggelig aften fyldt med energi, fællesskab og masser af motion, og et godt eksempel på, at vi støtter op om sunde vaner og aktiv livsstil – her blandt vores medarbejdere, som havde en både hård og hyggelig aften på tværs af afdelinger.

BESKÆRING ER OGSÅ EN DEL AF ARBEJDET I DET GRØNNE

Vinterbeskæring af træer og buske er en af de opgaver, som hver vinter fylder en del hos vores ejendomsfunktionærer.
Til tider kræver opgaven mere end blot en stige. Som for eksempel i Lindholm Søpark. Her skyggede de høje træer ved garagerne nemlig for solcellerne, så de ikke var så effektive, som de kunne

være. Efter en vellykket tur i højderne kan solen nu bare komme an.
Ikke langt derfra – på Kjeldsens Allé – var det ikke højden, der var udfordringen. Her var det i højere grad ejendomsfunktionærernes grønne fingre og kompetencer der kom i spil.
JOBMESSE I MARTS VAR IGEN EN SUCCES
Kvarterets Hus gentog successen med en jobmesse i foråret. Messen, der bliver til i samarbejde med vores kolleger fra Nørresundby Boligselskab og Boligforeningen af 1944, er målrettet beboere i almene boliger nord for Limfjorden.
I år var 15 virksomheder mødt op, og de deltog med stande, hvor interesserede kunne høre om jobmuligheder inden for mange forskellige områder, bl. a. lager/logistik, chauffør, håndværker, ejendomsfunktionærer, jobs i detailhandlen, dagplejer og administrative jobs.
Fremmødet var stort, og i løbet af de to timer, blev der knyttet mange kontakter mellem virksomheder og potentielle kandidater til jobs.

SOMMERARRANGEMENTER I MANGE BOLIGAFDELINGER
Sommerhalvåret byder – traditionen tro – på mange fester, hyggelige sammenkomster og aktiviteter i vores boligafdelinger. Alle arrangeret af frivillige beboere. Ofte afdelingsbestyrelsen.
I Afdeling 7 i Uttrup (tv) er der hvert år sommerfest med masser af aktiviteter for både børn og voksne. I år var der blandt andet hoppeborge, karrusel og bungee-trampoliner, som blev flittigt brugt i det gode sommervejr. Indendørs kunne man hente popcorn og slush-ice, mens der udenfor blev serveret lækkert mad fra den store pande.


I Gandrup (th) har afdelingsbestyrelsen gjort det til en god tradition, at den kommer rundt til de forskellige dele af afdelingen med frikadeller og kartoffelsalat samt øl og sodavand. Bestyrelsens rundtur i afdelingen blev ekstra festlig i år, da der også var musik til maden fra den medbragte højttaler.
NYE BEREDSKABSPLANER
Ien ny risikotid, hvor strømafbrydelser, ekstrem vejr eller andre hændelser kan ramme os alle, er vi som boligselskab også forpligtet til at forberede os på den dag, hvor uheldet eller ulykken rammer i vores nærområde.
Vi har ikke et formelt ansvar for samfundets beredskab, men vi skal sikre forsvarlig drift og vedligeholdelse af vores ejendomme og trygge rammer for vores beboere.
Derfor har vi i 2025 gennemgået vores beredskab inden for en række områder. I forlængelse heraf har vi udarbejdet et simpelt ’action card’ til vores beboere, som nu bliver omdelt og opsat i alle vores boliger. Sideløbende har vi udarbejdet beredskabsplaner, målrettet vores medarbejdere.
Målet er at sikre effektiv håndtering af kriser, ulykker mv. i boligselskabet ved at beskrive processer for medarbejderne og enkle råd og hjælp til beboerne.
Vores beredskabsplaner, version 1 – sammenfatter de umiddelbare og påkrævede handlinger i tilfælde af en krise. Vi kommer derfor til løbende at evaluere og udbygge planerne.

Nyt action card, der sættes op i alle boliger.

JULETRÆER LYSER OP MANGE STEDER
I mange afdelinger er der gode traditioner for at samles, når juletræsbelysningen tændes.

Første søndag i advent var mange beboere mødt frem på Julius Posselts Vej (afd. 32), som har en mangeårige tradition for at hygge med gløgg og æbleskiver samt uddeling af julegodteposer til børnene, mens juletræet tændes, og beboerne synger et par julesalmer.



FÆRRE LEDIGE BOLIGER I ET UDFORDRET BOLIGMARKED
Vi har gennem en lang årrække været begunstiget af lange ventelister til vores boliger. Attraktive og billige lejeboliger har altid været og er fortsat efterspurgt af mange.
Siden begyndelsen af 2020erne er udbuddet af lejeboliger – særligt i Aalborg Kommune – imidlertidigt vokset betydeligt, og vi har oplevet et naturligt fald i ventelisternes længde.
Vi har på den baggrund iværksat en række initiativer for dels at overvåge udviklingen og dels øge opmærksomheden omkring vores boliger i et konkurrencefyldt marked.
På månedlige statusmøder gennemgår vi udlejningsstatus og bevægelser i vores ventelister, og falder vi over områder eller konkrete boliger, som er udfordret, intensiverer vi markedsføringsindsatsen via vores digitale medier, og lokalt også med målrettede kampagner.
Alle vores boliger udlejes via boinord.dk, også her har vi – sammen med de øvrige boligorganisationer – øget markedsføringen af ledige boliger.
Internt har vores udlejningsmedarbejdere samt driftpersonalet også påtaget sig flere opgaver for at sikre opfølgning, når potentielle lejere viser interesse for en bolig.
Fra et højt niveau i 2022 har vi de senere år fået nedbragt udgifterne til tab ved lejeledighed.
HØJ TRIVSEL PÅ ARBEJDSPLADSEN
På en skala fra 1-10 svarer medarbejderne i gennemsnit 8,3 på spørgsmålet om, hvor tilfredse de er med deres job.
Svarene er en del af en omfattende trivselsundersøgelse, som vi jævnligt foretager i hele medarbejdergruppen, og som vi gentog i forsommeren.
Undersøgelsen blev i år igen foretaget af konsulent Ellen M. Thomsen fra EUC Nord, og spørgsmålene vedrører alle dele af arbejdspladsen.
Det er gennemgående for alle svar i alle områder, at tilfredsheden ligger på samme høje niveau som sidst (2022), vi lavede undersøgelsen. Det er vi naturligvis glade for.
Men vi bruger også de detaljerede svar til at se, hvor vi kan gøre Sundby-Hvorup Boligselskab til en endnu bedre arbejdsplads. Alle resultater er derfor blevet delt med de enkelte medarbejdergrupper på møder.
Trivsel på arbejdspladsen og muligheden for at udvikle sig – også via relevant efterudannelse – er et af de prioriterede fokusområder, som indgår i vores strategi frem mod 2027.
TILLYKKE!
I årets løb er fire af vores medarbejdere blevet udlært som ejendomsserviceteknikere på AMU Nordjylland.
Tillykke til Michael Holm og Michael Halle (tv) og Jan Vinther Jensen og John Holland (th.)



TEMADAGE FOR ALLE ANSATTE
I 2025 har vi haft et særligt fokus på de forskellige roller, som beboerdemokrater og medarbejdere har i et alment boligselskab.
I den forbindelse var alle vores medarbejdere i foråret indbudt til temadage (en for hver af vores fire geografiske søjler), hvor regler og roller samt dilemmaer fra hverdagen blev vendt.
På temamøder kom medarbejderne desuden med en lang række gode forslag og input til vores arbejde med omlægning af de grønne arealer.

VI FÅR GODE KARAKTERER
En gang om året er vi inviteret til obligatorisk styringsdialog med vores tilsynskommuner, Aalborg og Brønderslev. En god anledning til at gennemgå alle hjørner af boligselskabets drift.
Fra årets møder kan vi glæde os over, at vi gør det godt.
Når man skal vurdere om et alment boligselskab er ’veldrevet’ kan man se på mange forskellige forhold. Nøgternt, naturligvis, på økonomiske nøgletal for hovedselskabet. De fremgår af vores årsregnskab, der bliver gennemgået og godkendt på det ordinære repræsentantskabsmøde i maj/juni.
Gennem de seneste år er det også lykkedes os at fastholde administrationsbidraget på samme niveau, og i 2026 vil bidraget igen være 3.995 kr. pr. lejemål.

Driften i de enkelte afdelinger – og udviklingen i afdelingernes budgetter, henlæggelser mv. – er også måltal, vi løbende holder øje med, og som indgår i styringsdialogen.
Gennem en længere årrække har der været stor opmærksomhed omkring effektiviseringspotentialet i de enkelte afdelinger, også her præseterer vi godt. Vores drift er for hovedparten af afdelingerne blandt regionens mest effektive. Og vi har ingen afdelinger med et stort effektiviseringspotentiale.
Det er lykkedes at balancere kravene om høj effektivitet med en høj beboerservice, vedligeholdelsesstand og godt arbejdsmiljø. Det viser vores aktuelle tilfredshedsmålinger blandt beboere og medarbejdere. Og når det kommer til at vedligeholdelsesstanden, så har vi gennem de seneste år haft et stort fokus på afdelingernes opsparing og ’polstring’ til kommende vedligeholdelsesopgaver (se side 11).


SOLCELLER BIDRAGER TIL FÆLLES STRØMFORBRUG
Gennem de seneste år har vi monteret solcelleanlæg med batterier flere steder i vores afdelinger. Her bidrager de til det fælles strømforbrug og gavner dermed både miljøet og beboernes husleje.
Vi er i øjeblikket i gang med etablering af et solcelleanlæg på Lindholm Plejehjem, som har et stort fællesforbrug af el.
Vi følger løbende de fire etablerede solcelleanlægs produktion, og de har i årets første 11 måneder produceret i alt 113.500 kWh.
Produktionen anvendes alene til afdelingernes fællesforbrug (drift af servicebygninger, køretøjer, varmepumpe mv.) – men omregnet til forbruget i en gennemsnitlig husstand svarer produktionen til, at vi med de fire anlæg kan dække 45 husstandes årlige el-forbrug.

Produktionen af strøm fra de fire solcelleanlæg overvåges 24/7
DIGITALE LØSNINGER
Digitalisering af vores arbejdsgange, kommunikation og drift er en løbende proces og forudsætning for, at vi kan opretholde en effektiv drift og en høj kvalitet i vores beboerservice.
INVITATIONER PÅ MAIL
Vi valgte i år at udsende alle indkaldelser til afdelingsmøderne digitalt (undtaget til beboere, der er fritaget for digital post). Dermed sparer vi store mængder print/papir og en masse timer til omdeling. Vores beboere har taget godt imod de nye indkaldelser, og fremmødet til afdelingsmøderne var uændret i forhold til tidligere.
E-NYHEDSBREVE
Vores email-nyhedsbreve bliver læst og åbnet af mere end halvdelen af modtagerne. Dermed har vi fået endnu en kanal, vi kan bruge til at nå – primært – vores beboere. Er behovet at nå ud til flere – og med kort varsel –gør vi brug af SMS-løsning, der rammer hovedparten af alle beboere.

Digitale løsninger kommer ikke til at erstatte vores personlige service og kontakt. Men vi implementerer løbende nye digitale løsninger, som bidrager positivt.

HJEMMESIDE
En stadig stigende andel af vores beboere søger information på vores hjemmeside og via MinSide. Derfor sikrer vi løbende opdateringer, og i 2025 har hjemmesiden fået et brugervenligt designløft, ligesom vi har fået nye og bedre redigeringsmuligheder med et opdateret CMS-system.
VI TESTER AI
Vi tester og bruger AI inden for afgrænsede områder. Blandt andet som sproglig assistent og til kvalitetssikring af tekster. Og i driften bliver AI også testet som assistent i forbindelse med udarbejdelse af afdelingernes vedligeholdelsesbudgetter. Vi samler erfaringerne fra de forskellige områder, og udarbejder egentlige retningslinjer for brugen af AI til støtte for vores medarbejdere.
EKSTRA TILBUD TIL VORES BEBOERE
VORES BEBOERE HAR ADGANG TIL GÆSTEVÆRELSER SAMT SELSKABSLOKALER
GÆSTEVÆRELSER OG -BOLIGER
Lindholm*
Stationsvej (2 værelser)
Bakkevej (2 værelser)
Lindholm Brygge (1 gæstebolig)
Nr. Uttrup*
Uttrupvej (1 værelse)
Søndre Kongevej (1 værelse)
Dronninglund
Tranebærvej (1 gæstebolig)
* Gæsteværelserne i Lindholm og Nr. Uttrup er reserveret til genhusning i forbindelse med renoveringen af de to afdelinger.
LOKALEUDLEJNING FOR ÅRET 2027
Kontoret i Lindholm Søpark 4 er ekstraordinært åbent fredag 2/1 2026 fra kl 8.00.
Ekspeditionen åbner denne dag kl 8.00 for ekspedition ift. udlejning af fælleshuse.
Fysiske henvendelser fra husstanden registreres efter ”først til mølle” princippet. Efterfølgende registreres mail-/telefonhenvendelser i den rækkefølge, de er indgået.
Mail skal sendes til info@sundbyhvorup.dk og mails modtaget før 2/1 2026 kl 8.00 medtages ikke.
SELSKABSLOKALER
Lindholm: Bakkevej 11 (Festsal til 70 personer)
Lindholm Søpark 2 (Festsal til 100 personer) Smedien 97 (Festsal til 40 personer – kun for afd. 10’s beboere)
Nr. Uttrup
Abildgårdsvej 40B (Festsal til 70 personer)
Løvvangen: Vikingevej 9B (Festsal til 60 personer) Vangen 283B (Festsal til 60 personer)
Vestbjerg: Hanebjælken 21 (Festsal til 40 personer)

BYDELE SET FRA LUFTEN
Da vi tidligere på året fik mulighed for at få skudt en serie nye billeder af vores afdelinger set fra luften, var det også en god anledning til at støve nogle gamle luftfotos af (billederne blev taget i forbindelse med vores 50 års jubilæum i 1993).
Nu hænger de flotte billeder i vores selskabslokaler i Løvvangen (afd. 12), Engparken (afd. 7) og i Vestbjerg (afd. 16). Her går snakken lystigt, når gæster får øje på deres bydel – fra luften og fra en anden tid.



16)
Lindholm Søpark 4 · 9400 Nørresundby · tlf. 98 17 30 66 info@sundbyhvorup.dk · www.sundby-hvorupboligselskab.dk CVR nr. 18788136
Jimmi Hansen (formand, afd. 12) og Steen Lee Christensen fra Aalborg Luftfoto, der har taget de nye billeder.
Hans Bøyen Christensen (formand, SHB) og Anders Chr. Andersen (formand, afd. 7)
Christine Wilczynski (formand afd.