PORFOLIO

Page 1

ARCHITECTURE PORTFOLIO 4
ĐỒ ÁN TỐT NGHIỆP RESORT ĐẦM LẬP AN - VỊNH LĂNG CÔ 5 ARCHITECTURE PORTFOLIO

Ý TƯỞNG IDEAS

Lấy hình ảnh những con thuyềncủa làng chài ven đầm Lập An kết hợp cùng yếu tố tự nhiên miền Trung nắng gió lũ lụt để đưa ra công trình có hệ mái lớn, vươn xa Taking the image of the boats of the fishing village along the Lap An lagoon, com bined with the natural elements of the Central region, the sun, the wind, the flood, to create a project with a large roof system, reaching far.

ARCHITECTURE PORTFOLIO 6
BỐ TRÍ CÔNG NĂNG
7 ARCHITECTURE PORTFOLIO
ARCHITECTURE PORTFOLIO 8

Không gian cổ kính, hình thức kiến trúc mang đậm dấu ấn văn hóa khu vực

- Cuộc giao thoa tính địa phương và tiêu chuẩn quốc tế

-Tổ chức quy hoạch cảnh quan dựa trên điều kiện tự nhiên của vùng ven đầm phá, đặc biệt là hệ sinh thái ngập mặn đa dạng của Lập An

-Xây dựng và thiết kế công trình trở thành một phần của hệ sinh thái đầm Lập An

-Hướng tới giải pháp kiến trúc bền vững

-Ancient space, architectural form imbued with regional cul ture

- The intersection of locality and international standards

-Organize landscape planning based on the natural condi tions of the lagoon, especially the diverse mangrove ecosys tem of Lap An.

-Construct and design works to become part of Lap An la goon ecosystem

-Towards a sustainable architectural solution

9 ARCHITECTURE PORTFOLIO

- Ứng dụng kiến trúc bản địa với kỹ nghệ, mô-típ trang trí và chất liệu địa phương (đôi khi còn làm sống dậy cả những kỹ thuật cổ đang dần mai một, biến mất). Màu sắc, đồ thủ công địa phương được đưa vào nhằm tạo dấu ấn thẩm mỹ

- Tận tdụng địa thế tự nhiên của công trình để khai thác tối đa vẻ đẹp thiên nhiên mà không phá vỡ sự cân bằng sinh thái. Thiên nhiên được tôn trọng và hạn chế tối đa tác động, biến đổi tiêu cực đến cảnh quan

- Applying indigenous architecture with local industries, decorative motifs and materials (sometimes even reviving an cient techniques that are gradually disappearing or disappearing). Colors, local crafts are included to create an aesthet ic impression

- Take advantage of the natural terrain of the building to maximize the natural beauty without disrupting the ecologi cal balance. Nature is respected and minimized negative impacts and changes on the landscape

ARCHITECTURE PORTFOLIO 10
11 ARCHITECTURE PORTFOLIO
ARCHITECTURE PORTFOLIO 12 -Đương đại (contemporary) hóa một cách khéo léo những dấu ấn kiến trúc địa phương để phù hợp hơn với đời sống hiện đại. Công nghệ xây dựng mới được sử dụng để khôi phục lại vẻ đẹp nguyên bản truyền thống theo cách hiệu quả về thời gian và chi phí. -Contemporary cleverly transforms local architectural imprints to better suit modern life. New construction technology is used to restore the traditional original beauty in a time and cost effective manner.
13 ARCHITECTURE PORTFOLIO
RESORT HOTEL BINH TIEN 5 STARS ARCHITECTURE PORTFOLIO 14
15 ARCHITECTURE PORTFOLIO
NARA BÌNH TIÊN MẶT BẰNG TỔNG THỂ MASTER PLAN PARKING BÃI ĐẬU XE GUESTROOM PHÒNG NGHỈ RESTAURANT NHÀ HÀNG KING –QUEEN VILLA GUESTROOM PHÒNG NGHỈ GYM & SPA GUESTROOM PHÒNG NGHỈ GUESTROOM PHÒNG NGHỈ GUESTROOM PHÒNG NGHỈ WELCOME HOUSE NHÀ TIẾP ĐÓN ARCHITECTURE PORTFOLIO 16

THỊ TRẤN TRONG RỪNG

-Sự kết hợp giữa kiến trúc tự nhiên và áp dụng quá trình mang tính thân thiện với môi trường, tận dụng tối ưu tài nguyên trong suốt toàn bộ chu kì của tòa nhà

-The combination of natural architec ture and the application of an environ mentally friendly process, making op timal use of resources throughout the entire life cycle of the building

17 ARCHITECTURE PORTFOLIO

- Nhấn mạnh vào tự nhiên, mảng xanh công tình được bố trí hài hòa trên mặt bằng và mặt đứng, tạo nên không gian tươi mát ngập tràn sức sống thiên nhiên

- Emphasizing on nature, the green space is harmoniously arranged on the ground and facade, creating a fresh space filled with natural vitality.

ARCHITECTURE PORTFOLIO 18
I IA C I C MẶT BẰNG ĐIỂN HÌNH TẦNG 03 / TYPICAL 3rd FLOOR MẶT BẰNG ĐIỂN HÌNH TẦNG 4 5 / TYPICAL 4th 5th FLOOR MẶT BẰNG TẦNG MÁI / ROOF FLOOR MẶT BẰNG ĐIỂN HÌNH TẦNG 01 02 / TYPICAL 1st 2nd FLOOR Đậm dấu ân văn hóa Chăm Cham cultural imprint 19 ARCHITECTURE PORTFOLIO
HOTEL BINH TIEN 6 STARS ARCHITECTURE PORTFOLIO 20
21 ARCHITECTURE PORTFOLIO

THẾ MẠNH

STRENGTHS

Tọa lạc ngay mặt tiền đường 702, vị thế thuận lợi lưng giáp núi, mặt giáp biển.

Nằm trên trục đường kết nối các thành phố lớn, khách du lịch thường lui tới.

Cảnh quan đẹp, bao quát, không gian yên tĩnh, hoang sơ.

Located right in front of 702 street, convenient position facing the mountain, facing the sea.

Located on the road connecting major cities, tourists often frequent.

Beautiful, sweeping landscape, quiet, unspoiled space.

ĐIỂM YẾU

WEAKNESSES

Chỉ có một trục đường tiếp cận. Cơ sở hạ tầng chưa phát triển mạnh. Các dịch vụ xung quanh ít, khá xa.

There is only one access road. The spiritual infrastructure is not well developed. The services around are few, quite far.

Thuận lợi trong việc đón đầu các du khách, tạo sự ấn tượng khi tới công trình.

Trở thành một điểm đến sang trọng, đẳng cấp của du lịch Ninh Thuận.

Phát triển trở thành một khu du lịch yên tĩnh, biệt lập mang tính nghỉ dưỡng cao.

Convenience in welcoming visitors, creating an impression when coming to the project. Become a luxury destination, class of Ninh Thuan tourism.

Develop into a quiet, isolated tourist area with high convalescence.

Tạo ra một dự án với thiết kế ấn tượng, mang nét riêng và thu hút.

Tận dụng được địa hình, thiết kế hài hòa với cảnh quan.

Thiết kế tối ưu view khách sạn, hài hòa nhưng vẫn riêng tư

Create a project with an impressive, distinctive and attractive design. Take advantage of the terrain, design in harmony with the landscape. Optimal design of hotel view, harmonious but still private

Siteplananalysis 10km VỊ TRÍ KHU ĐẤT SITE LOCATION P. CAM NGHĨA CAM NGHIA WARD 5km BÃI BÌNH HƯNG BINH HUNG BEACH VỊNH VĨNH HY VINH HY BAY GA HIỆP MỸ HIEP MY TRAIN STATION CAM THỊNH ĐÔNG CAM THINH DONG GA KÀ RÔM KA ROM TRAIN STATION ĐẢO BÌNH HƯNG BINH HUNG ISLAND XÃ CAM LẬP CAM LAP VILLAGE NARA BINH TIEN CONG
HAI
THUAN
BAC NINH THUAN
ARCHITECTURE PORTFOLIO 22
23 ARCHITECTURE PORTFOLIO
MẶT BẰNG PHÂN KHU TẦNG MÁI ZONING PLAN TERRACE ARTSTATION BOTANICAL GARDEN VƯỜN ƯƠM TRẠM VŨ TRỤ MAGMA KIDPOOL HỒ TRẺ EM MAGMA KHU BAR THEIA THEIA BAR HỒ BƠI VÔ CỰC MAGMA MAGMA INFINITIVE POOL ART BOTANICAL GARDEN VƯỜN ƯƠM NGHỆ THUẬT VƯỜN PLASMA PLASMA GARDEN VƯỜN PLASMA PLASMA GARDEN VƯỜN PLASMA PLASMA GARDEN OUTERSPACE TENNIS COURT SÂN TENNIS NGOÀI VŨ TRỤ MẶT BẰNG PHÂN KHU TẦNG TRỆT ZONING PLAN GROUND FLOOR VƯỜN MOON VƯỜN TRĂNG CRESCENT MOON FULL MOON VƯỜN TRĂNG ARCHITECTURE PORTFOLIO 24

Ý TƯỞNG THIẾT KẾ: TRẠM KHÔNG GIAN TẠI MẶT TRĂNG

DESIGN IDEAS: SPACE STATION AT THE MOON

- Địa hình mặt trăng không bằng phẳng, có nhiều hố được sinh ra do các tác động lực bên ngoài

- Tận dụng các hố ở mặt trăng để tạo nên các vườn ươm

-Ý tưởng cảnh quan sân thượng có dấu hiệu phong hóa, như con tàu đã đáp xuống mặt trăng lâu năm.

-The moon terrain is not flat, there are many craters born due to external forces

-Using holes in the moon to create botanical gardens

-The terrace landscape concept shows signs of weathering, like a ship that has long docked on the moon.

VƯỜN ƯƠM MẶT TRĂNG

BOTANICAL GARDEN

RISING MOON TRĂNG MỌC

VƯỜN TRĂNG NON

NEW MOON GARDEN

MOON BOTANICAL GARDEN

TRĂNG RẰM

TRĂNG KHUYẾT

MOON GARDEN

BÃI ĐÁP MINI MẶT TRĂNG

MOON PARKING

MOON
GARDEN
25 ARCHITECTURE PORTFOLIO
ARCHITECTURE PORTFOLIO 26
NHÀ HÀNG BIỂN - WYNDHAM GARDEN SONASEA VAN DON 27 ARCHITECTURE PORTFOLIO

- Hình ảnh chiếc thuyền lướt biển ngoài khơi xa

- Kết hợp ngôn ngữa kiến trúc truyền thống và không gian ánh sáng hiện đại tinh tế

-

-

a boat surfing in the sea far away

Image of
Combining traditional architectural language and sophisticated modern lighting space ARCHITECTURE PORTFOLIO 28
29 ARCHITECTURE PORTFOLIO
WELCOM CENTER - WYNDHAM ARCHITECTURE PORTFOLIO 30
WYNDHAM GARDEN SONASEA VAN DON 31 ARCHITECTURE PORTFOLIO

- Hình thức kiến trúc với những đường cong uốn lượn mềm mại

- Kết hợp vật liệu mang hơi thở truyền thống như gỗ, mái tranh... Tạo nên một không gian nhẹ nhàng, hài hòa

- Architectural form with soft curving curves

- Combining traditional breathing materials such as wood, thatched roof... Creating a light, harmonious space

ARCHITECTURE PORTFOLIO 32

- Cây xanh, mặt nước được bố trí sinh động tạo nên một điểm đón thú vị trong dự án

- Trees and water surface are arranged vividly to create an interesting pick-up point in the project

33 ARCHITECTURE PORTFOLIO
34 MARCO POLO “Người vẽ nên giấc mơ Á Đông mang sắc màu Địa Trung Hải ” “THE ASIAN DREAM IN MEDITERRANEAN”
SINGLE VILLA - WYNDHAM GARDEN SONASEA VAN DON 35 ARCHITECTURE PORTFOLIO
ARCHITECTURE PORTFOLIO 36
MẶT BẰNG TRỆT MẶT BẰNG LẦU 1 MẶT BẰNG MÁI 37 ARCHITECTURE PORTFOLIO
SINGLE VILLA - VINH DAM COMPLEX ARCHITECTURE PORTFOLIO 38

CẢM HỨNG LA PALOMA

LA PALOMA MOOD

Bài hát được viết năm 1860 bằng tếng tây ban nha sau chuyến thăm của tác giả tới cuba - The song was written in spanish around 1860 after a visit to cuba

- Tính chất: kết hợp giữa kiến trúc thuộc địa cuba và địa trung hải kiến trúc pha lẫn thuộc địa đường phố xe cộ cổ, không quá ồn ào.

- Feature: combination of cuban colonial architecture and mediterranean architecture classical, mixed colonial architecture old traffic street, not too noisy.

39 ARCHITECTURE PORTFOLIO
ARCHITECTURE PORTFOLIO 40
MẶT BẰNG TRỆT MẶT BẰNG LẦU 1 MẶT BẰNG LẦU 2 41 ARCHITECTURE PORTFOLIO
CHỢ CỒN- THE GREEN HILL ARCHITECTURE PORTFOLIO 42
DESIGN CONCEPT Inspiration | Design concept 7 MỘT BIỂU TƯỢNG MỚI KHÔNG GIAN CHỢ KIỂU CŨ KHÔNG GIAN MUA SẮM HIỆN ĐẠI TÍNH ĐÔ THỊ ĐỊA ĐIỂM DU LỊCHQUẢNG TRƯỜNG SỰ KIỆN DESIGN CONCEPT Inspiration | Design concept 6 THE GREEN HILL - Không chỉ là một không gian mua sắm, một quảng trường mà còn là một không gian thiên nhiên mới cho thành phố Đà Nẵng, thành phố đang mất dần tự nhiên do đô thị hóa - Not only a shopping space, a square but also a new natural space for Da Nang city, which is losing nature due to urbanization. 43 ARCHITECTURE PORTFOLIO
19 CHỢ CỒN | THE
GREEN
HILL CC88 2 ARCHITECTURE 15 ARCHITECTURE PORTFOLIO 44
3.6 Green building design 3.4 Water supply & drainage 3.5 Electrical system 9 45 ARCHITECTURE PORTFOLIO
ARCHITECTURE PORTFOLIO 46
PHỐI CẢNH GÓC NHÌN TỪ ĐƯỜNG TRUNG TÂM HÀNH CHÍNH TỈNH KON TUM 47 ARCHITECTURE PORTFOLIO

TRUNG TÂM HÀNH CHÍNH VÀ CHÍNH TRỊ

- Công trình không chỉ mang ý nghĩa như là công trinh trọng điểm, trái tim của thành phố kon tum, mà còn phải trở thành công trình điểm nhấn về mặt kiến trúc cho không gian thành phố đổi mới và hiện đại .

- Công trình được chúng tôi lựa chọn ngôn ngữ kiến trúc hiện đại nhưng được tiết chế trong đường nét và hòa quyện vào không gian rừng núi.đường nét được sắp xếp sao cho gợi nhớ đến những đường chân trời, và những vạt rừng vây quanh “ làng hồ “ - tên cũ của thành phố kon tum

- Quảng trường chính được thiết kế giật cấp theo cao độ của khu đất, tạo điểm nhìn đẹp vào công trình. điểm nhấn cuối chính là hội trường lớn được thiết kế đơn giản, trang nghiêm và mạch lạc.

- Quảng trường vẫn có thể được sử dụng cho các cuộc meeting công công và là nơi vui chơi của nhân dân vào buổi tối

- Bacony được tổ chức thành vườn trên cao, không chỉ tạo môi trường làm việc vi khí hậu tốt, cản bức xạ mặt trời trực tiếp , mà còn mang đến không gian xanh cho dự án

TRUNG TÂM HÀNH CHÍNH VÀ CHÍNH TRỊ QUẢNG TRƯỜNG CHÍNH ĐÓNG VAI TRÒ KHÔNG GIAN NGHI LỄ, CŨNG NHƯ MỞ CỬA CHO CỘNG ĐỒNG 25INTERGRATED POLITICAL & ADMINISTRATIVE CENTRE MẶT NƯỚC ĐƯỢC SỬ DỤNG PHẢN CHIẾU CÔNG TRÌNH, KHÔNG CHỈ MANG Ý NGHĨA KIẾN TRÚC CÒN TẠO HIỆU QUẢ LÀM MÁT CHO KHÔNG GIAN KIẾN TRÚC 24INTERGRATED POLITICAL & ADMINISTRATIVE CENTRE MẶT 10 107 MÔ TẢ 1- KHỐI ĐẢNG ÚY 2-3 KHỐI TRỤ SỞ VÀ CÁC BAN NGÀNH 4- QUẢNG TRƯỜNG CHÍNH 5- VƯỜN CÂY KONTUM 6- THẢM CÓ 7- MẶT HỒ SEN 8- HÀNH LANG ĐI BỘ 9- BÃI XE 10- SÂN THỂ THAO GROUND FLOOR - MẶT BẰNG 7 1 4 2 3 6 9 9 5 5 8 8 66 10 107 7 INTERGRATED POLITICAL & ADMINISTRATIVE CENTRE
ARCHITECTURE PORTFOLIO 48
TRỊ KT22 BẰNG TỔNG THỂBẰNG TẦNG TRỆT 9 9 7 13 KT22 FIRST FLOOR - MB TẦNG 1 14INTERGRATED POLITICAL & ADMINISTRATIVE CENTRE KT22 SECOND FLOOR - MB TẦNG 2 15INTERGRATED POLITICAL & ADMINISTRATIVE CENTRE 49 ARCHITECTURE PORTFOLIO
VICTORY TOWER - KONTUM ARCHITECTURE PORTFOLIO 50
51 ARCHITECTURE PORTFOLIO

- Công trình được thiết kế với tổ hợp hình tam giác, lấy từ logo của chính tập đoàn. một cách tiếp cận đơn giản, dễ hiểu và trực diện.

- Bên cạnh đó, hai khối thân- đế được tổ hợp các công năng công cộng được kết nối bởi hành lang cầu và không gian phố đi bộ. màu sắc chính của công ty - xanh đỏ - cũng biến tấu thành pattern kính

-Các dải cây xanh cuốn quanh thân công trình tạo thêm không gian tự nhiên nghỉ dưỡng cho các căn hộ sang trọng phía trong.

-Đài quan sát trên tầng 25 đồng thời là một phần của skybar sẽ là một điểm nhất độc nhất cho khu vực.

ARCHITECTURE PORTFOLIO 52
53 ARCHITECTURE PORTFOLIO
skyline villa a RCH i T e CTUR e ARCHITECTURE PORTFOLIO 54
55 ARCHITECTURE PORTFOLIO

OPTION1

- Biệt thự mang phong cách hiện đại, phóng khoáng hòa vào thiên nhiên

- Tổ hợp khố thoe chiều ngang lấy trọn view nhìn từ bên trong ngôi nhà

- Hình khối chắc chắn thể hiện sự bền vững của công trình

- The villa has a modern and liberal style that blends in with nature

- The horizontal loincloth complex takes the whole view from the inside of the house

- Solid shape shows the sustainability of the building

ARCHITECTURE PORTFOLIO 56
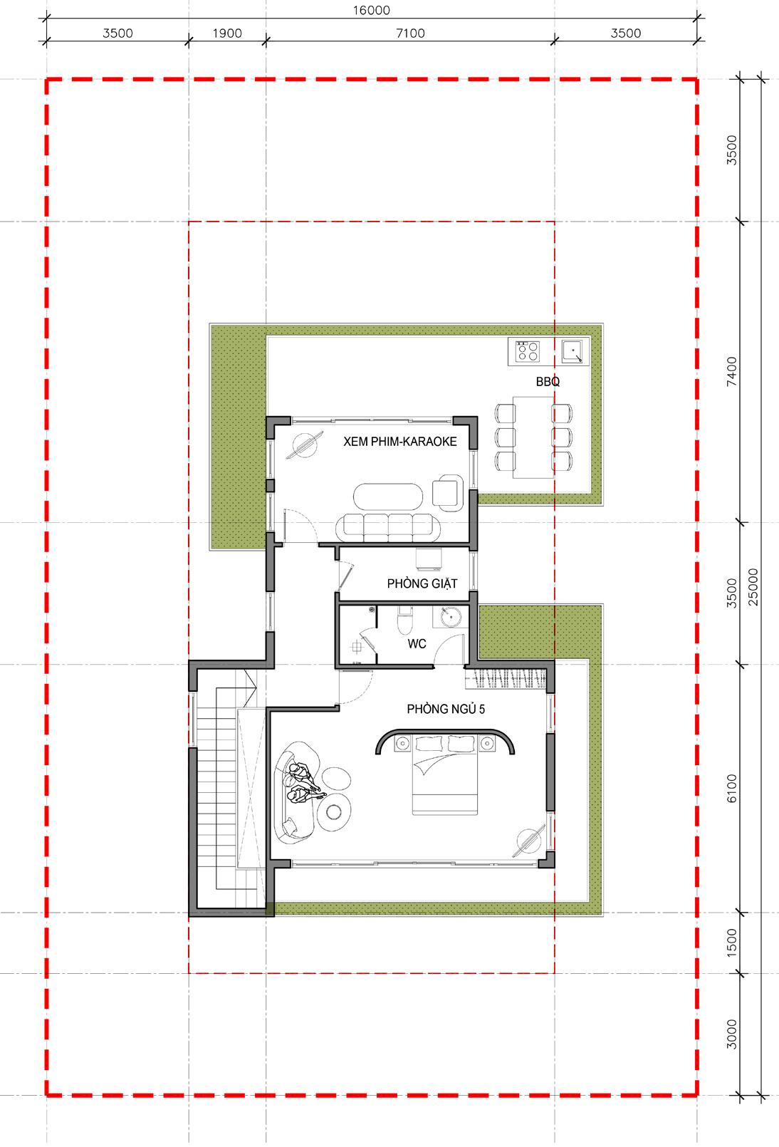
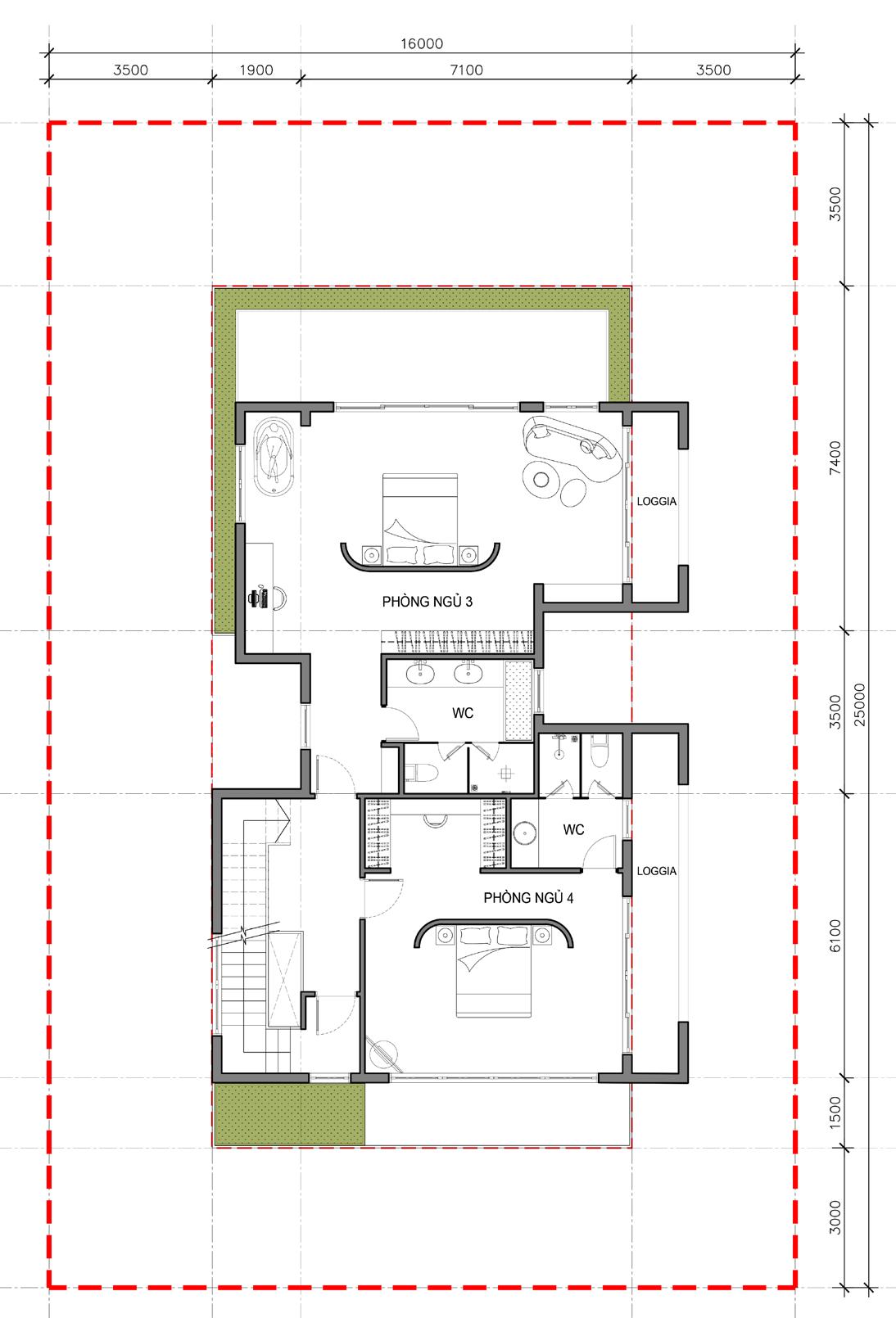
MẶT BẰNG TẦNG 1MẶT BẰNG TẦNG 3 12DTV PLAZA ARCHITECTURE CONCEPT MẶT BẰNG TẦNG 2MẶT BẰNG TẦNG 3 13DTV PLAZA | ARCHITECTURE CONCEPT MẶT BẰNG TẦNG 3 MẶT BẰNG TẦNG 3 14DTV PLAZA ARCHITECTURE | CONCEPT 57 ARCHITECTURE PORTFOLIO

OPTION2

- Tổ hợp công trình gồm nhiều khối chồng lên tạo thành những không gian đặc sắc bên trong công trình

- Các khối tầng trên vươn ra, tạo những không gian sinh hoạt ngoài trời

- The complex of works consists of many blocks that overlap to create unique spaces inside the building

- The upper floors reach out, creating outdoor living spaces

ARCHITECTURE PORTFOLIO 58
MẶT BẰNG TẦNG 1 19DTV PLAZA ARCHITECTURE | CONCEPT MẶT BẰNG TẦNG 2 20DTV PLAZA ARCHITECTURE CONCEPT 59 ARCHITECTURE PORTFOLIO
ARCHITECTURE PORTFOLIO 60
61 ARCHITECTURE PORTFOLIO

Turn static files into dynamic content formats.

Create a flipbook
Issuu converts static files into: digital portfolios, online yearbooks, online catalogs, digital photo albums and more. Sign up and create your flipbook.