Skip to main content

Work Samples

Page 1


Hybrid Harvest Hub:

Project Category: Academic

Project Type: Hybrid (Retail+Institutional+Community) - Interiors

Project Size: 45,000 sq feet

Softwares used: Rhino3D, Enscape, Autocad, Lightroom, Photoshop, Illustrator

Concept: The Hybrid Harvest Hub is a dynamic facility dedicated to teaching and practicing urban agriculture, specifically designed for the people of New York City. This center cultivates various types of organic produce, providing hands-on learning experiences to empower individuals to practice urban farming on a small scale within their homes. The project integrates live urban farming within the building, where the harvested produce is sold at the farmers market. Additionally, it features a restaurant and cafeteria that utilize fresh produce to create culinary recipes and dishes. Visitors can immerse themselves in the urban farming process, gain valuable knowledge, engage in community empowerment activities, and enjoy a comprehensive, enriching day at the center. The design aims to create a seamless blend of educational, retail, and culinary experiences, fostering a community-focused environment that promotes sustainable urban agriculture and healthy living.

Arrangement of units (3D) to form multiple such units (3D), thus resulting in cluster of similar space

Placement of the units (2D) at different levels from each other to enhance community engagement and connectivity

Generating a sequential rhythm in placing the spaces to create a visual network throught the project

Positioning of modules in a conditional pattern facilitating engaging transitional spaces

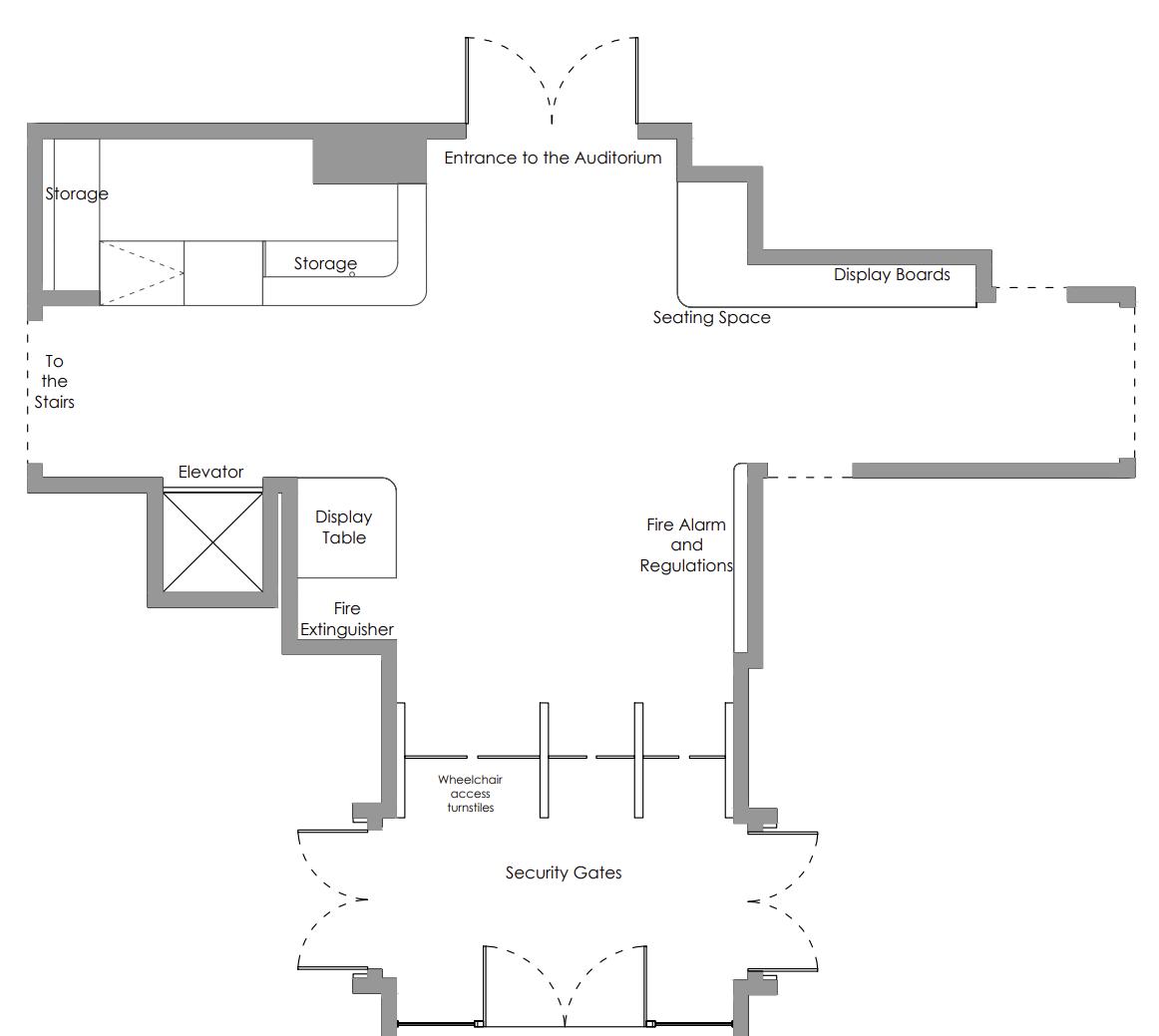
Rendered View of the Atrium/Gathering Area (reference; first floor plan, 05)

Mud Jeans Pop-up Store:

Project Category: Academic

Project Type: Retail - Interiors

Project Size: 1104 sq feet

Softwares used: Rhino3D, Enscape, Autocad, Photoshop, Illustrator

Concept: Inspired by the innovative strategies of Mud Jeans, the concept for this Shop-in-Shop embodies open and transparent circulation, with design elements arranged in a grid pattern reflective of the weaving structure of denim fabric. This grid pattern is derived from the fundamental cross-weaving technique of cotton threads that creates the distinctive denim texture. Aligning with the brand’s three pillars of ideals and principles, the design incorporates three primary elements: the grid pattern, transparency in circulation, and the use of complementary colors. Circulation within the shop revolves around a central clothing display, emphasizing the brand’s commitment to ethics and sustainability. This design not only highlights the aesthetic appeal of Mud Jeans but also reinforces the brand’s mission to promote sustainability in a society increasingly focused on ethical practices.

Rendered View of the pop up store; MUD JEANS; Bloomingsdale
reception desk top view
Concept imageboard for the pop up store

Rahul Mishra AFEW Flagship Store:

Project Category: Academic

Project Type: Retail - Interiors

Project Size: 3750 sq feet

Softwares used: Rhino3D, Enscape, Autocad, Photoshop, Illustrator

Concept: AFEW Rahul Mishra stands for Air, Fire, Earth, Water, representing the label’s vision of balanced, luxurious, and easy-to-wear fashion tailored to the modern woman’s wardrobe.

Located in the heart of New York City, the flagship store encapsulates the essence of Rahul Mishra’s brand—art in weaving. The brand identity is rooted in the art of weaving, which seamlessly connects the world of fashion with the wider world through fabric. Rahul Mishra describes the smooth connection between art, fashion, and fabric as a wave. This project aims to highlight the brand identity by using waves as the central concept, effectively communicating the brand’s essence to the public in its simplest form.

Rendered view of the flagship store interiors
Rendered Plan (first floor) of the flagship store; Rahul Mishra AFEW
Rendered elevation view of the flagship store with window displays; Night
Rendered elevation view of the flagship store entrance; Night

Le Belle, a Boutique Hotel:

Project Category: Academic

Project Type: Hospitality - Interiors

Project Size: 1.5 acres; 65,340 sq feet

Softwares used: Rhino3D, Enscape, Autocad, Lightroom, Illustrator, Canva

Concept: Le Belle embodies elegance at its peak. The logo features interconnected flowers integrated with the brand name, reflecting its essence. Le Belle is an authentic French hotel chain renowned for its global identity and commitment to luxury. The hotel strives to blend luxury and comfort seamlessly through its service and amenities, offering guests a glimpse into Quebec’s rich culture. The design concept focuses on contemporary wallpapers complemented by architectural arches, creating a soft and luxurious narrative that aligns with the hotel’s name & brand, Le Belle.

Rendered view of the master bedroom; Day
Rendered view of the master bedroom; Night
Rendered Plan of the presidential suite, Le Belle Hotel

Healthcare Facility:

Project Category: Academic

Project Type: Healthcare - Interiors

Project Size: 0.5 acres; 21,780 sq feet

Softwares used: Revit, Lumion, Enscape, Autocad, Lightroom, Illustrator

Concept: The design concept emphasizes creating a welcoming and uplifting environment aimed at fostering healing and positivity for patients and visitors alike. Central to this approach is the seamless integration of movement and connection to nature throughout the hospital space. The hospital design incorporates natural colors such as green, blue, yellow, and reds, inspired by elements found in nature. This description emphasizes the holistic approach to architectural design, focusing on creating a therapeutic environment that supports healing and well-being.

Rendered view of a recovery room 02
Rendered view of a recovery room 01
Rendered view of control room of the screening room
Rendered view of a screening room
Rendered view of a major operation room
Rendered view of the hospital lobby

Reception Desk:

Project Category: Academic

Project Type: Furniture Design

Project Size: 875 sq feet

Softwares used: Rhino3D, Enscape, Autocad, Lightroom, Photoshop

Concept: Central Concept focuses on creating an inclusive and inviting environment that celebrates the principles of the New York School of Interior Design. Key to this concept is the integration of furniture as an integral part of the overall space, fostering communication and knowledge expansion. The Reception Desk exemplifies this approach with its construction from White Oak wood, featuring external ribs and a reclaimed white marble top. This design choice establishes a neutral backdrop that enhances the prominence of the NYSID Logo in red, ensuring visibility and impact from the street. Throughout the interiors, a cohesive rhythm and continuity are achieved through carefully curated design features and a harmonious color palette. This visual balance not only defines the aesthetic character of the space but also reinforces its cohesive and welcoming atmosphere.

Render of the NYSID Main campus reception with the Reception Desk

Letto-Lato Table:

Project Category: Academic

Project Type: Furniture Design

Product Size: 24” x 20” x 4” (Carry on Bag size)

Softwares used: Rhino3D, Enscape, Autocad, Lightroom, Photoshop

Concept: This versatile piece of furniture serves four distinct functions, outlined as follows:

- Primary Function: Bedside Table

- Secondary Function: Study Desk

- Tertiary Functions: Storage & Drawer, Seating

Inspired by the concept of integrating multiple functionalities into a single piece tailored for specific spaces, the Letto-Lato bedside table transforms seamlessly into a study desk complete with a flush-in chair featuring additional storage space underneath. Its innovative design provides comprehensive utility in a compact form, making it ideal for various living environments.

Ready to Assemble Tessere Chair:

Project Category: Academic

Project Type: Furniture Design

Product Size: 24” x 20” x 4” (Carry on Bag size)

Softwares used: Rhino3D, Enscape, Autocad, Photoshop, Illustrator

Concept: IKEA’s design philosophy centers around chair strength, emphasizing durability and user-friendly assembly. The DIY Tessere chair concept draws inspiration from weaving patterns known for their robust structural integrity, essential in chair construction. Its construction method relies on interlocking components, eliminating the need for additional fixtures like bolts or rivets, ensuring swift assembly. The design ethos also embraces minimalism, enhancing its appeal and marketability. A unique feature includes a transparent, soft-cushioned PVC bag designed for transporting the chair. This bag can be repurposed as a non-slip backrest and additional cushioning, enhancing comfort and functionality for the user. This description emphasizes the innovative design approach and user-centric features of the Tessere chair, aligning with IKEA’s commitment to practicality and sustainability in furniture design.

The Koronaaz Apartments:

Project Category: Academic

Project Type: Residential - Architecture

Project Size: 5 acres/ 23,250 sq meters

Softwares used: Revit, Lumion, Autocad, Photoshop, Illustrator

Concept: The residential architectural project, Koronaas is a thoughtful response to Gurugram’s rapid urbanization and the resulting socio-cultural challenges. By integrating diverse residential options, enhancing public spaces, and addressing traffic and environmental concerns, the project aims to create a vibrant, interactive, and sustainable living environment. Through its innovative design and strategic zoning, it promises to enrich the urban experience and foster a strong sense of community among residents.

CLUSTER HOUSING : THE KORONAS

CLUSTER TYPE: 1

Rendered views of the Koronaaz residential apartments
Rendered Site Plan of the Koronaaz residential apartments with contour levels

Urban Acupuncture Guide - New Delhi, India

Project Category: Academic

Project Type: Urban Design

Project Size: 23 acres/93,000 sq meters

Softwares used: Rhino3D, Autocad, Photoshop, Illustrator

Concept: This project focuses on redefining and revitalizing the urban streetscape through strategic interventions on Africa Avenue and its surrounding network. By analyzing the existing conditions, we identified key nodes and edges that require transformation to improve connectivity, safety, and social interaction. The proposal includes the redesign of primary and secondary streets, emphasizing pedestrian and cycling infrastructure, enhancing green cover, and integrating social and economic activities. Specific interventions on roads such as WTC Road, Chaudhary Jhandu Singh Marg, and Church Road aim to address current deficiencies and promote a more inclusive and vibrant urban environment, ensuring a holistic approach to urban acupuncture.

different categories of sections observed as part of

Typical zoning of a functional streetscapes solution

Jahanpanah ni pol - Ahmedabad, India

Project Category: Academic

Project Type: Documentation and Research - Architecture

Project Size: 2 acres street

Softwares used: Rhino3D, Photoshop, Illustrator, Procreate Skills used: Hand Drafting (scale 1:100), Hand Rendering

Concept: Jahanpanah ni pol, inspired by the traditional pol house society of Ahmedabad and contextual studies by B.V. Doshi, aims to create a vibrant, sustainable urban environment that harmonizes historical and modern elements. Drawing from the dense, community-centric design of pol houses, the project incorporates climate-responsive and culturally integrated principles emphasized by Doshi. Utilizing the urban acupuncture approach, it makes strategic, small-scale interventions to rejuvenate the community while preserving its historical essence. By embracing the community’s adaptability to modern changes and emphasizing sustainable design through natural ventilation, shading, and local materials, the project seeks to foster a socially interactive and environmentally friendly urban space that celebrates Ahmedabad’s rich architectural heritage.

typical house elevation with material details of a pol house in ahemdabad
Different types of street sections mapped during the study of community residential cluster of pol houses in Ahemdabad

The Bhunga Tribal Houses:

Project Category: Academic

Project Type: Documentation and Research - Architecture

Project Size: 8750 sq feet/810 sq meters

Skills used: Hand Drafting (scale 1:500), Hand Rendering

Concept: The architectural study of Bhunga houses, found in the Kutch district of Gujarat, India, details their traditional and current construction practices. Bhungas, typically situated in flat rural areas, are circular buildings with cylindrical walls and conical roofs, ranging from 3 to 6 meters in diameter. They primarily serve as single-family homes with minimal openings and a single means of escape. Historically built with mud or cement mortar and traditional lightweight roofs, modern adaptations include various construction materials and techniques like heavy mangalore tiles and circular strip footings. This construction method has been practiced for over 200 years, with some Bhungas surviving beyond 50 years despite the shift to modern materials in urban areas.

Detailed hand Drafted & Rendered plan of the Bhunga community cluster with spaces
Detailed hand Drafted & Rendered plan of the Bhunga community cluster highlight on the shadows
Detailed hand Drafted & Rendered section of the Bhunga community cluster with levels (Refernce; Section line - Plan)

Origami Portable Shelter:

Project Category: Academic

Project Type: Product Design

Softwares used: Rhino3D, Grasshopper, Photoshop

Concept: The Foldable Shelter project is inspired by the principles of herringbone origami folds, aiming to create a portable and efficient shelter. The design focuses on creating a self-stable structure that is more effective than regular tents. Made from lightweight, renewable, and natural resources, the shelter is designed for easy portability and stability when deployed. The innovative folding mechanism allows for compact storage and quick assembly, providing a practical solution for temporary housing needs.

Project Category: Professional Experience

Project Type: Residential - Architecture

Project Size: 0.2 acres/ 836 sq meters

Softwares used: Sketchup 3D, Autocad, Photoshop

Concept: This residential project concept, inspired by traditional Rajput-style architecture, integrates vernacular design with climatic, geographical, and cultural considerations. The house features a courtyard for ventilation, a symmetrical layout, and strategic room placement to meet family needs and customs. Designed for a composite climate, it utilizes large windows, high ceilings, stone construction with lime binding, stone pillars, rubble masonry, and Kota stone flooring. The layout supports cultural practices, with separate public and private areas, distinct pooja and WC locations, and dedicated entry and staircases for sweepers. The spacious design accommodates a large family and their assets, ensuring connectivity and functionality while maintaining privacy.

Responsibilities: Site Inspection & Survey, Site mapping & Layout Planning, Foundation Plan and carpet area calculations, Client Presentations, 3D digital modeling, Initial Floor Layout & planning, Structural Planning, Mechanincal details, Final Construction Drawings

Amervillas Resort:

Project Category: Professional Experience

Project Type: Hospitality - Architecture

Project Size: 4.2 acres/ 17,000 sq meters

Softwares used: Sketchup 3D, Autocad, Photoshop

Skills used: Hand sketching, Hand Rendering

Concept: The Amervillas Resort concept envisions an exclusive retreat that combines modern luxury with traditional Indian grandeur, situated amidst serene natural surroundings. Inspired by Rajasthan’s palaces, the resort features pink sandstone and white marble exteriors with intricate hand-carved frescoes. It dazzles in white by day and transforms to sunset yellow by night, offering spectacular views from every angle. The magnificent atrium lobby and interiors blend Victorian, Persian, and Mughal styles, creating a rich, inviting atmosphere, Embracing the essence of Indian culture, the resort integrates cutting-edge technology with timeless hospitality, providing a seamless blend of contemporary comfort and historical elegance. (Project done in the Group of 2; Simran Walia, Tripureshee Vashishtha)

Responsibilities: Site Inspection & Survey, Layout Planning, Client Presentations, Hand sketches, 3D digital modeling, Initial Floor Layout & planning, Interior Room planning

Rendered
Colored front view sketch of the Resort main stay (Reference; Castle Rooms in the site plan)
Colored rear view sketch of the Resort main stay (Reference; Castle Rooms in the site plan)

Patrika Gate:

Project Category: Professional Experience

Project Type: Redevelopment (Heritage & Restoration) - Architecture

Project Size: 6584 sq feet/612 sq meters

Softwares used: Sketchup 3D, Autocad, Photoshop

Skills used: Hand sketching

Concept: The Patrika Gate in Jaipur is envisioned as a grand architectural marvel that serves as a vibrant gateway to the city’s rich cultural heritage. Inspired by traditional Rajputana architecture, the gate features intricate carvings, vibrant frescoes, and majestic arches made from local pink sandstone and marble. It showcases the exquisite craftsmanship of Jaipur’s artisans and depicts scenes from Rajasthan’s history and mythology. Designed to be a spatial experience, the gate invites visitors to explore and engage with its art and history, while carefully designed illumination enhances its grandeur day and night. Patrika Gate stands as a testament to Jaipur’s cultural legacy, seamlessly integrating with the urban landscape and celebrating the timeless beauty of its architectural traditions.

Sindhi Camp Bus Terminal:

Project Category: Professional Experience

Project Type: Heritage & Restoration - Urban

Project Size: 2.6 acres/ 10,520 sq meters

Softwares used: Autocad, Photoshop

Concept: The Sindhi Gate Bus Terminal City in India envisions a modern, integrated transportation hub that harmonizes functionality with urban aesthetics. Designed as a pivotal node within the city’s transit network, the terminal will feature sleek, sustainable architecture with green spaces and efficient layout, fostering seamless connectivity between buses, local transit, and pedestrian pathways. Emphasizing eco-friendly materials and smart technologies, the design aims to create a vibrant, user-centric environment that enhances commuter experience while contributing to the city’s growth and urban fabric. (Project done in the Group of 4)

Responsibilities: Site Inspection & Survey, Site re-mapping & Renovations Planning, Structural Planning, Mechanincal details, Final Construction Drawings, Market Survery and material pallete distribution, material schedules for site installations

Nayapura Street:

Project Category: Professional Experience

Project Type: Redevelopment (Heritage & Restoration) - Urban

Project Size: 0.3 acres/ 1200 sq meters

Softwares used: Autocad, Illustrator

Concept: Nayapura street Redevelopment focuses on enhancing and revitalizing the Nayapura road facade near Swami Vivekanand Circle in Kota. The redevelopment aims to celebrate and preserve Rajasthan’s rich architectural heritage by incorporating traditional elements such as Chhajjas (overhanging eaves), Chattris (elevated, dome-shaped pavilions), Awnings, and Jharokhas (overhanging enclosed balconies) from Kota and Jaipur. These features will be integrated into the urban landscape to create a visually appealing and culturally resonant environment, rejuvenating the area and providing a harmonious blend of traditional aesthetics and modern urban functionality.

Responsibilities: Site Inspection & Survey, Site re-mapping & Renovations Planning, Structural Planning, Final Construction Drawings, Market Survery & material schedules

Oxyzone Park, India:

Project Category: Professional Experience

Project Type: Recreational Urban Design, Architecture & Landscaping

Project Size: 103 acres/ 416,826 sq meters

Softwares used: Sketchup 3D, Autocad, Photoshop, Illustrator

Concept: Oxyzone project represents a holistic approach to development that prioritizes environmental sustainability, community well-being, and harmonious living with nature. The core idea is to create a sustainable, green environment that promotes wellness, biodiversity, and environmental stewardship. It is a model for future developments seeking to balance modern needs with ecological responsibility. (Project done in the Group of 3; Group: Shashank Jain, Simran Walia, Tripureshee Vashishtha)

Responsibilities: Site Inspection & Survey, Site mapping & Layout Planning, Foundation Plan and carpet area calculations, Client Presentations, 3D digital & physical modeling, Hand sketches and details, Initial Floor Layout & planning, Structural Planning, Mechanincal details, Construction details drawings, site visits & inspections, Final Construction Drawings

Art Hill: Oxyzone Park

Project type: Architecture

Softwares used: Sketchup 3D, Autocad, Photoshop, Illustrator

Skills used: Hand sketching, Hand Rendering, 3D fabrication and printing

Concept: Art Hill is a distinctive feature designed to integrate art and nature within an urban recreational space. Located within a 103-acre park aimed at providing a green zone in Kota’s arid environment, the Art Hill offers a visually engaging and culturally enriching experience. It features undulating mounds, a variety of art installations, and landscaped elements that promote biodiversity. It also provides a path to a restaurant hidden beneath the hill which serves as a whole new experience for the visitors. The project is under construction and includes the planting of over 25,000 trees and various types of plants to create a compact ecosystem of flora and fauna.

Responsibilities: Site Inspection & Survey, Layout Planning, Foundation Plan and carpet area calculations, Client Presentations, 3D digital & physical modeling, Hand sketches and details, Structural Planning, Mechanincal details, Construction details drawings, site visits & inspections, Final Construction Drawings

Projection

Column C1
Arch Beam T1 (Truss)
Bracket Truss T2
Connecting Ring R2
Bracket Truss T2
Earth Fill
Arch Truss T4
Precast/Cast in situ /Conc. Panels Vertical Fins - RCC/Brick RCC Column Space for Services
Drain for Water Seepage
Column C1
Connecting Ring R1 Cantilever

Aviary: Oxyzone Park

Project type: Architecture

Softwares used: Autocad, Photoshop, Illustrator

Skills used: Hand sketching, Hand Rendering

Concept: Aviary in is a central feature aimed at fostering biodiversity and offering an engaging experience for visitors. The aviary is designed to house a variety of bird species, creating a vibrant and educational environment. It serves as a sanctuary for both native and exotic birds, allowing them to thrive in a controlled yet naturalistic setting. The aviary’s design emphasizes large, open spaces with natural vegetation, water bodies, and nesting areas to mimic the birds’ natural habitats. This project is part of the larger initiative to develop OXYZONE into a green oasis in Kota’s arid landscape, enhancing the ecological balance and providing a serene recreational space for the community.

Responsibilities: Site Inspection & Survey, Layout Planning, Preliminary Vendor estimates & specification sheets, Client Presentations, 3D digital & physical modeling, Hand sketches and details, Structural Planning, Mechanincal details, Construction details drawings, site visits & inspections, Final Construction Drawings

Sketch of the aviary to understand coherence with the surrounding Sectional

Cocoon Canopy: Oxyzone Park

Project type: Urban - Recreational Softwares used: Autocad, Photoshop, Illustrator Skills used: Hand sketching, Hand Rendering Concept: cocoon canopies are designed to offer shaded seating areas along the WiFi trail. Constructed with Mild Steel (MS) frames painted to resemble wood, these canopies feature 40 mm thick teak wooden planks for seating, blending durability with aesthetic appeal. With various sectional elevations showing different dimensions, the canopies ensure both functional shelter and visual enhancement of the park. This design aligns with the park’s aim to provide comfortable and attractive public spaces for visitors. Responsibilities: Site Inspection & Survey, Layout Planning, Preliminary Vendor estimates & specification sheets, Client Presentations, Hand sketches and details, Structural Planning, Mechanincal details, Construction details drawings, site visits & inspections, Final Construction Drawings

Teak Wooden Planks (40 mm thick) for Sitting Area
MS Frame (RHS 122x61x4.5) Painted in Natural Wood Texture
MS Frame (RHS 122x61x4.5) Painted in Natural Wood Texture
Teak Wooden Planks (40 mm thick) for Sitting Area
Sketches of the Canopy highlighting the seating
Sketch of the canopy resembling a cocoon

Entrance Fountain: Oxyzone Park

Project type: Urban - Recreational

Skills used: Hand sketching, Hand Rendering

Concept: The Entrance Fountain serves as a grand welcome feature, symbolizing the fusion of natural beauty and artistic expression. Positioned at the park’s main entry point, the fountain is designed to captivate visitors with its intricate water patterns and aesthetically pleasing design. The fountain integrates modern technology with traditional architectural elements, creating a dynamic visual display that complements the park’s overall theme of blending nature with art. Surrounding the fountain are lush landscapes and carefully curated flora, enhancing the serene ambiance and setting the tone for the park experience. The fountain not only serves as a decorative element but also enhances the environmental aesthetics, contributing to the park’s role as an urban green space in Kota.

Responsibilities: Hand sketches and details, Structural Planning, Construction details drawings, site visits & inspections, final construction drawings

Sketch 02 of the Fountaion
Sketch 01 of the Fountaion

Entrance Gate: Oxyzone Park

Project type: Urban - Recreational

Softwares used: Autocad, Photoshop, Illustrator

Skills used: Hand sketching, Hand Rendering

Concept: The entrance gate serves as a grand and inviting entry point that encapsulates the park’s blend of natural beauty and modern design. Featuring a series of five arches with hollow MS frame structures clad in wood-textured aluminum composite panels, the gate exudes a contemporary yet warm aesthetic. Prominently displayed is the City Park logo, symbolizing the park’s identity. The entrance is enhanced with green mounds, a guard room for security, and well-designed walkways with herringbone brick flooring, all contributing to a harmonious and welcoming environment for visitors.

Responsibilities: Site Inspection & Survey, Layout Planning, Preliminary Vendor estimates & specification sheets, Client Presentations, Hand sketches and details, Structural & Construction details drawings, site visits & inspections, Final Construction Drawings

LOGO in Cast Iron
Connection of Cast Iron and MS through Bolting
30MM Thick Mandana Cladding
Exposed Ashlar Masonary (Retracked from site)
30MM Thick Mandana Cladding

Food Court: Oxyzone Park

Project type: Urban - Recreational Softwares used: Autocad, Photoshop, Illustrator Skills used: Hand sketching, Hand Rendering

Concept: The food court is designed to be a central social hub within the park, providing a vibrant and inviting space for visitors to enjoy a variety of culinary options. The design incorporates a combination of Brown Kota and Banswara White stones, creating a visually appealing and durable flooring pattern. The layout features well-defined pathways, seating areas, and shaded zones to enhance the dining experience. Additionally, the food court is adorned with flowering horticulture, potted plants, and hedging. It aims to offer a comfortable and aesthetically pleasing environment for park-goers to relax and dine.

Responsibilities: Site Inspection & Survey, Layout Planning, Preliminary Vendor estimates & specification sheets, Client Presentations, Hand sketches and details, Structural Planning, Construction details drawings, Final Construction Drawings

Glass House: Oxyzone Park

Project type: Architecture

Softwares used: Autocad, Photoshop, Illustrator

Skills used: Hand sketching, Hand Rendering

Concept: The glass house is a striking architectural feature designed to create a tranquil and aesthetically pleasing environment within the park. The structure is characterized by its use of blue and orange colored glass panels, which are arranged in a pattern to allow natural light to filter through and create a vibrant play of colors inside. The glass panels are supported by a framework of 50mm diameter MS pipes and columns clad in cast iron, adding a robust yet elegant touch to the design. The exterior of the glass house features cladding of hand-painted ceramic tiles in complementary colors, enhancing its visual appeal. Additionally, the design incorporates openable glass sections for ventilation, ensuring a comfortable climate inside. The glass house not only serves as a visual focal point but also provides a serene space for visitors to enjoy the natural beauty of the park while being sheltered from the elements

Responsibilities: Site Inspection & Survey, Layout Planning, Foundation Plan, Preliminary

Vendor estimates & specification sheets, Client Presentations and design ideations, Hand sketches and details, Structural Planning, Construction details drawings, site visits & inspections, Final Construction Drawings

Stone Bridge: Oxyzone Park

Project type: Architecture

Softwares used: Autocad, Photoshop, Illustrator

Skills used: Hand sketching, Hand Rendering

Concept: The stone bridge serves as a picturesque and functional element within the park’s design. Constructed using laterite brick with a height of four layers, the bridge features proper joinery to ensure stability and aesthetic appeal. The flooring of the bridge includes a combination of black Kadappa stone and grass, creating a visually appealing pattern. The bridge is designed to integrate seamlessly with the surrounding landscape, featuring hedging, potted plants, and date palms as per the plantation plan, further enhancing the natural beauty of the park while providing a charming crossing over the park’s water bodies.

Responsibilities: Site Inspection & Survey, Layout Planning, Foundation Plan, Client

Presentations, Hand sketches and details, Preliminary Vendor estimates & specification sheets, Structural Planning, Construction details drawings, site visits & inspections, Final Construction Drawings

Stone Gazebo: Oxyzone Park

Project type: Architecture

Softwares used: Autocad, Photoshop, Illustrator Skills used: Hand sketching, Hand Rendering

Concept: The stone gazebo is a harmonious blend of traditional and modern architectural elements, designed to provide a serene retreat within the landscape. Constructed with durable and aesthetically pleasing stone, it features a robust foundation, elegant stone columns, and a roof often combining stone tiles with wood. The polished stone flooring adds to its inviting nature. Intricate carvings and natural hues enhance its beauty, making it a centerpiece that seamlessly integrates with the surrounding environment.

Responsibilities: Site Inspection & Survey, Layout Planning, Preliminary Vendor estimates & specification sheets, Client Presentations, Structural Planning, Construction details drawings, site visits & inspections, Final Construction Drawings

Stone Gazebo
DHOLPUR WHITE STONE DASA
DHOLPUR WHITE STONE COLUMNS
METAL RIBS
METAL SHEET
METAL FINIAL

Tree Man Statue: Oxyzone Park

Project type: Urban - Recreational Softwares used: Autocad, Photoshop, Illustrator Skills used: Hand sketching, Hand Rendering

Concept: The “Tree Man” is a distinctive design feature aimed at integrating art and nature within the park’s landscape. This element features an artistic representation of a man with tree-like qualities, symbolizing the deep connection between humans and nature. The structure is made of repurposed sandstone and marble, ensuring longevity and resilience against the elements. The “Tree Man” embodies the project’s ethos of creating a green oasis in an arid zone, fostering a compact ecosystem of plants, birds, and animals while providing a unique and memorable experience for park-goers.

Responsibilities: Site Inspection & Survey, Layout Planning, Preliminary Vendor estimates sheet, Client Presentations, Hand sketches and details, Structural Planning, Construction details drawings, site visits & inspections, Final Construction Drawings

Wooden Gazebo: Oxyzone Park

Project type: Architecture

Softwares used: Autocad, Photoshop, Illustrator Skills used: Hand sketching, Hand Rendering

Concept: The wooden gazebo is a charming and eco-friendly structure designed to blend seamlessly with the natural environment. Built from sustainably sourced timber, it features a robust foundation, intricately crafted wooden columns, and a weather-resistant roof. The gazebo provides a shaded, serene space for relaxation, with polished wooden flooring and comfortable seating. Its design includes natural wood finishes that highlight the beauty of the timber, and eco-friendly treatments to ensure durability against the elements. Strategically placed within the landscape, the gazebo serves as a picturesque retreat that enhances the project’s commitment to sustainable and harmonious design.

Responsibilities: Site Inspection & Survey, Layout Planning, Preliminary Vendor estimates & specification sheets, Client Presentations, Structural Planning, Construction details drawings, site visits & inspections, Final Construction Drawings

MM THICK

MORTAR 50 MM THICK

PCC 150 MM THICK

50 MM THICK

BRICK FILING

PCC 150 MM THICK

BRICK FILING

RR WALL 300 MM THICK (MANDANA STONE)

PCC 150 MM THICK

RR WALL 300 MM THICK (MANDANA STONE)

GSB 150 MM THICK

PCC 150 MM THICK

GSB 150 MM THICK

Turn static files into dynamic content formats.

Create a flipbook