

PORTAFOLIO
01
Diseño residencial
02
Diseño comercial
03 Trámites municipales.
Diseño Residencial
Vivienda Unifamiliar


Remodelación Interior






Remodelación Dormitorio



Remodelación baño de visita



Diseño de villa modelo




Diseño Comercial
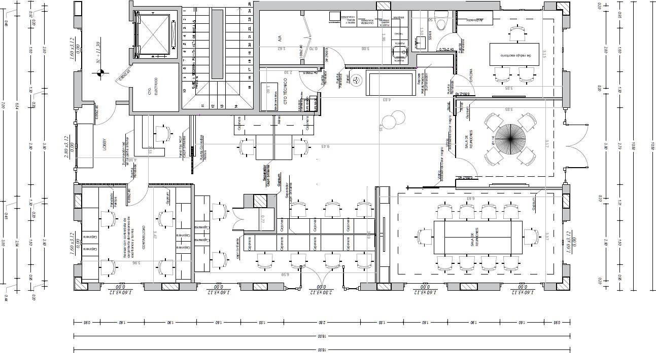
Remodelación de Oficinas





Diseño de joyería



Proyecto centro de padel






Diseño de Disensa Max Santa
Elena




Rebranding Holcim



Trámite Municipal
Regularización y permisos de construcción
