AT THE INTERSECTION
Residential project exploring accessibility in a post-pandemic world.
THE SCENE GALLERY
A multi-sensory art gallery focusing on inclusivity and suporting local artists.
PROFESSIONAL WORKS
A collection of works done during my internship and full time position.
FREELANCE PROJECTS
Projects done for friends, family, and personal clients.
HAND DRAWINGS +
ARTWORK






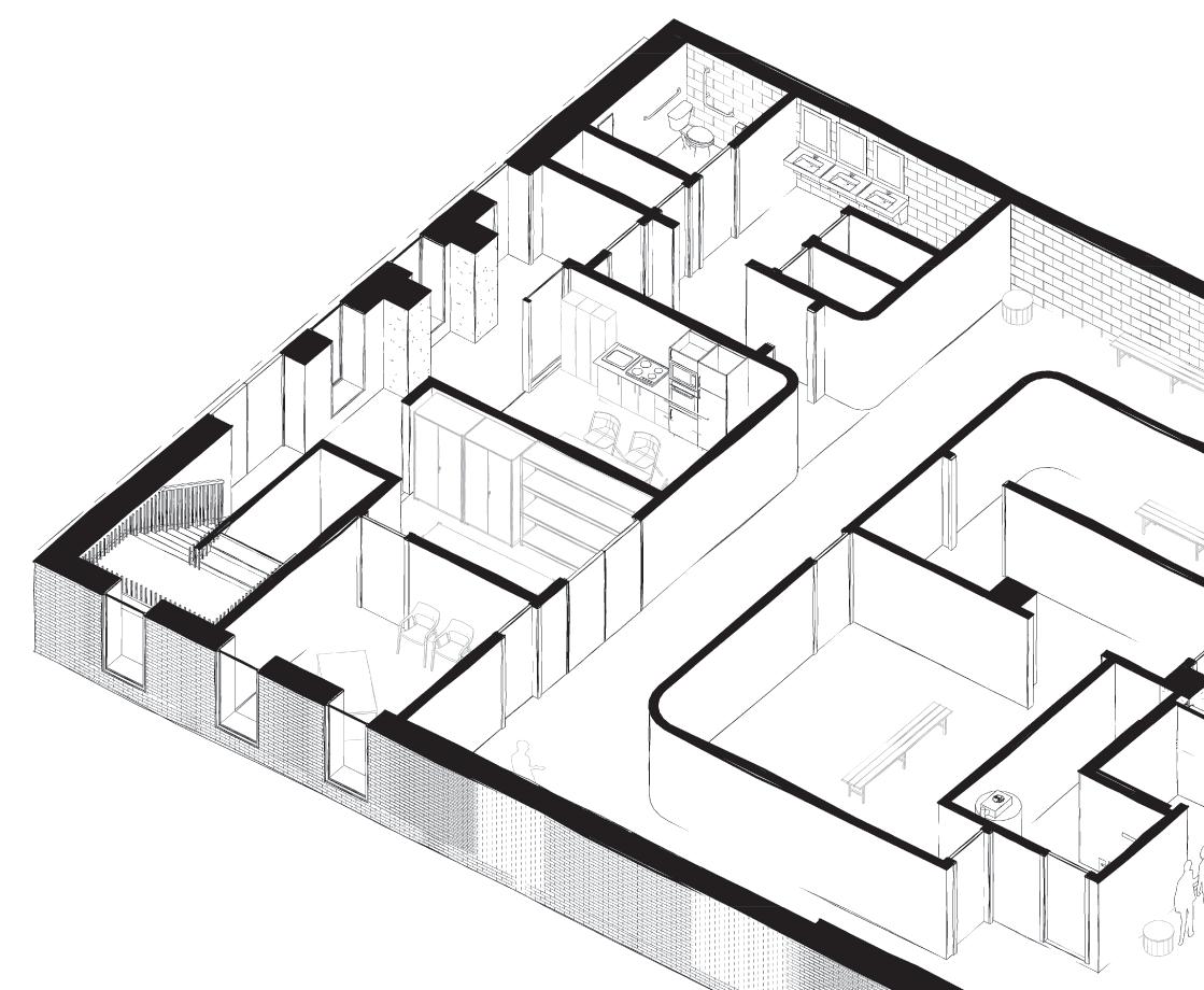
AT THE INTERSECTION
At the Intersection is a residential design settled in a post-pandemic world. With the sharp increase in mental health struggles and awarness of personal spaces since the pandemic it is more important than ever to have a home that accomodates a diverse set of demographics and issues. The title came about from a need for homes that meet a plethora of needs, converging into a single point like an intersection of a neighborhood road. It also stems from the intersectionality of idividuals and families where different identies intersect and interact to create unique experiences and unique design problems. At the Intersection is meant to serve the needs associated with multi-generational households, necessary means for possible furuture quarantines, and individuals with a range of disabilities and individual characteristics that may make living in a typical space distressing and unfucntional. The goal was to produce a flexible, accessible, and cohesive design by incorporating innovative solutions to the problems associated with athe current state of the world as well as its everchnaging conditions and individuals.
THE FAMILY
MOM, 46
Works from home
Interior Designer
Often hosts clients and gatherings
DAD, 50
Real estate Agent
Chronic Anxiety
Often physically active
YOUNGEST SON, 10
Often physically active
On the autism spectrum








High School Student
Dog walker
Partially Blind
GRANDMA, 73
Works from home
Painter and sculpter
Wheelchair user
ELDEST SON, 20 DAUGHTER, 16
College Student
Athlete
Often physically active
SERVICE PET, 3yrs
Prioritizing views, privacy, and sound is crucial for fostering mental well-being. From advanced technological tools to carefully curated furnishings, the incorporation of specialized equipment spans a spectrum of considerations. Ensuring an optimal balance of these elements is paramount in mitigating stressors and eliminating barriers that may impede comfort and productivity within the home.


























Minor modifications to the typical residential floor plan are made in order to make a profound impact in creating an adaptable home.
• Rooms are barrier-free, lowering the risk of injuries and stress
• The master becomes an accessible suite for the grandmother
• The garage decreses in size to add in a multi-use room
• An elevator is added for individuals with mobility disibilities
The home is also quarantine-ready with:
• Half baths near entrances to encourage hand washing
• A home office and multipurpose room
• A basement equipped with a gym, entertainment space, and spa as an escape from the feeling of being stuck at home with nothing to do















Drawers for full storage access
Lowered counter height
Adjustable cooktop counter

Pull out surface for hot plates
Low open shelving for wheelchair accessibility
Lowered counter height
This custom island comes fully equipped. The open shelving, drawers in place of shelved cabinets, varrying counter heights, and a mechanically adjustable cooktop allows ease of access and use for all individuals.
VIEW FROM KITCHENVIEW FROM LIVING ROOM

The dark base in contrast with the lighter countertops aids individuals with visual disabilities. The countertoos are made from a renewable material that doesn’t hold onto bacteria and germs, a comforting finish for people who are immune compromised.
MATERIALS + FINISHES
Materials and finishes were carefully selected to to mimick the look and feeling of being in nature.

Wood slats draw the eyes up similarly to the way tall trees do in the forest


Textured walls help with way finding for the visually impaired, similar to texture of tree bark.

Cork flooring mimicks sand on a beach, not only in color, but epecially in its sound absorbing properties. This aids in ensuring the mental comfort of individuals on the spectrum.
Varying ceiling heigths create a natural atmosphere that makes one feel like they are in the woods surrounded by trees and branches of varying heights.


Vibrant colors are stimulating and beaitiful as flowers found in nature.

Furniture with natures finishes, like stone and wood, add to the feeling of being outdoors.








THE SCENE GALLERY
The scene gallery is a multi sensory rolling exhibition for the artists and citizens local to the East Village NY area. Because the east village of New York City is the home of some of the most extravagant vintage movie theaters in the US, The Scene gallery is dedicated to displaying art related to film and theater. the Scene Gallery will support individuals with mobility, auditory, and visual disabilities in an effort to make the experience more inclusive than a typical gallery or museum. Multi-sensory and fully immersive exhibits will be exhibited in order to give everyone an admirable and inspiring experience. Materials and finishes are chosen to bring back the look of vintage theater design in an updated and accessible fashion.
CINEMATIC PLOT
PROGRESSION is “a diagram used to visualize and organize a story’s plot into certain segments; The plot triangle is comprised of three major events within a story, which include the rising action, the conflict, and the resolution. Each of these major events has associated psychological/ physiological characteristics.“
CONFLICT
RISING ACTION
ASSOCIATED STRESS LEVEL
TENSION LEVEL (HIGH TO LOW)
DURATION IN FILM; LENGTH OF STAY IN EXHIBIT
RESOLUTION


EXHIBIT A
The first room of the immersive exhibit is the largest and most welcoming, representing the rising action phase of plot progression.
EXHIBIT B
The narrow spacing of the walls and 12’ tall ceiling in this portion of the exhibit are in place to replicate that feeling of high tension and anxiety during the conflict stage.

EXHIBIT C
The resolution provides a sense of relief. Lowering the ceiling to 8’ and having the exit in clear view provides the participators with a similar feeling.







PROFESSIONAL WORKS
A collection of works performed while interning and eventually working full time at a hospitality design firm based out of Ellicot City MD. We specialize in designing exceptional spaces throughout the Washington, D.C., Maryland, and Virginia areas. Autocad, sketchup, photoshop, and lumion are the CADD programs used in order to bring these spaces from ideation to final construction.
ADA RESTROOM FLOOR PLAN


FINISHED RESTAURANT PHOTOS



These leafy panels underwent meticulous modifications and resizing under my supervision, tailored specifically for a Thai restaurant located in Fairfax, VA. Demonstrated here is their multifaceted application, enhancing the ambiance of the space through wall adornments, entry vestibule glass embellishments, and the captivating lightbox feature adorning the bar area (depicted on the left).






VIEW OF SERVICE COUNTER FROM ENTRANCE
Rendering of a cafe design completed for a client. Material selection, 3D modeling, and rendering handled by me.
VIEW OF CAFE DINING AREA




CAFE RENDERING



















Rendering of a boba tea bar and dessert cafe using materials from the brand’s design package.




















FREELANCE WORK
In my freelance work, I have had the opportunity to create personalized and unique spaces tailored to the individual needs and tastes of my clients. Each project showcases my ability to blend form and function, transforming ordinary interiors into extraordinary living experiences. From cozy residential makeovers to cool and ethereal event spaces, my freelance projects reflect a commitment to quality, attention to detail, and an understanding of design principles. With a focus on client collaboration, I aim to ensure that every space I design not only meets but exceeds expectations, providing environments that inspire, comfort, and delight.
Event floor plan and boheamian art installations for Healing Through Movement event curtation brand. EVENT DESIGN


The client is renting a room in an early 1900s home in Baltimore City. The bedroom is lacking in warmth, comfort, and functionality. Limited closet space has led to clutter. The cool grey walls contrast with the warm-toned wood floor in an unflattyering way. The layout is not suitable for the space to also function as a home office when needed.
EXISTING CONDITONS





MOOD BOARD
Personality pieces
Personality pieces
Variety of closed storage

Make the space feel larger
Soft lighting
Stimulating colors
Incorporate cool tones from wall paint
Under-bed storage

HAND
DRAWINGS
My hand-drawn illustrations represent the foundation of my creative process, where imagination meets precision. Each sketch is a testament to my ability to visualize and conceptualize spaces with depth, texture, and character. Through these detailed drawings, I explore the interplay of light, shadow, and perspective, bringing ideas to life with a personal and artistic touch.


ELEVATIONS OF A CLASSICAL SITTING ROOM DESIGN

MODELS AND HAND RENDERINGS
Architectural depiction of duality and contrast...




...and a portayal of strength in comraderie.
