PORTFOLIO 2023

Page 1

PORTFOLIO

Tomasz Kruszyński

architektura 2023

TomaszKruszyński

ARCHITEKT|PROJEKTANT NADZÓRWYKONAWSTWA

OMNIE:

Architekt,AbsolwentWydziałuArchitekturyPolitechnikiGdańskiej. FinalistawkonkursieoDorocznąNagrodęSARPim.Zbyszka ZawistowskiegoDYPLOMROKU.ZwycięzcakonkursuPrezydenta

GdańskanaopracowaniekoncepcjizagospodarowaniarejonuBramy Sobieszewskiej,laureatkonkursupt.„ProjektowanieUniwersalne-jak żyćrazem,nieoboksiebie”.FinalistakonkursuBuilderadlaMłodych ArchitektówwzadaniuManifestMłodegoArchitekta.

Ambitny,pracowityipełenpasjiprojektantśródmiejskiejzabudowy mieszkaniowejorazobiektówużytecznościpublicznejwTrójmieście. Kreatywnyigotowynanowewyzwaniazawodowe.

CURRICULUMVITAE

INFORMACJEOGÓLNE:

Dataurodzenia: 10lipca1994

Nrtel: 510573068

E-mail: tomkruszy@gmail.com

DOŚWIADCZENIEZAWODOWE

III2018-OBECNIE ASYSTENTARCHITEKTA/ARCHITEKT WMOARCHITEKCI|

WiesławaMartyńska-OstrowskaArchitekt -opracowywanieprojektówkoncepcyjnych, budowlanychiwykonawczychśródmiejskiej zabudowymieszkaniowejiobiektówużyteczności publicznej, -uzyskiwaniewymaganychopiniiiuzgodnień, -sprawowanienadzoruautorskiego, -sporządzniewycenorazumówpracprojektowych

VII-VIII2017 ASYSTENTARCHITEKTA

SERAFINSTUDIOPROJEKTOWE

-opracowywaniedokumentacjiprojektowej, -koordynacjamiędzybranżowa

VII-VIII2016 ASYSTENTARCHITEKTA

URZĄDMIASTARUMIA

WYDZIAŁARCHITEKTURYIURBANISTYKI

-przygotowanieanalizorazopracowywanie projektówdecyzjiowarunkachzabudowyidecyzji oustaleniulokalizacjiinwestycjicelupublicznego, -uczestnictwowprowadzeniusprawzwiązanychz realizacjąUstawyoPlanowaniuZagospodarowaniu Przestrzennymwzakresieprocedurprac planistycznych

EDUKACJA

II2017-VII2019 ARCHITEKTURA- POLITECHNIKAGDAŃSKA magisterskie

IX2013-I2017 ARCHITEKTURA-POLITECHNIKAGDAŃSKA inżynierskie

UMIEJĘTNOŚCI:

AutoCAD

Sketchup+Vray

AdobePhotoshop

AdobeIlustrator

Revit-p.p.

CECHY:

komunikatywność

samodzielność

pracawzespole

pracapodpresjączasu

Projektowaniewnętrz

Zarządzaniegrupą

Obsługaklienta

Negocjacje

Prawojazdykat.B

kreatywność zaangażowanie entuzjazm

kulturaosobista

PUBLIKACJEPROJEKTOWE

Architekturaibiznes:

https://www.architekturaibiznes.pl/studenci/tomasz-kruszynski,1140.html

https://www.architekturaibiznes.pl/projekt-wielofunkcyjnego-obiektu-w-sudanie-poludniowym,4597.html

BUILDER-wyd.VII2019,s.33

https://www.facebook.com/4YoungArchitects/posts/pfbid036jfPeUrFGTFRKBRSDiNAA5q2EnE4AjZ9KK1u1bnkxhkzVwd6xULiPQREEZYtj1Stl gdańsk.pl

https://www.gdansk.pl/wyspa-sobieszewska/futurystyczne-sobieszewo-i-inne-wizje-mlodych-architektow-wizualizacje,a,81765 PolitechnikaGdańska,pg.edu.pl

https://www.facebook.com/PolitechnikaGdanska/posts/pfbid02o2DNDnJZAajpfVpHckN6PSwmZC8JziVWw6ENzYG82JrJwWVSRX7FPBbGUrrouqUql architektsarp.pl-pracanr21|WMO

https://www.architektsarp.pl/cognitarium/wyniki/

ARCHITEKTURA studenckie●konkursowe autorskie●wnętrza

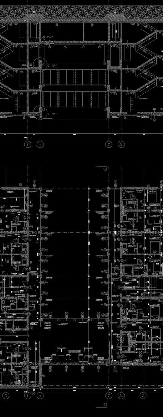
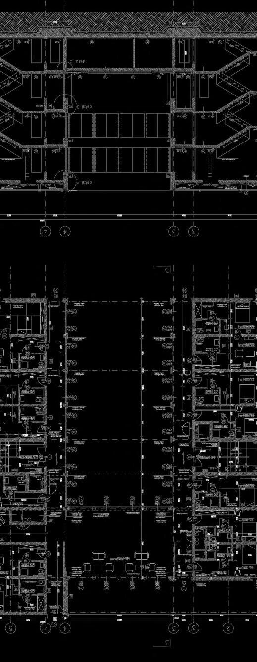
nieWIDZIALNESACRUM

Przedmiotemdyplomowejpracymagisterskiejjestukazanie społecznejroliarchitektury,będącejprotestemwobronie wolnościwyznania.Architekturatosztukaiumiejętność świadomegoorganizowaniaprzestrzeniwrealnychformach, mającychnaceluzaspokojeniematerialnychiduchowych potrzebczłowieka,gdziefunkcja,konstrukcjaiformamuszą stanowićjednąspójnącałość.Architekturajesttakże odpowiedziąnapotrzebyspołeczne.

Przedstawianedociekaniastanowirefleksyjnąodpowiedźna problemyprzestrzenichrześcijaństwaisamychchrześcijan–od przerażającegoproblemuzabójstwnatlereligijnym,przez dyskryminacjęspołecznąnaróżnychpolach.Rozważania zauważajątakżeinneproblemyarchitekturychrześcijańskiej jakdesakralizacjiświątyńczysekularyzacjiprzestrzeni publicznych.

Celempracyjestpostawieniepytania:Czywspółczesna architekturasakralna,wniektórychmiejscachświatamoże odwoływaćsię,choćbywsymbolicznymznaczeniu,doswoich historycznychwzorcówkościołaprześladowanegow pierwszychwiekachponarodzeniuiśmierciJezusa?

Chrześcijaniezmuszenidożyciaw„podziemiu”społecznym byćmożemusząprzejśćdosymbolicznych„katakumb” przestrzenisakralnej,stanowiącejwyrazprotestuisolidarności zwspólnotąkościołaprześladowanego.

Pracazakładawypracowaniemodelurozwiązaństrukturalnych dlaarchitekturychrześcijaństwaprześladowanego niejednokrotnieobciążonegoklęskamihumanitarnymi.

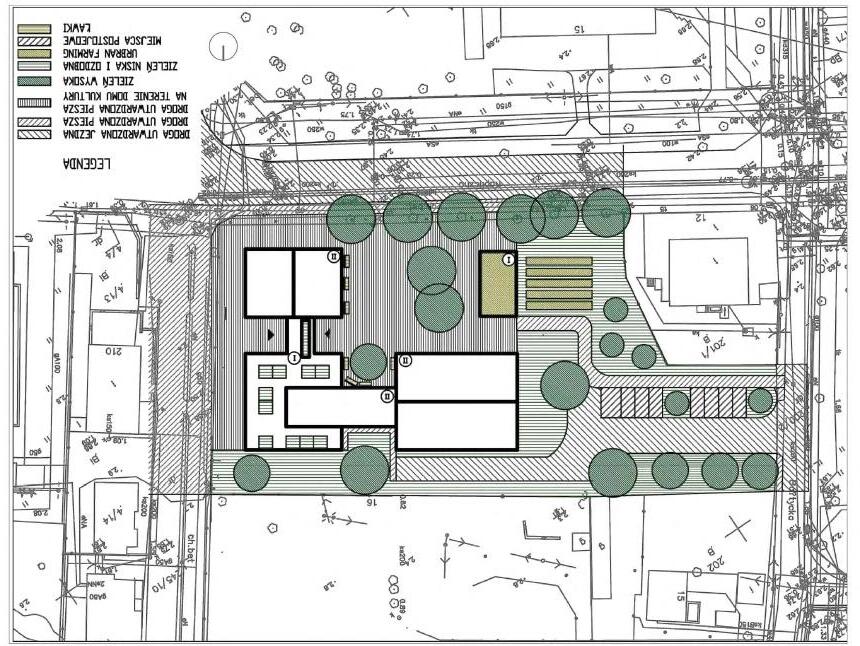
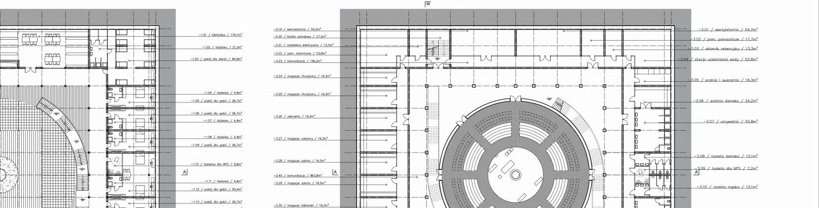
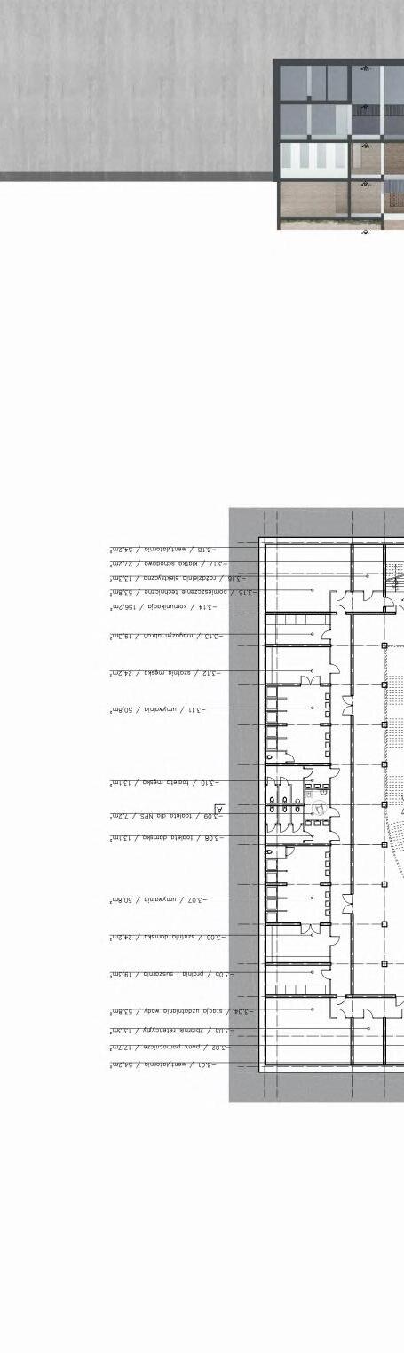
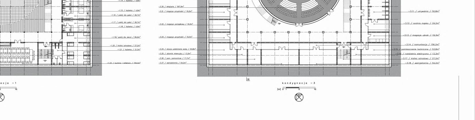
Dżuba,SudanPołudniowy
PZT
kontekstrozwojuidei

architektura zakonów

kontekstkulturowy

architektura szkół sudańskich

architektura wernakularna Sudanu Południowego

katakumby architektura Afryki Matmata

Malezja

eklektyczny projekt

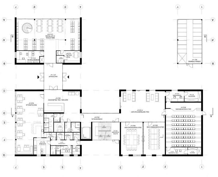
HOTELPASSAGE

UL.WYPOCZYNKOWA36,GDAŃSK

Przedmiotemdyplomowejpracyinżynierskiej jestopracowanieprojektuhotelupołożonego przyul.WypoczynkowejwGdańsku.Głównymi zadaniami było stworzenie komfortowej przestrzenizamieszkaniazbiorowegowrazz funkcją rekreacyjno-gastronomiczną, sprostanie wymaganiom zawartym w miejscowym planie zagospodarowania przestrzennegoorazstworzeniedokumentacji projektowejzzakresuprojektubudowlanegow wersjiuproszczonej.

PrezentowanyHotelPassagestanowiponadto swoistymanifesturbanistyczny,którywzywado tegobyobiektyarchitektonicznieprojektowane byływszerszymkontekście.Projektbazujena ideiprzejścia,któregostworzeniejestmożliwe przez usytuowanie istniejących budynków. Projektowanybudynekskładasięzdwóch zasadniczychbryłpołączonychnadwieszonym łącznikiem.

Minimalistycznaarchitekturaorazwyraźnaidea tworzą uporządkowaną i harmonijną przestrzeń.Wszystkotowpływanazachowanie wyjątkowegocharakterunadmorskiejdzielnicy Jelitkowo.

DOMKULTURY UL.KOŚCIELNA,GDAŃSKJELITKOWO rzutparteru PZT
BIUROWIEC UL.ORŁOWSKA53,GDYNIA PZT
BIUROWIEC UL.JANAPAWAŁAII1A,GDAŃSK kondygnacja0 kondygnacja+1
PZT
nieMiasto2o5o WYSPASOBIESZEWSKA,GDAŃSK
jednostka mieszkalna teatr pracybiuro
przekrója-a przekrója-a

Niewyobrażalnypostęptechnikcyfrowychpozwalakomunikowaćsię ludziomwdowolnymmiejscuidowolnymczasieprzyużyciuurządzeń ogólnodostępnych. Równie szybki postęp zaobserwować można w dziedzinachtransportu,budownictwa,medycynyiinnych.Każdasferażycia człowieka wkracza w nowy wymiar przekraczając jego możliwości poznawcze.Tymwymiaremjestrzeczywistośćwirtualna.Napodstawie prognoz futurologów, około roku 2050, można domniemywać, że technologiaostatecznieuwolniczłowiekazokowóczasuimiejsca,ipozwoli naprzeniesieniemiastadorzeczywistościwirtualnejizastąpieniego „niemiastem”.

Projektbazujenaidei,żesferażyciapublicznegoprzeniesiesięwdużej mierzew“niemiejsce”jakimjestinternet,aczłowiekzamieszkaw mniejszymorganizmiejakimbędzie“niemiasto”.Projektzakłada,żete jednostkimieszkalnepowstanąnabaziedzisiejszychwsiibędąstanowiły połączeniekrajobrazunaturalnegoz“niewidzialną”architekturą,któa stanowiposzanowaniewiejskiegokrajobrazukulturowego.Opierającsięna tejtezie,stworzonoscenariuszdlaSobieszewananajbliższe35lat, zaczynającodrewitalizacjiprzestrzeni.

Pierwszymetapemmastaćsięodtworzeniehistorycznejtożsamości Sobieszewa, dla której wzorcem architektonicznym ma być dawna zabudowakurortowaidomyrybackie.Wtegorodzajubudynkach inspirowanych przeszłością mogłyby się mieścić restauracje, punkty usługoweczyteżWyspaSkarbówGAK.Oprócztegoproponujesię stworzeniedużychterenówspacerowychirekreacyjnychnadrzeką Uzupełnieniemtychzmianwprzyszłościmastaćsiępodziemnybiurowiecz jednostkamimieszkalnymi,skonstruowanywtakisposób,bypracującyw nimmogliwyłonićsięspodziemi,jaknaruchomejscenie.Znajdąsię wóczaswotoczeniuparku,podktórymzbudowanyzostaniegmach.

Trudnojestprzewidzieć,jaknaprawdębędziewyglądałaprzyszłość Widzimyjedyniemniejibardziejwyraźneprzesłanki,któresugerują,wktórą stronęzmierzaświat.„nieMiasto2o5o”topróbarozwiązaniaproblemu przyszłości,aleiprzeszłości.

nieMiasto2o5o
rzutparteru

rzutIpiętra

UL.ŻOŁNIERZYIARMIIWOJSKAPOLSKIEGO24,GDYNIA -projektkoncepcyjnyibudowlany

BUDYNEKMIESZKALNYJEDNORODZINNY

OSOBNOWŁACZNIKPODWÓJNYE1IE2

WŁACZNIKPODW.DiC GNIAZDKO H=120CM

SZUFLADY TIPON

BEŻOWYNCSS1002Y50R FRONTYFREZOWANE WŁĄCZNIKSCHODOWY PODWÓJNYAIB,H=120CM GNIAZDKOH=18CM

PRZEGRÓDKI WYKOŃCZONESKÓRĄ

RTVINT A-A LISTWAPRZYSUFITOWANASZAFIEH=10CM ZADBAĆOOTWARCIESZAFY SZUFLADY SZTUKATERIA
SZAFKIGÓRNE
WŁĄCZNIKSCHODOWYPODWÓJNYAIB
WNĘKADOSTĘPNAODSTRONYŁÓŻKA
2x LAMPKA NABIELIŹNIARCE 2x OPCJONALNIE PÓŁKA O O 2x 2x PODŁĄCZENIE TAŚMYLED H=28CM GNIAZDKO1LUB2 LUBWYJŚCIEKABLA dopasowaćwymiary doobranejtechnologii 2x 2x KWIETNIK ŚCIANA DYSTANS9CM KARNISZ11CM LISTWAKARNISZOWA5+6(11CM) MASKOWNICA5CM A-A 2x
B-BC-C 2x 2x H=18CM H=18CM PUSTKA OŚWIETLENIELED BIELIŹNIARKA
PROJEKTWNĘTRZ mieszkaniewCiechanowie PODŁĄCZENIE TAŚMY LED
SZAFKIGÓRNE OTWIERANETIP-ON
OTWIERANETIP-ON
+GNIAZDKOIWŁĄCZNIK ZTYŁUKONTYNUACJAPŁYTYMEBLOWEJ
B-B C-C
OŚWIETLENIELED
CZARNENOGI
SZTUKATERIA bieliźniarka organizer
nadzórautorskiinwestycji

LISTWAPRZYSUFITOWANASZAFIEH=10CM

KRATKAWENTYLACYJNA naczynia naczynia naczynia naczynia

garnki garnki Z

2x

okap

jedzenie jedzenie jedzenie jedzenie H =22 CM

SZUFLADA NP.CARGOSERVODRIVE SZUFLADA NP.CARGOSERVODRIVE

naczynia garnki O H =120CM

KONGLOMERAT20MM TECHNISTONEAMBIENTELIGHT BLATIRĘKAW

piekarnik

lodówka dozabudowy P L 2x

FORNIRZŁOTY NP.KRONOSPAN (BRUSHEDGOLD-AL04)

WŁĄCZNIKPODWÓJNY-SCHODOWYCID

WŁ.PODWÓJNY:X,Y

WZABUDOWIEMEBLOWEJH=90 WŁĄCZNIKPODWÓJNY-SCHODOWYAIB WŁ.PODWÓJNY:C,DORAZWŁ.W

ZADBAĆOOTWARCIESZAFY SUFIT PODWIESZANY WYKOŃCZENIE LISTWĄ 10 CM

ELEMENTOTWIERANY ZLUSTREM OSŁONIĘCIESZAFEK ELEKTRYCZNYCH

LAKIERBIAŁY RAL9016 SZTUKATERIA

WŁ.PODW.G,H H=120CM

zlewzmywarka

SUFITPODWIESZANY sztućce

wyspakuchenna

SZKŁOORNAMENTOWE/HARTOWANE KONSTRUKCJAMALOWANAPROSZKOWO CZARNA,7021MATSTRUKTURA

ELEMENTYLAKIEROWANE CZARNYRAL7021 2x2x 2x H=22CM DOPROWADZENIEKANAŁOWE

szufladanabuty
naczynia naczynia naczynia GŁĘBOKOŚĆ36CM GŁEBOKOŚĆ66CM sztućce 2x
naczynia naczynia PROJEKTWNĘTRZ mieszkaniewGdyni 2x INTRTV2x WŁĄCZNIKPODWÓJNY -SCHODOWYAIB H=120-122CM
szufladazmiejscem segregacjiodpadów drzwidosypialni 2x H=150CM DOPR.KANAŁOWE
2x 2x H =22 CM H =22 CM
WITRYNA LUSTRO 2x 2x
BIOKOMINEK TELEWIZOR
SZTUKATERIA WG ODRĘBNEGO RYS.
WŁ.PODWÓJNY.KINKIETYWHOLU^ WŁĄCZNIKIH=120CM,GNIAZDKAH=22CM
SZUFLADA
KONGLOMERAT20MM TECHNISTONEAMBIENTELIGHT BLATIRĘKAW szafaprzywejściu
nadzórautorskiinwestycji
ARCHITEKTURA wewspółpracyzWMO WiesławaMartyńska-Ostrowska©
AWANPORT -opracowywanieprojektubudowlanegozamiennego -opracowywanieprojektuwykonawczego -uczestnictwownadzorzeautorskiminwestycji -przygotowywanierozwiązańzamiennych -opracowywaniekartlokatorskich UL.ŻEROMSKIEGO121,GDYNIA ABINWESTOR

-opracowywaniedokumentacji powykonawczejiodbiorejbudynku

B7 UL.BATOREGO7,GDYNIA ABINWESTOR

ROZBUDOWABUDYNKUPSG

UL.ŻEROMSKIEGO18,GDYNIA POLSKASPÓŁKAGAZOWNICTWA

-opracowywanieprojektukoncepcyjnego, projektubudowlanego, projektuwykonawczego

-uzyskiwaniewymaganychopiniiiuzgodnień m.in.pozwoleniekonserwatorkie

-ustalanierozwiązańtechnicznych

COGNITARIUM konkurs,KOSZALIN POLITECHNIKAKOSZALIŃSKA -współautorkoncepcji

ZESPÓŁREKREACYJNO-HOTELOWY

WŁADYSŁAWOWO -współautorkoncepcji
STARTOWER UL.STAROWIEJSKA63,GDAŃSK BUDNERInwestycje -udziałwprojekciewykonawczym

UL.CHMIELNA,ŻYTNIA

GDAŃSK

-udziałwkoncepcji

-pozwoleniekoncerwatorskie

BUDYNEK MIESZKALNO-USŁUGOWY
elewacjazachodnia elewacjapołudniowa

ZESPÓŁUSŁUGOWO-HOTELOWY

SKWERKOŚCIUSZKI,GDYNIA -współautorkoncepcji

IETAP IETAP
IIETAP IETAP IETAP
TomaszKruszyński©

Turn static files into dynamic content formats.

Create a flipbook
Issuu converts static files into: digital portfolios, online yearbooks, online catalogs, digital photo albums and more. Sign up and create your flipbook.
PORTFOLIO 2023 by Tomasz Kruszyński - Issuu