diagnostico

Page 1


MAPEAMENTO

DE DANOS E ESTADO DE CONSERVAÇÃO DO SOBRADO “casarão da Dona LóQUINHA”

COSTA DA LAGOA . FLORIANÓPOLIS/SC . 2022

Apresentação

Exemplar singni fcativo da colonização açoriana na Ilha de Santa Catarina, o Sobrado da Dona Lóquinha situa-se num encantador refugio da ilha, a Costa da Lagoa, acessada unicamente por transporte lacustre ou caminhando por trilha.

Um caminho único, com todos os encantos que a Mata Atlântica pode oferecer e uma ocupação orgânica dos moradores, a maioria descendentes dos antigos colonizadores, portugueses dos Açores. Há muitos resquícios da antiga ocupação, de quando a Costa abrigava engenhos de farinha de mandioca, cachaça, e eiras de café; e ainda hoje é possível encontrar pés de bergamota e café pela trilha.

A ocupação da freguesia da Lagoa data de 1750. O sobrado é datado de 1780, um remanescente original da época, que tem seu tombamento municipal junto ao caminho desde 1986 e com processo de tombamento estadual em andamento. Totalmente integrado ao ambiente, as paredes externas construídas com pedra e barro e as internas com adobes assentados sobre as tábuas do assoalho, não sendo descarregada diretamente num baldrame, nem nos barrotes, evidenciando a lógica construtiva, nesse caso, de assoalhar todo o espaço interno para, na sequência, fazer as divisões e compartimentar em cômodos, salas, quartos etc. A cozinha fcava na parte posterior, hoje em ruínas.

O revestimentos é em duas camadas, pintura à cal. Telhado em quatro águas, com cumeeira curta, em telha capa e canal, arrematado em cimalha de argamassa, com os espigões frontais apresentando acabamento primoroso do sistema construtivo tradicional, em conjunto com os cunhais marcados em argamassa saliente.

Aberturas com enquadramento em madeira, desenho particular no encontro entre ombreira e peitoril, algumas com vestígios de esquadrias, usadas em época posterior à sua construção, na sua maioria possuindo vergas retas, excetuando o conjunto de duas janelas e a

porta dos fundos. Esta porta dava acesso internamente à antiga cozinha (hoje inexistente), com vergas em arco abatido, que hoje é uma das portas de acesso ao exterior. A outra porta de acesso se encontra na lateral sul, com um terraço de tijoleiras cerâmicas e guarda-corpo, que possuía detalhes geométricos confeccionados com tijolos maciços.

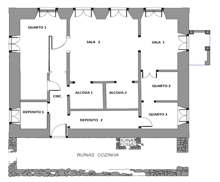
Piso em assoalho de madeira (grande parte peroba/canela) sobre barrotes em toda área do pavimento térreo e em parte do porão, com lajotas cerâmicas no piso dos intradorsos, terraço e na Eira. A divisão interna dos cômodos quase não sofreu alterações. Pelas evidências e análises, somente o compartimento denominado Quarto 1 sofreu alterações, com a retirada de uma parede entre o Quarto 1 e o compartimento Depósito 1, onde vestígios na alvenaria e no piso deixam evidente, conformando mais uma alcova, não existindo janela nesse compartimento formado. Outra alteração é uma divisória em madeira, instalada no interior do Quarto 1. São dez compartimentos no nivel térreo e o Porão, localizado sob o Quarto 1, Sala 1 e Sala 2 e acessível por duas portas na face Leste e um alçapão na Sala 1. O Porão não possui janelas, mas sim uma seteira na lateral Norte, que tem como detalhe uma enorme pedra in natura, usada como parte da alvenaria lateral, sendo visível tanto pelo lado interno como externo.

A Estratigra fa do revestimento do sobrado apresenta duas camadas, depois da pedra assentada com argila cinza. Os vãos entre as pedras embrechados com pedras menores recebia um emboço de areia grossa, concha moída e solo argiloso avermelhado regularizando a superfície, depois uma camada de menor espessura composta de areia média e cal. Em alguns elementos, com a cimalha, encontramos uma terceira camada, de granulometria muito f na, num traço mais rico em aglomerante ou algum aditivo, resultando num acabamento bem liso, mesmo acabamento encontrado em reboco interno, coberto pela pintura à cal.

COBERTURA

FECHAMENTO COM TÁBUAS

TÉRREO

VESTÍGIOS DE PAREDE EM ADOBE

PLANTA-BAIXA PORÃO

ALVENARIAS EXTERNAS EM PEDRA

ALVENARIAS INTERNAS EM ADOBE

PLANTA BAIXA ATUAL
PORÃO

AS RUINAS DA COZINHA , na parte posterior da edificação apresenta resquícios de suas paredes em pedra e barro, mesmo sistema e materiais utilizados no restante do sobrado. A cobertura era feita com caibros roliços num prolongamento da água do telhado na face oeste.

AS RUÍNAS DA COZINHA, na parte posterior da edi fcação, apresentam resquícios de suas paredes em pedra e barro, mesmo sistema e materiais utilizados no restante do sobrado. A cobertura era feita com caibros roliços num prolongamento da água do telhado na face oeste.

AS RUINAS DA COZINHA , na parte posterior da edificação apresenta resquícios de suas paredes em pedra e barro, mesmo sistema e materiais utilizados restante do sobrado.

A cobertura era feita com caibros roliços num prolongamento da água do telhado na face oeste

AS RUINAS DA COZINHA , na parte posterior da edificação apresenta resquícios de suas paredes em pedra e barro, mesmo sistema e materiais utilizados restante do sobrado. A cobertura era feita com caibros roliços num prolongamento da água do telhado na face oeste.

FACHADA INTERNA 1993 (COZINHA)

FACHADA OESTE 2022

FOTO DE 1984 QUE MOSTRA O ENCONTRO DA ANTIGA

FOTO DE 1984 QUE MOSTRA O ENCONTRO DA ANTIGA FACHADA OESTE, HOJE EM RUINAS E A FACHADA SUL, UMA DAS PORTAS DE ACESSO À COZINHA

FOTO DE 1984 QUE MOSTRA O ENCONTRO DA ANTIGA FACHADA OESTE, HOJE EM RUINAS E A FACHADA SUL, UMA DAS PORTAS DE ACESSO À COZINHA

FACHADA OESTE EM 1984, PORTA NA FACHADA NORTE E A EIRA

FACHADA OESTE EM 1984, PORTA NA FACHADA NORTE E A EIRA

FACHADA OESTE EM 1984, PORTA NA FACHADA NORTE E A EIRA

FACHADA INTERNA 1993 (COZINHA)
FACHADA OESTE 2022
FACHADA INTERNA 1993 (COZINHA)
FACHADA OESTE 2022

MAPEAMENTO DE DANOS

MAPEAMENTO DE DANOS

FACHADAS EXTERNAS: SUL

1. ALVENARIAS - FACHADAS EXTERNAS SUL

1 – ALVENARIAS - FACHADAS EXTERNAS: SUL

FOTO 2009
FOTO MARÇO 2020
FOTO JUNHO 2022

FACHADA SUL: a sequência de imagens na página anterior mostra a evolução das deteriorações. Num primeiro momento, uma argamassa no encontro do portal com a alvenaria e a umidade no rodapé externo, respingo do beiral. Depois, vemos todo o contorno do portal da janela pós intervenção com argamassa incompatível, destacando-se à sua maneira, diferente do restante da face. Vemos o revestimento sobre a verga da porta de entrada e uma parte ao lado do medidor de energia com coloração diferente, por serem intervenções feitas posteriormente, sem pintura. Hoje, a fachada toda está com o revestimento comprometido, com umidade, microorganismos e vegetações, agravadas exponencialmente com a falta de telhas no beiral, onde a vegetação de porte fez com que as telhas se deslocassem e suas raízes interferissem estruturalmente na cimalha, deslocando as amarrações dos tijolos maciços na parte central, onde a maior quantidade de água escorre há algum tempo, inf ltrando-se tranquilamente entre o revestimento e o substrato, no caso alvenaria de pedra e barro, com a umidade o barro seco da argamassa de assentamento se molha e se desestabiliza, é formada uma rede de raízes que separam o reboco do emboço. O reboco quando úmido, pesa e estufa, desplacando-se e deixando o emboço à mostra, que rapidamente tambem é lixiviado.

LFACHADA SUL, pela sequência de imagens consegu com a alvenaria e a umidade no rodapé externo, argamassa incompatível , se destacando a sua maneira, diferente do restante da face e o revestimento sobre a verga da porta de entrada e um do medidor de energia, com coloração diferente, por serem intervenções feitas posteriormente, sem pintura. Agora a fac comprometido, a umidade,os microorganismos fazer com que as telha se deslocassem e suas raizes interferissem estrutu onde a maior quantidade de agua escorre à algum tempo se infiltrando tranquilamente entre o revestimento e o substrato, no ca

barro, com a umidade o barro seco da argamassa de assentamento se molha e se desestabiliza, é formada uma rede de raizes que separam o rebôco do emboço, e umido, pesa e estufa e se desplaca

O elemento decorativo no parapeito da entrada principal encontramos alguns elementos que o faziam parte do conjunto,

O elemento decorativo localizado no parapeito da entrada principal, confeccionado em tijolo maciço, vasado, não está mais em seu lugar. Alguns elementos que faziam parte do conjunto ainda puderam ser encontrados.

FACHADA SUL

FACHADA LESTE

FACHADA LESTE

FACHADA LESTE

FACHADA LESTE

FACHADA LESTE

VEGETAÇÃO ARBUSTIVA

VEGETAÇÃO ARBUSTIVA

VEGETAÇÃO ARBUSTIVA

FACHADA LESTE

FACHADA LESTE

FACHADA LESTE

VEGETAÇÃO

RACHADURA E PERDA DE PARTE DO FRISO DA

RACHADURA E PERDA DE

PARTE DO FRISO DA CIMALHA

FRISOS SE PERDENDO

FRISOS SE PERDENDO

RACHADURA E PERDA DE PARTE DO FRISO DA

CIMALHA

CIMALHA

RACHADURA E PERDA DE PARTE DO FRISO DA CIMALHA

ARBUSTIVA/DETERIORANDO O CAPITEL D O CUNH AL PROVOC ANDO

RACHADURA E

VEGETAÇÃO ARBUSTIVA/DETERIORANDO O CAPITEL D O CUNH AL PROVOC ANDO RACHADURA E

VEGETAÇÃO ARBUSTIVA/DETERIORANDO O CAPITEL D O CUNH AL PROVOC ANDO RACHADURA E INFILTRAÇÃO/DESESTABILIZAÇÃO ESTRUTURAL

INFILTRAÇÃO/DESESTABILIZAÇÃO ESTRUTURAL

VEGETAÇÃO ARBUSTIVA/DETERIORANDO O CAPITEL D O CUNH AL PROVOC ANDO RACHADURA E INFILTRAÇÃO/DESESTABILIZAÇÃO ESTRUTURAL

INFILTRAÇÃO/DESESTABILIZAÇÃO ESTRUTURAL

SEM REBÔCO COM EMBÔÇO /TERRA AREIA E CONCHA

SEM REBÔCO COM EMBÔÇO /TERRA AREIA E CONCHA

SEM REBÔCO COM EMBÔÇO /TERRA AREIA E CONCHA

REVESTIMENTO FISSURADO/ESTUFADO/ DESCOLADO DO SUBSTRATO

REVESTIMENTO FISSURADO/ESTUFADO/ DESCOLADO DO SUBSTRATO

SEM REBÔCO COM EMBÔÇO /TERRA AREIA E CONCHA

REVESTIMENTO FISSURADO/ESTUFADO/ DESCOLADO DO SUBSTRATO

REVESTIMENTO FISSURADO/ESTUFADO/ DESCOLADO DO SUBSTRATO

REVESTIMENTO DE MAIOR GRANULOMETRIA

REVESTIMENTO DE MAIOR GRANULOMETRIA

REVESTIMENTO DE MAIOR GRANULOMETRIA

REVESTIMENTO DE MAIOR GRANULOMETRIA

SEM REBÔCO/COM EMBÔÇO

SEM REBÔCO/COM EMBÔÇO

PEDRA DA ESTRUTURA FALTANDO/SOLTAS

PEDRA DA ESTRUTURA FALTANDO/SOLTAS

PEDRA DA ESTRUTURA FALTANDO/SOLTAS

PEDRA DA ESTRUTURA FALTANDO/SOLTAS

SEM REVESTIMENTO/PEDRAS PERDENDO ESTABILIDADE /ARGAMASSA ASSENTAMENTO SENDO LIXIVIADA

SEM REVESTIMENTO/PEDRAS PERDENDO ESTABILIDADE /ARGAMASSA ASSENTAMENTO SENDO LIXIVIADA

REVESTIMENTO DESAGREGADO DO SUBSTRATO

REVESTIMENTO SOBREPOSTO /GRANULOMETRIA DIFERENTE/SOM CAVO

REVESTIMENTO SOBREPOSTO /GRANULOMETRIA DIFERENTE/SOM CAVO

LESTE

FACHADA NORTE

VEGETAÇAO ARBUSTIVA

DANIFICANDO A ESTRUTURA DA CIMALHA E O REVESTIMENTO INTERNO/ RETENDO UMIDADE E DETERIORANDO ELEMENTOS DA COBERTURA

RACHADURA ESTRUTURAL CIMALHA /LESÃO ATIVA /PLANTA EM

CRESCIMENTO AUMENTA A POSSIBILIDADE DE DESMORONAMENTO

PERDA DE PARTE DOS FRISOS/UMIDADE POR PERCOLAÇÃOCAUSADO S PELOS ENRAIZAMENTOS

REVESTIMENTO DESAGREGADO DO SUBSTRATO

REVEST. COM ARGAMASSA CIMENTÍCIA/ GRANULOMETRIA MAIOR

SOMENTE EMBÔÇO

MICROORGANISMO ESCURO

GRANULOMETRIA MAIOR QUE OS PANOS LISOS

RUÍNA/DESESTABILIZADA/INCLINADA

SEM REVESTIMENTO

SEM REBÔCO/SOMENTE EMBÔÇO/INTERVENÇÃO

SEM REVESTIMENTO/BASE DA PAREDE CASTIGADA PELAS INTEMPÉRIES

MICROORGANISMO VERMELHO

VERVERMELHO

FACHADA OESTE

MAPEAMENTO DE DANOS

2. COBERTURA

Em quatro águas, telhas capa e canal, inclinação de 50%, apresenta detalhes importantes: beiral em cimalha de tijolo argamassada, primeira fada de telha invertida, como costume da época para melhorar o escoamento das águas das chuvas; possui acabamento argamassado contando com um pedaço de telha sob a primeira capa. A colocação das ripas continua nos moldes tradicionais: três ripas para cada telha, sendo a mais próxima da cumeeira a “tábua de ponto” (20x2cm). Ainda sobre o ripamento, encontramos a dobra da primeira ripa, próxima ao beiral, em juçara, resquício do ripamento original, corroborando com depoimento de um frequentador. Encontramos a cimalha em três das quatro fachadas, nas laterais e na frente, sendo a dos fundos com vestígios de um prolongamento de caibros roliços que cobriam a antiga cozinha. Sistema estrutural composto por quatro frechais (~19x19cm), quatro espigões (~15x15cm), seis caibros estruturais (~10x15cm) e cumeeira em diamante (~15x15cm). Estrutura secundária composta por caibros (~10x10cm) e ripas (~10x2cm).

Não possui um sistema estrutural clássico, com tesouras ou caibros armados, nem terças, mas estruturalmente se mostra estável. Pouca deformação causada por insufciência estrutural. Deteriorações causadas por agentes externos, inf ltrações e má conservação criaram um ambiente propício para patologias: apodrecimento, ataques xilófagos, microorganismos e plantas invasoras. Possui uma estrutura inusitada, com elementos que remetem à conjuntos tradicionais, como Caibro armado ou Tesoura de linha alta (sistema que não se usava cumeeira) em conjunto com cumeeira, na posição diamante. Temos dois conjuntos de caibros de dimensões maiores que os demais, com ligações em Meia madeira na parte superior e uma peça na horizontal, como uma linha alta, sendo que, nesse caso, muito alta, deslocada para apoiar a cumeeira, superando o ⅓ habitual da altura da linha alta nos conjuntos tradicionais. Além dos apoios horizontais, há dois pontaletes que descarregam a cumeeira em uma peça in natura sobre frechais internos (podendo se tratar de uma intervenção posterior).

Em quatro águas, telha s capa e canal, inclinação de 50%, apresenta detalhes importantes: beiral em cimalha de tijolo argamassada, primeira fiada de telha

O M anto da cobertura apresenta telhas saturadas, quebradas e corridas em todos os panos, na Á gua Sul, toda argamassada, com vegetação invasora na sua totalidade, notamos uma, tipo cipó que invade o interior do bem procurando o solo até se enraizar na alvenaria, entre o substrato e o revestimento. Outra, vegetação arbustiva na área da cimalha. Água Oeste (fundos), além das telhas quebradas e corridas, temos confusão sobre a alvenaria, acumulo de telhas e muita possibilidade de infiltrações, tinha um prolongamento que cobria a cozinha, com inclinação diferente, menor, tambem encontramos resquícios de um beiral de aproximadamente 70cm, que existiu a pouco tempo. A vegetação invasora nessa água são epiftas, samambaias que formam uma rede, xaxim em todo o canal, que retem a umidade, criando um ambiente crítico para a telhas e para as madeiras e constantemente úmido o interior. Água Norte (lat. Esq.),

anto da cobertura apresenta telhas saturadas, quebradas e corridas em todos os panos, na Á gua Sul, toda argamassada, com vegetação invasora na sua totalidade, notamos uma, tipo cipó que invade o interior do bem procurando o solo até se enraizar na alvenaria, entre o substrato e o revestimento. Outra, vegetação arbustiva na área da cimalha. Água Oeste (fundos), além das telhas quebradas e corridas, temos confusão sobre a alvenaria, acumulo de telhas e possibilidade de infiltrações, tinha um prolongamento que cobria a cozinha, com inclinação diferente, menor, tambem encontramos resquícios de um beiral de aproximadamente 70cm, que existiu a pouco tempo. A vegetação invasora nessa água são epiftas, samambaias que formam uma rede, xaxim em todo o canal, que retem a umidade, criando um ambiente crítico para a telhas e para as madeira s e constantemente úmido o interior. Água Norte (lat. Esq.),

O M anto da cobertura apresenta telhas saturadas, quebradas e corridas em todos os panos, na Á gua Sul, toda argamassada, com vegetação invasora na sua totalidade, notamos uma, tipo cipó que invade o interior do bem procurando o solo até se enraizar na alvenaria, entre o substrato e o revestimento. Outra, vegetação arbustiva na área da cimalha. Água Oeste (fundos), além das telhas quebradas e corridas, temos confusão sobre a alvenaria, acumulo de telhas e muita possibilidade de infiltrações, tinha um prolongamento que cobria a cozinha, com inclinação diferente, menor, tambem encontramos resquícios de um beiral de aproximadamente 70cm, que existiu a pouco tempo. A vegetação invasora nessa água são epiftas, samambaias que formam uma rede, xaxim em todo o canal, que retem a umidade, criando um ambiente crítico para a telhas e para as madeiras e constantemente úmido o interior. Água Norte (lat. Esq.), Seu grande problema são as plantas arbustivas no beiral que deterioram estruturalmente a cimalha, abrindo fissuras e rachaduras, desarranjando seus tijolos e permitindo a infiltração das águas da chuva causando patologias no frechal e nas alvenarias . Água Leste, nessa as patologias são recorrentes, telhas deslocadas e quebradas, vegetação invasiva abrindo caminho para as deteriorações.

O M anto da cobertura apresenta telhas saturadas, quebradas e corridas em todos os panos, na Á gua Sul, toda argamassada, com vegetação invasora na sua totalidade, notamos uma, tipo cipó que invade o interior do bem procurando o solo até se enraizar na alvenaria, entre o substrato e o revestimento. Outra, vegetação arbustiva na área da cimalha. Água Oeste (fundos), além das telhas quebradas e corridas, temos confusão sobre a alvenaria, acumulo de telhas e

muita possibilidade de infiltrações, tinha um prolongamento que cobria a cozinha, com inclinação diferente, menor, tambem encontramos resquícios de um beiral de aproximadamente 70cm, que existiu a pouco tempo. A vegetação invasora nessa água são epiftas, samambaias que formam uma rede, xaxim em todo o canal, que retem a umidade, criando um ambiente crítico para a telhas e para as madeiras e constantemente úmido o interior. Água Norte (lat. Esq.),

O M anto da cobertura apresenta telhas saturadas, quebradas e corridas em todos os panos, na Á gua Sul, toda argamassada, com vegetação invasora na sua totalidade, notamos uma, tipo cipó que invade o interior do bem procurando o solo até se enraizar na alvenaria, entre o substrato e o revestimento. Outra, vegetação arbustiva na área da cimalha. Água Oeste (fundos), além das telhas quebradas e corridas, temos confusão sobre a alvenaria, acumulo de telhas e muita possibilidade de infiltrações, tinha um prolongamento que cobria a cozinha, com inclinação diferente, menor, tambem encontramos resquícios de um beiral de aproximadamente 70cm, que existiu a pouco tempo. A vegetação invasora nessa água são epiftas, samambaias que formam uma rede, xaxim em todo o canal, que retem a umidade, criando um ambiente crítico para a telhas e para as madeira s e constantemente úmido o interior. Água Norte (lat. Esq.),

Seu grande problema são as plantas arbustivas no beiral que deterioram estruturalmente a cimalha, abrindo fissuras e rachaduras, desarranjando seus tijolos e permitindo a infiltração das águas da chuva causando patologias no frechal e nas alvenarias . Água Leste , nessa as patologias são recorrentes, telhas deslocadas e quebradas, vegetação invasiva abrindo caminho para as deteriorações.

O Manto da cobertura apresenta telhas saturadas, quebradas e corridas em todos os panos. Na Água Sul, toda argamassada, com vegetação invasora na sua totalidade, notamos uma, tipo cipó, que invade o interior do bem, procurando o solo até se enraizar na alvenaria, entre o substrato e o revestimento; outra vegetação arbustiva na área da cimalha. Na Água Oeste (fundos), além das telhas quebradas e corridas, temos confusão sobre a alvenaria, acúmulo de telhas e muita possibilidade de inf ltrações. Havia um prolongamento que cobria a cozinha, com inclinação diferente, menor. Também encontramos resquícios de um beiral de aproximadamente 70cm, que exis-

Seu grande problema são as plantas arbustivas no beiral que deterioram estruturalmente a cimalha, abrindo fissuras e rachaduras, desarranjando seus tijolos e permitindo a infiltração das águas da chuva causando patologias no frechal e nas alvenarias . Água Leste, nessa as patologias são recorrentes, telhas deslocadas e quebradas, vegetação invasiva abrindo caminho para as deteriorações. VISTA

Seu grande problema são as plantas arbustivas no beiral que deterioram estruturalmente a cimalha, abrindo fissuras e rachaduras, desarranjando seus tijolos e permitindo a infiltração das águas da chuva causando patologias no frechal e nas alvenarias . Água Leste, nessa as patologias são recorrentes, telhas deslocadas e quebradas, vegetação invasiva abrindo caminho para as deteriorações.

tiu há pouco tempo. A vegetação invasora nessa água é de epí ftas, samambaias que formam uma rede, e xaxim em todo o canal, que retém a umidade, criando um ambiente crítico para a telhas e para as madeiras e constantemente úmido o interior. Na Água Norte (lat. esq.), o grande problema são as plantas arbustivas no beiral que deterioram estruturalmente a cimalha, abrindo fssuras e rachaduras, desarranjando seus tijolos e permitindo a inf ltração das águas da chuva, causando patologias no frechal e nas alvenarias. Na Água Leste, as patologias são recorrentes, telhas deslocadas e quebradas, vegetação invasiva abrindo caminho para as deteriorações.

O M anto da cobertura apresenta telhas saturadas, quebradas e corridas em todos os panos, na Água Sul, toda argamassada, com vegetação invasora na sua totalidade, notamos uma, tipo cipó que invade o interior do bem procurando o solo até se enraizar na alvenaria, entre o substrato e o revestimento. Outra, vegetação arbustiva na área da cimalha. Água Oeste (fundos), além das telhas quebradas e corridas, temos confusão sobre a alvenaria, acumulo de telhas e muita possibilidade de infiltrações, tinha um prolongamento que cobria a cozinha, com inclinação diferente, menor, tambem encontramos resquícios de um beiral de aproximadamente 70cm, que existiu a pouco tempo. A vegetação invasora nessa água são epiftas, samambaias que formam uma rede, xaxim em todo o canal, que retem a umidade, criando um ambiente crítico para a telhas e para as madeiras e constantemente úmido o interior. Água Norte (lat. Esq.),

Seu grande problema são as plantas arbustivas no beiral que deterioram estruturalmente a cimalha, abrindo fissuras e rachaduras, desarranjando seus tijolos e permitindo a infiltração das águas da chuva causando patologias no frechal e nas alvenarias . Água Leste , nessa as patologias são recorrentes, telhas deslocadas e quebradas, vegetação invasiva abrindo caminho para as deteriorações.

Seu grande problema são as plantas arbustivas no beiral que deterioram estruturalmente a cimalha, abrindo fissuras e rachaduras, desarranjando seus tijolos e permitindo a infiltração das águas da chuva causando patologias no frechal e nas alvenarias . Água Leste, nessa as patologias são recorrentes, telhas deslocadas e quebradas, vegetação invasiva abrindo caminho para as deteriorações.

VISTA AÉREA

FACE SUL

ÁGUA OESTE ARBUSTOS

ÁGUA SUL

TELHAS INVERTIDAS-BEIRAL

INVASORA/EPÍFITAS - ÁGUA SUL TELHA ESTRELADA

ÁGUA NORTE VEGETAÇÃO INVASORA/EPÍFITAS - ÁGUA SUL TELHA ESTRELADA

VISTA AÉREA
VISTA AÉREA
VISTA AÉREA

ESPIGÃO/APODRECIMENTO POR INFILTRAÇÃO

ENCONTRO FRECHAIS/APODRECIMENTO

ESPIGÃO/APODRECIMENTO POR INFILTRAÇÃO

ENCONTRO FRECHAIS/APODRECIMENTO

UMIDADE/MICROORGANISMOS

FRECHAL/TOTAL APODRECIMENTO

UMIDADE/MICROORGANISMOS

FRECHAL/TOTAL APODRECIMENTO

EMENDA NO ESPIGÃO

EMENDA NO ESPIGÃO

INFILTRAÇÃO/TELHA QUEBRADA

INFILTRAÇÃO/TELHA QUEBRADA

APRODECIMENTO DE PARTE FRAGIL DA PEÇA

APRODECIMENTO DE PARTE FRAGIL DA PEÇA

FRECHAL/MICROORGANISMOS

FRECHAL/MICROORGANISMOS

ENCONTRO DE FRECHAIS/APODRECIMENTO PELA INFILTRAÇÃO

ENCONTRO DE FRECHAIS/APODRECIMENTO PELA INFILTRAÇÃO

FRECHAIS ENTERRADOS/UMIDADE/APODRECIMENTO

FRECHAIS ENTERRADOS/UMIDADE/APODRECIMENTO

FRECHAIS INTERNOS

FRECHAIS INTERNOS

FRECHAL/ATAQUE DE INSETOS XILÓFAGOS

FRECHAL/ATAQUE DE INSETOS XILÓFAGOS

MAPEAMENTO DE DANOS –

MAPEAMENTO DE DANOS MAPEAMENTO DE DANOS

MAPEAMENTO DE DANOS TÉRREO

1 ALVENARIAS - FACHADAS INTERNAS

TÉRREO

MAPEAMENTO DE DANOS

VISTA C
VISTA B
VISTA A
VISTA D
VISTA B
VISTA C
VISTA D
VISTA A
VISTA B
VISTA C
VISTA D
VISTA A
VISTA B
VISTA C
VISTA D
VISTA A
SALA 2

QUARTO 1

QUARTO 1

QUARTO 1

VISTA A
VISTA D
VISTA C
VISTA B
VISTA E
VISTA A
VISTA D VISTA F

QUARTO 2

QUARTO 2

A

REVESTIMENTO TODO COMPROMETIDO/ DESAGREGADO DO SUBSTRATO/MUITA UMIDADE/ FACE OPOSTA A EXTERNA QUE RECEBE MUITA INFILTRAÇÃO PELA FALTA DE TELHAS NO BEIRAL

FISSURA NO ENCONTRO DE PAREDES(ADOBE/PEDRA) /PAREDES SOLTAS SEM ENCUNHAMENTO

VISTA C
VISTA B
VISTA
VISTA D

QUARTO 3

QUARTO 3

VISTA B
VISTA C
VISTA D
VISTA A

DEPOSITO 1

C A
VISTA B
VISTA C
VISTA A
VISTA D

DEPOSITO 2

C A

VISTA D
VISTA A
VISTA B
VISTA C

CIRCULAÇÃO

VISTA C
VISTA B
VISTA D
VISTA A

TRINCA/ ESTEIO COM SARRAFO PARA ENCAIXE NO ADOBE

VISTA A
VISTA C
VISTA D
ADOBE
VISTA B
VISTA A
VISTA C
VISTA D
ADOBE
VISTA A
VISTA D
VISTA C
VISTA B
VISTA A
VISTA C
PORÃO PLANTA BAIXA

MAPEAMENTO DE DANOS

3. PISOS

MAPEAMENTO DE DANOS – 3 PISO S

VISTA DA

MADRE/BARROTE/ASSOALHO E

PONTA DA OMBREIRA

COMPROMETIDOS /INFESTAÇAÕ DE INSETOS

VISTA APOIO BARROTE

RESSECAMENTO/RACHADURAS

DEGRADAÇÃO PELA UMIDADE/INFILTRAÇÃO PELO TELHADO/PROXIMIDADE COM SOLO

PORÃO - BARROTES

BARROTES ATACADOS POR FUNGOS/UMIDADE EXCESSIVA/PROXIMIDADE COM SOLO/VESTIGIOS DE INFILTRAÇÃO PELO TELHADO

INFESTAÇÃO DE INSETO

TÉRREO - BARROTES

Além do piso em madeira nos dois níveis do edifício, temos os complementos, em que foram usadas lajotas cerâmicas queimadas em composição com tijolos igualmente cozidos, encontradas nos pisos dos intradorsos do nível térreo. Encontramos essas mesmas lajotas no piso da Eira (usada na secagem dos grãos na parte posterior junto ao edifício), no terraço e na escada de acesso à entrada principal

Além do piso em madeira nos dois níveis do edifício, temos os complementos, em que foram usad as lajotas cerâmicas queimadas em composição com tijolos igualmente cozidos, encontradas nos pisos dos intradorsos do nível térreo. Encontramos essas mesmas lajotas no piso da Eira, usada na secagem dos grãos na parte posterior junto ao edifício, no terraço e na escada de acesso à entrada principal na fachada sul, acessando a Sala 1 . Constatamos o uso da argila queimada em vários elementos do sobrado, nas descrições acima como elemento do piso, também no beiral em cimalha, na primeira fiada das paredes internas em adobes. Nas três padieiras em arco na parte posterior do edifício, a cambota estrutural e a contr averga sobre as aberturas foram confeccionadas com tijolos queimados.

na fachada sul, acessando a Sala 1. Constatamos o uso da argila queimada em vários elementos do sobrado, nas descrições acima como elemento do piso, também no beiral em cimalha, na primeira fada das paredes internas em adobes. Nas três padieiras em arco na parte posterior do edifício, a cambota estrutural e a contraverga sobre as aberturas foram confeccionadas com tijolos queimados.

EIRA
DET. CIMALHA
CAMBOTA DA PADIEIRA

MAPEAMENTO DE DANOS

MAPEAMENTO DE DANOS 4 - ABERTURAS

4. ABERTURAS

PORTA P1

Porta p1

APODRECIMENTO DA FRANJA DAS FOLHAS EM SAIA E CAMISA

ATAQUE DE XILÓFAGOS NA PADIERA /PRANCHAS DE MADEIRA DE 6CM DE ESP.

APODRECIMENTO CAUSADO POR UMIDADE LEVOU AO RECALQUE DE UMA D A S OMBREIRAS

P1 VISTA INTERNA
P1 CORTE
P1 PL. BAIXA
P1 VISTA EXTERNA
P2 PLANTA BAIXA
P2 VISTA INTERNA
P2 CORTE
P2 VISTA EXTERNA
UMIDADE/FUNGO/PODRIDÃO
RESECAMENTO/RACHADURAS

Porta p3

PORTA P3

FECHAMENTO COM TÁBUAS

RECALQUE

PODRIDÃO NA SOLEIRA E LIGAÇÃO COM OMBREIRA

APODRECIMENTO PELA UMIDADE

P3 PLANTA BAIXA
P3 VISTA EXTERNA
P3 CORTE
P3 VISTA INTERNA
RACHADURAS/INSETOS

RESSECAMENTO/RACHADURA S/ INFILTRAÇÃO

PORTA P4

P4 PLANTA BAIXA

P4 VISTA EXTERNA

ATAQUE DE INSETOS

SOLEIRA/APODRECIMENTO PELA UMIDADE

PEÇA ESTRUTURAL “OCADA” CAUSADA POR INSETOS(BROCA)/ COM INFILTRAÇÃO

P4 VISTA INTERNA

PONTALETE/ESTEIO USADO PARA RECEBER A CARGA DA MADRE E ASSIM ALIVIAR O ESFORÇO NA PEÇA DA PADIEIRA/ AUMENTANDO A ÁREA DE APOIO/ PEÇA QUASE IN NATURA/INTERVENÇÃO POSTERIOR A CONSTRUÇÃO/APOIO INSTÁVEL NO SOLO

P4 CORTE
PORÃO
P4

PORTA P5

P5 PLANTA BAIXA
P5 VISTA EXTER NA
P5 VISTA INTERNA
P5 CORTE

PORTA P6

DET. VERGA/OMBREIRA

P6 PLANTA BAIXA
P6 VISTA PELO QUARTO 2
P6 CORTE
ATAQUE GENERALIZADO DE INSETOS
Porta p6

PORTA P7

P7 VISTA DEPOSITO

P7 CORTE
P7 VISTA QUARTO 3
P7 PLANTA BAIXA
DOBRADIÇA EM CACHIMBO
Porta p7

PORTA P8

APODRECIMENTO

P8 PLANTA BAIXA
P8 CORTE
P8 VISTA DEPOSITO 2
Porta p8

p9

PORTA P9

P9 PLANTA BAIXA
P9 CORTE
P9 VISTA CIRCULAÇÃO
Porta

PORTA P10

P10 PLANTA BAIXA
P10 VISTA CIRCULAÇÃO
P10 CORTE
P10 VISTA Q1
Porta p10

Porta p11

PORTA P11

REPAROS LEVES

P11 PLANTA BAIXA
P11 VISTA CIRCULAÇÃO
P11 CORTE
P11 VISTA QUARTO 1

PORTA P12

P12 PLANTA BAIXA
P12 VISTA SALA 2
P12 CORTE
Porta p12

PORTA P13

REPAROS LEVES

ALTEAMENTO DO PORTAL/INCORPORAÇÃO DA BANDEIRA

P13 VISTA SALA 1
P13 PLANTA BAIXA
P13 CORTE
Porta p13

PORTA P14

P14 PLANTA BAIXA
P14 CORTE
P14 VISTA SALA2
Porta p14

p15

PORTA P15

P15 VISTA CIRCULAÇÃO

DETERIORAÇÃO CAUSADA POR INCENDIO E ATAQUE DE INSETOS/PERDA DE LIGNINA E RESSECAMENTO

P15 PLANTA BAIXA
P15 CORTE
DOBRADIÇA FERRO FORJADO TIPO “LEME”
Porta

PORTA P16

EXPOSTA A EXCESSO DE CALOR/ ORIFICIOS VINDO DE ATAQUE DE INSETOS

P16 VISTA SALA 1
P16 PLANTA BAIXA
P16 CORTE
Porta p16

JANELA J1

RESSECAMENTO EM EXCESSO/FISSURAS POR PERDA DE LIGNINA NA LIXIVIAÇÃO

J1 CORTE
J1 VISTA INTERNA
J1 VISTA EXTERNA
J1 PLANTA BAIXA
ATAQUE XILÓFAGO

RACHADURAS/ PERDA DE LIGNINA

ATAQUE DE XILÓFAGOS

APODRECIMENTO

JANELA J7
J7 VISTA TERNA
J7 CORTE
J7 VISTA EXTERNA
J7 PLANTA BAIXA
janela j7

DIAGNÓSTICO DO ESTADO DE CONSERVAÇÃO

A maior contribuição para o grau de deterioração dos elementos que compõem o sobrado é proveniente da cobertura, sendo ela a causa ou a maior contribuinte para as patologias nas alvenarias, assoalhos e barrotes.

A FUNDAÇÃO e as ALVENARIAS EXTERNAS se mostram sólidas, coesas, sem recalques ou deformações, estruturalmente estável. As internas em Adobe se mostram íntegras, assentadas sobre as tábuas do assoalho, mais suscetíveis a movimentações.

A COBERTURA está com muitos problemas, seja mecanicamente, com telhas corridas, quebradas, falta delas ou argamassamento em excesso. Biologicamente, apresenta vários tipos de vegetações invasivas, até arbustivas, que abriram frente para a manutenção da umidade. A di fculdade do escoamento e a inf ltração dessa umidade levou à deterioração das peças de estrutura, como frechais e espigões que, fragilizados, foram atacados por insetos, estando 45% das peças deterioradas. Mesmo as telhas, devido à demora para escoamento dessa umidade, estão sempre saturadas e mais frágeis e com o tempo permitem a percolação da água para o interior do edifício. Essa umidade criou condições para que a vegetação se enraizasse pela alvenaria, entre a argamassa e o substrato, expandindo-se, deslocando o revestimento em muitos pontos. Naqueles com umidade excessiva, os microorganismos se proliferaram, conservando a umidade e desintegrando as ligações das argamassas de revestimentos e os substratos que, sendo pedra assentada com argila, potencializou-se o enraizamento e aos poucos está se fragilizando, soltando as pedras menores, depois as maiores e desestabilizando o arcabouço estrutural em pedra e barro. O Revestimento externo nas quatro fachadas não está cumprindo satisfatoriamente sua função de camada protetora, estando muito deteriorado, solto, apresentando ilhas com vários tipos de argamassas que formaram uma colcha de retalhos de diversi fcação,

de granulometria e de tipos de deterioração. Assim, não temos um conjunto, situação que permite fssuras, separação de placas e inf ltrações.

Na FACHADA SUL, vemos pela sequência de registros, a rápida evolução da deterioração, onde a falta de telhas no beiral e a vegetação sobre a cimalha naquele ponto acelerou o deslocamento da placa de revestimento, expondo o substrato e abrindo frente para a aceleração da lixiviação da argamassa de assentamento. Em toda a fachada vemos a proliferação de microorganismos. Na FACHADA LESTE, temos o problema da vegetação criando condições para a deterioração da cimalha (principalmente no vértice entre as fachadas Leste e Norte) e as intervenções no revestimento, que incorporaram argamassa cimentícia incompatível, com o tempo se soltaram do substrato em vários pontos. Nessa fachada, existia um passeio confeccionado com lajes enormes de pedra, que hoje estão amontoadas e espalhadas. Pelos vestígios e depoimentos, poderá ser refeito, agregando estabilidade e acesso. Na FACHADA NORTE, são recorrentes os problemas da vegetação invasiva e das argamassas cimentícias; apresenta também grandes áreas sem revestimento e proliferação de microorganismos e áreas descoladas do substrato. A FACHADA OESTE está totalmente sem revestimento. Temos vestígios na parte superior da sua existência, fachada mais atacada pelo intemperismo, sem beiral, tem sua argila de assentamento constantemente umidi fcada e sua estabilidade prejudicada. O peso das pedras faz com que deforme, perca o embrechamento, o equilíbrio e fque com sua coesão comprometida. Tem sua integridade Pedra/Argila/Revestimento desfeita e está totalmente suscetível. O sobrado possui ruínas da cozinha na parte posterior da edi fcação, onde a Fachada Oeste fcaria dentro dessa cozinha, sendo interna. De acordo com os registros dos últimos 30 anos, ela já estava sem revestimento.

Os BARROTES, nas áreas em que estão suspensos (Quarto 1, Sala 1 e Sala 2) se mostram em melhores condições comparados aos barrotes dos compartimentos da parte posterior do sobrado. Alcovas 1 e 2, Depósitos 1 e 2, Quartos 2 e 3 e Circulação fcam mais próximos do solo e apresentam umidade, falta de ventilação e pó, depositado por anos, chegando a enterrar alguns barrotes e sofrem com inf ltrações decorrentes dos problemas no telhado. Tal situação criou condições para as patologias e degradações desses elementos. As tábuas do ASSOALHO do sobrado sofrem degradação por ataques de xilófagos, pelo ambiente sempre fechado e insalubre, sem ventilação su fciente propicio à proliferação de microorganismos. São nítidos os vestígios de ocorrências contínuas de goteiras. Apresenta 20% das tábuas em boas condições, a sua maioria no porão, 30% passíveis de recuperação e 40% muito degradadas, sendo necessário substituição.

As ABERTURAS trazem degradações que se apresentam na sua maioria, nos encontros ombreira/peitoril, como apodrecimento, lixiviação da lignina e ataque de insetos, por estarem mais vulneráveis que outras partes dos portais ao intemperismo e locais de acúmulo de umidade. As folhas das janelas eestão muito ressecadas, necessitando de hidratação, porém, em sua maioria, em boas condições, necessitando de pequenos reparos e conservação.

FICHA TÉCNICA

Produção Executiva:

Tombô Produções Museológicas

Responsável técnico:

Marcos Borges (CAU nº A1144-5)

Assistência:

Sônia Rocha Melim

Suzana de Souza (CAU nº A205850)

Editoração: Fernanda do Canto

Projeto realizado com o Prêmio Edital Elisabete Anderle de Estímulo à Cultura, Edição 2021

Turn static files into dynamic content formats.

Create a flipbook
Issuu converts static files into: digital portfolios, online yearbooks, online catalogs, digital photo albums and more. Sign up and create your flipbook.