PORTAFOLIO ACADÉMICO
2020 - 2024


![]()
2020 - 2024


UNIVERSIDAD DE SANTIAGO DE CHILE
Licenciaturaenarqutiectura
2020-Actualidad
UNIVERSIDADNACIONALDELAPLATA(ARG)
BecademovilidadAUGM
2022-2022
Tomás Núñez León
Licenciadoenarquitectura
FONDECYT REGULAR
Consultoría
Enero2023-Marzo2023
Profesionales
• Dibujo técnico
• Modelado 3D
• Diseño de instalaciones
• Predimensionamiento estructural
• Rendering
SOFTWARE
Herramientasdigitales
• Revit
• Autocad
• Sketchup
• Archicad
Soy una persona autodidacta y proactiva, en constantebúsquedadenuevosconocimientos.Me interesamantenermealavanguardiaentecnología y en los avances del entorno contemporáneo.
Cuento con una formación sólida en diseño arquitectónico,representacióngráficaydesarrollo de proyectos. Mi enfoque combina creatividad, precisión técnica y pensamiento crítico para abordarcadadesafíoconrigurosidadysensibilidad.
EP SERVIU METROPOLITANO
Practicaprofesional
Enero2024-febrero2024
• Twinmotion
• Indesign
• Photoshop
• Office
Personales
• Trabajo colaborativo
• Rigurosidad
• Proactividad
• Pensamiento crítico

+56940528032 “


tomas.nunez.l@usach.cl
Huechuraba,Santiago·Chile
• Organización y planificación
• Adaptabilidad
• Inglés
• Español ...... Nativo

VILLA PORTALES
PROYECTO ACADÉMICO | 2022

VÍCTOR JARA
PROYECTO ACADÉMICO | 2024

01 02 03 04
VILLA PORTALES
PROYECTO ACADÉMICO | 2022

TABLAS DEL MAPOCHO
CONCURSO CORMA | 2024
Jardín infantil
Tal como su nombre lo indica, este jardín infantil se ubica en la Villa Portales, un sector de alto valor histórico que, con el tiempo, ha quedado estancado y es percibido como un lugar inseguro,debidoprincipalmentealadelincuencia.
En respuesta, se plantea un refugio para los niños, donde la propia estructura los aísla del entorno, permitiéndoles aprender de forma segura. Además, un único acceso controlado refuerza esta sensación de resguardo.
Para integrar seguridad y experiencia espacial, el acceso aprovecha el desnivel natural del terreno, convirtiéndose en un recorrido lúdico que introduce a los niños progresivamente en un ambiente protegido, haciendo del inicio de su jornada un momento dinámico y estimulante.









Parque y viviendas
EnEstaciónCentral,lainterseccióndeVíctorJara con la tradicional Alameda, presenta un punto urbano marcado por una fuerte problemática habitacional concentrada en cités inseguros y pasajesclausurados,quehanterminadoporaislar la manzana de un entorno sumamente transitado.
Además,lapresenciadecomercioformaleinformal evidencia una necesidad latente de espacios más integrados y seguros para la vida cotidiana.
En respuesta, el proyecto propone un parque que actúa como elemento articulador, abriendo la manzana hacia su entorno y mejorando su permeabilidad.Asuvez,dosedificiosconprogramas habitacionales y comerciales complementan esta intervención, abordando simultáneamente los desafíos de seguridad, vivienda y comercio en un solo gesto urbano coherente y regenerador.




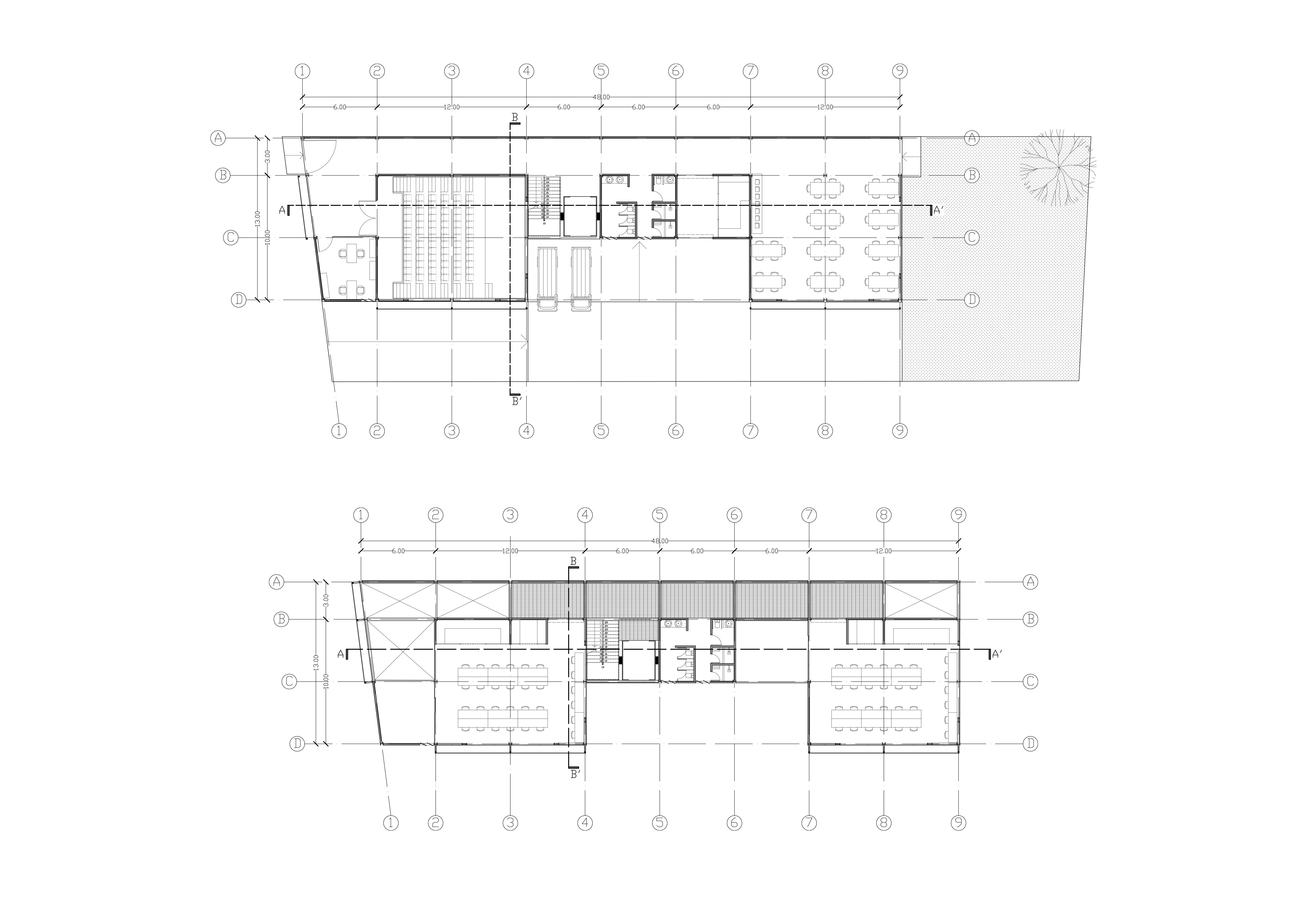
ElproyectoseemplazaenSantiagocentro,enun punto estratégico cercano a dos estaciones de metro.SetratadeunaEscueladeArtesyOficios quealbergatalleresorientadosalarecuperación de técnicas tradicionales, como la carpintería y los trabajos en tierra, rescatando así saberes que forman parte del patrimonio constructivo.
Nacida desde la propia comunidad, la escuela busca preservar esa vocación participativa. Por ello, se incorpora un auditorio de fácil acceso que permite el desarrollo de distintas actividades sociales y refuerza el vínculo con el entorno.
La propuesta se organiza en tres niveles y se caracteriza por una envolvente mayoritariamente traslúcida, acompañada de múltiples aberturas que favorecen la iluminación y ventilación natural, contribuyendo al confort ambiental y al ahorro energético.




PUENTE CULTURAL
SituadosobreelríoMapocho,elhistóricoPuente deLosCarrosconectatresimportantescomunas de Santiago y ha sido un hito de la ciudad. Originalmente parte del sistema de tranvías del siglo XIX, el puente tuvo en su último periodo un uso peatonal y de comercio ambulante antes de ser clausurado por fallas estructurales en 2016.
Elentornoquelorodeapresentaunadistribución desorganizadadelespaciopúblico,loquegenera aglomeracionesydesconexiones.Laintervención propuesta busca revalorizar el puente, mejorar la circulación peatonal, integrar el comercio y promover la cultura. Además, se refuerza la identidad histórica del puente, creando un entorno que celebra su valor patrimonial y optimiza la movilidad y la interacción social.










