Yangon 2014/2020 Portfolio

Page 1

Arch. Tiago Marques Yangon Work List 2014/2020

a+p grp 2014

(KBA Offices building @ Yangon) Survey, Remodeling Design and Construction Supervision

a+p grp 2014

(ABC towers @ Yangon) Conceptual Design

Spiral Architects & Planners 2015

(The Village Resort @ Ngwe Saung) Survey, Design and Construction Supervision

Spiral Architects & Planners 2015/18

(Zaykabar Museum @ Yangon) Design and Construction documentation

Spiral Architects & Planners 2017/18

(Pedestrian bridge @ Yangon) Design and Construction mock-up

Spiral Architects & Planners 2019

(Porcelanosa Showroom @ Yangon) Survey, Design and Construction documentation and Supervision

Spiral Architects & Planners 2015/18

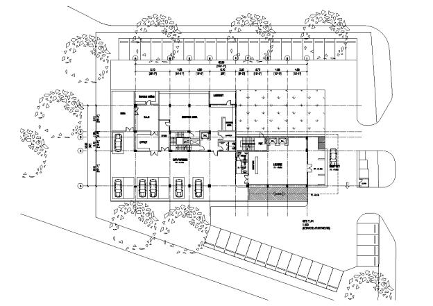
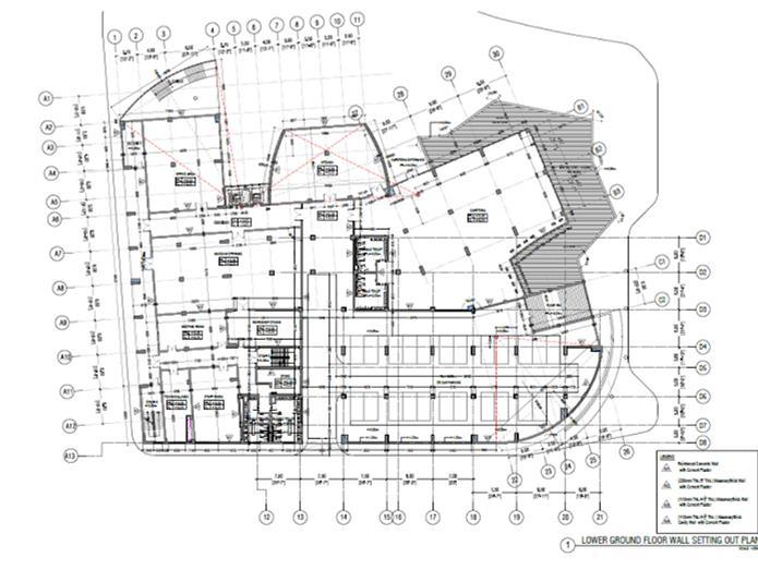
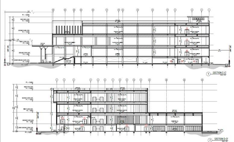
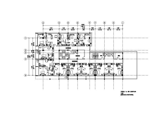
(Pho Sein Hotel @ Yangon) Existing Survey, Conceptual Design for Hotel and Serv. Aptms version

Spiral Architects & Planners 2018/20

(Yangon City Golf @ Yangon) Survey, Masterplan and buildings Design

Thank you for your time and feel free to ask any more questions. tiago@tmarchi.com

Turn static files into dynamic content formats.

Create a flipbook
Issuu converts static files into: digital portfolios, online yearbooks, online catalogs, digital photo albums and more. Sign up and create your flipbook.
Yangon 2014/2020 Portfolio by tmarchitecture - Issuu