RAPPORT DE STAGE
ATELIER M - TOULOUSE DU 03/06 AU 31/09

DNMADE ESPACE - TOULOUSE
![]()
ATELIER M - TOULOUSE DU 03/06 AU 31/09

DNMADE ESPACE - TOULOUSE
ATELIER M - TOULOUSE DU 03/06 AU 31/09
Je tiens à exprimer ma profonde gratitude envers toutes les personnes qui m'ont soutenu et guidé tout au long de ce stage en architecture, une période qui a été particulièrement enrichissante tant sur le plan professionnel que personnel.
Tout d'abord, je remercie chaleureusement Jérôme et Roxanne pour leur dévouement sans faille et leur aide précieuse durant ces trois mois. Leur expertise et leurs conseils avisés ont été d'une grande valeur pour moi, notamment dans l'amélioration des rendus de projets destinés aux clients. Grâce à leur accompagnement, j'ai pu développer des compétences essentielles et affiner mon approche créative et technique en architecture.
Je souhaite également remercier ma collègue stagiaire, dont l'accueil chaleureux et l'entraide ont grandement facilité mon intégration dans l'équipe. Nos échanges et collaborations sur les projets ont été d'une grande richesse, et je suis reconnaissante d'avoir pu partager cette expérience à ses côtés..


AVANT-PROPOS PAGES 11 AGENCES PAGES 14/17
L’EQUIPE PAGES 18
SECTEUR D’ACTIVITÉ PAGES 19
JOURNÉE TYPE PAGES 20
INTRODUCTION L’AGENCE ATELIER M MES FONCTIONS & OUTILS PAGES 21/22
ÉVOLUTION PROJETSPAGES 23/34


PAGES 11
Dans le cadre de ma deuxième année en DNMADe (Diplôme National des Métiers d’Art et du Design), il nous a été demandé de réaliser un stage de 8 semaines au sein d'une structure de notre choix. Cette expérience visait à mettre en pratique les compétences acquises au cours de la formation et à découvrir le milieu professionnel.
Ce stage constituait une opportunité de confirmer mon intérêt pour le domaine de l’architecture, tout en explorant ses aspects professionnels et en découvrant de nouvelles méthodes de travail. Après de nombreuses recherches orientées vers le paysagisme, un domaine que je souhaitais approfondir, je me suis malheureusement heurtée à plusieurs refus. J'ai alors élargi mes recherches aux agences d’architecture, mais les opportunités étaient également limitées.
Finalement, j'ai eu la chance de pouvoir entrer en contact avec Jérôme Meric et Sandra Teyssou, et d'intégrer leur équipe au sein de l'agence Atelier M. Cette première expérience en agence m’a permis d’aborder le monde de l’architecture sous un nouvel angle, de comprendre le fonctionnement interne d’une entreprise, et d’observer comment les équipes s’organisent autour d’un projet de conception.
AGENCES PAGES 14/17
L’EQUIPE PAGES 18
SECTEUR D’ACTIVITÉ PAGES 19
JOURNÉE TYPE PAGES 20
MES FONCTIONS & OUTILS PAGES 21/22
ÉVOLUTION PROJETSPAGES 23/34








«ATELIER M» vient de la combinaison des deux nom de famille des associés anciennement Sandra Manenc et Jérôme Merric.
«Entre savoir-faire et souci du détail»
Depuis leur installation en 2000, Sandra Teyssou et Jérôme Meric collaborent pour diffuser leurs idées et conseils en architecture dans la ville rose, avec pour maître mots : savoir-faire et souci du détail. Leur agence, située dans une ancienne bâtisse qu'ils ont eux-mêmes rénovée, reflète leur identité visuelle et sert de cadre idéal pour accueillir les clients lors des rendez-vous.
Spécialisés dans divers domaines tels que les maisons individuelles, la rénovation d’appartements, les bureaux, les bâtiments industriels, les restaurants, les magasins et les logements collectifs, ils se sont équipés d’outils et ont acquis des connaissances solides pour valider de nombreux choix architecturaux.
Grâce à ces riches expériences, ils maîtrisent chaque étape du processus, de l’esquisse à la livraison, et en apprécient particulièrement chaque phase. L’agence compte également Roxanne Navarro, designer d'intérieur, qui enrichit l'équipe par son expertise en aménagement d'espaces intérieurs.
2000
2004
Lancement de « Atelier M » -construction de l’agence
2019


JÉRÔME MERRIC
Maître d’oeuvre

‘Master Maître d’oeuvre’

SANDRA TEYSSOU
Architecte D.P.L.G
‘diplomée de l’école d’architecture de Toulouse’
« Une collaboration des esprits »
L’entreprise Atelier M est dirigée depuis 2015 par deux associés, Jérôme Meric et Sandra Teyssou. Leur collaboration est née d'une rencontre amicale, chacun apportant des compétences complémentaires : Jérôme en tant que maître d'œuvre et Sandra en tant qu'architecte, assurant ainsi une répartition efficace des tâches.
Roxane Navarro, une jeune designer d'espace, a été la première à rejoindre l’équipe, contribuant ainsi à l’expansion de l’agence et à l’élargissement de ses compétences.
Architecte d’intérieur
‘BTS Design d’espace’
L’agence AtelierM propose aux étudiants la possibilité d’intégrer les locaux de son cabinet le temps d’un stage, leur permettant de découvrir le quotidien d'une agence d'architecture. Tout au long de mon stage, ces personnes ont su me guider avec patience, en prenant le temps de répondre à mes questions, de me conseiller, et de partager avec moi leur précieuse expérience dans le domaine.
«Entre extentions et rénovations»
Exercement national : France
Statue de l’entreprise : SARL (Société à responsabilité limitée)
Atelier M se distingue par sa polyvalence dans plusieurs secteurs de la construction: rénovation, neuf, extension et tertiaire.
Lors des rénovations, l'entreprise valorise le patrimoine en modernisant les bâtiments tout en respectant leur caractère d'origine. Dans la construction neuve, elle propose des solutions innovantes et durables, répondant aux exigences modernes. Pour les extensions, Atelier M assure une parfaite harmonie entre l'existant et les nouveaux espaces. Enfin, dans le tertiaire, elle conçoit des bureaux et commerces en alliant ergonomie et fonctionnalité.
«Une stratégie de communication diversifiée»
La stratégie de communication et de reconnaissance s’appuie sur une présence active sur divers sites internet, permettant de renforcer leur visibilité à travers toute la France, notamment dans des villes comme Biarritz, Paris, et Toulouse. En parallèle, cette stratégie inclut également un important volet de communication directe, notamment via le bouche-àoreille, qui permet de créer un réseau de confiance et d’authenticité. Cette approche combinée, alliant le numérique et la recommandation personnelle, assure une couverture efficace et une meilleure reconnaissance sur le territoire national.



«Polyvalence
des postes»
Les locaux de l’agence sont situés sur le Boulevard Deltour, dans le quartier de Moscou, à proximité du centre de Toulouse. Facilement accessible depuis la rue, l’agence a choisi de s’implanter dans un cadre moderne en rénovant une ancienne maison datant des années 70. Malgré l’intensité du trafic environnant, un calme apaisant règne à l’intérieur. Cet espace de travail a été conçu pour offrir un environnement propice à la concentration et à la sérénité, avec de grandes ouvertures donnant sur un espace vert, favorisant ainsi une connexion harmonieuse entre l’intérieur et l’extérieur.
Les bureaux sont organisés en «open space» où sont disposés huit bureaux ainsi qu’un traceur (imprimante permettant d’imprimer des plans sur des grands formats), dans une pièce lumineuse et fonctionnelle, suscitant l’échange entre les membres de l’équipe
Le bureau principal est aménagé en open space, avec trois postes de travail disposés dans un espace lumineux et fonctionnel, favorisant les échanges entre les membres de l'équipe. Les bureaux des autres collaborateurs se trouvent à proximité de cet open space. À l'entrée de l'agence, une pièce est dédiée aux réunions.
Pendant la majeure partie de mon stage, j'ai travaillé dans cette salle de réunion, sur un ordinateur qui y était installé, avant de rejoindre l'open space. Les locaux sont conçus de manière optimisée, intégrant des rangements invisibles et encastrés, ainsi que des outils, tout en assurant une circulation fluide. La salle de réunion sert non seulement à recevoir les clients, mais aussi à présenter l'esthétique que l'agence applique dans ses projets. L'agence est à la fois un lieu de collaboration et un espace esthétiquement réfléchi, permettant aux clients de percevoir les méthodes et l'approche créative de l'équipe.
Lors de mon intégration à l'agence, un ordinateur m'a été confié, me permettant d'accéder à l'ensemble des dossiers indispensables pour contribuer efficacement aux divers projets sur lesquels l'équipe travaille. Durant les deux mois de mon stage, j'ai eu l'occasion d'utiliser de manière intensive les logiciels que j'avais déjà appris à maîtriser au cours de ma formation.
Parmi ces outils, j'ai principalement employé ceux de la suite Adobe, tels qu'InDesign, Photoshop, et Twinmotion, que je connaissais déjà bien, ainsi que le logiciel d'architecture Archicad, qui s'est avéré essentiel pour mener à bien les tâches qui m'ont été confiées. Ces logiciels m'ont permis de m'impliquer pleinement dans les projets, en mettant en pratique les compétences acquises au fil de mes études.
9h00
Arrivée à l’agence - com instagram - planning semaine avec Roxanne et Jérôme - lancement projet
10h00
Travail sur les projets - Archicad - 3D
12h30
Pause déjeuner auprès de Marion
14h
Continuité sur les projets - prise de rendez-vous - accueil des clients
18h
Fin de journée
- point sur mon avancée avec Roxanne

«Entre extentions et rénovations»
Les visites de chantier sont bien plus qu’une simple routine pour vérifier l’état d’avancement des travaux ; elles constituent une véritable immersion dans le concret de la construction et de l'architecture. Ces moments privilégiés permettent de sortir des plans et des concepts abstraits pour plonger dans la réalité palpable du terrain. Il est fascinant de voir une idée se transformer progressivement en structure solide, de suivre chaque étape, chaque détail, et d'observer comment les différents corps de métier travaillent ensemble pour donner vie à un projet.
Assister aux avancées du chantier est aussi une expérience extrêmement formatrice. C’est sur le terrain que l’on comprend réellement les défis techniques auxquels chaque acteur est confronté, et que l'on peut apprécier l'importance des solutions ingénieuses qui sont mises en place. Voir les fondations être coulées, les murs s’élever, ou la toiture être posée, c’est comprendre de manière concrète les enjeux de la construction, du respect des normes de sécurité jusqu’à la gestion du calendrier serré.
De plus, ces visites apportent une richesse pédagogique incomparable : elles permettent de relier la théorie à la pratique. Lorsque l’on se trouve devant une armature en acier ou un mur en cours de montage, les notions vues dans les manuels prennent un sens nouveau. Les plans, les calculs, les perspectives deviennent des éléments tangibles, et les contraintes du chantier—comme le climat, le sol, ou les imprévus—illustrent parfaitement la complexité de ce métier. Ce contact direct avec l'avancement du chantier donne également l'opportunité de poser des questions, de discuter avec les professionnels présents et de s’inspirer de leur savoir-faire.
photo d’évolution de chantiers
«Puybegon»





photo d’évolution de chantiers
«Providence»





MISSIONS CONFIÉES PAGES 26/45
REGANS ...
ALBA...
PROVIDENCE...
JEAN-RIEUX...
AUZEVILLE...
COMMUNICATION...
BALANSA NEUF... ANAS ...
IMPLANTATION : LESIGNANT
«Réhabilitation d’une grange»
Durant mon stage au sein de l’agence AtelierM, j’ai eu le privilège de travailler sur de nombreux projets. Parmi eux, le projet «Alba», situé non loin de Carcasonne.
Ce projet concerne la réhabilitation d’une ancienne grange, rachetée pour être transformée en maison de vacances. Il s’agit d’un des projets pour lequel j’ai réalisé le plus de pièces graphiques durant le stage. J’ai notamment travaillé sur le dossier APD* de ce projet qui était en cours lors de mon arrivée dans l’agence, ainsi que les planches de références pour les sanitaires et la cuisine.
Pour ce projet il m’a été donné de réaliser les vues intérieures des chambres master et des chambres d’amis. Les clients avaient eu au préalable plusieurs propositions de reférences et idées d’ambiance ( mélange de clair et d’obscur ).
Cette tâche m’a offert une occasion précieuse d’approfondir mes compétences en rendu 3D en explorant de nouvelles techniques sur les logiciels Archicad, Twinmotion et Home By Me. Au-delà de l’aspect technique, j’ai pu mieux comprendre le fonctionnement global d’un projet architectural, depuis la conceptualisation initiale jusqu’à sa transformation en un projet concret et présentable. J’ai ainsi découvert les différentes étapes, parfois complexes, par lesquelles une idée doit passer par un processus de réflexion pour se matérialiser, en intégrant les aspects de conception, de visualisation, et de présentation finale. Cette expérience m’a permis de mieux appréhender l’ensemble du processus créatif et technique qui sous-tend chaque réalisation architecturale.
Cela m’a permis de comprendre les proportions ainsi que les combinaisons possibles ou non entre différents matériaux. J’ai traversé plusieurs étapes avant d’obtenir un rendu qui correspondait parfaitement aux attentes du client et à ses exigences.
1* APD («avant projet définitif») est une phase préliminaire d’un projet se situant avant le permis de construire (PC). Les documents détaillent les caractéristiques définitives du projet ainsi qu’un bilan chiffré.

Incertion et vue réaliste du projet «Alba» Logiciel utilisé : Archicad et Twinsmotion






IMPLANTATION : HYPERCENTRE TOULOUSE
«États
Il m’a été demander déffectuer un état des lieux complet d’un ancien appartement situé au cœur de Toulouse, rue des Régans. Ce travail a commencé par une phase de métrage, où j’ai pris les mesures détaillées de l’appartement et un reportages photos. Ces données ont ensuite été utilisées pour élaborer les plans d’état des lieux sur Archicad.
Une fois ces plans finalisés, j'ai également été chargée de réaliser des vues photoréalistes du séjour, en intégrant un élément clé demandé par le client : la préservation du patio comme puits de lumière central, afin de devenir le point focal de l’aménagement. Cette contrainte a guidé l'ensemble de la conception, assurant que l’espace bénéficiait d’un écwlairage naturel optimal tout en créant une atmosphère harmonieuse.
Le style architectural retenu pour ce projet combinait des influences haussmanniennes et un design contemporain, en mêlant des éléments classiques à des matériaux de luxe tels que le marbre et le bois massif. Ce mélange a permis de maintenir le caractère prestigieux de l’appartement tout en apportant une touche de modernité, soulignant le souci du détail dans le choix des matériaux et la réalisation des finitions.
Cette mission m’a permis de développer mes compétences techniques sur Archicad, tout en approfondissant ma compréhension des contraintes esthétiques et fonctionnelles d’un projet de rénovation d'envergure.


«Réhabilitation et conservation des moulures»
AVANT APRES



«Élévations techniques et modification des plans de cuisine»
Un projet particulièrement formateur m'a été confié :
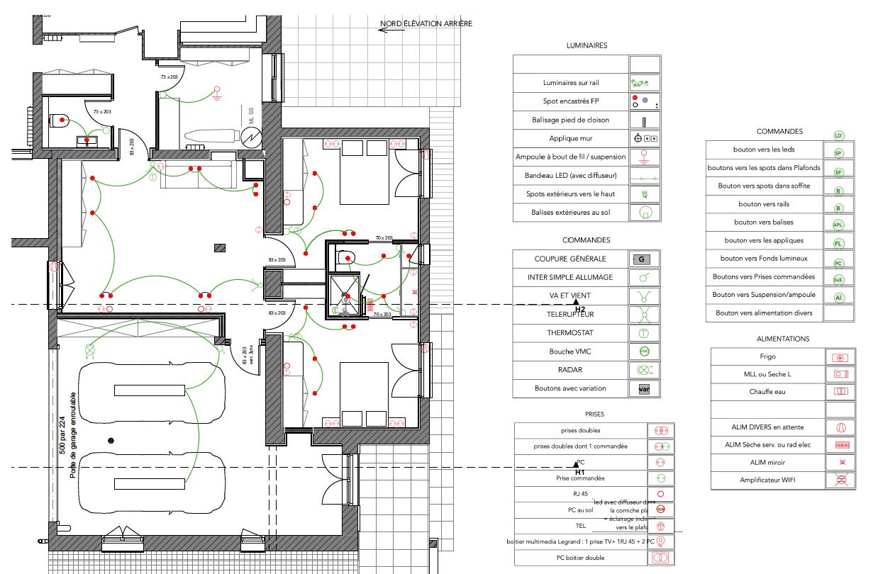
L’une des missions qui m’a été confié consistait à réaliser les élévations techniques de la cuisine pour un projet en cours. Ce travail avait pour objectif de représenter de manière précise les emplacements des installations électriques ainsi que la hauteur à laquelle se trouvent les différents équipements (prises, interrupteurs, luminaires, etc.).
L’élévation, qui offre une vue de face des ouvrages, permet de visualiser de façon claire la disposition des éléments. Cet outil est essentiel pour les entreprises intervenantes, car il leur fournit des indications précises sur les installations à réaliser, en respectant les hauteurs et les normes techniques spécifiques aux salles de bains.
J’ai également été impliqué dans la modification des plans de la cuisine en réponse aux demandes spécifiques des clients. Cela m'a permis de mieux comprendre l’importance de la flexibilité et de l’adaptation dans le processus architectural, où les attentes des clients évoluent régulièrement.
Cette mission m’a offert l’opportunité d'explorer différentes méthodes de travail et de développer mes compétences sur les logiciels techniques utilisés en architecture. J’ai dû perfectionner mes capacités à représenter des plans techniques tout en tenant compte des exigences fonctionnelles et esthétiques.
En parallèle, le projet m’a permis d’observer l’évolution des travaux, notamment au travers des modifications souhaitées par le client. Ces ajustements ont été une occasion d’apprendre à intégrer les retours clients de manière rapide et efficace, tout en conservant la cohérence technique et visuelle des élévations. Cette expérience a enrichi ma compréhension du processus architectural, de la conception initiale jusqu'à la phase d'exécution, et m'a aidé à mieux appréhender l’importance des détails techniques dans la réalisation d’un projet.

ÉLÉVATION CUISINE 1/25
élévation cuisine et îlot du projet «Providence» Logiciel utilisé : Archicad

«Repérage des sols»
Ce travail de repérage avait pour objectif principal d'optimiser la compréhension des espaces en fonction de leur usage et des matériaux qui allaient être utilisés. Grâce à cet exercice, j’ai appris à analyser les demandes des clients tout en prenant en compte les contraintes spécifiques de chaque zone. J'ai ainsi pu proposer les matériaux les plus adaptés en fonction des activités prévues dans les différents espaces. Par exemple, j'ai évalué des revêtements de sol résistants pour des zones à fort passage, ou des matériaux plus confortables et esthétiques pour des espaces de détente.
Cette mission m'a permis d'acquérir de nouvelles compétences, notamment dans l’évaluation des besoins techniques en fonction de l’usage prévu des espaces. Elle m’a aussi appris à anticiper les attentes des clients en matière d’aménagement et à choisir des solutions en adéquation avec les lieux et les activités qu’ils abritent. Enfin, ce projet m'a sensibilisé à l'importance de la cohérence entre l'esthétique des matériaux et leur fonctionnalité, contribuant à la réussite du projet global.
conception des plans de repérage des sols «Providence» Logiciel utilisé : Archicad
élévation de façade «Providence»
Logiciel utilisé : Archicad
«Élaboration des élévations techniques des salles de bains»
Dans un second temps, j'ai été chargé de réaliser les élévations techniques des salles de bains. L'objectif principal de ce travail était de fournir aux entreprises intervenant sur le chantier une vue précise de l'emplacement de chaque élément (sanitaires, mobilier, accessoires) afin de garantir une compréhension claire des proportions et des dispositions dans l'espace.
Ce type de travail nécessite une grande minutie et une attention particulière aux détails, car la moindre erreur dans les dimensions ou les emplacements pourrait compromettre la réalisation du projet.
ÉLÉVATION SDB MASTER 1/20
J'ai donc appris l'importance d'une précision rigoureuse pour éviter les malentendus ou les problèmes sur le chantier, tout en assurant une coordination fluide entre les différents corps de métier.
Cette expérience m'a permis de développer mes compétences techniques tout en améliorant ma capacité à traduire des concepts architecturaux en plans détaillés et exploitables sur le terrain.

IMPLANTATION : TOULOUSE
«Mon expérience sur un projet de rénovation de A à Z»
Au cours de mon stage, j'ai eu l'opportunité de prendre en charge un projet complet, allant de la conception jusqu'aux échanges avec les clients. Il s'agissait de la rénovation d'une maison de banlieue, ce qui impliquait non seulement de respecter certaines contraintes existantes, mais aussi de réorganiser l'espace pour répondre aux nouveaux besoins des propriétaires.
L'une des étapes cruciales a été la création du plan du rez-de-chaussée. Ce travail m'a permis de m'immerger dans la complexité de la conception architecturale tout en tenant compte des restrictions techniques et des attentes du client. À travers ce processus, j'ai appris à gérer les erreurs commises, à les corriger et à les utiliser comme des occasions d'amélioration. Par ailleurs, j'ai eu l'occasion de participer activement aux réunions avec les clients. Ces moments d'échange m'ont permis de comprendre l'importance de l'adaptation des plans en fonction des envies des propriétaires, tout en veillant à la faisabilité technique des modifications demandées.
J'ai également réalisé des vues photoréalistes du projet, afin d'aider les clients à se projeter dans l'ambiance de leur future maison. Cette partie du projet a été très enrichissante, car elle m'a permis de développer mes compétences en visualisation, en contrastant les différents espaces, et en aménageant ceuxci de manière logique et harmonieuse.
Ce projet complet a représenté une expérience formatrice essentielle, m'offrant une vision globale de la démarche architecturale, de la conception initiale à la présentation finale.

IMPLANTATION : TOULOUSE
Pour ma seconde mission, j’ai eu l’opportunité d’être confié à une mission concrète et enrichissante dans le cadre du projet Auzeville, qui a considérablement contribué à mon apprentissage professionnel. Cette mission consistait à réaliser les plans électriques ainsi que les vues réalistes des salles de bains, chambres et autres espaces intérieurs du projet.
J’ai ainsi appris à concevoir un plan électrique en respectant scrupuleusement les normes en vigueur tout en tenant compte des besoins pratiques des utilisateurs. L’emplacement des prises, interrupteurs et points d’éclairage devait être choisi avec soin, en veillant à leur fonctionnalité et à leur sécurité.
1 APD («avant projet définitif») est une phase préliminaire d’un projet se situant avant le permis de construire (PC). Les documents détaillent les caractéristiques définitives du projet ainsi qu’un bilan chiffré.
Le processus de sélection des emplacements des alimentations électriques a exigé une attention minutieuse, notamment dans des espaces comme les salles de bains, où les distances de sécurité par rapport aux points d’eau sont cruciales. De même, dans les chambres, j’ai dû prévoir l’emplacement des prises en fonction du mobilier et de la disposition des lits et bureaux, afin d’assurer une ergonomie optimale pour les futurs occupants.
Tous ces éléments ont ensuite été intégrés sur le dossier APD 1 ainsi que sur des planches de projet, afin de les présenter lors d’une rencontre avec le client. Cette étape finale a montré l’importance de la précision et de la clarté dans la communication visuelle d’un projet, facilitant ainsi la compréhension et la validation par le client.


plan électrique & nomenclature «Auzeville» Logiciel utilisé : Archicad

vues réalistes pour visualiser les emplacments des spots «Auzeville» Logiciel utilisé² : Archicad & Home By Me
@ateliermtoulouse
Ce stage m’a également offert l’opportunité de travailler sur la communication de l’entreprise via les réseaux sociaux spécifiquement sur Instagram. Le compte Instagram de l’agence était inactif en termes de contenu lors de mon arrivée, et de nombreux projets récents n’y avaient pas encore été partagés. Il m’a donc été confié la mission de relancer ce compte en publiant régulièrement des stories et publications, avec un projet mis en avant tous les jours.
Au cours de la phase d’expérimentation dédiée à la création et à la sélection des visuels, j’ai travaillé à l’affirmation et au développement d’une identité graphique unique pour l’agence à partir de leur logo actuel, notamment à travers le choix des couleurs, l’agencement des publications, etc. Ce processus m’a conduit à approfondir, ajuster, voire abandonner certaines propositions
Le compte ainsi conçu assure à l’entreprise une visibilité accrue auprès de clients potentiels et de futurs collaborateurs.





des visuels des projets pour les story
ensemble des publications que j’ai pu réaliser.










IMPLANTATION : TOULOUSE
«Réalisation des élévations détaillées des façades»
Lors de mon stage au sein de l'agence d'architecture, j'ai eu l'occasion de travailler sur les élévations détaillées des façades d'un projet. Ce travail impliquait de concevoir les détails de la clôture et du portail en respectant une contrainte spécifique : jouer sur les lignes de verticalité et d'horizontalité afin d'harmoniser l'ensemble de l'ouvrage.
Cette mission m'a permis de développer une compréhension plus fine des détails architecturaux. En intégrant ces éléments dans la conception des façades, j'ai appris à équilibrer les volumes tout en respectant les attentes du client et les contraintes techniques du projet.
«Création des points de vue pour les rendus photoréalistes»
J'ai également pu travailler sur la réalisation des points de vue pour les rendus photoréalistes d'un projet. Bien que je n'aie pas réalisé l'intégralité des vues, cette tâche m'a permis de mieux comprendre la manière dont un volume s'inscrit dans l'espace et l'importance cruciale du choix des angles de vue pour mettre en valeur les qualités d'un projet architectural.
En sélectionnant soigneusement les points de vue, j'ai appris à identifier les perspectives qui permettent de souligner les atouts d'un projet, qu'il s'agisse des jeux de lumière, des proportions ou de la relation entre les différents volumes. Cette expérience m'a permis de renforcer ma perception spatiale et ma capacité à concevoir des présentations



vues photoréalistes ( pas de ma conception ) «Balansa Neuf» Logiciel utilisé : Twinsmotion
IMPLANTATION : TOULOUSE
J’ai pu participer à la réorganisation du rez-de-chaussée d’une ancienne maison construite dans les années 1970. Ce projet de rénovation avait pour but de moderniser et d'optimiser l'agencement de l’espace tout en conservant certains éléments d'origine qui reflétaient le charme de l'époque. Ma mission consistait à repenser la distribution des pièces pour maximiser la fonctionnalité et la fluidité des espaces de vie, tout en répondant aux attentes des clients en matière de confort et de style contemporain. À partir des plans existants, j’ai proposé une nouvelle configuration qui a permis de mieux organiser les zones de circulation et d’intégrer des espaces de vie plus ouverts, comme la cuisine et le séjour.
Cette réorganisation a nécessité un travail minutieux sur Archicad pour créer des plans détaillés, prenant en compte les contraintes structurelles de la maison, ainsi que les possibilités d’amélioration offertes par la rénovation. Le projet visait à transformer la maison tout en respectant son caractère d’origine, notamment en préservant certains matériaux typiques des années 70, tout en les intégrant dans un design plus moderne.


«Conception du plan du rez-de-chaussée d’une maison des années 70» vues réalistes du séjour &

conception du plan RDC «Anas» Logiciel utilisé : Archicad
LA VIE EN ENTREPRISE PAGES 48
CONCLUSION PAGES 49
Je suis profondément reconnaissante pour tout ce que j'ai appris et découvert au cours de ce stage. Cette expérience m'a permis de gagner en confiance, notamment à travers la gestion des appels clients et des échanges avec les entreprises, ce qui m'a immergée pleinement dans le monde de l’architecture.
J’ai également eu l’opportunité de visiter des chantiers, ce qui m'a permis de mieux comprendre la réalité du terrain et d'observer directement le travail des équipes sur place. Cela m'a offert une perspective plus concrète du processus architectural, de la conception jusqu'à la réalisation.
De plus, j’ai eu la chance d’être impliquée dans la prise de contact avec les clients et la rédaction de comptes rendus de réunion, un aspect essentiel pour assurer le suivi des projets. Ces expériences ont enrichi ma formation en me donnant une vue d’ensemble du métier, alliant la théorie à la pratique et renforçant ma capacité à gérer plusieurs aspects du projet en parallèle.
J’ai eu l’opportunité de toucher à tous les aspects du métier au cours de mon stage, que ce soit la conception, les relations clients, la gestion des chantiers, ou encore la réalisation de comptes rendus. En me confiant des projets variés, l’équipe de l’Atelier M m’a permis de développer mes compétences et d’acquérir une vision globale de la profession. Je leur suis particulièrement reconnaissante pour la confiance qu’ils m’ont accordée tout au long de cette expérience, ce qui a grandement contribué à mon apprentissage et à mon épanouissement professionnel.
« Les apports de cette expérience en entreprise »
Le stage que j'ai eu l'opportunité de réaliser au sein de l'Atelier M été une expérience enrichissante qui m'a permis de me rapprocher du métier d'architecte, que j’aspire à exercer à l'avenir.
Intégrer cette équipe dynamique et accueillante a été une chance inestimable. Dès le début, j’ai été chaleureusement guidé et encadré par des professionnels qui ont su me faire confiance en me confiant des missions significatives. Leur retour constructif sur mon travail m'a permis de progresser et de développer des compétences concrètes. Cette immersion m'a appris à collaborer efficacement avec une équipe, à respecter des délais serrés et à faire face aux imprévus et aux contraintes inhérentes à tout projet architectural.
Au-delà des compétences techniques et des connaissances acquises, ce stage a également été une expérience humaine précieuse. L’esprit d’organisation, la curiosité et la persévérance qui règnent au sein de **l'Atelier M** sont des valeurs que je souhaite cultiver dans mes futurs projets. Cette expérience m’a non seulement confirmé dans mon choix de m’orienter vers l’architecture, mais elle a aussi renforcé ma motivation à explorer les multiples dimensions de ce métier passionnant.