Architectural Portfolio 2022- Feb2024

Page 1

Timothy Anderson Portfolio 2022-2024 1
Exchange culinary school is about exchanges West Midtown’s growing community and worlds converging on site 950 West Marietta St. Pedestrian traffic from the diverse groups passing the site exchanges with an architectural language that responds to physical and non-physical residual industrial identity and constructive method. These dynamic are allowed to enter the architecture and erode established volume of the space creating complex interactions between different spaces and inside-outside relationships.
2
The Exchange Culinary School
(Framing Device, 2022)
1 2 3

Lookout Retreat

Pg 04-09

Pg 10-13

Pg 14-17

CONTENT
Fragmented Landscape
The Exchange Culinary
3 1 2 3

Fragmented Landscape

Location: Atlanta Botanical

Gardens, Ga

Housing conservatories for endangered plant species; the new entrance to the Atlanta Botanical garden is presented as a fragmented ecosystem. Glass containers house the endangered plants, fragmented through the constructed landscape.

Arch Year 4 Conceptual Model
4
Vignette Series
5
Life Safety Floorplan Program 6
Site Axon Visitor’s Map Dynamic lines attract from the beltline Perpendicular lines are introduced to direct passerbys The linework folds and facets, increasing the number of corners and explorable space
7
Site Section
Exploded Axon 8
Planter Detail
Wall Section
B
1 9
Roof Detail Section
2

Lookout Retreat

Location - Jefferson Washington

National Forest, SC

Lookout Retreat is Located within the national radio quiet zone. Limiting the use of cellular signals, the zone attracts large satellites that thrive in silence. Congress has historically established national zones and parks to make accessible the selfevident beauty of the American natural landscape. Lookout Retreat illuminates the same sublime—the sublime found in the interactions between digital, manmade, and natural terrain.

Introduction of structural datum. Spaces are seperated based on static and dynamic interations with nature

Walls dictate internal and external circulation, reaching out and directing guests to and from the surrounding forest.

The entity reaches up to illuminate the view of the natural and digital terrain. Static areas are lowered.

The wall brings growth from the forest into the space. Static areas follow the natural terrain

10
11
Site Section 12
Floorplan One Floorplan Two East Elevation Section B West Elevation 13

The Exchange Culinary

The Exchange Culinary School

The Exchange culinary school is about exchanges between West Midtown’s growing community and culinary worlds converging on site 950 West Marietta St. Pedestrian traffic from the diverse groups passing the site exchanges with an architectural language that responds to the physical and non-physical residual industrial identity in a deep and constructive method. These dynamic forces are allowed to enter the architecture and erode the established volume of the space creating complex interactions between different spaces and inside-outside relationships.

Location - West Midtown Atlanta, Ga

The Exchange occurs between West Midtown’s growing community and culinary needs, converging on West Marietta St. Constructing itself from the residue of the region’s industrial identity, the community and culinary academy Exchange their knowledge and specialty through market, demonstration, and cultivation. The interior and exterior of the space are thus eroded by this interchange, creating a complex spatial field, map, exchange.

Outdoor Market Visualization
14
Conceptual Model
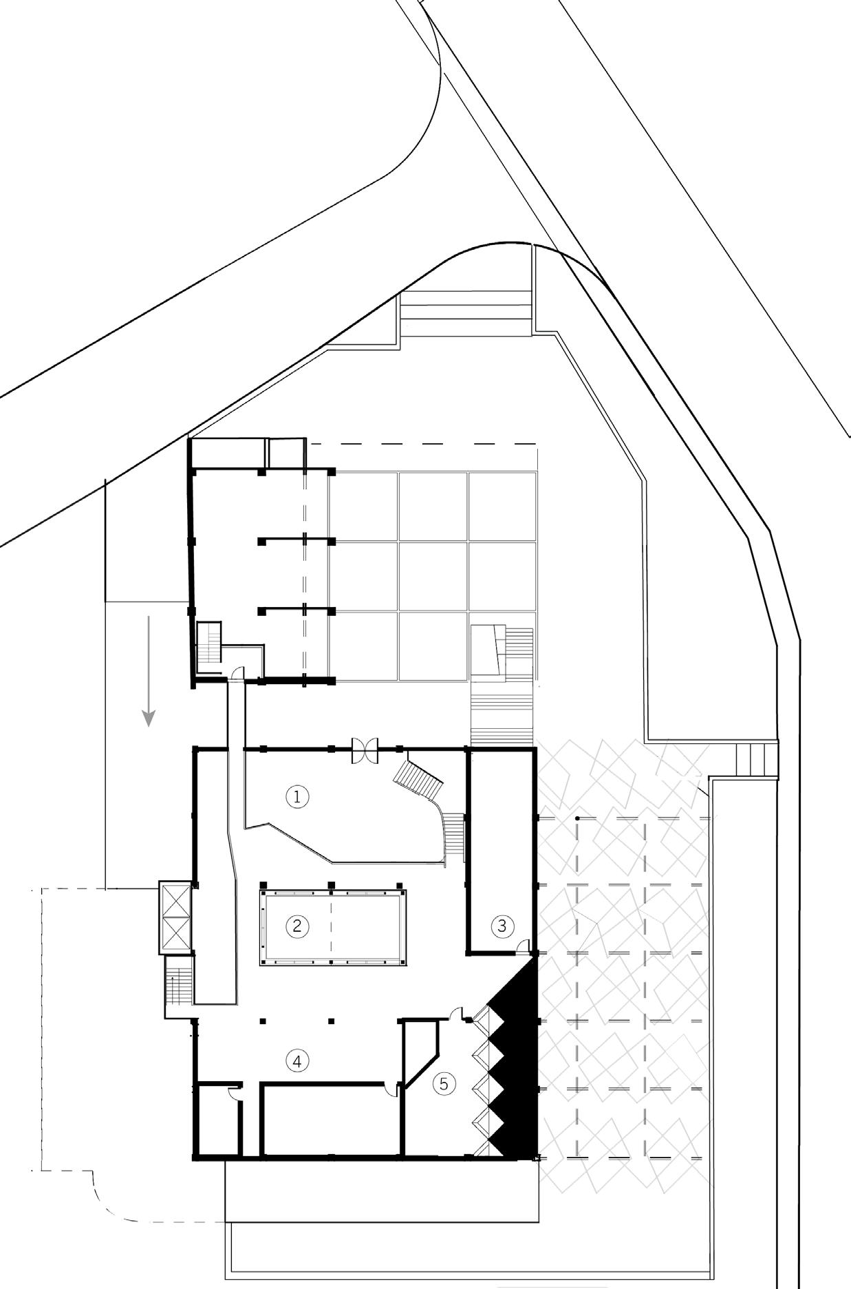
Outdoor Community Alcove Fourth Floor 1/32”=1’ View From Flexable Resturant Space Ground Floor 1/32”=1’ Lobby 1 Demonstration Kitchen 2 Storage 3 Community Areas 4 Outdoor Ampitheatre 5 Retail 6 Auditorium 7 Dishes 8 Classroom 9 Lobby 10 11 12 Library Lounge 5 View from community alcove 7 8 9 10 11 12 Eroding The Implied Volume Planar interuptions bring in light and further complicates the interior and exterior Community 5 Outdoor Community Alcove Fourth Floor 1/32”=1’ View From Flexable Resturant Space Ground Floor 1/32”=1’ Lobby 1 Demonstration Kitchen 2 Storage 3 Community Areas 4 Outdoor Ampitheatre 5 Retai 6 Auditorium 7 Dishes 8 Classroom 9 Lobby 10 11 12 Library Lounge 2 5 View from community alcove Section A 1/16”=1’ 7 8 9 10 11 12 Flexable Restaurant Space
Amphitheatre
Floor Fourth Floor Amphitheatre 15
Outdoor
First

Reconstructing Residue of Indistrual Identity

Reconstructing

Demonstration Kitchen

oding The Implied Volume

The demonstration kitchen provides cooking demonstration classes for the public It is inserted into the community warehouse space. This facilitates a collaboration bet community and chef.

The demonstration kitchen provides cooking demonstration classes for the public It inserted into the community warehouse space. This facilitates a collaboration bet community and chef

Section

Section Progression Section 1 2 oding The Implied

Section Progression 1

Planar interuptions bring in light and further complicates the interior and exterior 3

in

Site Axon 1/32”=1’
Section
1 2 Area
The Implied Volume Planar
and
complicates the interior and exterior Community 5
Volume
Progression Section Section
Eroding
interuptions bring in light
further
3 4 3 Section Progression Section Section 1 2
Section
Section
Site Context
Volume Planar complicates
Outdoor Community Area 4
Eroding The Implied
5
Community Area
Section Progression Section 1 2 Outdoor
Eroding
Volume
Community 5
Eroding The Implied
Planar interuptions bring
light and further complicates the interior and exterior
3 4
Section Progression Section Section 1 2 16
3

Culinary Warehouse

Industrial Lift

Typical warehouse lifts are re-contextualized for use in the culinary school. They allow for quick and efficient movement of culinary tools between kitchens.

Flexable Restaurant

The flexible restaurant can transform between a dining area and a community activity space. Much like the dilapidated warehouses of West Midtown, the exchange between the interior and exterior causes a new space to be created.

Kitchen

The demonstration kitchen provides cooking demonstration classes for the public It is inserted into the community warehouse space. This facilitates a collaboration between community and chef

Demonstration Kitchen

The demonstration kitchen provides cooking demonstration classes for the public It is inserted into the community warehouse space. This facilitates a collaboration between community and chef

The demonstration kitchen provides cooking classes and exhibitions with the community. It allows twoway collaboration and learning between the culinary school and the community.

he demonstration kitchen provides cooking demonstration classes for the public It is inserted into the community warehouse space. This facilitates a collaboration between community and chef

Dual Ampitheatre

The dual amphitheater allows for the interchange of cultural, technical, and intangible knowledge between community and culinary expressions.

Eroding The Implied Volume Planar interuptions bring in light and further complicates the interior and exterior Community 5
Resturant
Lift 1 2 4 Eroding The Implied Volume Planar interuptions bring in light and further complicates the interior and exterior Community 5
Demonstration Kitchen Flexable
Industrial
Resturant
Lift 1 2 4 Eroding The Implied Volume Planar interuptions bring in light and further complicates the interior and exterior Community 5
Demonstration Kitchen Flexable
Industrial
2 3 4 3 Section Progression Section Section 1 2
Demonstration
Flexable Resturant
Community Warehouse Outdoor Community Area Culinary Warehouse Community Warehouse Community Alcove
Eroding the implied volume
17 Interupting the scale through inside and outside exchange
706-333-0864 timothyanderson068@gmail.com CONTACT 18 Thank You

Turn static files into dynamic content formats.

Create a flipbook
Issuu converts static files into: digital portfolios, online yearbooks, online catalogs, digital photo albums and more. Sign up and create your flipbook.
Architectural Portfolio 2022- Feb2024 by Tim Anderson - Issuu