Skip to main content

TIMOTHY ARCHITECTURE PORTFOLIO 2

Page 1

ARCHITECTURE PORTFOLIO [TIMOTHY TAITT]

The Barbados Community College 2020-2022

ADDRESS: Arthur Seat St. Thomas

TEL: H(246) 425 0997/ C(246) 235 8336

E MAIL: timothytaitt0@gmail.com

My name is Timothy Taitt , I am currently working towards an assoiates degree in the applied science in architectural studies at the Barbados Community College. I am a polite and punctual young man who enjoys working with others but who can also work independently when required. I always make an effort to deliver quality work on time. I also have the flexibility to adapt to changing circumstances.

The Lester Vaughn School 2014-2020 Sharon Primary School 2007 - 2014

CSEC Certificates

•Subject

• Mathematics

• Arts and craft

• Electronics

• Building technology

• Technical drawing

• Physics: grade

• English: grade

Associate Degree In Applied Science In Architectural Studies
• Geography
Grades III II II II II III III I Year 2019 2019 2020 2019 2019 2020 2020 2020 PERSONAL PROFILE ACADEMIC BACKGROUND SKILLS
• Auto-CAD • Sketch up •
Adobe In Design
Adobe Photo-shop
Hand renders

SERVICES

• Outstanding Time Management .

• Ability to be a Good team Player.

• Ability to have Innovative Ideas .

• Ability to be Self-Motivated and Proactive .

• Excellent Communication and Interpersonal skills

Part-time skid steer operator

Excellent Work In CSEC English Language

Credentials: Minister New Testament Church of God

Architectural Technician Maurice A. Clarke Architecture Inc.

TEL: 246 259 7981

E MAIL: bigcmrt@gmail.com

Credentials: Tutor, Architeccture Studies Program Barbados Community College

TEL:426-2858 Ext 5377

E MAIL: marisha.browne@bcc.edu.bb

Under 15 cricket team 2014-2017 Apprentice/ FCT BOBCAT & FREIGHTING The Lester Vaughn School The Lester Vaughn School Cleveland Trotman
BEHAVIORAL COMPETENCIES WORK EXPERIENCE ACHIVEMENT ACTIVITIES
Ms. Marisha Browne
REFERENCES

PORTFOLIO INTRODUCTION

My name is Timothy Taitt, The following collection of works has been influenced by my own experience from projects completed during my studies at The Barbados Community College, as well as my own private research and understanding. Putting together this presentation has been an absolute delight for me. Thank you for taking the time to read this.

4

02 03 04

5
TOPIARY SNOWBOARD SHACK B.O.A.T.S. HALO HOME 6-19 20-25 26-35 36-45 SKETCHS/ PHOTOS 46-47
01

HOUSE FOR A HORTICULTURIST TOPIARY

Class: Architectural Design 03

Advisor: Marisha Browne / Abigal Pilgrim 01

Presentation Date: January 26th 2022

We were requested to design a horticulturist’s home, retail store, event garden, and shade house. Gardeners who produce flowers, fruits, ornamental trees, and lawns are known as horticulturists.

I chose to concentrate on landscape horticulture, which is how the concept of topiary came about. I chose to integrate large hedges of various shapes and sizes, green walls, and water features like ponds into my design after doing research for it.

6
8
2
SITE PLAN
4. 3.
KEY
1. 5 1 . RETAIL STORE 2. CAR PARK 3. ENTERTAINMENT GARDEN 4. HOUSE 5. SHADE HOUSE

1. GARAGE

2. BEDROOM1

3. MASTER BEDROOM

4. BATHROOM1

5. BATHROOM2

6. LIVINGROOM

7. KITCHEN

8. DINNING ROOM

9
KEY
GROUND FLOOR FIRST FLOOR
8. 1. 3. 3. 4. 2. 7. 5. 6.
HOUSE

SITE ELEVATION

10
11
12 SECTION WALL SECTION

WEST ELEVATION

13
NORTH ELEVATION

EXTERIOR PERSPECTIVE INTERIOR PERSPECTIVE

14

RETAIL STORE

KEY

1. RETAIL AREA

2. FLOWER STORAGE

3. COLD STORAGE

4. MALE BATHROOM

5. FEMALE BATHROOM

15
SECTION
FLOOR PLAN
4. 5. 2. 3. 1.

SOUTH ELEVATION

EAST ELEVATION

16

EXTERIOR PERSPECTIVE

17

ENTERTAINMENT GARDEN

18
SECTION
FLOOR PLAN

SHADE HOUSE

19 SOUTH ELEVATION
FLOOR PLAN

2D HOUSE SNOWBOARD SHACK

Class: 2D Communication

Advisor: Samuel Bowen 02

Presentation Date: December 21st 2020

For this project, we were tasked with re-purposing a blank building that had been provided to us.

I made the decision to turn this building into a snowboarding cabin in the Arctic region. I chose exposed concrete for the external walls of the building, along with wooden floorboards and a wooden frame for the deck.

20
21

GROUND FLOOR

FIRST FLOOR

22

SOUTH ELEVATION

EAST ELEVATION

23

EXTERIOR PERSPECTIVE

24
INTERIOR PERSPECTIVE

EXTERIOR PERSPECTIVE

TINY HOME B.O.A.T.S.

Class: Architecural Design 02

Advisor: Marisha Browne / Rianne Greaves

Presentation Date: May 11th 2021

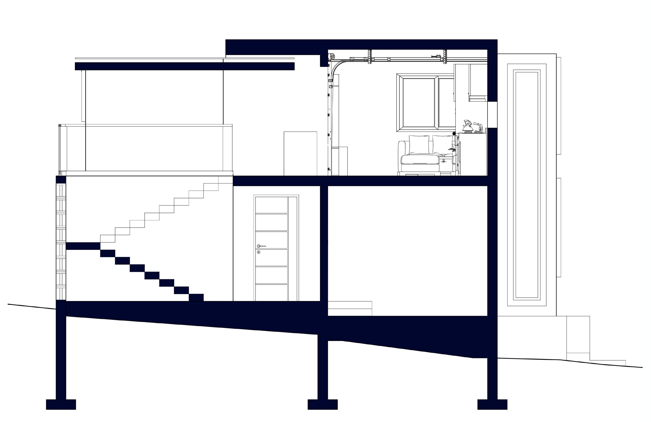
For this project, we were requested to create a 400 square foot tiny house for a fisherman on Barbados’ west coast. The location is in Weaton, St. James, between Braddie’s bar and the Millie Ifill fish store. The appreciation of boats among fishermen was an inspiration for my idea. The building was designed to mimic a boat; to do this, a curved wooden frame and oak siding on the external walls were used.

26
03

KEY

1. ROAD

2.TRESS

3. COCONUT TRESS

4.WIND DIRECTION

6.SEA NOISE

7.VEHICLE NOISE

9.LOW POINTS

28
5. BAR NOISE 8. EXISTING BUILDINGS
8 3 4 7 2. 5 6 9 10
10. HIGH POINTS

MODELS

29
30
SECTION
FLOOR PLAN

EAST ELEVATION WEST ELEVATION

SOUTH ELEVATION

31
32 WALL SECTION

INTERIOR PERSPECTIVE INTERIOR PERSPECTIVE

33

EXTERIOR PERSPECTIVE

34
35

FUNERAL HOME HALO HOME

Class: Architectural Design 04

Advisor: Marisha Browne / Samuel Bowen

Presentation Date: June 2nd 2022

04

We were tasked with creating a structure that could be used for both memorializing the deceased and honoring their life. location Coral Ridge Christ Church. For my concept, I selected the nimbus/halo. The structure was built in the form of a disk, with tall glass pivoting windows along the exterior for natural light and ventilation.

36
38 SITE
PLAN
39

PUBLIC AREAS

SEMI PRIVATE AREAS PRIVATE AREAS

40
1. PRIVATE VIEWING ROOMS 2. PUBLIC BATHROOMS 3. COFFIN STORAGE / TRANSFER CHAMBER 4. ATTENDENCE ROOM 5. VESTRY FOR CLERGY 6. PRIVATE BATHROOMS 7. LOBBY 8. CHAPEL 9. OFFICE/ADMINISTRATIVE SUITE 10. EMBALMING ROOM
FLOOR PLAN
1. 1.
5. 4.
7
2.
6. 10. 3. 8. 9.

NORTH ELEVATION

WEST ELEVATION

EAST ELEVATION

41
SOUTH
ELEVATION
42
SECTION
INTERIOR PERSPECTIVE
43 INTERIOR PERSPECTIVE

EXTERIOR PERSPECTIVE

44
45
46
47
[THANK YOU]

Turn static files into dynamic content formats.

Create a flipbook