INTERIOR DESIGN AFRICAN LANE LIVING ROOM VISUALIZATION





![]()





300depthtvshelf
300depthfloatingshelf
25mmthickboard
300mmdeepshelve
CUSTOMMADE SOFACHAIR
COFFEETABLE
CUSTOMMADE
INTEGRATED DININGTABLE DINING CHAIRS





VINTAGELOUNGE
TEATABLEITALIAN
MINIMALISTROUND
COMBINATIONSMALL











600d m/w
ROPE LIGHT
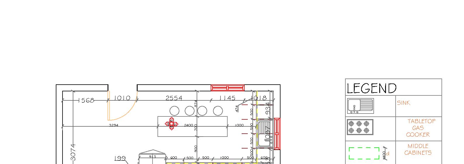
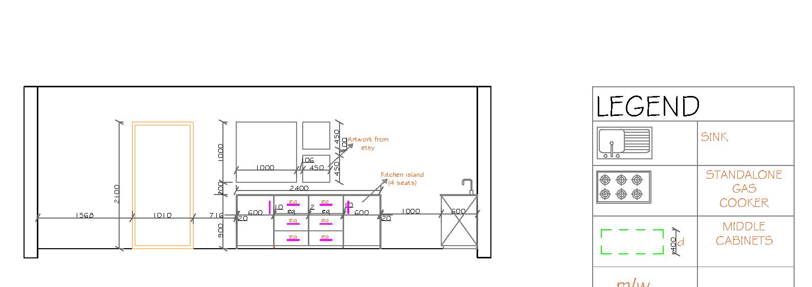
ELEVATION VIEWS
DOOR HANDLES(34)
Ropelight
20mmMarble countertop
Ropelight










