Portfolio fatima nafeth

Page 1

PORTFOLIO

FATIMA NAFETH

CONTENT

Website : https://www.linkedin.com/in/fatimah-abujaber-585280247/ Mobile : 0790383926

E-Mail : fatimahabujaber@gmail.com

Thispersonalportfoliocontainsselectedworks from 2017 until 2022 , from different subjects such as design studios , electives and other subjects that are related to the designing process , through these projects . Is seeked ultimatesolutionsthroughwhichtheuserscan satisfy their needs taking into consideration different aspects such as : environment and culture . Adopting a rational mentality and it with theory may lead that goes beyond being ombining to a smart solutions just a building wherecertainfunctionsandactivitiesaredone

2. Abdali Tower in Amman

The project is located in downtown Amman, separating the old houses and the new towers

1. AMMAN GATE (museum

Culture center , community )

The project is a visual tour of all civilizations to introduce visitors to the tourist places in Jordan, and it has tourist, economic, cultural and educational aspects

4. Residential project in Amman

Consists of various types of apartments, single apartments, floors, duplexes.

3. Commercial building in Amman - Mecca Street

It is a ground floor car showroom and the upper floors are offices

6. Two villas in Amman - Dabouq

The design of two separate villas, each villa on a street of the same area.

5. Ibn Al-Ameed Primary School in AmmanShmeisani

The primary school was linked to the secondary school, taking into account their separation indirectly because of their ages

2

DATA OF BIRTH : 18 , jun , 1999 PLACE OF BIRTH : AMMAN MAJOR : ARCHITECTURE MOBILE : 0790383926 E_MAIL : fatimahnafeth@gmail.com

Self - motivated , hardworking architecture student who is passionate for delivering outstanding solutions centered around client needs . A positive attitude and diligence displayedwhenfacedwithvaryingtasksthrown at me Resourceful and committed towards giving my best while being oriented around high result Seeking a career that revolves around innovative thought and creative problem solving within that a firm would benefitfrommyeducationandabilities,while attainingmycareeraspirationsandambitions

FATIMAH NAFETH
JABER
ABU

EDUCATION

( 2015-2017 ) 52 school in Saudi Arabia _ Riyadh _ high school ( 2017-2022 ) Al-Zaytoonah University of Jordan _ Bachelor degree

EXPERIANCE

( 2019 ) Architecture - Site Training . ( 2020 ) Architecture - Honorable rock office . ( 2021 ) Architecture - Freelancer .

SOFTWARES

SKILLS

LANGUAGE : Arabic (Native ) , English ( Very Good ) DIGITAL IMAGE AND RENDERING : V-Ray and Adobe Photoshop

VISUALIZATION MEDIA : Free hand sketching and model making

LINKS

https://www.facebook.com/profile.php?id=100009485667994

https://www.linkedin.com/in/fatimah-abujaber-585280247/

4

1. Amman gate Graduation Project

Location : Amman – Airport street .

Land area : 30,800 m2

Project area : 16,000 m2

concept plans

keyword

Heratage , Link , hiaraki , Platform TimeLine Civilizations

The idea of ​​the experiment for the axis from the columns street in Jerash

he idea of the time line to reflect the civilizations that passed through Jordan

Form Generation

Square buildings of Amman architecture
Site Area : 30.800 m2

Structure

7 Site plan
8 sections

East Elevation

9
Elevations
10 3D shots
11
12
13

2. GIH Tower (mixed use )

Location : Abdali Tower in Amman .

Function : Offices ,clinic , hotel , VIP hotel , and residential . no. of floors : 30 floors . The project is located in downtown Amman, separating the old houses and the new towers.

14 plans

Core and shell

is a design method commonly used in commercial office and towers buildings today. ... The method refers to a process where the interior core structure of the building and the exterior building envelope are fully designed as the first phase of the project.

Floor structure Cross bracing load trusses Parametric design 15 Rectangular wall
Type bracing
Structure system
16
Elevations
17 3D shots

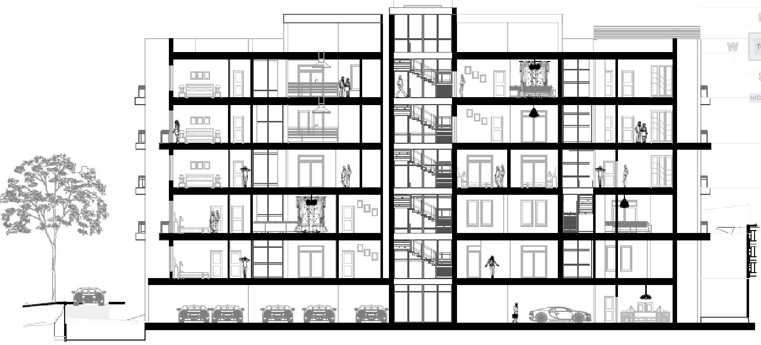
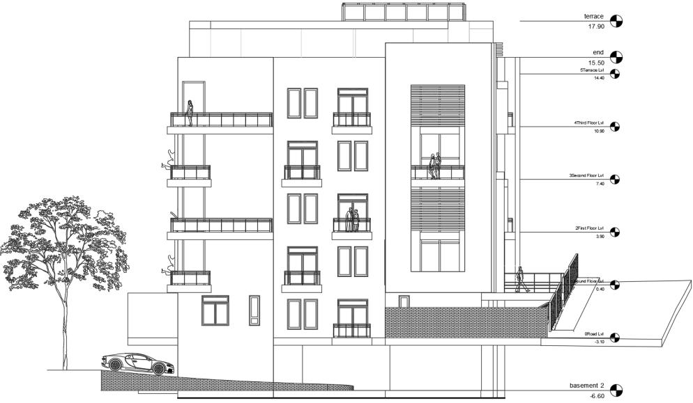
4 Residential project

Location : Jordan - Amman

The area of one apartment: 165 m2

Floor Area : 753 m2

Consists of different apartments, singles, floors, and duplexes

19 sections
20
Elevations
21 3D shots
Interior 22

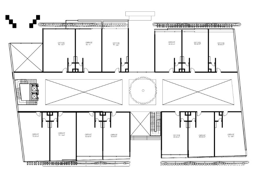
3. Commercial building

Location : in Amman - Mecca Street

Area : 1,050 m2

It is a ground floor car showroom and the upper floors are offices

Basement floor plan

It consists of parking, services

Ground floor plan

It consists of two entrances on the main street, an entrance to a car showroom, and an entrance to a side building

First floor plan

The first, second and third floors of the complex are open with two double volume openings to integrate the gallery with the rest of the floors and to be viewed from above

Horizontal Circulation Offices
`
WC Vertical Circulation
24
25 sections
Elevations 26
27 3D shots

5. Ibn Al-Ameed Primary School

Location : Amman –Shmeisani .

Area : 2,035 m2

The primary school was linked to the secondary school, taking into account their separation indirectly because of their ages.

27
Site Plan 29

sketches

Elevations

North elevation

West elevation

East elevation

South elevation

30
sections
29
30 3D shots
31 3D shots

6. Two villas in Amman - Dabouq

Location : Amman –Dabouq

Area : 320 m2

Floors : 3 Floors

The design of two separate villas, each villa on a street of the same area.

33 3D shots
34
3D shots
35

sections

36
Landscape Villa Project
37 3D shots

FATIMA NAFETH ABU JABER

00962 790383926 fatimahabujaber@gmail.com

https://www.facebook.com/profile.php?id=100009485667994 https://www.linkedin.com/in/fatimah-abujaber-585280247/

Turn static files into dynamic content formats.

Create a flipbook
Issuu converts static files into: digital portfolios, online yearbooks, online catalogs, digital photo albums and more. Sign up and create your flipbook.
Portfolio fatima nafeth by Fatima Nafeth - Issuu