Tiancheng's portfolio

Page 1

ARCHITECTURE PORTFOLIO TIANCHENG REN

CONTENT Bachelor Work P1 IDYLLIC COMMUNITY NEST DURING MIGRATION GLUE BETWEEN CITY AND VILLAGE REOBTAIN THE LOST P6 P9 P14 Master WorkCCDI Work P21

Urban Design 0 1 Individual work ,academic

Location:Tianjin,China

2018.6 (year 5) Jieli Sui, suijieli@126.com

IDYLLIC COMMUNITY

Urban planning of Huaxin site

This project aims to explore a new community mode which would solve the problems between city, specific site and resident. I create a new modern community living mode by method of analogy with types of traditional quadrangle dwellings and modern residence in Tianjin. Spaces which are still significant for accommodating behaviors in modern life would be reserved and transformed from horizontal form to vertical form.

Site Location

The site has a long history with a function of factory starting from 1916 and now there is only 1 building of the factory left which has been the landmark of the site.

Site Analysis

Located near the north of site, the buildings are traditional multi-storey residential which are usually no more than 30M.

The elderly make a large proportion of the whole people living around the site.

Too many older people indicate the unbalanced population structure of the site.

History of site

Vanguard is the only market near the site and by survey we know the scale of it can meet the needs of residents living around in the future.

Located near the east of site, the buildings are modern multi-storey residential which are usually more than 70M.

1
China Tianjin City Hebei Area
Wanliucun Street Jinzhonghe Street

The concept is from traditional quadrangle dwellings in which the space is put horizontally.

Site Analysis

Public Space of First Hierarchy

1946 creative industry center, Beining park and Wangchuanchang park are three main elements that effect two axes of the site. The creative center includes some studios and shops which producing and selling creative goods.The 2 parks are the places where adjacent residents usually exercise.

The units can be changed according to residents' home condition. The buildings are specially designed in ord to change the house type into the following three types.

Alternative Units

The initial apartment type has only one column inside which is convenient for residents to transform it to the following three types as they prefer.

With a big dining room and living room, it is suitable for a single person or a couple to have party with friends and a big cloakroom offers huge space to store clothes.

Dining room is changed to bedroom which is prepared for child and cloakroom inside main bedroom is changed to washroom that makes it easy for couple to use.

By analysing the space topology in traditional village, I find it possible to put them vertically which would provide more public space and meanwhile save land source.

Study is transformed into bedroom which is provided for child and the south bedroom is used for the elder to live in.

Public Space of Second Hierarchy

The partition walls are made of gypsum which is light and covenient in the process building.

Gypsum partition Steel structure layer Mortar layer Mortar layer Acoustic panel
In order to save land, the apartments are put vertically rebuild connection with different homes by public space vertical traffic are used to connect public space and living space
extend living space to gain more solar light and adjust the size of public space to fit it assemble residental space and public space together publice space is used to connect different homes and buildings space atribute put vertically traditional village stage Public space of traditional village form the new residental mode space attribute traditional Quardrangle Dwelling 2
SITE SITE SITE

A new square is set up in the south of the preserved building as space with centrality letting people gather to visit the reserving building.

Five Elements of Urban Design

The community contains vertical space with several functions and it starts a new mode that preserves traditional neighborly relations in modern life.

Section of the Site

Solar panel and Wind turbine are installed on the roof to get clean energy.

Large amounts of outdoor terraces offer residents much space to grow their favorite plants.

Bridge of 3 floors high enhances the connection between the reserving building and the new square. It also connects the past and nowadays of site.

The floating bridge acts as a role that connect buildings and provide people with good view of city.

3
Generation Diagram
Site Plan

Rain Collecting System

View of Main Street

Auxiliary functions offered here provide people with functions needed by life of high quality.

Functions of leisure added in the existing building brings it more meaning in the modern life.

Homes with much public space offers residents many chances of communication.

Business center is a place where the young work together. It serves not only to the site but to the city.

Vertical Corridor is a floating traffic system that separates the road of walking and driving.

Planting on the floating land is a main feature of the design and residents would enjoy reverting to the past planting time

The main street of the site offers a fast way to cross the district and people can nearly see all of the symbolic scenic spots.

Vertical Public Corridor Energy Strategies

Layers of Plan

Two types of green energy are applied in this project which are solar and wind energy. The water used in the planting comes from rain collected in the site.

4 Site Plan Space Topology

The tower extends sight in the square and visitors can get clear view of the reserved building and the interface of city.

Car-free floating bridges act as a kind of organic connection between buildings.

5
Sight Analysis
View of Corridor View of Corridor View of Corridor View of Corridor View of Corridor View of Square View of Buildings View of Buildings
View of Square Axonometric Drawing
View of Corridor Entrance

Architecture Design

Group work (Digital technology prize)

Team leader, responsible for design

Location:Panjin,Liaoning,China

2016.9 (year 3)

Weijun Lin,7728911@qq.com

NEST DURING MIGRATION

Design of birds observation tower

The site of the project locates in the red beach in Panjin where there are lots of birds migrating in summer.I create the concept of NEST which not only serves as a temporary resting area for birds but also act as a role of observation tower for people. The form of the building comes from frustum of a cone in which visitors would have a panorama of the site and the building's shape is modified into hyperbola in order to get sufficient ventilation.

Underground path is used here to connect road and tower

Perspective of entrance

Because of destruction to Suaeda glauca by human, the amount of it has been decreasing since the last century and the ecosystem of the site is fragile now which means it is in badly need of protection.

0 2
6
,academic
Existing Ecosystem Migratory Route Site Location
Concept Sketch
Axonometric Drawing
Site Analysis

The site locates at the central of the Crescent Bay which is representative landscape around the place. We make the site a circle for the sake of responding to the figure of the Bay. The roof offers a place for migratory birds to build their nest or take a rest temporarily.

7
Site boardary
An interactive facade system according to the solar azimuth is added to the tower. The cylinder is compressed into a figure of hyperbola in order to improve the ability of ventilation.
The cylinder is 50M high offering a full view of the red beach and birds.
1F
GF 2F 3F 4F 5F Mezzanine 3 Mezzanine 2 Mezzanine 1 -1F Generation Diagram
Spring Equinox 3.21 13:00 8 View of Terrace View of Terrace View of Exhibition 10mm Angle Steel lifting-sliding casement triple glazing in oiled larch frame 20mm vertical larch boarding 20mm vertical larch boarding 35mm composite wood boarding 60mm EPS thermal baffle 35mm composite wood boarding 35mm composite wood boarding 35mm composite wood boarding 400*400mm reinforced concrete column 200*400mm concrete beam 50mm composite wood boarding 300mm timber box-element floor 30mm battons; 30mm counterbattens wind barrier 30mm battons; 30mm counterbattens wind barrier 50mm Pipe Truss Sheet which can be opened and closed Spindle 10mm Iron Plate 10mm Universal Beam 50mm Steel Handrail 4-way Spider M5.5*45 Self-tapping Screw
Angel of Spring Equinox Angel of June Solstice Angel of Winter Solstice
Light Analysis of 1st Floor Light Analysis of 2nd Floor Light Analysis of 3rd Floor Light Analysis of 4th Floor Light Analysis of 5th Floor Light Analysis of 6th Floor
Sunlight Interactive Facade with Dynamo

Architecture Design

Location:Yantai,Shandong,China

2017.6 (year 4)

Jieli Sui, suijieli@126.com

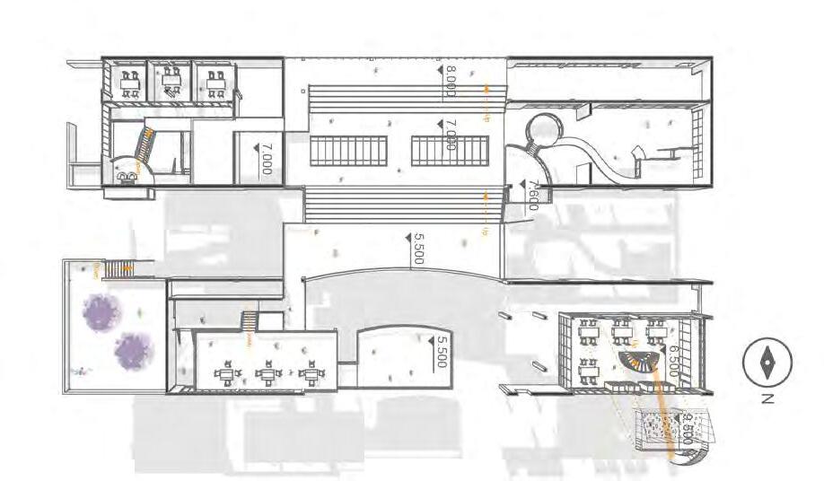
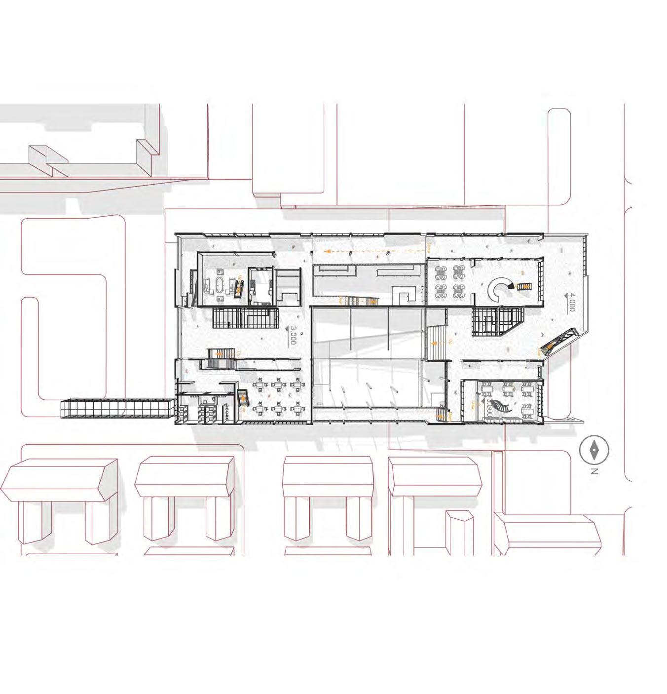
GLUE BETWEEN CITY AND VILLAGE

Market design with multiple functions

With the rapid process of urbanization in china, VILLAGE IN CITY has become a common phenomenon and it has brought people many problems including the lack of supporting facilities and some other kinds of inconvenience. The project locates near a village named SUOCHENGLI in Yantai city and by rebuilding the market there I want to establish a building that not only offers the function of market but also provides public space.The market would play an important role in the city.

Site Location

Site Analysis

The advantages of the site make it have potential to be a symbolic place in the city.

Site Pictures

Features of Site

Site History

There is a long history of Suochengli in which the site locates and it is the origin of Yantai city.

0 3 Individual work
Lots of traditional buildings existing near the site.
Warehouses located in the sides of site reduce the possibility to pass through the site Passively formed parking area 3 old houses left in site, now used as vegetables warehouses Unordered functional partition Traffic around the site is now out of order.
,academic 9
Problems near Site Site Analysis
China Shandong Yantai

Five layers in vertical direction to make more space

Adding vertical traffic space and trash pipeline

Street space extended into market by ramp

Adding space as public stage with view of whole area

Ramp connecting 1F and -1F

Unblocked in four directions

Forming an open space surrounded by four blocks

Underground parking space Nature

Adding space for planting

Four functional blocks on 2F

Ramp connecting GF and 1F

Four functional area on 1F

resource is used in the project to generate elements that people need in daily life. 10 Strategy Function Division Generation Diagram

Manual model process, considering the location of each function.

The market plays a role as a sign of the Suochengli Village. Residents are here to buy goods in need and relax in leisure time. Visitors aggregate here for the reason that the market shows the history and nowadays of the city.

GF 1F 2F
1 2 3 2 3 1 11

The stage is a place where people show their talents and it is a window from which the whole sight of Suochengli can be seen. The old district lacked public space and now the new market offers such function that residents can communicate with each other here.

Section 1-1
View of Stage
View of Market
View of Roof Section 2-2
12
Facade of West Facade of Eest Buildings with sloping roofs on the second floor makes a situation that simulates the form of traditional streets.

with

Section 1 ROOF Structure ROOF with PLANT EPDM Roof Membrane 60mm EPS thermal baffle Vapour Control Layer Steel Purlins supporting internal timber lining UPPER FLOOR Structure WALL Structure 30mm mortar protective layer 60mm EPS thermal baffle 30mm mortar protective layer FLOOR Structure 100mm concrete screed 120mm rigid insulation 200mm concrete floor slab DPM/Radon Barrior 50mm Sand Blinding on 100mm compacted gravel Roof cladding, seaweed in woollen nets, ca. 300mm; doubled roof lathing, horizontal, 2*30mm; vertical lathing, 25*45 mm;roofing felt sealing layer; roof boards,21*121 mm;rafters,with seaweed insulation in-between, 245mm; membrave waterproofing; OSB-3 panel, 12mm; wood fibreboard, 3.2 mm; sea-weed insulation, 100mm(spacing for building services infrastructure); double-layered textile covering; cotton inner layer rendered firere-tardant with ammonia/urea salt; linen outer layer; both layers clipped to the timber frame 75mm concrete screed Timber Ceiling suspended from metal decking Weathered Steel Cladding Panel fixed to supporting mullions Supporting tracks rest on spacers to allow water drain to gutter Timber floor on 50*100 timber supports 500 c/c Cellular Metal Decking. Corrogated sheet welded to flat steel sheet. This creates a series for electrical wiring. Cutouts available for floor outlets. Steel Columns resting on Pad foundations. Column is welded to steel plate, after plate is leveled on abed of non-shrinking grout. Anchor blots connect the column to the concrete foundation. 60*120 timber battons @1m c/c between 120mm rigid insulation
2 Section 3
4 Spring Equinox 3.21 13:00 Light Analysis of 1st Floor Light Analysis of 2nd Floor Light Analysis of 3rd Floor Light Analysis of 4th Floor Axonometric Drawing 13
Section 3-3 Section 1-1
Detail
Section
Section
A big ramp is built in the market and it has a gradient of 1/40 which is convenient not only for the disable but also for normal people buying in the market.

Location: Kaifeng, China 2020.6

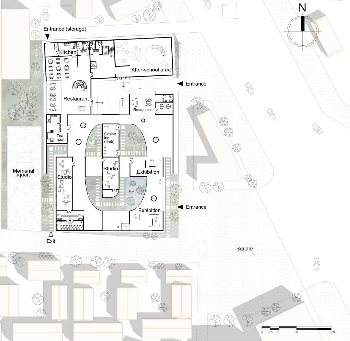
REOBTAIN THE LOST

Design of Kaifeng quadrangle yard

Located in center China, Kaifeng used to be the capital of Song(宋) dynasty in the history and this left it with great heritages of chinese culture. The site is in city center where three are many heritages nearby and the site’s position is within the scale of the previous capital’s layout.

SouthWest Position of Danger

The traditional Kaifeng city obeys the rule of Fengshui system and in the layout of the city, the direction of danger(凶), from NorthEast to SouthWest, is placed with temple and government which, in chinese idea, is the function to ‘repress the danger’. Another direction, from NorthWest to SouthEast is set for parks and clubs. The hertages left now also serve as scenic spots in the city which atrract tourists to visit the city.

宋 Xiang Guo Temple 555 780 907 974 1049 1233 1776 1998 Long Ting Park Kaifeng Government Po TowerIronic Tower Yan Qing Temple Shan
Club
Park
Shan Gan Regional
Qing Ming
layout of the previous Kaifeng and its Fengshui location layout Layout of Kaifeng city
NorthEast
0 4 Architecture and Urbanism
Individual work
14

Stop for bus 3, 10, 15, 20 30, 47 and 60

146M 171M

Stop for bus 60

Stop for bus 14, 18, 20, 37 and 60

Stop for bus 15

Stop for bus 10, 14 and 20

Convenient transport of the site enables people from the whole country to reach it.

The way of site preserving traditional culture could influence other places in the province.

Local residence make up a group of main users of the site.

There are several residencial areas around the site making the site has a strong relationship with local people. Also, shops and library can be found in 20 mins walk cover.

The site is in Shuanglong Alley which has been defined as an area for tourism, displaying local culture.

The site is well-connected to transport stations enabling visitors to approach the site.

Residencial Area Main road Secondary road Shop Library Shuanglong Alley Accessibility Site 10minswalk 20 mins walk
1KM N 1KM 15
Shuanglong Alley
Site

Position of Shuanglong Alley

In this area, there are numbers of traditional chinese courtyard which is called ‘四合院 representing living culture in north china.

Group of user Functions exist in alley

Student: 5-18

Adult: 18-60

The

30-35m

The typcial size of courtyard in this area.

Middle school

Functions lacked in alley

FunctionsActivities

Former residence

Former

Former

Functions needed

20-25m

Song
After-school
Cultural studio TempleFactory
culture Reading area
area
Kindergarten
elder: 60Resident Tourist
Gift storeHotel Temple
residence
Temple 宋 Song culture 宋 Song culture 宋 Reading area Reading area Restaurant Restaurant Restaurant Restaurant 50M N
residence
Space
Song culture Library After-school area Cultural studio 宋
Reading Game PaintingCrafting
Experience Discussing Tea For sittingWith tableWith cover With sound Be silent With kitchen With light With water Reading For sittingWith tableWith cover For sitting For sittingWith table Be silent With light With light With light
features
RestaurantEating
Exhibting
Space features needed
16

The preserved building inside the site was previously used by a printing factory. Now because its undamaged structure, it is planned to be reused.

The chinese courtyards in Shuanglong Valley are usually used in memory of chinese people between 19001930, but not about the history of Song Dynasty.

Courtyard re-interpreted Courtyard with Fengshui

There are 2 schools around the site but there are small numbers of facilities for students nearby, e.g. libraries.

Building new traditional chinese courtyard as a countainer for Song culture.

Using preserved building’s framework and giving it a new identity.

Traditional chinese courtyard can be understood as yards with buildings surrounding. And each yard has no direct connections between them.

Using curves elments extracted from Qingming Picture to reform the courtyard and establish connections.

The new area severs as a cultural center of Song Dynasty for both tourists and local people.

17

Position representing winter N

Position representing early summer

Position representing early summer

Position representing spring

Spring-themed yard, represented by apricot tree

Summer-themed yard, represented by willow

Autumn-themed yard, represented by Chinese parasol

Winter-themed yard, represented by pine tree

Spring Winter Autumn Summer Issues Concept / Strategy
离 坎 巽 坤 兑 震 艮 乾
Position of danger ‘ 凶’,representing autumn, the most unimportant function of yard is here.
Chrysanthemum Maple HollyPine tree WaterWillow PoplarWinter jasmine

Generating diagram

Making the entrance and exit of site

Setting up the layout of traditional courtyard

Building high block corresponding to the west side.

Setting up 4 yards according to Fengshui theory.

The former printing factory’s strategy is to transform it to a multi-functional center preserving fearture of culture.

Entrance & exit facing Neihuangdong Road mostly serve local and for kitchen use Entrance & exit facing Shuanglong Alley mostly serve tourists

Entrance Alley Main Road Square
printing books to reading books Sightseeing Open this floor to offer sightseeing Library Restaurant Stairs A�er-school area Printing 宋 Restaurant Tourist Local Studio Chinese culture Library After-school area
From
18

Light change Traditional music

Last, the room is dark, fulfilled with traditioanl music to calm people, away from daily busiy life

The noise stops, less light in the room

City noise

From the start, the room plays city noise

Water Willow
Poplar Winter jasmine
Maple
Chrysanthemum
Holly Pine tree
View of winter View of Autumn View of Summer
19
View of Spring
First floor
Second floor
Third floor Section 1-1 Polyethylene waterproof layer Steel roof Reinforced Concrete beam Section 2-2 South facade
1 1 2 2 20
East facade

Work at CCDI(深圳悉地)

Group work

Location: Dongguan(东莞), China

2021.3

Tramsformation of Jingyue Garden

本设计旨在为东莞松山湖片区提供集 运动、休闲、住宿、商业于一体的综 合性建筑群体。在尊重旧有建筑空间 的基础上,通过减法与加法的手段, 为该建筑群体增加新的功能,使其重 新焕发生机并且为当地社区提供良好 的公共服务。

Current transportation (场地现状 交通)

Current statues (场地现状)

场地内存在高 差断层,于 水岸关系不 友好

顺延场地高 差,与水岸 互通,到达 方便

功能组团彼此 独立,局部不 方便到达

通过-1F板将 功能组团相 连,互相连通

商业和公配均为 单面外向布置, 氛围不足 通过体块间的围 合营造出社区感 景观与绿化层次

景观与绿化过 于集中孤立

Location of site(场地位置)
The comparison(本设计与先前版本设 计的比较)
0
5
21
丰富
Community living room(社区客厅) 拆除约4000㎡ 住宅组团 户外跑道 社区配套组团 酒店组团 室外球场 Landscape corrider(山水通廊) Group of space(空间组团) Imbedding(植入) Outside space(外部空间) Generation
Current height difference(场地现 状高度)
digram(生成分析)

Analysis of function groups (功能组团分析)

Analysis of downward square, north(北面下沉广场分析)

旧有建筑的地下室部 分在现行规范中不可 被定义为地下室,我 们将地下室周围50迷 按照规范要求填充覆 土。

Soil coverage of bomb shelter (人防覆土范围)

Analysis of sunlight at apartment (住宅部分日照分析)

Analysis of downward square, south(南面下沉广场分析)

Analysis of site entrance (场地入口分析)

Analysis of car flow line (场地车流分析)

22
Pictures of substantial model(实体模型照片)

Rendering picture with bird’s-eye view(鸟瞰渲染效果图)

根据甲方要求,本场地周围分布 有学校,可以布置学区房。我们

在西侧建筑原有基础上对其内部 进行适当分隔,得到不同的户型 面向不同购买力的消费群体。

Master plan(总平面图)

客房 客房客房客房客房客房客房客房客房 客房客房客房客房客房客房客房客房 客房 客房 门厅 小区文化设施 3255㎡ (总计4506㎡) 社区警务室 230.12㎡ 社区居委会 办公用房 116.75㎡ 社区居委会 办公用房 116.75㎡ 社区居委会 办公用房 116.75㎡ 社区居委会 办公用房 116.75㎡ 党员活动室 218㎡ 社区卫生及计生服务用房 940㎡ 综合市场 酒店配套 酒店大堂 泳池配套 社区综合 商业 商业 商业 商业 公厕 小区文化设施 1251㎡ (总计4506㎡) 门诊部 2029㎡ 公厕 75㎡ 星光老年之家 230㎡ 社区服务站 232㎡ 邮电所 145㎡ 社区综合办及人 民调解室 115㎡ 综合市场 1514㎡ 上 下 客房 客房 客房 客房 客房 客房 客房 客房客房客房客房客房客房客房客房 客房 客房 客房 客房 客房 客房 客房 客房客房客房客房客房客房客房客房 客房 客房 客房 客房 客房 客房 客房 客房客房客房客房客房客房客房客房 客房 客房 客房 客房 客房 客房 客房 客房客房客房客房客房客房客房客房 客房 客房 客房 客房 客房 客房 客房 客房 客房 客房 客房 客房 垂直交通 50㎡房间 60㎡房间 70㎡房间 150㎡房间 200㎡房间 330㎡房间 上 上 上下 大户型 小户型 小户型 小户型 小户型小户型 小户型 小户型 小户型 小户型 小户型 小户型 小户型 小户型 小户型 小户型 小户型 小户型 小户型小户型小户型小户型 小户型 大户型 小户型 小户型 小户型 大户型 小户型 小户型小户型 小户型 小户型 小户型 小户型 小户型 小户型 小户型 小户型 小户型 小户型 小户型 小户型 大户型 小户型 小户型 小户型 小户型 小户型 小户型 小户型 小户型
South elevation(南立面图) 23 West elevation(西立面图) East elevation(东立面图)
Plan of first floor(社区配套部分一层平面图)
Plan of Second and third floor(住宅配套部分二、三层平面图) Plan(酒店配套部分平面图) Plan of second floor(社区配套部分二层平面图)

Turn static files into dynamic content formats.

Create a flipbook
Issuu converts static files into: digital portfolios, online yearbooks, online catalogs, digital photo albums and more. Sign up and create your flipbook.
Tiancheng's portfolio by Tiancehng Ren - Issuu