THUVARAKA INPANATHAN

UNIVERSITY OF DUNDEE


PROJECT - COMMON GROUND
YEAR - 3 (2024/25)
SITE - INGRAM STREET, GLASGOW
MODULE - INTEGRATED DESIGN (CONCEIVING AND CONSTRUCTING ARCHITECTURE)

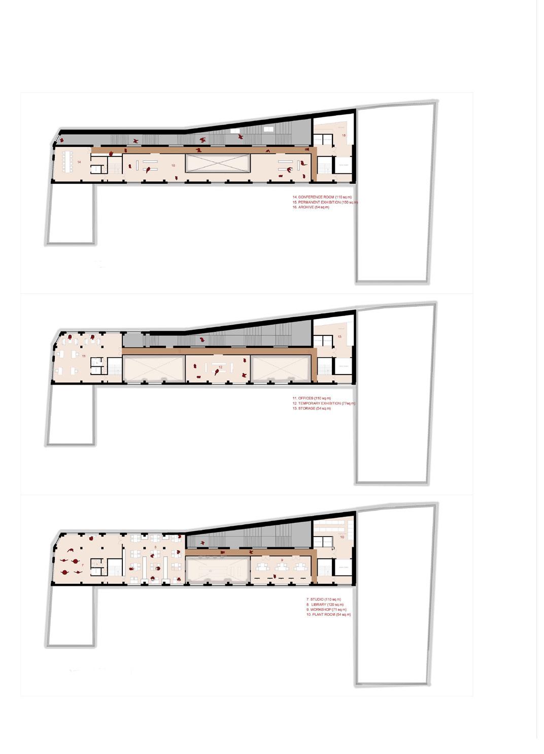
Common Ground is a museum and community hub located in Glasgow city centre, designed to support refugees, immigrants, and people from immigrant backgrounds. Developed in collaboration with the Common Ground initiative at the CCA, the project responds to themes of displacement and belonging. The building invites visitors on an emotional journey through space, moving from isolation to connection. The design is divided into three main parts: a narrow, dark concrete staircase representing the experience of displacement; a central corridor that filters light and creates pause; and a warm, timber-framed gallery and event space symbolising safety and community. Visitors first enter through a vibrant public courtyard inspired by the Italian Centre. This space supports cafe spilling, markets, and events, reinforcing the museum’s role as a social hub. Oriented sustainably, the staircase sits on the north to reduce heat loss and window openings, while the south-facing gallery maximises sunlight and connection to the outdoor space. The architecture invites people to move from darkness to light, both physically and emotionally.
ILLUSTRATIONS OF THE DEVELOPMENT
TOOL - IPAD







PERMANENT EXHIBITION






PHYSICAL MODELS
MATERIALS - WOOD, MOUNTBOARD, ACRYLIC PAINT







PROJECT - THE BLUE /GREEN CORRIDOR
SITE - ROYSTON, GLASGOW
YEAR - 3 (2024/25)
MODULE - URBAN THEORY, ANALYSIS & DESIGN

The project, located in Glasgow, reimagines the area by creating a plinth over the M8 motorway, transforming it into a vibrant community space that reconnects Royston to Dennistoun and the city. The design restores the Monkland Canal, a significant historical feature, and offers a space that supports biodiversity, reduces motorway noise, and promotes connection. In summer, the canal becomes a promenade for jogging, fitness, and gatherings, while in winter it transforms into markets, ice skating, and festive venues. Floating pods offer flexible spaces for exhibitions and events. Corten steel bridges link the design to the area’s industrial heritage, and sensory lighting and accessible paths ensure a welcoming environment for all. This project revitalizes Royston, fostering community and a sense of place.
RENDERS OF THE PROPOSED CANAL
TOOLS - AUTOCAD, TWINMOTION








ILLUSTRATIONS OF THE DEVELOPMENT
TOOL - IPAD




HOUSE (GROUP OF 2 PROJECT)
PROJECT - TEA HOUSE
SITE - NO SITE
YEAR - 2 (2023/24)
MODULE - MATERIAL & FORM

For this project, we were tasked with choosing between mineral fibre and metal to experiment with and develop materials for our design. My teammate and I selected mineral fibre, and through a series of experiments, we explored the unique properties of this material. Our tests focused on texture, form, and the interaction between mineral fibre and other elements, resulting in organic, fluid shapes that captured a sense of natural movement.
In the second stage, we were asked to design a Japanese tea house inspired by the artifacts we created during our material experiments. Drawing from the soft, organic forms we developed, we created a calming, serene space that reflected the principles of Japanese tea house design emphasising simplicity, harmony with nature, and tranquility.
For the final model, we chose to use clay to bring our design to life. The material allowed us to continue the organic theme, giving the tea house an earthy, sculptural quality that echoed the textures we explored in the experiments. The space we designed creates a peaceful environment, focusing on the experience of stillness and connection with nature, which are central to the Japanese tea ceremony. This project allowed us to explore how material experimentation could influence spatial design and create a sensory experience through architecture








DEVELOPMENT SKETCHES
TOOL - IPAD




DEVELOPMENT MODELS
MATERIALS - WOOD, CLAY




MATERIALS - CLAY, PLASTIC
TOOL - PHOTOSHOP



PROJECT
- CRAWFORD RETROFIT
SITE - PERTH ROAD, DUNDEE
YEAR - 2 (2023/24)
MODULE - ARCHITECTURAL TECHNOLOGY

This retrofit project focuses on the Crawford Building at our university campus. The design includes a Trombe wall and corten steel cladding, enhancing insulation and energy efficiency. The emphasis on structural integrity ensures the creation of a better environment for the exhibition spaces inside. The facade not only improves the building’s performance but also contributes to a more comfortable and sustainable atmosphere for users.
TOOL - AUTOCAD, TWINMOTION






PROJECT - ARCHERY PAVILION
SITE - NO SITE
YEAR - 1 (2022/23)
MODULE - SPACE, FORM AND STRUCTURE


This project began as an exercise in structural balance and minimal material use. The brief required creating an apparatus that held two apples 56cm away from the ground-contacting structure, using the least number of sticks possible. The resulting design was a triangular pyramid, stable yet delicate, anchored only at its base.
This initial exploration of weight distribution, tension, and compression laid the foundation for the next phase: transforming the concept into an architectural pavilion. Inspired by the suspended and cantilevered qualities of the apple apparatus, I developed a lightweight archery pavilion that embraces openness and tension.
The final design includes a simple yet functional shelter with a single integrated storage space, retaining the geometric clarity of the original pyramid. The form responds to the needs of archers, offering shade, spatial orientation, and a moment of pause while staying rooted in the principles of balance and purposeful structure.
DEVELOPMENT MODELS
TOOLS - MATERIAL- PAPER STRAW




DEVELOPMENT SKETCH
TOOLS - PENCIL ON PAPER, PHOTOSHOP

FINAL MODEL
MATERIALS - MDF WOOD, THREAD
FINAL SKETCH TOOLS - PENCIL ON PAPER, PHOTOSHOP



