Maggezien 2024-3

Page 1

MAGGEZIEN

OOG VOOR

ELKAAR in de Kattenbosch

INSPANNINGEN

WAARD

centrummanagement timmert aan de weg

LEVEN IN DE BOERDERIJ

nieuw elan op Coudewater

MEELOPEN IN HET LEVEN de rol van de notaris

herinneringen

KOESTEREN

foto Karel Goossens
2024-nr. 3

Doen waar je echt blij van wordt

DIERBARE HERINNERINGEN

BLIJVEN KOESTEREN

In de praktijk is het lang niet altijd zo dat je carrière na je opleiding in een rechte lijn naar je pensioen leidt. Mensen komen er vaak gaandeweg achter dat zij meer en andere talenten hebben. De een is wat avontuurlijker aangelegd dan de ander en steekt al dan niet graag zijn licht op bij andere uitdagingen.

Floor Cuyten is zo iemand die af en toe een andere afslag op haar weg heeft genomen. En uiteindelijk doet in haar werk waar zij echt blij van wordt.

door Herman van Dinther

Floor (48): “Mijn man Tim en ik kwamen ruim twintig jaar geleden in Rosmalen wonen en kregen hier een zoon en een dochter. Wij wonen met heel veel plezier in dit fijne dorp waar we ons enorm thuis voelen. Toen ik mijn opleiding had afgerond ging ik aan de slag in verschillende marketing en communicatiefuncties. Destijds wilde ik het vooral goed doen voor anderen en aan verwachtingen van anderen voldoen. Dat heeft mij uiteindelijk de kop gekost; ik kwam terecht in een burn-out.”

Ander spoor

“Dat was het moment dat ik wakker geschud werd. Ik kwam tot de conclusie dat ik me altijd groot had gehouden en mezelf totaal buiten spel had gezet. Ik ontdekte dat ik in feite een heel gevoelig persoon ben. Het werd tijd voor bezinning en dat zette mij op een heel ander spoor. Ik maakte van mijn gevoelige kant mijn kracht en ben een opleiding gaan volgen om mensen te kunnen coachen. Vooral kinderen en volwassenen die extra sensitief zijn en in het reguliere circuit soms niet verder kwamen. Die praktijk groeide als vanzelf doordat tevreden mensen daar met anderen over spraken. Creativiteit speelde in mijn praktijk al vaak een rol. Ik maakte met cliënten dingen waar zij hun gevoel in kwijt konden en die hen houvast gaven. Het bleek zo mijn ding te zijn dat ik een paar jaar geleden de stap durfde te zetten om volledig te gaan voor mijn creatiekracht en mijn atelier aan huis opende.“

Naaimachine

“Als pubermeisje van vijftien had ik mijn lengte van 1 meter 88 al bereikt, behoorlijk lang dus. Door mijn lengte was het lastig om passende kleding te kopen waardoor mijn moeder zei dat ik mijn eigen kleding maar moest gaan maken. Ik ging op naailes, kreeg een eigen naaimachine en daar heb ik in de loop der jaren heel veel mooie dingen mee gemaakt. Dat heeft mijn creativiteit zeker gevoed. Wat voor mij ook erg praktisch werkt is mijn overtuiging dat wat ik zie, ik ook kan maken. Heel handig is dat. Dat merkten andere mensen ook op en zo kreeg ik in mijn atelier steeds meer de vraag om producten voor hen op maat te maken.”

Dankbaar werk

Dit werk kreeg een bijzondere wending toen een klant vroeg of ik de trui van haar opa kon verwerken in een kussen. De vrouw rook de geur van haar opa nog in het kussen en dat was voor haar een brug naar de herinnering aan hem. Soms hebben klanten duidelijk voor ogen wat ze van de kleding willen laten maken. Maar als dat niet het geval is, kom ik graag met ideeën. Zo had iemand de wens om haar zus, zichzelf en hun drie dochters te verrassen met iets moois onder de kerstboom, gemaakt van de kleding van haar overleden moeder. Ik zag gelijk wat ik er mee kon doen en maakte er vijf toilettasjes van. Toen ze de tasjes kwam ophalen was dat een emotioneel moment waarop ze zei ‘Voor mijn gevoel neem ik mijn moeder weer mee naar huis.’

‘Iets moois te maken wat kracht geeft en kan helpen verder verlies te verwerken’

“Ik ben zo dankbaar voor dit werk. Iedere opdracht geeft me weer nieuwe creatieve uitdagingen en ik help mensen herinneringen levend te houden. Door iets moois te maken wat ze kracht geeft en hen kan helpen verder hun verlies te verwerken. Het is toch ook zonde dat iets van grote waarde achter in een kast ligt weg te stoffen en onzichtbaar is, terwijl het juist een plekje verdiend aan iemands zijde.”

In balans

“Als fijne tegenhanger, naast dit ‘serieuze’ werk, maak ik voor mijn ontspanning deel uit van een theater productiegroep onder leiding van Petra Kagchelland. Door bezig te zijn met theater en toneel komt er iets luchtigs in mij bovendrijven. Dat is goed voor mijn balans. Avontuur en expressie zijn belangrijk voor mij. We werken aan een nieuw stuk dat we in het najaar willen opvoeren. Ook dit is creatiekracht waar ik heel blij van word.”

foto Karel Goossens

ROSMALEN INSPANNINGEN

MEER DAN WAARD

Rosmalen is een levendig dorp dat als onderdeel van de gemeente ’s-Hertogenbosch richting veertig duizend inwoners groeit. En dat is een omvang die vraagt om de nodige kwalitatieve impulsen op zijn tijd. Gelukkig zijn er in Rosmalen heel wat betrokken mensen die zich inzetten voor een fijn woonen leefklimaat. Een aantal van hen is actief in het Centrum Management Rosmalen dat in het verre verleden in de KOM-winkeliers een voorloper had.

door Herman van Dinther

Het bestuur van CMR bestaat uit zes mensen die een achterban vertegenwoordigen vanuit verschillende invalshoeken. Een van hen is Chantal Hoedemakers die de Vastgoedbranche vertegenwoordigt. Chantal (52): “Ik ben geboren en getogen Rosmalense en heb me altijd al graag voor de Rosmalense samenleving ingezet. Ik denk dat ik me zo rond 2010 ben gaan inzetten voor de activiteiten in het Rosmalense centrum. Er werd een Stichting opgericht waarin de bestuursleden namens verschillende branches vertegenwoordigd zijn. Het eerste doel was het invoeren van reclameheffing. We liepen namelijk steevast aan tegen de financiële hobbels omdat niet alle ondernemers bereid waren vrijwillig een bijdrage te leveren en ook landelijke ketens voerden een eigen beleid. Het was dan ook een opluchting toen in 2014 de reclameheffing door de gemeente werd ingevoerd. Die regeling kwam op aandringen vanuit Rosmalen tot stand en werd toen ook in Den Bosch ingevoerd. De gemeente int via de WOZ de reclameheffing bij de gebruikers van de winkel- en horecapanden. Ik vind wel dat er nog een lacune bestaat omdat de eigenaren van het vastgoed de dans ontspringen en dat vind ik toch wat krom. Want ook de vastgoedeigenaren hebben er belang bij dat het centrum aantrekkelijk is en blijft voor bezoekers en winkelend publiek.”

Visie

“Door de tomeloze en verdienstelijke inspanning van de vorige voorzitter Sylvia Böcker is er gewerkt aan een visie op basis waarvan activiteiten worden bedacht en uitgevoerd. Echter, alles wat we willen doen kost enorm veel geld en daarom moeten we werken aan een structurele constructie. Om die visie te kunnen uitvoeren stelt de gemeente drie jaar lang vijfenzeventig duizend euro beschikbaar om kansrijke activiteiten vorm te geven.

Een aantal resultaten is al zichtbaar. Zo is de permanente verlichting aan bomen door het hele centrum aangebracht. Aan de gevels van veel panden hangen bordjes met het logo Welkom in Rosmalen. Er zijn voorbereidingen

in gang gezet om gevels die daar geschikt voor zijn te vergroenen door roosters aan te brengen waartegen groen kan klimmen. Nog dit voorjaar worden op De Driesprong ‘Waterspuwers’ geïnstalleerd, een initiatief dat al jaren op de agenda staat en ook door Rosmalens Belang werd nagestreefd. Eindelijk is het dan zo ver. We willen de uitstraling van het plein als de huiskamer van Rosmalen blijven stimuleren. Waar we ook aandacht voor blijven vragen is de verkeersveiligheid in het centrum. Overlast door ‘niet- toegestaan verkeer’ moet absoluut worden vermeden.”

Groote Wielen

“Als CMR richten we ons vooral op de doelgroep gezinnen met kinderen en vitale 60-plussers. In dat kader vinden we het ook belangrijk dat de inwoners van De Groote Wielen aansluiting vinden bij het centrum. Op ons wensenlijstje stond het idee om de fietsroute tussen DGW en het centrum te voorzien van leuke paaltjes met ons logo van Welkom in Rosmalen. We krijgen bij de gemeente daar de handen nog niet voor op elkaar maar we blijven zoeken naar oplossingen.

‘We hebben nog genoeg uitdagingen’

Met onze visie willen we een uniforme presentatie van het hele dorp bereiken. Dat heeft er ook al in geresulteerd dat intussen meer en allemaal dezelfde prullenbakken zijn aangebracht.”

Kernpunten

“Als CMR hebben we enkele evenementen tot speerpunt gemaakt, zoals Halloween en de Kerstkoopzondag. We zien het als een groot verlies dat Ronald Moonen, als de grote animator bij de vele activiteiten, is gestopt met zijn bestuursfunctie. Een aantal werkzaamheden besteden we nu uit aan bureau Line-Up dat bijvoorbeeld het Halloween-evenement invult. Daarnaast zijn er werkgroepen die incidentele dingen opzetten zoals de Intocht van Sinterklaas

foto Karel Goossens
Het centrum gaat ons aan het hart

en we zijn natuurlijk blij met de Kunstmarkt die Kubra organiseert. Ook spannen we ons graag in voor de Rosmalense Zomer waarbij vooral in het centrum van alles gebeurt en optredens worden verzorgd. We hebben onlangs twee overkappingen gekocht die kunnen worden opgezet wanneer er minder goed weer wordt verwacht. Op die manier kunnen artiesten toch optreden als er een buitje valt.”

Uitdagingen

al is dat een lastige opgave merken we.

“We hebben nog genoeg uitdagingen. Zo is er overleg om de markt uit te breiden met het aanbod van streekproducten. Ook willen we graag openings- en sluitingstijden en de koopavonden en koopzondagen harmoniseren,

Als bestuur werken we in app-groepen met de ondernemers en dat is handig om snel dingen op elkaar te kunnen afstemmen. We hebben onlangs aan alle betrokkenen een klapper gegeven met daarin alle mogelijke relevante informatie voor de ondernemer. Deze gaan we jaarlijks actualiseren.” Raros Bouw bv

BOUW, ZELDZAAM STERK IN: Ontwerp, nieuwbouw, verbouw, restauratie & renovatie

Peuterarrangement bij Kinderopvang Het Vrolijke Koetje.

Nu, per direct plaatsen beschikbaar!

Ontdek de Magie van onze Agrarische Kinderopvang

B j He Vrol ke Koetje ge oven we dat de beste avonturen beginnen n de frisse lucht, omr ngd door de natuur en contact me d eren Onze agrar sche k nderopvang s de dea e plek voor k nderen van 0-12 aar om te groe en te leren en p ez er te hebben

Peuterarrangement voor 2-4 ar gen van 8 15-12 45 uur

Leerzame omgev ng, omr ngd door natuur en d eren

Kleinscha ig, met rust en ruimte van he p at e and Goede voorbere d ng op de basisschool

Kind volgend me vee aandacht voor wenproces

Geef jouw kind het cadeau van een onvergetel jk j j j j

Neem vandaag nog contact met ons op voor een rondleiding en ontdek waarom ouders k ezen voor He Vrol ke Koetje als dé plek voor een geweldige k ndert jd

n o@k nderopvanghetvro i kekoet e nl | 06-22527227 Empe sehoe weg 5 Rosmalen

EXPOSITIE PERRON-3

De Rosmalense kunstenares Adje van Strien exposeert van 2 april tot 12 mei in Perron-3.

“Tekenen en schilderen is voor mij een mooie hobby” legt Adje van Strien uit “Vanaf mijn jeugd begon ik met Oost-Indische inkt daarna met olieverf, aquarel, acryl en pastel. Ik probeer steeds wat anders, en schilder op allerlei materialen bv houten panelen, board, doeken, papier, en kaarsen. Het grootste schilderwerk is ca. 30 meter lang en 2,40 meter hoog. Houten panelen voor de kerststal in de Lambertus kerk. Kom maar eens kijken rond kersttijd naar de Kerststal. Soms gebruik ik allerlei materialen op mijn doeken waardoor je een 3D effect krijgt. Bv gordijnstof, steentjes, schelpen, vezels en verdikkingsmateriaal enz. Een ware ontdekkingstocht”. De Rosmalense heeft ook meegedaan aan project Rembrandt bij de NPO. “Je komt er achter hoe mooi maar ook hoe moeilijk zijn werk is. Ik heb een paar werken van Rembrandt nageschilderd en in de expositie opgenomen. Realisme is wel mijn manier van schilderen. Soms schilder ik uit emotie. Veel gebeurtenissen leg ik met verf vast. Dat is mijn manier om iets te verwerken. Pastelpotloden ontdekte ik om portretten vast te leggen. Ook de huisdieren moesten op papier vast gelegd worden op wens van mijn kleindochter.”

Adje maakt ook deel uit van twee schilderclubs. “Op dinsdagmorgen schildert Adje met nog 7 personen bij, “bij Bomans” in Rosmalen. Een gezellige club waar ik trots op ben. Loop gerust even binnen om een kijkje te nemen naar onze schilderskunst. Op woensdagavond schilder ik ook bij schilderclub Kleurrijk in het Trefpunt te Maliskamp. Op facebookpagina “tekenenschilderclubKLEURRIJK” kun je ons volgen. Het is erg gezellig om bij een club aangesloten te zijn, je kunt elkaar inspireren en adviezen geven”.

De expositie is te zien tijdens openingstijden van Perron 3: maaandag-vrijdag van 8.30–24.00 uur en op zaterdag van 9.00–17.00 uur.

On w rp N euwbouw Ve bouw Restau a Ren v e Ede weisstraat 3, 5241 AH Rosmalen T +31
- 5236915 E. nfo@
www rarosbouw.nl
scan me
(0)73
arosbouw.n
RAROS
Raros Bouw bv euwbouw bouw Ede weisstraat 3, 5241 AH Rosmalen T +31 (0)73 - 5236915 E. nfo@ arosbouw.n www rarosbouw.nl RAROS BOUW, ZELDZAAM STERK IN: Ontwerp, nieuwbouw, verbouw, restauratie & renovatie scan me

Adviseren is kennis delen en daar zijn we ‘STERKin’.

Kom langs voor een vrijblijvend gesprek

De Driesprong 23

5241 TJ Rosmalen

info@sterk-in.com

+31 (0)88 400

43 43

UITGEKLEED

www.sterk-in.com

Als iemand de grip verliest op zijn of haar geheugen, taal, en zelfs op maatschappelijke normen en waarden, dan staat diegene letterlijk en figuurlijk in zijn hemd. Hoe blijft iemand warm? Wie biedt die momenten van verbinding, vertrouwen en plezier in de wereld van verwachtingen, angst, onveiligheid en onvermogen? Jacoline Goossen (Welzijnsbegeleider & miMakker) leeft zich in en doet een inspirerende poging daartoe. contact@beleefidee.nl

IN EIGEN HAND

Vandaag begeleid ik mevrouw Hoekstra bij haar warme maaltijd. Ik rijd een bedtafeltje met haar diner naar haar kamer. Rondom haar bordje rodekool met hachee, liggen schoonmaakdoekjes, bestek en een badstof servet. Door een kiertje zie ik dat zij allerlei elementen op haar kamer aanraakt in een bepaalde volgorde. Mevrouw Hoekstra, wij zeggen Sylvia, heeft niet veel rust en door het aanraken of het verplaatsen van spullen geeft zij als het ware haar spanning een bestemming. Praten helpt haar ook, zij heeft een eigen taal. Met haar grijze vlecht op haar rug, sjouwt zij wat voorover gebogen op haar 30 vierkante meter langs de deurklink, de wastafelkraan, een kastdeur, de stoelleuning en een paar zitkussens. Ik ga naar binnen en sluit de deur achter mij, om de prikkels van de gang te beperken.

Ik voel me onhandig en wat overdadig in haar ruimte als onze blikken elkaar kruisen. Daarom neem ik eerst een bescheiden plek in tegen de vensterbank en volg haar tot zij met mij opnieuw contact maakt. Sylvia komt uiteindelijk tegenover mij staan met een glimlach, kijkt mij aan en maakt mij spontaan deelgenoot van wat haar bezig houdt . Haar vrolijke ‘verhaal’ beantwoord ik door haar taal zo goed mogelijk na te praten met een intonatie alsof ik van haar het laatste nieuwtje van de afdeling heb gehoord. Zij knikt lachend en roept achteromkijkend: “Ja,ja, ja,jajaja!” Ze ploft, na nog een ommetje, in haar stoel en kijkt hoe ik naast haar op het zitkussen neerkom.

Terwijl de onhandigheid van deze positie al snel tot me door dringt, grijpt zij met een hand in de hachee. Het bestek en ik kijken verrast toe, terwijl zij de te warme hachee snel van haar vingers likt. Daarna pakt zij de lepel met eten een aantal keren van mij aan en geeft mij die

zo terug dat haar broek en trui dat doen waar ik het servet voor bedoeld had. Halverwege de maaltijd staat Sylvia toch weer op. Zij loopt een rondje, met in haar hand een lepel waar een restje kool langzaam vanaf druipt. Ik vergeef het haar glimlachend, want als ik naar haar kijk, zie ik iemand die naar tevredenheid haar eigen regie voert.

Ondertussen heb ik contact met mijn collega die onopvallend een toetje neerzet op de wastafel en non-verbaal de situatie polst. Als ik mijn duim opsteek, weet zij genoeg. Dan rol ik iets te ingewikkeld uit de zitzak en ben ik net op tijd bij het bakje, zodat Sylvia niet ook nog met slagroomvla de vloer kleurt. Staand lepelt zij zelf de zoete afsluiting bijna zonder morsen naar binnen. Als ik een rode vlek ontdek op mijn schoen, word ik me bewust van mijn gedachten die mij vertellen over wat normaal is bij het nuttigen van eten. Maar ik zet die volumeknop zacht, want hoe ik handel in een vrij en waardevol contact zonder oordeel, heb ik in eigen hand. Redenen genoeg daarvoor.

clicking images

OOG VOOR ELKAAR IN DE KATTENBOSCH

De betrokkenheid van de wijkbewoners is heel groot

Architect Frans van Dillen had in de jaren zeventig met de Kattenbosch een wijk voor ogen die er anders moest uitzien dan de eenvormige huizen die vooral toen gangbaar waren. Hij ontwikkelde volgens zijn concept woningen die er van buiten sober uitzagen maar waarbinnen de koper van de huizen zijn gang kon gaan qua indeling. Het mondde uit in veel creativiteit bij de mensen die destijds een woning kochten. Een aantal van hen woont er nu, na vijftig jaar, nog steeds met plezier.

door Herman van Dinther

Hans van Bruinessen woont al ruim veertig jaar in de wijk die in eerste instantie door de gemiddelde Rosmalenaar met opgetrokken wenkbrauwen werd bekeken.

Hans (73): “Ik ben geboren en getogen in Bilthoven en ging na de Sociale Academie in een jongerencentrum in Venray als enige beroepskracht aan het werk. Dat was voor mij een heel leerzame periode waarin ik veel ervaring opdeed met muziek- en theaterprogrammering. Dat kwam mij goed van pas toen ik in 1981 de overstap maakte naar het Provinciaal Bureau Jeugd- en Jongerenwerk in Den Bosch. Dat betekende ook verhuizen vanuit het Limburgse naar de regio Den Bosch. We keken in Vught, Berlicum, Den Bosch en Rosmalen.

Een collega van mijn vrouw Stephanie woonde in de Kattenbosch en nodigde ons uit om er een kijkje te nemen. Nou, we werden meteen enthousiast. Er stonden toen een paar woningen te koop en wij hebben niet lang geaarzeld, we zaten al snel bij de notaris aan tafel.”

Boerderij

“De ruim honderdentien huishoudens waren in de begintijd gezamenlijk eigenaar van de Boerderij die als huiskamer voor de wijk in gebruik is. Maar dat gezamenlijke bezit had ook wel nadelen bijvoorbeeld hoe het moest als iemand zijn huis verkocht en zijn aandeel in de boerderij moest verzilveren. Er is toen voor gekozen om het pand onder te brengen in een stichting. Het bestuur daarvan wordt gekozen door de bewoners van de wijk. De ruimte wordt regelmatig verhuurd en levert inkomsten op die nodig zijn voor het onderhoud. Het oude woonhuis bevat intussen twee appartementen en ook de zolderruimte wordt verhuurd. Veel van het openbaar groen valt overigens ook onder de verantwoordelijkheid van de stichting hoewel de gemeente voor het onderhoud zorgt.”

Werkgroepen

“Er zijn door de jaren allerlei commissies en werkgroepen gevormd die verschillende ideeën hebben uitgewerkt. Zo hebben we een welkomstcomité dat nieuwe bewoners ontvangt. Die krijgen behalve een zakje katjesdrop ook allerlei informatie zodat de mensen zich snel thuis kunnen voelen. Ook worden zij geïnterviewd voor de wijkkrant die elke maand uitkomt. Op die manier weten alle wijkbewoners meteen wie de nieuwe bewoners zijn. De levendigheid in de wijk, die er altijd wel is,

gaat uiteraard ook in golven op en neer. Maar er ontluikt alweer iets nieuws, tegenwoordig is er een keer in de maand op donderdagmiddag weer een buurtborrel in het leven geroepen. Bij de viering van het 40-jarig bestaan hebben we ook een koffieochtend ingevoerd die nog steeds in zwang is. En we hebben ook een enthousiaste filmclub KB Skoop die elke vrijdagavond een film vertoont, ook voor mensen van buiten de Kattenbosch. Daar is natuurlijk, ook afhankelijk van de titel, veel belangstelling voor.”

Contact belangrijk

“Uit alles wat we doen in de wijk blijkt dat er veel behoefte is aan sociaal contact. De warmte die de mensen voor elkaar voelen is karakteristiek voor de Kattenbosch. Je ziet ook dat mensen die in het verleden wegtrokken er na jaren weer graag terugkeren. Zelfs hun uitgevlogen kinderen zoeken later soms weer een woning in de wijk.

Kattenbosch is eigenzinnig, vooruitstrevend en sociaal. Dat zie je bijvoorbeeld ook bij het gezamenlijk optrekken bij duurzaamheidsprojecten zoals de aanschaf van zonnepanelen en de aanleg van groene daken en het beheer van de vogelkastjes voor koolmeesjes. Ach, ik kan nog veel meer voorbeelden geven maar het komt er gewoon op neer dat we veel voor elkaar over hebben en gezamenlijk willen doen.”

Jubileum

“In een weekend in juni gaan we met de wijkbewoners uitgebreid stilstaan bij het 50-jarig bestaan. De plannen daarvoor zijn gebaseerd op een enquête die we onder de bewoners hebben gehouden. We hebben Koen van Empel, de wijkmanager, uitgenodigd om mee te kijken naar het programma waarvoor we ook steun hebben aangevraagd uit het wijk-, dorpen- en buurtbudget. Mede daardoor kunnen we heel veel leuke activiteiten organiseren die alle leeftijden aanspreken. Het is heel gevarieerd met optredens, workshops, voorstellingen en een pubquiz. Ook leuk vinden wij, als feest comité dat uit vier mensen bestaat, het thema Gluren bij de Buren. Vijftien bewoners stellen hun huizen open om te laten zien op welke wijze er door de jaren heen veranderingen – of juist niet- zijn aangebracht. Heel open is dat, precies wat we gewend zijn hier. Om de wijk ook naar buiten toe te presenteren, ben ik met een aantal bewoners aan de slag gegaan om een podcast te maken met als titel “Het geheim van de Kattenbosch.”

foto Karel Goossens

INSCHRIJVING KINDERVAKANTIEWEEK 2024

Dit jaar vindt SJV’s KinderVakantieWeek plaats van maandag 12 tot en met vrijdag 16 augustus. Alle kinderen die in Rosmalen wonen en/of op de basisschool zitten, kunnen meedoen.

Tot en met maandag 1 april 23.59 uur kan iedereen zich via de website www.sjvrosmalen.nl inschrijven.

Dit geldt voor zowel kinderen als de onmisbare volwassen hulpen. De kosten zijn direct te voldoen bij inschrijving.

Tips bij inschrijving: Lees tijdens het inschrijven goed wat je moet invullen in de velden. De FAQ op de website kan je ook verder helpen. Kies voor de schoolgroep (+ evt. extensie) waar je kind op het moment van inschrijving in zit. Kijk voor een school zonder de traditionele groepsindeling welke groep vergelijkbaar is en stem met ouders van klasgenoten de gegevens op elkaar af. SJV rekent op je op de dagen die je als hulpdag opgeeft. Noteer de dagen dan ook alvast in je agenda!

Zonder vrijwilligers kan de KinderVakantieWeek niet bestaan. Sterker nog: hoe meer vrijwilligers er beschikbaar zijn tijdens de week, hoe meer kinderen er mee kunnen doen. SJV vraagt ouders of andere volwassenen dan ook om zich aan te melden als hulp tijdens de KinderVakantieWeek, eventueel in duo met iemand anders.

Als er meer inschrijvingen worden ontvangen dan kinderen geplaatst kunnen, plaatst SJV kinderen op basis van het aantal dagen hulp dat ouders/verzorgers bieden. Binnen deze volgorde hebben inschrijvingen met hulp op doordeweekse dagen voorrang.

Heb je vragen naar aanleiding van de informatieavond of de inschrijving? Mail dan via kvw@sjvrosmalen.nl.

Ben jij toe aan een moment van diepe ontspanning?

Ontdek de voordelen van Reiki!

Of je nu stress vermoeidheid, angst of fysieke spanning ervaart, Reiki kan helpen om blokkades op te heffen en je energie weer in balans te brengen.

Benieuwd wat Reiki voor jou kan doen? Boek nu een eerste Reikisessie met korting en betaal slechts € 35.

Tarieven

Reiki-sessie 45-70 minuten

Reiki-sessie kind 30 minuten

Reiki-sessie op afstand

3-strippenkaart

€ 50

€ 30

€ 20

€ 125

Meer weten of een afspraak maken?

APP OF BEL 06 - 83 25 21 70

Bel of app me gerust voor meer informatie. Meteen een afspraak maken mag ook. Je bent van harte welkom in mijn praktijk!

Marjon van Dinther

Oude dijk 13, Rosmalen

www.bewustvitaal.com

GLUREN BIJ DE BUREN

Huiskamerfestival Gluren bij de Buren zoekt tuinen en acts. Gluren bij de Buren komt weer naar Den Bosch op zondag 30 juni 2024. Amateurkunstenaars van alle soorten disciplines betreden het gazon als podium, van Hintham tot de Groote Wielen.

Allerlei soorten optredens zijn denkbaar op het podium van Gluren bij de Buren. Muziek, theater, dans, cabaret, het kan en mag allemaal. Alle podiumkunstenaars treden drie keer een half uur op, telkens voor nieuw publiek. Ook tuinen in alle soorten en maten kunnen aangemeld worden. De programmamakers zoeken een act die past bij het formaat van het tuintheater.

Vind meer informatie of meld je aan tot en met zondag 12 mei via www. glurenbijdeburen.nl.

- Fatboy - SMEG

- Ortigia - Story Tiles

- Zwitscherbox - Looplabb

- Victorinox - Nijntje

- Josh - Kaschka

- Bordy’s - Wijck

- Funky Ouma - Pukka

- Blomus - Doing Goods

Nieuwstraat 1a | Sint Michielsgestel www.driekusgestel.nl L

w w w . l i j f s t i l i n g . n l

Kennis maken

Meld je aan voor onze workshop Tail e verdwenen - Bu k(vet) gegroe d Leer h het komt dat jouw ichaam verandert de risico s zi n en wat je er aan kan doe Maak tegel jk kennis met ons!

Ga vandaag aan de slag voor een gezonder later

www ijfstij ing nl/workshops/

Provincialeweg 73 Maren-Kessel

www.lijfstijling.nl

Annemiek van der Voort 06-20299616

Unieke

Je hebt e nod g di al een de Li fSti lin

Geen ‘on

Als dat z het al gelukt Nieuwsgierig?

D R I E K U S
I J F S T I J L I N
G na jouw mogelijk?
‘Vrijwilligerswerk is voor een samenleving enorm belangrijk’

NOTARIS LOOPT MEE

IN HET LEVEN

Nog even en dan mag Kika Ham zich notaris noemen. Nu is zij nog kandidaat-notaris maar dat verandert wanneer zij de praktijk voortzet van Yvonne Vleeshouwers. Net als Yvonne is Kika gespecialiseerd in familierecht waarbij het afwikkelen van nalatenschappen een belangrijk deel van haar werk vormt. “Alleen mijn officiële titel verandert, verder eigenlijk niets want ik blijf doen wat ik al jaren en met veel plezier doe”, zegt Kika.

door Herman van Dinther

Kika (42): “Als notaris loop je mee in het leven van de mens. Bij veel mijlpalen in een mensenleven komt er een notaris om de hoek kijken. Wanneer je gaat trouwen, een huis koopt, een bedrijf begint, gaat scheiden, bij het maken van een testament en het afwikkelen van de nalatenschap bij overlijden. We hebben heel veel cliënten die we begeleiden en dat gaat bij wijze van spreken van de wieg tot het graf.

Ieder mens is anders en elk testament is met een andere reden gemaakt. Wat mij daarbij boeit is niet zozeer het juridische aspect maar juist de menselijke emotie. Ik verwonder me elke dag over de wil van mensen om hun verhaal te delen, dat maakt mijn werk bijzonder.”

Tranen

“Op mijn kantoor heb ik altijd tissues bij de hand want de emoties kunnen bij een gesprek aan de tafel in mijn kamer hoog oplopen en dat veroorzaakt natuurlijk soms wel tranen. Dat kunnen uitingen van verdriet maar ook van vrolijkheid zijn. En natuurlijk raakt mij dat ook wel, al neem ik mijn werk niet mee naar huis, ik wil er niet van wakker liggen. Soms is dat weleens moeilijk want er komen natuurlijk best heftige situaties aan bod. Ik kan daar niet over uitweiden want ik ben enorm voorzichtig met de privacy van onze cliënten. Bij de afwikkeling van nalatenschappen komen we heel verschillende situaties tegen. Wanneer er een testament is, dan is meestal vrij snel duidelijk hoe we een en ander kunnen afwikkelen. Maar het komt ook voor dat er geen testament is en dat we een zoektocht moeten opzetten om te achterhalen wie erfgenamen zijn en waar die wonen. Dat kan soms een kwestie van heel lange adem zijn wanneer er tientallen of meer moeten worden opgespoord. In een aantal gevallen wordt ons kantoor ook ingeschakeld bij het afhandelen van de totale nalatenschap waarbij ook de woning leeg moet worden opgeleverd en alle administratieve rompslomp moet worden ontward en bijvoorbeeld abonnementen en overeenkomsten moeten worden opgezegd. Die klus nemen we ook op ons, zij het dat we voor een piëteitsvolle woningontruiming een betrouwbare partner inschakelen. ”

Rosmalen

Kika: “Ik ben geboren en getogen in Rosmalen en ben daar altijd blijven wonen. Ook toen ik na het St. Janslyceum ging studeren in Nijmegen waar ik aan de Radboud Universiteit de master Notarieel Recht haalde en daarna in Tilburg Fiscaal Recht deed. Na een tussenstap in Goirle en Tilburg zette ik in 2015 de stap naar Hoffspoor Notarissen in Rosmalen en kwam dus weer “thuis”. Wonen doe ik hier ook met plezier met mijn man Morris en twee tweelingen van elf en dertien jaar. Vorig jaar juni ben ik toegetreden tot de maatschap die verder bestaat uit Pieter Heeringa, Rogier Stollenwerck en IJvonne de Jong die onze vestiging in Sint-Michielsgestel voert. Er zijn drie kandidaat-notarissen en ongeveer vijfentwintig medewerkers aan ons kantoor verbonden.”

Maatschappelijk kantoor

Kika: “Mijn verbondenheid met Rosmalen vind ik een groot voordeel. Je kent veel mensen en bent ook op de hoogte van knelpunten die in de samenleving soms bestaan. Daarnaast beseffen wij heel goed dat de samenleving wordt gevormd door mensen voor wie het verenigingswerk enorm belangrijk en verbindend is. Daarom doen wij regelmatig bepaalde werkzaamheden gratis of tegen verlaagd tarief bij initiatieven die de samenleving ten goede komen. Bijvoorbeeld wanneer een stichting met een ideëel doel wordt opgericht, dan helpen wij graag. Mijn twee zoons zijn verenigingsmensen, die spelen rugby op topniveau bij The Dukes en zitten op het Rodenborch-College waar voor topsport-talenten een aangepast leerprogramma bestaat. Zelf heb ik lang damesvoetbal gespeeld en tegenwoordig tennis ik bij TV Rosmalen. Wat ik in mijn vrije tijd ook belangrijk vind om te doen is het secretariaat van de Vereniging Rosmalense Ondernemers, daar haal ik ook voldoening uit. Maar dat doe ik ook uit mijn vrijwilligerswerk bij de Alzheimer Stichting waar ik als expert verbonden ben aan de website dementie.nl. Dat is weliswaar ook een invulling van mijn werk door het beantwoorden van vragen maar het geeft mij een goed gevoel om op die manier mensen te kunnen helpen.”

foto Karel Goossens

EXPOSITIE ‘DE DOORBRAAK’ BIJ KUBRA-ART

Tot en met 5 mei toont KuBra-Art kunstwerken van 13 Brabantse Kunstenaars tijdens de expositie ‘De Doorbraak’ in de vernieuwde, vergrote galerie aan Achter de Driesprong in Rosmalen.

De expositie ’De Doorbraak’ verwijst naar het samenvoegen van Achter de Driesprong nummer 9 en nummer 10, door middel van een letterlijke doorbraak! De opening wordt medio april groots gevierd.

De expositie zit boordevol diversiteit, een indrukwekkende blik in vele kleuren, stijlen en materialen. De expositie in de KuBra-Art Galerie, Achter de Driesprong 9-10 in Rosmalen loopt tot en met 5 mei en is gratis te bezoeken van woensdag tot en met zaterdag van 11.00 tot 17.00 uur.

De expositie biedt een breed scala aan kunstwerken, waaronder mixed-media schilderijen met een 3d effect, abstracte schilderijen, realistische schilderijen met stillevens in olieverf op paneel, tekeningen met houtskool en pastelkrijt, mozaïekkunst, Urbex fotografie, abstracte en figuratieve sculpturen van keramiek, brons, textiel, kunsthars, brons, steen en aardewerk. Daarnaast zijn er ook een groot aantal unieke kleine kunstwerkjes te zien van 16 regionale kunstenaars.

‘SPRING OF COLORS’ GRAFFITI JAM

Ontdek de bruisende wereld van straatkunst tijdens de tweede editie van de Kings of Colors ‘Spring of Colors’ Graffiti Jam. Op zaterdag 6 april zal de Bossche Hall of Fame bij stadion de Vliert worden omgetoverd door ruim 30 graffiti kunstenaars die nieuwe kunstwerken creëren.

Mis deze kans niet om hoogstaande straatkunst te bewonderen terwijl het gemaakt wordt of doe mee aan een van de workshops. Iedereen is van harte welkom, kom dus ook!

Line up Spring of Colors 2024 (deelname is uitsluitend op uitnodiging van Kings of Colors): Sket – StayLo – YorkOne – Mek – Jack – Tcha – Briks – Dreft – Gart Smits – Dylan Kroese –

Goner – SlizerOne – Perisablerush – Dominique

Latoel – Paul Watty – Ard Doko – Myka – Ding

– Satoe – Studio Zepa – Dopie – Esone – Davor Smoljan – Naomi King – Loes van Reijmersdal

– RavenMilo – Beurtbalkje – Anouk Brand –GNPM Artwork

Spring of Colors 2024 wordt mede mogelijk gemaakt door Gemeente ‘s-Hertogenbosch (Fonds Lokaal Effectief), Montana Colors en Henxs (Montanashop Amsterdam)

Wil je altijd al je eigen graffiti maken? Doe dan mee met een van onze gratis workshops. We bieden 4 workshops aan en iedereen vanaf 9 jaar kan deelnemen. Aan elke workshop kunnen maximaal 15 personen deelnemen. Inschrijven voor een workshop kan vanaf 30 minuten voor aanvang van de betreffende workshop. Ben er op tijd bij want vol is vol.

Workshop 1: van 11.00 tot 12.30 uur

Workshop 2: van 13.00 tot 14.30 uur

Workshop 3: van 15.00 tot 16.30 uur

Workshop 4: van 17.00 tot 18.30 uur

Waar? Voetgangerstunnel aan de Victorialaan in de Graafsebuurt Noord, direct achter het FC Den Bosch stadion.

THUISVOELEN BIJ DE DAMES VAN HURKMANS

Een autobedrijf, met alles onder één dak, wat speciaal gericht is op vrouwen. Uniek in Nederland, maar voor Janita (45) en Mariëlle Hurkmans (47) inmiddels doodnormaal.

De Dames van Hurkmans ontvangen hun klanten met net wat meer aandacht. “Je moet je bij ons thuis voelen.”

door Mark van der Donk

Alweer acht jaar geleden is het dat Janita en Mariëlle misschien wel de mooiste tijd van hun leven doormaakten. De start van hun eigen onderneming was spannend, maar ze kijken er tegelijkertijd met een gelukzalig gevoel op terug. “We wilden, na jarenlang elders in het familiebedrijf werkzaam te zijn geweest, iets nieuws beginnen. Maar wat maakte ons uniek, waarom moesten klanten voor ons kiezen?

Er kwam een DNA-boek aan te pas, onze merkenstrategie werd bepaald. Een heerlijke tijd, waarin het zaadje werd geplant voor wat nu De Dames van Hurkmans is.”

De zussen uit Heeswijk-Dinther kregen de liefde voor het autovak met de paplepel ingegoten.

“Genetisch belast”, noemt Janita het met een lach. Vader Albert en moeder José runden decennialang garages in Dinther, Nistelrode en Veghel, maar daar wilden hun oudste dochters na hun pubertijd dus écht niet gaan werken. “Toen we na de Havo niet wisten wat dan wel, gingen we toch maar de IVA (een managementopleiding voor de autobranche, red.) volgen. Dat bleek een schot in de roos.”

Mariëlle stroomde in bij het schadebedrijf, Janita vond haar weg in het dealerbedrijf in Veghel. “Tot we op een gegeven moment samen iets nieuws wilden beginnen, wat een toevoeging zou zijn voor ons familiebedrijf, maar wat we zelf echt konden ontwikkelen. We wilden naar de grote stad, dat werd Den Bosch. Maar er zijn 3.400 autogarages in Nederland en we dachten: waarmee kunnen we ons onderscheiden?” Het antwoord op die vraag was een universele, niet merk gebonden, garage met de combinatie van verkoop, onderhoud én schadeherstel. En… een die speciaal gericht is op vrouwen.

Aandacht en oprechte interesse

De zussen startten zonder personeel, met slechts één monteur in de garage. “Maar vanaf dag één stonden we in de picture. We werden gebeld door kranten en tijdschriften, radio en televisie, geïnterviewd door Powned en Edwin Evers. Het concept bleek gelukkig bij heel veel mensen aan te slaan.”

Het geheim van De Dames van Hurkmans? “Die vraag hebben we onze klanten ook gesteld. Ze noemden vooral de aandacht en oprechte interesse. Waar bij andere autobedrijven de

verkoper vaak voornamelijk aan het woord is, luisteren wij echt naar de klant. Elders durven mensen dat meestal niet, maar bij ons is er volop gelegenheid tot het stellen van vragen. Verder roemden ze onze aankleding, de schone toiletten, het lekkere bakje koffie. Voor ons eigenlijk hele normale dingen, maar vrouwen voelen over het algemeen nou eenmaal meer. Je moet je bij ons thuis voelen. We zeggen niet voor niks altijd: eerst de klik, dan het blik.” Het meisjesboek, zoals de zussen het zelf noemen, is nog lang niet gesloten. “Het team is inmiddels uitgegroeid naar 14 personeelsleden. Onze zus Stephanie (32) werkt op kantoor, met alleen maar andere vrouwen, en ook in de werkplaats proberen we dat percentage zo hoog mogelijk te houden. Regelmatig lopen vrouwelijke stagiaires mee bij ons. Wij weten hoe zij moeten knokken in deze branche, dat ze regelmatig tegen muren aan lopen, en willen ze stimuleren in het najagen van hun droom. We geven ook geregeld presentaties over ons project. In het hele land, op scholen en bij gemeentes. Daarnaast hebben we onze eigen workshop ‘Panne zonder mannen’, waarin we groepen vrouwen uitleg geven over schade, vloeistoffen, banden en in een ongedwongen sfeer van tips en tricks voorzien.”

Snoepwinkeltje

Uit de hele regio (en zelfs daarbuiten) weten mensen De Dames van Hurkmans te vinden. “Laatst was er een vrouw uit Haarlem in de zaak. Ze was door ons geholpen bij schade en vond het hier zó fijn dat ze is blijven hangen. Ze rijdt met plezier vele honderden garages voorbij voor het jaarlijkse onderhoud.”

De kracht van het bedrijf is dat het zich richt op het complete plaatje. “We verkopen ieder merk, helpen bij schade en het verzekeringswerk. En ja, we richten ons voornamelijk op vrouwen. Maar mannen - ongeveer een derde van onze klanten - zijn ook meer dan welkom, hoor. Het gaat er bij ons alleen nou eenmaal net wat anders aan toe. Ons pap moest in eerste instantie even slikken toen wij onze plannen vertelden, maar hij was al snel helemaal om. Die zegt, voorafgaand aan een bezoekje aan Den Bosch, niet voor niks tegen ons mam: kom, we gaan even naar het snoepwinkeltje.”

foto Karel Goossens
onder één dak, speciaal gericht op vrouwen
Alles
foto Karel Goossens

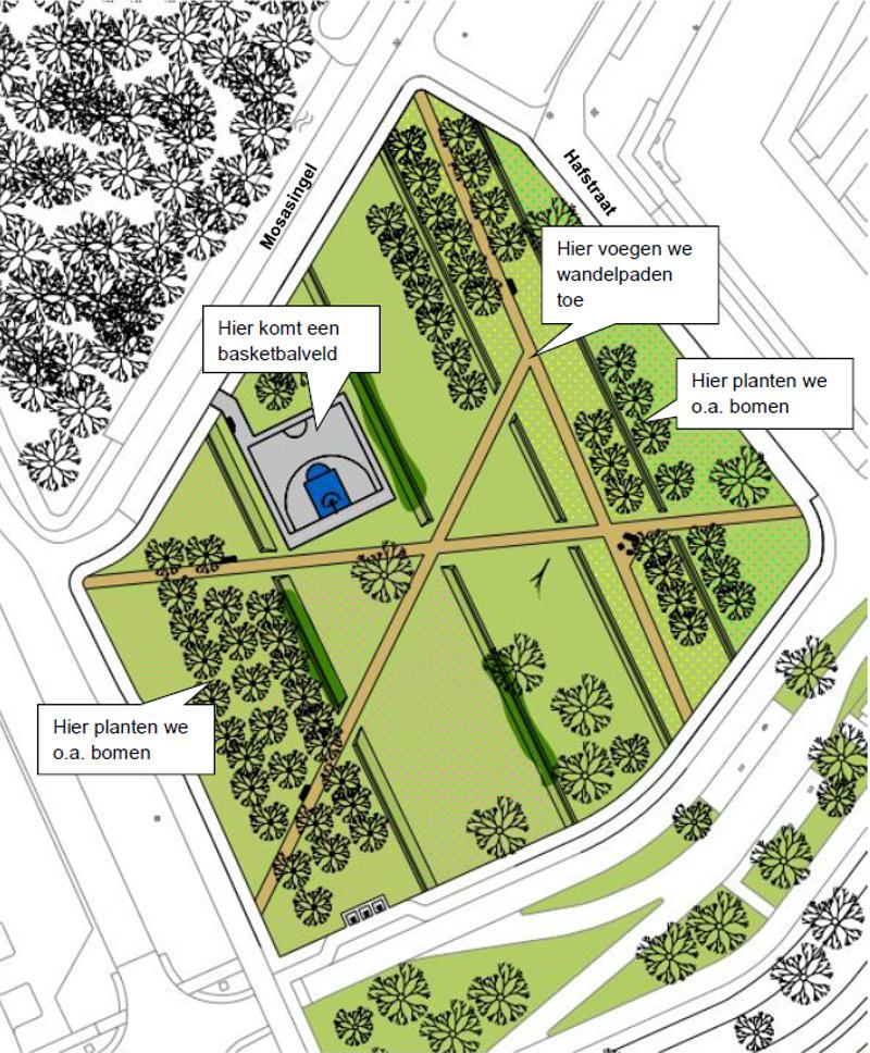
VAN SUPERMARKT NAAR PARK MET BASKETBALVELD

Geen winkelkarretjes en boodschappentassen meer aan de Vlietdijk. Het voormalig supermarktterrein wordt een park om te bewegen, te ontmoeten en te ontspannen. De herinrichting is inmiddels gestart en duurt tot de week na Pasen.

Het voormalig supermarktterrein wordt een park met basketbalveld, 81 bomen, nieuwe wandelpaden en wadi’s om overtollig regenwater op te vangen. Op de Mosasingel komt fraaie stenen bestrating in plaats van afvalt. Op de afbeelding ziet u hoe het park eruit gaat zien.

Tijdens de werkzaamheden wordt een deel van de Mosasingel tijdelijk afgesloten, verkeer wordt omgeleid met borden. Omrijden is mogelijk via de Groote Wielenlaan en de Hafstraat.

Vragen? Mail naar: openbareruimte@shertogenbosch.nl. Bellen kan ook. Naar de heer Gros met vragen over werkzaamheden: 06-29110597. Of naar de heer Voncken met vragen over het ontwerp: 06-46971611.

NU NADENKEN OVER STRAKS

Mensen worden steeds ouder en wonen langer thuis. Ook in onze gemeente. Hoewel het natuurlijk fijn is om zolang mogelijk in uw eigen vertrouwde omgeving te wonen, kan dit ook uitdagingen met zich meebrengen. Gelukkig is er veel mogelijk. Hulpmiddelen, maar ook ondersteuning kan hepen. Wat er allemaal kan wil men u graag laten zien.

Iedereen wil zo lang mogelijk zelfstandig kunnen wonen. Nu is het moment om na te denken over straks. Wellicht denkt u al na over de toekomst en heeft u vragen als “Hoe doe ik boodschappen als ik niet meer goed ter been ben”? “Wie houdt de tuin bij als ik hier zelf niet meer toe in staat ben?”. “Wat kan ik doen om fijn in mijn huis te blijven wonen”.

Om u te helpen op deze vragen een antwoord te vinden komt de komende weken een SRV-wagen vol (technologische) hulpmiddelen langs bij u in wijk en dorp. U kunt er in gesprek gaan en advies krijgen waar nodig. U kunt zelf meer doen dan u denkt en dat laat men u graag zien.

De SRV-wagen is van 10.00 tot 13.30 uur op de volgende plekken aanwezig:

Woensdag 3 april Rosmalen – De Driesprong

Dinsdag 9 april Nuland – Pr.Bernhardplein (of AH)

Woensdag 10 april Vinkel – Parkeerplaats Coop

Dinsdag 16 april Centrum Den Bosch – Markt

Woensdag 17 april De Groote Wielen – Het Frontier

ArtsLommelen

ArtsLommelen

Uitvaartverzorging

Uitvaartverzorging

073-6893597

06-53616114

www.artslommelen.nl regio ’s-Hertogenbosch e.o.

www.artslommelen.nl

regio ’s-Hertogenbosch

transparant - oprecht - inspirerend - flexibel

Afscheid nemen met kinderen

Afscheid nemen met kinderen

Persoonlijke betrokkenheid

Kinderen zijn kwetsbaar en we willen ze graag beschermen. Soms verloopt het leven anders en worden kinderen, soms op jonge leeftijd, al geconfronteerd met het levenseinde.

ken bij het afscheid en de uitvaart. Ze horen er gewoon bij en kunnen eventueel een actieve rol spelen.

Kinderen zijn kwetsbaar en we willen ze graag beschermen. Soms verloopt het leven anders en worden kinderen, soms op jonge leeftijd, al geconfronteerd met het levenseinde.

ken bij het afscheid en de uitvaart. Ze horen er gewoon bij en kunnen eventueel een actieve rol spelen.

verzacht het verdriet...

Ik verzorg uitvaarten met zorg en aandacht.

Door ArtsLommelen Uitvaartverzorging worden kinderen op een ongedwongen manier betrok-

Door ArtsLommelen Uitvaartverzorging worden kinderen op een ongedwongen manier betrok-

samenbetrokkenrespectvol -

Vragen? Neem contact op voor een vrijblijvend gesprek. Ook als u niet, of elders verzekerd bent. Wij zijn dag en nacht bereikbaar.

Samen met een klein team van medewerkers draag ik zorg voor een passend afscheid wat past bij het geleefde leven, uw wensen en budget. Neem contact op voor een vrijblijvend gesprek.

integer - luisteren - rust - met hart en ziel - onafhankelijkvertrouwenprofessioneel

Vragen? Neem contact op voor een vrijblijvend gesprek. Ook als u niet, of elders verzekerd bent. Wij zijn dag en nacht bereikbaar.

Elke dag testdag in onze Superstores 3500 m2 indoor fietsplezier Gratis parkeren voor de deur DE LAAGSTE PRIJS OP FIETSEN ÉN E-BIKES! m Gazelle Ultimate C8+ HMB 2024 3799,- 3449,BESPAAR 350,-

MIJN INSTRUMENT

COLOFON

ThuisinhetNieuws

Maggezien is een niet-commerciele uitgave voor u, door u, over u

onder redactie van NieuwsNetwerk BV redactie@nnmedia.nl

mag uw mooie advertentie of bedrijfsreportage

ook gezien worden?

Neem dan eens vrijblijvend contact op met Karel Goossens 06-12112937 of mail ons via redactie@nnmedia.nl

U zult zich verbazen over de vele mogelijkheden en de bescheiden prijzen!

De uitgever accepteert geen aansprakelijkheid voor de inhoud van advertenties en door derden aangeleverde teksten. Wij verzoeken u vooraf te controleren of uw materiaal daadwerkelijk rechtenvrij is. Door aanlevering verklaart inzender dat het aangeleverde materiaal vrij van rechten gebruikt kan worden en de uitgever aldus te vrijwaren van o.a. auteurs- en beeldrechtelijke aanspraken.

doet u met ons mee?

Voor een persoonlijk afscheid met respect voor elke wens

Maggezien wordt gemaakt door een enhousiaste vrijwilligersclub. Wij willen onze horizon graag verbreden en zoeken uitbreiding voor ons team redacteuren en acquisiteurs. Een vrjijwillgersvergoeding en vergoeding van onkosten is voorzien Meer info via 06-37410335

HET AFSCHEIDSHUIS

Proosdijstraat 12 ’s-Hertogenbosch | 073 888 5808 | 06 203 608 92 | info@paulienuitvaart.nl www.paulienuitvaart.nl www.hetafscheidshuisdenbosch.nl

Wij hebben ons uiterste best gedaan alle rechthebbenden van beeldmateriaal te achterhalen. Wanneer desondanks beeldmateriaal wordt getoond waarvan u (mede-) rechthebbende bent en voor het gebruik geen toestemming is verleend, verzoeken we met ons in contact te treden.

volgende uitgave wordt verspreid vanaf 13 mei kopij inzenden t/m 2 mei

deze en alle eerdere uitgaven zijn digitaal te bekijken en te downloaden via https://issuu.com/thuisinhetnieuws

© alle rechten voorbehouden 2024

Gewoon ge-DREVEN is van mening dat het huidige waarschuwings- en alarmeringssysteem behouden moet blijven. Niet iedereen is digitaal vaardig of heeft te alle tijden beschikking over een mobiele telefoon. Een combinatie van het luchtalarm en een NL-alert zorgt voor een groter bereik en geeft de overheid meer waarschuwingsmogelijkheden in het geval van een calamiteit.

Dé politieke partij met extra aandacht voor het gebied aan de oostzijde van de A2.

Heb jij een vraag, een probleem, een goed idee?

Wil je een keer een vergadering van onze partij bijwonen?

Neem gerust even contact op gewoongedreven@gmail.com

Toen David Savage (54) twee jaar geleden zijn resonator aanschafte, was hij op slag verliefd. “Tijdens het schrijven van een lied op een akoestische gitaar hoorde ik in mijn hoofd al het geluid van zo’n resonator”, vertelt de in Rosmalen woonachtige singer-songwriter, die opgroeide in de Verenigde Staten, maar al sinds 1996 in Nederland is. “Al van jongs af aan schrijf ik liedjes, een kruising tussen country en blues. Muziek is voor mij emotie, een manier om de gekke dingen in de wereld te verwerken.”

De resonator is meestal een metalen instrument, maar de body van de National M1 Tricone is van mahonie. “Dat zorgt voor een warmere klank. Door de drie ingebouwde cones is er meer galm, een bluesiër, gaaf geluid.” Het kostte David de nodige moeite om er eentje op de kop te tikken. “Destijds verschenen er maar enkele per jaar op de markt in Europa, dus moest je er meteen bovenop springen. Zéker geen spijt

dat ik dat gedaan heb. Dit is een prachtig, heel bijzonder type.”
foto Karel Goossens
Er is weer leven in de brouwerij, ….eh Boerderij

WEER LEVEN IN BOERDERIJ VAN COUDEWATER

Het restaurant aan de Peter de Gorterstaat, dat behoort bij het Land van Coudewater is nieuw leven ingeblazen. Het was sinds juni vorig jaar gesloten omdat de exploitant door de naweeën van corona het niet meer kon bolwerken. “Maar wij missen de locatie als ontmoetingsplaats enorm”, zegt Mathijs Gerritzen die namens de ontwikkelaars nauw betrokken is bij het inrichten van het landgoed. door Herman van Dinther

Mathijs (37): “We kwamen op een gegeven moment in contact met Elke Harleman, directeur van Buro3o dat een geschiedenis heeft op Coudewater. Elke (60): “Voordat wij als jeugdzorginstelling het Bernadetteklooster in de Bernadettestraat tot onze beschikking kregen, gebruikten we op Coudewater een zestal locaties van GGZ Oost – Brabant. Onze organisatie heeft ongeveer achthonderd cliënten in de leeftijd van 0 tot 39 jaar die wij begeleiden en in een aantal gevallen huisvesting en dagbesteding bieden. Wij hebben dus altijd nauwe banden gehad met het landgoed Coudewater en dat krijgt in de toekomst nog concreter vorm. Door het contact met Mathijs gaat onze samenwerking ook gestalte krijgen in onze betrokkenheid bij CW De Boerderij als horecapunt.”

Ervaring

“Wij hebben in 2020 bij ons klooster een theetuin geopend waar een aantal cliënten werk in vindt. Die theetuin is een fijne locatie en een aanwinst voor de wijk Maliskamp maar trekt ook veel recreanten die graag wandelen of fietsen. Onze cliënten werken er met veel plezier. We verkopen er ook koekjes en gebak dat in onze eigen professionele keuken wordt bereid. Ook tappen we er een biertje dat wij zelf brouwen in onze eigen volwaardige brouwerij die sinds kort ook gevestigd is in CW De Boerderij. Uwe, een ervaren brouwer leidt daar een team van cliënten die er lol in hebben om ons eigen bier te brouwen.

Zo hebben we gaandeweg ervaring opgedaan in de horeca die ons van pas komt nu wij sinds 20 maart de exploitatie van de horeca faciliteit zijn gaan doen. Wilbert, die zijn sporen in de horeca meer dan verdiend heeft geeft leiding aan een team van vier á vijf mensen die de gasten ontvangen en bedienen. Mensen kunnen hier terecht voor koffie, thee, taart, een lunch en een lekker drankje waaronder dus ook ons eigen bier.”

Sociale meerwaarde

Mathijs: “Het is niet voor niets dat wij samenwerking met Buro3o hebben gezocht en dat wij het pand verhuren tegen een sociale huurprijs. Wij hebben er namelijk belang bij dat toekomstige bewoners en potentiële kopers van

de woningen hier moeten kunnen kijken naar de vorderingen van de bouw en de ontwikkeling van het Landgoed. Dan is het natuurlijk wel zo fijn wanneer zij er ook onder het genot van een hapje en drankje kunnen dagdromen over hun toekomstige woonlocatie. We hebben intussen ongeveer tweehonderd van de vierhonderd woningen verkocht en die mensen blijven uiteraard graag op de hoogte door regelmatig een kijkje te nemen. Wij vinden het fijn dat dit nu dus weer kan in een pand dat in de toekomst een grondige renovatie krijgt. Voorlopig is De Boerderij dus een pop up waarmee tevens onderzocht wordt of er in de toekomst plek is voor een permanente horeca bestemming. Wij gaan in de loop van dit jaar de plannen en ideeën verder uitwerken en mogelijke huurders of kopers polsen.” “Wie weet”, vult Elke aan, “is dat ook een optie voor onze instelling om in te stappen.”

Toekomst

Mathijs: “Voorlopig gaan we dit jaar ervaring opdoen en wie weet nog wat langer want alle bestaande panden krijgen een grote opknapbeurt, dus wanneer De Boerderij aan de beurt is weten we nog niet precies. Maar we zijn heel blij dat we met Buro3o deze samenwerking hebben gevonden omdat wij er ook erg aan hechten dat we een sociale meerwaarde kunnen bieden aan de wijk. Het biedt ook aan de jonge bewoners van Buro3o de ruimte om hun ervaring in de horeca uit te breiden en dat gaat onder de bezielende leiding van Wilbert zeker lukken. Het is ook een mooie combinatie met het werk van de brouwers die op dezelfde locatie aan het werk zijn. Het kan elkaar versterken in hun gezamenlijke doelstelling om goed en lekker aan de slag te zijn. Het ontmoetingsaspect is daarbij een rode draad, niet alleen onderling maar ook met andere mensen.”

Toetsen

Elke: “We zijn de hele week open behalve op maandag en dinsdag. We beginnen van 10.00 tot 17.00 uur maar wanneer in de praktijk blijkt dat er andere behoeften zijn dan gaan we daar zeker mee aan de slag. Het is zeker niet zo dat wanneer er om vijf uur nog volop mensen zijn dat we dan geforceerd sluiten. Flexibiliteit is ook bij ons een belangrijke voorwaarde.”

foto Karel Goossens

KOKKERELLEN

KONINGIN VAN DE GROENTEN

Tjonge jonge wat hebben we een partij regen gehad de afgelopen maanden. 3 keer heeft het hoge water bij ons aan de Maas tot diep in de achtertuin gestaan. Bij de KMNI zijn er weer wat records verbroken, maar op het moment dat ik het menu aan het schrijven ben voor deze Maggezien is het de afgelopen dagen een stuk beter en hebben we zelfs af en toe van het mooie voorjaarszonnetje kunnen genieten. De aspergevelden zijn nog wel wat modderig maar inmiddels zijn toch de eerste Brabantse asperges gestoken van de koude grond! Die zon bepaalt de komende weken de groeispurt van de asperge, maar.. we hebben gelukkig nog tot 24 juni de tijd om te genieten van de koningin van de groentes!

In de voorgaande Maggezien’s is al genoeg geschreven over deze heerlijke delicatesse, vandaar nu eens een ode aan de asperges in gedichtvorm:

“De verliefde asperge”

Ik lag met jou in het zelfde bed

We sliepen wel rechtop

Jij stak er net wat bovenuit

Vandaar jou blauwe kop

K’was stapel op jou lange lijf

Dat mag je nu best weten

Ik vond jou echt een reuze wijf

Gewoon om op te vreten

Laatst droomde ik de hele nacht

Aan een stuk over jou

Jij werd mijn bruid, mooi in het wit

Omdat ik van sleepasperges hou

Plots werd mijn droom heel bruut verstoord

T’einde van onze mooie liefdesbeleving

We werden allerbij vermoord

Door zo’n kweker van “Smeding” (hofaspergeleverancier van de Sligro)

We werden in een kist gelegd

En spoedig daarna gewassen

Mijn rug was krom, de jouwe recht

Jij werd ook eerste klasse

Wat wreed toch van zo’n kweker

Ons zo uiteen te rukken

Ik heb jou daarna nooit meer gezien

Want ik lag bij de stukken

Weet je wat ik nou het gekke vindt

T’is eigenlijk heel stom

Terwijl ons leven in de grond begint

Is dat bij de mens... Net andersom.!

Dit gedicht stond op de binnenkant van de aspergekaart van testaurant ‘De Coelenborgh’ in Rosmalen en is tevens een ode aan alle mooie en culinaire asperge-seizoenen die we destijds hebben mogen beleven!

KALFSOESTER MET ASPERGES EN BEARNAISESAUS

Ingrediënten

• 4st kalfsoesters

• zout & peper

• 8 asperges, dubbel AA kwaliteit

• 300 ml Hollandaise (knorr of vers maken)

• 10 takjes verse dragon

• Scheutje dragonazijn (naar eigen smaak!)

• Scheutje port

• 8 stuks bimi (broccolischeuten)

• 150g doperwten

• boter

Bereidingswijze

• Maak de groenten schoon en snijd ze in gewenste vorm.

• Blancheer de groenten afzonderlijk van elkaar beetgaar en breng ze op smaak.

• Kruid de kalfsoesters met wat zout en peper en bak ze in de geklaarde boter. Als ze mooi rosé zijn blus dan het braadvocht af met een scheutje port.

• Laat de kalfsoesters even rusten onder een stukje alluminiumfolie.

• Verwarm de Knorr (of klop de verse) Hollandaise saus en pluk de dragonblaadjes en snijd ze fijn.

• Voeg de dragon en een scheutje dragonazijn (naar eigen smaak) toe aan de Hollandaisesaus en die noemen we nu een bearnaisesaus.

• Snijd de kalfsoesters en verdeel ze met aanhangende jus over de borden.

• Verdeel de groenten erbij en maak af met de Bearnaisesaus.

Joep van der Plas

VOORJAARSPROEVERIJ BEUKENHAEGHE WIJNEN

In 2023 zijn er weer twee mooie wijnproeverijen georganiseerd, met op tafel zeer diverse wijnen (verschillende druiven of dezelfde druiven, maar dan uit een ander land of klimaat). Wat ik als zeer positief ervaren heb is dat er voor elke wijn wel een liefhebber was. Dit betekent voor Beukenhaeghe Wijnen 2.0 dat we voor iedereen wel een ‘lekker’ wijntje in ons assortiment hebben.

6 en 7 april bent uw welkom op onze voorjaars wijnproeverij. Deelname is kostenloos. U moet zich wel inschrijven op onderstaand mailadres. Daarna ontvangt u de bevestiging van uw inschrijving met locati.

Wilt u meer weten over heerlijke wijnen ga naar onderstaande website of neem contact op met info@beukenhaeghewijnen.nl

Bert van Druenen

Kennedylaan 15

5242 BK Rosmalen

06-51604631

beukenhaeghewijnen.nl

OPSCHOONDAG LEVENSBOMENBOS

Het is lente en het Levensbomenbos kriebelt. Iedereen is van harte welkom om te helpen de bomen te laten groeien. Op 7 april van 11.00 – 13.00 uur wordt de grond rondom de bomen onkruidvrij gemaakt. Je hoeft hier geen ‘groene vingers’ voor te hebben, wel een paar werkhandschoenen want het is handwerk. Voor de koffie en de koek wordt gezorgd en men zal met plezier vragen over het bos, alle beestjes die er rondscharrelen en de toekomstplannen voor het bos, beantwoorden. Fijn als je per mail even laat weten dat je komt en met hoeveel (mail: info@maartenpieters.nl). Vermeld in de onderwerpregel ‘Levensbomenbosch’.

LACHEN VOOR HET GOEDE DOEL

Op zondagmiddag 7 april vindt in de Kentering in Rosmalen een geweldige tonpraotmiddag plaats ten bate van de stichting Energy4all. Doel is om voor Jenske van de Ven en haar lotgenootjes het medicijn voor kinderen met een energiestofwisselingsziekte vlug op de markt te krijgen. Daar is veel geld voor nodig. De eindstreep is in zicht en het medicijn is er bijna.

Hans Eijkemans heeft zes bevriende tonpraottoppers bereid gevonden om belangeloos mee te werken aan dee benefietmiddag. Ook is er nog een muzikale verrassing in de pauze. Dit wil je toch niet missen? Wil je er bij zijn dat kan. Stuur een mail naar hanseijkemans1952@ gmail.com. Vermeld de naam waarop de kaarten moeten worden gereserveerd, het aantal kaarten en je gsm nummer. Je ontvangt een bevestiging via de mail met de stoelnummers. Op je 06 nummer krijg je een betaalverzoek. Na betaling staat de reservering vast. Jenske en haar lotgenootjes zijn je er dankbaar voor.

Voor een persoonlijk afscheid met respect voor elke wens

HET AFSCHEIDSHUIS

Proosdijstraat 12 ’s-Hertogenbosch | 073 888 5808 06 203 608 92 | info@paulienuitvaart.nl www.paulienuitvaart.nl | www.hetafscheidshuisdenbosch.nl

In een testament legt u vast wat er ná uw overlijden met uw nalatenschap moet gebeuren, maar wat als u tijdens uw leven, door een ongeluk of door ziekte, niet meer in staat bent om belangrijke zaken zelf te regelen? In een levenstestament kunt u uw wensen vastleggen voor het geval er tijdens uw leven iets gebeurt waardoor u zelf niet meer kunt handelen. Ook als u bepaalde zaken zelf niet meer wilt regelen en het prettiger vindt dat een ander dat voor u doet, kan het levenstestament uitkomst bieden. In al deze situaties is het voor uw naasten van belang om te weten wat uw wensen zijn. Een levenstestament is een testament dat van belang is tijdens leven.

Een levenstestament wordt (net als een gewoon testament) vastgelegd in een notariële akte. Het is voor iedereen een bewijs dat u op het moment van ondertekenen van de akte wilsbekwaam was en dat u de akte zelf ondertekend heeft. U was in staat om uw wensen kenbaar te maken en om de gevolgen daarvan te overzien.

In een levenstestament kunt u een vertrouwenspersoon aanwijzen die namens u handelt. Aan de vertrouwenspersoon geeft u bij het levenstestament een volmacht. U kunt in het levenstestament tevens aanwijzingen geven aan uw vertrouwenspersoon. Daarnaast kunt u uw wensen vastleggen en bepalen wanneer het levenstestament ingaat. Veel voorkomende bepalingen in het

levenstestament zijn: het regelen van uw dagelijkse financiën en belastingzaken; schenkingen die u wenst te (blijven) doen en onder welke voorwaarden; toestemming voor het al dan niet mogen verrichten van medische handelingen; instructies voor de verkoop van uw woning wanneer u er zelf niet meer zelfstandig kunt wonen; praktische zaken, zoals uw persoonlijke verzorging.

Op welk moment u besluit om een levenstestament te maken is heel persoonlijk. Het belangrijkste is dat u zaken op tijd regelt. Dat wil zeggen voordat u in een kwetsbare positie zit, bijvoorbeeld doordat uw lichamelijke of geestelijke toestand achteruit gaat. U moet nog goed in staat zijn om uw wil te bepalen. Neem de tijd om hierover na te denken en zo nodig te bespreken met uw partner, kinderen of iemand anders die de rol van vertrouwenspersoon op zich gaat nemen.

Wilt u meer informatie over het opstellen van een levenstestament, neem dan contact met ons op voor het maken van een afspraak voor een vrijblijvend gesprek. Dit kan op ons kantoor aan de Hoff van Hollantlaan 5 in Rosmalen of op ons kantoor aan de Groote Vlietlaan 3C in Rosmalen. Ook op dinsdag- en donderdagavond kunt u bij ons terecht.

Graag tot ziens!

Thera van Gerven

kandidaat-notaris

Hoffspoor Notarissen

www.hoffspoor.nl

HET BELANG VAN EEN LEVENSTESTAMENT

AI BIJ SENIORWEB

Ontdek de Wereld van Kunstmatige Intelligentie op 5 april tijdens een presentatie in de Ontmoeting. Tijdens deze presentatie zal de focus liggen op wat Kunstmatige Intelligentie te bieden heeft, de mogelijkheden en bedreigingen die ermee gepaard gaan en enkele praktische voorbeelden die u zelf kunt uitproberen. Bent u nieuwsgierig naar wat AI voor u kan betekenen? Deze bijeenkomst biedt een inzichtelijke kijk op de fascinerende wereld van AI. De toegang is gratis, maar vanwege beperkte ruimte vragen we u vriendelijk om vooraf aan te melden. Wees er snel bij, want er is slechts plaats voor maximaal 50 bezoekers. Meld u tijdig aan om teleurstelling te voorkomen. U bent welkom van 14.00–15.30 uur. Koffie of thee wordt u door HEVO aangeboden. U kunt zich aanmelden door te bellen met tel. 06 20356366 of via e-mail: info@seniorwebrosmalen.nl

RAFELRANDEN VAN EUROPA

Ivo van de Wijdeven is historicus en analist. Hij adviseerde jarenlang de minister-president en geeft commentaar voor verschillende media. Eerder schreef hij onder andere De macht van het verleden.

In Alle rafelranden van Europa werpt historicus Ivo van de Wijdeven een kritische blik op ons eigen verleden om te komen tot antwoorden op de grote bedreigingen van nu. Poetin en Xi maken een nationalistisch sprookje van hun geschiedenis. Maar welk verhaal vertellen we onszelf in Europa? En belangrijker: hoe geloofwaardig is dat verhaal in de rest van de wereld, die de zwarte bladzijden uit de Europese geschiedenis aan den lijve heeft ondervonden? Wie wil er in de toekomst nog samenwerken met Europa? Aan de hand van pakkende verhalen en heldere dwarsverbanden maakt van de Wijdeven op overtuigende wijze duidelijk waarom geschiedenis nooit alleen maar geschiedenis is. Op deze middag leer je hoe ons verleden nog steeds ons heden bepaalt en welke opdracht daarin besloten ligt voor de toekomst van Europa.

De lezing vindt plaats op zondag 28 april, aanvang: 14:00 uur in de Ontmoeting De toegang is gratis

‘EEUWIGE LENTEKRIEBELS’

Ook al worden we ouder toch willen we levenslang de Lentekriebels blijven voelen en daarom togen wij naar het Lenteconcert van Philzuid in het Theater aan de Parade. De eerste viool werd gespeeld door een dame op stilettohakken. De glitter-punten van haar schoenen bewogen gracieus mee op de maat van de muziek. Op de achtergrond van het podium werden sfeerbeelden getoond van de lente in de natuur. Anneleen Lenaerts vertolkte werken van Claude Debussy op haar harp. De dirigent, Samy Rachid, was speciaal overgevlogen uit Boston omdat de vaste dirigent zich ziek moest afmelden. Misschien kort door de bocht maar waarom heeft Philzuid niet aan de dirigent van Muziekvereniging St. Cecilia gedacht? Sandra van Luijtelaar is zeer goed in staat om muzikale lentekriebels op te wekken en kan na een telefoontje binnen het uur in Den Bosch zijn….

Philzuid zorgde voor een prachtige uitvoering, die effectief slechts één uur duurde. Dan is het heerlijk om weer op het fietske richting Rosmalen te stappen. Vervuld van de romantische orkestklanken, genietend van de avond en van elkaar en beseffend dat we hier in Nederland bevoorrecht zijn.

Als u dit leest is de Equinox al voorbij. Is dat een soort Spritz Aperol on the rocks zult u denken. Nee hoor, de astronomische lente begint op de dag dat de zon loodrecht op de evenaar staat. Op die dag duurt de dag en de nacht daar precies even lang. Die dag en die heuglijke gebeurtenis vond plaats op 20 maart. Ik ben geboren op 21 maart en voel me elk jaar opnieuw een Lentekind. Toen ik geboren werd zei Fientje d’n Bies dat ik geen gewoon Pietje maar een “Pepertje” was…..buitengewoon dus!

De lente is niet alleen één van de vier seizoenen maar een gevoel dat grenzen overschrijdt. Je lijf wordt na de winter eindelijk weer gekoesterd door de zon. Je voelt de weldaad in je huid kruipen. Het is een feest om in een beschut hoekje uit de wind en in de zon ’s-middags je boterham te nuttigen. Een ander feest is ‘Rokjesdag’ de dag der dagen die met rasse

schreden nadert. Martin Bril schreef er met bewondering over en iedere man verlangt naar het moment waarop winterse onooglijke panty’s de mottenballen ingaan. De dag waarop blanke vrouwenbenen gestreeld worden door de eerste lentezon boordevol vitamine. Niemand kan dat overtreffende gevoel van vrijheid en blijheid onderdrukken.

Proef het en beleef het en voel de broodnodige energie!!

Pasen is voorbij en de zomertijd is begonnen, iedere dag is het langer licht. Langzaam maar heel zeker scharrelen we richting de langste dag. Terrassen worden schoongepoetst, tuinmeubeltjes te voorschijn gehaald, zonnebril op de neus en petje op om het tere “kupke” te beschermen.

Tijd voor bezinning, tijd voor besef en tijd voor relativering. Het leven is kort. Zo kort dat het niet eerlijk is dat er zoveel mensen in armoede, honger en oorlog moeten overleven. Ik smeek iedereen om Gezond Boeren Verstand met als algemeen doel: Vrede, Geluk, Eten en Vrijheid!!

Peter der Kinderen

KOMEN EN GAAN…

SHANIA

VAN NULAND

Voetballen (keepen) is haar lust en haar leven. Shania van Nuland (26) groeide als Vinkels meisje uit tot internationaal profkeepster, die successen behaalde in Nederland, de Verenigde Staten en Spanje. Sinds kort speelt ze haar wedstrijden in Zwitserland, waar ze graag tijd vrijmaakte om haar verhaal te doen aan Maggezien.

door Mark van der Donk

Op 4-jarige leeftijd begon Shania al met voetballen bij EVVC. “Net als mijn oudere broer en zus. Mijn vader, vroeger zelf ook keeper, was er keeperstrainer, en bij ons thuis stond ieder weekend eigenlijk in het teken van voetbal. Ik keepte voor de lol wel eens mee en bleek talent te hebben. Op mijn tiende belandde ik, na een enkelblessure, op doel. We werden als eerste meisjesteam in de regio kampioen en ik ben altijd onder de lat blijven staan.”

Ze vertelt vol passie over haar carrière, waarin ze zich al op jonge leeftijd gestaag ontwikkelde. Via de meisjesvoetbalacademie van SteDoCo maakte Shania op 14-jarige leeftijd, als jongste speelster ooit, haar debuut in de Topklasse en na twee seizoenen bij hoofdklasser Prinses Irene in Nistelrode maakte ze de overstap naar de Amsterdamse topklasser SC Buitenveldert. “Dat was heel bijzonder. We wonnen in de beker, na penalty’s, van ADO Den Haag, in extremis pakten we de landstitel en ik werd verkozen tot de beste keepster van Nederland.”

In 2015 begon het buitenlandse avontuur, waar nog altijd geen einde aan is gekomen. “Vier jaar combineerde ik het keepen met een studie biologie aan de Niagara University, en ik was een zomer actief voor de Florida Gulf Coast Dutch Lions. De sportcultuur is daar geweldig.” Na een korte terugkeer in Nederland (bij eredivisionist SC Heerenveen) vertrok Shania in 2020 naar Spanje. Clubs in onder meer Tenerife, Sevilla en Alicante volgden. “Het avontuur en niveau van het buitenland trokken mij nou eenmaal erg aan. Voor het eerst mocht ik daar het leven van een profvoetballer ervaren. We speelden tegen Barcelona en Real Madrid, prachtig.” Ook het debuut voor het Nederlands elftal, met het Onder 16-team in Portugal, noemt ze heel bijzonder. “Uitkomen voor je land is iets heel

speciaals. Ik hoop overigens dit jaar de winst van de beker, de landstitel van Zwitserland én mijn debuut in de Champions League toe te voegen aan die hoogtepunten.” Afgelopen februari was er de toptransfer naar Servette in Genève. “Ik woon hier in een appartementje van de club, vlak bij het voetbalcomplex, met bijna al mijn teamgenootjes in de buurt. We hebben een heel internationale selectie, met speelsters uit Zwitserland, Portugal, Spanje, Frankrijk, Zweden, Schotland, Kroatië, Litouwen én Marokko, en gaan regelmatig wat eten of iets leuks doen, ideaal dus. Genève is een heel mooie, internationale stad.”

Heimwee

Shania leeft haar droom, maar geeft toe ook mindere periodes te hebben meegemaakt: “Natuurlijk is het niet allemaal positief. Negatieve ervaringen als blessures, ziekte en familieomstandigheden zijn extra moeilijk wanneer je ‘alleen’ in het buitenland zit. Toen ik in Amerika was, kwamen mijn opa en oma te overlijden. Op dat soort momenten mis je thuis wel heel erg. Sowieso is het ver weg van huis zijn soms moeilijk. Ook ik heb wel eens te maken met heimwee. Maar je leert er mee omgaan en je went er ook wel aan. Bovendien ben ik nu redelijk dicht bij huis, in Amerika was dat wat lastiger.”

Op Tenerife kreeg Shania te maken met drie maanden complete quarantaine. “In Spanje was de coronaperiode heel heftig. Ik zat helemaal alleen, ‘opgesloten’ in mijn appartementje, terwijl ik toen ook nog geen Spaans kon. Ik heb er ook bijna een jaar uitgelegen, door longembolieën. Gelukkig ben ik daar - na een hele zware en onzekere periode, met een lang herstel - weer helemaal bovenop gekomen, zonder langdurige gevolgen.”

Uiteindelijk is en blijft Nederland haar thuis, maar ook in de USA en Spanje is de keepster op haar plek. “De mentaliteit is Amerika is geweldig. Waar we in Nederland vaak zeggen ‘doe maar normaal, dat is al gek genoeg’, word je daar echt gestimuleerd. Het wordt je ook oprecht gegund om ergens de beste of heel goed in te zijn. Spanje is een heel ander verhaal, maar ik spreek de taal inmiddels vloeiend en de zon, het eten en de gastvrijheid, daar kan vrij weinig tegenop, haha. In het begin was het best even wennen aan de Spaanse instelling. ‘Tranquilo’ en ‘manana, manana’; de clichés zijn echt waar. Maar als je daar eenmaal aan gewend bent, dan is het heerlijk en lekker rustig vertoeven.”

In Zwitserland merkt ze juist weer het tegenovergestelde. “Naast het koude weer en de Franse voertaal kijk ik mijn ogen hier uit, met de besneeuwde bergen en het meer van Genève. Weer eens wat anders dan de zee. Alles is ook heel goed gestructureerd, georganiseerd en modern. Op sportief vlak is het ook super professioneel, dus het bevalt heel goed hier.”

Hobby werd werk

Enkel rondom de winterse feestdagen is Shania

tegenwoordig nog in Vinkel te vinden. “En in de zomerstop meestal een paar weken. Nee, het reizen ben ik nog niet beu. Ik maak zoveel mooie dingen mee en leer mensen kennen van over de hele wereld. Eigenlijk heel gek dat je, wanneer je thuis bent, vrienden en de omgeving in het buitenland mist. En als je in het buitenland bent, dan mis je juist weer je familie en vrienden van thuis. Met speciale gelegenheden nog wat meer, maar dat weegt voor mij niet op tegen de voordelen. De professionaliteit, infrastructuur, financiële middelen en het niveau van de Nederlandse Eredivisie vrouwen kunnen niet op tegen die in het buitenland. Als klein meisje uit een klein dorpje had ik nooit verwacht zo ver weg op zoveel mooie plekken te belanden en zoveel schitterende ervaringen op te doen.” De blonde doelvrouw hoopt voorlopig nog actief te blijven in het profvoetbal. “Ik ben 26, dus als keeper kan ik nog heel wat jaren mee. En voetballen is en blijft het mooiste wat er is. Als je van je hobby je werk kunt maken, dan zie ik - zolang ik daar nog plezier uit haal - geen reden om daar mee te stoppen.” Over wat ná het voetballen heeft de Vinkelse ook al nagedacht: “Ik heb mijn bachelor biologie afgerond in Amerika, dus ga ik graag in die richting aan de slag. Werken in het microbiologisch onderzoek lijkt me interessant. In Nederland of in het buitenland? De tijd zal het leren. Ik wil ook zeker betrokken blijven bij het (vrouwen)voetbal. Misschien als keeperstrainer. Met mijn bak aan ervaring denk ik veel toe te kunnen voegen aan het (vrouwen)voetbal in Nederland of in het buitenland.”

Dorpsstraat 16 - 5241 EC Rosmalen wax-actie tegen scherpe prijzen

Wij zijn dagelijks geopend ook op zondag van 10.00-16.00 uur kijk op google voor aangepaste openingstijden

voor u door u over u

redactie@nnmedia.nl - 06-37410335

Turn static files into dynamic content formats.

Create a flipbook
Issuu converts static files into: digital portfolios, online yearbooks, online catalogs, digital photo albums and more. Sign up and create your flipbook.